ΠΡΠΈΠ½ΡΠΈΠΏ ΡΠ°Π±ΠΎΡΡ Π΄ΠΎΠ²ΠΎΠ΄ΡΠΈΠΊΠ° Π΄Π²Π΅ΡΠΈ. Π Π΅Π³ΡΠ»ΠΈΡΠΎΠ²ΠΊΠ° ΡΠΊΠΎΡΠΎΡΡΠΈ ΠΈ ΡΡΠΈΠ»ΠΈΡ
ΠΡΠΈΠ½ΡΠΈΠΏ ΡΠ°Π±ΠΎΡΡ Π΄ΠΎΠ²ΠΎΠ΄ΡΠΈΠΊΠ° Π΄Π²Π΅ΡΠΈ. Π Π΅Π³ΡΠ»ΠΈΡΠΎΠ²ΠΊΠ° ΡΠΊΠΎΡΠΎΡΡΠΈ ΠΈ ΡΡΠΈΠ»ΠΈΡ
Π Π°Π±ΠΎΡΠ° Π²ΡΠ΅Ρ
Π΄Π²Π΅ΡΠ½ΡΡ
Π΄ΠΎΠ²ΠΎΠ΄ΡΠΈΠΊΠΎΠ² ΠΎΡΠ½ΠΎΠ²Π°Π½Π° Π½Π° Π½Π°ΠΊΠΎΠΏΠ»Π΅Π½ΠΈΠΈ ΡΠ½Π΅ΡΠ³ΠΈΠΈ Π² ΠΏΡΡΠΆΠΈΠ½Π΅ Π΄ΠΎΠ²ΠΎΠ΄ΡΠΈΠΊΠ°, ΠΊΠΎΡΠΎΡΠ°Ρ ΡΠΆΠΈΠΌΠ°Π΅ΡΡΡ ΠΏΡΠΈ ΠΎΡΠΊΡΡΡΠΈΠΈ Π΄Π²Π΅ΡΠΈ. ΠΠ°ΠΊΠΎΠΏΠ»Π΅Π½Π½Π°Ρ ΡΠ½Π΅ΡΠ³ΠΈΡ ΠΈΡΠΏΠΎΠ»ΡΠ·ΡΠ΅ΡΡΡ Π΄Π»Ρ Π·Π°ΠΊΡΡΡΠΈΡ Π΄Π²Π΅ΡΠΈ. ΠΡΡΠΆΠΈΠ½Π° Π²ΠΎΠ·Π²ΡΠ°ΡΠ°Π΅ΡΡΡ Π½Π° ΠΌΠ΅ΡΡΠΎ ΠΈ ΠΎΡΡΡΠ΅ΡΡΠ²Π»ΡΠ΅ΡΡΡ ΡΠ΅Π³ΡΠ»ΠΈΡΡΠ΅ΠΌΡΠΉ ΠΏΡΠΎΡΠ΅ΡΡ Π·Π°ΠΊΡΡΠ²Π°Π½ΠΈΡ Π΄Π²Π΅ΡΠΈ.
ΠΠ»Π°Π²Π½ΠΎΡΡΡ Π·Π°ΠΊΡΡΠ²Π°Π½ΠΈΡ Π΄Π²Π΅ΡΠΈ ΠΎΠ±Π΅ΡΠΏΠ΅ΡΠΈΠ²Π°Π΅ΡΡΡ ΡΠΏΠ΅ΡΠΈΠ°Π»ΡΠ½ΡΠΌ Π³ΠΈΠ΄ΡΠ°Π²Π»ΠΈΡΠ΅ΡΠΊΠΈΠΌ ΠΌΠ΅Ρ
Π°Π½ΠΈΠ·ΠΌΠΎΠΌ, ΡΠ°ΡΠΏΠΎΠ»ΠΎΠΆΠ΅Π½Π½ΠΎΠΌ Π²Π½ΡΡΡΠΈ ΠΊΠΎΡΠΏΡΡΠ° Π΄ΠΎΠ²ΠΎΠ΄ΡΠΈΠΊΠ°. ΠΡΠΎΡ ΠΌΠ΅Ρ
Π°Π½ΠΈΠ·ΠΌ ΡΠΎΡΡΠΎΠΈΡ ΠΈΠ· ΡΠΈΠ»ΠΈΠ½Π΄ΡΠ°, Π½Π°ΠΏΠΎΠ»Π½Π΅Π½Π½ΠΎΠ³ΠΎ ΡΠ°Π±ΠΎΡΠ΅ΠΉ ΠΆΠΈΠ΄ΠΊΠΎΡΡΡΡ (ΠΌΠ°ΡΠ»ΠΎ), ΠΏΠΎΡΡΠ½Ρ, Π΄Π²ΡΡ
ΡΠ΅Π·Π΅ΡΠ²ΡΠ°ΡΠΎΠ² Π΄Π»Ρ ΠΌΠ°ΡΠ»Π° ΠΈ ΡΠΈΡΡΠ΅ΠΌΡ ΠΊΠ°Π½Π°Π»ΠΎΠ², ΠΏΠΎ ΠΊΠΎΡΠΎΡΡΠΌ ΠΏΠ΅ΡΠ΅ΡΠ΅ΠΊΠ°Π΅Ρ ΠΌΠ°ΡΠ»ΠΎ. ΠΠΎ Π²ΡΠ΅ΠΌΡ ΠΎΡΠΊΡΡΠ²Π°Π½ΠΈΡ Π΄Π²Π΅ΡΠΈ ΠΏΡΡΠΆΠΈΠ½Π° ΡΠΆΠΈΠΌΠ°Π΅ΡΡΡ, ΠΏΠΎΡΡΠ΅Π½Ρ Π»Π΅Π³ΠΊΠΎ Π²ΡΡΠ°Π»ΠΊΠΈΠ²Π°Π΅Ρ ΠΌΠ°ΡΠ»ΠΎ ΠΈΠ· ΠΎΠ΄Π½ΠΎΠ³ΠΎ ΡΠ΅Π·Π΅ΡΠ²ΡΠ°ΡΠ° Π² Π΄ΡΡΠ³ΠΎΠΉ, ΠΏΡΠΈ Π·Π°ΠΊΡΡΠ²Π°Π½ΠΈΠΈ Π΄Π²Π΅ΡΠΈ ΠΏΡΡΠΆΠΈΠ½Π° ΡΠ°Π·ΠΆΠΈΠΌΠ°Π΅ΡΡΡ ΠΈ ΡΠΎΠ»ΠΊΠ°Π΅Ρ ΠΏΠΎΡΡΠ΅Π½Ρ Π² ΠΎΠ±ΡΠ°ΡΠ½ΡΡ ΡΡΠΎΡΠΎΠ½Ρ, ΠΏΠΎΡΡΠ΅Π½Ρ Π² ΡΠ²ΠΎΡ ΠΎΡΠ΅ΡΠ΅Π΄Ρ Π²ΡΡΠ°Π»ΠΊΠΈΠ²Π°Π΅Ρ ΠΌΠ°ΡΠ»ΠΎ Π² ΠΎΠ±ΡΠ°ΡΠ½ΡΡ ΡΡΠΎΡΠΎΠ½Ρ. ΠΡΠΎ ΠΎΠ±Π΅ΡΠΏΠ΅ΡΠΈΠ²Π°Π΅Ρ ΠΏΠ»Π°Π²Π½ΠΎΡΡΡ Π·Π°ΠΊΡΡΠ²Π°Π½ΠΈΡ Π΄Π²Π΅ΡΠΈ.
Π‘ΠΊΠΎΡΠΎΡΡΡ Π·Π°ΠΊΡΡΠ²Π°Π½ΠΈΡ Π΄Π²Π΅ΡΠΈ
ΠΡΠΈ Π·Π°ΠΊΡΡΠ²Π°Π½ΠΈΠΈ Π΄Π²Π΅ΡΠΈ ΠΌΠ°ΡΠ»ΠΎ Π²ΠΎΠ·Π²ΡΠ°ΡΠ°Π΅ΡΡΡ ΠΏΠΎ Π²ΠΎΠ·Π²ΡΠ°ΡΠ½ΡΠΌ ΠΊΠ°Π½Π°Π»Π°ΠΌ, Π² ΠΊΠΎΡΠΎΡΡΡ
ΡΡΡΠ°Π½ΠΎΠ²Π»Π΅Π½Ρ ΡΠΏΠ΅ΡΠΈΠ°Π»ΡΠ½ΡΠ΅ ΡΠ΅Π³ΡΠ»ΠΈΡΠΎΠ²ΠΎΡΠ½ΡΠ΅ ΠΊΠ»Π°ΠΏΠ°Π½Ρ. ΠΠΈΠ½ΡΡ ΡΡΠΈΡ
ΠΊΠ»Π°ΠΏΠ°Π½ΠΎΠ² Π²ΡΠ²Π΅Π΄Π΅Π½Ρ Π½Π° ΠΊΠΎΡΠΏΡΡ Π΄ΠΎΠ²ΠΎΠ΄ΡΠΈΠΊΠ°. ΠΠ°ΠΊΡΡΡΠΈΠ²Π°Ρ ΠΈ Π²ΡΠΊΡΡΡΠΈΠ²Π°Ρ ΡΡΠΈ Π²ΠΈΠ½ΡΡ ΠΈΠ·ΠΌΠ΅Π½ΡΠ΅ΡΡΡ ΠΏΠΎΠΏΠ΅ΡΠ΅ΡΠ½ΠΎΠ΅ ΡΠ΅ΡΠ΅Π½ΠΈΠ΅ ΠΏΠ΅ΡΠ΅ΠΏΡΡΠΊΠ½ΡΡ
ΠΊΠ°Π½Π°Π»ΠΎΠ², ΡΡΠΎ ΠΏΠΎΠ·Π²ΠΎΠ»ΡΠ΅Ρ ΡΠ²Π΅Π»ΠΈΡΠΈΡΡ ΠΈΠ»ΠΈ ΡΠΌΠ΅Π½ΡΡΠΈΡΡ ΡΠΎΠΏΡΠΎΡΠΈΠ²Π»Π΅Π½ΠΈΠ΅ ΠΏΠ΅ΡΠ΅ΡΠ΅ΠΊΠ°Π½ΠΈΡ ΠΌΠ°ΡΠ»Π°, Π° ΡΠΎΠΎΡΠ²Π΅ΡΡΡΠ²Π΅Π½Π½ΠΎ ΠΈ ΡΠΊΠΎΡΠΎΡΡΡ Π·Π°ΠΊΡΡΠ²Π°Π½ΠΈΡ Π΄Π²Π΅ΡΠΈ. ΠΡΠΈ ΡΠ΅Π³ΡΠ»ΠΈΡΠΎΠ²ΠΊΠ΅ ΡΠΊΠΎΡΠΎΡΡΠΈ Π·Π°ΠΊΡΡΠ²Π°Π½ΠΈΡ, Π½Π΅Π»ΡΠ·Ρ ΠΏΠΎΠ»Π½ΠΎΡΡΡΡ Π²ΡΠΊΡΡΡΠΈΠ²Π°ΡΡ ΡΠ΅Π³ΡΠ»ΠΈΡΠΎΠ²ΠΎΡΠ½ΡΠ΅ Π²ΠΈΠ½ΡΡ, ΡΡΠΎΠ±Ρ
Π½Π΅ Π΄ΠΎΠΏΡΡΡΠΈΡΡ ΡΠ΅ΡΡ ΠΌΠ°ΡΠ»Π° ΠΈ ΠΏΠΎΠΏΠ°Π΄Π°Π½ΠΈΡ Π²ΠΎΠ·Π΄ΡΡ
Π° Π²Π½ΡΡΡΡ Π΄ΠΎΠ²ΠΎΠ΄ΡΠΈΠΊΠ°. ΠΠ°ΠΆΠ½ΠΎ, ΡΡΠΎ ΠΏΡΠΈ ΡΡΠΎΠΌ Π½Π΅ ΠΈΠ·ΠΌΠ΅Π½ΡΠ΅ΡΡΡ ΡΡΠΈΠ»ΠΈΠ΅ Π΄Π²Π΅ΡΠ½ΠΎΠ³ΠΎ Π΄ΠΎΠ²ΠΎΠ΄ΡΠΈΠΊΠ°.
Π Π΅Π³ΡΠ»ΠΈΡΠΎΠ²ΠΊΠ° ΡΡΠΈΠ»ΠΈΡ Π΄Π²Π΅ΡΠ½ΠΎΠ³ΠΎ Π΄ΠΎΠ²ΠΎΠ΄ΡΠΈΠΊΠ°
Π‘ΡΡΠ΅ΡΡΠ²ΡΠ΅Ρ Π½Π΅ΡΠΊΠΎΠ»ΡΠΊΠΎ Π²ΠΈΠ΄ΠΎΠ² ΡΠ΅Π³ΡΠ»ΠΈΡΠΎΠ²ΠΊΠΈ ΡΡΠΈΠ»ΠΈΡ Π΄Π²Π΅ΡΠ½ΠΎΠ³ΠΎ Π΄ΠΎΠ²ΠΎΠ΄ΡΠΈΠΊΠ°. Π£ΡΠΈΠ»ΠΈΠ΅ Π΄ΠΎΠ²ΠΎΠ΄ΡΠΈΠΊΠ° ΠΈΠ·ΠΌΠ΅ΡΡΠ΅ΡΡΡ Π² EN (Π΅Π²ΡΠΎΠΏΠ΅ΠΉΡΠΊΠΈΡ
Π½ΠΎΡΠΌΠ°Ρ
) ΠΎΡ 1 Π΄ΠΎ 7 EN ΠΈ ΡΠΎΠΎΡΠ²Π΅ΡΡΡΠ²ΡΠ΅Ρ ΡΡΠ°Π½Π΄Π°ΡΡΡ EN 1154.
ΠΡ ΠΏΡΠ°Π²ΠΈΠ»ΡΠ½ΠΎ Π²ΡΠ±ΡΠ°Π½Π½ΠΎΠ³ΠΎ ΡΡΠΈΠ»ΠΈΡ Π·Π°Π²ΠΈΡΠΈΡ Π΄Π°Π»ΡΠ½Π΅ΠΉΡΠΈΠΉ
ΠΊΠΎΠΌΡΠΎΡΡ ΠΈΡΠΏΠΎΠ»ΡΠ·ΠΎΠ²Π°Π½ΠΈΡ Π΄Π²Π΅ΡΠΈ. ΠΠ»Ρ ΠΏΡΠ°Π²ΠΈΠ»ΡΠ½ΠΎΠ³ΠΎ ΠΏΠΎΠ΄Π±ΠΎΡΠ° Π΄ΠΎΠ²ΠΎΠ΄ΡΠΈΠΊΠ° Π²ΠΎΡΠΏΠΎΠ»ΡΠ·ΡΠΉΡΠ΅ΡΡ ΡΠ°Π±Π»ΠΈΡΠ΅ΠΉ ΡΡΠΈΠ»ΠΈΠΉ:
|
|
|
|
|
|
|
|
|
|
|
|
|
|
|
|
|
|
|
|
|
|
|
|
ΠΠ΅ΡΠΎΠ΄Ρ ΠΈΠ·ΠΌΠ΅Π½Π΅Π½ΠΈΡ ΡΡΠΈΠ»ΠΈΡ:
- ΠΏΠ΅ΡΠ΅ΠΌΠ΅ΡΠ΅Π½ΠΈΠ΅ ΡΠ΅Π»Π° Π΄ΠΎΠ²ΠΎΠ΄ΡΠΈΠΊΠ° ΠΎΡΠ½ΠΎΡΠΈΡΠ΅Π»ΡΠ½ΠΎ ΠΏΠ΅ΡΠ΅Π»Ρ
- ΠΏΠΎΠ²ΠΎΡΠΎΡ Π»Π°ΠΏΠΊΠΈ ΠΊΡΠ΅ΠΏΠ»Π΅Π½ΠΈΡ ΡΠΊΠ»Π°Π΄Π½ΠΎΠ³ΠΎ ΡΡΡΠ°Π³Π° Π΄ΠΎΠ²ΠΎΠ΄ΡΠΈΠΊΠ°
- ΠΏΠ»Π°Π²Π½Π°Ρ ΡΠ΅Π³ΡΠ»ΠΈΡΠΎΠ²ΠΊΠ° ΡΡΠΈΠ»ΠΈΡ ΡΠΏΠ΅ΡΠΈΠ°Π»ΡΠ½ΡΠΌ ΡΠ΅Π³ΡΠ»ΠΈΡΠΎΠ²ΠΎΡΠ½ΡΠΌ Π²ΠΈΠ½ΡΠΎΠΌ
Π ΠΏΠ΅ΡΠ²ΡΡ
Π΄Π²ΡΡ
ΠΌΠ΅ΡΠΎΠ΄Π°Ρ
ΡΡΠΈΠ»ΠΈΠ΅ ΠΏΡΡΠΆΠΈΠ½Ρ ΠΎΡΡΠ°Π΅ΡΡΡ Π½Π΅ΠΈΠ·ΠΌΠ΅Π½Π½ΡΠΌ, ΡΡΠΈΠ»ΠΈΠ΅ Π΄ΠΎΠ²ΠΎΠ΄ΡΠΈΠΊΠ° ΠΈΠ·ΠΌΠ΅Π½ΡΠ΅ΡΡΡ Π·Π° ΡΡΠ΅Ρ ΠΈΠ·ΠΌΠ΅Π½Π΅Π½ΠΈΡ Π΄Π»ΠΈΠ½Ρ ΠΏΠ»Π΅ΡΠ°.
Π ΡΡΠ΅ΡΡΠ΅ΠΌ Π²Π°ΡΠΈΠ°Π½ΡΠ΅ ΡΡΠΈΠ»ΠΈΠ΅ Π΄ΠΎΠ²ΠΎΠ΄ΡΠΈΠΊΠ° ΠΈΠ·ΠΌΠ΅Π½ΡΠ΅ΡΡΡ Π·Π° ΡΡΠ΅Ρ ΡΠΆΠ°ΡΠΈΡ ΠΏΡΡΠΆΠΈΠ½Ρ ΡΠ΅Π³ΡΠ»ΠΈΡΠΎΠ²ΠΎΡΠ½ΡΠΌ Π²ΠΈΠ½ΡΠΎΠΌ.
Π Π΅ΠΌΠΎΠ½Ρ ΠΈ ΡΠ΅Π³ΡΠ»ΠΈΡΠΎΠ²ΠΊΠ° Π΄ΠΎΠ²ΠΎΠ΄ΡΠΈΠΊΠ° Π΄Π²Π΅ΡΠΈ
Π‘ΠΎΠ²ΡΠ΅ΠΌΠ΅Π½Π½ΡΠ΅ Π΄Π²Π΅ΡΠΈ ΠΎΡΠ½Π°ΡΠ΅Π½Ρ ΡΠΏΠ΅ΡΠΈΠ°Π»ΡΠ½ΡΠΌ ΡΡΡΡΠΎΠΉΡΡΠ²ΠΎΠΌ, ΠΊΠΎΡΠΎΡΠΎΠ΅ ΠΈΠ·Π±Π°Π²Π»ΡΠ΅Ρ Π΄ΠΎΠΌΠΎΡΠ°Π΄ΡΠ΅Π² ΠΎΡ Π½Π΅ΠΎΠ±Ρ
ΠΎΠ΄ΠΈΠΌΠΎΡΡΠΈ Π·Π° ΡΠΎΠ±ΠΎΠΉ ΡΠ°ΠΌΠΎΡΡΠΎΡΡΠ΅Π»ΡΠ½ΠΎ Π·Π°Ρ
Π»ΠΎΠΏΡΠ²Π°ΡΡ Π΄Π²Π΅ΡΡ.
ΠΠΏΡΠΎΡΠ΅ΠΌ, Π΄Π²Π΅ΡΡ Π² ΡΡΠΎΠΌ ΡΠ»ΡΡΠ°Π΅ Π±ΡΠ΄Π΅Ρ Π½Π΅ Π·Π°Ρ
Π»ΠΎΠΏΡΠ²Π°ΡΡΡΡ, Π° ΠΏΠ»Π°Π²Π½ΠΎ Π·Π°ΠΊΡΡΠ²Π°ΡΡΡΡ Π·Π° Π²Π°ΠΌΠΈ Π±Π΅Π· Π»ΠΈΡΠ½Π΅Π³ΠΎ ΡΡΠΌΠ°. Π Π΅ΡΡ, Π±Π΅Π·ΡΡΠ»ΠΎΠ²Π½ΠΎ, ΠΈΠ΄Π΅Ρ ΠΎ Π΄ΠΎΠ²ΠΎΠ΄ΡΠΈΠΊΠ΅ Π΄Π²Π΅ΡΠΈ. ΠΡΠΎ Π½Π΅Π±ΠΎΠ»ΡΡΠΎΠ΅ ΡΡΡΡΠΎΠΉΡΡΠ²ΠΎ ΡΡΠ΅Π±ΡΠ΅Ρ ΠΎΡΠΎΠ±ΠΎΠ³ΠΎ Π²Π½ΠΈΠΌΠ°Π½ΠΈΡ ΠΊ ΡΠ΅Π±Π΅, ΠΏΠΎΡΡΠΎΠΌΡ ΡΠ°ΠΊ Π²Π°ΠΆΠ½ΠΎ Π·Π½Π°ΡΡ, ΠΊΠ°ΠΊ ΠΏΡΠ°Π²ΠΈΠ»ΡΠ½ΠΎ ΠΎΡΡΠ΅Π³ΡΠ»ΠΈΡΠΎΠ²Π°ΡΡ Π΄ΠΎΠ²ΠΎΠ΄ΡΠΈΠΊ Π΄Π²Π΅ΡΠΈ ΠΈ ΠΏΡΠΎΠ²Π΅ΡΡΠΈ ΡΠ²ΠΎΠ΅Π²ΡΠ΅ΠΌΠ΅Π½Π½ΡΠΉ ΡΠ΅ΠΌΠΎΠ½Ρ.
Π‘ΠΎΠ΄Π΅ΡΠΆΠ°Π½ΠΈΠ΅:
- ΠΡΠΎΠ±Π΅Π½Π½ΠΎΡΡΠΈ Π΄Π²Π΅ΡΠ½ΡΡ Π΄ΠΎΠ²ΠΎΠ΄ΡΠΈΠΊΠΎΠ²
- ΠΠΈΠ΄Ρ Π΄Π²Π΅ΡΠ½ΡΡ Π΄ΠΎΠ²ΠΎΠ΄ΡΠΈΠΊΠΎΠ²
- Π‘ΠΏΠΎΡΠΎΠ±Ρ ΡΡΡΠ°Π½ΠΎΠ²ΠΊΠΈ Π΄ΠΎΠ²ΠΎΠ΄ΡΠΈΠΊΠ° Π½Π° Π΄Π²Π΅ΡΡ
- Π Π΅ΠΌΠΎΠ½Ρ Π΄ΠΎΠ²ΠΎΠ΄ΡΠΈΠΊΠ° Π΄Π²Π΅ΡΠΈ ΡΠ²ΠΎΠΈΠΌΠΈ ΡΡΠΊΠ°ΠΌΠΈ
- Π Π΅Π³ΡΠ»ΠΈΡΠΎΠ²ΠΊΠ° Π΄Π²Π΅ΡΠ½ΠΎΠ³ΠΎ Π΄ΠΎΠ²ΠΎΠ΄ΡΠΈΠΊΠ° ΡΠ²ΠΎΠΈΠΌΠΈ ΡΡΠΊΠ°ΠΌΠΈ
ΠΡΠΎΠ±Π΅Π½Π½ΠΎΡΡΠΈ Π΄Π²Π΅ΡΠ½ΡΡ Π΄ΠΎΠ²ΠΎΠ΄ΡΠΈΠΊΠΎΠ²
ΠΡΠΎΠ±Π»Π΅ΠΌΠ° ΡΠ°ΡΠΏΠ°Ρ Π½ΡΡΡΡ Π΄Π²Π΅ΡΠ΅ΠΉ ΠΌΠΎΠΆΠ΅Ρ Ρ Π»Π΅Π³ΠΊΠΎΡΡΡΡ ΡΠ΅ΡΠΈΡΡΡΡ ΠΏΠΎΡΡΠ΅Π΄ΡΡΠ²ΠΎΠΌ ΡΡΡΠ°Π½ΠΎΠ²ΠΊΠΈ Π΄ΠΎΠ²ΠΎΠ΄ΡΠΈΠΊΠ°, ΠΊΠΎΡΠΎΡΡΠΉ ΡΠΏΡΠ°Π²Π»ΡΠ΅Ρ ΠΏΡΠΎΡΠ΅ΡΡΠΎΠΌ Π°Π²ΡΠΎΠΌΠ°ΡΠΈΡΠ΅ΡΠΊΠΎΠ³ΠΎ ΠΎΡΠΊΡΡΠ²Π°Π½ΠΈΡ ΠΈ Π·Π°ΠΊΡΡΠ²Π°Π½ΠΈΡ Π΄Π²Π΅ΡΠΈ, Π·Π°ΠΊΡΡΠ²Π°Ρ Π΅Ρ Π±Π΅Π· Π΄ΠΎΠΏΠΎΠ»Π½ΠΈΡΠ΅Π»ΡΠ½ΠΎΠ³ΠΎ ΡΠΈΠ»ΠΎΠ²ΠΎΠ³ΠΎ Π²ΠΎΠ·Π΄Π΅ΠΉΡΡΠ²ΠΈΡ ΡΠΎ ΡΡΠΎΡΠΎΠ½Ρ ΡΠ΅Π»ΠΎΠ²Π΅ΠΊΠ°. ΠΠ΅ΠΎΠ±Ρ ΠΎΠ΄ΠΈΠΌΠΎΡΡΡ Π΄ΠΎΠ²ΠΎΠ΄ΡΠΈΠΊΠΎΠ² ΠΏΡΠΎΠ΄ΠΈΠΊΡΠΎΠ²Π°Π½Π° Π΄ΠΎΠ²ΠΎΠ»ΡΠ½ΠΎ ΠΏΡΠ°ΠΊΡΠΈΡΠ½ΡΠΌΠΈ ΠΈ ΡΡΠ½ΠΊΡΠΈΠΎΠ½Π°Π»ΡΠ½ΡΠΌΠΈ Π΄ΠΎΠ²ΠΎΠ΄Π°ΠΌΠΈ. ΠΠΎΠΏΡΡΡΠΈΠΌ, Π²Ρ ΠΏΠΎΡΡΠ°Π²ΠΈΠ»ΠΈ ΠΌΠ°ΡΡΠΈΠ²Π½ΡΡ Π²Ρ ΠΎΠ΄Π½ΡΡ ΠΌΠ΅ΡΠ°Π»Π»ΠΈΡΠ΅ΡΠΊΡΡ Π΄Π²Π΅ΡΡ. ΠΠΎΠ»ΠΎΡΠ½ΠΎ Π΄Π²Π΅ΡΠΈ ΠΎΠ±Π»Π°Π΄Π°Π΅Ρ Π±ΠΎΠ»ΡΡΠΎΠΉ ΠΌΠ°ΡΡΠΎΠΉ, ΠΈ Π΅ΡΠ»ΠΈ ΡΠΏΠ΅ΡΠΈΠ°Π»ΡΠ½ΠΎ Π½Π΅ ΡΠ΄Π΅ΡΠΆΠΈΠ²Π°ΡΡ ΠΏΡΠΈ Π·Π°ΠΊΡΡΡΠΈΠΈ Π΄Π²Π΅ΡΡ, ΠΏΠΎΠ»ΠΎΡΠ½ΠΎ Π±ΡΠ΄Π΅Ρ Π±ΠΈΡΡ ΠΏΠΎ Π»ΡΡΠΊΠ΅ Ρ Π±ΠΎΠ»ΡΡΠΈΠΌ ΡΡΠΈΠ»ΠΈΠ΅ΠΌ.
ΠΠΎΠ²ΠΎΠ΄ΡΠΈΠΊΠΈ Π΄Π²Π΅ΡΠΈ ΠΎΠ±Π΅ΡΠΏΠ΅ΡΠΈΠ²Π°ΡΡ ΠΏΠ»Π°Π²Π½ΠΎΠ΅ Π·Π°ΠΊΡΡΡΠΈΠ΅ Π΄Π²Π΅ΡΠΈ Π±Π΅Π· Π»ΠΈΡΠ½Π΅Π³ΠΎ ΡΡΠΌΠ°, Π·Π°Π΄Π°ΡΡ ΡΠΊΠΎΡΠΎΡΡΡ Π·Π°ΠΊΡΡΠ²Π°Π½ΠΈΡ ΠΈ ΠΎΡΠΊΡΡΠ²Π°Π½ΠΈΡ Π΄Π²Π΅ΡΠΈ Π½Π° ΡΠ°Π·Π½ΡΡ ΡΡΠ°ΡΡΠΊΠ°Ρ , Π° ΡΠ°ΠΊΠΆΠ΅ ΠΎΠΏΡΠ΅Π΄Π΅Π»ΡΡΡ ΡΡΠΈΠ»ΠΈΡ, ΠΊΠΎΡΠΎΡΡΠ΅ Π΄ΠΎΠ»ΠΆΠ΅Π½ ΠΏΡΠΈΠ»ΠΎΠΆΠΈΡΡ ΡΠ΅Π»ΠΎΠ²Π΅ΠΊ Π΄Π»Ρ ΠΎΡΠΊΡΡΡΠΈΡ Π΄Π²Π΅ΡΠΈ. ΠΠΎΠ²ΠΎΠ΄ΡΠΈΠΊ Π΄Π²Π΅ΡΠΈ ΡΠΏΠΎΡΠΎΠ±Π΅Π½ ΡΠ±Π΅ΡΠ΅Π³Π°ΡΡ Π² ΠΏΠΎΠΌΠ΅ΡΠ΅Π½ΠΈΠΈ ΡΠ΅ΠΏΠ»ΠΎ ΠΈΠ»ΠΈ ΠΏΡΠΎΡ Π»Π°Π΄Ρ Π² ΠΏΠΎΠΌΠ΅ΡΠ΅Π½ΠΈΠΈ, Π° ΡΠ°ΠΊΠΆΠ΅ ΠΎΠ±Π΅ΡΠΏΠ΅ΡΠΈΠ²Π°ΡΡ ΠΊΠΎΡΡΠ΅ΠΊΡΠ½ΡΡ ΡΠ°Π±ΠΎΡΡ Π·Π°ΠΏΠΈΡΠ°ΡΡΠ΅Π³ΠΎ ΡΡΡΡΠΎΠΉΡΡΠ²Π°. Π ΡΠΎΠΌΡ ΠΆΠ΅ Π΄ΠΎΠ²ΠΎΠ΄ΡΠΈΠΊΠΈ Ρ ΡΡΠ½ΠΊΡΠΈΠ΅ΠΉ hold open ΠΏΠΎΠ΄Π΄Π΅ΡΠΆΠΈΠ²Π°ΡΡ Π²ΠΎΠ·ΠΌΠΎΠΆΠ½ΠΎΡΡΡ ΡΠΈΠΊΡΠ°ΡΠΈΠΈ ΠΎΡΠΊΡΡΡΠΎΠΉ Π΄Π²Π΅ΡΠΈ, ΡΡΠΎ ΡΠ²Π»ΡΠ΅ΡΡΡ ΠΎΡΠ΅Π½Ρ ΠΏΠΎΠ»Π΅Π·Π½ΡΠΌ, ΡΠ°ΠΊ ΠΊΠ°ΠΊ ΠΏΠΎΠ΄ ΠΎΡΠΊΡΡΡΡΡ Π΄Π²Π΅ΡΡ Π½Π΅ ΠΏΡΠΈΠ΄Π΅ΡΡΡ ΠΏΠΎΠ΄ΠΊΠ»Π°Π΄ΡΠ²Π°ΡΡ Π½ΠΈΠΊΠ°ΠΊΠΈΡ ΠΏΡΠ΅Π΄ΠΌΠ΅ΡΠΎΠ².
ΠΠΎΠ²ΠΎΠ΄ΡΠΈΠΊΠΈ Ρ ΠΌΠ΅Ρ
Π°Π½ΠΈΠ·ΠΌΠΎΠΌ delay action ΠΏΠΎΠ·Π²ΠΎΠ»ΡΡΡ Π΄Π²Π΅ΡΠΈ ΠΎΡΡΠ°Π²Π»ΡΡΡ ΠΎΡΠΊΡΡΡΡΠΌΠΈ Π½Π° ΠΏΡΠΎΡΡΠΆΠ΅Π½ΠΈΠΈ ΠΎΠΏΡΠ΅Π΄Π΅Π»Π΅Π½Π½ΠΎΠ³ΠΎ Π²ΡΠ΅ΠΌΠ΅Π½ΠΈ, ΠΏΠΎΡΠ»Π΅ ΡΠ΅Π³ΠΎ Π΄Π²Π΅ΡΡ ΡΡΠ°Π½Π΅Ρ Π·Π°ΠΊΡΡΠ²Π°ΡΡΡΡ Π² ΠΎΠ±ΡΠΊΠ½ΠΎΠ²Π΅Π½Π½ΠΎΠΌ ΡΠ΅ΠΆΠΈΠΌΠ΅. Π’Π°ΠΊΠΎΠΉ ΡΠΈΠΏ ΡΡΡΡΠΎΠΉΡΡΠ² ΡΡΠΈΡΠ°Π΅ΡΡΡ ΡΠ΄ΠΎΠ±Π½ΡΠΌ Π΄Π»Ρ Π΄Π²Π΅ΡΠ΅ΠΉ Π² Ρ
ΠΎΠ·ΡΠΉΡΡΠ²Π΅Π½Π½ΡΡ
ΠΏΠΎΠΌΠ΅ΡΠ΅Π½ΠΈΡΡ
(ΡΠΊΠ»Π°Π΄Ρ, ΠΏΠΎΠ΄ΡΠΎΠ±ΠΊΠΈ, ΠΊΠ»Π°Π΄ΠΎΠ²ΠΊΠΈ). ΠΡΠ° ΠΌΠΎΠ΄Π΅Π»Ρ ΠΏΠΎΠ΄Ρ
ΠΎΠ΄ΠΈΡ Π΄Π»Ρ ΡΠΎΠ³ΠΎ, ΡΡΠΎΠ±Ρ ΠΌΠΎΠΆΠ½ΠΎ Π±ΡΠ»ΠΎ ΠΎΡΠΊΡΡΡΡ Π΄Π²Π΅ΡΠΊΡ ΠΏΡΠΈ ΠΏΠ΅ΡΠ΅Π½ΠΎΡΠΊΠ΅ Π³ΡΡΠ·ΠΎΠ², Π·Π°ΡΠ΅ΠΌ Π²Π·ΡΡΡ Π³ΡΡΠ·, Π·Π°Π½Π΅ΡΡΠΈ Π΅Π³ΠΎ Π² Π·Π΄Π°Π½ΠΈΠ΅, ΠΈ Π΄Π²Π΅ΡΡ ΠΏΠΎ ΠΈΡΡΠ΅ΡΠ΅Π½ΠΈΠΈ ΡΡΠΎΠ³ΠΎ Π²ΡΠ΅ΠΌΠ΅Π½ΠΈ ΡΠ°ΠΌΠ° Π½Π°ΡΠΈΠ½Π°Π΅Ρ Π·Π°ΠΊΡΡΠ²Π°ΡΡΡΡ, Π½Π΅ ΡΡΠ΅Π±ΡΡ ΠΌΠ΅Ρ
Π°Π½ΠΈΡΠ΅ΡΠΊΠΈΡ
ΡΡΠΈΠ»ΠΈΠΉ.
ΠΠΎΠ²ΠΎΠ΄ΡΠΈΠΊΠΈ ΠΌΠΎΠΆΠ½ΠΎ ΡΡΡΠ°Π½Π°Π²Π»ΠΈΠ²Π°ΡΡ Π½Π° ΠΎΠ±ΡΠΊΠ½ΠΎΠ²Π΅Π½Π½ΡΠ΅ ΠΌΠ΅ΠΆΠΊΠΎΠΌΠ½Π°ΡΠ½ΡΠ΅ ΠΈ Π½Π°ΡΡΠΆΠ½ΡΠ΅ ΡΡΠΆΠ΅Π»ΡΠ΅ Π΄Π²Π΅ΡΠΈ, ΡΡΠΈΡΡΠ²Π°Ρ ΠΏΡΠ΅Π΄Π²Π°ΡΠΈΡΠ΅Π»ΡΠ½ΠΎ Π²Π΅Ρ Π΄Π²Π΅ΡΠΈ ΠΈ ΡΠΈΡΠΈΠ½Ρ Π΄Π²Π΅ΡΠ½ΠΎΠ³ΠΎ ΠΏΠΎΠ»ΠΎΡΠ½Π°, Π° ΡΠ°ΠΊΠΆΠ΅ Π½Π΅ Π·Π°Π±ΡΠ²Π°Ρ ΠΎ Π½Π΅ΠΎΠ±Ρ ΠΎΠ΄ΠΈΠΌΠΎΡΡΠΈ ΠΏΡΠΎΠ²Π΅Π΄Π΅Π½ΠΈΡ Π½Π°ΡΡΡΠΎΠΉΠΊΠΈ Π΄ΠΎΠ²ΠΎΠ΄ΡΠΈΠΊΠ° Π΄Π²Π΅ΡΠΈ. Π§Π΅ΠΌ ΡΡΠΆΠ΅Π»Π΅Π΅ Π²Π°ΡΠ° Π΄Π²Π΅ΡΡ, ΡΠ΅ΠΌ Π½Π°Π΄Π΅ΠΆΠ½Π΅Π΅ ΠΈ ΠΌΠΎΡΠ½Π΅Π΅ Π΄ΠΎΠ»ΠΆΠ΅Π½ Π±ΡΡΡ Π΄ΠΎΠ²ΠΎΠ΄ΡΠΈΠΊ Π΄Π»Ρ Π½Π΅Ρ. Π‘Π°ΠΌΡΠΌ ΠΏΡΠΎΡΡΡΠΌ Π²Π°ΡΠΈΠ°Π½ΡΠΎΠΌ ΠΌΠ΅Ρ Π°Π½ΠΈΠ·ΠΌΠ° ΡΡΠΈΡΠ°Π΅ΡΡΡ ΠΏΡΡΠΆΠΈΠ½Π°. ΠΠΎ ΡΠ°ΠΊΠΎΠΉ Β«Π΄ΠΎΠ²ΠΎΠ΄ΡΠΈΠΊΒ» ΡΠ°Π±ΠΎΡΠ°Π΅Ρ ΡΠ»ΠΈΡΠΊΠΎΠΌ ΡΠ΅Π·ΠΊΠΎ ΠΈ ΠΎΡΠ΅Π½Ρ ΡΡΠΌΠ½ΠΎ.
ΠΠ΄Π΅Π°Π»ΡΠ½ΡΠΌ Π²Π°ΡΠΈΠ°Π½ΡΠΎΠΌ ΡΠ²Π»ΡΠ΅ΡΡΡ ΡΠ΅Π³ΡΠ»ΠΈΡΡΠ΅ΠΌΠ°Ρ ΠΊΠΎΠ½ΡΡΡΡΠΊΡΠΈΡ, Π² ΠΎΡΠ½ΠΎΠ²Π΅ ΠΊΠΎΡΠΎΡΠΎΠΉ ΡΠ°ΠΊΠΆΠ΅ ΡΠ°ΡΠΏΠΎΠ»Π°Π³Π°Π΅ΡΡΡ ΠΏΡΡΠΆΠΈΠ½Π°, ΠΎΠ΄Π½Π°ΠΊΠΎ ΠΎΠ½Π° Π·Π°ΠΊΠ»ΡΡΠ΅Π½Π° Π² Π³Π΅ΡΠΌΠ΅ΡΠΈΡΠ½ΡΠΉ ΠΊΠΎΡΠΏΡΡ Π² ΠΌΠ°ΡΠ»ΡΠ½ΠΎΠΌ ΡΠΎΡΡΠ°Π²Π΅. ΠΡΠΈΠ½ΡΠΈΠΏ ΡΠ°Π±ΠΎΡΡ Π΄Π²Π΅ΡΠ½ΠΎΠ³ΠΎ Π΄ΠΎΠ²ΠΎΠ΄ΡΠΈΠΊΠ° Π΄ΠΎΠ²ΠΎΠ»ΡΠ½ΠΎ ΠΏΡΠΎΡΡ. ΠΠ»Ρ ΠΎΡΠΊΡΡΡΠΈΡ Π΄Π²Π΅ΡΠΈ ΡΠ΅Π»ΠΎΠ²Π΅ΠΊ ΠΏΡΠΈΠΊΠ»Π°Π΄ΡΠ²Π°Π΅Ρ ΠΎΠΏΡΠ΅Π΄Π΅Π»Π΅Π½Π½ΠΎΠ΅ ΡΡΠΈΠ»ΠΈΠ΅, ΠΊΠΎΡΠΎΡΠΎΠ΅ ΠΏΠ΅ΡΠ΅Π΄Π°Π΅ΡΡΡ ΠΌΠ΅Ρ Π°Π½ΠΈΡΠ΅ΡΠΊΠΈΠΌ ΠΏΡΡΠ΅ΠΌ Π½Π° Π΄ΠΎΠ²ΠΎΠ΄ΡΠΈΠΊ ΠΈ Π°ΠΊΠΊΡΠΌΡΠ»ΠΈΡΡΠ΅ΡΡΡ ΠΏΠΎΡΡΠ΅Π΄ΡΡΠ²ΠΎΠΌ ΡΠΆΠ°ΡΠΈΡ ΠΏΡΡΠΆΠΈΠ½Ρ, ΡΡΠΎ Π²ΡΡΡΠΎΠ΅Π½Π° Π² ΠΊΠΎΡΠΏΡΡΠ΅ Π΄ΠΎΠ²ΠΎΠ΄ΡΠΈΠΊΠ°. ΠΠ°ΡΠ΅ΠΌ ΡΡΠ° ΠΏΡΡΠΆΠΈΠ½Π° Π²ΠΎΠ·Π²ΡΠ°ΡΠ°Π΅ΡΡΡ Π² ΠΈΡΡ ΠΎΠ΄Π½ΠΎΠ΅ ΠΏΠΎΠ»ΠΎΠΆΠ΅Π½ΠΈΠ΅, ΠΏΠΎΠ·Π²ΠΎΠ»ΡΡ ΡΠ΅Π³ΡΠ»ΠΈΡΠΎΠ²Π°ΡΡ ΠΏΡΠΎΡΠ΅ΡΡ Π·Π°ΠΊΡΡΠ²Π°Π½ΠΈΡ Π΄Π²Π΅ΡΠΈ.
ΠΠΈΠ΄Ρ Π΄Π²Π΅ΡΠ½ΡΡ Π΄ΠΎΠ²ΠΎΠ΄ΡΠΈΠΊΠΎΠ²
ΠΠΎ ΠΊΠΎΠ½ΡΡΡΡΠΊΡΠΈΠΈ Π΄Π²Π΅ΡΠ½ΡΠ΅ Π΄ΠΎΠ²ΠΎΠ΄ΡΠΈΠΊΠΈ ΡΠ°Π·Π΄Π΅Π»ΡΡΡΡΡ Π½Π° ΡΡΡΠ°ΠΆΠ½ΡΠ΅ Π²Π°ΡΠΈΠ°Π½ΡΡ, ΡΡΠΎ ΠΎΡΠ½Π°ΡΠ΅Π½Ρ ΠΊΡΠΈΠ²ΠΎΡΠΈΠΏΠ½ΡΠΌ ΠΏΡΠΈΠ²ΠΎΠ΄ΠΎΠΌ, ΠΈ Π±Π΅Π·ΡΡΡΠ°ΠΆΠ½ΡΠ΅ ΠΌΠΎΠ΄Π΅Π»ΠΈ Ρ ΠΊΡΠ»Π°ΡΠΊΠΎΠ²ΡΠΌ ΠΏΡΠΈΠ²ΠΎΠ΄ΠΎΠΌ.
ΠΠ½ΡΡΡΠΈ ΡΡΡΠ°ΠΆΠ½ΡΡ Π΄Π²Π΅ΡΠ½ΡΡ Π΄ΠΎΠ²ΠΎΠ΄ΡΠΈΠΊΠΎΠ² ΡΠ°ΡΠΏΠΎΠ»Π°Π³Π°Π΅ΡΡΡ ΠΏΡΡΠΆΠΈΠ½Π° ΠΈ Π³ΠΈΠ΄ΡΠΎΡΠΈΡΡΠ΅ΠΌΠ°, ΡΡΠΎ Π·Π°ΠΏΠΎΠ»Π½Π΅Π½Π° ΠΌΠ°ΡΠ»ΠΎΠΌ. ΠΠΈΠ΄ΡΠΎΡΠΈΡΡΠ΅ΠΌΠ° Π²ΡΠΏΠΎΠ»Π½ΡΠ΅Ρ ΡΡΠ½ΠΊΡΠΈΡ Π°ΠΌΠΎΡΡΠΈΠ·Π°ΡΠΎΡΠ°. ΠΡΡΠΆΠΈΠ½Π° ΠΏΡΠΈ ΠΎΡΠΊΡΡΠ²Π°Π½ΠΈΠΈ Π΄Π²Π΅ΡΠΈ ΡΠΆΠΈΠΌΠ°Π΅ΡΡΡ, Π° ΠΆΠΈΠ΄ΠΊΠΎΡΡΡ Π²ΡΡΠ°Π»ΠΊΠΈΠ²Π°Π΅ΡΡΡ ΠΏΠΎΡΡΠ½Π΅ΠΌ ΠΈΠ· ΠΎΠ΄Π½ΠΎΠΉ Π² Π΄ΡΡΠ³ΡΡ Π΅ΠΌΠΊΠΎΡΡΡ. ΠΠΎΡΠ»Π΅ ΡΡΠΎΠ³ΠΎ ΠΏΡΡΠΆΠΈΠ½Π° ΡΠ°ΡΠΏΡΡΠΌΠ»ΡΠ΅ΡΡΡ, Π° ΠΌΠ°ΡΠ»ΠΎ Π²ΠΎΠ·Π²ΡΠ°ΡΠ°Π΅ΡΡΡ Π² ΠΏΠ΅ΡΠ²ΡΡ Π΅ΠΌΠΊΠΎΡΡΡ. Π₯ΠΎΡΡ Π³ΠΈΠ΄ΡΠ°Π²Π»ΠΈΡΠ΅ΡΠΊΠ°Ρ ΠΏΡΡΠΆΠΈΠ½Π° ΡΠ°ΡΠΏΠΎΠ»Π°Π³Π°Π΅ΡΡΡ Π² Π³Π΅ΡΠΌΠ΅ΡΠΈΡΠ½ΠΎΠΉ ΠΊΠΎΡΠΎΠ±ΠΊΠ΅, ΠΈΠ½ΠΎΠ³Π΄Π° ΠΎΠ½Π° Π½Π°ΡΠΈΠ½Π°Π΅Ρ ΠΏΠΎΠ΄ΡΠ΅ΠΊΠ°ΡΡ, ΡΡΠΎ ΡΠ²Π»ΡΠ΅ΡΡΡ ΠΏΠ΅ΡΠ²ΡΠΌ ΡΠΈΠ³Π½Π°Π»ΠΎΠΌ Π΄Π»Ρ ΠΏΡΠΎΠ²Π΅Π΄Π΅Π½ΠΈΡ ΡΠ΅ΠΌΠΎΠ½ΡΠ° Π΄ΠΎΠ²ΠΎΠ΄ΡΠΈΠΊΠ° Π΄Π²Π΅ΡΠΈ.
Π ΡΠΈΡΡΠ΅ΠΌΠ΅ ΡΠ°ΡΠΏΠΎΠ»Π°Π³Π°ΡΡΡΡ ΠΊΠ»Π°ΠΏΠ°Π½Ρ, ΡΠ΅Π³ΡΠ»ΠΈΡΡΡΡΠΈΠ΅ ΡΠΊΠΎΡΠΎΡΡΡ ΠΏΠ΅ΡΠ΅ΡΠ΅ΠΊΠ°Π½ΠΈΡ ΠΆΠΈΠ΄ΠΊΠΎΡΡΠΈ ΠΈ ΡΡΠΈΠ»ΠΈΠ΅, ΠΏΡΠΈ ΠΊΠΎΡΠΎΡΠΎΠΌ ΠΎΠ½Π° Π±ΡΠ΄Π΅Ρ Π΄Π²ΠΈΠ³Π°ΡΡΡΡ. ΠΠ½ΠΈ ΠΈ ΠΎΡΠ²Π΅ΡΠ°ΡΡ Π·Π° ΡΠΊΠΎΡΠΎΡΡΡ ΠΈ ΠΏΠ»Π°Π²Π½ΠΎΡΡΡ Π·Π°ΠΊΡΡΠ²Π°Π½ΠΈΡ Π΄Π²Π΅ΡΠΈ. Π£ΡΡΡΠΎΠΉΡΡΠ²ΠΎ Π΄ΠΎΠ²ΠΎΠ΄ΡΠΈΠΊΠ° Π΄Π²Π΅ΡΠΈ ΠΌΠΎΠΆΠ΅Ρ ΡΡΠ»ΠΎΠΆΠ½ΡΡΡΡΡ Π΄ΠΎΠΏΠΎΠ»Π½ΠΈΡΠ΅Π»ΡΠ½ΡΠΌΠΈ ΠΊΠ»Π°ΠΏΠ°Π½Π°ΠΌΠΈ, ΠΎΠ±Π΅ΡΠΏΠ΅ΡΠΈΠ²Π°ΡΡΠΈΠΌΠΈ ΡΠ°Π·Π½ΡΠ΅ ΡΡΠ½ΠΊΡΠΈΠΈ Π΄ΠΎΠ²ΠΎΠ΄ΡΠΈΠΊΠ°. Π ΠΏΡΠΈΠΌΠ΅ΡΡ, ΡΠ΄Π΅ΡΠΆΠ°Π½ΠΈΠ΅ Π΄Π²Π΅ΡΠΈ Π½Π° ΠΏΡΠΎΡΡΠΆΠ΅Π½ΠΈΠΈ Π΄Π»ΠΈΡΠ΅Π»ΡΠ½ΠΎΠ³ΠΎ Π²ΡΠ΅ΠΌΠ΅Π½ΠΈ Π² ΠΎΡΠΊΡΡΡΠΎΠΌ ΡΠΎΡΡΠΎΡΠ½ΠΈΠΈ, ΠΈΠ»ΠΈ ΠΆΠ΅ ΡΠΎΠ·Π΄Π°Π½ΠΈΠ΅ ΡΡΠ½ΠΊΡΠΈΠΈ Π΄ΠΎΡ
Π»ΠΎΠΏΠ° Π΄Π»Ρ ΡΡΠ°Π±Π°ΡΡΠ²Π°Π½ΠΈΡ Π·Π°ΠΌΠΊΠ° ΠΈΠ»ΠΈ Π»ΡΡΡΠ΅Π³ΠΎ ΠΏΡΠΈΠΆΠ°ΡΠΈΡ Π΄Π²Π΅ΡΠΊΠΈ ΠΊ Π»ΡΡΠΊΠ΅.
ΠΠΎ ΡΠΏΠΎΡΠΎΠ±Ρ ΠΌΠΎΠ½ΡΠ°ΠΆΠ° Π΄ΠΎΠ²ΠΎΠ΄ΡΠΈΠΊΠΈ ΡΠ°Π·Π΄Π΅Π»ΡΡΡΡΡ Π½Π°:
- Π΄ΠΎΠ²ΠΎΠ΄ΡΠΈΠΊΠΈ Π΄Π»Ρ ΠΏΠΎΠ²Π΅ΡΡ Π½ΠΎΡΡΠ½ΠΎΠΉ ΡΡΡΠ°Π½ΠΎΠ²ΠΊΠΈ, ΠΊΠΎΡΠΎΡΡΠ΅ ΡΡΡΠ°Π½Π°Π²Π»ΠΈΠ²Π°ΡΡ ΡΠ²Π΅ΡΡ Ρ Π½Π° ΡΡΠ΅Π½Π΅, Π΄Π²Π΅ΡΠ½ΠΎΠΉ ΠΊΠΎΡΠΎΠ±ΠΊΠ΅ ΠΈΠ»ΠΈ ΠΏΠΎΠ»ΠΎΡΠ½Π΅ Π΄Π²Π΅ΡΠΈ, ΡΠΎΠ³Π»Π°ΡΠ½ΠΎ ΡΡ Π΅ΠΌΠ΅ Π΄ΠΎΠ²ΠΎΠ΄ΡΠΈΠΊΠ° Π΄Π²Π΅ΡΠΈ;
- Π΄Π»Ρ ΡΠΊΡΡΡΠΎΠΉ ΡΡΡΠ°Π½ΠΎΠ²ΠΊΠΈ, ΡΡΠΎ ΠΊΡΠ΅ΠΏΡΡΡΡ Π²Π½ΡΡΡΠΈ Π΄Π²Π΅ΡΠΈ; Π΄Π»Ρ Π½Π°ΠΏΠΎΠ»ΡΠ½ΠΎΠΉ ΡΡΡΠ°Π½ΠΎΠ²ΠΊΠ΅, ΠΊΠΎΠ³Π΄Π° Π΄ΠΎΠ²ΠΎΠ΄ΡΠΈΠΊ ΠΏΡΡΡΡΡ Π² ΠΏΠΎΠ».
ΠΡΠ»ΠΈ Π½Π°ΠΊΠ»Π°Π΄Π½ΠΎΠΉ Π΄ΠΎΠ²ΠΎΠ΄ΡΠΈΠΊ Π½Π΅ Π²ΠΏΠΈΡΡΠ²Π°Π΅ΡΡΡ Π² Π΄ΠΈΠ·Π°ΠΉΠ½ ΠΏΠΎΠΌΠ΅ΡΠ΅Π½ΠΈΡ, Π²ΡΠ΅Π³Π΄Π° ΠΌΠΎΠΆΠ½ΠΎ ΡΡΡΠ°Π½ΠΎΠ²ΠΈΡΡ Β«Π½Π΅Π²ΠΈΠ΄ΠΈΠΌΠΎΠ΅Β» ΡΡΡΡΠΎΠΉΡΡΠ²ΠΎ, ΠΊΠΎΡΠΎΡΠΎΠ΅ ΡΠΏΡΡΡΠ΅ΡΡΡ Π² ΡΠΊΠ°Π·Π°Π½Π½ΠΎΠΌ ΠΌΠ΅ΡΡΠ΅ ΠΈ Π±ΡΠ΄Π΅Ρ ΠΏΡΠ°ΠΊΡΠΈΡΠ΅ΡΠΊΠΈ Π½Π΅ Π·Π°ΠΌΠ΅ΡΠ½ΡΠΌ. ΠΠΎ ΠΈ Π΄Π»Ρ Π½Π°ΠΊΠ»Π°Π΄Π½ΡΡ ΠΌΠΎΠ΄Π΅Π»Π΅ΠΉ ΠΈΠΌΠ΅ΡΡΡΡ ΡΠ°Π·Π½ΡΠ΅ Π΄Π΅ΠΊΠΎΡΠΈΡΡΡΡΠΈΠ΅ ΠΏΠ°Π½Π΅Π»ΠΈ, ΠΈΠ»ΠΈ ΠΆΠ΅ ΠΈΡ ΠΌΠΎΠΆΠ½ΠΎ ΠΏΠΎΠΊΡΠ°ΡΠΈΡΡ Π² Π²ΡΠ±ΡΠ°Π½Π½ΡΠΉ ΡΠ²Π΅Ρ.
Π‘ΠΏΠΎΡΠΎΠ±Ρ ΡΡΡΠ°Π½ΠΎΠ²ΠΊΠΈ Π΄ΠΎΠ²ΠΎΠ΄ΡΠΈΠΊΠ° Π½Π° Π΄Π²Π΅ΡΡ
Π£ΡΡΠ°Π½ΠΎΠ²ΠΊΠ° Π΄ΠΎΠ²ΠΎΠ΄ΡΠΈΠΊΠ° Π½Π° Π΄Π²Π΅ΡΡ Π½Π΅ Π½ΡΠΆΠ΄Π°Π΅ΡΡΡ Π² ΠΏΡΠΎΠ²Π΅Π΄Π΅Π½ΠΈΠΈ ΡΠΏΠ΅ΡΠΈΠ°Π»ΡΠ½ΠΎΠΉ ΠΏΠΎΠ΄Π³ΠΎΡΠΎΠ²ΠΊΠΈ, ΠΏΠΎΡΠΎΠΌΡ Π²Ρ ΡΠΌΠΎΠΆΠ΅ΡΠ΅ Π±Π΅Π· ΠΏΡΠΎΠ±Π»Π΅ΠΌ ΡΠΏΡΠ°Π²ΠΈΡΡΡΡ Ρ ΡΡΠΎΠΉ Π·Π°Π΄Π°ΡΠ΅ΠΉ. ΠΠ°ΠΊ ΠΏΡΠ°Π²ΠΈΠ»ΠΎ, Π²ΡΠ΅ Π½Π΅ΠΎΠ±Ρ ΠΎΠ΄ΠΈΠΌΡΠ΅ Π΄Π΅ΡΠ°Π»ΠΈ ΠΈ ΠΈΠ½ΡΡΡΡΠΌΠ΅Π½ΡΡ Π²Ρ ΠΎΠ΄ΡΡ Π² ΠΊΠΎΠΌΠΏΠ»Π΅ΠΊΡ ΠΏΠΎΡΡΠ°Π²ΠΊΠΈ. Π‘ΡΡΠ΅ΡΡΠ²ΡΠ΅Ρ ΡΠ΅ΡΡΡΠ΅ ΡΠΏΠΎΡΠΎΠ±Π° ΠΌΠΎΠ½ΡΠ°ΠΆΠ° Π΄ΠΎΠ²ΠΎΠ΄ΡΠΈΠΊΠ°, ΡΠ°ΡΡΠΌΠΎΡΡΠΈΠΌ ΠΈΡ ΠΏΠΎΠ΄ΡΠΎΠ±Π½Π΅Π΅.
- Π‘Π°ΠΌΡΠΉ ΠΏΡΠΎΡΡΠΎΠΉ ΡΠΏΠΎΡΠΎΠ± ΡΡΡΠ°Π½ΠΎΠ²ΠΊΠΈ Π΄ΠΎΠ²ΠΎΠ΄ΡΠΈΠΊΠ° Π½Π° Π΄Π²Π΅ΡΡ ΠΎΠΏΠΈΡΡΠ²Π°Π΅ΡΡΡ ΠΊ ΠΈΠ½ΡΡΡΡΠΊΡΠΈΠΈ ΠΊ Π½Π΅ΠΌΡ. ΠΡΠΎ Π²ΡΠ³Π»ΡΠ΄ΠΈΡ ΠΏΡΠΈΠΌΠ΅ΡΠ½ΠΎ ΡΠ°ΠΊ: ΠΏΠ»Π΅ΡΠΎ ΡΡΡΠ°Π³Π° Π·Π°ΠΊΡΠ΅ΠΏΠ»ΡΡΡ Π½Π° ΠΊΠΎΡΠΏΡΡΠ΅ ΡΡΡΡΠΎΠΉΡΡΠ²Π°, Π΄Π°Π»ΡΡΠ΅ Ρ ΠΏΠΎΠΌΠΎΡΡΡ ΡΠ°Π±Π»ΠΎΠ½Π°, ΠΊΠΎΡΠΎΡΡΠΉ ΠΏΡΠΈΠ»Π°Π³Π°Π΅ΡΡΡ ΠΊ ΠΈΠ½ΡΡΡΡΠΊΡΠΈΠΈ, Π½Π°ΠΌΠ΅ΡΠ°ΡΡ ΠΌΠ΅ΡΡΠ° ΠΊΡΠ΅ΠΏΠ»Π΅Π½ΠΈΡ ΡΡΡΡΠΏΠΎΠ², Π·Π°ΡΠ΅ΠΌ Π²ΠΊΡΡΡΠΈΠ²Π°ΡΡΡΡ ΡΡΡΡΠΏΡ ΠΏΠΎ ΡΡΠΎΠΉ ΡΠ°Π·ΠΌΠ΅ΡΠΊΠ΅. ΠΠ»Π°Π²Π½ΠΎΠ΅, ΠΎ ΡΠ΅ΠΌ ΡΠ»Π΅Π΄ΡΠ΅Ρ ΠΏΠΎΠΌΠ½ΠΈΡΡ, ΡΡΠΎ ΠΏΠΎΠ½Π°Π΄ΠΎΠ±ΠΈΡΡΡ Π΅ΡΠ΅ ΠΈ ΡΠ΅Π³ΡΠ»ΠΈΡΠΎΠ²ΠΊΠ° Π΄ΠΎΠ²ΠΎΠ΄ΡΠΈΠΊΠ° Π΄Π²Π΅ΡΠΈ geze.
- ΠΡΠΎΡΠΎΠΉ ΠΌΠ΅ΡΠΎΠ΄ ΠΌΠΎΠ½ΡΠ°ΠΆΠ° Π΄Π²Π΅ΡΠ½ΠΎΠ³ΠΎ Π΄ΠΎΠ²ΠΎΠ΄ΡΠΈΠΊΠ° ΠΏΠΎΠ΄ΡΠ°Π·ΡΠΌΠ΅Π²Π°Π΅Ρ ΡΠ»Π΅Π΄ΡΡΡΠ΅Π΅. ΠΠ΅ΠΎΠ±Ρ ΠΎΠ΄ΠΈΠΌΠΎ ΠΏΡΠΈΠ»ΠΎΠΆΠΈΡΡ Π΄ΠΎΠ²ΠΎΠ΄ΡΠΈΠΊ ΠΊ Π΄Π²Π΅ΡΠΈ ΡΠ°ΠΊΠΈΠΌ ΠΎΠ±ΡΠ°Π·ΠΎΠΌ, ΡΡΠΎΠ±Ρ ΠΊ Π΄Π²Π΅ΡΠ½ΡΠΌ ΠΏΠ΅ΡΠ»ΡΠΌ Π±ΡΠ»ΠΈ ΠΎΠ±ΡΠ°ΡΠ΅Π½Ρ Π΅Π³ΠΎ ΡΠ΅Π³ΡΠ»ΠΈΡΠΎΠ²ΠΎΡΠ½ΡΠ΅ Π²ΠΈΠ½ΡΡ. ΠΠ°Π»Π΅Π΅ Π½Π΅ΠΎΠ±Ρ ΠΎΠ΄ΠΈΠΌΠΎ Π·Π°ΡΠΈΠΊΡΠΈΡΠΎΠ²Π°ΡΡ Π±Π°ΡΠΌΠ°ΠΊ ΡΡΡΡΠΎΠΉΡΡΠ²Π° ΡΡΡΡΠΏΠ°ΠΌΠΈ, ΡΡΠΎ ΠΏΡΠΈΠ»Π°Π³Π°ΡΡΡΡ Π² ΠΊΠΎΠΌΠΏΠ»Π΅ΠΊΡΠ΅ ΠΊ Π΄ΠΎΠ²ΠΎΠ΄ΡΠΈΠΊΡ. ΠΠΎΠΌΠ½ΠΈΡΠ΅, ΡΡΠΎ Β«ΠΏΡΠ΅Π΄ΠΏΠ»Π΅ΡΡΠ΅Β» ΡΡΡΠ°Π³Π° ΡΡΡΡΠΎΠΉΡΡΠ²Π° Π΄ΠΎΠ»ΠΆΠ½ΠΎ ΠΈΠΌΠ΅ΡΡ ΡΠ°ΠΊΡΡ Π΄Π»ΠΈΠ½Ρ, ΡΡΠΎΠ±Ρ ΠΎΡΠ½ΠΎΡΠΈΡΠ΅Π»ΡΠ½ΠΎ Π΄Π²Π΅ΡΠΈ ΠΏΠΎΠ»ΡΡΠ°Π»ΡΡ ΠΏΡΡΠΌΠΎΠΉ ΡΠ³ΠΎΠ». ΠΠ»Π΅ΡΠΎ ΠΊΡΠ΅ΠΏΡΡ ΠΊ Π±Π°ΡΠΌΠ°ΠΊΡ ΡΡΡΡΠΏΠ°ΠΌΠΈ, ΠΏΠΎΡΠ»Π΅ ΡΠ΅Π³ΠΎ ΠΎΠΏΡΡΡ ΠΏΡΠΈΠ΄Π΅ΡΡΡ Π·Π°Π΄ΡΠΌΠ°ΡΡΡΡ Π½Π°Π΄ ΡΠ΅ΠΌ, ΠΊΠ°ΠΊ ΠΎΡΡΠ΅Π³ΡΠ»ΠΈΡΠΎΠ²Π°ΡΡ Π΄ΠΎΠ²ΠΎΠ΄ΡΠΈΠΊ Π΄Π²Π΅ΡΠΈ.
- ΠΡΠ»ΠΈ ΡΠ»Π΅Π΄ΠΎΠ²Π°ΡΡ ΡΡΠ΅ΡΡΠ΅ΠΌΡ ΠΌΠ΅ΡΠΎΠ΄Ρ ΡΡΡΠ°Π½ΠΎΠ²ΠΊΠΈ Π΄Π²Π΅ΡΠ½ΠΎΠ³ΠΎ Π΄ΠΎΠ²ΠΎΠ΄ΡΠΈΠΊΠ° ΠΏΠ°ΡΠ°Π»Π»Π΅Π»ΡΠ½ΠΎΠ³ΠΎ ΡΡΡΠ°Π³Π°, ΡΠΎ Π½ΡΠΆΠ½ΠΎ ΡΡΡΠ°Π³ ΡΡΡΡΠΎΠΉΡΡΠ²Π° Π²ΡΡΠ°Π²ΠΈΡΡ ΠΏΠΎΠ΄ Π±ΡΡΡΠΎΠΊ Π΄Π²Π΅ΡΠΈ, Π° ΠΏΠΎΡΠΎΠΌ Π·Π° ΠΏΡΠ΅Π΄Π΅Π»Π°ΠΌΠΈ ΠΊΠΎΠΌΠ½Π°ΡΡ Π΅Π³ΠΎ ΡΠ»ΠΎΠΆΠΈΡΡ.
ΠΠΎΠ²ΠΎΠ΄ΡΠΈΠΊ Π² ΡΡΠΎΠΌ ΡΠ»ΡΡΠ°Π΅ ΠΊΡΠ΅ΠΏΠΈΡΡΡ ΠΏΡΠΈ ΠΏΠΎΠΌΠΎΡΠΈ ΠΊΡΠΎΠ½ΡΡΠ΅ΠΉΠ½Π°, ΠΊΠΎΡΠΎΡΡΠΉ ΡΠ°ΠΊΠΆΠ΅ ΠΈΠ΄Π΅Ρ Π² ΠΊΠΎΠΌΠΏΠ»Π΅ΠΊΡΠ΅ ΠΏΠΎΡΡΠ°Π²ΠΊΠΈ. Π£ΡΡΠ°Π½Π°Π²Π»ΠΈΠ²Π°Ρ Π΄ΠΎΠ²ΠΎΠ΄ΡΠΈΠΊ, ΡΠ»Π΅Π΄ΠΈΡΠ΅, ΡΡΠΎΠ±Ρ ΡΠ΅Π³ΡΠ»ΠΈΡΠΎΠ²ΠΎΡΠ½ΡΠ΅ Π²ΠΈΠ½ΡΡ Π²ΡΠ°ΡΠ°Π»ΠΈΡΡ ΠΎΡ ΠΏΠ΅ΡΠ΅Π»Ρ Π² ΠΏΡΠΎΡΠΈΠ²ΠΎΠΏΠΎΠ»ΠΎΠΆΠ½ΡΡ ΡΡΠΎΡΠΎΠ½Ρ. ΠΠ°ΠΆΠ½ΠΎ Π½ΠΈΡΠ΅Π³ΠΎ Π½Π΅ Π½Π°ΠΏΡΡΠ°ΡΡ Π² ΠΏΡΠΎΡΠ΅ΡΡΠ΅ ΠΌΠΎΠ½ΡΠ°ΠΆΠ°, ΠΈΠ½Π°ΡΠ΅ Π½Π΅ΠΏΡΠ°Π²ΠΈΠ»ΡΠ½Π°Ρ ΡΡΡΠ°Π½ΠΎΠ²ΠΊΠ° ΠΏΡΠΈΠ²Π΅Π΄Π΅Ρ ΠΊ ΡΠΎΠΌΡ, ΡΡΠΎ Π½Π΅ ΠΏΠΎΠ»ΡΡΠΈΡΡΡΡ ΠΏΡΠΎΠ²Π΅ΡΡΠΈ ΠΎΠΏΡΠΈΠΌΠ°Π»ΡΠ½ΡΡ ΡΠ΅Π³ΡΠ»ΠΈΡΠΎΠ²ΠΊΡ Π΄ΠΎΠ²ΠΎΠ΄ΡΠΈΠΊΠ° Π΄Π²Π΅ΡΠΈ. - Π‘ΡΡΠ΅ΡΡΠ²ΡΡΡ Π΄ΠΎΠ²ΠΎΠ΄ΡΠΈΠΊΠΈ, ΠΊΠΎΡΠΎΡΡΠ΅ ΠΈΡΠΏΠΎΠ»ΡΠ·ΡΡΡ ΡΠ΅Π³ΡΠ»ΠΈΡΡΠ΅ΠΌΡΡ ΠΏΡΡΠΆΠΈΠ½Ρ. Π£ΡΡΠ°Π½Π°Π²Π»ΠΈΠ²Π°ΡΡ ΡΠ°ΠΊΠΈΠ΅ ΡΡΡΡΠΎΠΉΡΡΠ²Π° ΠΏΡΠΎΡΠ΅ Π²ΡΠ΅Π³ΠΎ: Π½Π΅ΠΎΠ±Ρ ΠΎΠ΄ΠΈΠΌΠΎ Π·Π°ΠΌΠ΅Π½ΠΈΡΡ Π΄ΠΎΠ²ΠΎΠ΄ΡΠΈΠΊΠΎΠΌ ΡΡΠ΅ΡΠΆΠ΅Π½Ρ ΠΏΠ΅ΡΠ»ΠΈ β ΠΈ Π³ΠΎΡΠΎΠ²ΠΎ. ΠΠ»Π°Π²Π½ΠΎΠ΅, ΡΡΠΎΠ±Ρ ΠΈΠ·Π΄Π΅Π»ΠΈΠ΅ ΡΠΎΠΎΡΠ²Π΅ΡΡΡΠ²ΠΎΠ²Π°Π»ΠΎ ΡΠΎΡΠ½ΠΎ Π²Π΅ΡΡ Π΄Π²Π΅ΡΠΈ. ΠΡΠ»ΠΈ Π΄Π²Π΅ΡΠ½ΠΎΠ΅ ΠΏΠΎΠ»ΠΎΡΠ½ΠΎ ΡΠ»ΠΈΡΠΊΠΎΠΌ ΡΡΠΆΠ΅Π»ΠΎΠ΅, ΠΈ Π²Ρ Π½Π΅ ΡΠΌΠΎΠ³Π»ΠΈ ΠΎΡΡΡΠΊΠ°ΡΡ Π² ΠΏΡΠΎΠ΄Π°ΠΆΠ΅ ΠΏΠΎΠ΄Ρ ΠΎΠ΄ΡΡΠΈΠΉ Π΄ΠΎΠ²ΠΎΠ΄ΡΠΈΠΊ, Π½ΡΠΆΠ½ΠΎ ΡΡΡΠ°Π½ΠΎΠ²ΠΈΡΡ Π½Π΅ ΠΎΠ΄ΠΈΠ½, Π° Π½Π΅ΡΠΊΠΎΠ»ΡΠΊΠΎ Π΄ΠΎΠ²ΠΎΠ΄ΡΠΈΠΊΠΎΠ².
Π Π΅ΠΌΠΎΠ½Ρ Π΄ΠΎΠ²ΠΎΠ΄ΡΠΈΠΊΠ° Π΄Π²Π΅ΡΠΈ ΡΠ²ΠΎΠΈΠΌΠΈ ΡΡΠΊΠ°ΠΌΠΈ
ΠΡΠ°Π²ΠΈΠ»ΡΠ½Π°Ρ ΡΠΊΡΠΏΠ»ΡΠ°ΡΠ°ΡΠΈΡ Π΄ΠΎΠ²ΠΎΠ΄ΡΠΈΠΊΠ° β Π·Π°Π»ΠΎΠ³ Π΅Π³ΠΎ Π΄ΠΎΠ±ΡΠΎΡΠΎΠ²Π΅ΡΡΠ½ΠΎΠΉ ΠΈ Π΄Π»ΠΈΡΠ΅Π»ΡΠ½ΠΎΠΉ ΡΠ°Π±ΠΎΡΡ, Π½Π΅ ΡΡΠ΅Π±ΡΡΡΠ΅ΠΉ ΡΠ΅ΠΌΠΎΠ½ΡΠ°. Π§ΡΠΎΠ±Ρ Π΄Π²Π΅ΡΠ½ΠΎΠΉ Π΄ΠΎΠ²ΠΎΠ΄ΡΠΈΠΊ ΡΠ°Π±ΠΎΡΠ°Π» Π΄ΠΎΠ»Π³ΠΎ, Π½Π΅Π»ΡΠ·Ρ ΡΡΠ½ΡΡΡ ΠΈΠ»ΠΈ ΠΏΡΠΈΠ΄Π΅ΡΠΆΠΈΠ²Π°ΡΡ Π΄Π²Π΅ΡΡ, ΡΠ΅ΠΌ ΡΠ°ΠΌΡΠΌ ΠΏΠΎΠΌΠΎΠ³Π°Ρ Π΅ΠΉ Π±ΡΡΡΡΠ΅Π΅ ΠΈΠ»ΠΈ ΠΌΠ΅Π΄Π»Π΅Π½Π½Π΅Π΅ Π·Π°ΠΊΡΡΠ²Π°ΡΡΡΡ. ΠΠ΅ ΡΠ΅ΠΊΠΎΠΌΠ΅Π½Π΄ΡΠ΅ΡΡΡ ΡΠΈΠΊΡΠΈΡΠΎΠ²Π°ΡΡ Π΄Π²Π΅ΡΠΊΡ, ΠΏΠΎΠ΄ΠΊΠ»Π°Π΄ΡΠ²Π°Ρ ΠΏΠΎΠ΄ Π½Π΅Ρ ΡΠ°Π·Π»ΠΈΡΠ½ΡΠ΅ ΠΏΡΠ΅Π΄ΠΌΠ΅ΡΡ, ΠΊΠΎΡΠΎΡΡΠ΅ ΠΌΠ΅ΡΠ°ΡΡ Π΅ΠΉ Π·Π°ΠΊΡΡΡΡΡΡ, Π° ΡΠ°ΠΊΠΆΠ΅ ΠΊΠ°ΡΠ°ΡΡΡΡ ΠΈ ΠΏΠΎΠ²ΠΈΡΠ°ΡΡ ΠΈΠ»ΠΈ Π½Π° Π΄Π²Π΅ΡΠΈ (ΡΡΠΎ ΠΊΠ°ΡΠ°Π΅ΡΡΡ Π΄Π΅ΡΠ΅ΠΉ).
Π§ΡΠΎΠ±Ρ ΠΏΡΠΎΠ²Π΅ΡΡΠΈ ΡΠ΅ΠΌΠΎΠ½Ρ Π΄ΠΎΠ²ΠΎΠ΄ΡΠΈΠΊΠ° Π΄Π²Π΅ΡΠΈ, Π½ΡΠΆΠ½ΠΎ ΠΈΠΌΠ΅ΡΡ ΠΏΠΎΠ΄ ΡΡΠΊΠΎΠΉ Π²Π΅ΡΡ Π½Π΅ΠΎΠ±Ρ ΠΎΠ΄ΠΈΠΌΠΎΠΉ ΠΈΠ½ΡΡΡΡΠΌΠ΅Π½Ρ (ΡΠ΅ΡΡΠΈΠ³ΡΠ°Π½Π½ΡΠ΅ ΠΈ Π³Π°Π΅ΡΠ½ΡΠ΅ ΠΊΠ»ΡΡΠΈ, ΠΏΠ»ΠΎΡΠΊΠΎΠ³ΡΠ±ΡΡ ΠΈ Π½Π°Π±ΠΎΡ ΠΎΡΠ²ΡΡΡΠΎΠΊ). ΠΠ΅ΡΠ΅Π΄ ΡΠ΅ΠΌ, ΠΊΠ°ΠΊ ΠΏΡΠΈΡΡΡΠΏΠΈΡΡ ΠΊ ΡΠ΅ΠΌΠΎΠ½ΡΡ ΡΡΡΡΠΎΠΉΡΡΠ²Π°, ΡΠ»Π΅Π΄ΡΠ΅Ρ ΠΏΡΠΎΠΈΠ·Π²Π΅ΡΡΠΈ Π²Π½Π΅ΡΠ½ΠΈΠΉ ΠΎΡΠΌΠΎΡΡ Π΄Π²Π΅ΡΠΈ, ΡΠ°ΠΊ ΠΊΠ°ΠΊ Π΅Ρ ΠΏΠ΅ΡΠ΅ΠΊΠΎΡΡ ΠΈΠ»ΠΈ ΠΏΠΎΠ²ΡΠ΅ΠΆΠ΄Π΅Π½ΠΈΡ Π±ΡΠ΄ΡΡ ΠΌΠ΅ΡΠ°ΡΡ Π½ΠΎΡΠΌΠ°Π»ΡΠ½ΠΎΠΉ ΡΠ°Π±ΠΎΡΠ΅ Π΄ΠΎΠ²ΠΎΠ΄ΡΠΈΠΊΠ°.
Π‘Π΅ΡΡΠ΅Π·Π½ΡΠ΅ ΠΏΠΎΠ²ΡΠ΅ΠΆΠ΄Π΅Π½ΠΈΡ Π΄ΠΎΠ²ΠΎΠ΄ΡΠΈΠΊΠ°, ΠΊ ΡΠΎΠΆΠ°Π»Π΅Π½ΠΈΡ, Π½Π΅Π²ΠΎΠ·ΠΌΠΎΠΆΠ½ΠΎ ΡΡΡΡΠ°Π½ΠΈΡΡ, ΡΠ°ΠΊ ΠΊΠ°ΠΊ Π³Π΅ΡΠΌΠ΅ΡΠΈΡΠ½ΠΎΡΡΡ ΠΊΠΎΠ½ΡΡΡΡΠΊΡΠΈΠΈ ΠΏΠΎΠ΄ΡΠ°Π·ΡΠΌΠ΅Π²Π°Π΅Ρ, ΡΡΠΎ Π΅Ρ Π½Π΅Π»ΡΠ·Ρ ΡΠ°Π·Π±ΠΈΡΠ°ΡΡ Π½Π° ΠΎΡΠ΄Π΅Π»ΡΠ½ΡΠ΅ Π΄Π΅ΡΠ°Π»ΠΈ ΠΈ ΡΠΎΠ±ΠΈΡΠ°ΡΡ Π²ΠΏΠΎΡΠ»Π΅Π΄ΡΡΠ²ΠΈΠΈ Π² ΡΠΎΠΎΡΠ²Π΅ΡΡΡΠ²ΠΈΠΈ Ρ ΡΠ΅Ρ Π½ΠΎΠ»ΠΎΠ³ΠΈΠ΅ΠΉ. Π’Π΅ΠΌ Π½Π΅ ΠΌΠ΅Π½Π΅Π΅, Π² Π½Π΅ΠΊΠΎΡΠΎΡΡΡ ΡΠΈΡΡΠ°ΡΠΈΡΡ Π΄ΠΎΠΏΡΡΠΊΠ°Π΅ΡΡΡ Π²ΠΎΠ·ΠΌΠΎΠΆΠ½ΠΎΡΡΡ ΡΠ΅ΠΌΠΎΠ½ΡΠ° Π΄ΠΎΠ²ΠΎΠ΄ΡΠΈΠΊΠ° ΠΈ Π½Π°Π»Π°Π΄ΠΊΠΈ Π΅Π³ΠΎ ΡΠ°Π±ΠΎΡΡ ΡΠ°ΠΌΠΎΡΡΠΎΡΡΠ΅Π»ΡΠ½ΠΎ. ΠΠ°Π²Π°ΠΉΡΠ΅ ΡΠ°ΡΡΠΌΠΎΡΡΠΈΠΌ, ΠΊΠ°ΠΊ ΠΎΡΡΠ΅ΠΌΠΎΠ½ΡΠΈΡΠΎΠ²Π°ΡΡ Π΄ΠΎΠ²ΠΎΠ΄ΡΠΈΠΊ Π΄Π²Π΅ΡΠΈ:
- ΠΡΡΠ΅ΠΊΠ°Π½ΠΈΠ΅ ΠΌΠ°ΡΠ»ΡΠ½ΠΎΠ³ΠΎ ΡΠΎΡΡΠ°Π²Π°. ΠΠ΅Π·Π°Π²ΠΈΡΠΈΠΌΠΎ ΠΎΡ ΡΠΎΠ³ΠΎ, ΡΡΠΎ Π³ΠΈΠ΄ΡΠ°Π²Π»ΠΈΡΠ΅ΡΠΊΠ°Ρ ΠΏΡΡΠΆΠΈΠ½Π°, ΠΊΠΎΡΠΎΡΠ°Ρ ΠΏΠ΅ΡΠ΅Π΄Π°Π΅Ρ ΡΠ³Π΅Π½Π΅ΡΠΈΡΠΎΠ²Π°Π½Π½ΠΎΠ΅ Π½Π°ΠΏΡΡΠΆΠ΅Π½ΠΈΠ΅ ΡΡΡΠ°Π³Π°ΠΌ, Π½Π°Ρ
ΠΎΠ΄ΠΈΡΡΡ Π² ΡΠ΅Π»ΡΠ½ΠΎΠΉ Π³Π΅ΡΠΌΠ΅ΡΠΈΡΠ½ΠΎΠΉ ΠΊΠΎΡΠΎΠ±ΠΊΠ΅, Π·Π°ΠΏΠΎΠ»Π½Π΅Π½Π½ΠΎΠΉ ΡΠ°Π±ΠΎΡΠ΅ΠΉ ΠΆΠΈΠ΄ΠΊΠΎΡΡΡΡ, Π΅Π΅ ΠΏΡΠΎΡΠ΅ΡΠΊΠΈ Π²ΡΠ΅-ΡΠ°ΠΊΠΈ ΠΏΡΠΎΠΈΡΡ
ΠΎΠ΄ΡΡ, ΡΠ°ΡΠ΅ Π²ΡΠ΅Π³ΠΎ Π·ΠΈΠΌΠΎΠΉ.
ΠΡΠ»ΠΈ ΠΏΠΎΡΠ²ΠΈΠ»Π°ΡΡ ΡΠ΅ΡΡ, ΡΠΎ ΡΡΠΎ Π³ΠΎΠ²ΠΎΡΠΈΡ ΠΎ ΡΠ°Π·Π³Π΅ΡΠΌΠ΅ΡΠΈΠ·Π°ΡΠΈΠΈ ΠΊΠΎΡΠΏΡΡΠ° ΠΈ ΠΏΠΎΡΠ²Π»Π΅Π½ΠΈΠΈ ΠΏΠΎΠ²ΡΠ΅ΠΆΠ΄Π΅Π½ΠΈΠΉ, ΠΈΠ· ΠΊΠΎΡΠΎΡΡΡ
ΠΈ Π²ΡΡΠ΅ΠΊΠ°Π΅Ρ Π½Π°ΡΡΠΆΡ ΠΌΠ°ΡΠ»ΠΎ. Π ΡΠ΅Π·ΡΠ»ΡΡΠ°ΡΠ΅ ΡΡΠΎΠ³ΠΎ ΠΌΠ΅Ρ
Π°Π½ΠΈΠ·ΠΌ ΠΏΠ΅ΡΠ΅ΡΡΠ°Π΅Ρ ΠΏΠ»Π°Π²Π½ΠΎ Π΄ΠΎΠ²ΠΎΠ΄ΠΈΡΡ Π΄Π²Π΅ΡΡ, Π³ΡΠΎΠΌΠΊΠΎ Ρ
Π»ΠΎΠΏΠ°Π΅Ρ ΠΈ ΠΏΡΠ΅Π²ΡΠ°ΡΠ°Π΅ΡΡΡ Π² ΠΎΠ±ΡΠΊΠ½ΠΎΠ²Π΅Π½Π½ΡΡ ΠΏΡΡΠΆΠΈΠ½Ρ. ΠΡΠ»ΠΈ Π²Ρ ΡΠΌΠΎΠ³Π»ΠΈ ΡΠ²ΠΎΠ΅Π²ΡΠ΅ΠΌΠ΅Π½Π½ΠΎ ΠΎΡΡΡΠΊΠ°ΡΡ ΠΏΠΎΠ²ΡΠ΅ΠΆΠ΄Π΅Π½Π½ΡΠ΅ ΡΡΠ°ΡΡΠΊΠΈ, Π½ΡΠΆΠ½ΠΎ ΠΈΡ
Π·Π°Π³Π΅ΡΠΌΠ΅ΡΠΈΠ·ΠΈΡΠΎΠ²Π°ΡΡ, ΡΡΠΎ ΡΠΏΠΎΡΠΎΠ±ΡΡΠ²ΡΠ΅Ρ ΠΏΡΠΎΠ΄Π»Π΅Π½ΠΈΡ ΡΠ»ΡΠΆΠ΅Π±Π½ΠΎΠ³ΠΎ ΡΡΠΎΠΊΠ° Π°ΠΏΠΏΠ°ΡΠ°ΡΠ°. ΠΠ΄Π½Π°ΠΊΠΎ Π΅ΡΠ»ΠΈ ΠΏΠΎΠ²ΡΠ΅ΠΆΠ΄Π΅Π½Π½ΠΎΠ΅ ΠΌΠ΅ΡΡΠΎ ΡΠ»ΠΈΡΠΊΠΎΠΌ Π²Π΅Π»ΠΈΠΊΠΎ, ΡΠΎ Π½Π΅ ΠΏΠΎΠ»ΡΡΠΈΡΡΡ Π²ΡΠΏΠΎΠ»Π½ΠΈΡΡ ΡΠ΅ΠΌΠΎΠ½Ρ Π΄ΠΎΠ²ΠΎΠ΄ΡΠΈΠΊΠ° Π΄Π²Π΅ΡΠΈ ΡΠ²ΠΎΠΈΠΌΠΈ ΡΡΠΊΠ°ΠΌΠΈ ΠΈ ΠΏΡΠΈΠ΄Π΅ΡΡΡ ΠΏΠΎΠΊΡΠΏΠ°ΡΡ Π½ΠΎΠ²ΡΠΉ Π΄ΠΎΠ²ΠΎΠ΄ΡΠΈΠΊ. - ΠΠΎΠ»ΠΎΠΌΠΊΠ° ΡΡΡΠ°ΠΆΠ½ΠΎΠ³ΠΎ ΡΠ·Π»Π°. ΠΠ°ΠΈΠ±ΠΎΠ»Π΅Π΅ ΡΠ°ΡΡΠΎΠΉ ΡΠ²Π»ΡΠ΅ΡΡΡ Π½Π°ΡΡΡΠ΅Π½ΠΈΠ΅ ΡΠ΅Π»ΠΎΡΡΠ½ΠΎΡΡΠΈ ΡΡΠ°Π½Π³. ΠΠ΄Π½Π°ΠΊΠΎ ΡΡΠ° ΡΠ°ΡΡΡ ΠΌΠ΅Ρ Π°Π½ΠΈΠ·ΠΌΠ° Π²ΡΠ΅Π³Π΄Π° Π²ΠΈΠ΄Π½Π°, ΠΏΠΎΡΡΠΎΠΌΡ Π΅Ρ ΡΠΎΡΡΠΎΡΠ½ΠΈΠ΅ ΠΌΠΎΠΆΠ½ΠΎ ΠΎΡΠ΅Π½ΠΈΡΡ Π²ΠΈΠ·ΡΠ°Π»ΡΠ½ΠΎ. ΠΠΎΠ»ΡΡΠΈΠ΅ ΡΠΈΠ»ΠΎΠ²ΡΠ΅ Π²ΠΎΠ·Π΄Π΅ΠΉΡΡΠ²ΠΈΡ ΠΌΠΎΠ³ΡΡ Π΅Ρ Π²ΡΠ²Π΅ΡΡΠΈ ΠΈΠ· ΡΡΡΠΎΡ, ΡΡΠ°Π² ΠΏΡΠΈΡΠΈΠ½ΠΎΠΉ ΠΈΠ·Π»ΠΎΠΌΠΎΠ², ΠΈΠ·Π³ΠΈΠ±ΠΎΠ², ΠΈΡΠΊΡΠΈΠ²Π»Π΅Π½ΠΈΠΉ ΠΈΠ»ΠΈ ΠΏΠΎΠ²ΡΠ΅ΠΆΠ΄Π΅Π½ΠΈΠΉ ΠΊΡΠ΅ΠΏΠ»Π΅Π½ΠΈΠΉ. ΠΠ΅ ΠΎΡΠ΅Π½Ρ ΡΠ΅ΡΡΠ΅Π·Π½ΡΠ΅ ΠΈΠ·ΡΡΠ½Ρ ΡΡΠ°Π½Π³ΠΈ Π²Ρ ΡΠΌΠΎΠΆΠ΅ΡΠ΅ ΠΈΡΠΏΡΠ°Π²ΠΈΡΡ ΠΏΡΠΈ ΠΏΠΎΠΌΠΎΡΠΈ ΠΎΠ±ΡΠΊΠ½ΠΎΠ²Π΅Π½Π½ΠΎΠΉ ΡΠ²Π°ΡΠΊΠΈ. ΠΡΠ»ΠΈ ΠΏΡΠΎΠΈΠ·ΠΎΡΠ»Π° ΠΏΠΎΠ»ΠΎΠΌΠΊΠ° ΠΊΡΠ΅ΠΏΠ΅ΠΆΠ½ΠΎΠ³ΠΎ ΡΠΎΠ΅Π΄ΠΈΠ½Π΅Π½ΠΈΡ, ΡΠΎ Π²ΠΎΠ·ΠΌΠΎΠΆΠ½ΠΎ ΠΏΡΠΎΠ²Π΅ΡΡΠΈ ΡΠ΅ΠΌΠΎΠ½Ρ, ΠΊΡΠΏΠΈΠ² Π½ΠΎΠ²ΡΠ΅ ΠΎΡΠΈΠ³ΠΈΠ½Π°Π»ΡΠ½ΡΠ΅ Π΄Π΅ΡΠ°Π»ΠΈ, ΠΊΠΎΡΠΎΡΡΠ΅ ΠΏΠΎΠ΄Ρ ΠΎΠ΄ΡΡ ΠΏΠΎ ΡΠ°Π·ΠΌΠ΅ΡΡ, ΡΠΏΠΎΡΠΎΠ±Ρ ΠΊΡΠ΅ΠΏΠ΅ΠΆΠ° ΠΈ ΡΠΎΡΠΌΠ΅ ΠΏΠΎΡΠ°Π΄ΠΎΡΠ½ΠΎΠΉ ΡΠ°ΡΡΠΈ.
Π Π΅Π³ΡΠ»ΠΈΡΠΎΠ²ΠΊΠ° Π΄Π²Π΅ΡΠ½ΠΎΠ³ΠΎ Π΄ΠΎΠ²ΠΎΠ΄ΡΠΈΠΊΠ° ΡΠ²ΠΎΠΈΠΌΠΈ ΡΡΠΊΠ°ΠΌΠΈ
ΠΠ½Π°ΡΠΈΡΠ΅Π»ΡΠ½ΡΠ΅ Π½Π°Π³ΡΡΠ·ΠΊΠΈ ΠΏΡΠΈ ΠΈΠ½ΡΠ΅Π½ΡΠΈΠ²Π½ΠΎΠΉ ΡΠΊΡΠΏΠ»ΡΠ°ΡΠ°ΡΠΈΠΈ Π΄Π²Π΅ΡΠ½ΠΎΠ³ΠΎ Π΄ΠΎΠ²ΠΎΠ΄ΡΠΈΠΊΠ° Π½Π΅ΡΠ΅Π΄ΠΊΠΎ ΠΏΡΠΎΠ²ΠΎΡΠΈΡΡΠ΅Ρ ΡΠ°Π·Π»Π°Π΄ΠΊΡ Π²ΡΠ΅ΠΉ ΡΠΈΡΡΠ΅ΠΌΡ. ΠΠΎΡΡΠΎΠΌΡ Π·Π° Π½Π΅ΠΉ ΡΠ΅ΠΊΠΎΠΌΠ΅Π½Π΄ΡΠ΅ΡΡΡ Π²Π½ΠΈΠΌΠ°ΡΠ΅Π»ΡΠ½ΠΎ ΡΠ»Π΅Π΄ΠΈΡΡ ΠΈ ΠΎΠ±ΡΠ»ΡΠΆΠΈΠ²Π°ΡΡ Π΅Ρ Π½Π΅ΡΠΊΠΎΠ»ΡΠΊΠΎ ΡΠ°Π· Π² Π³ΠΎΠ΄, ΠΎΡΠΎΠ±Π΅Π½Π½ΠΎ ΠΏΡΠΈ ΡΠΌΠ΅Π½Π΅ ΠΏΠΎΠ³ΠΎΠ΄Ρ. ΠΠΎ Π΅ΡΠ»ΠΈ ΡΠΈΡΡΠ΅ΠΌΠ° Π²ΡΠ΅-ΡΠ°ΠΊΠΈ Π½Π°ΡΠ°Π»Π° ΡΠ°Π±ΠΎΡΠ°ΡΡ ΡΠΎ ΡΠ±ΠΎΡΠΌΠΈ, ΡΠΎ Π²Π°ΠΌ ΡΡΠΎΠΈΡ ΡΠ·Π½Π°ΡΡ, ΠΊΠ°ΠΊ ΡΠ΅Π³ΡΠ»ΠΈΡΡΠ΅ΡΡΡ Π΄ΠΎΠ²ΠΎΠ΄ΡΠΈΠΊ Π΄Π²Π΅ΡΠΈ.
ΠΡΠΎΡΠ΅Π΄ΡΡΠ° ΡΠ΅Π³ΡΠ»ΠΈΡΠΎΠ²ΠΊΠΈ Π΄ΠΎΠ²ΠΎΠ΄ΡΠΈΠΊΠ° Π²ΠΊΠ»ΡΡΠ°Π΅Ρ Π² ΡΠ΅Π±Ρ Π½Π΅ΡΠΊΠΎΠ»ΡΠΊΠΎ ΠΌΠΎΠΌΠ΅Π½ΡΠΎΠ², Π³Π»Π°Π²Π½ΡΠΉ ΠΈΠ· ΠΊΠΎΡΠΎΡΡΡ — ΠΈΠ·ΠΌΠ΅Π½Π΅Π½ΠΈΠ΅ ΡΠΊΠΎΡΠΎΡΡΠΈ Π΄Π²ΠΈΠΆΠ΅Π½ΠΈΡ. Π ΡΠ»ΡΡΠ°Π΅ ΡΠ»ΠΈΡΠΊΠΎΠΌ ΠΌΠ΅Π΄Π»Π΅Π½Π½ΠΎΠ³ΠΎ ΠΎΡΠΊΡΡΠ²Π°Π½ΠΈΡ Π΄Π²Π΅ΡΠ½ΠΎΠ³ΠΎ ΠΏΠΎΠ»ΠΎΡΠ½Π° Π½ΡΠΆΠ½ΠΎ ΠΏΡΠΎΠ²Π΅ΡΡΠΈ ΡΠ΅Π³ΡΠ»ΠΈΡΠΎΠ²ΠΊΡ ΡΡΠΎΠ²Π½Ρ ΡΠΆΠ°ΡΠΈΡ ΠΏΡΡΠΆΠΈΠ½Ρ Ρ ΠΏΠΎΠΌΠΎΡΡΡ ΡΠΎΠΎΡΠ²Π΅ΡΡΡΠ²Π΅Π½Π½ΠΎΠΉ ΡΠΈΠΊΡΠΈΡΡΡΡΠ΅ΠΉ Π³Π°ΠΉΠΊΠΈ. Π‘ΠΊΠΎΡΠΎΡΡΡ Ρ ΠΎΠ΄Π° Π΄Π²Π΅ΡΡΡ ΡΡΡΠ°Π½Π°Π²Π»ΠΈΠ²Π°Π΅ΡΡΡ ΠΏΠΎΡΡΠ΅Π΄ΡΡΠ²ΠΎΠΌ Π²ΡΠ°ΡΠ΅Π½ΠΈΡ ΠΏΠ΅ΡΠ²ΠΎΠ³ΠΎ ΠΊΠ»Π°ΠΏΠ°Π½Π° (ΠΏΡΠΎΡΠΈΠ² ΠΈ ΠΏΠΎ Ρ ΠΎΠ΄Ρ ΡΠ°ΡΠΎΠ²ΠΎΠΉ ΡΡΡΠ΅Π»ΠΊΠΈ).
ΠΡ ΠΌΠΎΠΆΠ΅ΡΠ΅ ΠΊΡΡΡΠΈΡΡ ΠΏΠ΅ΡΠ²ΡΠΉ ΠΊΠ»Π°ΠΏΠ°Π½ Π½Π΅ Π±ΠΎΠ»Π΅Π΅ ΡΠ΅ΠΌ Π½Π° 2 ΠΎΠ±ΠΎΡΠΎΡΠ°, ΡΡΠΎ ΠΎΠ³ΠΎΠ²Π°ΡΠΈΠ²Π°Π΅ΡΡΡ ΠΏΡΠΎΠΈΠ·Π²ΠΎΠ΄ΠΈΡΠ΅Π»ΡΠΌΠΈ Π΄Π²Π΅ΡΠ½ΡΡ
Π΄ΠΎΠ²ΠΎΠ΄ΡΠΈΠΊΠΎΠ².
ΠΡΠΎΡΠΎΠΉ ΠΊΠ»Π°ΠΏΠ°Π½ ΠΎΡΠ²Π΅ΡΠ°Π΅Ρ Π·Π° Π΄ΠΎΡ
Π»ΠΎΠΏ — ΠΏΡΠΎΠΌΠ΅ΠΆΡΡΠΎΠΊ, ΠΊΠΎΠ³Π΄Π° Π΄Π²Π΅ΡΠΊΠ° Π½Π°Ρ
ΠΎΠ΄ΠΈΡΡΡ Π² ΡΠΎΡΡΠΎΡΠ½ΠΈΠΈ 10 β 15 Π³ΡΠ°Π΄ΡΡΠΎΠ² Π΄ΠΎ ΠΌΠΎΠΌΠ΅Π½ΡΠ° ΠΏΠΎΠ»Π½ΠΎΠ³ΠΎ Π·Π°ΠΊΡΡΡΠΈΡ. ΠΠΎΠ»Π΅Π΅ Π΄ΠΎΡΠΎΠ³ΠΈΠ΅ ΠΌΠΎΠ΄Π΅Π»ΠΈ ΠΈΠΌΠ΅ΡΡ Π² ΡΠ²ΠΎΠ΅ΠΉ ΠΊΠΎΠ½ΡΡΡΡΠΊΡΠΈΠΈ Π΅ΡΠ΅ ΠΈ ΡΡΠ΅ΡΠΈΠΉ ΠΊΠ»Π°ΠΏΠ°Π½, ΡΡΠΎ Π½Π΅ΠΎΠ±Ρ
ΠΎΠ΄ΠΈΠΌ Π΄Π»Ρ ΡΠ΅Π³ΡΠ»ΠΈΡΠΎΠ²ΠΊΠΈ ΡΠΊΠΎΡΠΎΡΡΠΈ Π·Π°ΠΊΡΡΡΠΈΡ Π΄Π²Π΅ΡΠΈ ΠΏΠΎΠ΄ ΡΠ³Π»ΠΎΠΌ 80-90 Π³ΡΠ°Π΄ΡΡΠΎΠ².
ΠΡΠ»ΠΈ Π² ΠΊΠΎΡΠΏΡΡΠ΅ Π΄ΠΎΠ²ΠΎΠ΄ΡΠΈΠΊΠ° ΠΈΡΠΏΠΎΠ»ΡΠ·ΡΠ΅ΡΡΡ ΡΠΏΠ΅ΡΠΈΠ°Π»ΠΈΠ·ΠΈΡΠΎΠ²Π°Π½Π½ΠΎΠ΅ ΠΌΠ°ΡΠ»ΠΎ, ΡΠΎ Π²Ρ ΠΌΠΎΠΆΠ΅ΡΠ΅ Ρ Π½Π°ΡΡΡΠΏΠ»Π΅Π½ΠΈΠ΅ΠΌ Π·ΠΈΠΌΡ Π·Π°ΠΌΠ΅ΡΠΈΡΡ, ΡΡΠΎ ΡΠΊΠΎΡΠΎΡΡΡ Π΄ΠΎΠ²ΠΎΠ΄ΡΠΈΠΊΠ° ΠΏΠ°Π΄Π°Π΅Ρ Π² Ρ ΠΎΠ»ΠΎΠ΄Π½ΡΡ ΠΏΠΎΡΡ, Π° Π»Π΅ΡΠΎΠΌ ΠΌΠ΅Ρ Π°Π½ΠΈΠ·ΠΌ Π½Π°ΠΎΠ±ΠΎΡΠΎΡ ΡΡΠΊΠΎΡΡΠ΅ΡΡΡ. ΠΠ±ΡΡΡΠ½ΡΠ΅ΡΡΡ ΡΡΠΎ ΡΠ΅ΠΌ, ΡΡΠΎ Π²ΡΠ·ΠΊΠΎΡΡΡ ΠΆΠΈΠ΄ΠΊΠΎΡΡΠΈ Π·Π°Π²ΠΈΡΠΈΡ ΠΎΡ ΡΠ΅ΠΌΠΏΠ΅ΡΠ°ΡΡΡΡ. ΠΠΎΡΡΠΎΠΌΡ Ρ Π½Π°ΡΡΡΠΏΠ»Π΅Π½ΠΈΠ΅ΠΌ Π·ΠΈΠΌΠ½ΠΈΡ Ρ ΠΎΠ»ΠΎΠ΄ΠΎΠ² Π½Π΅ΠΎΠ±Ρ ΠΎΠ΄ΠΈΠΌΠΎ Π΄ΠΎΠΏΠΎΠ»Π½ΠΈΡΠ΅Π»ΡΠ½ΠΎ Π½Π°ΡΡΡΠΎΠΈΡΡ Π΄ΠΎΠ²ΠΎΠ΄ΡΠΈΠΊ Π΄Π²Π΅ΡΠΈ ΠΏΠΎΡΡΠ΅Π΄ΡΡΠ²ΠΎΠΌ ΡΠ΅Π³ΡΠ»ΠΈΡΠΎΠ²Π°Π½ΠΈΡ ΠΏΠ΅ΡΠ²ΠΎΠ³ΠΎ ΠΊΠ»Π°ΠΏΠ°Π½Π°.
ΠΠ°ΡΠ°ΡΡΡΡ Π²ΠΎΠ·Π½ΠΈΠΊΠ°Π΅Ρ Π½Π΅ΠΎΠ±Ρ ΠΎΠ΄ΠΈΠΌΠΎΡΡΡ Π·Π°Π΄Π΅ΡΠΆΠΊΠΈ ΠΎΡΠΊΡΡΡΠΎΠΉ Π΄Π²Π΅ΡΠΈ Π² ΡΠ°ΠΊΠΎΠΌ ΠΏΠΎΠ»ΠΎΠΆΠ΅Π½ΠΈΠΈ Π½Π° Π½Π΅ΠΊΠΎΡΠΎΡΠΎΠ΅ Π²ΡΠ΅ΠΌΡ. Π£Π²Π΅Π»ΠΈΡΠ΅Π½ΠΈΠ΅ Π·Π°Π΄Π΅ΡΠΆΠΊΠΈ Π΄Π²Π΅ΡΠ½ΠΎΠ³ΠΎ ΠΏΠΎΠ»ΠΎΡΠ½Π° ΠΏΠ΅ΡΠ΅Π΄ Π·Π°ΠΊΡΡΡΠΈΠ΅ΠΌ ΠΌΠΎΠΆΠ½ΠΎ Π΄ΠΎΡΡΠΈΡΡ ΠΏΡΡΡΠΌ ΠΏΡΠΎΡΠ΅Π΄ΡΡΡ Π±ΠΎΠ»Π΅Π΅ ΡΡΠ³ΠΎΠ³ΠΎ Π·Π°ΡΡΠ³ΠΈΠ²Π°Π½ΠΈΡ ΡΠΏΠ΅ΡΠΈΠ°Π»ΡΠ½ΠΎΠ³ΠΎ ΡΠΈΠΊΡΠ°ΡΠΎΡΠ°. ΠΡΡ ΠΌΠ°Π½ΠΈΠΏΡΠ»ΡΡΠΈΡ ΠΏΡΠΈΠ½ΡΡΠΎ Π²ΡΠΏΠΎΠ»Π½ΡΡΡ ΡΠΎΠ³Π΄Π°, ΠΊΠΎΠ³Π΄Π° Π΄Π²Π΅ΡΠΊΠ° ΠΎΡΠΊΡΡΡΠ° ΠΏΡΠΈΠΌΠ΅ΡΠ½ΠΎ Π½Π° 95 β 100 Π³ΡΠ°Π΄ΡΡΠΎΠ². ΠΠΎΠ½ΡΡΠΎΠ»Ρ ΠΎΡΠΊΡΡΡΠΎΠ³ΠΎ ΠΏΠΎΠ»ΠΎΠΆΠ΅Π½ΠΈΡ Π΄Π²Π΅ΡΠΈ ΡΠ°ΠΊΠΆΠ΅ ΠΎΡΡΡΠ΅ΡΡΠ²Π»ΡΠ΅ΡΡΡ Ρ ΠΏΠΎΠΌΠΎΡΡΡ ΠΎΠΏΡΠ΅Π΄Π΅Π»Π΅Π½Π½ΠΎΠΉ ΠΎΠΏΡΠΈΠΈ Π΄Π²Π΅ΡΠ½ΠΎΠ³ΠΎ Π΄ΠΎΠ²ΠΎΠ΄ΡΠΈΠΊΠ°.
ΠΡΠ»ΠΈ Π΄Π²Π΅ΡΡ Π½Π΅ΠΎΠ±Ρ ΠΎΠ΄ΠΈΠΌΠΎ Π΄ΠΎΠ»Π³ΠΎ Π΄Π΅ΡΠΆΠ°ΡΡ ΠΎΡΠΊΡΡΡΠΎΠΉ β Π΄Π»Ρ ΠΏΠ΅ΡΠ΅ΠΌΠ΅ΡΠ΅Π½ΠΈΡ ΠΌΠ΅Π±Π΅Π»ΠΈ ΠΈΠ»ΠΈ ΠΏΡΠΎΠ²Π΅ΡΡΠΈΠ²Π°Π½ΠΈΡ ΠΏΠΎΠΌΠ΅ΡΠ΅Π½ΠΈΡ, ΡΠΎ ΡΡΠΎΠΈΡ Π²ΠΎΡΠΏΠΎΠ»ΡΠ·ΠΎΠ²Π°ΡΡΡΡ ΡΡΠ½ΠΊΡΠΈΠ΅ΠΉ Π΄ΠΎΠ²ΠΎΠ΄ΡΠΈΠΊΠ° hold-open. Π’Π°ΠΊΠΎΠ΅ ΡΡΡΡΠΎΠΉΡΡΠ²ΠΎ ΠΎΡΠ½Π°ΡΠ΅Π½ΠΎ ΡΡΡΠ°Π³ΠΎΠΌ ΡΠΈΠΊΡΠ°ΡΠΈΠΈ Π΄Π²Π΅ΡΠΊΠΈ Π² ΠΎΡΠΊΡΡΡΠΎΠΌ ΠΏΠΎΠ»ΠΎΠΆΠ΅Π½ΠΈΠΈ. ΠΠ°ΠΌ ΡΠ»Π΅Π΄ΡΠ΅Ρ ΠΎΡΠΊΡΡΡΡ Π΄Π²Π΅ΡΡΡ Π½Π° 90-95 Π³ΡΠ°Π΄ΡΡΠΎΠ² ΠΈ Π·Π°ΡΡΠ½ΡΡΡ ΡΠΈΠΊΡΠ°ΡΠΎΡ. ΠΠΎΡΠ»Π΅ ΡΠ°ΠΊΠΈΡ ΠΌΠ°Π½ΠΈΠΏΡΠ»ΡΡΠΈΠΉ Π΄Π²Π΅ΡΡ Π±ΡΠ΄Π΅Ρ Π·Π°ΠΊΡΡΠ²Π°ΡΡΡΡ Π² ΠΎΠ±ΡΠΊΠ½ΠΎΠ²Π΅Π½Π½ΠΎΠΌ ΡΠ΅ΠΆΠΈΠΌΠ΅, Π΅ΡΠ»ΠΈ Π²Ρ Π±ΡΠ΄Π΅ΡΠ΅ Π΅Ρ ΠΎΡΠΊΡΡΡΡ Π½Π° ΠΌΠ΅Π½ΡΡΠΈΠΉ ΡΠ³ΠΎΠ», ΡΠ΅ΠΌ 90Β°. ΠΡΠ»ΠΈ ΠΆΠ΅ Π²Ρ ΠΎΡΠΊΡΠΎΠ΅ΡΠ΅ Π΄Π²Π΅ΡΡ ΡΠΈΡΠ΅, ΠΎΠ½Π° Π·Π°ΡΠΈΠΊΡΠΈΡΡΠ΅ΡΡΡ ΠΈ ΠΎΡΡΠ°Π½Π΅ΡΡΡ ΠΎΡΠΊΡΡΡΠΎΠΉ, ΠΏΠΎΠΊΠ° Π²Ρ Π½Π΅ ΠΏΠΎΡΡΠ½Π΅ΡΠ΅ Π½Π° ΡΠ΅Π±Ρ, ΡΠ΅ΠΌ ΡΠ°ΠΌΡΠΌ ΡΠ½ΡΠ² ΡΠΈΠΊΡΠ°ΡΠΈΡ.
Π Π½Π΅ΠΊΠΎΡΠΎΡΡΡ
ΡΠ»ΡΡΠ°ΡΡ
ΠΌΠΎΠΆΠ΅Ρ ΠΏΠΎΠ½Π°Π΄ΠΎΠ±ΠΈΡΡΡΡ ΠΏΡΠΎΠ²Π΅ΡΡΠΈ ΠΈΠ·ΠΌΠ΅Π½Π΅Π½ΠΈΠ΅ ΡΠ³Π»Π° ΡΠ°ΡΠΏΠ°Ρ
ΠΈΠ²Π°Π½ΠΈΡ Π΄Π²Π΅ΡΠΊΠΈ. ΠΡΠΈ Π½Π΅ΠΎΠ±Ρ
ΠΎΠ΄ΠΈΠΌΠΎΡΡΠΈ ΠΌΠΎΠΆΠ½ΠΎ ΠΈΠ·ΠΌΠ΅Π½ΠΈΡΡ ΡΠ³ΠΎΠ» ΡΠ°ΡΠΏΠ°Ρ
ΠΈΠ²Π°Π½ΠΈΡ Π΄Π²Π΅ΡΠΈ Ρ ΠΏΠΎΠΌΠΎΡΡΡ ΡΠΏΠ΅ΡΠΈΠ°Π»ΡΠ½ΠΎΠ³ΠΎ ΠΊΠ»Π°ΠΏΠ°Π½Π°, ΠΊΠΎΡΠΎΡΡΠΉ ΡΠ»Π΅Π΄ΡΠ΅Ρ ΠΏΠΎΠ²Π΅ΡΠ½ΡΡΡ Π·Π° ΠΈΠ»ΠΈ ΠΏΡΠΎΡΠΈΠ² ΡΠ°ΡΠΎΠ²ΠΎΠΉ ΡΡΡΠ΅Π»ΠΊΠΈ. ΠΠ»Π°Π²Π½ΠΎΠ΅ ΠΏΡΠΈ Π²ΡΠΏΠΎΠ»Π½Π΅Π½ΠΈΠΈ ΡΠ΅Π³ΡΠ»ΠΈΡΠΎΠ²ΠΊΠΈ Π΄ΠΎΠ²ΠΎΠ΄ΡΠΈΠΊΠ° Π½Π΅ Π½Π°ΡΡΡΠΈΡΡ ΡΡΠ½ΠΊΡΠΈΠΎΠ½ΠΈΡΠΎΠ²Π°Π½ΠΈΡ ΡΠΈΡΡΠ΅ΠΌΡ: Π½Π΅Π»ΡΠ·Ρ Π²ΠΈΠ½Ρ ΠΏΡΠΎΠΊΡΡΡΠΈΠ²Π°ΡΡ Π±ΠΎΠ»ΡΡΠ΅ ΡΠ΅ΠΌ Π½Π° 2 ΠΏΠΎΠ»Π½ΡΡ
ΠΎΠ±ΠΎΡΠΎΡΠ°, Π½Π΅ΠΆΠ΅Π»Π°ΡΠ΅Π»ΡΠ½ΠΎ Π²ΠΈΠ½Ρ Π·Π°ΠΊΡΡΡΠΈΠ²Π°ΡΡ Π΄ΠΎ ΡΠΏΠΎΡΠ°, Π·Π°ΠΏΡΠ΅ΡΠ°Π΅ΡΡΡ Π²ΡΠΊΡΡΡΠΈΠ²Π°ΡΡ ΠΏΠΎΠ»Π½ΠΎΡΡΡΡ Π³Π°ΠΉΠΊΠΈ ΠΈ ΡΠ΅Π³ΡΠ»ΠΈΡΠΎΠ²ΠΎΡΠ½ΡΠ΅ Π²ΠΈΠ½ΡΡ.
ΠΡΠ»ΠΈ Π²Ρ ΠΈΡΠΏΡΠΎΠ±ΠΎΠ²Π°Π»ΠΈ Π²ΡΠ΅ Π²ΡΡΠ΅ ΠΏΠ΅ΡΠ΅ΡΠΈΡΠ»Π΅Π½Π½ΡΠ΅ ΡΠΎΠ²Π΅ΡΡ ΠΏΠΎ ΠΏΠΎΠ²ΠΎΠ΄Ρ, ΠΊΠ°ΠΊ Π½Π°ΡΡΡΠΎΠΈΡΡ Π΄ΠΎΠ²ΠΎΠ΄ΡΠΈΠΊ Π΄Π²Π΅ΡΠΈ, Π½ΠΎ Π½ΠΈΡΠ΅Π³ΠΎ Π½Π΅ ΠΏΠΎΠΌΠΎΠ³Π»ΠΎ, ΡΠΎ Π²ΠΎΠ·ΠΌΠΎΠΆΠ½ΠΎ Π²ΡΡ ΠΏΡΠΎΠ±Π»Π΅ΠΌΠ° ΠΊΡΠΎΠ΅ΡΡΡ Π² Π½Π΅ΠΏΡΠ°Π²ΠΈΠ»ΡΠ½ΠΎΠΉ ΡΡΡΠ°Π½ΠΎΠ²ΠΊΠ΅. ΠΡΠΎΠ²Π΅ΡΡΡΠ΅ Π²Π΅ΡΡΠΈΠΊΠ°Π»ΡΠ½ΠΎΡΡΡ ΠΌΠΎΠ½ΡΠ°ΠΆΠ° Π΄Π²Π΅ΡΠΈ ΠΈ ΠΏΡΠ°Π²ΠΈΠ»ΡΠ½ΠΎΡΡΡ ΡΡΡΠ°Π½ΠΎΠ²ΠΊΠΈ Π΄ΠΎΠ²ΠΎΠ΄ΡΠΈΠΊΠ°. ΠΡΠΎΠ²Π΅ΡΡΡΠ΅ ΡΠ°Π·ΠΌΠ΅ΡΠ΅Π½ΠΈΠ΅ Π³Π°ΠΉΠΊΠΈ, ΠΊΠΎΡΠΎΡΠ°Ρ ΡΠ΅Π³ΡΠ»ΠΈΡΡΠ΅Ρ ΡΠΈΠ»Ρ Π½Π°ΡΡΠΆΠ΅Π½ΠΈΡ ΠΏΡΡΠΆΠΈΠ½Ρ, ΠΏΠΎΠΌΠ½ΠΈΡΠ΅, ΡΡΠΎ ΠΎΠ½Π° Π΄ΠΎΠ»ΠΆΠ½Π° ΡΠ°ΡΠΏΠΎΠ»Π°Π³Π°ΡΡΡΡ Π½Π°ΠΏΡΠΎΡΠΈΠ² Π΄Π²Π΅ΡΠ½ΠΎΠΉ ΠΏΠ΅ΡΠ»ΠΈ. Π ΡΡΠ°Π³ Π΄ΠΎΠ»ΠΆΠ΅Π½ Π±ΡΡΡ ΡΠ°ΠΊΠΎΠΉ Π΄Π»ΠΈΠ½Ρ, ΡΡΠΎΠ±Ρ ΠΎΠ½ ΠΊ ΠΊΠΎΡΠΎΠ±ΠΊΠ΅ Π΄Π²Π΅ΡΠΈ ΡΠ°ΡΠΏΠΎΠ»Π°Π³Π°Π»ΡΡ ΠΏΠΎΠ΄ ΠΏΡΡΠΌΡΠΌ ΡΠ³Π»ΠΎΠΌ. ΠΡΠΈ Π½Π°Π»ΠΈΡΠΈΠΈ ΡΠ°ΠΌΡΡ ΠΌΠ°Π»Π΅ΠΉΡΠΈΡ ΠΏΠΎΠ΄ΠΎΠ·ΡΠ΅Π½ΠΈΠΉ, ΡΡΠΎ Π²Ρ Π½Π΅Π²Π΅ΡΠ½ΠΎ ΡΡΡΠ°Π½ΠΎΠ²ΠΈΠ»ΠΈ Π΄ΠΎΠ²ΠΎΠ΄ΡΠΈΠΊ, ΡΠ΅ΠΊΠΎΠΌΠ΅Π½Π΄ΡΠ΅ΡΡΡ Π΅Π³ΠΎ ΡΠ½ΡΡΡ ΠΈ ΠΏΠΎΡΡΠ°Π²ΠΈΡΡ ΠΏΠΎ Π²ΡΠ΅ΠΌ ΠΏΡΠ°Π²ΠΈΠ»Π°ΠΌ.
Π’Π°ΠΊΠΈΠΌ ΠΎΠ±ΡΠ°Π·ΠΎΠΌ, Π±Π΅Π· ΠΎΡΠΎΠ±ΡΡ ΡΠ°ΡΡ ΠΎΠ΄ΠΎΠ², ΠΈΠΌΠ΅Ρ Π² ΡΠ°ΡΠΏΠΎΡΡΠΆΠ΅Π½ΠΈΠΈ ΠΎΡΠ²ΡΡΡΠΊΡ ΠΈ 5 ΠΌΠΈΠ½ΡΡ ΡΠ²ΠΎΠ±ΠΎΠ΄Π½ΠΎΠ³ΠΎ Π²ΡΠ΅ΠΌΠ΅Π½ΠΈ, ΠΈ Π·Π½Π°Ρ ΠΌΠ΅ΡΠΎΠ΄ΠΈΠΊΡ, ΠΊΠ°ΠΊ ΡΠ΅Π³ΡΠ»ΠΈΡΠΎΠ²Π°ΡΡ Π΄ΠΎΠ²ΠΎΠ΄ΡΠΈΠΊ Π΄Π²Π΅ΡΠΈ, Π²Ρ ΡΠΌΠΎΠΆΠ΅ΡΠ΅ ΡΠ°ΠΌΠΎΡΡΠΎΡΡΠ΅Π»ΡΠ½ΠΎ Π½Π°ΡΡΡΠΎΠΈΡΡ ΡΡΠΎΡ ΠΌΠ΅Ρ Π°Π½ΠΈΠ·ΠΌ. ΠΠ»Π°Π²Π½ΠΎΠ΅ ΠΏΡΠΈ ΡΡΠΎΠΌ ΠΏΠΎΠΌΠ½ΠΈΡΡ ΠΎ Π½Π΅ΠΊΠΎΡΠΎΡΡΡ ΠΎΡΠΎΠ±Π΅Π½Π½ΠΎΡΡΡΡ ΡΠ°Π±ΠΎΡΡ, ΠΊΠΎΡΠΎΡΡΠ΅ ΠΏΠΎΠ·Π²ΠΎΠ»ΡΡΡ Π½Π΅ Π½Π°ΡΡΡΠΈΡΡ ΠΏΡΠ°Π²ΠΈΠ»ΡΠ½ΠΎΠ΅ ΡΡΠ½ΠΊΡΠΈΠΎΠ½ΠΈΡΠΎΠ²Π°Π½ΠΈΠ΅ ΡΠΈΡΡΠ΅ΠΌΡ.
ΠΠ°ΠΊ ΡΡΡΡΠΎΠ΅Π½ Π΄Π²Π΅ΡΠ½ΠΎΠΉ Π΄ΠΎΠ²ΠΎΠ΄ΡΠΈΠΊ?
ΠΠΎΠ²ΠΎΠ΄ΡΠΈΠΊ Π΄Π²Π΅ΡΠ½ΠΎΠΉ β ΠΌΠ΅Ρ Π°Π½ΠΈΠ·ΠΌ, ΠΊΠΎΡΠΎΡΡΠΉ ΠΏΠΎΠ·Π²ΠΎΠ»ΡΠ΅Ρ ΡΠ½ΠΈΠ·ΠΈΡΡ ΡΠ΅ΠΏΠ»ΠΎΠΏΠΎΡΠ΅ΡΠΈ ΠΏΠΎΠΌΠ΅ΡΠ΅Π½ΠΈΡ, Π²ΠΎΠ·Π½ΠΈΠΊΠ°ΡΡΠΈΠ΅ ΠΈΠ·-Π·Π° ΠΏΠΎΡΡΠΎΡΠ½Π½ΠΎ ΠΎΡΠΊΡΡΡΡΡ Π΄Π²Π΅ΡΠ΅ΠΉ. ΠΠ³ΠΎ ΠΏΡΠΈΠΌΠ΅Π½Π΅Π½ΠΈΠ΅ Π²ΠΎ ΠΌΠ½ΠΎΠ³ΠΈΡ ΡΠ»ΡΡΠ°ΡΡ ΠΏΡΠ΅Π΄ΠΎΡΠ²ΡΠ°ΡΠ°Π΅Ρ ΠΏΡΠΎΠ½ΠΈΠΊΠ½ΠΎΠ²Π΅Π½ΠΈΠ΅ ΠΏΠΎΡΡΠΎΡΠΎΠ½Π½ΠΈΡ Π»ΠΈΡ Π² ΠΏΠΎΠΌΠ΅ΡΠ΅Π½ΠΈΡ, ΠΎΠ½ Π½Π΅Π·Π°ΠΌΠ΅Π½ΠΈΠΌ Π² ΡΠΈΡΡΠ΅ΠΌΠ°Ρ Π΄ΠΈΡΡΠ°Π½ΡΠΈΠΎΠ½Π½ΠΎΠ³ΠΎ ΡΠΏΡΠ°Π²Π»Π΅Π½ΠΈΡ Π΄Π²Π΅ΡΡΠΌΠΈ, ΠΎΡΠ½ΠΎΠ²Π°Π½Π½ΡΡ Π½Π° ΠΏΡΠΈΠΌΠ΅Π½Π΅Π½ΠΈΠΈ ΡΠ»Π΅ΠΊΡΡΠΎΠΌΠ°Π³Π½ΠΈΡΠ½ΡΡ Π·Π°ΠΌΠΊΠΎΠ².
ΠΡΠ°Π²ΠΈΠ»ΡΠ½Π°Ρ, Π±Π΅Π·Π°Π²Π°ΡΠΈΠΉΠ½Π°Ρ ΡΠ°Π±ΠΎΡΠ° Π΄ΠΎΠ²ΠΎΠ΄ΡΠΈΠΊΠ° Π΄Π²Π΅ΡΠ΅ΠΉ, ΡΠ²Π»ΡΠ΅ΡΡΡ Π³Π°ΡΠ°Π½ΡΠΈΠ΅ΠΉ Π²Π°ΡΠ΅Π³ΠΎ ΠΊΠΎΠΌΡΠΎΡΡΠ° ΠΈ Π±Π΅Π·ΠΎΠΏΠ°ΡΠ½ΠΎΡΡΠΈ, Π° Π΄ΠΎΡΡΠΈΡΡ ΡΡΠΎ Π²ΠΎΠ·ΠΌΠΎΠΆΠ½ΠΎ ΡΠΎΠ»ΡΠΊΠΎ ΠΏΡΠ°Π²ΠΈΠ»ΡΠ½ΠΎΠΉ ΡΡΡΠ°Π½ΠΎΠ²ΠΊΠΎΠΉ, ΡΠΎΠ±Π»ΡΠ΄Π΅Π½ΠΈΠ΅ΠΌ Π²ΡΠ΅Ρ ΡΠΊΡΠΏΠ»ΡΠ°ΡΠ°ΡΠΈΠΎΠ½Π½ΡΡ ΡΡΠ΅Π±ΠΎΠ²Π°Π½ΠΈΠΉ. Π ΠΏΡΠΎΡΠΈΠ²Π½ΠΎΠΌ ΡΠ»ΡΡΠ°Π΅ Π²ΠΎΠ·ΠΌΠΎΠΆΠ΅Π½ Π²ΡΡ ΠΎΠ΄ ΡΡΡΡΠΎΠΉΡΡΠ²Π° ΠΈΠ· ΡΡΡΠΎΡ. Π Π²ΠΎΠ·ΠΌΠΎΠΆΠ΅Π½ Π»ΠΈ ΡΠ΅ΠΌΠΎΠ½Ρ Π΄ΠΎΠ²ΠΎΠ΄ΡΠΈΠΊΠΎΠ² Π΄Π²Π΅ΡΠ΅ΠΉ?
ΠΠ°ΠΊ ΡΡΡΡΠΎΠ΅Π½ Π΄Π²Π΅ΡΠ½ΠΎΠΉ Π΄ΠΎΠ²ΠΎΠ΄ΡΠΈΠΊ?
Π§ΡΠΎΠ±Ρ Π·Π½Π°ΡΡ, ΠΊΠ°ΠΊ ΠΎΡΡΠ΅ΠΌΠΎΠ½ΡΠΈΡΠΎΠ²Π°ΡΡ Π΄ΠΎΠ²ΠΎΠ΄ΡΠΈΠΊ Π΄Π²Π΅ΡΠΈ Π½Π΅ΠΎΠ±Ρ ΠΎΠ΄ΠΈΠΌΠΎ ΡΠ΅ΡΠΊΠΎ ΠΏΡΠ΅Π΄ΡΡΠ°Π²Π»ΡΡΡ ΠΏΡΠΈΠ½ΡΠΈΠΏ Π΅Π³ΠΎ ΡΠ°Π±ΠΎΡΡ, Π° ΡΠ°ΠΊΠΆΠ΅ Π΅Π³ΠΎ ΡΡΡΡΠΎΠΉΡΡΠ²ΠΎ. ΠΠΎΠ»ΡΡΠΈΠ½ΡΡΠ²ΠΎ ΠΏΡΠ΅Π΄Π»Π°Π³Π°Π΅ΠΌΡΡ ΠΌΠΎΠ΄Π΅Π»Π΅ΠΉ ΠΎΠ΄Π½ΠΎΡΠΈΠΏΠ½Ρ, Π½Π΅ΡΠΌΠΎΡΡΡ Π½Π° Π½Π΅ΠΊΠΎΡΠΎΡΡΠ΅ ΡΠ°Π·Π»ΠΈΡΠΈΡ Π²ΠΎ Π²Π½Π΅ΡΠ½Π΅ΠΌ Π²ΠΈΠ΄Π΅
Π ΠΌΠ΅ΡΠ°Π»Π»ΠΈΡΠ΅ΡΠΊΠΎΠΌ ΠΊΠΎΡΠΏΡΡΠ΅, Π·Π°ΠΏΠΎΠ»Π½Π΅Π½Π½ΠΎΠΌ ΠΌΠ°ΡΠ»ΠΎΠΌ, Π½Π°Ρ
ΠΎΠ΄ΠΈΡΡΡ ΠΌΠ΅Ρ
Π°Π½ΠΈΠ·ΠΌ, ΠΊΠΎΡΠΎΡΡΠΉ ΡΠ΅ΡΠ΅Π· ΡΠΊΠ»Π°Π΄Π½ΠΎΠΉ ΡΡΡΠ°Π³ ΠΏΠ΅ΡΠ΅Π΄Π°Π΅Ρ ΡΡΠΈΠ»ΠΈΠ΅ Π·Π°ΠΊΡΡΠ²Π°Π½ΠΈΡ Π΄Π²Π΅ΡΠΈ Π½Π° ΠΏΡΡΠΆΠΈΠ½Ρ, ΠΊΠΎΡΠΎΡΠ°Ρ ΡΠΆΠΈΠΌΠ°ΡΡΡ, Π½Π°ΠΊΠ°ΠΏΠ»ΠΈΠ²Π°Π΅Ρ ΡΠ½Π΅ΡΠ³ΠΈΡ, Π½Π΅ΠΎΠ±Ρ
ΠΎΠ΄ΠΈΠΌΡΡ Π΄Π»Ρ Π·Π°ΠΊΡΡΡΠΈΡ Π΄Π²Π΅ΡΠ΅ΠΉ.
Π‘ΠΆΠ°ΡΠΈΠ΅ ΠΏΡΡΠΆΠΈΠ½Ρ ΠΏΡΠΎΠΈΡΡ
ΠΎΠ΄ΠΈΡ ΡΠ»Π΅Π΄ΡΡΡΠΈΠΌ ΠΎΠ±ΡΠ°Π·ΠΎΠΌ.
ΠΠΎΡΡΠ΅Π΄ΡΡΠ²ΠΎΠΌ Π·ΡΠ±ΡΠ°ΡΠΎΠΉ ΡΠ΅ΡΡΠ΅ΡΠ½ΠΈ ΠΈ ΡΠ΅ΠΉΠΊΠΈ ΠΏΡΠΈΠ²ΠΎΠ΄ΠΈΡΡΡ Π² Π΄Π²ΠΈΠΆΠ΅Π½ΠΈΠ΅ ΠΏΠΎΡΡΠ΅Π½Ρ, ΠΊΠΎΡΠΎΡΡΠΉ ΠΈ ΠΎΠΊΠ°Π·ΡΠ²Π°Π΅Ρ Π²ΠΎΠ·Π΄Π΅ΠΉΡΡΠ²ΠΈΠ΅ Π½Π° ΠΏΡΡΠΆΠΈΠ½Ρ. ΠΠΎ Π²Π½ΡΡΡΠ΅Π½Π½ΠΈΠΌ ΠΏΡΠΎΡΠΎΡΠΊΠ°ΠΌ Π² ΠΏΠΎΡΡΠ½Π΅ ΠΌΠ°ΡΠ»ΠΎ ΠΏΠ΅ΡΠ΅ΡΠ΅ΠΊΠ°Π΅Ρ Π² ΠΎΡΠ²ΠΎΠ±ΠΎΠΆΠ΄Π°ΡΡΡΡΡΡ ΡΠ°ΡΡΡ ΠΊΠΎΡΠΏΡΡΠ°. ΠΠ³ΡΠ°Π½ΠΈΡΠ΅Π½ΠΈΠ΅ ΡΠΊΠΎΡΠΎΡΡΠΈ Π·Π°ΠΊΡΡΡΠΈΡ ΠΏΡΠΎΠΈΡΡ ΠΎΠ΄ΠΈΡ Π·Π° ΡΡΠ΅Ρ ΡΠ΅Π³ΡΠ»ΠΈΡΠΎΠ²ΠΊΠΈ ΡΠΊΠΎΡΠΎΡΡΠΈ Π΄Π²ΠΈΠΆΠ΅Π½ΠΈΡ ΠΌΠ°ΡΠ»Π° ΠΏΠΎ ΠΊΠ°Π½Π°Π»Π°ΠΌ Π΄Π»Ρ ΠΎΠ±ΡΠ°ΡΠ½ΠΎΠ³ΠΎ ΠΏΠ΅ΡΠ΅ΡΠ΅ΠΊΠ°Π½ΠΈΡ.
ΠΠΎΡ, Π² ΠΎΠ±ΡΠ΅ΠΌ, ΠΈ Π²Π΅ΡΡ ΠΏΡΠΈΠ½ΡΠΈΠΏ ΡΠ°Π±ΠΎΡΡ, Π΄ΠΎΡΡΠ°ΡΠΎΡΠ½ΠΎ ΠΏΡΠΎΡΡΠ°Ρ ΠΊΠΎΠ½ΡΡΡΡΠΊΡΠΈΡ, ΠΊΠΎΡΠΎΡΠ°Ρ Π΄ΠΎΠ»ΠΆΠ½Π° Π±Ρ ΠΎΠ±Π΅ΡΠΏΠ΅ΡΠΈΠ²Π°ΡΡ Π½Π°Π΄Π΅ΠΆΠ½ΠΎΡΡΡ ΡΡΡΡΠΎΠΉΡΡΠ²Π° ΠΈ Ρ ΠΎΡΠΎΡΡΡ ΡΠ΅ΠΌΠΎΠ½ΡΠΎΡΠΏΠΎΡΠΎΠ±Π½ΠΎΡΡΡ.
Π€Π°ΠΊΡΠΎΡΡ, ΠΎΠΏΡΠ΅Π΄Π΅Π»ΡΡΡΠΈΠ΅, Π²ΠΎΠ·ΠΌΠΎΠΆΠ΅Π½ Π»ΠΈ ΡΠ΅ΠΌΠΎΠ½Ρ Π΄Π²Π΅ΡΠ½ΡΡ Π΄ΠΎΠ²ΠΎΠ΄ΡΠΈΠΊΠΎΠ²
Π ΠΎΠ³ΡΠΎΠΌΠ½ΠΎΠΌΡ ΡΠΎΠΆΠ°Π»Π΅Π½ΠΈΡ, ΠΏΡΠΎΠΈΠ·Π²ΠΎΠ΄ΠΈΡΠ΅Π»ΠΈ Π²ΠΈΠ΄Π½ΠΎ Π½Π΅ ΡΠΈΠ»ΡΠ½ΠΎ Π·Π°ΠΈΠ½ΡΠ΅ΡΠ΅ΡΠΎΠ²Π°Π½Ρ Π² Π²ΠΎΠ·ΠΌΠΎΠΆΠ½ΠΎΡΡΠΈ ΡΠ΄Π΅Π»Π°ΡΡ ΡΠ΅ΠΌΠΎΠ½Ρ Π΄ΠΎΠ²ΠΎΠ΄ΡΠΈΠΊΠΎΠ² Π΄Π²Π΅ΡΠ΅ΠΉ Π΄ΠΎΡΡΡΠΏΠ½ΡΠΌ. ΠΠ° ΡΡΠΎ Π½Π°ΡΠ°Π»ΠΊΠΈΠ²Π°Π΅Ρ ΡΡΠ΄ Π½Π°Π±Π»ΡΠ΄Π΅Π½ΠΈΠΉ, Π½Π°ΠΏΡΠΈΠΌΠ΅Ρ ΡΠ΅Π»ΡΠ½ΠΎΡΠΏΠ»Π°Π²Π½ΡΠΉ ΠΊΠΎΡΠΏΡΡ. ΠΡΠΈ Π²ΠΎΠ·Π½ΠΈΠΊΠ½ΠΎΠ²Π΅Π½ΠΈΠΈ ΠΏΡΠΎΠ±Π»Π΅ΠΌ ΡΠ²ΡΠ·Π°Π½Π½ΡΡ Ρ ΡΡΠ΅ΡΠΊΠΎΠΉ ΠΌΠ°ΡΠ»Π°, Π·Π°ΠΌΠ΅Π½ΠΎΠΉ ΠΏΡΠΎΡ ΡΠ΄ΠΈΠ²ΡΠΈΡ ΡΡ ΡΠ°Π»ΡΠ½ΠΈΠΊΠΎΠ² ΠΏΡΠ΅Π΄ΠΏΡΠΈΠ½ΡΡΡ ΠΊΠ°ΠΊΠΈΠ΅ Π»ΠΈΠ±ΠΎ ΡΠ°Π³ΠΈ, ΠΊΡΠΎΠΌΠ΅ ΠΏΠΎΠΊΡΠΏΠΊΠΈ Π½ΠΎΠ²ΠΎΠ³ΠΎ Π΄ΠΎΠ²ΠΎΠ΄ΡΠΈΠΊΠ° Π½Π΅ ΠΈΠΌΠ΅Π΅Ρ ΡΠΌΡΡΠ»Π°.
ΠΠΎΡΡΠΎΠΌΡ ΠΎΠ³ΡΠΎΠΌΠ½ΡΡ ΡΠΎΠ»Ρ Π² Π΄ΠΎΠ»Π³ΠΎΠ²Π΅ΡΠ½ΠΎΡΡΠΈ ΠΈΠ³ΡΠ°Π΅Ρ ΡΠ΅Π³ΡΠ»ΠΈΡΠΎΠ²ΠΊΠ° Π΄ΠΎΠ²ΠΎΠ΄ΡΠΈΠΊΠ° Π΄Π²Π΅ΡΠΈ, Π° ΡΠ°ΠΊΠΆΠ΅ ΠΏΡΠ°Π²ΠΈΠ»ΡΠ½ΠΎΡΡΡ Π΅Π³ΠΎ ΠΌΠΎΠ½ΡΠ°ΠΆΠ°. Π ΠΏΡΠΎΡΠ΅ΡΡΠ΅ ΡΠΊΡΠΏΠ»ΡΠ°ΡΠ°ΡΠΈΠΈ Π½Π΅ ΡΡΠΎΠΈΡ ΡΠΈΠΊΡΠΈΡΠΎΠ²Π°ΡΡ Π΄Π²Π΅ΡΡ Π² ΠΎΡΠΊΡΡΡΠΎΠΌ ΠΏΠΎΠ»ΠΎΠΆΠ΅Π½ΠΈΠΈ ΠΏΡΠΈ ΠΏΠΎΠΌΠΎΡΠΈ ΠΏΠΎΠ΄ΡΡΡΠ½ΡΡ ΡΡΠ΅Π΄ΡΡΠ², ΡΡΠΎ Π½Π΅Π³Π°ΡΠΈΠ²Π½ΠΎ ΡΠΊΠ°ΠΆΠ΅ΡΡΡ Π½Π° ΡΡΡΡΠΎΠΉΡΡΠ²Π΅. ΠΠ»Ρ ΡΠ°ΠΊΠΈΡ ΡΠ΅Π»Π΅ΠΉ Π»ΡΡΡΠ΅ ΠΊΡΠΏΠΈΡΡ Π΄ΠΎΠ²ΠΎΠ΄ΡΠΈΠΊ Ρ ΡΡΠ½ΠΊΡΠΈΠ΅ΠΉ Π±Π»ΠΎΠΊΠΈΡΠΎΠ²ΠΊΠΈ Π΄Π²Π΅ΡΠΈ ΠΏΡΠΈ ΠΎΡΠΊΡΡΡΠΈΠΈ Π½Π° Π±ΠΎΠ»Π΅Π΅ ΡΠ΅ΠΌ 900.
Π’Π°ΠΊ ΠΊΠ°ΠΊ ΠΏΡΠΈΠΌΠ΅Π½ΡΠ΅ΠΌΠ°Ρ Π³ΠΈΠ΄ΡΠ°Π²Π»ΠΈΡΠ΅ΡΠΊΠ°Ρ ΠΆΠΈΠ΄ΠΊΠΎΡΡΡ ΡΡΠ²ΡΡΠ²ΠΈΡΠ΅Π»ΡΠ½Π° ΠΊ ΠΏΠ΅ΡΠ΅ΠΏΠ°Π΄Π°ΠΌ ΡΠ΅ΠΌΠΏΠ΅ΡΠ°ΡΡΡΡ Π½Π°ΡΡΠΆΠ½ΠΎΠ³ΠΎ Π²ΠΎΠ·Π΄ΡΡ Π° (ΠΏΡΠΈ ΡΡΠΎΠΌ ΠΌΠ΅Π½ΡΠ΅ΡΡΡ Π²ΡΠ·ΠΊΠΎΡΡΡ ΠΆΠΈΠ΄ΠΊΠΎΡΡΠΈ), ΠΏΡΠΎΠ²ΠΎΠ΄ΠΈΡΠ΅ ΠΏΡΠΈ ΡΠΌΠ΅Π½Π΅ ΡΠ΅Π·ΠΎΠ½ΠΎΠ² ΡΠ΅Π³ΡΠ»ΠΈΡΠΎΠ²ΠΊΡ ΡΠΊΠΎΡΠΎΡΡΠΈ Π΄ΠΎΠ²ΠΎΠ΄ΠΊΠΈ.
Π£ΡΡΡΠ°Π½Π΅Π½ΠΈΠ΅ Π²ΠΎΠ·ΠΌΠΎΠΆΠ½ΡΡ Π½Π΅ΠΈΡΠΏΡΠ°Π²Π½ΠΎΡΡΠ΅ΠΉ
ΠΠ°ΠΈΠ±ΠΎΠ»Π΅Π΅ ΡΠ°ΡΡΠΎΠΉ ΠΏΠΎΠ»ΠΎΠΌΠΊΠΎΠΉ ΡΠ²Π»ΡΠ΅ΡΡΡ Π²ΡΡ ΠΎΠ΄ ΠΈΠ· ΡΡΡΠΎΡ ΡΠΊΠ»Π°Π΄Π½ΠΎΠ³ΠΎ ΡΡΡΠ°Π³Π°, ΡΡΠΎ ΠΎΡΠ½ΠΎΠ²Π½Π°Ρ ΠΏΡΠΎΠ±Π»Π΅ΠΌΠ° Π΄Π»Ρ Π΄ΠΎΠ²ΠΎΠ΄ΡΠΈΠΊΠΎΠ², ΡΡΡΠ°Π½ΠΎΠ²Π»Π΅Π½Π½ΡΡ Π² ΠΏΡΠΎΡ ΠΎΠ΄Π½ΡΡ ΠΏΠΎΠΌΠ΅ΡΠ΅Π½ΠΈΡΡ . Π’Π°ΠΊΠΆΠ΅ ΠΊ Π²ΡΡ ΠΎΠ΄Ρ ΠΈΠ· ΡΡΡΠΎΡ ΡΠΏΠΎΡΠΎΠ±ΡΡΠ²ΡΡΡ ΡΠ°ΡΡΠΎ Π²ΠΎΠ·Π½ΠΈΠΊΠ°ΡΡΠΈΠ΅ ΡΠ΄Π°ΡΠ½ΡΠ΅ Π½Π°Π³ΡΡΠ·ΠΊΠΈ, ΡΠ°ΠΊΠΈΠ΅ ΠΊΠ°ΠΊ ΠΏΠΎΡΡΠ²Ρ Π²Π΅ΡΡΠ°, Π½Π΅ΡΡΠ°Π²Π½ΠΎΠ²Π΅ΡΠ΅Π½Π½ΡΠ΅ ΠΏΠΎΡΠ΅ΡΠΈΡΠ΅Π»ΠΈ, ΡΠΊΡΡΡΡ ΡΡΠΎΡ ΡΠ»Π΅ΠΌΠ΅Π½Ρ Π΄ΠΎΠ²ΠΎΠ΄ΡΠΈΠΊΠ° Π½Π΅ ΠΏΡΠ΅Π΄ΡΡΠ°Π²Π»ΡΠ΅ΡΡΡ Π²ΠΎΠ·ΠΌΠΎΠΆΠ½ΡΠΌ, ΠΏΠΎΡΡΠΎΠΌΡ ΠΎΠ½ ΡΠ°ΡΡΠΎ ΡΡΠ°Π½ΠΎΠ²ΠΈΡΡΡ ΠΆΠ΅ΡΡΠ²ΠΎΠΉ Π²Π°Π½Π΄Π°Π»ΠΈΠ·ΠΌΠ°.
ΠΠΎΠ·ΠΌΠΎΠΆΠ½Π° Π΄Π΅ΡΠΎΡΠΌΠ°ΡΠΈΡ ΡΡΡΠ°Π³Π°, Π΅Π³ΠΎ ΠΈΠ·Π»ΠΎΠΌ, ΡΠ°ΡΡΠΎ Π²ΡΠ»Π°ΠΌΡΠ²Π°ΡΡ ΠΊΡΠ΅ΠΏΠ»Π΅Π½ΠΈΠ΅ ΡΡΠ°Π½Π³ΠΈ ΠΊ Π΄Π²Π΅ΡΠΈ ΠΈΠ»ΠΈ ΡΠ°ΠΌΠΎΠΌΡ Π΄ΠΎΠ²ΠΎΠ΄ΡΠΈΠΊΡ.
Π’Π°ΠΊΠΈΠ΅ Π½Π΅ΠΈΡΠΏΡΠ°Π²Π½ΠΎΡΡΠΈ Π»Π΅Π³ΠΊΠΎ ΡΡΡΡΠ°Π½ΡΡΡΡΡ ΠΏΡΠΈ ΠΏΠΎΠΌΠΎΡΠΈ ΡΠ²Π°ΡΠΊΠΈ, Π² ΠΊΡΠ°ΠΉΠ½Π΅ΠΌ ΡΠ»ΡΡΠ°Π΅, ΠΌΠΎΠΆΠ½ΠΎ ΠΏΡΠΈΠΎΠ±ΡΠ΅ΡΡΠΈ ΡΡΡΠ°Π³ Π² ΡΠ±ΠΎΡΠ΅, Π² ΠΏΡΠΎΠ΄Π°ΠΆΠ΅ ΠΎΠ½ΠΈ ΠΈΠΌΠ΅ΡΡΡΡ. ΠΠΎΠΆΠ½ΠΎ Π΄Π°ΠΆΠ΅ ΠΏΡΠΈΠΌΠ΅Π½ΡΡΡ ΡΡΠ°Π½Π³ΠΈ ΠΎΡ Π΄ΡΡΠ³ΠΈΡ
ΠΌΠΎΠ΄ΠΈΡΠΈΠΊΠ°ΡΠΈΠΉ ΠΏΡΠΈ ΡΡΠ»ΠΎΠ²ΠΈΠΈ ΡΠΎΠ²ΠΌΠ΅ΡΡΠΈΠΌΠΎΡΡΠΈ ΡΠ·Π»Π° ΠΊΡΠ΅ΠΏΠ»Π΅Π½ΠΈΡ ΠΊ ΡΡΡΡΠΎΠΉΡΡΠ²Ρ.
Π Π½Π΅ΠΏΠΎΠ»Π°Π΄ΠΊΠ°ΠΌ, ΠΊΠΎΡΠΎΡΡΠ΅ ΡΡΡΡΠ°Π½ΡΡΡΡΡ ΡΠ°ΠΌΠΎΡΡΠΎΡΡΠ΅Π»ΡΠ½ΠΎ ΠΌΠΎΠΆΠ½ΠΎ ΠΎΡΠ½Π΅ΡΡΠΈ Π½Π°ΡΡΡΠ΅Π½ΠΈΠ΅ ΡΠΊΠΎΡΠΎΡΡΠΈ Π·Π°ΠΊΡΡΠ²Π°Π½ΠΈΡ ΠΈ Π΄ΠΎΠ²ΠΎΠ΄ΠΊΠΈ. ΠΠ°Π½Π½ΡΠ΅ Π½Π°ΡΡΡΠ΅Π½ΠΈΡ ΡΡΡΡΠ°Π½ΡΡΡΡΡ ΡΠ΅Π³ΡΠ»ΠΈΡΠΎΠ²ΠΊΠΎΠΉ ΡΠΎΠΎΡΠ²Π΅ΡΡΡΠ²ΡΡΡΠΈΡ Π²ΠΈΠ½ΡΠΎΠ², Π½ΠΎ ΠΏΠΎΠΌΠ½ΠΈΡΠ΅, ΠΈΠ·ΠΌΠ΅Π½Π΅Π½ΠΈΠ΅ ΠΏΠΎΠ»ΠΎΠΆΠ΅Π½ΠΈΡ ΡΠ΅Π³ΡΠ»ΠΈΡΠΎΠ²ΠΎΡΠ½ΡΡ Π²ΠΈΠ½ΡΠΎΠ² Π±ΠΎΠ»Π΅Π΅ ΡΠ΅ΠΌ Π½Π° Π΄Π²Π° ΠΎΠ±ΠΎΡΠΎΡΠ° ΠΎΡ Π½Π°ΡΠ°Π»ΡΠ½ΠΎΠ³ΠΎ ΠΏΠΎΠ»ΠΎΠΆΠ΅Π½ΠΈΡ Π½Π΅ Π΄ΠΎΠΏΡΡΠΊΠ°Π΅ΡΡΡ. Π, ΠΊΠ°ΠΊ Π³ΠΎΠ²ΠΎΡΠΈΠ»ΠΎΡΡ ΡΠ°Π½ΡΡΠ΅, Π² ΡΠ»ΡΡΠ°Π΅ ΡΡΠ΅ΡΠΊΠΈ Π³ΠΈΠ΄ΡΠ°Π²Π»ΠΈΡΠ΅ΡΠΊΠΎΠΉ ΠΆΠΈΠ΄ΠΊΠΎΡΡΠΈ ΡΠ΅ΠΌΠΎΠ½Ρ Π΄ΠΎΠ²ΠΎΠ΄ΡΠΈΠΊΠ° Π΄Π²Π΅ΡΠΈ ΠΏΡΠ°ΠΊΡΠΈΡΠ΅ΡΠΊΠΈ Π½Π΅Π²ΠΎΠ·ΠΌΠΎΠΆΠ΅Π½.
Π‘ΠΈΠ»Π° Π½Π°ΡΡΠΆΠ΅Π½ΠΈΡ ΠΏΡΡΠΆΠΈΠ½Ρ ΡΠ΅Π³ΡΠ»ΠΈΡΡΠ΅ΡΡΡ ΡΠΎΠΎΡΠ²Π΅ΡΡΡΠ²ΡΡΡΠ΅ΠΉ Π³Π°ΠΉΠΊΠΎΠΉ.
ΠΠ· Π²ΡΠ΅Π³ΠΎ Π²ΡΡΠ΅ΡΠΊΠ°Π·Π°Π½Π½ΠΎΠ³ΠΎ ΠΌΠΎΠΆΠ½ΠΎ ΡΠ΄Π΅Π»Π°ΡΡ Π²ΡΠ²ΠΎΠ΄ β ΡΠΎΠ±Π»ΡΠ΄Π°ΠΉΡΠ΅ ΠΏΡΠ°Π²ΠΈΠ»Π° ΡΠΊΡΠΏΠ»ΡΠ°ΡΠ°ΡΠΈΠΈ Π΄Π²Π΅ΡΠ½ΠΎΠ³ΠΎ Π΄ΠΎΠ²ΠΎΠ΄ΡΠΈΠΊΠ°, ΠΏΠΎΠ΄Π±ΠΈΡΠ°ΠΉΡΠ΅ ΠΌΠΎΠ΄Π΅Π»Ρ Π² Π·Π°Π²ΠΈΡΠΈΠΌΠΎΡΡΠΈ ΠΎΡ Π²Π΅ΡΠ° Π΄Π²Π΅ΡΠ½ΠΎΠ³ΠΎ ΠΏΠΎΠ»ΠΎΡΠ½Π°, ΡΠΎΠ³Π΄Π° ΡΡΡΡΠΎΠΉΡΡΠ²ΠΎ Π±ΡΠ΄Π΅Ρ ΡΠ»ΡΠΆΠΈΡΡ Π½Π°Π΄Π΅ΠΆΠ½ΠΎ Π΄ΠΎΡΡΠ°ΡΠΎΡΠ½ΠΎ Π΄ΠΎΠ»Π³ΠΎ.
Π‘ΠΌΠΎΡΡΠΈΡΠ΅ ΡΠ°ΠΊΠΆΠ΅:
Π’ΠΎΠ½ΠΊΠΎΡΡΠΈ Π² ΠΎΡΡΠ΅ΠΊΠ»Π΅Π½ΠΈΠΈ Β«Ρ ΡΡΡΠ΅Π²ΡΠΊΠΈΡ Β» Π±Π°Π»ΠΊΠΎΠ½ΠΎΠ²
ΠΠ· ΡΠ΅Π³ΠΎ Π΄Π΅Π»Π°ΡΡ ΡΠ°ΡΡΠΎΡ?
Π‘ΡΠΎΠ»Π΅ΡΠ½ΠΈΡΡ ΠΈΠ· ΠΆΠΈΠ΄ΠΊΠΎΠ³ΠΎ ΠΊΠ°ΠΌΠ½Ρ
ΠΠ°ΠΌΠ΅Π½Π½Π°Ρ ΡΡΠΎΠ»Π΅ΡΠ½ΠΈΡΠ° Π΄Π»Ρ ΠΊΡΡ Π½ΠΈ
Π£Π³ΠΎΠ»ΠΎΠΊ Π½Π° ΠΊΡΡ Π½Ρ
ΠΠΈΠ²Π°Π½ Π΄Π»Ρ ΠΊΡΡ Π½ΠΈ: ΠΊΠ°ΠΊΡΡ ΠΌΠΎΠ΄Π΅Π»Ρ Π²ΡΠ±ΡΠ°ΡΡ
Π£ΡΡΡΠΎΠΉΡΡΠ²ΠΎ Π΄ΠΎΠ²ΠΎΠ΄ΡΠΈΠΊΠ° Π΄Π²Π΅ΡΠ΅ΠΉ. ΠΠΎΠ½ΡΡΡΡΠΊΡΠΈΡ Π΄Π²Π΅ΡΠ½ΡΡ Π΄ΠΎΠ²ΠΎΠ΄ΡΠΈΠΊΠΎΠ² Notedo
ΠΡΠ΅Π΄Π»Π°Π³Π°Π΅ΠΌΡΠ΅ Π½Π°ΡΠ΅ΠΉ ΠΊΠΎΠΌΠΏΠ°Π½ΠΈΠ΅ΠΉ Π΄Π²Π΅ΡΠ½ΡΠ΅ Π΄ΠΎΠ²ΠΎΠ΄ΡΠΈΠΊΠΈ NOTEDO ΠΎΡΠ²Π΅ΡΠ°ΡΡ ΡΡΠ΅Π±ΠΎΠ²Π°Π½ΠΈΡΠΌ ΡΡΠ½ΠΊΠ° Π² ΠΏΠ»Π°Π½Π΅ ΡΠ΅Ρ Π½ΠΈΡΠ΅ΡΠΊΠΎΠΉ ΠΎΡΠ½Π°ΡΠ΅Π½Π½ΠΎΡΡΠΈ, ΠΊΠ°ΡΠ΅ΡΡΠ²Π°, Π΄ΠΎΠ»Π³ΠΎΠ²Π΅ΡΠ½ΠΎΡΡΠΈ, ΡΠΈΡΠΎΠΊΠΎΠΉ ΠΌΠΎΠ΄Π΅Π»ΡΠ½ΠΎΠΉ Π»ΠΈΠ½Π΅ΠΉΠΊΠΈ ΠΈ ΠΏΠΎΠ²ΡΡΠ΅Π½Π½ΠΎΠΉ Π½Π°Π΄Π΅ΠΆΠ½ΠΎΡΡΠΈ. Π‘ΠΏΠ΅ΡΠΈΠ°Π»ΡΠ½Π°Ρ ΡΠ΅ΡΠΈΡ «ΠΠ΅Π³ΠΊΠΈΠΉ Ρ Π°ΡΠ°ΠΊΡΠ΅Ρ» ΠΏΠΎΠΌΠΈΠΌΠΎ Π²ΡΡΠ΅ΠΏΠ΅ΡΠ΅ΡΠΈΡΠ»Π΅Π½Π½ΡΡ Π΄ΠΎΡΡΠΎΠΈΠ½ΡΡΠ² ΠΎΡΠ»ΠΈΡΠ°Π΅ΡΡΡ Π΅ΡΠ΅ ΠΈ ΠΏΠΎΠ²ΡΡΠ΅Π½Π½ΠΎΠΉ ΡΡΡΠ΅ΠΊΡΠΈΠ²Π½ΠΎΡΡΡΡ.
Π ΠΎΡΠ½ΠΎΠ²Π΅ ΡΠ°Π±ΠΎΡΡ Π²ΡΠ΅Ρ
ΠΌΠΎΠ΄Π΅Π»Π΅ΠΉ Π΄ΠΎΠ²ΠΎΠ΄ΡΠΈΠΊΠΎΠ² Π»Π΅ΠΆΠΈΡ ΠΏΡΠΈΠ½ΡΠΈΠΏ ΠΌΠ΅Ρ
Π°Π½ΠΈΡΠ΅ΡΠΊΠΎΠ³ΠΎ ΡΠΆΠ°ΡΠΈΡ ΠΏΡΡΠΆΠΈΠ½Ρ Π² βΡΠ΅Π»Π΅β Π΄ΠΎΠ²ΠΎΠ΄ΡΠΈΠΊΠ° ΠΈΠ·-Π·Π° ΠΏΡΠΈΠ»ΠΎΠΆΠ΅Π½Π½ΠΎΠ³ΠΎ ΡΠ΅Π»ΠΎΠ²Π΅ΠΊΠΎΠΌ ΠΌΡΡΠΊΡΠ»ΡΠ½ΠΎΠ³ΠΎ ΡΡΠΈΠ»ΠΈΡ, ΠΊΠΎΡΠΎΡΡΠΌ ΠΎΠ½ ΠΎΡΠΊΡΡΠ²Π°Π΅Ρ Π΄Π²Π΅ΡΡ, ΠΈ ΠΌΠ°ΡΠ»ΡΠ½ΠΎΠ³ΠΎ Π΄Π΅ΠΌΠΏΡΠΈΡΠΎΠ²Π°Π½ΠΈΡ, ΠΎΠ±ΡΠ°ΡΠ½ΠΎΠ³ΠΎ Ρ
ΠΎΠ΄Π° ΠΏΡΡΠΆΠΈΠ½Ρ ΠΏΡΠΈ Π·Π°ΠΊΡΡΡΠΈΠΈ Π΄Π²Π΅ΡΠΈ.
Π ΡΡΠ΄Π΅ Π½Π°ΡΠΈΡ
Π΄ΠΎΠ²ΠΎΠ΄ΡΠΈΠΊΠΎΠ² ΡΡΡΠ°Π½ΠΎΠ²Π»Π΅Π½Ρ Π΄Π²ΠΎΠΉΠ½ΡΠ΅ ΠΏΡΡΠΆΠΈΠ½Ρ, Π±Π»Π°Π³ΠΎΠ΄Π°ΡΡ ΠΊΠΎΡΠΎΡΡΠΌ ΠΈ ΠΏΡΠΈ Π΄ΠΎΠ»ΠΆΠ½ΠΎΠΌ ΡΠ΅ΠΆΠΈΠΌΠ΅ ΡΠΊΡΠΏΠ»ΡΠ°ΡΠ°ΡΠΈΠΈ ΠΈ Π³ΡΠ°ΠΌΠΎΡΠ½ΠΎΠΉ ΡΡΡΠ°Π½ΠΎΠ²ΠΊΠ΅ Π΄ΠΎΠ²ΠΎΠ΄ΡΠΈΠΊΠ° Π½Π° Π΄Π²Π΅ΡΡ, ΠΌΡ Π³Π°ΡΠ°Π½ΡΠΈΡΡΠ΅ΠΌ ΠΌΠ½ΠΎΠ³ΠΎΠ»Π΅ΡΠ½Π΅Π΅ ΡΠΎΡ
ΡΠ°Π½Π΅Π½ΠΈΠ΅ Π΄ΠΈΠ½Π°ΠΌΠΈΡΠ΅ΡΠΊΠΈΡ
Ρ
Π°ΡΠ°ΠΊΡΠ΅ΡΠΈΡΡΠΈΠΊ Π½Π°ΡΠ΅ΠΉ ΠΏΡΠΎΠ΄ΡΠΊΡΠΈΠΈ.
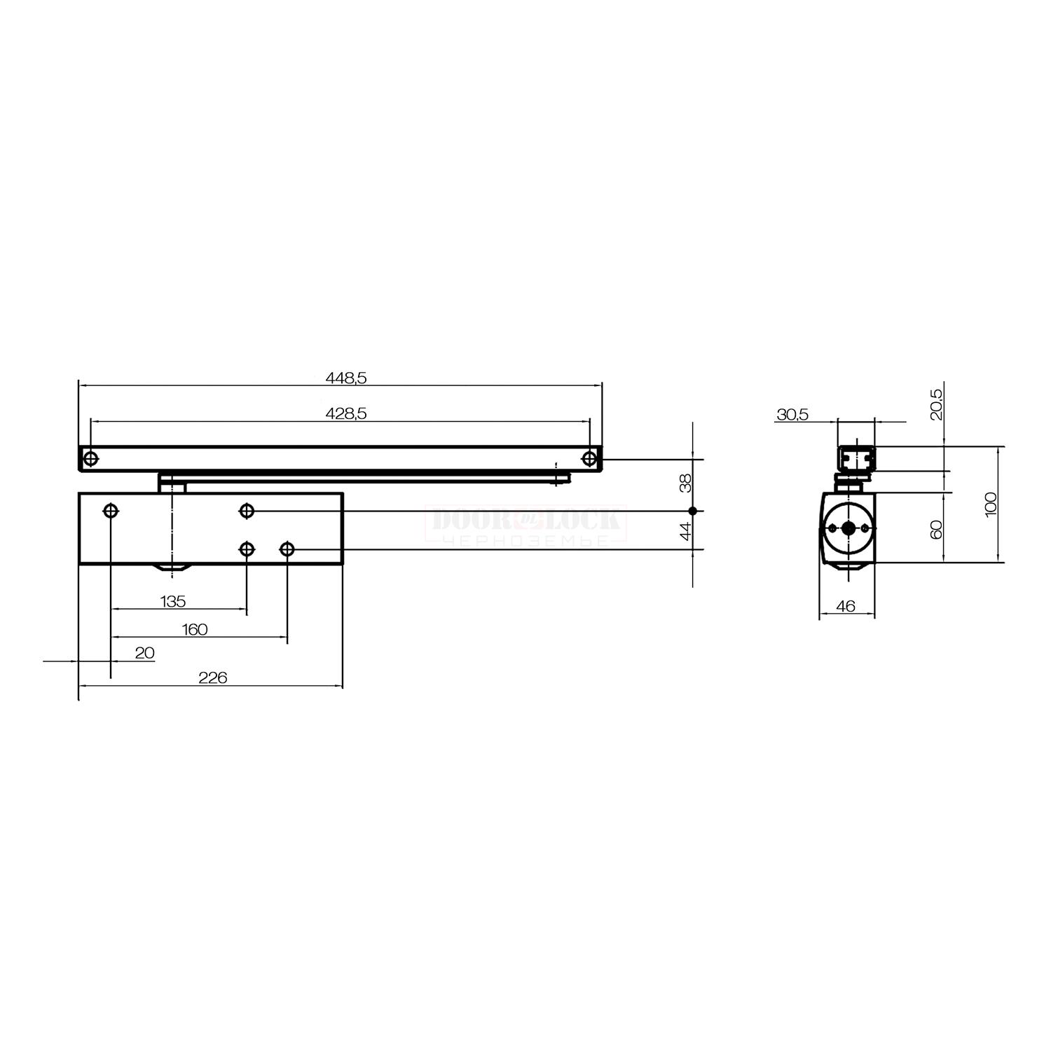
ΠΠΈΠ½Π΅ΠΌΠ°ΡΠΈΡΠ΅ΡΠΊΠ°Ρ ΡΡ Π΅ΠΌΠ° ΡΡΡΡΠΎΠΉΡΡΠ²Π° Π΄ΠΎΠ²ΠΎΠ΄ΡΠΈΠΊΠ°
Π‘ ΡΠ΅Ρ Π½ΠΈΡΠ΅ΡΠΊΠΎΠΉ ΡΠΎΡΠΊΠΈ Π·ΡΠ΅Π½ΠΈΡ, ΡΡΠΎ ΠΌΠ°ΠΊΡΠΈΠΌΠ°Π»ΡΠ½ΠΎ ΠΎΠΏΡΠΈΠΌΠ°Π»ΡΠ½ΡΠΉ Π²Π°ΡΠΈΠ°Π½Ρ, ΠΊΠΎΠ³Π΄Π° ΡΡΡΠ°Π³ ΠΎΠ΄Π½ΠΈΠΌ ΠΊΠΎΠ½ΡΠΎΠ² ΡΠΎΠ΅Π΄ΠΈΠ½Π΅Π½ Ρ βΡΡΠΆΠ΅ΠΌβ, Π° Π΄ΡΡΠ³ΠΈΠΌ ΡΠΎΠ΅Π΄ΠΈΠ½Π΅Π½ Ρ Π³Π»Π°Π²Π½ΠΎΠΉ ΠΎΡΡΡ Π΄ΠΎΠ²ΠΎΠ΄ΡΠΈΠΊΠ°, ΠΊΠΎΡΠΎΡΡΠΉ ΠΏΠ΅ΡΠ΅Π΄Π°Π΅Ρ Π΅ΠΌΡ Π²ΡΠ°ΡΠ°ΡΠ΅Π»ΡΠ½ΡΠΉ ΠΌΠΎΠΌΠ΅Π½Ρ Π. ΠΡΠΎ ΡΠ°ΠΌΠΎΠ΅ Π²ΡΠ³ΠΎΠ΄Π½ΠΎΠ΅ Ρ ΡΠΎΡΠΊΠΈ Π·ΡΠ΅Π½ΠΈΡ ΠΠΠ ΡΠ΅ΡΠ΅Π½ΠΈΠ΅: ΠΌΠ°ΠΊΡΠΈΠΌΠ°Π»ΡΠ½ΠΎΠ΅ ΡΡΠ³ΠΎΠ²ΠΎΠ΅ ΡΡΠΈΠ»ΠΈΠ΅ F3 Π² ΡΠ°Π·Π΅ βΠ΄ΠΎΠ²ΠΎΠ΄ΠΊΠΈβ Π΄Π²Π΅ΡΠΈ (ΠΊΠΎΠ³Π΄Π° Π΄Π²Π΅ΡΡ ΠΏΠΎΡΡΠΈ Π·Π°ΠΊΡΡΡΠ°).
ΠΠΎΠΌΠ΅Π½Ρ Π²ΡΠ°ΡΠ΅Π½ΠΈΡ Π Π³Π»Π°Π²Π½Π°Ρ ΠΎΡΡ Π΄ΠΎΠ²ΠΎΠ΄ΡΠΈΠΊΠ° ΠΏΠΎΠ»ΡΡΠ°Π΅Ρ ΠΎΡ Π·ΡΠ±ΡΠ°ΡΠΎΠΉ ΠΏΠ΅ΡΠ΅Π΄Π°ΡΠΈ ΠΏΠΎΡΡΠ½Ρ, ΠΊΠΎΡΠΎΡΡΠΉ ΠΏΠΎΠ΄ Π΄Π΅ΠΉΡΡΠ²ΠΈΠ΅ΠΌ ΡΠΆΠ°ΡΠΎΠΉ ΠΏΡΡΠΆΠΈΠ½Ρ ΠΏΠ΅ΡΠ΅ΠΌΠ΅ΡΠ°Π΅ΡΡΡ ΠΏΠΎΡΡΡΠΏΠ°ΡΠ΅Π»ΡΠ½ΠΎ Π² ΡΠΈΠ»ΠΈΠ½Π΄ΡΠ΅, Π½Π°Ρ ΠΎΠ΄ΡΡΠ΅ΠΌΡΡ Π² ΡΠ΅Π½ΡΡΠ΅ Π΄ΠΎΠ²ΠΎΠ΄ΡΠΈΠΊΠ°. ΠΠΎΠ³Π΄Π° ΠΆΠ΅ ΡΠ΅Π»ΠΎΠ²Π΅ΠΊ ΠΎΡΠΊΡΡΠ²Π°Π΅Ρ Π΄Π²Π΅ΡΡ, ΡΠΎ ΠΏΠΎΡΡΠ΅Π½Ρ Π΄Π²ΠΈΠΆΠ΅ΡΡΡ Π² ΠΎΠ±ΡΠ°ΡΠ½ΠΎΠΌ Π½Π°ΠΏΡΠ°Π²Π»Π΅Π½ΠΈΠΈ.
ΠΠ°ΠΈΠ±ΠΎΠ»Π΅Π΅ Π½Π°ΠΏΡΡΠΆΠ΅Π½Π½ΠΎΠ΅ ΠΈ ΠΏΠΎΠ΄Π²Π΅ΡΠΆΠ΅Π½Π½ΠΎΠ΅ ΡΠ΅ΡΡΠ΅Π·Π½ΡΠΌ ΡΡΠΈΠΊΡΠΈΠΎΠ½Π½ΡΠΌ Π½Π°Π³ΡΡΠ·ΠΊΠ°ΠΌ ΠΌΠ΅ΡΡΠΎ β ΡΡΠΎ ΠΏΠΎΠ΄ΡΠΈΠΏΠ½ΠΈΠΊΠΈ ΡΠΊΠΎΠ»ΡΠΆΠ΅Π½ΠΈΡ ΠΌΠ΅ΠΆΠ΄Ρ Π³Π»Π°Π²Π½ΠΎΠΉ ΠΎΡΡΡ ΠΈ ΠΊΠΎΡΠΏΡΡΠΎΠΌ Π΄ΠΎΠ²ΠΎΠ΄ΡΠΈΠΊΠ°. ΠΡΠΈ ΡΠ°Π·ΡΠ°Π±ΠΎΡΠΊΠ΅ ΠΈ ΡΡΠΎΠ²Π΅ΡΡΠ΅Π½ΡΡΠ²ΠΎΠ²Π°Π½ΠΈΠΈ Π΄ΠΎΠ²ΠΎΠ΄ΡΠΈΠΊΠ° ΠΌΡ ΡΠ΄Π΅Π»ΡΠ΅ΠΌ ΡΡΠΎΠΌΡ ΠΌΠΎΠΌΠ΅Π½ΡΡ ΠΏΠΎΠ²ΡΡΠ΅Π½Π½ΠΎΠ΅ Π²Π½ΠΈΠΌΠ°Π½ΠΈΠ΅.
Π‘ΡΠΎΠΈΡ ΠΎΡΠΌΠ΅ΡΠΈΡΡ, ΡΡΠΎ ΡΠ΅ΠΌΠΏΠ΅ΡΠ°ΡΡΡΠ½ΡΠ΅ ΠΊΠΎΡΡΡΠΈΡΠΈΠ΅Π½ΡΡ Π»ΠΈΠ½Π΅ΠΉΠ½ΠΎΠ³ΠΎ ΡΠ°ΡΡΠΈΡΠ΅Π½ΠΈΡ ΠΌΠ°ΡΠ΅ΡΠΈΠ°Π»ΠΎΠ² ΡΠ΅Π»Π° ΠΈ ΠΏΠΎΡΡΠ½Ρ Π΄ΠΎΠ²ΠΎΠ΄ΡΠΈΠΊΠ° ΡΠ°Π·Π½ΡΡΡΡ, Π·Π°Π·ΠΎΡ 0,05 β 0,08 ΠΌΠΌ ΠΎΠ±Π΅ΡΠΏΠ΅ΡΠΈΠ²Π°Π΅Ρ ΡΠ΅ΡΠΊΡΡ ΡΠ°Π±ΠΎΡΡ ΠΌΠ΅Ρ Π°Π½ΠΈΠ·ΠΌΠ° (ΠΎΡΡΡΡΡΡΠ²ΠΈΠ΅ ΡΡΡΠ΅ΠΊΡΠ° «Π·Π°ΠΊΠ»ΠΈΠ½ΠΈΠ²Π°Π½ΠΈΡ») ΠΏΡΠΈ ΠΈΠ·ΠΌΠ΅Π½Π΅Π½ΠΈΠΈ ΡΠ΅ΠΌΠΏΠ΅ΡΠ°ΡΡΡΡ ΡΠ°Π±ΠΎΡΠ΅ΠΉ ΡΡΠ΅Π΄Ρ.
Π‘ΠΈΡΡΠ΅ΠΌΠ° «ΡΠ°ΠΌΠΎΠΎΡΠΈΡΡΠΊΠΈ»
ΠΠ»Ρ ΡΠ²Π΅Π»ΠΈΡΠ΅Π½ΠΈΡ ΡΡΠΎΠΊΠ° ΡΠ»ΡΠΆΠ±Ρ ΠΈ ΡΠ»ΡΡΡΠ΅Π½ΠΈΡ ΠΠΠ, ΠΌΡ ΠΏΡΠΈΠΌΠ΅Π½ΡΠ΅ΠΌ Π² Π½Π°ΡΠΈΡ Π΄ΠΎΠ²ΠΎΠ΄ΡΠΈΠΊΠ°Ρ ΡΠΈΡΡΠ΅ΠΌΡ βΡΠ°ΠΌΠΎΠΎΡΠΈΡΡΠΊΠΈβ Ρ ΠΏΠΎΠΌΠΎΡΡΡ ΡΠΏΠ΅ΡΠΈΠ°Π»ΡΠ½ΠΎΠ³ΠΎ ΡΠ΅ΡΡΠ°ΡΠΎΠ³ΠΎ ΡΠΈΠ»ΡΡΡΠ° ΡΠ΅Π½ΡΡΠ°Π»ΡΠ½ΠΎΠ³ΠΎ ΠΊΠ»Π°ΠΏΠ°Π½Π° ΠΏΠΎΡΡΠ½Ρ, ΡΠ΅ΡΠ΅Π· ΠΊΠΎΡΠΎΡΡΠΉ ΠΏΡΠΈ ΠΊΠ°ΠΆΠ΄ΠΎΠΌ ΡΠΈΠΊΠ»Π΅ ΠΎΡΠΊΡΡΡΠΈΡ-Π·Π°ΠΊΡΡΡΠΈΡ ΠΏΡΠΎΡ ΠΎΠ΄ΠΈΡ ΠΌΠ°ΡΠ»ΠΎ. ΠΡΠΎ ΠΏΡΠΎΡΡΠΎΠ΅ ΡΠ΅Ρ Π½ΠΈΡΠ΅ΡΠΊΠΎΠ΅ ΡΠ΅ΡΠ΅Π½ΠΈΠ΅ ΡΡΡΠ΅ΡΡΠ²Π΅Π½Π½ΠΎ ΠΏΡΠΎΠ΄Π»Π΅Π²Π°Π΅Ρ ΡΠ°Π±ΠΎΡΠΈΠΉ ΡΠ΅ΡΡΡΡ Π΄ΠΎΠ²ΠΎΠ΄ΡΠΈΠΊΠ°.
ΠΠ²ΠΎΠΉΠ½ΠΎΠ΅ ΡΠΏΠ»ΠΎΡΠ½Π΅Π½ΠΈΠ΅ Π²ΠΈΠ½ΡΠΎΠ² ΡΠ΅Π³ΡΠ»ΠΈΡΠΎΠ²ΠΊΠΈ
ΠΠΎΠ³Π΄Π° Π΄ΠΎΠ²ΠΎΠ΄ΡΠΈΠΊ Π²ΡΡΡΠΏΠ°Π΅Ρ Π² ΡΠ°Π·Ρ Π·Π°ΠΊΡΡΡΠΈΡ, ΡΠΎ ΠΏΡΡΠΆΠΈΠ½Π° ΠΎΡΡΡΠ΅ΡΡΠ²Π»ΡΠ΅Ρ Π΄Π°Π²Π»Π΅Π½ΠΈΠ΅ Π½Π° ΠΏΠΎΡΡΠ΅Π½Ρ (Π΅Π³ΠΎ ΡΠ΅Π½ΡΡΠ°Π»ΡΠ½ΡΠΉ ΡΠ°ΡΠΈΠΊΠΎΠ²ΡΠΉ ΠΊΠ»Π°ΠΏΠ°Π½ Π² ΡΡΠΎΡ ΠΌΠΎΠΌΠ΅Π½Ρ Π·Π°ΠΊΡΡΡ) ΠΈ ΠΏΠΎΠ΄ Π²ΡΡΠΎΠΊΠΈΠΌ Π΄Π°Π²Π»Π΅Π½ΠΈΠ΅ΠΌ ΠΏΡΠΎΠ³ΠΎΠ½ΡΠ΅Ρ ΠΌΠ°ΡΠ»ΠΎ ΡΠ΅ΡΠ΅Π· ΡΠ΅Π³ΡΠ»ΠΈΡΡΠ΅ΠΌΡΠ΅ Π΄ΠΎΠ·ΠΈΡΡΡΡΠΈΠ΅ ΡΠΈΡΡΠ΅ΠΌΡ, ΠΊΠΎΡΠΎΡΡΠ΅, Ρ ΠΏΠΎΠΌΠΎΡΡΡ Π²ΠΈΠ½ΡΠΎΠ² ΡΠ΅Π³ΡΠ»ΠΈΡΠΎΠ²ΠΊΠΈ, ΠΈ ΠΏΠΎΠ·Π²ΠΎΠ»ΡΡΡ Π½Π°ΠΌ Π½Π°ΡΡΡΠΎΠΈΡΡ ΠΆΠ΅Π»Π°Π΅ΠΌΡΡ ΡΠΊΠΎΡΠΎΡΡΡ Π·Π°ΠΊΡΡΡΠΈΡ ΠΈ Π΄ΠΎΠ²ΠΎΠ΄ΠΊΠΈ Π΄Π²Π΅ΡΠΈ.
Π Π΄ΠΎΠ²ΠΎΠ΄ΡΠΈΠΊΠ°Ρ
NOTEDO ΠΈΡΠΏΠΎΠ»ΡΠ·ΡΠ΅ΡΡΡ Π΄Π²ΠΎΠΉΠ½ΠΎΠ΅ ΡΠΏΠ»ΠΎΡΠ½Π΅Π½ΠΈΠ΅ Π²ΠΈΠ½ΡΠΎΠ² ΡΠ΅Π³ΡΠ»ΠΈΡΠΎΠ²ΠΊΠΈ, ΡΡΠΎ Π΄Π°Π΅Ρ Π²ΡΡΠΎΠΊΡΡ Π½Π°Π΄Π΅ΠΆΠ½ΠΎΡΡΡ Π΄Π°Π½Π½ΠΎΠ³ΠΎ ΡΠ·Π»Π° ΠΈ, ΠΎΠΏΡΡΡ ΠΆΠ΅, Π΄Π΅Π»Π°Π΅Ρ Π½Π°ΡΠΈ Π΄ΠΎΠ²ΠΎΠ΄ΡΠΈΠΊΠΈ Π±ΠΎΠ»Π΅Π΅ Π΄ΠΎΠ»Π³ΠΎΠ²Π΅ΡΠ½ΡΠΌΠΈ.
ΠΠΈΠ·ΠΊΠΎΡΠ΅ΠΌΠΏΠ΅ΡΠ°ΡΡΡΠ½ΠΎΠ΅ ΠΌΠ°ΡΠ»ΠΎ Π΄Π»Ρ ΡΠΎΡΡΠΈΠΉΡΠΊΠΈΡ Π·ΠΈΠΌ
ΠΠ»Ρ Π±Π΅Π·ΠΎΡΠΊΠ°Π·Π½ΠΎΠΉ ΡΠ°Π±ΠΎΡΡ Π΄ΠΎΠ²ΠΎΠ΄ΡΠΈΠΊΠ° Π² ΡΡΠ»ΠΎΠ²ΠΈΡΡ ΡΠΎΡΡΠΈΠΉΡΠΊΠΈΡ Π·ΠΈΠΌ, ΠΌΡ ΠΈΡΠΏΠΎΠ»ΡΠ·ΡΠ΅ΠΌ ΠΊΠ°ΡΠ΅ΡΡΠ²Π΅Π½Π½ΠΎΠ΅ Π½ΠΈΠ·ΠΊΠΎΡΠ΅ΠΌΠΏΠ΅ΡΠ°ΡΡΡΠ½ΠΎΠ΅ ΠΌΠ°ΡΠ»ΠΎ, ΠΎΠ±Π΅ΡΠΏΠ΅ΡΠΈΠ²Π°ΡΡΠ΅Π΅ ΡΡΠ°ΡΠ½ΠΎΠ΅ Π·Π°ΠΊΡΡΠ²Π°Π½ΠΈΠ΅ Π΄Π²Π΅ΡΠΈ ΠΏΡΠΈ β35Β°Π‘. Π‘ΡΠΎΠΈΡ ΡΠ°ΠΊΠΆΠ΅ Π½Π°ΠΏΠΎΠΌΠ½ΠΈΡΡ, ΡΡΠΎ ΡΡΠΎ Π½Π΅ ΠΎΡΠΌΠ΅Π½ΡΠ΅Ρ Π½Π΅ΠΎΠ±Ρ ΠΎΠ΄ΠΈΠΌΠΎΡΡΡ Π² ΡΠ΅Π³ΡΠ»ΠΈΡΠΎΠ²ΠΊΠ΅ Π΄ΠΎΠ²ΠΎΠ΄ΡΠΈΠΊΠΎΠ² Π½Π° ΡΡΠΈΠ»ΠΈΠ΅ Π·Π°ΠΊΡΡΠ²Π°Π½ΠΈΡ-Π΄ΠΎΠ²ΠΎΠ΄ΠΊΠΈ ΠΏΡΠΈ ΡΠ΅Π·ΠΊΠΈΡ ΡΠ΅ΠΌΠΏΠ΅ΡΠ°ΡΡΡΠ½ΡΡ ΡΠΊΠ°ΡΠΊΠ°Ρ ΠΈΠ·-Π·Π° ΠΈΠ·ΠΌΠ΅Π½Π΅Π½ΠΈΡ Π²ΡΠ·ΠΊΠΎΡΡΠΈ ΠΌΠ°ΡΠ»Π°.
Π‘ΠΎΡΡΠ°Π²Π½ΡΠ΅ ΡΠ»Π΅ΠΌΠ΅Π½ΡΡ ΠΊΠΎΠ½ΡΡΡΡΠΊΡΠΈΠΈ
Π£ΡΠΈΠ»Π΅Π½Π½ΡΠ΅ ΠΈ Π»Π΅Π³ΠΊΠΎΡΠ°Π·Π±ΠΎΡΠ½ΡΠ΅ ΡΠ°ΡΠ½ΠΈΡΡ
ΠΡΠ΅ Π΄ΠΎΠ²ΠΎΠ΄ΡΠΈΠΊΠΈ NOTEDO ΠΏΡΠΎΠΈΠ·Π²Π΅Π΄Π΅Π½Ρ Ρ ΡΡΠΈΠ»Π΅Π½Π½ΡΠΌΠΈ ΠΈ Π»Π΅Π³ΠΊΠΎΡΠ°Π·Π±ΠΎΡΠ½ΡΠΌΠΈ ΡΠ°ΡΠ½ΠΈΡΠ°ΠΌΠΈ.
ΠΡΠΎΡΠ½ΡΠ΅ ΡΡΡΠ°Π³ΠΈ NOTEDO ΠΌΠΎΠ³ΡΡ ΡΠ°Π±ΠΎΡΠ°ΡΡ Π½Π΅ΠΎΠ³ΡΠ°Π½ΠΈΡΠ΅Π½Π½ΠΎ Π΄ΠΎΠ»Π³ΠΎ ΠΏΡΠΈ Π½Π°Π΄Π΅ΠΆΠ½ΠΎΠΌ ΡΠΎΠ΅Π΄ΠΈΠ½Π΅Π½ΠΈΠΈ Ρ ΠΎΡΡΡ Π΄ΠΎΠ²ΠΎΠ΄ΡΠΈΠΊΠ°. ΠΡΠΈ ΡΠΊΡΡΡΠ΅ΠΌΠ°Π»ΡΠ½ΠΎΠΌ Π·Π°ΠΊΡΡΡΠΈΠΈ-ΠΎΡΠΊΡΡΡΠΈΠΈ Π΄Π²Π΅ΡΠΈ (ΡΠΈΠ»ΡΠ½ΡΠΉ ΡΠ΄Π°Ρ, ΡΡΠ²ΠΎΠΊ, ΡΠ΅Π·ΠΊΠΎΠ΅ Π΄Π΅ΡΠ³Π°Π½ΠΈΠ΅) ΡΠ²Π΅ΡΡ Π½Π°Π³ΡΡΠ·ΠΊΠ΅ ΠΌΠΎΠΆΠ΅Ρ ΠΏΠΎΠ΄Π²Π΅ΡΠ³Π°ΡΡΡΡ Π·ΡΠ±ΡΠ°ΡΠΎΠ΅ ΡΠΎΠ΅Π΄ΠΈΠ½Π΅Π½ΠΈΠ΅ ΠΏΠΎΡΡΠ½Ρ ΠΈ ΠΎΡΠΈ. Π ΡΡΠΎΠΌ ΡΠ»ΡΡΠ°Π΅ ΠΊΠΎΠ½ΡΡΡΡΠΊΡΠΈΠ²Π½ΠΎ ΠΏΡΠ΅Π΄ΡΡΠΌΠΎΡΡΠ΅Π½ Π²ΡΡ ΠΎΠ΄ ΠΈΠ· ΡΡΡΠΎΡ Π»ΠΈΡΡ ΠΏΠΎΡΠ°Π΄ΠΎΡΠ½ΠΎΠ³ΠΎ ΠΎΡΠ²Π΅ΡΡΡΠΈΡ ΡΡΡΠ°Π³Π°, ΡΡΠΎ Π½Π΅ ΠΏΠΎΠ²Π»Π΅ΡΠ΅Ρ Π·Π° ΡΠΎΠ±ΠΎΠΉ ΡΠ°Π·ΡΡΡΠ΅Π½ΠΈΠ΅ Π²Π½ΡΡΡΠ΅Π½Π½Π΅Π³ΠΎ ΠΌΠ΅Ρ Π°Π½ΠΈΠ·ΠΌΠ°. ΠΠ»Ρ Π΄Π°Π»ΡΠ½Π΅ΠΉΡΠ΅ΠΉ ΡΠ°Π±ΠΎΡΡ ΠΠ°ΠΌ Π½Π΅ΠΎΠ±Ρ ΠΎΠ΄ΠΈΠΌΠΎ ΡΠΎΠ»ΡΠΊΠΎ Π·Π°ΠΌΠ΅Π½ΠΈΡΡ ΡΡΡΠ°Π³.
ΠΠ½ΡΠΈΠΊΠΎΡΡΠΎΠ·ΠΈΠΎΠ½Π½ΡΠΉ ΠΊΠΎΡΠΏΡΡ Π² 8-ΠΌΠΈ ΡΠ²Π΅ΡΠ°Ρ
ΠΠΎΡΠΏΡΡ Π΄ΠΎΠ²ΠΎΠ΄ΡΠΈΠΊΠΎΠ² NOTEDO ΠΎΡΠ»ΠΈΡ Π½Π° ΡΠΎΠ²ΡΠ΅ΠΌΠ΅Π½Π½ΠΎΠΌ ΠΎΠ±ΠΎΡΡΠ΄ΠΎΠ²Π°Π½ΠΈΠΈ, ΠΊΠ°ΡΠ΅ΡΡΠ²Π΅Π½Π½ΠΎ ΠΎΠ±ΡΠ°Π±ΠΎΡΠ°Π½ ΠΈ Π½Π΅ ΠΏΠΎΠ΄Π²Π΅ΡΠΆΠ΅Π½ ΠΊΠΎΡΡΠΎΠ·ΠΈΠΈ.
ΠΠΎΠ²ΠΎΠ΄ΡΠΈΠΊΠΈ ΠΈΠΌΠ΅ΡΡ ΠΏΡΠΎΡΠ½ΠΎΠ΅ Π²Π½Π΅ΡΠ½Π΅Π΅ ΠΏΠΎΠΊΡΡΡΠΈΠ΅ ΠΈ ΠΏΡΠ΅Π΄Π»Π°Π³Π°ΡΡ Π½Π° Π²ΡΠ±ΠΎΡ Π΄ΠΎ 8 ΡΠ²Π΅ΡΠΎΠ² (Π±Π΅Π»ΡΠΉ, ΡΠ΅ΡΡΠΉ, ΡΠ΅ΡΠ΅Π±ΡΡΠ½ΡΠΉ, ΡΠ΅ΡΠ½ΡΠΉ, Π·ΠΎΠ»ΠΎΡΠΎΠΉ, Π±ΡΠΎΠ½Π·ΠΎΠ²ΡΠΉ, ΠΊΠΎΡΠΈΡΠ½Π΅Π²ΡΠΉ ΠΈ Π±Π΅ΠΆΠ΅Π²ΡΠΉ).
Π’Π°ΠΊΠΈΠΌ ΠΎΠ±ΡΠ°Π·ΠΎΠΌ, Π²ΡΠ΅ Π²ΡΡΠ΅ΡΠΏΠΎΠΌΡΠ½ΡΡΡΠ΅ ΠΊΠΎΠ½ΡΡΡΡΠΊΡΠΈΠ²Π½ΠΎ-ΡΠ΅Ρ Π½ΠΎΠ»ΠΎΠ³ΠΈΡΠ΅ΡΠΊΠΈΠ΅ ΡΠ΅ΡΠ΅Π½ΠΈΡ ΠΏΠΎΠ·Π²ΠΎΠ»ΡΡΡ NOTEDO ΠΏΡΠ΅Π΄Π»ΠΎΠΆΠΈΡΡ ΠΏΠΎΡΡΠ΅Π±ΠΈΡΠ΅Π»ΡΠΌ ΡΠΏΠ΅ΡΠΈΠ°Π»ΡΠ½ΠΎ Π°Π΄Π°ΠΏΡΠΈΡΠΎΠ²Π°Π½Π½ΡΡ ΠΊ ΡΠΎΡΡΠΈΠΉΡΠΊΠΈΠΌ ΡΡΠ»ΠΎΠ²ΠΈΡΠΌ ΡΠΊΠΎΠ½ΠΎΠΌΠΈΡΠ½ΡΡ ΡΠ΅ΡΠΈΡ Π΄Π²Π΅ΡΠ½ΡΡ Π΄ΠΎΠ²ΠΎΠ΄ΡΠΈΠΊΠΎΠ² DC (Π±Π΅ΡΠΊΠΎΠΌΠΏΡΠΎΠΌΠΈΡΡΠ½ΠΎΠ΅ ΡΠΎΠΎΡΠ½ΠΎΡΠ΅Π½ΠΈΠ΅ ΡΠ΅Π½Π°/ΠΊΠ°ΡΠ΅ΡΡΠ²ΠΎ, ΡΠ²Π΅Π»ΠΈΡΠ΅Π½Π½ΡΠΉ Π΄ΠΎ 10 Π»Π΅Ρ ΡΡΠΎΠΊ ΡΠ»ΡΠΆΠ±Ρ) ΠΈ Π½ΠΎΠ²Π΅ΠΉΡΡΡ ΡΠ΅ΡΠΈΡ «ΠΠ΅Π³ΠΊΠΈΠΉ Ρ Π°ΡΠ°ΠΊΡΠ΅Ρ«, ΠΎΡΠ»ΠΈΡΠ°ΡΡΡΡΡΡ ΠΏΠ»Π°Π²Π½ΠΎΡΡΡΡ Ρ ΠΎΠ΄Π°, Π²ΡΡΠΎΠΊΠΈΠΌ ΠΠΠ ΠΈ ΡΠ²Π΅Π»ΠΈΡΠ΅Π½Π½ΠΎΠΉ Π΄Π²ΡΡ Π»Π΅ΡΠ½Π΅ΠΉ Π³Π°ΡΠ°Π½ΡΠΈΠ΅ΠΉ.
ΠΠ°ΠΊ ΡΠ°Π±ΠΎΡΠ°Π΅Ρ Π΄Π²Π΅ΡΠ½ΠΎΠΉ Π΄ΠΎΠ²ΠΎΠ΄ΡΠΈΠΊ — ΠΠ½ΠΆΠ΅Π½Π΅Ρ ΠΠ’Π
ΠΠΎΠ²ΠΎΠ΄ΡΠΈΠΊ Π΄Π²Π΅ΡΠ½ΠΎΠΉ β ΠΌΠ΅Ρ
Π°Π½ΠΈΠ·ΠΌ, ΠΊΠΎΡΠΎΡΡΠΉ ΠΏΠΎΠ·Π²ΠΎΠ»ΡΠ΅Ρ ΡΠ½ΠΈΠ·ΠΈΡΡ ΡΠ΅ΠΏΠ»ΠΎΠΏΠΎΡΠ΅ΡΠΈ ΠΏΠΎΠΌΠ΅ΡΠ΅Π½ΠΈΡ, Π²ΠΎΠ·Π½ΠΈΠΊΠ°ΡΡΠΈΠ΅ ΠΈΠ·-Π·Π° ΠΏΠΎΡΡΠΎΡΠ½Π½ΠΎ ΠΎΡΠΊΡΡΡΡΡ
Π΄Π²Π΅ΡΠ΅ΠΉ.
ΠΠ³ΠΎ ΠΏΡΠΈΠΌΠ΅Π½Π΅Π½ΠΈΠ΅ Π²ΠΎ ΠΌΠ½ΠΎΠ³ΠΈΡ
ΡΠ»ΡΡΠ°ΡΡ
ΠΏΡΠ΅Π΄ΠΎΡΠ²ΡΠ°ΡΠ°Π΅Ρ ΠΏΡΠΎΠ½ΠΈΠΊΠ½ΠΎΠ²Π΅Π½ΠΈΠ΅ ΠΏΠΎΡΡΠΎΡΠΎΠ½Π½ΠΈΡ
Π»ΠΈΡ Π² ΠΏΠΎΠΌΠ΅ΡΠ΅Π½ΠΈΡ, ΠΎΠ½ Π½Π΅Π·Π°ΠΌΠ΅Π½ΠΈΠΌ Π² ΡΠΈΡΡΠ΅ΠΌΠ°Ρ
Π΄ΠΈΡΡΠ°Π½ΡΠΈΠΎΠ½Π½ΠΎΠ³ΠΎ ΡΠΏΡΠ°Π²Π»Π΅Π½ΠΈΡ Π΄Π²Π΅ΡΡΠΌΠΈ, ΠΎΡΠ½ΠΎΠ²Π°Π½Π½ΡΡ
Π½Π° ΠΏΡΠΈΠΌΠ΅Π½Π΅Π½ΠΈΠΈ ΡΠ»Π΅ΠΊΡΡΠΎΠΌΠ°Π³Π½ΠΈΡΠ½ΡΡ
Π·Π°ΠΌΠΊΠΎΠ².
ΠΡΠ°Π²ΠΈΠ»ΡΠ½Π°Ρ, Π±Π΅Π·Π°Π²Π°ΡΠΈΠΉΠ½Π°Ρ ΡΠ°Π±ΠΎΡΠ° Π΄ΠΎΠ²ΠΎΠ΄ΡΠΈΠΊΠ° Π΄Π²Π΅ΡΠ΅ΠΉ, ΡΠ²Π»ΡΠ΅ΡΡΡ Π³Π°ΡΠ°Π½ΡΠΈΠ΅ΠΉ Π²Π°ΡΠ΅Π³ΠΎ ΠΊΠΎΠΌΡΠΎΡΡΠ° ΠΈ Π±Π΅Π·ΠΎΠΏΠ°ΡΠ½ΠΎΡΡΠΈ, Π° Π΄ΠΎΡΡΠΈΡΡ ΡΡΠΎ Π²ΠΎΠ·ΠΌΠΎΠΆΠ½ΠΎ ΡΠΎΠ»ΡΠΊΠΎ ΠΏΡΠ°Π²ΠΈΠ»ΡΠ½ΠΎΠΉ ΡΡΡΠ°Π½ΠΎΠ²ΠΊΠΎΠΉ, ΡΠΎΠ±Π»ΡΠ΄Π΅Π½ΠΈΠ΅ΠΌ Π²ΡΠ΅Ρ ΡΠΊΡΠΏΠ»ΡΠ°ΡΠ°ΡΠΈΠΎΠ½Π½ΡΡ ΡΡΠ΅Π±ΠΎΠ²Π°Π½ΠΈΠΉ. Π ΠΏΡΠΎΡΠΈΠ²Π½ΠΎΠΌ ΡΠ»ΡΡΠ°Π΅ Π²ΠΎΠ·ΠΌΠΎΠΆΠ΅Π½ Π²ΡΡ ΠΎΠ΄ ΡΡΡΡΠΎΠΉΡΡΠ²Π° ΠΈΠ· ΡΡΡΠΎΡ. Π Π²ΠΎΠ·ΠΌΠΎΠΆΠ΅Π½ Π»ΠΈ ΡΠ΅ΠΌΠΎΠ½Ρ Π΄ΠΎΠ²ΠΎΠ΄ΡΠΈΠΊΠΎΠ² Π΄Π²Π΅ΡΠ΅ΠΉ?
ΠΠ°ΠΊ ΡΡΡΡΠΎΠ΅Π½ Π΄Π²Π΅ΡΠ½ΠΎΠΉ Π΄ΠΎΠ²ΠΎΠ΄ΡΠΈΠΊ?
Π§ΡΠΎΠ±Ρ Π·Π½Π°ΡΡ, ΠΊΠ°ΠΊ ΠΎΡΡΠ΅ΠΌΠΎΠ½ΡΠΈΡΠΎΠ²Π°ΡΡ Π΄ΠΎΠ²ΠΎΠ΄ΡΠΈΠΊ Π΄Π²Π΅ΡΠΈ Π½Π΅ΠΎΠ±Ρ ΠΎΠ΄ΠΈΠΌΠΎ ΡΠ΅ΡΠΊΠΎ ΠΏΡΠ΅Π΄ΡΡΠ°Π²Π»ΡΡΡ ΠΏΡΠΈΠ½ΡΠΈΠΏ Π΅Π³ΠΎ ΡΠ°Π±ΠΎΡΡ, Π° ΡΠ°ΠΊΠΆΠ΅ Π΅Π³ΠΎ ΡΡΡΡΠΎΠΉΡΡΠ²ΠΎ . ΠΠΎΠ»ΡΡΠΈΠ½ΡΡΠ²ΠΎ ΠΏΡΠ΅Π΄Π»Π°Π³Π°Π΅ΠΌΡΡ ΠΌΠΎΠ΄Π΅Π»Π΅ΠΉ ΠΎΠ΄Π½ΠΎΡΠΈΠΏΠ½Ρ, Π½Π΅ΡΠΌΠΎΡΡΡ Π½Π° Π½Π΅ΠΊΠΎΡΠΎΡΡΠ΅ ΡΠ°Π·Π»ΠΈΡΠΈΡ Π²ΠΎ Π²Π½Π΅ΡΠ½Π΅ΠΌ Π²ΠΈΠ΄Π΅
Π ΠΌΠ΅ΡΠ°Π»Π»ΠΈΡΠ΅ΡΠΊΠΎΠΌ ΠΊΠΎΡΠΏΡΡΠ΅, Π·Π°ΠΏΠΎΠ»Π½Π΅Π½Π½ΠΎΠΌ ΠΌΠ°ΡΠ»ΠΎΠΌ, Π½Π°Ρ ΠΎΠ΄ΠΈΡΡΡ ΠΌΠ΅Ρ Π°Π½ΠΈΠ·ΠΌ, ΠΊΠΎΡΠΎΡΡΠΉ ΡΠ΅ΡΠ΅Π· ΡΠΊΠ»Π°Π΄Π½ΠΎΠΉ ΡΡΡΠ°Π³ ΠΏΠ΅ΡΠ΅Π΄Π°Π΅Ρ ΡΡΠΈΠ»ΠΈΠ΅ Π·Π°ΠΊΡΡΠ²Π°Π½ΠΈΡ Π΄Π²Π΅ΡΠΈ Π½Π° ΠΏΡΡΠΆΠΈΠ½Ρ, ΠΊΠΎΡΠΎΡΠ°Ρ ΡΠΆΠΈΠΌΠ°ΡΡΡ, Π½Π°ΠΊΠ°ΠΏΠ»ΠΈΠ²Π°Π΅Ρ ΡΠ½Π΅ΡΠ³ΠΈΡ, Π½Π΅ΠΎΠ±Ρ ΠΎΠ΄ΠΈΠΌΡΡ Π΄Π»Ρ Π·Π°ΠΊΡΡΡΠΈΡ Π΄Π²Π΅ΡΠ΅ΠΉ. Π‘ΠΆΠ°ΡΠΈΠ΅ ΠΏΡΡΠΆΠΈΠ½Ρ ΠΏΡΠΎΠΈΡΡ ΠΎΠ΄ΠΈΡ ΡΠ»Π΅Π΄ΡΡΡΠΈΠΌ ΠΎΠ±ΡΠ°Π·ΠΎΠΌ.
ΠΠΎΡΡΠ΅Π΄ΡΡΠ²ΠΎΠΌ Π·ΡΠ±ΡΠ°ΡΠΎΠΉ ΡΠ΅ΡΡΠ΅ΡΠ½ΠΈ ΠΈ ΡΠ΅ΠΉΠΊΠΈ ΠΏΡΠΈΠ²ΠΎΠ΄ΠΈΡΡΡ Π² Π΄Π²ΠΈΠΆΠ΅Π½ΠΈΠ΅ ΠΏΠΎΡΡΠ΅Π½Ρ, ΠΊΠΎΡΠΎΡΡΠΉ ΠΈ ΠΎΠΊΠ°Π·ΡΠ²Π°Π΅Ρ Π²ΠΎΠ·Π΄Π΅ΠΉΡΡΠ²ΠΈΠ΅ Π½Π° ΠΏΡΡΠΆΠΈΠ½Ρ. ΠΠΎ Π²Π½ΡΡΡΠ΅Π½Π½ΠΈΠΌ ΠΏΡΠΎΡΠΎΡΠΊΠ°ΠΌ Π² ΠΏΠΎΡΡΠ½Π΅ ΠΌΠ°ΡΠ»ΠΎ ΠΏΠ΅ΡΠ΅ΡΠ΅ΠΊΠ°Π΅Ρ Π² ΠΎΡΠ²ΠΎΠ±ΠΎΠΆΠ΄Π°ΡΡΡΡΡΡ ΡΠ°ΡΡΡ ΠΊΠΎΡΠΏΡΡΠ°. ΠΠ³ΡΠ°Π½ΠΈΡΠ΅Π½ΠΈΠ΅ ΡΠΊΠΎΡΠΎΡΡΠΈ Π·Π°ΠΊΡΡΡΠΈΡ ΠΏΡΠΎΠΈΡΡ ΠΎΠ΄ΠΈΡ Π·Π° ΡΡΠ΅Ρ ΡΠ΅Π³ΡΠ»ΠΈΡΠΎΠ²ΠΊΠΈ ΡΠΊΠΎΡΠΎΡΡΠΈ Π΄Π²ΠΈΠΆΠ΅Π½ΠΈΡ ΠΌΠ°ΡΠ»Π° ΠΏΠΎ ΠΊΠ°Π½Π°Π»Π°ΠΌ Π΄Π»Ρ ΠΎΠ±ΡΠ°ΡΠ½ΠΎΠ³ΠΎ ΠΏΠ΅ΡΠ΅ΡΠ΅ΠΊΠ°Π½ΠΈΡ.
ΠΠΎΡ, Π² ΠΎΠ±ΡΠ΅ΠΌ, ΠΈ Π²Π΅ΡΡ ΠΏΡΠΈΠ½ΡΠΈΠΏ ΡΠ°Π±ΠΎΡΡ, Π΄ΠΎΡΡΠ°ΡΠΎΡΠ½ΠΎ ΠΏΡΠΎΡΡΠ°Ρ ΠΊΠΎΠ½ΡΡΡΡΠΊΡΠΈΡ, ΠΊΠΎΡΠΎΡΠ°Ρ Π΄ΠΎΠ»ΠΆΠ½Π° Π±Ρ ΠΎΠ±Π΅ΡΠΏΠ΅ΡΠΈΠ²Π°ΡΡ Π½Π°Π΄Π΅ΠΆΠ½ΠΎΡΡΡ ΡΡΡΡΠΎΠΉΡΡΠ²Π° ΠΈ Ρ ΠΎΡΠΎΡΡΡ ΡΠ΅ΠΌΠΎΠ½ΡΠΎΡΠΏΠΎΡΠΎΠ±Π½ΠΎΡΡΡ.
Π€Π°ΠΊΡΠΎΡΡ, ΠΎΠΏΡΠ΅Π΄Π΅Π»ΡΡΡΠΈΠ΅, Π²ΠΎΠ·ΠΌΠΎΠΆΠ΅Π½ Π»ΠΈ ΡΠ΅ΠΌΠΎΠ½Ρ Π΄Π²Π΅ΡΠ½ΡΡ Π΄ΠΎΠ²ΠΎΠ΄ΡΠΈΠΊΠΎΠ²
Π ΠΎΠ³ΡΠΎΠΌΠ½ΠΎΠΌΡ ΡΠΎΠΆΠ°Π»Π΅Π½ΠΈΡ, ΠΏΡΠΎΠΈΠ·Π²ΠΎΠ΄ΠΈΡΠ΅Π»ΠΈ Π²ΠΈΠ΄Π½ΠΎ Π½Π΅ ΡΠΈΠ»ΡΠ½ΠΎ Π·Π°ΠΈΠ½ΡΠ΅ΡΠ΅ΡΠΎΠ²Π°Π½Ρ Π² Π²ΠΎΠ·ΠΌΠΎΠΆΠ½ΠΎΡΡΠΈ ΡΠ΄Π΅Π»Π°ΡΡ ΡΠ΅ΠΌΠΎΠ½Ρ Π΄ΠΎΠ²ΠΎΠ΄ΡΠΈΠΊΠΎΠ² Π΄Π²Π΅ΡΠ΅ΠΉ Π΄ΠΎΡΡΡΠΏΠ½ΡΠΌ. ΠΠ° ΡΡΠΎ Π½Π°ΡΠ°Π»ΠΊΠΈΠ²Π°Π΅Ρ ΡΡΠ΄ Π½Π°Π±Π»ΡΠ΄Π΅Π½ΠΈΠΉ, Π½Π°ΠΏΡΠΈΠΌΠ΅Ρ ΡΠ΅Π»ΡΠ½ΠΎΡΠΏΠ»Π°Π²Π½ΡΠΉ ΠΊΠΎΡΠΏΡΡ. ΠΡΠΈ Π²ΠΎΠ·Π½ΠΈΠΊΠ½ΠΎΠ²Π΅Π½ΠΈΠΈ ΠΏΡΠΎΠ±Π»Π΅ΠΌ ΡΠ²ΡΠ·Π°Π½Π½ΡΡ Ρ ΡΡΠ΅ΡΠΊΠΎΠΉ ΠΌΠ°ΡΠ»Π°, Π·Π°ΠΌΠ΅Π½ΠΎΠΉ ΠΏΡΠΎΡ ΡΠ΄ΠΈΠ²ΡΠΈΡ ΡΡ ΡΠ°Π»ΡΠ½ΠΈΠΊΠΎΠ² ΠΏΡΠ΅Π΄ΠΏΡΠΈΠ½ΡΡΡ ΠΊΠ°ΠΊΠΈΠ΅ Π»ΠΈΠ±ΠΎ ΡΠ°Π³ΠΈ, ΠΊΡΠΎΠΌΠ΅ ΠΏΠΎΠΊΡΠΏΠΊΠΈ Π½ΠΎΠ²ΠΎΠ³ΠΎ Π΄ΠΎΠ²ΠΎΠ΄ΡΠΈΠΊΠ° Π½Π΅ ΠΈΠΌΠ΅Π΅Ρ ΡΠΌΡΡΠ»Π°.
ΠΠΎΡΡΠΎΠΌΡ ΠΎΠ³ΡΠΎΠΌΠ½ΡΡ ΡΠΎΠ»Ρ Π² Π΄ΠΎΠ»Π³ΠΎΠ²Π΅ΡΠ½ΠΎΡΡΠΈ ΠΈΠ³ΡΠ°Π΅Ρ ΡΠ΅Π³ΡΠ»ΠΈΡΠΎΠ²ΠΊΠ° Π΄ΠΎΠ²ΠΎΠ΄ΡΠΈΠΊΠ° Π΄Π²Π΅ΡΠΈ, Π° ΡΠ°ΠΊΠΆΠ΅ ΠΏΡΠ°Π²ΠΈΠ»ΡΠ½ΠΎΡΡΡ Π΅Π³ΠΎ ΠΌΠΎΠ½ΡΠ°ΠΆΠ°.
Π ΠΏΡΠΎΡΠ΅ΡΡΠ΅ ΡΠΊΡΠΏΠ»ΡΠ°ΡΠ°ΡΠΈΠΈ Π½Π΅ ΡΡΠΎΠΈΡ ΡΠΈΠΊΡΠΈΡΠΎΠ²Π°ΡΡ Π΄Π²Π΅ΡΡ Π² ΠΎΡΠΊΡΡΡΠΎΠΌ ΠΏΠΎΠ»ΠΎΠΆΠ΅Π½ΠΈΠΈ ΠΏΡΠΈ ΠΏΠΎΠΌΠΎΡΠΈ ΠΏΠΎΠ΄ΡΡΡΠ½ΡΡ
ΡΡΠ΅Π΄ΡΡΠ², ΡΡΠΎ Π½Π΅Π³Π°ΡΠΈΠ²Π½ΠΎ ΡΠΊΠ°ΠΆΠ΅ΡΡΡ Π½Π° ΡΡΡΡΠΎΠΉΡΡΠ²Π΅. ΠΠ»Ρ ΡΠ°ΠΊΠΈΡ
ΡΠ΅Π»Π΅ΠΉ Π»ΡΡΡΠ΅ ΠΊΡΠΏΠΈΡΡ Π΄ΠΎΠ²ΠΎΠ΄ΡΠΈΠΊ Ρ ΡΡΠ½ΠΊΡΠΈΠ΅ΠΉ Π±Π»ΠΎΠΊΠΈΡΠΎΠ²ΠΊΠΈ Π΄Π²Π΅ΡΠΈ ΠΏΡΠΈ ΠΎΡΠΊΡΡΡΠΈΠΈ Π½Π° Π±ΠΎΠ»Π΅Π΅ ΡΠ΅ΠΌ 900.
Π’Π°ΠΊ ΠΊΠ°ΠΊ ΠΏΡΠΈΠΌΠ΅Π½ΡΠ΅ΠΌΠ°Ρ Π³ΠΈΠ΄ΡΠ°Π²Π»ΠΈΡΠ΅ΡΠΊΠ°Ρ ΠΆΠΈΠ΄ΠΊΠΎΡΡΡ ΡΡΠ²ΡΡΠ²ΠΈΡΠ΅Π»ΡΠ½Π° ΠΊ ΠΏΠ΅ΡΠ΅ΠΏΠ°Π΄Π°ΠΌ ΡΠ΅ΠΌΠΏΠ΅ΡΠ°ΡΡΡΡ Π½Π°ΡΡΠΆΠ½ΠΎΠ³ΠΎ Π²ΠΎΠ·Π΄ΡΡ Π° (ΠΏΡΠΈ ΡΡΠΎΠΌ ΠΌΠ΅Π½ΡΠ΅ΡΡΡ Π²ΡΠ·ΠΊΠΎΡΡΡ ΠΆΠΈΠ΄ΠΊΠΎΡΡΠΈ), ΠΏΡΠΎΠ²ΠΎΠ΄ΠΈΡΠ΅ ΠΏΡΠΈ ΡΠΌΠ΅Π½Π΅ ΡΠ΅Π·ΠΎΠ½ΠΎΠ² ΡΠ΅Π³ΡΠ»ΠΈΡΠΎΠ²ΠΊΡ ΡΠΊΠΎΡΠΎΡΡΠΈ Π΄ΠΎΠ²ΠΎΠ΄ΠΊΠΈ.
Π£ΡΡΡΠ°Π½Π΅Π½ΠΈΠ΅ Π²ΠΎΠ·ΠΌΠΎΠΆΠ½ΡΡ Π½Π΅ΠΈΡΠΏΡΠ°Π²Π½ΠΎΡΡΠ΅ΠΉ
ΠΠ°ΠΈΠ±ΠΎΠ»Π΅Π΅ ΡΠ°ΡΡΠΎΠΉ ΠΏΠΎΠ»ΠΎΠΌΠΊΠΎΠΉ ΡΠ²Π»ΡΠ΅ΡΡΡ Π²ΡΡ ΠΎΠ΄ ΠΈΠ· ΡΡΡΠΎΡ ΡΠΊΠ»Π°Π΄Π½ΠΎΠ³ΠΎ ΡΡΡΠ°Π³Π°, ΡΡΠΎ ΠΎΡΠ½ΠΎΠ²Π½Π°Ρ ΠΏΡΠΎΠ±Π»Π΅ΠΌΠ° Π΄Π»Ρ Π΄ΠΎΠ²ΠΎΠ΄ΡΠΈΠΊΠΎΠ², ΡΡΡΠ°Π½ΠΎΠ²Π»Π΅Π½Π½ΡΡ Π² ΠΏΡΠΎΡ ΠΎΠ΄Π½ΡΡ ΠΏΠΎΠΌΠ΅ΡΠ΅Π½ΠΈΡΡ . Π’Π°ΠΊΠΆΠ΅ ΠΊ Π²ΡΡ ΠΎΠ΄Ρ ΠΈΠ· ΡΡΡΠΎΡ ΡΠΏΠΎΡΠΎΠ±ΡΡΠ²ΡΡΡ ΡΠ°ΡΡΠΎ Π²ΠΎΠ·Π½ΠΈΠΊΠ°ΡΡΠΈΠ΅ ΡΠ΄Π°ΡΠ½ΡΠ΅ Π½Π°Π³ΡΡΠ·ΠΊΠΈ, ΡΠ°ΠΊΠΈΠ΅ ΠΊΠ°ΠΊ ΠΏΠΎΡΡΠ²Ρ Π²Π΅ΡΡΠ°, Π½Π΅ΡΡΠ°Π²Π½ΠΎΠ²Π΅ΡΠ΅Π½Π½ΡΠ΅ ΠΏΠΎΡΠ΅ΡΠΈΡΠ΅Π»ΠΈ, ΡΠΊΡΡΡΡ ΡΡΠΎΡ ΡΠ»Π΅ΠΌΠ΅Π½Ρ Π΄ΠΎΠ²ΠΎΠ΄ΡΠΈΠΊΠ° Π½Π΅ ΠΏΡΠ΅Π΄ΡΡΠ°Π²Π»ΡΠ΅ΡΡΡ Π²ΠΎΠ·ΠΌΠΎΠΆΠ½ΡΠΌ, ΠΏΠΎΡΡΠΎΠΌΡ ΠΎΠ½ ΡΠ°ΡΡΠΎ ΡΡΠ°Π½ΠΎΠ²ΠΈΡΡΡ ΠΆΠ΅ΡΡΠ²ΠΎΠΉ Π²Π°Π½Π΄Π°Π»ΠΈΠ·ΠΌΠ°.
ΠΠΎΠ·ΠΌΠΎΠΆΠ½Π° Π΄Π΅ΡΠΎΡΠΌΠ°ΡΠΈΡ ΡΡΡΠ°Π³Π°, Π΅Π³ΠΎ ΠΈΠ·Π»ΠΎΠΌ, ΡΠ°ΡΡΠΎ Π²ΡΠ»Π°ΠΌΡΠ²Π°ΡΡ ΠΊΡΠ΅ΠΏΠ»Π΅Π½ΠΈΠ΅ ΡΡΠ°Π½Π³ΠΈ ΠΊ Π΄Π²Π΅ΡΠΈ ΠΈΠ»ΠΈ ΡΠ°ΠΌΠΎΠΌΡ Π΄ΠΎΠ²ΠΎΠ΄ΡΠΈΠΊΡ. Π’Π°ΠΊΠΈΠ΅ Π½Π΅ΠΈΡΠΏΡΠ°Π²Π½ΠΎΡΡΠΈ Π»Π΅Π³ΠΊΠΎ ΡΡΡΡΠ°Π½ΡΡΡΡΡ ΠΏΡΠΈ ΠΏΠΎΠΌΠΎΡΠΈ ΡΠ²Π°ΡΠΊΠΈ, Π² ΠΊΡΠ°ΠΉΠ½Π΅ΠΌ ΡΠ»ΡΡΠ°Π΅, ΠΌΠΎΠΆΠ½ΠΎ ΠΏΡΠΈΠΎΠ±ΡΠ΅ΡΡΠΈ ΡΡΡΠ°Π³ Π² ΡΠ±ΠΎΡΠ΅, Π² ΠΏΡΠΎΠ΄Π°ΠΆΠ΅ ΠΎΠ½ΠΈ ΠΈΠΌΠ΅ΡΡΡΡ. ΠΠΎΠΆΠ½ΠΎ Π΄Π°ΠΆΠ΅ ΠΏΡΠΈΠΌΠ΅Π½ΡΡΡ ΡΡΠ°Π½Π³ΠΈ ΠΎΡ Π΄ΡΡΠ³ΠΈΡ ΠΌΠΎΠ΄ΠΈΡΠΈΠΊΠ°ΡΠΈΠΉ ΠΏΡΠΈ ΡΡΠ»ΠΎΠ²ΠΈΠΈ ΡΠΎΠ²ΠΌΠ΅ΡΡΠΈΠΌΠΎΡΡΠΈ ΡΠ·Π»Π° ΠΊΡΠ΅ΠΏΠ»Π΅Π½ΠΈΡ ΠΊ ΡΡΡΡΠΎΠΉΡΡΠ²Ρ.
Π Π½Π΅ΠΏΠΎΠ»Π°Π΄ΠΊΠ°ΠΌ, ΠΊΠΎΡΠΎΡΡΠ΅ ΡΡΡΡΠ°Π½ΡΡΡΡΡ ΡΠ°ΠΌΠΎΡΡΠΎΡΡΠ΅Π»ΡΠ½ΠΎ ΠΌΠΎΠΆΠ½ΠΎ ΠΎΡΠ½Π΅ΡΡΠΈ Π½Π°ΡΡΡΠ΅Π½ΠΈΠ΅ ΡΠΊΠΎΡΠΎΡΡΠΈ Π·Π°ΠΊΡΡΠ²Π°Π½ΠΈΡ ΠΈ Π΄ΠΎΠ²ΠΎΠ΄ΠΊΠΈ. ΠΠ°Π½Π½ΡΠ΅ Π½Π°ΡΡΡΠ΅Π½ΠΈΡ ΡΡΡΡΠ°Π½ΡΡΡΡΡ ΡΠ΅Π³ΡΠ»ΠΈΡΠΎΠ²ΠΊΠΎΠΉ ΡΠΎΠΎΡΠ²Π΅ΡΡΡΠ²ΡΡΡΠΈΡ Π²ΠΈΠ½ΡΠΎΠ², Π½ΠΎ ΠΏΠΎΠΌΠ½ΠΈΡΠ΅, ΠΈΠ·ΠΌΠ΅Π½Π΅Π½ΠΈΠ΅ ΠΏΠΎΠ»ΠΎΠΆΠ΅Π½ΠΈΡ ΡΠ΅Π³ΡΠ»ΠΈΡΠΎΠ²ΠΎΡΠ½ΡΡ Π²ΠΈΠ½ΡΠΎΠ² Π±ΠΎΠ»Π΅Π΅ ΡΠ΅ΠΌ Π½Π° Π΄Π²Π° ΠΎΠ±ΠΎΡΠΎΡΠ° ΠΎΡ Π½Π°ΡΠ°Π»ΡΠ½ΠΎΠ³ΠΎ ΠΏΠΎΠ»ΠΎΠΆΠ΅Π½ΠΈΡ Π½Π΅ Π΄ΠΎΠΏΡΡΠΊΠ°Π΅ΡΡΡ. Π, ΠΊΠ°ΠΊ Π³ΠΎΠ²ΠΎΡΠΈΠ»ΠΎΡΡ ΡΠ°Π½ΡΡΠ΅, Π² ΡΠ»ΡΡΠ°Π΅ ΡΡΠ΅ΡΠΊΠΈ Π³ΠΈΠ΄ΡΠ°Π²Π»ΠΈΡΠ΅ΡΠΊΠΎΠΉ ΠΆΠΈΠ΄ΠΊΠΎΡΡΠΈ ΡΠ΅ΠΌΠΎΠ½Ρ Π΄ΠΎΠ²ΠΎΠ΄ΡΠΈΠΊΠ° Π΄Π²Π΅ΡΠΈ ΠΏΡΠ°ΠΊΡΠΈΡΠ΅ΡΠΊΠΈ Π½Π΅Π²ΠΎΠ·ΠΌΠΎΠΆΠ΅Π½.
Π‘ΠΈΠ»Π° Π½Π°ΡΡΠΆΠ΅Π½ΠΈΡ ΠΏΡΡΠΆΠΈΠ½Ρ ΡΠ΅Π³ΡΠ»ΠΈΡΡΠ΅ΡΡΡ ΡΠΎΠΎΡΠ²Π΅ΡΡΡΠ²ΡΡΡΠ΅ΠΉ Π³Π°ΠΉΠΊΠΎΠΉ.
ΠΠ· Π²ΡΠ΅Π³ΠΎ Π²ΡΡΠ΅ΡΠΊΠ°Π·Π°Π½Π½ΠΎΠ³ΠΎ ΠΌΠΎΠΆΠ½ΠΎ ΡΠ΄Π΅Π»Π°ΡΡ Π²ΡΠ²ΠΎΠ΄ β ΡΠΎΠ±Π»ΡΠ΄Π°ΠΉΡΠ΅ ΠΏΡΠ°Π²ΠΈΠ»Π° ΡΠΊΡΠΏΠ»ΡΠ°ΡΠ°ΡΠΈΠΈ Π΄Π²Π΅ΡΠ½ΠΎΠ³ΠΎ Π΄ΠΎΠ²ΠΎΠ΄ΡΠΈΠΊΠ°, ΠΏΠΎΠ΄Π±ΠΈΡΠ°ΠΉΡΠ΅ ΠΌΠΎΠ΄Π΅Π»Ρ Π² Π·Π°Π²ΠΈΡΠΈΠΌΠΎΡΡΠΈ ΠΎΡ Π²Π΅ΡΠ° Π΄Π²Π΅ΡΠ½ΠΎΠ³ΠΎ ΠΏΠΎΠ»ΠΎΡΠ½Π°, ΡΠΎΠ³Π΄Π° ΡΡΡΡΠΎΠΉΡΡΠ²ΠΎ Π±ΡΠ΄Π΅Ρ ΡΠ»ΡΠΆΠΈΡΡ Π½Π°Π΄Π΅ΠΆΠ½ΠΎ Π΄ΠΎΡΡΠ°ΡΠΎΡΠ½ΠΎ Π΄ΠΎΠ»Π³ΠΎ.
04 Π΄Π΅ΠΊΠ°Π±ΡΡ 2018
ΠΠΈ Π΄Π»Ρ ΠΊΠΎΠ³ΠΎ Π½Π΅ ΡΠ΅ΠΊΡΠ΅Ρ, ΡΡΠΎ ΠΏΠΎΡΠ΅ΡΠΈ ΡΠ΅ΠΏΠ»Π° ΠΈΠ· Π΄ΠΎΠΌΠ° Π² Π±ΠΎΠ»ΡΡΠΎΠΌ ΠΏΡΠΎΡΠ΅Π½ΡΠ½ΠΎΠΌ ΡΠΎΠΎΡΠ½ΠΎΡΠ΅Π½ΠΈΠΈ ΠΏΡΠΈΡ
ΠΎΠ΄ΡΡΡΡ Π½Π° ΡΡΠ΅ΡΠΊΡ ΡΠ΅ΡΠ΅Π· Π΄Π²Π΅ΡΡ.
ΠΠΎΠΌΠΈΠΌΠΎ ΠΊΠ°ΡΠ΅ΡΡΠ²Π° ΡΠ°ΠΌΠΎΠΉ Π΄Π²Π΅ΡΠΈ, ΠΏΡΠΈΠ½ΡΠΈΠΏΠΎΠ² ΡΡΠ΅ΠΏΠ»Π΅Π½ΠΈΡ ΠΈ ΠΏΠ»ΠΎΡΠ½ΠΎΡΡΠΈ Π·Π°ΠΊΡΡΡΠΈΡ, Π²Π°ΠΆΠ½Π° ΡΠΊΠΎΡΠΎΡΡΡ Π·Π°ΠΊΡΡΡΠΈΡ Π΄Π²Π΅ΡΠΈ. ΠΠ»Ρ ΠΊΠΎΠ½ΡΡΠΎΠ»Ρ ΡΡΠΎΠΉ Ρ
Π°ΡΠ°ΠΊΡΠ΅ΡΠΈΡΡΠΈΠΊΠΈ ΡΡΡΠ΅ΡΡΠ²ΡΠ΅Ρ Π΄Π²Π΅ΡΠ½ΠΎΠΉ Π΄ΠΎΠ²ΠΎΠ΄ΡΠΈΠΊ.
ΠΡΠΈΠ½ΡΠΈΠΏ ΡΠ°Π±ΠΎΡΡ Π΄Π²Π΅ΡΠ½ΠΎΠ³ΠΎ Π΄ΠΎΠ²ΠΎΠ΄ΡΠΈΠΊΠ°
ΠΡΡΡΠ΅Ρ ΠΌΠ½Π΅Π½ΠΈΠ΅, ΡΡΠΎ Π΄ΠΎΠ²ΠΎΠ΄ΡΠΈΠΊ Π΄Π»Ρ Π΄Π²Π΅ΡΠΈ ΠΏΡΠΈΠ½ΡΡΠΎ ΡΡΡΠ°Π½Π°Π²Π»ΠΈΠ²Π°ΡΡ ΡΠΎΠ»ΡΠΊΠΎ Π² ΠΎΠ±ΡΠ΅ΡΡΠ²Π΅Π½Π½ΡΡ ΠΌΠ΅ΡΡΠ°Ρ . Π― Π±Ρ Ρ ΡΡΠΈΠΌ Π½Π΅ ΡΠΎΠ³Π»Π°ΡΠΈΠ»ΡΡ. ΠΡΠ΅ΠΈΠΌΡΡΠ΅ΡΡΠ²Π° Π΄Π²Π΅ΡΠ½ΠΎΠ³ΠΎ Π΄ΠΎΠ²ΠΎΠ΄ΡΠΈΠΊΠ° Π·Π°ΡΡΠ°Π²Π»ΡΡΡ Π΄ΡΠΌΠ°ΡΡ ΠΈΠ½Π°ΡΠ΅ ΠΈ ΡΡΡΠ°Π½Π°Π²Π»ΠΈΠ²Π°ΡΡ ΡΠ΅Ρ Π½ΠΈΠΊΡ Π½Π΅ ΡΠΎΠ»ΡΠΊΠΎ Π½Π° Π²Ρ ΠΎΠ΄Π½ΡΡ Π΄Π²Π΅ΡΡ Π² Π΄ΠΎΠΌ ΠΈΠ»ΠΈ ΠΊΠ²Π°ΡΡΠΈΡΡ, Π½ΠΎ ΠΈ Π² Ρ ΠΎΠ·ΡΠΉΡΡΠ²Π΅Π½Π½ΡΡ ΠΏΠΎΡΡΡΠΎΠΉΠΊΠ°Ρ , Π³Π°ΡΠ°ΠΆΠ΅ ΠΈ ΡΠ°ΡΠ°Π΅.
- ΠΡΠΏΠΎΠ»ΡΠ·ΠΎΠ²Π°Π½ΠΈΠ΅ Π΄Π²Π΅ΡΠ½ΠΎΠ³ΠΎ Π΄ΠΎΠ²ΠΎΠ΄ΡΠΈΠΊΠ° ΡΠΊΠΎΠ½ΠΎΠΌΠΈΡ ΡΠ΅ΠΏΠ»ΠΎ Π² ΠΏΠΎΠΌΠ΅ΡΠ΅Π½ΠΈΠΈ. ΠΡΠΎΠΈΡΡ ΠΎΠ΄ΠΈΡ ΡΡΠΎ Π½Π΅ ΡΠΎΠ»ΡΠΊΠΎ Π·Π° ΡΡΠ΅Ρ ΠΊΠΎΠ½ΡΡΠΎΠ»Ρ Π²ΡΠ΅ΠΌΠ΅Π½ΠΈ, Π² ΡΠ΅ΡΠ΅Π½ΠΈΠ΅ ΠΊΠΎΡΠΎΡΠΎΠ³ΠΎ Π΄Π²Π΅ΡΡ Π΄Π΅ΡΠΆΠΈΡΡΡ ΠΎΡΠΊΡΡΡΠΎΠΉ, Π½ΠΎ ΠΈ Π·Π° ΡΡΠ΅Ρ ΠΊΡΠ΅ΠΏΠΊΠΎΠ³ΠΎ ΡΠ΄Π΅ΡΠΆΠ°Π½ΠΈΡ Π΄Π²Π΅ΡΠΈ Π² Π·Π°ΠΊΡΡΡΠΎΠΌ ΠΏΠΎΠ»ΠΎΠΆΠ΅Π½ΠΈΠΈ.
- ΠΠ²Π΅ΡΠ½ΠΎΠΉ Π΄ΠΎΠ²ΠΎΠ΄ΡΠΈΠΊ ΠΏΡΠΎΠ΄Π»Π΅Π²Π°Π΅Ρ ΡΡΠΎΠΊ ΡΠ»ΡΠΆΠ±Ρ Π΄Π²Π΅ΡΠΈ ΠΈ Π΅Π΅ ΡΠΎΡΡΠ°Π²Π»ΡΡΡΠΈΡ ΡΠ»Π΅ΠΌΠ΅Π½ΡΠΎΠ² ΠΈ ΡΡΡΠ½ΠΈΡΡΡΡ. ΠΠ»Π°Π³ΠΎΠ΄Π°ΡΡ ΠΏΠ»Π°Π²Π½ΠΎΠΌΡ Π·Π°ΠΊΡΡΡΠΈΡ Π΄Π²Π΅ΡΠΈ, Π½Π΅ ΠΏΡΠΎΠΈΡΡ ΠΎΠ΄ΠΈΡ ΠΏΡΠ΅ΠΆΠ΄Π΅Π²ΡΠ΅ΠΌΠ΅Π½Π½ΡΠΉ ΠΈΠ·Π½ΠΎΡ Π΄Π΅ΡΠ°Π»Π΅ΠΉ, ΡΠ²ΠΎΠΉΡΡΠ²Π΅Π½Π½ΡΠΉ Π΄Π²Π΅ΡΡΠΌ, Π·Π°Ρ Π»ΠΎΠΏΡΠ²Π°ΡΡΠΈΠΌΡΡ Ρ Π±ΠΎΠ»ΡΡΠΎΠΉ ΡΠΈΠ»ΠΎΠΉ. Π§Π΅ΠΌ ΡΡΠΆΠ΅Π»Π΅Π΅ Π΄Π²Π΅ΡΡ, ΡΠ΅ΠΌ ΡΠΈΠ»ΡΠ½Π΅Π΅ ΡΠ΄Π°Ρ.
- ΠΠΎΠ²ΠΎΠ΄ΡΠΈΠΊ Π±Π΅ΡΠ΅ΠΆΠ΅Ρ Π½Π΅ΡΠ²Π½ΡΡ ΡΠΈΡΡΠ΅ΠΌΡ ΡΠ΅Π»ΠΎΠ²Π΅ΠΊΠ°, ΡΡΡΡΠ°Π½ΡΡ Π³ΡΠΎΠΌΠΊΠΈΠ΅ Π·Π²ΡΠΊΠΈ Π² ΠΌΠΎΠΌΠ΅Π½Ρ Π·Π°ΠΊΡΡΡΠΈΡ ΡΡΠΆΠ΅Π»ΠΎΠΉ ΠΌΠ΅ΡΠ°Π»Π»ΠΈΡΠ΅ΡΠΊΠΎΠΉ Π΄Π²Π΅ΡΠΈ.
ΠΡΠΈΠ½ΡΠΈΠΏ ΡΠ°Π±ΠΎΡΡ Π΄Π²Π΅ΡΠ½ΠΎΠ³ΠΎ Π΄ΠΎΠ²ΠΎΠ΄ΡΠΈΠΊΠ° ΠΏΡΠΎΡΡ ΠΈ ΠΏΠΎΠ½ΡΡΠ΅Π½, ΠΎΡΠ½ΠΎΠ²ΡΠ²Π°Π΅ΡΡΡ Π½Π° ΡΠ²ΠΎΠΉΡΡΠ²Π΅ ΠΎΠ±ΡΡΠ½ΠΎΠΉ ΠΏΡΡΠΆΠΈΠ½Ρ Π°ΠΊΠΊΡΠΌΡΠ»ΠΈΡΠΎΠ²Π°ΡΡ ΡΠ½Π΅ΡΠ³ΠΈΡ, ΠΏΠΎΠ»ΡΡΠ°Π΅ΠΌΡΡ Π΅Ρ ΠΏΡΠΈ ΠΎΡΠΊΡΡΡΠΈΠΈ Π΄Π²Π΅ΡΠΈ. Π£ΡΠΈΠ»ΠΈΠ΅, ΠΏΡΠΈΠ»Π°Π³Π°Π΅ΠΌΠΎΠ΅ ΡΠ΅Π»ΠΎΠ²Π΅ΠΊΠΎΠΌ Π΄Π»Ρ ΠΎΡΠΊΡΡΡΠΈΡ Π΄Π²Π΅ΡΠΈ, ΠΏΠΎΡΡΡΠΏΠ°Π΅Ρ Π½Π° ΡΠΆΠ°ΡΡΡ ΠΏΡΡΠΆΠΈΠ½Ρ, ΠΏΡΠΈ ΠΏΠΎΠΌΠΎΡΠΈ ΠΊΠΎΡΠΎΡΠΎΠΉ Π΄Π²Π΅ΡΡ ΠΌΠ΅Π΄Π»Π΅Π½Π½ΠΎ ΠΈ ΠΏΠ»Π°Π²Π½ΠΎ Π·Π°ΠΊΡΡΠ²Π°Π΅ΡΡΡ.
ΠΠΈΠ΄Ρ Π΄Π²Π΅ΡΠ½ΡΡ Π΄ΠΎΠ²ΠΎΠ΄ΡΠΈΠΊΠΎΠ²
ΠΠΎ ΠΊΠΎΠ½ΡΡΡΡΠΊΡΠΈΠΎΠ½Π½ΡΠΌ ΠΎΡΠΎΠ±Π΅Π½Π½ΠΎΡΡΡΠΌ ΡΠ°Π·Π»ΠΈΡΠ°ΡΡ Π΄Π²Π° Π²ΠΈΠ΄Π° Π΄Π²Π΅ΡΠ½ΡΡ Π΄ΠΎΠ²ΠΎΠ΄ΡΠΈΠΊΠΎΠ².
- ΠΠ°ΠΊΠ»Π°Π΄Π½ΠΎΠΉ Π΄ΠΎΠ²ΠΎΠ΄ΡΠΈΠΊ, ΠΌΠ΅Ρ Π°Π½ΠΈΠ·ΠΌ ΠΊΠΎΡΠΎΡΠΎΠ³ΠΎ Π²ΠΊΠ»ΡΡΠ°Π΅Ρ Π² ΡΠ΅Π±Ρ Π·ΡΠ±ΡΠ°ΡΡΠΉ ΠΏΡΠΈΠ²ΠΎΠ΄. ΠΠ°ΠΊΡΡΡΠΈΠ΅ ΠΈ ΠΎΡΠΊΡΡΡΠΈΠ΅ Π΄Π²Π΅ΡΠ΅ΠΉ ΠΏΡΠΎΠΈΡΡ ΠΎΠ΄ΠΈΡ, Π±Π»Π°Π³ΠΎΠ΄Π°ΡΡ ΡΠ°Π±ΠΎΡΠ΅ ΡΠ΅ΡΡΠ΅ΡΠ΅Π½ΠΎΠΊ, Π·Π°ΠΏΡΡΠΊΠ°ΡΡΠΈΡ ΠΏΠΎΡΡΠ½Π΅Π²ΠΎΠΉ ΠΌΠ΅Ρ Π°Π½ΠΈΠ·ΠΌ.
- ΠΠΎ Π²ΡΠΎΡΠΎΠΌ Π²Π°ΡΠΈΠ°Π½ΡΠ΅ ΠΏΡΡΠΆΠΈΠ½Ρ ΠΈ ΠΏΠΎΡΡΠ½ΠΈ ΠΏΡΠΈΠ²ΠΎΠ΄ΠΈΡ Π² Π΄Π²ΠΈΠΆΠ΅Π½ΠΈΠ΅ ΠΊΡΠ»Π°ΡΠΊΠΎΠ²ΡΠΉ Π²Π°Π».
ΠΠΎΠΌΠΈΠΌΠΎ ΡΠ°Π·Π½ΠΈΡΡ Π² ΠΊΠΎΠ½ΡΡΡΡΠΊΡΠΈΠΈ Π°Π³ΡΠ΅Π³Π°ΡΠΎΠ², ΡΠ°Π·Π»ΠΈΡΠ°ΡΡΡΡ ΠΈ Π΄Π΅ΠΊΠΎΡΠ°ΡΠΈΠ²Π½ΡΠ΅ ΡΠ²ΠΎΠΉΡΡΠ²Π°.
- Π Π°Π±ΠΎΡΠ° Π΄ΠΎΠ²ΠΎΠ΄ΡΠΈΠΊΠ° ΡΠΊΡΡΡΠΎΠ³ΠΎ ΠΌΠΎΠ½ΡΠ°ΠΆΠ° ΠΎΡΠ½ΠΎΠ²ΡΠ²Π°Π΅ΡΡΡ Π½Π° ΠΌΠ΅Ρ
Π°Π½ΠΈΠ·ΠΌΠ΅ ΡΠΎ ΡΠΊΠΎΠ»ΡΠ·ΡΡΠΈΠΌ Π² ΠΏΡΠΎΡΠΈΠ²ΠΎΠΏΠΎΠ»ΠΎΠΆΠ½ΡΠ΅ ΡΡΠΎΡΠΎΠ½Ρ ΡΡΠ΅ΡΠΆΠ½Π΅ΠΌ.

- ΠΠ»Ρ Π΄ΠΎΠ²ΠΎΠ΄ΡΠΈΠΊΠ°, ΡΠ°Π±ΠΎΡΠ°ΡΡΠ΅Π³ΠΎ ΠΏΠΎ ΠΏΡΠΈΠ½ΡΠΈΠΏΡ ΠΏΠ΅ΡΠ»ΠΈ, Ρ Π°ΡΠ°ΠΊΡΠ΅ΡΠ½ΠΎ ΡΠΊΡΡΡΠΈΠ΅ ΡΡΡΠ°Π³Π° Π²Π½ΡΡΡΠΈ ΠΊΠΎΠ½ΡΡΡΡΠΊΡΠΈΠΈ Π΄ΠΎΠ²ΠΎΠ΄ΡΠΈΠΊΠ°.
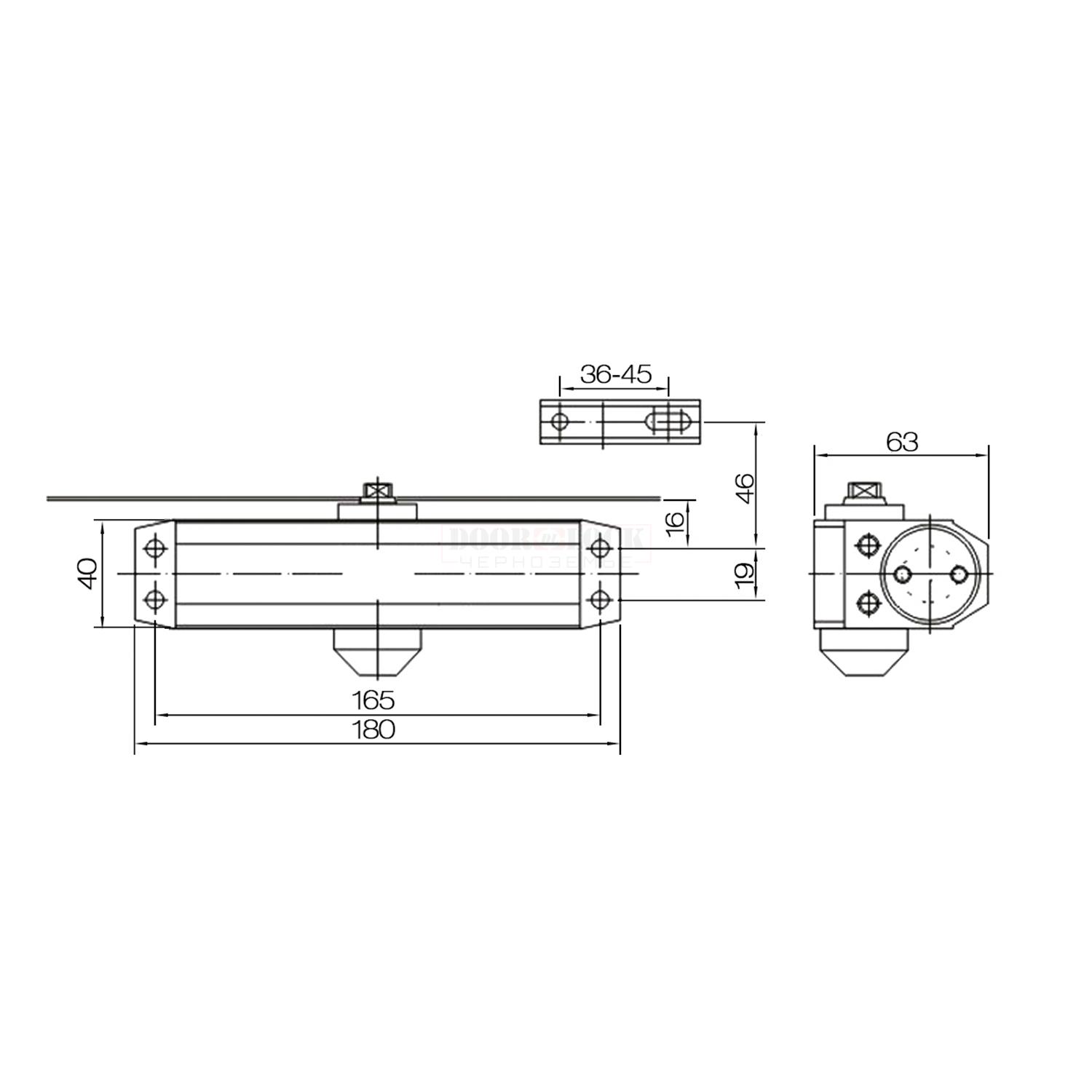
ΠΡΠΈΡΠ΅ΡΠΈΡΠΌΠΈ Π²ΡΠ±ΠΎΡΠ° Π΄Π²Π΅ΡΠ½ΠΎΠ³ΠΎ Π΄ΠΎΠ²ΠΎΠ΄ΡΠΈΠΊΠ° ΡΠ²Π»ΡΠ΅ΡΡΡ Π½Π΅ΡΠΊΠΎΠ»ΡΠΊΠΎ Ρ Π°ΡΠ°ΠΊΡΠ΅ΡΠΈΡΡΠΈΠΊ:
- ΠΠΎΠΊΠ°Π·Π°ΡΠ΅Π»Ρ ΡΠ΅Π³ΡΠ»ΠΈΡΠΎΠ²Π°Π½ΠΈΡ ΠΏΠΎΠ»ΠΎΡΠ½Π° ΠΎΠΏΡΠ΅Π΄Π΅Π»ΡΠ΅Ρ ΠΌΠ°ΠΊΡΠΈΠΌΠ°Π»ΡΠ½ΡΠΉ Π²Π΅Ρ ΠΏΠΎΠ»ΠΎΡΠ½Π° Π΄Π²Π΅ΡΠΈ, Ρ ΠΊΠΎΡΠΎΡΡΠΌ ΡΠΌΠΎΠΆΠ΅Ρ ΡΠΏΡΠ°Π²ΠΈΡΡΡΡ Π΄ΠΎΠ²ΠΎΠ΄ΡΠΈΠΊ. ΠΠΎΠΊΠ°Π·Π°ΡΠ΅Π»Ρ ΠΎΠ±ΠΎΠ·Π½Π°ΡΠ°Π΅ΡΡΡ ΠΌΠ°ΡΠΊΠΈΡΠΎΠ²ΠΊΠΎΠΉ EN1 ΠΈ Π΄ΠΎ EN7. Π§Π΅ΠΌ Π²ΡΡΠ΅ ΡΠΈΡΡΠ° ΠΌΠ°ΡΠΊΠΈΡΠΎΠ²ΠΊΠΈ, ΡΠ΅ΠΌ Π±ΠΎΠ»ΡΡΠΈΠΉ Π²Π΅Ρ ΠΏΠΎΠ»ΠΎΡΠ½Π° Π΄ΠΎΠΏΡΡΡΠΈΠΌ.
- ΠΠ°Π»ΠΈΡΠΈΠ΅ Π²ΠΎΠ·ΠΌΠΎΠΆΠ½ΠΎΡΡΠΈ ΡΠΈΠΊΡΠ°ΡΠΈΠΈ Π΄Π²Π΅ΡΠΈ Π² ΠΎΡΠΊΡΡΡΠΎΠΌ ΠΏΠΎΠ»ΠΎΠΆΠ΅Π½ΠΈΠΈ. ΠΡΠ»ΠΈ ΡΡΠ° ΡΡΠ½ΠΊΡΠΈΡ ΠΏΡΠΈΡΡΡΡΡΠ²ΡΠ΅Ρ, ΡΡΠ°Π±Π°ΡΡΠ²Π°Π΅Ρ ΡΠΈΠΊΡΠ°ΡΠΈΡ ΠΏΠΎΡΠ»Π΅ ΡΡΡΠΆΠΊΠΈ ΡΠΏΠ΅ΡΠΈΠ°Π»ΡΠ½ΠΎΠ³ΠΎ ΡΠΈΠΊΡΠ°ΡΠΎΡΠ°. Π‘Π½ΠΈΠΌΠ°Π΅ΡΡΡ ΠΏΠΎΠ»ΠΎΠΆΠ΅Π½ΠΈΠ΅ Π΄Π²Π΅ΡΠΈ, Π΅ΡΠ»ΠΈ ΠΏΠΎΡΡΠ½ΡΡΡ Π΅Π΅ Π½Π° ΡΠ΅Π±Ρ.
- ΠΠ΅ΠΊΠΎΡΠ°ΡΠΈΠ²Π½ΡΠ΅ ΡΠ²ΠΎΠΉΡΡΠ²Π° β Π½Π΅ ΠΏΠΎΡΠ»Π΅Π΄Π½ΠΈΠΉ ΡΠ°ΠΊΡΠΎΡ, Π½Π° ΠΊΠΎΡΠΎΡΡΠΉ Π½Π΅ΠΎΠ±Ρ ΠΎΠ΄ΠΈΠΌΠΎ ΠΎΠ±ΡΠ°ΡΠΈΡΡ Π²Π½ΠΈΠΌΠ°Π½ΠΈΠ΅ ΠΏΡΠΈ ΠΏΠΎΠΊΡΠΏΠΊΠ΅. Π Π°ΡΡΠ²Π΅ΡΠΊΠ°, ΠΈΡΠΏΠΎΠ»ΡΠ·ΡΠ΅ΠΌΡΠ΅ ΠΌΠ°ΡΠ΅ΡΠΈΠ°Π»Ρ ΠΈ Π³Π°Π±Π°ΡΠΈΡΡ Π΄ΠΎΠ²ΠΎΠ΄ΡΠΈΠΊΠ° Π΄Π°ΡΡ Π²ΠΎΠ·ΠΌΠΎΠΆΠ½ΠΎΡΡΡ ΠΏΠΎΠ΄ΠΎΠ±ΡΠ°ΡΡ ΡΡΡΡΠΎΠΉΡΡΠ²ΠΎ, ΠΈΠ΄Π΅Π°Π»ΡΠ½ΠΎ Π²ΠΏΠΈΡΡΠ²Π°ΡΡΠ΅Π΅ΡΡ Π² ΠΈΠ½ΡΠ΅ΡΡΠ΅Ρ.
Π£ΡΡΠ°Π½ΠΎΠ²ΠΊΠ° Π΄Π²Π΅ΡΠ½ΠΎΠ³ΠΎ Π΄ΠΎΠ²ΠΎΠ΄ΡΠΈΠΊΠ°
Π£ΡΡΠ°Π½ΠΎΠ²ΠΊΠ° Π΄Π²Π΅ΡΠ½ΠΎΠ³ΠΎ Π΄ΠΎΠ²ΠΎΠ΄ΡΠΈΠΊΠ° β Π½Π΅ΡΠ»ΠΎΠΆΠ½Π°Ρ ΠΈ Π±ΡΡΡΡΠ°Ρ Π·Π°Π΄Π°ΡΠ°, Ρ Π½Π΅ΠΉ ΠΌΠΎΠΆΠ½ΠΎ ΡΠΏΡΠ°Π²ΠΈΡΡΡΡ ΡΠ°ΠΌΠΎΡΡΠΎΡΡΠ΅Π»ΡΠ½ΠΎ, Π½Π΅ ΠΏΡΠΈΠ±Π΅Π³Π°Ρ ΠΊ ΠΏΠΎΠΌΠΎΡΠΈ ΡΠΏΠ΅ΡΠΈΠ°Π»ΠΈΡΡΠΎΠ². Π Π°ΡΡΠΌΠΎΡΡΠΈΠΌ ΠΏΠΎΡΠ°Π³ΠΎΠ²ΡΡ ΠΈΠ½ΡΡΡΡΠΊΡΠΈΡ, ΠΊΠΎΡΠΎΡΠ°Ρ ΠΏΠΎΠΌΠΎΠΆΠ΅Ρ Π²Π°ΠΌ Π²ΡΠΏΠΎΠ»Π½ΠΈΡΡ ΡΠ°Π±ΠΎΡΡ ΡΠΎΡΠ½ΠΎ ΠΈ ΠΏΡΠ°Π²ΠΈΠ»ΡΠ½ΠΎ.
- ΠΡΠΊΡΠΎΠΉΡΠ΅ ΠΊΠΎΡΠΎΠ±ΠΊΡ Ρ Π΄ΠΎΠ²ΠΎΠ΄ΡΠΈΠΊΠΎΠΌ, Π½Π°ΠΉΠ΄ΠΈΡΠ΅ ΠΈΠ½ΡΡΡΡΠΊΡΠΈΡ. ΠΡΠΎΠΈΠ·Π²ΠΎΠ΄ΠΈΡΠ΅Π»ΠΈ Π²ΠΌΠ΅ΡΡΠ΅ Ρ Π΄ΠΎΠ²ΠΎΠ΄ΡΠΈΠΊΠΎΠΌ ΠΊΠΎΠΌΠΏΠ»Π΅ΠΊΡΡΡΡ ΠΊΠΎΡΠΎΠ±ΠΊΡ ΡΠ°Π±Π»ΠΎΠ½ΠΎΠΌ Π² Π½Π°ΡΡΡΠ°Π»ΡΠ½ΡΡ Π²Π΅Π»ΠΈΡΠΈΠ½Ρ, ΠΊΠΎΡΠΎΡΡΠΉ Π½Π°Π³Π»ΡΠ΄Π½ΠΎ ΠΈΠ»Π»ΡΡΡΡΠΈΡΡΠ΅Ρ ΡΠ°Π±ΠΎΡΡ.
- ΠΠ° ΡΠ°Π±Π»ΠΎΠ½Π΅ Π²Ρ Π½Π°ΠΉΠ΄Π΅ΡΠ΅ Π΄Π²Π΅ ΠΏΠ΅ΡΠΏΠ΅Π½Π΄ΠΈΠΊΡΠ»ΡΡΠ½ΡΠ΅ ΠΊΡΠ°ΡΠ½ΡΠ΅ Π»ΠΈΠ½ΠΈΠΈ, ΠΈΡ Π½Π΅ΠΎΠ±Ρ ΠΎΠ΄ΠΈΠΌΠΎ ΠΏΠ΅ΡΠ΅Π½Π΅ΡΡΠΈ Π½Π° ΠΏΠΎΠ»ΠΎΡΠ½ΠΎ Π΄Π²Π΅ΡΠΈ. ΠΠΎΡΠΈΠ·ΠΎΠ½ΡΠ°Π»ΡΠ½ΡΡ Π»ΠΈΠ½ΠΈΡ ΡΠΎΠ²ΠΌΠ΅ΡΡΠΈΡΠ΅ Ρ Π²Π΅ΡΡ Π½ΠΈΠΌ ΠΊΡΠ°Π΅ΠΌ Π΄Π²Π΅ΡΠ½ΠΎΠ³ΠΎ ΠΏΠΎΠ»ΠΎΡΠ½Π°, Π²Π΅ΡΡΠΈΠΊΠ°Π»ΡΠ½ΡΡ β Ρ ΠΎΡΡΡ ΡΠ°ΡΠΏΠΎΠ»ΠΎΠΆΠ΅Π½ΠΈΡ ΠΏΠ΅ΡΠ΅Π»Ρ. ΠΡΠΈ ΠΏΠΎΠΌΠΎΡΠΈ ΠΊΠ°ΡΠ°Π½Π΄Π°ΡΠ° ΠΏΠ΅ΡΠ΅Π½Π΅ΡΠΈΡΠ΅ ΡΠ°Π·ΠΌΠ΅ΡΠΊΡ Π½Π° Π΄Π²Π΅ΡΡ.
- ΠΠ° ΡΠΎΠΌ ΠΆΠ΅ ΡΠ°Π±Π»ΠΎΠ½Π΅ Π²Ρ Π½Π°ΠΉΠ΄Π΅ΡΠ΅ ΠΎΡΠΌΠ΅ΡΠ΅Π½Π½ΡΠ΅ ΠΌΠ΅ΡΡΠ° Π΄Π»Ρ ΠΎΡΠ²Π΅ΡΡΡΠΈΠΉ ΠΏΠΎΠ΄ ΡΡΡΡΠΏΡ. ΠΡΡΠΌΠΎ ΠΏΠΎ ΡΠ°Π±Π»ΠΎΠ½Ρ ΠΏΡΠΎΡΠ²Π΅ΡΠ»ΠΈΡΠ΅ Π½Π΅ΠΎΠ±Ρ ΠΎΠ΄ΠΈΠΌΡΠ΅ ΠΎΡΠ²Π΅ΡΡΡΠΈΡ. Π Π·Π°Π²ΠΈΡΠΈΠΌΠΎΡΡΠΈ ΠΎΡ Π²ΠΈΠ΄Π° Π΄Π²Π΅ΡΠΈ (ΠΌΠ΅ΡΠ°Π»Π»ΠΈΡΠ΅ΡΠΊΠ°Ρ ΠΈΠ»ΠΈ Π΄Π΅ΡΠ΅Π²ΡΠ½Π½Π°Ρ), Π²ΡΠ±Π΅ΡΠΈΡΠ΅ ΠΏΠΎΠ΄Ρ ΠΎΠ΄ΡΡΠ΅Π΅ ΡΠ²Π΅ΡΠ»ΠΎ ΠΈ ΠΎΡΠ»ΠΎΠΆΠΈΡΠ΅ Π½ΡΠΆΠ½ΡΠ΅ ΡΡΡΡΠΏΡ (Π² ΠΊΠΎΠΌΠΏΠ»Π΅ΠΊΡΠ΅ Ρ Π΄ΠΎΠ²ΠΎΠ΄ΡΠΈΠΊΠΎΠΌ ΠΎΠ±ΡΡΠ½ΠΎ ΠΈΠ΄ΡΡ ΠΎΠ±Π° Π²Π°ΡΠΈΠ°Π½ΡΠ°).
- Π£ΡΡΠ°Π½Π°Π²Π»ΠΈΠ²Π°Π΅ΠΌ Π΄ΠΎΠ²ΠΎΠ΄ΡΠΈΠΊ Π½Π° ΡΠ²ΠΎΠ΅ ΠΌΠ΅ΡΡΠΎ.
ΠΠΎΡΠΏΡΡ Π΄ΠΎΠ²ΠΎΠ΄ΡΠΈΠΊΠ° ΠΌΠΎΠ½ΡΠΈΡΡΠΉΡΠ΅ Π½Π° Π΄Π²Π΅ΡΡ, ΡΡΠ³Ρ β Π½Π° Π΄Π²Π΅ΡΠ½ΡΡ ΠΊΠΎΡΠΎΠ±ΠΊΡ. Π‘ΠΎΠ΅Π΄ΠΈΠ½ΠΈΡΠ΅ ΠΊΠΎΡΠΏΡΡ Ρ ΡΡΠ³ΠΎΠΉ ΠΏΠΎΡΡΠ΅Π΄ΡΡΠ²ΠΎΠΌ ΠΈΠ΄ΡΡΠ΅Π³ΠΎ Π² ΠΊΠΎΠΌΠΏΠ»Π΅ΠΊΡΠ΅ ΡΡΡΠ°Π³Π°. ΠΠΎΠΌΠ½ΠΈΡΠ΅, ΡΡΠΎ ΠΎΡ Π²ΠΈΠ΄Π° ΡΠΎΠ΅Π΄ΠΈΠ½Π΅Π½ΠΈΡ Π·Π°Π²ΠΈΡΠΈΡ ΡΡΠΈΠ»ΠΈΠ΅. ΠΡΠ»ΠΈ ΡΡΠ³Π° ΡΠ°ΡΠΏΠΎΠ»ΠΎΠΆΠ΅Π½Π° ΠΏΠ΅ΡΠΏΠ΅Π½Π΄ΠΈΠΊΡΠ»ΡΡΠ½ΠΎ ΠΊ ΠΊΠΎΡΠΏΡΡΡ, Π·Π°ΠΊΡΡΠ²Π°Π½ΠΈΠ΅ Π΄Π²Π΅ΡΠ΅ΠΉ Π±ΡΠ΄Π΅Ρ ΠΌΠ΅Π΄Π»Π΅Π½Π½ΠΎΠ΅ ΠΈ ΠΏΠ»Π°Π²Π½ΠΎΠ΅. ΠΡΠ»ΠΈ ΠΏΠ΅ΡΠΏΠ΅Π½Π΄ΠΈΠΊΡΠ»ΡΡΠ½ΠΎ ΠΊ ΠΊΠΎΡΠΏΡΡΡ Π½Π°Ρ
ΠΎΠ΄ΠΈΡΡΡ ΡΡΡΠ°Π³, Π° ΡΡΠ³Π° ΠΏΠΎΠ΄ ΡΠ³Π»ΠΎΠΌ β Π΄Π²Π΅ΡΡ Π±ΡΠ΄Π΅Ρ Π·Π°ΠΊΡΡΠ²Π°ΡΡΡΡ Ρ Π±ΠΎΠ»ΡΡΠΈΠΌ ΡΡΠΈΠ»ΠΈΠ΅ΠΌ. ΠΡΠΎΡ Π²Π°ΡΠΈΠ°Π½Ρ ΡΡΠ΅Π±ΡΠ΅ΡΡΡ Π² ΡΠ»ΡΡΠ°ΡΡ
, ΠΊΠΎΠ³Π΄Π° Π΄Π²Π΅ΡΡ Π·Π°ΠΊΡΡΠ²Π°Π΅ΡΡΡ ΡΠ΅ΡΠ΅Π· Π·Π°ΡΠ΅Π»ΠΊΡ.
ΠΠ° ΡΡΠΎΠΌ ΠΌΠΎΠ½ΡΠ°ΠΆ Π΄Π²Π΅ΡΠ½ΠΎΠ³ΠΎ Π΄ΠΎΠ²ΠΎΠ΄ΡΠΈΠΊΠ° Π·Π°Π²Π΅ΡΡΠ΅Π½. ΠΡΡΠ°Π»ΠΎΡΡ ΠΎΡΡΠ΅Π³ΡΠ»ΠΈΡΠΎΠ²Π°ΡΡ Π΄ΠΎΠ²ΠΎΠ΄ΡΠΈΠΊ ΠΈ ΡΠΈΠ»Ρ ΡΡΠ³ΠΈ ΠΏΡΠΈ ΠΏΠΎΠΌΠΎΡΠΈ ΡΠ΅Π³ΡΠ»ΠΈΡΠΎΠ²ΠΎΡΠ½ΡΡ Π²ΠΈΠ½ΡΠΎΠ², ΠΈ ΡΠ°Π±ΠΎΡΠ° Π·Π°Π²Π΅ΡΡΠ΅Π½Π°.
ΠΡΠ±ΠΎΡ Π΄Π²Π΅ΡΠ½ΠΎΠ³ΠΎ Π΄ΠΎΠ²ΠΎΠ΄ΡΠΈΠΊΠ° β Π½Π΅ΠΎΠ±Ρ ΠΎΠ΄ΠΈΠΌΡΠΉ ΡΡΠ°ΠΏ Π² ΡΠΎΠ·Π΄Π°Π½ΠΈΠΈ ΡΠ΅ΠΏΠ»ΠΎΠ³ΠΎ ΠΈ ΠΊΠΎΠΌΡΠΎΡΡΠ½ΠΎΠ³ΠΎ ΠΌΠΈΠΊΡΠΎΠΊΠ»ΠΈΠΌΠ°ΡΠ° Π² Π²Π°ΡΠ΅ΠΌ Π΄ΠΎΠΌΠ΅.
Π‘ΡΠ°Π½ΡΡΠ΅ Π½Π°ΡΠΈΠΌ Π°Π²ΡΠΎΡΠΎΠΌ
ΠΠ°ΠΆΠ΄ΡΠΉ ΡΠ΅Π»ΠΎΠ²Π΅ΠΊ β ΠΎΡΠΎΠ±Π΅Π½Π½ΡΠΉ, ΠΈ ΠΎΠΏΡΡ ΠΊΠ°ΠΆΠ΄ΠΎΠ³ΠΎ β ΡΠ½ΠΈΠΊΠ°Π»Π΅Π½. Π Π°ΡΡΠΊΠ°ΠΆΠΈΡΠ΅ ΠΎ ΡΠ²ΠΎΠ΅ΠΌ. ΠΠ°ΡΠ°Π±ΠΎΡΠ°ΠΉΡΠ΅ ΠΏΡΠΈΠ·Π½Π°Π½ΠΈΠ΅ ΠΈ Π±Π»Π°Π³ΠΎΠ΄Π°ΡΠ½ΠΎΡΡΡ Π½Π°ΡΠΈΡ ΡΠΈΡΠ°ΡΠ΅Π»Π΅ΠΉ.
ΠΠΎΠ²ΠΎΠ΄ΡΠΈΠΊ Π΄Π²Π΅ΡΠ½ΠΎΠΉ ΡΠ°ΡΡΠΎ ΡΡΡΠ°Π½Π°Π²Π»ΠΈΠ²Π°Π΅ΡΡΡ Π½Π° ΡΡΠ²ΠΎΡΠΊΡ Π΄Π²Π΅ΡΠΈ, ΡΡΠΎ ΠΏΠΎΠ·Π²ΠΎΠ»ΡΠ΅Ρ ΡΠΏΡΠΎΡΡΠΈΡΡ ΠΏΡΠΎΡΠ΅ΡΡ ΠΎΡΠΊΡΡΠ²Π°Π½ΠΈΡ. ΠΡΠΎΡ ΠΌΠ΅Ρ Π°Π½ΠΈΠ·ΠΌ ΠΏΡΠΈΠ½ΠΈΠΌΠ°Π΅Ρ Π½Π° ΡΠ΅Π±Ρ ΡΡΡΠ΅ΡΡΠ²Π΅Π½Π½ΡΡ ΡΠ°ΡΡΡ ΡΡΠΈΠ»ΠΈΡ, ΠΊΠΎΡΠΎΡΠΎΠ΅ ΠΏΡΠΈΠΊΠ»Π°Π΄ΡΠ²Π°Π΅ΡΡΡ ΡΠ΅Π»ΠΎΠ²Π΅ΠΊΠΎΠΌ, ΠΏΡΠΈ ΡΠ°ΠΊΠΎΠΌ ΠΏΡΠΈΠ½ΡΠΈΠΏΠ΅ Π΄Π΅ΠΉΡΡΠ²ΠΈΡ ΠΏΡΠΎΠΏΠ°Π΄Π°Π΅Ρ Π½Π΅ΠΎΠ±Ρ ΠΎΠ΄ΠΈΠΌΠΎΡΡΡ Π² ΠΊΠΎΠ½ΡΡΠΎΠ»Π΅ ΡΠ°Π±ΠΎΡΡ Π΄Π²Π΅ΡΠ½ΠΎΠ³ΠΎ ΠΏΠΎΠ»ΠΎΡΠ½Π°. ΠΠ½ΠΎ Π»Π΅Π³ΠΊΠΎ ΠΎΡΠΊΡΡΠ²Π°Π΅ΡΡΡ ΠΈ ΠΏΠ»Π°Π²Π½ΠΎ Π²ΠΎΠ·Π²ΡΠ°ΡΠ°Π΅ΡΡΡ Π² ΠΈΡΡ ΠΎΠ΄Π½ΠΎΠ΅ ΠΏΠΎΠ»ΠΎΠΆΠ΅Π½ΠΈΠ΅. ΠΠ΄Π½Π°ΠΊΠΎ Π΄Π»Ρ Π·Π°ΠΊΡΡΠ²Π°Π½ΠΈΡ Π΄Π²Π΅ΡΠΈ ΠΌΠΎΠ½ΡΠ°ΠΆ Π΄ΠΎΠ²ΠΎΠ΄ΡΠΈΠΊΠ° Π½Π΅ ΡΠ²Π»ΡΠ΅ΡΡΡ ΠΎΠ±ΡΠ·Π°ΡΠ΅Π»ΡΠ½ΡΠΌ ΡΡΠ»ΠΎΠ²ΠΈΠ΅ΠΌ. ΠΠ³ΠΎ ΠΏΡΠ΅Π΄ΠΏΠΎΡΡΠΈΡΠ΅Π»ΡΠ½ΠΎ ΡΡΡΠ°Π½Π°Π²Π»ΠΈΠ²Π°ΡΡ Π² ΠΌΠ΅ΡΡΠ°Ρ Ρ ΠΏΠΎΠ²ΡΡΠ΅Π½Π½ΠΎΠΉ ΠΏΡΠΎΡ ΠΎΠ΄ΠΈΠΌΠΎΡΡΡΡ, ΡΡΠΎ ΡΠΏΠΎΡΠΎΠ±ΡΡΠ²ΡΠ΅Ρ ΡΠ½ΠΈΠΆΠ΅Π½ΠΈΡ ΠΈΠ·Π½ΠΎΡΠ° Π΄Π²Π΅ΡΠ½ΠΎΠ³ΠΎ ΠΌΠ΅Ρ Π°Π½ΠΈΠ·ΠΌΠ°.
ΠΡΠΈΠ½ΡΠΈΠΏ Π΄Π΅ΠΉΡΡΠ²ΠΈΡ
ΠΡΠ»ΠΈ ΠΈΠ½ΡΠ΅ΡΠ΅ΡΠ½ΠΎ, ΠΊΠ°ΠΊ ΡΠ°Π±ΠΎΡΠ°ΡΡ Π΄ΠΎΠ²ΠΎΠ΄ΡΠΈΠΊΠΈ, ΡΠ»Π΅Π΄ΡΠ΅Ρ Π·Π½Π°ΡΡ, ΡΡΠΎ Π² ΠΎΡΠ½ΠΎΠ²Π΅ ΠΊΠΎΠ½ΡΡΡΡΠΊΡΠΈΠΈ Π»Π΅ΠΆΠΈΡ ΠΏΡΡΠΆΠΈΠ½Π°, Π½ΠΎ ΠΏΡΠ΅Π΄ΡΡΠΌΠ°ΡΡΠΈΠ²Π°ΡΡΡΡ ΠΈ Π²ΡΠΏΠΎΠΌΠΎΠ³Π°ΡΠ΅Π»ΡΠ½ΡΠ΅ ΡΠ»Π΅ΠΌΠ΅Π½ΡΡ. ΠΠ½Π° Π½Π°ΠΊΠ°ΠΏΠ»ΠΈΠ²Π°Π΅Ρ ΠΌΠ΅Ρ Π°Π½ΠΈΡΠ΅ΡΠΊΡΡ ΡΠ½Π΅ΡΠ³ΠΈΡ, ΡΠΆΠΈΠΌΠ°ΡΡΡ. ΠΠΎΠ³Π΄Π° ΡΠ΅Π»ΠΎΠ²Π΅ΠΊ ΠΎΡΠΏΡΡΠΊΠ°Π΅Ρ ΡΡΠ²ΠΎΡΠΊΡ, ΠΏΡΡΠΆΠΈΠ½Π° ΡΠ°ΡΠΏΡΡΠΌΠ»ΡΠ΅ΡΡΡ. ΠΡΠΎΠΌΠ΅ ΡΠΎΠ³ΠΎ, Π΄ΠΎΠ²ΠΎΠ΄ΡΠΈΠΊΠΈ Π΄Π»Ρ Π²Ρ ΠΎΠ΄Π½ΡΡ Π΄Π²Π΅ΡΠ΅ΠΉ ΡΠ°Π±ΠΎΡΠ°ΡΡ ΠΏΠ»Π°Π²Π½ΠΎ. Π’Π°ΠΊΠ°Ρ Π²ΠΎΠ·ΠΌΠΎΠΆΠ½ΠΎΡΡΡ ΠΎΠ±Π΅ΡΠΏΠ΅ΡΠΈΠ²Π°Π΅ΡΡΡ Π±Π»Π°Π³ΠΎΠ΄Π°ΡΡ Π³ΠΈΠ΄ΡΠ°Π²Π»ΠΈΡΠ΅ΡΠΊΠΎΠΉ ΡΠΈΡΡΠ΅ΠΌΠ΅.
Π§ΡΠΎΠ±Ρ ΠΏΡΡΠΆΠΈΠ½Π° ΡΠ°ΡΠΏΡΡΠΌΠ»ΡΠ»Π°ΡΡ ΠΏΠ»Π°Π²Π½ΠΎ, ΠΈΡΠΏΠΎΠ»ΡΠ·ΡΠ΅ΡΡΡ ΠΌΠ°ΡΠ»ΡΠ½ΡΠΉ Π°ΠΌΠΎΡΡΠΈΠ·Π°ΡΠΎΡ. Π ΠΊΠΎΠ½ΡΡΡΡΠΊΡΠΈΡ Π·Π°Π»ΠΎΠΆΠ΅Π½Π° ΡΠΈΡΡΠ΅ΠΌΠ° ΡΠΏΠ΅ΡΠΈΠ°Π»ΡΠ½ΡΡ
ΠΊΠ»Π°ΠΏΠ°Π½ΠΎΠ², Π±Π»Π°Π³ΠΎΠ΄Π°ΡΡ ΠΊΠΎΡΠΎΡΠΎΠΉ ΠΌΠ°ΡΠ»ΠΎ ΠΏΠ΅ΡΠ΅ΡΠ΅ΠΊΠ°Π΅Ρ ΠΈΠ· ΠΊΠ°ΠΌΠ΅ΡΡ Π² ΠΊΠ°ΠΌΠ΅ΡΡ.
Π’Π°ΠΊΠΈΠΌ ΡΠΏΠΎΡΠΎΠ±ΠΎΠΌ ΡΠ΅Π³ΡΠ»ΠΈΡΡΠ΅ΡΡΡ ΡΠΊΠΎΡΠΎΡΡΡ ΡΠ°Π±ΠΎΡΡ ΡΡΡΠ°Π½ΠΎΠ²Π»Π΅Π½Π½ΠΎΠ³ΠΎ Π΄ΠΎΠ²ΠΎΠ΄ΡΠΈΠΊΠ°, Π° Π²ΠΌΠ΅ΡΡΠ΅ Ρ ΡΠ΅ΠΌ ΠΈ ΡΠΊΠΎΡΠΎΡΡΡ Π΄Π²ΠΈΠΆΠ΅Π½ΠΈΡ ΠΏΠΎΠ»ΠΎΡΠ½Π°. ΠΠ»Π°Π³ΠΎΠ΄Π°ΡΡ Π΄ΠΎΡΡΠ°ΡΠΎΡΠ½ΠΎΠΌΡ ΡΡΠΎΠ²Π½Ρ Π²ΡΠ·ΠΊΠΎΡΡΠΈ ΠΎΠ±Π΅ΡΠΏΠ΅ΡΠΈΠ²Π°Π΅ΡΡΡ Π΅ΡΠ΅ ΠΈ Π±Π΅ΡΡΡΠΌΠ½ΠΎΠ΅ Π΄Π΅ΠΉΡΡΠ²ΠΈΠ΅ ΠΌΠ΅Ρ
Π°Π½ΠΈΠ·ΠΌΠ°.
ΠΠ½ΡΡΡΠ΅Π½Π½ΡΡ ΠΊΠΎΠ½ΡΡΡΡΠΊΡΠΈΡ
- ΡΡΠ³Π° β ΡΠΎΠ΅Π΄ΠΈΠ½ΡΠ΅Ρ Π΄Π²Π΅ΡΡΡ ΠΈ ΠΊΠΎΡΠΎΠ± Π΄ΠΎΠ²ΠΎΠ΄ΡΠΈΠΊΠ°, Ρ ΠΏΠΎΠΌΠΎΡΡΡ ΡΡΠΎΠ³ΠΎ ΡΠ»Π΅ΠΌΠ΅Π½ΡΠ° ΠΏΠ΅ΡΠ΅Π΄Π°Π΅ΡΡΡ ΡΡΠΈΠ»ΠΈΠ΅, ΠΊΠΎΡΠΎΡΠΎΠ΅ ΠΏΡΠΈΠΊΠ»Π°Π΄ΡΠ²Π°Π΅Ρ ΡΠ΅Π»ΠΎΠ²Π΅ΠΊ ΠΊ Π΄Π²Π΅ΡΠΈ, ΠΏΡΡΠ°ΡΡΡ Π΅Π΅ ΠΎΡΠΊΡΡΡΡ;
- ΠΏΠΎΠ²ΠΎΡΠΎΡΠ½Π°Ρ ΠΎΡΡ;
- ΡΠΈΠ»ΠΈΠ½Π΄ΡΠΈΡΠ΅ΡΠΊΠΈΠΉ ΠΏΠΎΡΡΠ΅Π½Ρ, ΡΠΎΠ΅Π΄ΠΈΠ½Π΅Π½Π½ΡΠΉ Ρ ΠΏΡΡΠΆΠΈΠ½ΠΎΠΉ, β ΡΠ·Π΅Π» ΠΏΡΠΈΠ²ΠΎΠ΄ΠΈΡΡΡ Π² Π΄Π²ΠΈΠΆΠ΅Π½ΠΈΠ΅ Π±Π»Π°Π³ΠΎΠ΄Π°ΡΡ ΡΠ΅ΡΡΠ΅ΡΠ΅Π½ΠΊΠ΅, ΠΊΠΎΡΠΎΡΠ°Ρ, Π² ΡΠ²ΠΎΡ ΠΎΡΠ΅ΡΠ΅Π΄Ρ, Π·Π°Π²ΠΈΡΠΈΡ ΠΎΡ ΠΏΠΎΠ»ΠΎΠΆΠ΅Π½ΠΈΡ ΠΏΠΎΠ²ΠΎΡΠΎΡΠ½ΠΎΠΉ ΠΎΡΠΈ;
- ΠΌΠ°ΡΠ»ΡΠ½ΡΠ΅ ΠΊΠ»Π°ΠΏΠ°Π½Ρ, ΡΠΎΠ΄Π΅ΡΠΆΠ°ΡΠΈΠ΅ Π²ΡΠ·ΠΊΡΡ ΠΆΠΈΠ΄ΠΊΠΎΡΡΡ, ΠΏΠΎΡΡΠ΅Π΄ΡΡΠ²ΠΎΠΌ ΠΊΠΎΡΠΎΡΠΎΠΉ ΠΎΠ±Π΅ΡΠΏΠ΅ΡΠΈΠ²Π°Π΅ΡΡΡ ΠΏΠ»Π°Π²Π½ΠΎΠ΅ Π΄Π²ΠΈΠΆΠ΅Π½ΠΈΠ΅ ΠΊΠΎΠ½ΡΡΡΡΠΊΡΠΈΠΈ;
- ΡΠ΅Π³ΡΠ»ΠΈΡΠΎΠ²ΠΎΡΠ½ΡΠΉ Π²ΠΈΠ½Ρ β ΠΏΠΎΠ·Π²ΠΎΠ»ΡΠ΅Ρ Π·Π°Π΄Π°Π²Π°ΡΡ ΠΌΠΎΡΠ½ΠΎΡΡΡ ΡΠΆΠ°ΡΠΈΡ ΠΏΡΡΠΆΠΈΠ½Ρ;
- Π²ΠΈΠ½Ρ, ΠΎΡΠ²Π΅ΡΡΡΠ²Π΅Π½Π½ΡΠΉ Π·Π° ΠΎΠ³ΡΠ°Π½ΠΈΡΠ΅Π½ΠΈΠ΅ ΠΏΡΠΈ ΠΎΡΠΊΡΡΠ²Π°Π½ΠΈΠΈ ΡΡΠ²ΠΎΡΠΊΠΈ.
ΠΡΠΈΠ½ΡΠΈΠΏ ΡΠ°Π±ΠΎΡΡ Π΄Π²Π΅ΡΠ½ΠΎΠ³ΠΎ Π΄ΠΎΠ²ΠΎΠ΄ΡΠΈΠΊΠ° ΠΎΡΠ½ΠΎΠ²Π°Π½ Π½Π° Π²Π·Π°ΠΈΠΌΠΎΠ΄Π΅ΠΉΡΡΠ²ΠΈΠΈ Π΄Π²ΡΡ Π³Π»Π°Π²Π½ΡΡ ΡΠ·Π»ΠΎΠ²: ΠΏΠΎΡΡΠ½Ρ Ρ ΠΏΡΡΠΆΠΈΠ½ΠΎΠΉ ΠΈ ΡΠΈΡΡΠ΅ΠΌΡ ΠΊΠ»Π°ΠΏΠ°Π½ΠΎΠ². ΠΡΡΠ°Π»ΡΠ½ΡΠ΅ ΡΠ»Π΅ΠΌΠ΅Π½ΡΡ ΡΠ²Π»ΡΡΡΡΡ Π²ΡΠΏΠΎΠΌΠΎΠ³Π°ΡΠ΅Π»ΡΠ½ΡΠΌΠΈ Π² ΡΡ Π΅ΠΌΠ΅ ΠΈ ΠΏΠΎΠΌΠΎΠ³Π°ΡΡ ΠΎΠ±Π΅ΡΠΏΠ΅ΡΠΈΡΡ ΠΏΡΠ°Π²ΠΈΠ»ΡΠ½ΡΡ ΡΠ΅Π³ΡΠ»ΠΈΡΠΎΠ²ΠΊΡ ΠΌΠ΅Ρ Π°Π½ΠΈΠ·ΠΌΠ°. ΠΠΎΡΡΠ΅Π΄ΡΡΠ²ΠΎΠΌ Π²ΠΈΠ½ΡΠΎΠ² ΠΎΡΡΡΠ΅ΡΡΠ²Π»ΡΠ΅ΡΡΡ ΠΊΠΎΠ½ΡΡΠΎΠ»Ρ ΡΠ°Π±ΠΎΡΡ Π΄ΠΎΠ²ΠΎΠ΄ΡΠΈΠΊΠ°. ΠΠ΅Π· ΡΡΠΈΡ ΡΠ»Π΅ΠΌΠ΅Π½ΡΠΎΠ² ΡΡΠ²ΠΎΡΠΊΠ° Π±ΡΠ΄Π΅Ρ Π·Π°ΠΊΡΡΠ²Π°ΡΡΡΡ ΡΠ»ΠΈΡΠΊΠΎΠΌ ΠΌΠ΅Π΄Π»Π΅Π½Π½ΠΎ ΠΈΠ»ΠΈ, Π½Π°ΠΎΠ±ΠΎΡΠΎΡ, Π±ΡΡΡΡΠΎ, Π° Π΅ΡΠ΅ ΡΠΎΠ·Π΄Π°ΡΡ ΡΡΠΌΠΎΠ²ΠΎΠΉ ΡΡΡΠ΅ΠΊΡ. Π£ΡΡΡΠΎΠΉΡΡΠ²ΠΎ Π΄ΠΎΠ²ΠΎΠ΄ΡΠΈΠΊΠ° Π΄Π²Π΅ΡΠΈ, Π² ΡΠ°ΡΡΠ½ΠΎΡΡΠΈ ΡΡΡΠ°ΠΆΠ½ΠΎΠΉ ΡΡΠ³ΠΈ ΠΈ ΠΊΠΎΡΠΏΡΡΠ°, ΠΌΠΎΠΆΠ΅Ρ Π±ΡΡΡ ΡΠ°Π·Π½ΡΠΌ, Π½Π° ΠΎΡΠ½ΠΎΠ²Π°Π½ΠΈΠΈ ΡΡΠΎΠ³ΠΎ ΠΊΠΎΠ½ΡΡΡΡΠΊΡΠΈΡ ΠΏΠΎΠ΄ΡΠ°Π·Π΄Π΅Π»ΡΠ΅ΡΡΡ Π½Π° Π³ΡΡΠΏΠΏΡ.
Π’ΠΈΠΏΡ ΠΈ Π²ΠΈΠ΄Ρ Π΄ΠΎΠ²ΠΎΠ΄ΡΠΈΠΊΠΎΠ²
ΠΡΠ΄Π΅Π»ΡΡΡ 3 Π³Π»Π°Π²Π½ΡΡ ΡΠ°Π·Π½ΠΎΠ²ΠΈΠ΄Π½ΠΎΡΡΠΈ ΠΏΠΎΠ΄ΠΎΠ±Π½ΡΡ ΠΊΠΎΠ½ΡΡΡΡΠΊΡΠΈΠΉ:
- Π²Π΅ΡΡ Π½ΡΡ;
- Π½ΠΈΠΆΠ½ΡΡ, ΠΈΠ»ΠΈ Π½Π°ΠΏΠΎΠ»ΡΠ½Π°Ρ;
- ΡΠΊΡΡΡΠ°Ρ, ΠΈΠ»ΠΈ Π²ΡΠ΅Π·Π½Π°Ρ.
Π ΠΏΠ΅ΡΠ²ΠΎΠΌ ΡΠ»ΡΡΠ°Π΅ ΠΌΠ΅Ρ Π°Π½ΠΈΠ·ΠΌ ΡΡΡΠ°Π½Π°Π²Π»ΠΈΠ²Π°Π΅ΡΡΡ Π² Π²Π΅ΡΡ Π½Π΅ΠΉ ΡΠ°ΡΡΠΈ ΡΡΠ²ΠΎΡΠΊΠΈ. ΠΡΠΎΡΠΎΠΉ Π²Π°ΡΠΈΠ°Π½Ρ ΠΏΡΠ΅Π΄ΠΏΠΎΠ»Π°Π³Π°Π΅Ρ Π½Π΅ΠΎΠ±Ρ ΠΎΠ΄ΠΈΠΌΠΎΡΡΡ ΠΌΠΎΠ½ΡΠ°ΠΆΠ° ΠΈΠ·Π΄Π΅Π»ΠΈΡ Π²Π½ΠΈΠ·Ρ Π΄Π²Π΅ΡΠ½ΠΎΠ³ΠΎ ΠΏΠΎΠ»ΠΎΡΠ½Π°, ΠΏΡΠΈΠ²ΠΎΠ΄Π½ΠΎΠΉ ΠΌΠ΅Ρ Π°Π½ΠΈΠ·ΠΌ ΠΊΡΠ΅ΠΏΠΈΡΡΡ Π½Π° ΠΏΠΎΠ»Ρ. Π‘ΠΊΡΡΡΡΠΉ, ΠΈΠ»ΠΈ Π²Π½ΡΡΡΠ΅Π½Π½ΠΈΠΉ, ΠΌΠ΅Ρ Π°Π½ΠΈΠ·ΠΌ ΠΎΡΡΠ°Π΅ΡΡΡ Π½Π΅Π·Π°ΠΌΠ΅ΡΠ½ΡΠΌ ΠΏΡΠΈ Π²Π·Π³Π»ΡΠ΄Π΅ Π½Π° ΡΡΠ²ΠΎΡΠΊΡ. ΠΠΎ ΡΠ΅Π»Π΅Π²ΠΎΠΌΡ Π½Π°Π·Π½Π°ΡΠ΅Π½ΠΈΡ ΠΏΡΠΈΡΠΏΠΎΡΠΎΠ±Π»Π΅Π½ΠΈΡ ΠΏΠΎΠ΄ΡΠ°Π·Π΄Π΅Π»ΡΡΡΡΡ:
ΠΠ΅ΡΠ²ΡΠΉ ΠΈΠ· Π²Π°ΡΠΈΠ°Π½ΡΠΎΠ² ΠΏΡΠ΅Π΄Π½Π°Π·Π½Π°ΡΠ΅Π½ Π΄Π»Ρ ΡΡΡΠ°Π½ΠΎΠ²ΠΊΠΈ Π² ΠΏΠΎΠΌΠ΅ΡΠ΅Π½ΠΈΠΈ, ΡΡΠΎ ΠΏΠΎΠ·Π²ΠΎΠ»ΡΠ΅Ρ ΠΏΡΠΎΠ΄Π»ΠΈΡΡ ΡΡΠΎΠΊ Π΅Π³ΠΎ ΡΠ»ΡΠΆΠ±Ρ.
Π£Π»ΠΈΡΠ½ΡΠ΅ Π°Π½Π°Π»ΠΎΠ³ΠΈ ΠΎΡΠ»ΠΈΡΠ°ΡΡΡΡ ΡΡΠΈΠ»Π΅Π½Π½ΠΎΠΉ ΠΊΠΎΠ½ΡΡΡΡΠΊΡΠΈΠ΅ΠΉ, ΠΎΠ½ΠΈ Π»ΡΡΡΠ΅ Π·Π°ΡΠΈΡΠ΅Π½Ρ ΠΎΡ Π²ΠΎΠ·Π΄Π΅ΠΉΡΡΠ²ΠΈΡ Π²Π½Π΅ΡΠ½ΠΈΡ
ΡΠ°ΠΊΡΠΎΡΠΎΠ². ΠΡΠΎΠΌΠ΅ ΡΠΎΠ³ΠΎ, ΡΡΡΠ΅ΡΡΠ²ΡΠ΅Ρ Π΄ΠΎΠ²ΠΎΠ΄ΡΠΈΠΊ Π΄Π»Ρ ΡΠ°Π·Π΄Π²ΠΈΠΆΠ½ΡΡ
Π΄Π²Π΅ΡΠ΅ΠΉ ΠΈ ΠΌΠ΅Ρ
Π°Π½ΠΈΠ·ΠΌΡ Π΄Π»Ρ ΡΠ°ΡΠΏΠ°ΡΠ½ΡΡ
ΡΡΠ²ΠΎΡΠΎΠΊ. ΠΠ΅ΡΠ²ΡΠΉ ΠΈΠ· Π²Π°ΡΠΈΠ°Π½ΡΠΎΠ² ΠΎΡΠ½Π°ΡΠ΅Π½ Π»ΠΈΠ½Π΅ΠΉΠ½ΠΎΠΉ ΡΡΠ³ΠΎΠΉ, ΠΏΡΠΈ ΡΡΠΎΠΌ ΠΏΠΎΠ»ΠΎΡΠ½ΠΎ Π±ΡΠ΄Π΅Ρ Π΄Π²ΠΈΠ³Π°ΡΡΡΡ Π²Π΄ΠΎΠ»Ρ ΡΡΠ΅Π½Ρ. Π£ΡΡΡΠΎΠΉΡΡΠ²ΠΎ Π΄Π»Ρ ΡΠ°ΡΠΏΠ°ΡΠ½ΡΡ
Π΄Π²Π΅ΡΠ΅ΠΉ ΠΏΡΠ΅Π΄ΠΏΠΎΠ»Π°Π³Π°Π΅Ρ Π² ΠΊΠΎΠ½ΡΡΡΡΠΊΡΠΈΠΈ Π½Π°Π»ΠΈΡΠΈΠ΅ ΡΡΠ³ΠΈ, ΡΠΏΠΎΡΠΎΠ±Π½ΠΎΠΉ ΠΌΠ΅Π½ΡΡΡ ΠΏΠΎΠ»ΠΎΠΆΠ΅Π½ΠΈΠ΅. ΠΡΠ»ΠΈ ΠΏΠΎΠ»ΠΎΡΠ½ΠΎ ΠΎΡΠΊΡΡΡΡ, ΡΠΎ ΡΡΠ³Π° Π±ΡΠ΄Π΅Ρ Π΄Π²ΠΈΠ³Π°ΡΡΡΡ ΠΏΠΎ Π½Π°ΠΏΡΠ°Π²Π»Π΅Π½ΠΈΡ ΠΎΡ Π½Π΅ΡΡΡΠΈΡ
ΡΡΠ΅Π½.
ΠΡΡΠΆΠΈΠ½Π½ΡΠΉ
ΠΡΠ΄Π΅Π»ΡΠ½ΠΎ ΡΠ»Π΅Π΄ΡΠ΅Ρ ΡΠ°ΡΡΠΌΠΎΡΡΠ΅ΡΡ ΠΌΠ΅Ρ Π°Π½ΠΈΠ·ΠΌ Π΄ΠΎΠ²ΠΎΠ΄ΡΠΈΠΊΠ° Π΄Π»Ρ ΠΌΠ°ΡΡΠ½ΠΈΠΊΠΎΠ²ΡΡ ΠΊΠΎΠ½ΡΡΡΡΠΊΡΠΈΠΉ. Π Π΄Π°Π½Π½ΠΎΠΌ ΡΠ»ΡΡΠ°Π΅ Π½Π΅Ρ Π²ΠΎΠ·ΠΌΠΎΠΆΠ½ΠΎΡΡΠΈ ΠΈΡΠΏΠΎΠ»ΡΠ·ΠΎΠ²Π°ΡΡ ΠΊΠ»Π°ΡΡΠΈΡΠ΅ΡΠΊΠΎΠ΅ ΠΈΡΠΏΠΎΠ»Π½Π΅Π½ΠΈΠ΅ β Π΄Π»Ρ ΡΠ°ΡΠΏΠ°ΡΠ½ΡΡ Π΄Π²Π΅ΡΠ΅ΠΉ, Ρ. ΠΊ. ΠΏΠΎΠ»ΠΎΡΠ½ΠΎ ΠΌΠΎΠΆΠ΅Ρ Π΄Π²ΠΈΠ³Π°ΡΡΡΡ Π² ΠΏΡΠΎΡΠΈΠ²ΠΎΠΏΠΎΠ»ΠΎΠΆΠ½ΠΎΠΌ Π½Π°ΠΏΡΠ°Π²Π»Π΅Π½ΠΈΠΈ: Π²ΠΏΠ΅ΡΠ΅Π΄, Π½Π°Π·Π°Π΄, ΠΏΠΎΠ²ΡΠΎΡΡΡ Π΄Π²ΠΈΠΆΠ΅Π½ΠΈΠ΅ ΠΌΠ°ΡΡΠ½ΠΈΠΊΠ°. ΠΠ½Π°ΡΠΈΡ, Π½ΡΠΆΠ½ΠΎ ΠΈΡΠΏΠΎΠ»ΡΠ·ΠΎΠ²Π°ΡΡ Π°Π»ΡΡΠ΅ΡΠ½Π°ΡΠΈΠ²Π½ΠΎΠ΅ ΡΠ΅ΡΠ΅Π½ΠΈΠ΅. ΠΠΎ ΡΡΠΎΠΉ ΠΏΡΠΈΡΠΈΠ½Π΅, ΡΡΠΎΠ±Ρ ΠΊΠΎΠ½ΡΡΠΎΠ»ΠΈΡΠΎΠ²Π°ΡΡ Π΄Π²ΠΈΠΆΠ΅Π½ΠΈΡ Π΄Π²Π΅ΡΡΡ, ΠΏΡΠ΅Π΄ΡΡΠΌΠ°ΡΡΠΈΠ²Π°Π΅ΡΡΡ ΡΠΊΡΡΡΠΎΠ΅ ΠΈΠ»ΠΈ Π½Π°ΠΏΠΎΠ»ΡΠ½ΠΎΠ΅ ΠΈΡΠΏΠΎΠ»Π½Π΅Π½ΠΈΠ΅.
ΠΠ΅ΡΠ»ΠΈ Ρ Π΄ΠΎΠ²ΠΎΠ΄ΡΠΈΠΊΠΎΠΌ
ΠΡΠΎ ΠΊΠΎΠΌΠΏΠ°ΠΊΡΠ½Π°Ρ ΠΊΠΎΠ½ΡΡΡΡΠΊΡΠΈΡ, ΠΊΠΎΡΠΎΡΠ°Ρ ΡΠΎΠΆΠ΅ ΡΠ°Π±ΠΎΡΠ°Π΅Ρ Π½Π° ΠΎΡΠ½ΠΎΠ²Π΅ ΠΌΠ°ΡΠ»Π° Π² Π³ΠΈΠ΄ΡΠ°Π²Π»ΠΈΡΠ΅ΡΠΊΠΎΠΉ ΡΠΈΡΡΠ΅ΠΌΠ΅ ΠΈ ΡΠΈΠ»ΠΈΠ½Π΄ΡΠΈΡΠ΅ΡΠΊΠΎΠ³ΠΎ ΠΏΠΎΡΡΠ½Ρ. Π§ΡΠΎΠ±Ρ ΡΠ΅Π³ΡΠ»ΠΈΡΠΎΠ²Π°ΡΡ ΡΠΊΠΎΡΠΎΡΡΡ Π΄Π²ΠΈΠΆΠ΅Π½ΠΈΡ ΠΏΠΎΠ»ΠΎΡΠ½Π°, ΠΏΡΠ΅Π΄ΡΡΠΌΠ°ΡΡΠΈΠ²Π°ΡΡΡΡ Π²ΠΈΠ½ΡΡ, ΠΊΠΎΡΠΎΡΡΠ΅ ΡΠ°ΡΠΏΠΎΠ»Π°Π³Π°ΡΡΡΡ Π²ΠΎ Π²Π½ΡΡΡΠ΅Π½Π½Π΅ΠΉ ΡΠ°ΡΡΠΈ Π΄Π°Π½Π½ΠΎΠ³ΠΎ ΡΠ»Π΅ΠΌΠ΅Π½ΡΠ° ΡΡΡΠ½ΠΈΡΡΡΡ. Π Π΅Π³ΡΠ»ΠΈΡΠΎΠ²ΠΊΠ° ΠΎΡΡΡΠ΅ΡΡΠ²Π»ΡΠ΅ΡΡΡ ΠΏΠΎΡΡΠ΅Π΄ΡΡΠ²ΠΎΠΌ ΡΠ΅ΡΡΠΈΠ³ΡΠ°Π½Π½ΠΎΠ³ΠΎ ΠΊΠ»ΡΡΠ°. Π’Π°ΠΊΠΎΠΉ ΡΠΏΠΎΡΠΎΠ± ΡΠΏΡΠ°Π²Π»Π΅Π½ΠΈΡ ΠΏΠΎΠ΄Ρ ΠΎΠ΄ΠΈΡ Π΄Π»Ρ ΠΎΠ±Π»Π΅Π³ΡΠ΅Π½Π½ΡΡ Π²Π°ΡΠΈΠ°Π½ΡΠΎΠ². ΠΠ°ΡΡΠ° ΡΡΠ²ΠΎΡΠΊΠΈ Π΄ΠΎΠ»ΠΆΠ½Π° Π±ΡΡΡ Π² ΠΏΡΠ΅Π΄Π΅Π»Π°Ρ ΠΎΡ 50 Π΄ΠΎ 90 ΠΊΠ³, ΡΡΠΎ ΠΏΠΎΠ·Π²ΠΎΠ»ΠΈΡ ΡΡΡΠ°Π½ΠΎΠ²ΠΈΡΡ 2 ΡΠ°ΠΊΠΈΡ ΡΠ»Π΅ΠΌΠ΅Π½ΡΠ°. Π‘ΡΡΠ΅ΡΡΠ²ΡΠ΅Ρ Π΄ΠΎΠ²ΠΎΠ΄ΡΠΈΠΊ Π½Π° ΠΌΠ΅ΡΠ°Π»Π»ΠΈΡΠ΅ΡΠΊΡΡ Π΄Π²Π΅ΡΡ ΠΈ Π΄Π΅ΡΠ΅Π²ΡΠ½Π½ΡΡ ΡΡΠ²ΠΎΡΠΊΡ.
Π£Π»ΠΈΡΠ½ΡΠΉ
Π§Π°ΡΡΠΎ ΡΡΠ΅Π±ΡΠ΅ΡΡΡ ΡΡΠΎΠ²Π΅ΡΡΠ΅Π½ΡΡΠ²ΠΎΠ²Π°ΡΡ ΠΏΡΠΈΠ½ΡΠΈΠΏ Π΄Π΅ΠΉΡΡΠ²ΠΈΡ ΠΏΠΎΠ»ΠΎΡΠ½Π°, ΡΠ°ΡΠΏΠΎΠ»ΠΎΠΆΠ΅Π½Π½ΠΎΠ³ΠΎ Π½Π΅ Π²Π½ΡΡΡΠΈ ΠΎΠ±ΡΠ΅ΠΊΡΠ°, Π° ΡΠ½Π°ΡΡΠΆΠΈ, Π½Π°ΡΡΠΆΠ½ΡΠΉ ΡΠ»Π΅ΠΌΠ΅Π½Ρ ΠΏΡΠΈ ΡΡΠΎΠΌ Π΄ΠΎΠ»ΠΆΠ΅Π½ ΠΎΡΠ»ΠΈΡΠ°ΡΡΡΡ Π±ΠΎΠ»Π΅Π΅ ΠΌΠΎΡΠ½ΠΎΠΉ ΠΊΠΎΠ½ΡΡΡΡΠΊΡΠΈΠ΅ΠΉ. ΠΡΠ»ΠΈ ΡΡΠ΅ΡΡΡ, ΡΡΠΎ Π²Ρ
ΠΎΠ΄Π½ΡΠ΅ Π΄Π²Π΅ΡΠΈ Π²Π΅ΡΡΡ Π½Π°ΠΌΠ½ΠΎΠ³ΠΎ Π±ΠΎΠ»ΡΡΠ΅ ΠΌΠ΅ΠΆΠΊΠΎΠΌΠ½Π°ΡΠ½ΡΡ
ΠΈ ΠΎΡΠ»ΠΈΡΠ°ΡΡΡΡ ΠΊΡΡΠΏΠ½ΡΠΌΠΈ ΡΠ°Π·ΠΌΠ΅ΡΠ°ΠΌΠΈ, ΠΏΡΠΈ Π²ΡΠ±ΠΎΡΠ΅ Π½Π΅ΠΎΠ±Ρ
ΠΎΠ΄ΠΈΠΌΠΎ ΠΎΡΠΈΠ΅Π½ΡΠΈΡΠΎΠ²Π°ΡΡΡΡ Π½Π° ΠΏΠ°ΡΠ°ΠΌΠ΅ΡΡΡ ΡΡΠ²ΠΎΡΠΊΠΈ. ΠΡΠ»ΠΈ ΡΡΠΎΠ³ΠΎ Π½Π΅ ΡΠ΄Π΅Π»Π°ΡΡ, ΡΡΡΡΠΎΠΉΡΡΠ²ΠΎ Π½Π΅ Π±ΡΠ΄Π΅Ρ Π²ΡΠΏΠΎΠ»Π½ΡΡΡ ΡΠ²ΠΎΡ ΡΡΠ½ΠΊΡΠΈΡ. ΠΠΎΠΏΠΎΠ»Π½ΠΈΡΠ΅Π»ΡΠ½ΠΎ ΡΠ»Π΅Π΄ΡΠ΅Ρ ΠΏΡΠΈΠ½ΡΡΡ Π²ΠΎ Π²Π½ΠΈΠΌΠ°Π½ΠΈΠ΅ ΡΡΠ»ΠΎΠ²ΠΈΡ ΡΠΊΡΠΏΠ»ΡΠ°ΡΠ°ΡΠΈΠΈ. Π’Π°ΠΊ, Π½Π°ΠΏΡΠΈΠΌΠ΅Ρ, Π΄ΠΎΠ²ΠΎΠ΄ΡΠΈΠΊ Π½Π° ΠΏΠΎΠ΄ΡΠ΅Π·Π΄Π½ΡΡ Π΄Π²Π΅ΡΡ Π΄ΠΎΠ»ΠΆΠ΅Π½ Π²ΡΠ΄Π΅ΡΠΆΠΈΠ²Π°ΡΡ ΡΠ΅ΠΌΠΏΠ΅ΡΠ°ΡΡΡΡ Π² ΠΏΡΠ΅Π΄Π΅Π»Π°Ρ
-40β¦+65Β°Π‘.
ΠΠ°ΠΏΠΎΠ»ΡΠ½ΡΠ΅
ΠΠΎΠ΄ΠΎΠ±Π½ΡΠ΅ ΠΊΠΎΠ½ΡΡΡΡΠΊΡΠΈΠΈ ΡΡ ΠΎΠ΄Π½Ρ ΠΏΠΎ ΠΏΡΠΈΠ½ΡΠΈΠΏΡ Π΄Π΅ΠΉΡΡΠ²ΠΈΡ Ρ ΠΊΠ»Π°ΡΡΠΈΡΠ΅ΡΠΊΠΈΠΌ ΠΈΡΠΏΠΎΠ»Π½Π΅Π½ΠΈΠ΅ΠΌ. ΠΠ΄Π½Π°ΠΊΠΎ ΠΏΡΠΈΡΠΏΠΎΡΠΎΠ±Π»Π΅Π½ΠΈΡ Π½Π°ΠΏΠΎΠ»ΡΠ½ΠΎΠ³ΠΎ ΡΠΈΠΏΠ° Π½Π΅ΡΠΊΠΎΠ»ΡΠΊΠΎ ΠΎΡΠ»ΠΈΡΠ°ΡΡΡΡ ΠΏΠΎ ΡΡΡΡΠΎΠΉΡΡΠ²Ρ: ΡΡΡΠ°Π³ ΠΊΡΠ΅ΠΏΠΈΡΡΡ ΠΊ ΠΏΡΡΠΆΠΈΠ½Π΅ ΠΈ ΠΏΠΎΡΡΠ½Ρ, ΡΠΎΠ΅Π΄ΠΈΠ½ΡΠ΅ΡΡΡ Ρ ΡΠΎΠ»ΠΈΠΊΠΎΠΌ, ΠΊΠΎΡΠΎΡΡΠΉ Π²ΡΠΏΠΎΠ»Π½ΡΠ΅Ρ ΠΏΠΎΡΡΡΠΏΠ°ΡΠ΅Π»ΡΠ½ΡΠ΅ Π΄Π²ΠΈΠΆΠ΅Π½ΠΈΡ, ΠΈ ΠΏΡΠΈΠ²ΠΎΠ΄ΠΈΡ Π² ΡΠ°Π±ΠΎΡΡ ΡΠ΅ΡΠ΄ΡΠ΅ΠΎΠ±ΡΠ°Π·Π½ΡΡ ΠΎΡΡ. ΠΠ΅Ρ Π°Π½ΠΈΠ·ΠΌ Π΄Π°Π½Π½ΠΎΠ³ΠΎ Π²ΠΈΠ΄Π° ΡΠ΅Π»Π΅ΡΠΎΠΎΠ±ΡΠ°Π·Π½ΠΎ ΠΏΡΠΈΠΌΠ΅Π½ΡΡΡ Π΄Π»Ρ ΠΊΠΎΠ½ΡΡΠΎΠ»Ρ ΠΏΠΎΠ΄Π²ΠΈΠΆΠ½ΠΎΡΡΠΈ ΠΌΠ°ΡΡΠ½ΠΈΠΊΠΎΠ²ΡΡ Π΄Π²Π΅ΡΠ΅ΠΉ ΠΈ ΡΡΠ²ΠΎΡΠΎΠΊ, Π΄Π²Π΅ΡΠ½ΠΎΠ³ΠΎ ΠΏΠΎΠ»ΠΎΡΠ½Π° ΡΠΈΠΏΠ° Β«ΠΊΠ°ΡΠ΅Π»ΠΈΒ».
Π£ΡΡΠ°Π½Π°Π²Π»ΠΈΠ²Π°ΡΡ Π΄ΠΎΠ²ΠΎΠ΄ΡΠΈΠΊ Π½Π° Π΄Π΅ΡΠ΅Π²ΡΠ½Π½ΡΡ Π΄Π²Π΅ΡΡ, ΠΈΠ·Π΄Π΅Π»ΠΈΡ ΡΠΎ ΡΡΠ΅ΠΊΠ»ΡΠ½Π½ΡΠΌΠΈ Π²ΡΡΠ°Π²ΠΊΠ°ΠΌΠΈ. ΠΠ΅ΡΠΌΠΎΡΡΡ Π½Π° ΠΌΠ°Π»Π΅Π½ΡΠΊΠΈΠ΅ ΡΠ°Π·ΠΌΠ΅ΡΡ, ΠΎΠ½ ΠΏΡΠ΅Π΄ΡΡΠ°Π²Π»ΡΠ΅Ρ ΡΠΎΠ±ΠΎΠΉ ΡΠ½ΠΈΠ²Π΅ΡΡΠ°Π»ΡΠ½ΡΠΉ Π²Π°ΡΠΈΠ°Π½Ρ, ΡΠΏΠΎΡΠΎΠ±Π½ΡΠΉ Π²ΡΠ΄Π΅ΡΠΆΠΈΠ²Π°ΡΡ ΡΡΡΠ΅ΡΡΠ²Π΅Π½Π½ΡΠ΅ Π½Π°Π³ΡΡΠ·ΠΊΠΈ. ΠΡΠΈΡΠ΅ΠΌ Π½Π°ΠΏΠΎΠ»ΡΠ½ΡΠ΅ ΡΡΡΡΠΎΠΉΡΡΠ²Π° ΡΠ°ΡΡΠΎ Π²ΡΠΏΠΎΠ»Π½ΡΡΡ ΡΡΠ½ΠΊΡΠΈΡ ΠΏΠΎΠ²ΠΎΡΠΎΡΠ½ΠΎΠ³ΠΎ ΠΌΠ΅Ρ Π°Π½ΠΈΠ·ΠΌΠ°. ΠΠ±Π»Π°ΡΡΡ ΠΏΡΠΈΠΌΠ΅Π½Π΅Π½ΠΈΡ: ΠΎΠ±ΡΠ΅ΡΡΠ²Π΅Π½Π½ΡΠ΅ ΠΎΠ±ΡΠ΅ΠΊΡΡ, ΡΠΎΡΠ³ΠΎΠ²ΡΠ΅ ΡΠ΅Π½ΡΡΡ, Π² ΠΊΠΎΡΠΎΡΡΡ ΡΡΡΠ°Π½ΠΎΠ²Π»Π΅Π½Ρ Π΄Π²ΡΡΡΠ²ΠΎΡΡΠ°ΡΡΠ΅ Π΄Π²Π΅ΡΠΈ ΡΠΎ ΡΡΠ΅ΠΊΠ»ΡΠ½Π½ΡΠΌΠΈ Π²ΡΡΠ°Π²ΠΊΠ°ΠΌΠΈ Π±Π΅Π· ΠΊΠΎΡΠΎΠ±Π°. ΠΡΠ΅Π΄ΠΏΠΎΡΡΠΈΡΠ΅Π»ΡΠ½ΠΎ ΠΊΡΠ΅ΠΏΠΈΡΡ ΡΠ°ΠΊΠΈΠ΅ ΠΌΠ΅Ρ Π°Π½ΠΈΠ·ΠΌΡ Π½Π° Π²Ρ ΠΎΠ΄Π½ΡΡ ΡΡΠ²ΠΎΡΠΊΠ°Ρ .
Π‘ΠΊΡΡΡΡΠ΅ Π΄Π²Π΅ΡΠ½ΡΠ΅
ΠΡΠΈΡΠΏΠΎΡΠΎΠ±Π»Π΅Π½ΠΈΡ Π΄Π°Π½Π½ΠΎΠ³ΠΎ ΡΠΈΠΏΠ° ΠΏΡΠ΅Π΄ΡΡΠ°Π²Π»Π΅Π½Ρ Π΄Π²ΡΠΌΡ ΡΠ°Π·Π½ΠΎΠ²ΠΈΠ΄Π½ΠΎΡΡΡΠΌΠΈ:
- Π΄ΠΎΠ²ΠΎΠ΄ΡΠΈΠΊΠΈ-ΠΏΠ΅ΡΠ»ΠΈ;
- ΡΠΎ ΡΠΊΠΎΠ»ΡΠ·ΡΡΠΈΠΌ ΡΡΠ΅ΡΠΆΠ½Π΅ΠΌ.
ΠΠ΅ΡΠ²ΡΠΉ ΠΈΠ· Π²Π°ΡΠΈΠ°Π½ΡΠΎΠ² ΡΠΆΠ΅ ΡΠ°ΡΡΠΌΠ°ΡΡΠΈΠ²Π°Π»ΡΡ. ΠΡΠΎ ΡΠ»Π΅ΠΌΠ΅Π½ΡΡ, ΠΊΠΎΡΠΎΡΡΠ΅ ΠΏΡΠΈΠΌΠ΅Π½ΡΡΡΡΡ Π² ΠΊΠ°ΡΠ΅ΡΡΠ²Π΅ ΠΏΠΎΠ²ΠΎΡΠΎΡΠ½ΠΎΠ³ΠΎ ΠΌΠ΅Ρ Π°Π½ΠΈΠ·ΠΌΠ° ΠΈ ΠΎΡΠ²Π΅ΡΡΡΠ²Π΅Π½Π½Ρ Π·Π° ΠΎΡΠΊΡΡΠ²Π°Π½ΠΈΠ΅/Π·Π°ΠΊΡΡΠ²Π°Π½ΠΈΠ΅ ΡΡΠ²ΠΎΡΠΊΠΈ. ΠΡΠ»ΠΈ ΡΠ°ΡΡΠΌΠ°ΡΡΠΈΠ²Π°ΡΡΡΡ Π΄Π²Π΅ΡΠ½ΡΠ΅ Π΄ΠΎΠ²ΠΎΠ΄ΡΠΈΠΊΠΈ ΡΠΎ ΡΠΊΠΎΠ»ΡΠ·ΡΡΠΈΠΌ ΡΡΠ΅ΡΠΆΠ½Π΅ΠΌ, ΡΠΎ Π² Π΄Π°Π½Π½ΠΎΠΌ ΡΠ»ΡΡΠ°Π΅ ΡΡΡΠ°Π½Π°Π²Π»ΠΈΠ²Π°Π΅ΠΌ ΠΊΠΎΡΠΏΡΡ ΡΡΡΡΠΎΠΉΡΡΠ²Π° Π½Π° ΡΡΠ²ΠΎΡΠΊΡ. Π Π½Π΅ΠΌΡ ΠΎΠ΄Π½ΠΎΠΉ ΡΡΠΎΡΠΎΠ½ΠΎΠΉ Π±ΡΠ΄Π΅Ρ ΠΏΠΎΠ΄ΡΠΎΠ΅Π΄ΠΈΠ½Π΅Π½ ΡΠΊΠΎΠ»ΡΠ·ΡΡΠΈΠΉ ΡΡΠ΅ΡΠΆΠ΅Π½Ρ, Π΄ΡΡΠ³Π°Ρ β ΠΊΡΠ΅ΠΏΠΈΡΡΡ Π² ΠΏΠ°Π·Ρ, ΠΊΠΎΡΠΎΡΡΠΉ Π²ΡΡΠ΅Π·Π°Π΅ΡΡΡ ΡΡΠ΅Π·ΠΎΠΉ Π² Π΄Π²Π΅ΡΠ½ΠΎΠΉ ΠΊΠΎΡΠΎΠ±ΠΊΠ΅.
ΠΠΎΠ³Π΄Π° ΠΏΠ»Π°Π½ΠΈΡΡΠ΅ΡΡΡ ΡΡΡΠ°Π½ΠΎΠ²ΠΊΠ° Π΄Π²Π΅ΡΠ½ΡΡ ΠΌΠ΅Ρ Π°Π½ΠΈΠ·ΠΌΠΎΠ² ΡΠΊΡΡΡΠΎΠ³ΠΎ ΠΌΠΎΠ½ΡΠ°ΠΆΠ° ΡΠΎ ΡΠΊΠΎΠ»ΡΠ·ΡΡΠΈΠΌ ΡΡΠ΅ΡΠΆΠ½Π΅ΠΌ, Π²Π°ΠΆΠ½ΠΎ ΡΠ΄ΠΎΡΡΠΎΠ²Π΅ΡΠΈΡΡΡΡ, ΡΡΠΎ ΠΌΠ΅ΠΆΠ΄Ρ ΠΏΠΎΠ»ΠΎΡΠ½ΠΎΠΌ ΠΈ ΠΊΠΎΡΠΎΠ±ΠΎΠΌ ΠΈΠΌΠ΅Π΅ΡΡΡ Π·Π°Π·ΠΎΡ Π΄ΠΎΡΡΠ°ΡΠΎΡΠ½ΠΎΠΉ ΡΠΎΠ»ΡΠΈΠ½Ρ, ΡΡΠΎΠ±Ρ ΡΠ΅ΡΠ΅Π· Π½Π΅Π³ΠΎ ΠΏΡΠΎΡΠ»Π° ΡΡΠ³Π°. ΠΡΠΌΠ΅ΡΠ°ΡΡ Π½Π΅ΡΠΊΠΎΠ»ΡΠΊΠΎ Π½ΡΠ°Π½ΡΠΎΠ² ΠΏΠΎΠ΄ΠΎΠ±Π½ΡΡ ΠΊΠΎΠ½ΡΡΡΡΠΊΡΠΈΠΉ Π΄ΠΎΠ²ΠΎΠ΄ΡΠΈΠΊΠ°:
- Π½Π΅Π±ΠΎΠ»ΡΡΠΎΠΉ ΡΠΊΡΠΏΠ»ΡΠ°ΡΠ°ΡΠΈΠΎΠ½Π½ΡΠΉ ΡΠ΅ΡΡΡΡ;
- Π½Π΅ΠΎΠ±Ρ ΠΎΠ΄ΠΈΠΌΠΎΡΡΡ Π² ΡΠΎΡΠ½ΠΎΠΌ ΡΠ°ΡΡΠ΅ΡΠ΅ ΠΌΠ΅ΡΡΠ° ΡΡΡΠ°Π½ΠΎΠ²ΠΊΠΈ;
- ΡΠΏΠΎΡΠΎΠ±Π½ΠΎΡΡΡ Π²ΡΠ΄Π΅ΡΠΆΠΈΠ²Π°ΡΡ Π½Π΅Π±ΠΎΠ»ΡΡΠΈΠ΅ ΡΡΠΈΠ»ΠΈΡ Π·Π°ΠΊΡΡΠ²Π°Π½ΠΈΡ ΠΈ ΠΎΡΠΊΡΡΠ²Π°Π½ΠΈΡ;
- Π²Π°ΡΠΈΠ°Π½ΡΡ ΡΡΡΠ°Π½ΠΎΠ²ΠΊΠΈ Π΄Π²Π΅ΡΠ½ΡΡ Π΄ΠΎΠ²ΠΎΠ΄ΡΠΈΠΊΠΎΠ² ΡΠΊΡΡΡΠΎΠ³ΠΎ ΡΠΈΠΏΠ° ΠΎΠ³ΡΠ°Π½ΠΈΡΠ΅Π½Ρ;
- ΡΠ·ΠΊΠ°Ρ ΠΎΠ±Π»Π°ΡΡΡ ΠΏΡΠΈΠΌΠ΅Π½Π΅Π½ΠΈΡ.

ΠΠ»Π°ΡΡΠΈΡΠΈΠΊΠ°ΡΠΈΡ ΠΏΠΎ ΡΡΠΈΠ»ΠΈΡ Π·Π°ΠΊΡΡΠ²Π°Π½ΠΈΡ
ΠΠΎΠ²ΠΎΠ΄ΡΠΈΠΊΠΈ ΠΏΠΎΠ΄ΡΠ°Π·Π΄Π΅Π»ΡΡΡΡΡ Π½Π° Π½Π΅ΡΠΊΠΎΠ»ΡΠΊΠΎ Π²ΠΈΠ΄ΠΎΠ², ΠΎΡΠ»ΠΈΡΠ½ΡΡ ΠΏΠΎ ΠΊΠ»Π°ΡΡΡ ΡΡΠΈΠ»ΠΈΡ, ΠΊΠΎΡΠΎΡΡΠΉ ΡΠΎΠΎΡΠ½ΠΎΡΠΈΡΡΡ Ρ ΠΈΠ½Π΅ΡΡΠΈΠ΅ΠΉ Π΄Π²Π΅ΡΠ½ΠΎΠ³ΠΎ ΠΏΠΎΠ»ΠΎΡΠ½Π°. ΠΠ° Π΄Π°Π½Π½ΡΠΉ ΠΏΠ°ΡΠ°ΠΌΠ΅ΡΡ ΠΎΠΊΠ°Π·ΡΠ²Π°ΡΡ Π²Π»ΠΈΡΠ½ΠΈΠ΅ ΡΠ»Π΅Π΄ΡΡΡΠΈΠ΅ Ρ Π°ΡΠ°ΠΊΡΠ΅ΡΠΈΡΡΠΈΠΊΠΈ: ΠΌΠ°ΡΡΠ° ΡΡΠ²ΠΎΡΠΊΠΈ ΠΈ Π΄Π»ΠΈΠ½Π° ΠΏΠ»Π΅ΡΠ°, ΠΊΠΎΡΠΎΡΠ°Ρ ΡΠΎΠΎΡΠ²Π΅ΡΡΡΠ²ΡΠ΅Ρ ΡΠΈΡΠΈΠ½Π΅ Π΄Π²Π΅ΡΡΡ. ΠΠ»Π°ΡΡ ΡΡΠΈΠ»ΠΈΡ ΠΎΠΏΡΠ΅Π΄Π΅Π»ΡΠ΅ΡΡΡ ΡΡΠ°Π½Π΄Π°ΡΡΠΎΠΌ ΠN 1154. Π‘ ΡΡΠ΅ΡΠΎΠΌ Π΄Π°Π½Π½ΡΡ ΠΏΠ°ΡΠ°ΠΌΠ΅ΡΡΠΎΠ² ΡΠΎΡΠΌΠΈΡΡΠ΅ΡΡΡ ΡΠ΅Π½ΠΎΠ²Π°Ρ ΠΊΠ°ΡΠ΅Π³ΠΎΡΠΈΡ ΠΌΠ΅Ρ Π°Π½ΠΈΠ·ΠΌΠΎΠ². ΠΠ»Π°ΡΡΠΈΡΠΈΠΊΠ°ΡΠΈΡ Π½Π° ΠΎΡΠ½ΠΎΠ²Π°Π½ΠΈΠΈ ΡΠΈΡΠΈΠ½Ρ ΠΏΠΎΠ»ΠΎΡΠ½Π° ΠΈ Π΅Π³ΠΎ ΠΌΠ°ΡΡΡ, ΡΠΎΠΎΡΠ²Π΅ΡΡΡΠ²Π΅Π½Π½ΠΎ:
- EN1: 750 ΠΌΠΌ, 20 ΠΊΠ³;
- EN2: 850 ΠΌΠΌ, 40 ΠΊΠ³;
- EN3: 950 ΠΌΠΌ, 60 ΠΊΠ³;
- EN4: 1100 ΠΌΠΌ, 80 ΠΊΠ³;
- EN5: 1250 ΠΌΠΌ, 100 ΠΊΠ³;
- EN6: 1400 ΠΌΠΌ, 120 ΠΊΠ³;
- EN7: 1600 ΠΌΠΌ, 160 ΠΊΠ³.
ΠΠ΅ΡΠ²ΡΠ΅ Π²Π°ΡΠΈΠ°Π½ΡΡ ΠΏΡΠ΅Π΄Π½Π°Π·Π½Π°ΡΠ΅Π½Ρ Π΄Π»Ρ ΡΡΡΠ°Π½ΠΎΠ²ΠΊΠΈ Π½Π° Π»Π΅Π³ΠΊΠΈΠ΅ ΡΡΠ²ΠΎΡΠΊΠΈ. ΠΠΎ ΡΡΠΎΠΉ ΠΏΡΠΈΡΠΈΠ½Π΅ ΠΈΡ ΡΠ°ΡΡΠΎ ΠΊΡΠ΅ΠΏΡΡ Π½Π° ΠΌΠ΅ΠΆΠΊΠΎΠΌΠ½Π°ΡΠ½ΡΠ΅ ΠΏΠΎΠ»ΠΎΡΠ½Π°. ΠΠ·Π΄Π΅Π»ΠΈΡ ΠΏΠΎΡΠ»Π΅Π΄Π½ΠΈΡ ΠΊΠ»Π°ΡΡΠΎΠ² ΡΠ°Π·ΡΠ°Π±ΠΎΡΠ°Π½Ρ Π΄Π»Ρ ΡΡΠΆΠ΅Π»ΡΡ Π΄Π²Π΅ΡΠ΅ΠΉ.
ΠΠ°ΠΊ ΠΏΡΠ°Π²ΠΈΠ»ΡΠ½ΠΎ Π²ΡΠ±ΡΠ°ΡΡ
ΠΡΠ»ΠΈ Π½ΡΠΆΠ½ΠΎ ΠΏΡΠΈΠΎΠ±ΡΠ΅ΡΡΠΈ Π΄ΠΎΠ²ΠΎΠ΄ΡΠΈΠΊ Π΄Π»Ρ Π΄Π²Π΅ΡΠΈ, ΠΏΡΠ΅ΠΆΠ΄Π΅ Π²ΡΠ΅Π³ΠΎ, ΡΠ΅ΠΊΠΎΠΌΠ΅Π½Π΄ΡΠ΅ΡΡΡ ΠΎΠΏΡΠ΅Π΄Π΅Π»ΠΈΡΡ ΠΊΠ»Π°ΡΡ ΡΡΠΈΠ»ΠΈΡ. ΠΠ»Ρ ΡΡΠΎΠ³ΠΎ Π½Π΅ΠΎΠ±Ρ ΠΎΠ΄ΠΈΠΌΠΎ ΡΠ·Π½Π°ΡΡ ΡΠΈΡΠΈΠ½Ρ ΡΡΠ²ΠΎΡΠΊΠΈ, Π° ΡΠ°ΠΊΠΆΠ΅ Π΅Π΅ ΠΌΠ°ΡΡΡ. ΠΠ° ΠΎΡΠ½ΠΎΠ²Π°Π½ΠΈΠΈ Π΄Π°Π½Π½ΡΡ ΠΏΠ°ΡΠ°ΠΌΠ΅ΡΡΠΎΠ² ΠΏΡΠΎΠΈΠ·Π²ΠΎΠ΄ΠΈΡΡΡ ΠΏΠΎΠ΄Π±ΠΎΡ ΠΈΠ·Π΄Π΅Π»ΠΈΡ Π΄Π»Ρ ΡΠ΅Π³ΡΠ»ΠΈΡΠΎΠ²ΠΊΠΈ ΡΡΠΈΠ»ΠΈΠΉ. ΠΡΡΠ³ΠΈΠ΅ Ρ Π°ΡΠ°ΠΊΡΠ΅ΡΠΈΡΡΠΈΠΊΠΈ:
- ΠΊΠΎΠ½ΡΡΡΡΠΊΡΠΈΡ Π΄Π²Π΅ΡΠΈ β Π΄Π»Ρ ΡΠ°ΡΠΏΠ°ΡΠ½ΡΡ , ΡΠ°Π·Π΄Π²ΠΈΠΆΠ½ΡΡ ΡΡΠ²ΠΎΡΠΎΠΊ ΡΠ΅Π»Π΅ΡΠΎΠΎΠ±ΡΠ°Π·Π½ΠΎ ΠΏΡΠΈΠΎΠ±ΡΠ΅ΡΠ°ΡΡ ΡΠ°Π·Π»ΠΈΡΠ½ΡΠ΅ Π²Π°ΡΠΈΠ°Π½ΡΡ Π΄ΠΎΠ²ΠΎΠ΄ΡΠΈΠΊΠΎΠ²;
- ΠΎΡΠΎΠ±Π΅Π½Π½ΠΎΡΡΠΈ ΡΡΡΡΠΎΠΉΡΡΠ²Π° ΠΌΠ΅Ρ Π°Π½ΠΈΠ·ΠΌΠ°: ΠΈΠ· ΠΊΠ°ΠΊΠΈΡ ΠΎΠ½ ΡΠΎΡΡΠΎΠΈΡ ΡΠ°ΡΡΠ΅ΠΉ (ΠΊΠΎΡΠΏΡΡ, ΡΡΠ³Π° ΠΈ ΠΏΡ.), ΠΊΠ°ΠΊ ΡΠ°Π±ΠΎΡΠ°Π΅Ρ;
- ΡΠΏΠΎΡΠΎΠ± ΠΌΠΎΠ½ΡΠ°ΠΆΠ° Π΄Π²Π΅ΡΠ½ΡΡ Π΄ΠΎΠ²ΠΎΠ΄ΡΠΈΠΊΠΎΠ²: ΡΠ°ΡΠΏΠΎΠ»Π°Π³Π°Π΅ΡΡΡ Π² Π²Π΅ΡΡ Π½Π΅ΠΉ, Π½ΠΈΠΆΠ½Π΅ΠΉ ΡΠ°ΡΡΠΈ ΠΈΠ»ΠΈ ΡΠΊΡΡΠ²Π°Π΅ΡΡΡ Π² Π΄Π²Π΅ΡΠ½ΠΎΠΉ ΠΊΠΎΡΠΎΠ±ΠΊΠ΅, ΠΏΠ΅ΡΠ»ΡΡ ;
- ΡΠΎΠ½ΠΊΠΎΡΡΠΈ ΠΊΠΎΠ½ΡΡΡΡΠΊΡΠΈΠΈ Π΄Π²Π΅ΡΠΈ β Π² ΡΠ°ΡΡΠ½ΠΎΡΡΠΈ, ΠΏΡΠΈΠ½ΠΈΠΌΠ°ΡΡ Π²ΠΎ Π²Π½ΠΈΠΌΠ°Π½ΠΈΠ΅ Π²ΠΎΠ·ΠΌΠΎΠΆΠ½ΠΎΡΡΡ ΡΡΡΠ°Π½ΠΎΠ²ΠΊΠΈ ΡΠΊΡΡΡΠΎΠ³ΠΎ Π΄ΠΎΠ²ΠΎΠ΄ΡΠΈΠΊΠ°, Π΄Π»Ρ ΡΠ΅Π³ΠΎ Π½ΡΠΆΠ½ΠΎ Π²ΡΠ±ΡΠ°ΡΡ ΠΏΠΎΠ»ΠΎΡΠ½ΠΎ Ρ Π΄ΠΎΡΡΠ°ΡΠΎΡΠ½ΡΠΌ Π·Π°Π·ΠΎΡΠΎΠΌ ΠΌΠ΅ΠΆΠ΄Ρ Π½ΠΈΠΌ ΠΈ ΠΊΠΎΡΠΎΠ±ΠΎΠΌ;
- ΡΠ΅Π³ΡΠ»ΠΈΡΠΎΠ²ΠΊΠ° Π²ΠΈΠ½ΡΠΎΠ², ΠΊΠΎΡΠΎΡΡΠ΅ ΠΎΠΏΡΠ΅Π΄Π΅Π»ΡΡΡ Π²ΠΎΠ·ΠΌΠΎΠΆΠ½ΠΎΡΡΠΈ ΠΎΡΠΊΡΡΠ²Π°Π½ΠΈΡ ΡΡΠ²ΠΎΡΠΊΠΈ ΠΈ ΠΈΠ½ΡΠ΅Π½ΡΠΈΠ²Π½ΠΎΡΡΡ ΠΏΡΠΈΠΆΠΈΠΌΠ° ΠΏΡΡΠΆΠΈΠ½Ρ;
- ΡΡΠ»ΠΎΠ²ΠΈΡ ΡΠΊΡΠΏΠ»ΡΠ°ΡΠ°ΡΠΈΠΈ, Π½Π°ΠΏΡΠΈΠΌΠ΅Ρ, Π΄Π»Ρ Π²Ρ ΠΎΠ΄Π½ΡΡ Π΄Π²Π΅ΡΠ΅ΠΉ ΡΠ΅ΠΊΠΎΠΌΠ΅Π½Π΄ΡΠ΅ΠΌΡΠΉ ΡΠ΅ΠΌΠΏΠ΅ΡΠ°ΡΡΡΠ½ΡΠΉ ΡΠ΅ΠΆΠΈΠΌ ΡΠΎΡΡΠ°Π²Π»ΡΠ΅Ρ -40β¦+65Β°Π‘;
- Π΄ΠΎΠΏΠΎΠ»Π½ΠΈΡΠ΅Π»ΡΠ½ΡΠ΅ ΡΡΠ½ΠΊΡΠΈΠΈ β Π² ΡΠ°ΡΡΠ½ΠΎΡΡΠΈ, ΡΠ΅ΡΡ ΠΈΠ΄Π΅Ρ ΠΎ Π²ΠΎΠ·ΠΌΠΎΠΆΠ½ΠΎΡΡΠΈ ΡΠΈΠΊΡΠ°ΡΠΈΠΈ ΡΡΠ²ΠΎΡΠΊΠΈ Π² ΠΎΡΠΊΡΡΡΠΎΠΌ ΠΏΠΎΠ»ΠΎΠΆΠ΅Π½ΠΈΠΈ ΠΏΠΎΠ΄ Π·Π°Π΄Π°Π½Π½ΡΠΌ ΡΠ³Π»ΠΎΠΌ ΠΈ ΡΠ΅Π³ΡΠ»ΠΈΡΠΎΠ²ΠΊΠΈ ΠΌΠ΅Ρ Π°Π½ΠΈΠ·ΠΌΠ° Π½Π° Π·Π°Π΄Π΅ΡΠΆΠΊΡ Π·Π°ΠΊΡΡΠ²Π°Π½ΠΈΡ;
- Π΄ΠΈΠ·Π°ΠΉΠ½ ΠΈΠ·Π΄Π΅Π»ΠΈΡ, ΡΠ΅Π³ΡΠ»ΠΈΡΡΠ΅ΠΌΠΎΠ³ΠΎ ΡΡΠ³Ρ, β ΡΠ΅ΠΏΠ΅ΡΡ ΠΌΠΎΠΆΠ½ΠΎ ΠΏΠΎΠ΄ΠΎΠ±ΡΠ°ΡΡ Π΄ΠΎΠ²ΠΎΠ΄ΡΠΈΠΊ, ΠΏΠΎΠ΄Ρ ΠΎΠ΄ΡΡΠΈΠΉ ΠΏΠΎΠ΄ ΠΈΠ½ΡΠ΅ΡΡΠ΅Ρ;
- ΠΊΠΎΠ»ΠΈΡΠ΅ΡΡΠ²ΠΎ ΡΠΈΠΊΠ»ΠΎΠ² ΠΎΡΠΊΡΡΠ²Π°Π½ΠΈΡ/Π·Π°ΠΊΡΡΠ²Π°Π½ΠΈΡ ΠΈΠ»ΠΈ ΡΠ°Π±ΠΎΡΠΈΠΉ ΡΠ΅ΡΡΡΡ ΠΌΠ΅Ρ Π°Π½ΠΈΠ·ΠΌΠ°;
- Π·Π°ΡΠΈΡΠ° ΠΎΡ Π²Π°Π½Π΄Π°Π»ΠΈΠ·ΠΌΠ° β ΠΏΠΎΠ·Π²ΠΎΠ»ΡΠ΅Ρ ΠΏΡΠ΅Π΄ΠΎΡΠ²ΡΠ°ΡΠΈΡΡ ΠΏΠΎΠ»ΠΎΠΌΠΊΡ.
Π Π΅Π³ΡΠ»ΠΈΡΠΎΠ²ΠΊΠ° ΡΠ²ΠΎΠΈΠΌΠΈ ΡΡΠΊΠ°ΠΌΠΈ
ΠΡΠ»ΠΈ ΠΏΠΎΠ΄Π±ΠΈΡΠ°Π΅ΡΡΡ Π΄ΠΎΠ²ΠΎΠ΄ΡΠΈΠΊ Π½Π° Π΄Π²Π΅ΡΡ, ΡΡΠΈΡΡΠ²Π°ΡΡ Π²ΠΎΠ·ΠΌΠΎΠΆΠ½ΠΎΡΡΡ ΠΈΠ·ΠΌΠ΅Π½Π΅Π½ΠΈΡ ΠΏΠΎΠ»ΠΎΠΆΠ΅Π½ΠΈΡ Π²ΠΈΠ½ΡΠΎΠ², ΡΠ°ΡΠΏΠΎΠ»Π°Π³Π°ΡΡΠΈΡ ΡΡ Π½Π° ΠΊΠΎΡΠΏΡΡΠ΅:
- ΡΠ΅Π³ΡΠ»ΠΈΡΡΠ΅ΡΡΡ ΡΠ³ΠΎΠ» ΠΎΡΠΊΡΡΠ²Π°Π½ΠΈΡ ΠΏΠΎΠ»ΠΎΡΠ½Π°: ΠΎΡ 90 Π΄ΠΎ 180Β°;
- ΠΈΠ·ΠΌΠ΅Π½ΡΠ΅ΡΡΡ ΡΠΊΠΎΡΠΎΡΡΡ Π·Π°ΠΊΡΡΠ²Π°Π½ΠΈΡ ΡΡΠ²ΠΎΡΠΊΠΈ;
- ΠΎΠ±Π΅ΡΠΏΠ΅ΡΠΈΠ²Π°Π΅ΡΡΡ ΠΏΠ»Π°Π²Π½ΡΠΉ Ρ ΠΎΠ΄ ΠΏΠΎ Π΄ΠΎΡΡΠΈΠΆΠ΅Π½ΠΈΠΈ Π·Π°Π΄Π°Π½Π½ΠΎΠ³ΠΎ ΡΠ³Π»Π°.
ΠΠΈΠ½ΡΡ ΠΏΠΎΠ²ΠΎΡΠ°ΡΠΈΠ²Π°ΡΡ ΠΏΠΎ ΡΠ°ΡΠΎΠ²ΠΎΠΉ ΡΡΡΠ΅Π»ΠΊΠ΅ ΠΈΠ»ΠΈ Π² ΠΏΡΠΎΡΠΈΠ²ΠΎΠΏΠΎΠ»ΠΎΠΆΠ½ΠΎΠΌ Π½Π°ΠΏΡΠ°Π²Π»Π΅Π½ΠΈΠΈ. ΠΡΠ»ΠΈ Π½ΡΠΆΠ½ΠΎ ΠΎΡΡΠ΅Π³ΡΠ»ΠΈΡΠΎΠ²Π°ΡΡ ΠΌΠ΅Ρ Π°Π½ΠΈΡΠ΅ΡΠΊΠΈΠΉ Π΄Π²Π΅ΡΠ½ΠΎΠΉ Π΄ΠΎΠ²ΠΎΠ΄ΡΠΈΠΊ, Π½Π°Ρ ΠΎΠ΄ΡΡ Π½Π° ΠΊΠΎΡΠΏΡΡΠ΅ ΠΊΡΠ΅ΠΏΠ΅ΠΆ, ΠΏΠΎΠ²ΠΎΡΠΎΡΠΎΠΌ Π½Π° 1/4 ΠΎΠ±ΠΎΡΠΎΡΠ° Π²ΠΈΠ½ΡΠ° ΠΎΠΏΡΠ΅Π΄Π΅Π»ΡΡΡ, ΠΊΠ°ΠΊ ΠΌΠ΅Π½ΡΠ΅ΡΡΡ ΡΠ°Π±ΠΎΡΠ° ΡΡΠ²ΠΎΡΠΊΠΈ. ΠΠ° ΠΎΡΠ½ΠΎΠ²Π°Π½ΠΈΠΈ ΠΈΠ·ΠΌΠ΅Π½Π΅Π½ΠΈΠΉ ΠΏΡΠΎΠΈΡΡ ΠΎΠ΄ΠΈΡ ΡΠ΅Π³ΡΠ»ΠΈΡΠΎΠ²ΠΊΠ° Π² Π½ΡΠΆΠ½ΡΡ ΡΡΠΎΡΠΎΠ½Ρ.
Π‘ΠΏΠΎΡΠΎΠ±Ρ ΡΡΡΠ°Π½ΠΎΠ²ΠΊΠΈ
Π ΡΠΎΠΎΡΠ²Π΅ΡΡΡΠ²ΠΈΠΈ Ρ ΡΠΈΠΏΠΎΠΌ ΠΊΠΎΠ½ΡΡΡΡΠΊΡΠΈΠΈ ΠΊΡΠ΅ΠΏΠΈΡΡΡ ΠΊΡΠ΅ΠΏΠ»Π΅Π½ΠΈΠ΅ Π΄ΠΎΠ²ΠΎΠ΄ΡΠΈΠΊΠ° ΠΏΠΎ-ΡΠ°Π·Π½ΠΎΠΌΡ:
- Π½Π° ΠΏΠΎΠ²Π΅ΡΡ Π½ΠΎΡΡΠΈ Π΄Π²Π΅ΡΠ½ΠΎΠΉ ΠΊΠΎΡΠΎΠ±ΠΊΠΈ;
- Π² ΠΏΠΎΠ»Ρ;
- Π² ΠΏΠ°Π·Ρ ΠΊΠΎΡΠΎΠ±Π°;
- Π΄ΠΎΠ²ΠΎΠ΄ΡΠΈΠΊΠΈ Π΄Π»Ρ ΡΠ°Π·Π΄Π²ΠΈΠΆΠ½ΡΡ Π΄Π²Π΅ΡΠ΅ΠΉ ΡΠΊΡΡΡΡ Π² ΠΏΠ΅ΡΠ»ΡΡ ΠΈΠ»ΠΈ ΠΏΡΠ΅Π΄ΡΡΠ°Π²Π»ΡΡΡ ΡΠΎΠ±ΠΎΠΉ ΡΡΡΡΠΎΠΉΡΡΠ²Π° Π»ΠΈΠ½Π΅ΠΉΠ½ΠΎΠ³ΠΎ ΡΠΈΠΏΠ°, ΠΊΠΎΡΠΎΡΡΠ΅ Π·Π°ΠΊΡΠ΅ΠΏΠ»ΡΡΡΡΡ Π½Π° Π΄Π²Π΅ΡΠ½ΠΎΠΉ ΠΊΠΎΡΠΎΠ±ΠΊΠ΅ (ΡΠ°Π±ΠΎΡΠ°ΡΡ ΠΎΠ½ΠΈ ΠΏΠΎ ΠΈΠ½ΠΎΠΌΡ ΠΏΡΠΈΠ½ΡΠΈΠΏΡ, ΡΠ΅ΠΌ Π°Π½Π°Π»ΠΎΠ³ΠΈ Π΄Π»Ρ ΡΠ°ΡΠΏΠ°ΡΠ½ΡΡ ΡΡΠ²ΠΎΡΠΎΠΊ).
ΠΠΏΡΠ΅Π΄Π΅Π»ΡΡ ΡΠΏΠΎΡΠΎΠ± ΡΡΡΠ°Π½ΠΎΠ²ΠΊΠΈ, Π½ΡΠΆΠ½ΠΎ ΡΡΠΈΡΡΠ²Π°ΡΡ ΠΎΡΠΎΠ±Π΅Π½Π½ΠΎΡΡΠΈ Π΄Π²Π΅ΡΠ½ΠΎΠΉ ΠΊΠΎΡΠΎΠ±ΠΊΠΈ, ΡΠΎΠ»ΡΠΈΠ½Ρ Π·Π°Π·ΠΎΡΠ° ΠΌΠ΅ΠΆΠ΄Ρ ΠΊΠΎΡΠΎΠ±ΠΎΠΌ ΠΈ ΠΏΠΎΠ»ΠΎΡΠ½ΠΎΠΌ. ΠΠ°ΠΏΡΠΈΠΌΠ΅Ρ, Π΄ΠΎΠ²ΠΎΠ΄ΡΠΈΠΊ Π½Π° ΠΏΠ»Π°ΡΡΠΈΠΊΠΎΠ²ΡΡ Π΄Π²Π΅ΡΡ ΠΊΡΠ΅ΠΏΠΈΡΡΡ Π½Π° ΠΏΠΎΠ²Π΅ΡΡ Π½ΠΎΡΡΠΈ Π΄Π²Π΅ΡΠ½ΠΎΠΉ ΠΊΠΎΡΠΎΠ±ΠΊΠΈ, ΡΠΎΠ΅Π΄ΠΈΠ½ΡΠ΅ΡΡΡ Ρ ΠΏΠΎΠ»ΠΎΡΠ½ΠΎΠΌ ΡΡΠ³ΠΎΠΉ.
ΠΠΎΠ·ΠΌΠΎΠΆΠ½ΡΠ΅ Π²Π°ΡΠΈΠ°Π½ΡΡ ΡΡΡΠ°Π½ΠΎΠ²ΠΊΠΈ Π½Π° ΠΏΠΎΠ»ΠΎΡΠ½Π΅ Π΄Π²Π΅ΡΠΈ
ΠΠΎΡΠΏΡΡ Π΄ΠΎΠ²ΠΎΠ΄ΡΠΈΠΊΠ° ΡΠ°ΡΠΏΠΎΠ»Π°Π³Π°Π΅ΡΡΡ Π½Π΅ΡΠΊΠΎΠ»ΡΠΊΠΈΠΌΠΈ ΡΠΏΠΎΡΠΎΠ±Π°ΠΌΠΈ:
- Π½Π° ΠΏΠΎΠ»ΠΎΡΠ½Π΅, ΡΠΎΠ³Π΄Π° ΡΡΠ³Π° Π±ΡΠ΄Π΅Ρ Π·Π°ΠΊΡΠ΅ΠΏΠ»Π΅Π½Π° Π½Π° Π΄Π²Π΅ΡΠ½ΠΎΠΌ ΠΊΠΎΡΠΎΠ±Π΅ ΠΈΠ»ΠΈ Π² ΠΏΠ°Π·Ρ, ΠΊΠΎΡΠΎΡΡΠΉ ΡΠΎΠΆΠ΅ Π²ΡΡΠ΅Π·Π°ΡΡ Π² ΠΊΠΎΡΠΎΠ±Π΅;
- Π½Π° Π΄Π²Π΅ΡΠ½ΠΎΠΉ ΠΊΠΎΡΠΎΠ±ΠΊΠ΅, ΡΠΎΠΎΡΠ²Π΅ΡΡΡΠ²Π΅Π½Π½ΠΎ, ΡΠ²ΠΎΠ±ΠΎΠ΄Π½ΡΠΉ ΠΊΠΎΠ½Π΅Ρ ΡΡΠ³ΠΈ ΡΠ°ΡΠΏΠΎΠ»Π°Π³Π°Π΅ΡΡΡ Π½Π° ΡΡΠ²ΠΎΡΠΊΠ΅.
ΠΡΠ»ΠΈ ΠΏΠ»Π°Π½ΠΈΡΡΠ΅ΡΡΡ Π·Π°ΠΊΡΠ΅ΠΏΠΈΡΡ ΠΊΠΎΠ½Π΅Ρ ΡΡΠ³ΠΈ Π² ΠΏΠ°Π·Ρ Π΄Π²Π΅ΡΠ½ΠΎΠ³ΠΎ ΠΊΠΎΡΠΎΠ±Π°, Π² Π΄Π°Π½Π½ΠΎΠΌ ΡΠ»ΡΡΠ°Π΅ Π²Π°ΡΠΈΠ°Π½Ρ ΡΠ°ΡΠΏΠΎΠ»ΠΎΠΆΠ΅Π½ΠΈΡ ΠΊΠΎΡΠΏΡΡΠ° Π΄ΠΎΠ²ΠΎΠ΄ΡΠΈΠΊΠ° Π²ΡΠ΅Π³ΠΎ ΠΎΠ΄ΠΈΠ½ β Π½Π° ΠΏΠΎΠ»ΠΎΡΠ½Π΅. ΠΠ° Π±Π°Π»ΠΊΠΎΠ½Π½ΡΡ Π΄Π²Π΅ΡΡ ΠΌΠ΅Ρ Π°Π½ΠΈΠ·ΠΌ Π²ΡΠ΅Π³Π΄Π° ΡΡΡΠ°Π½Π°Π²Π»ΠΈΠ²Π°ΡΡ ΡΡΠ°Π½Π΄Π°ΡΡΠ½ΡΠΌ ΡΠΏΠΎΡΠΎΠ±ΠΎΠΌ: ΠΊΠΎΡΠΏΡΡ Π΄ΠΎΠ²ΠΎΠ΄ΡΠΈΠΊΠ° Π½Π° ΡΡΠ²ΠΎΡΠΊΠ΅, ΡΡΠ³Π° Π·Π°ΠΊΡΠ΅ΠΏΠ»Π΅Π½Π° Π½Π° ΠΏΠΎΠ²Π΅ΡΡ Π½ΠΎΡΡΠΈ Π΄Π²Π΅ΡΠ½ΠΎΠ³ΠΎ ΠΊΠΎΡΠΎΠ±Π°.
ΠΡΠΎΠ±Π΅Π½Π½ΠΎΡΡΠΈ ΠΌΠΎΠ½ΡΠ°ΠΆΠ° ΡΠ²ΠΎΠΈΠΌΠΈ ΡΡΠΊΠ°ΠΌΠΈ
Π ΡΠΎΠΎΡΠ²Π΅ΡΡΡΠ²ΠΈΠΈ Ρ Π²ΡΠ±ΡΠ°Π½Π½ΡΠΌ ΡΡΠΈΠ»ΠΈΠ΅ΠΌ ΠΎΡΠΊΡΡΠ²Π°Π½ΠΈΡ ΠΏΠΎΠ»ΠΎΡΠ½Π° ΠΎΠΏΡΠ΅Π΄Π΅Π»ΡΠ΅ΡΡΡ ΡΠ°ΡΡΡΠΎΡΠ½ΠΈΠ΅ ΠΌΠ΅ΠΆΠ΄Ρ ΠΏΠ΅ΡΠ»ΡΠΌΠΈ ΠΈ ΠΊΠΎΡΠΏΡΡΠΎΠΌ ΠΌΠ΅Ρ Π°Π½ΠΈΠ·ΠΌΠ°. ΠΠΎΠ²ΠΎΠ΄ΡΠΈΠΊ Π΄Π»Ρ Π»Π΅Π³ΠΊΠΎΠΉ Π΄Π²Π΅ΡΠΈ Π΄ΠΎΠ»ΠΆΠ΅Π½ Ρ Π°ΡΠ°ΠΊΡΠ΅ΡΠΈΠ·ΠΎΠ²Π°ΡΡΡΡ ΠΊΠ»Π°ΡΡΠΎΠΌ EN1-EN4. ΠΠ»Ρ ΡΡΡΠ°Π½ΠΎΠ²ΠΊΠΈ ΠΈΡΠΏΠΎΠ»ΡΠ·ΡΠ΅ΡΡΡ ΡΠ°Π±Π»ΠΎΠ½ Π² ΠΌΠ°ΡΡΡΠ°Π±Π΅ 1:1. ΠΠ³ΠΎ Π½ΡΠΆΠ½ΠΎ Π½Π°ΠΊΠ»Π΅ΠΈΡΡ Π½Π° Π΄Π²Π΅ΡΠ½ΠΎΠ΅ ΠΏΠΎΠ»ΠΎΡΠ½ΠΎ ΡΠΊΠΎΡΡΠ΅ΠΌ. ΠΠΎΡΠ»Π΅ ΡΡΠΎΠ³ΠΎ ΠΏΠ΅ΡΠ΅Ρ ΠΎΠ΄ΡΡ ΠΊ ΡΠ²Π΅ΡΠ»Π΅Π½ΠΈΡ ΠΎΡΠ²Π΅ΡΡΡΠΈΠΉ ΠΏΠΎΠ΄ ΠΊΡΠ΅ΠΏΠ΅ΠΆ. Π ΡΡΠ°Π³, Π²ΡΠΏΠΎΠ»Π½ΡΡΡΠΈΠΉ ΡΡΠ½ΠΊΡΠΈΡ ΡΡΠ³ΠΈ, ΡΠ»Π΅Π΄ΡΠ΅Ρ ΡΠ°Π·Π΄Π΅Π»ΠΈΡΡ Π½Π° 2 ΡΠ»Π΅ΠΌΠ΅Π½ΡΠ°. ΠΠΎΡΠ»Π΅ ΡΡΠΎΠ³ΠΎ ΠΎΠ΄Π½Π° ΡΠ°ΡΡΡ ΡΡΡΠ°Π½Π°Π²Π»ΠΈΠ²Π°Π΅ΡΡΡ Π½Π° Π΄Π²Π΅ΡΠ½ΠΎΠΌ ΠΊΠΎΡΠΎΠ±Π΅, Π° Π²ΡΠΎΡΠ°Ρ β Π½Π° ΠΏΠΎΠ»ΠΎΡΠ½Π΅. ΠΠ°ΡΠ΅ΠΌ ΡΠ»Π΅ΠΌΠ΅Π½ΡΡ ΡΡΡΠ°Π³Π° ΡΠΎΠ΅Π΄ΠΈΠ½ΡΡΡΡΡ ΠΈ ΠΎΠ½ ΡΠ΅Π³ΡΠ»ΠΈΡΡΠ΅ΡΡΡ ΠΏΠΎ Π΄Π»ΠΈΠ½Π΅.
Π Π΅ΠΌΠΎΠ½Ρ
ΠΡΠ»ΠΈ ΠΏΡΠΎΠΈΠ·ΠΎΡΠ»Π° ΠΏΠ΅ΡΠ΅Π³ΡΡΠ·ΠΊΠ° ΠΌΠ΅Ρ Π°Π½ΠΈΠ·ΠΌΠ°, ΡΡΠΎ ΠΏΡΠΈΠ²Π΅Π»ΠΎ ΠΊ ΠΈΠ·Π½ΠΎΡΡ, ΠΌΠ΅Π½ΡΡΡ Π½Π΅ΠΊΠΎΡΠΎΡΡΠ΅ Π΄Π΅ΡΠ°Π»ΠΈ. ΠΠ°ΠΏΡΠ°ΡΡΠΈ Π΄Π»Ρ Π΄ΠΎΠ²ΠΎΠ΄ΡΠΈΠΊΠ° ΠΏΠΎΠ΄Π±ΠΈΡΠ°ΡΡΡΡ Ρ ΡΡΠ΅ΡΠΎΠΌ Π΅Π³ΠΎ ΡΠΈΠΏΠ°. ΠΡΠΈ ΠΏΡΠΎΡΠ΅ΡΠΊΠ΅ ΠΌΠ°ΡΠ»Π° ΠΎΡΠ΅Π½ΠΈΠ²Π°Π΅ΡΡΡ ΡΠΎΡΡΠΎΡΠ½ΠΈΠ΅ ΠΊΠΎΡΠΏΡΡΠ°, Π΅ΡΠ»ΠΈ Π΄Π΅ΡΠ΅ΠΊΡ Π½Π΅Π±ΠΎΠ»ΡΡΠΎΠΉ, ΡΠ΅Π»Ρ Π·Π°ΠΊΡΡΠ²Π°ΡΡ Π³Π΅ΡΠΌΠ΅ΡΠΈΠΊΠΎΠΌ. ΠΡΠΈ ΡΠΈΠ»ΡΠ½ΠΎΠΉ Π΄Π΅ΡΠΎΡΠΌΠ°ΡΠΈΠΈ Π΄Π΅ΡΠ°Π»Ρ ΠΌΠ΅Π½ΡΡΡ. ΠΡΠΈ ΡΠ°Π·ΡΡΠ²Π΅ ΠΌΠ΅ΡΠ°Π»Π»Π° ΡΡΠ°Π½Π³ΠΈ ΠΈΡΠΏΠΎΠ»ΡΠ·ΡΠ΅ΡΡΡ ΡΠ²Π°ΡΠΎΡΠ½ΡΠΉ Π°ΠΏΠΏΠ°ΡΠ°Ρ. ΠΠΎΡΡΠΎΠ·ΠΈΡ ΡΡΡΡΠ°Π½ΡΠ΅ΡΡΡ ΠΏΡΡΠ΅ΠΌ Π·Π°ΡΠΈΡΡΠΊΠΈ. ΠΠ·Π³ΠΈΠ± ΡΡΠ°Π½Π³ΠΈ ΠΈΡΠΏΡΠ°Π²Π»ΡΠ΅ΡΡΡ Π²ΡΡΡΠ½ΡΡ, ΠΏΡΠΈ ΡΡΠΎΠΌ Π²ΠΎΡΡΡΠ°Π½Π°Π²Π»ΠΈΠ²Π°ΡΡ ΡΠΎΡΠΌΡ Π΄Π°Π½Π½ΠΎΠ³ΠΎ ΡΠ»Π΅ΠΌΠ΅Π½ΡΠ°. ΠΠ½Π°Π»ΠΎΠ³ΠΈΡΠ½ΡΠΌ ΠΎΠ±ΡΠ°Π·ΠΎΠΌ ΡΠ΅ΠΌΠΎΠ½ΡΠΈΡΡΠ΅ΡΡΡ Π΄ΠΎΠ²ΠΎΠ΄ΡΠΈΠΊ Π½Π° ΡΡΠ΅ΠΊΠ»ΡΠ½Π½ΡΡ Π΄Π²Π΅ΡΡ, ΠΌΠ΅ΡΠ°Π»Π»ΠΈΡΠ΅ΡΠΊΡΡ ΠΈΠ»ΠΈ Π΄Π΅ΡΠ΅Π²ΡΠ½Π½ΡΡ ΡΡΠ²ΠΎΡΠΊΡ.
ΠΠΎΠ΄ΡΠΎΠ±Π½Π°Ρ ΠΈΠ½ΡΡΡΡΠΊΡΠΈΡ, ΠΊΠ°ΠΊ ΠΎΡΡΠ΅ΠΌΠΎΠ½ΡΠΈΡΠΎΠ²Π°ΡΡ Π΄ΠΎΠ²ΠΎΠ΄ΡΠΈΠΊ Π΄Π²Π΅ΡΠΈ
ΠΠ²Π΅ΡΠ½ΠΎΠΉ Π΄ΠΎΠ²ΠΎΠ΄ΡΠΈΠΊ β ΡΠ½ΠΈΠΊΠ°Π»ΡΠ½ΡΠΉ ΠΌΠ΅Ρ Π°Π½ΠΈΠ·ΠΌ, ΠΏΠΎΠΌΠΎΠ³Π°ΡΡΠΈΠΉ Π² ΡΠΊΡΠΏΠ»ΡΠ°ΡΠ°ΡΠΈΠΈ Π΄Π²Π΅ΡΠΈ. ΠΠ»Π°Π³ΠΎΠ΄Π°ΡΡ Π΄Π°Π½Π½ΠΎΠΌΡ ΠΏΡΠΈΡΠΏΠΎΡΠΎΠ±Π»Π΅Π½ΠΈΡ ΠΎΡΠΊΡΡΠ²Π°ΡΡ ΠΈ Π·Π°ΠΊΡΡΠ²Π°ΡΡ Π΄Π²Π΅ΡΡ ΡΡΠ°Π»ΠΎ Π½Π°ΠΌΠ½ΠΎΠ³ΠΎ ΠΏΡΠΎΡΠ΅. Π ΡΠΎΠΆΠ°Π»Π΅Π½ΠΈΡ, ΠΊΠ°ΠΊ ΠΈ Π»ΡΠ±ΠΎΠΉ ΠΌΠ΅Ρ Π°Π½ΠΈΠ·ΠΌ, Π΄ΠΎΠ²ΠΎΠ΄ΡΠΈΠΊ ΠΌΠΎΠΆΠ΅Ρ Π²ΡΡ ΠΎΠ΄ΠΈΡΡ ΠΈΠ· ΡΡΡΠΎΡ. ΠΡΠΈΡΠΈΠ½ ΡΠΎΠΌΡ ΠΌΠΎΠΆΠ΅Ρ Π±ΡΡΡ ΠΌΠ°ΡΡΠ°. ΠΠ΄Π½Π°ΠΊΠΎ Π² Π»ΡΠ±ΠΎΠΌ ΡΠ»ΡΡΠ°Π΅ Π½Π΅ΠΎΠ±Ρ ΠΎΠ΄ΠΈΠΌΠΎ ΡΠ΅ΡΠ°ΡΡ Π΄Π°Π½Π½ΡΡ ΠΏΡΠΎΠ±Π»Π΅ΠΌΡ. Π ΡΡΠΎΠΉ ΡΡΠ°ΡΡΠ΅ ΠΌΡ ΠΏΠΎΠ΄ΡΠΎΠ±Π½ΠΎ ΡΠ°ΡΡΠΊΠ°ΠΆΠ΅ΠΌ, ΠΊΠ°ΠΊ ΠΎΡΡΠ΅ΠΌΠΎΠ½ΡΠΈΡΠΎΠ²Π°ΡΡ Π΄ΠΎΠ²ΠΎΠ΄ΡΠΈΠΊ Π΄Π²Π΅ΡΠΈ Π² Π·Π°Π²ΠΈΡΠΈΠΌΠΎΡΡΠΈ ΠΎΡ Π΅Π³ΠΎ ΠΏΠΎΠ²ΡΠ΅ΠΆΠ΄Π΅Π½ΠΈΠΉ.
ΠΠ°ΠΊ ΠΎΡΠΌΠ΅ΡΠ°ΡΡ ΡΠΏΠ΅ΡΠΈΠ°Π»ΠΈΡΡΡ, ΡΠ°ΠΌΠΎΡΡΠΎΡΡΠ΅Π»ΡΠ½ΠΎ ΡΠ΅ΠΌΠΎΠ½ΡΠΈΡΠΎΠ²Π°ΡΡ ΡΡΡΡΠΎΠΉΡΡΠ²ΠΎ Π½Π΅ ΡΠ΅ΠΊΠΎΠΌΠ΅Π½Π΄ΡΠ΅ΡΡΡ. ΠΠΎΡΠΊΠΎΠ»ΡΠΊΡ Π΅Π³ΠΎ ΠΊΠΎΠ½ΡΡΡΡΠΊΡΠΈΡ ΠΈΠΌΠ΅Π΅Ρ ΠΎΠΏΡΠ΅Π΄Π΅Π»Π΅Π½Π½ΡΠ΅ ΠΎΡΠΎΠ±Π΅Π½Π½ΠΎΡΡΠΈ, Π° ΠΌΠ°Π»Π΅ΠΉΡΠ°Ρ ΠΎΡΠΈΠ±ΠΊΠ° ΠΌΠΎΠΆΠ΅Ρ ΠΏΠΎΡΡΠ°Π²ΠΈΡΡ ΠΎΠΊΠΎΠ½ΡΠ°ΡΠ΅Π»ΡΠ½ΡΠΉ ΠΊΡΠ΅ΡΡ Π½Π° Π΄ΠΎΠ²ΠΎΠ΄ΡΠΈΠΊΠ΅. ΠΡΠΎΠΌΠ΅ ΡΠΎΠ³ΠΎ, Π² Π½Π΅ΠΊΠΎΡΠΎΡΡΡ ΡΠ»ΡΡΠ°Ρ ΠΏΡΠΎΡΠ΅ ΠΈ Π΄Π΅ΡΠ΅Π²Π»Π΅ ΠΊΡΠΏΠΈΡΡ Π½ΠΎΠ²ΠΎΠ΅ ΡΡΡΡΠΎΠΉΡΡΠ²ΠΎ, ΡΠ΅ΠΌ ΠΏΡΡΠ°ΡΡΡΡ Π²ΠΎΡΡΡΠ°Π½ΠΎΠ²ΠΈΡΡ ΡΠ°Π±ΠΎΡΠΎΡΠΏΠΎΡΠΎΠ±Π½ΠΎΡΡΡ ΡΡΠ°ΡΠΎΠ³ΠΎ. ΠΡ ΠΆΠ΅ ΡΠ°ΡΡΠΌΠΎΡΡΠΈΠΌ ΡΠ΅ ΠΏΠΎΠ»ΠΎΠΌΠΊΠΈ, ΠΊΠΎΡΠΎΡΡΠ΅ ΠΌΠΎΠΆΠ½ΠΎ Π»ΠΈΠΊΠ²ΠΈΠ΄ΠΈΡΠΎΠ²Π°ΡΡ ΡΠΎΠ±ΡΡΠ²Π΅Π½Π½ΡΠΌΠΈ ΡΠΈΠ»Π°ΠΌΠΈ, Π½Π΅ ΠΏΡΠΈΠ³Π»Π°ΡΠ°Ρ ΠΏΡΠΎΡΠ΅ΡΡΠΈΠΎΠ½Π°Π»ΠΎΠ².
ΠΡΠ½ΠΎΠ²Π½ΡΠ΅ Π²ΠΈΠ΄Ρ ΠΏΠΎΠ»ΠΎΠΌΠΎΠΊ Π΄Π²Π΅ΡΠ½ΡΡ Π΄ΠΎΠ²ΠΎΠ΄ΡΠΈΠΊΠΎΠ²
Π‘ΡΡΠ΅ΡΡΠ²ΡΠ΅Ρ Π½Π΅ΡΠΊΠΎΠ»ΡΠΊΠΎ Π½Π°ΠΈΠ±ΠΎΠ»Π΅Π΅ ΡΠ°ΡΠΏΡΠΎΡΡΡΠ°Π½Π΅Π½Π½ΡΡ ΠΏΠΎΠ»ΠΎΠΌΠΎΠΊ, ΠΊΠΎΡΠΎΡΡΠΌ ΠΏΠΎΠ΄Π²Π΅ΡΠΆΠ΅Π½Ρ Π²ΡΠ΅ Π΄Π²Π΅ΡΠ½ΡΠ΅ Π΄ΠΎΠ²ΠΎΠ΄ΡΠΈΠΊΠΈ. Π ΠΏΠ΅ΡΠ²ΡΡ ΠΎΡΠ΅ΡΠ΅Π΄Ρ ΡΡΠΎ ΠΏΠΎΠ²ΡΠ΅ΠΆΠ΄Π΅Π½ΠΈΠ΅ ΡΡΠ°Π½Π³ΠΈ ΠΈΠ»ΠΈ Π½Π°ΠΏΡΠ°Π²Π»ΡΡΡΠΈΡ ΡΡΡΡΠΎΠΉΡΡΠ²Π°. Π ΡΡΠΎΠΌΡ ΠΏΡΠΈΠ²ΠΎΠ΄ΠΈΡ Π½Π΅ΠΏΡΠ°Π²ΠΈΠ»ΡΠ½Π°Ρ ΡΠΊΡΠΏΠ»ΡΠ°ΡΠ°ΡΠΈΡ Π΄ΠΎΠ²ΠΎΠ΄ΡΠΈΠΊΠ°, ΡΠ΄Π°ΡΠΎΠ² ΠΏΠΎ Π΄Π²Π΅ΡΠΈ ΠΈΠ»ΠΈ ΡΠΈΠΊΡΠ°ΡΠΈΠΈ Π΄Π²Π΅ΡΠ½ΠΎΠ³ΠΎ ΠΏΠΎΠ»ΠΎΡΠ½Π° Π² ΠΎΡΠΊΡΡΡΠΎΠΌ ΠΏΠΎΠ»ΠΎΠΆΠ΅Π½ΠΈΠΈ ΠΏΡΠΈ ΠΏΠΎΠΌΠΎΡΠΈ ΠΏΠΎΠ΄Π»ΠΎΠΆΠ΅Π½Π½ΠΎΠ³ΠΎ ΠΊΠ°ΠΌΠ½Ρ, ΡΠ²Π°Π±ΡΡ ΠΈ Ρ.Π΄. Π‘Π»ΠΎΠΌΠ°Π½Π½Π°Ρ ΡΡΠ°Π½Π³Π° ΠΎΡΠ½ΠΎΡΠΈΡΠ΅Π»ΡΠ½ΠΎ Π»Π΅Π³ΠΊΠΎ ΠΏΠΎΠ΄Π΄Π°Π΅ΡΡΡ Π²ΠΎΡΡΡΠ°Π½ΠΎΠ²Π»Π΅Π½ΠΈΡ. ΠΡΠ΅ ΠΏΠΎΠ²ΡΠ΅ΠΆΠ΄Π΅Π½ΠΈΡ Π΄Π°Π½Π½ΠΎΠΉ Π΄Π΅ΡΠ°Π»ΠΈ Π΄ΠΎΠ²ΠΎΠ΄ΡΠΈΠΊΠ° ΠΌΠΎΠΆΠ½ΠΎ ΡΠ°ΡΠΏΡΠ΅Π΄Π΅Π»ΠΈΡΡ Π½Π° ΡΡΠΈ ΠΎΡΠ½ΠΎΠ²Π½ΡΠ΅ Π³ΡΡΠΏΠΏΡ:
- ΠΈΠ·Π³ΠΈΠ± ΡΡΡΠ°Π³Π° ΠΈΠ»ΠΈ Π΅Π³ΠΎ Π½Π΅Π±ΠΎΠ»ΡΡΠΎΠΉ ΠΈΠ·Π»ΠΎΠΌ;
- Π·Π°Π΅Π΄Π°Π½ΠΈΠ΅ ΡΡΡΠ°Π³Π°;
- ΠΏΠΎΠ»ΠΎΠΌΠΊΠ° ΠΊΡΠ΅ΠΏΠ΅ΠΆΠ΅ΠΉ.
ΠΡΠ»ΠΈ ΡΡΠΎ ΠΎΠ±ΡΡΠ½ΡΠΉ ΠΈΠ·Π»ΠΎΠΌ, ΠΏΠΎΡΠ²Π»Π΅Π½ΠΈΡ ΡΡΠ΅ΡΠΈΠ½, ΡΠΎ Π² ΡΠ°ΠΊΠΎΠΌ ΡΠ»ΡΡΠ°Π΅, ΠΏΡΠΎΠ±Π»Π΅ΠΌ, ΠΊΠ°ΠΊ ΠΎΡΡΠ΅ΠΌΠΎΠ½ΡΠΈΡΠΎΠ²Π°ΡΡ Π΄ΠΎΠ²ΠΎΠ΄ΡΠΈΠΊ Π΄Π²Π΅ΡΠΈ Π½Π΅ Π±ΡΠ΄Π΅Ρ. ΠΠΎΡΡΠ°ΡΠΎΡΠ½ΠΎ ΠΈΡΠΏΠΎΠ»ΡΠ·ΠΎΠ²Π°ΡΡ ΠΎΠ±ΡΡΠ½ΡΡ ΡΠ²Π°ΡΠΊΡ. ΠΡΠΈ ΠΈΠ·Π³ΠΈΠ±Π΅ ΠΈΠ·Π΄Π΅Π»ΠΈΡ Π΄ΠΎΠ²ΠΎΠ΄ΡΠΈΠΊ ΡΠ»Π΅Π΄ΡΠ΅Ρ ΡΠ°Π·ΠΎΠ±ΡΠ°ΡΡ ΠΈ ΠΏΠΎΡΡΠ°ΡΠ°ΡΡΡΡ Π°ΠΊΠΊΡΡΠ°ΡΠ½ΠΎ Π²ΡΡΠΎΠ²Π½ΡΡΡ ΡΡΠ°Π½Π³Ρ. ΠΠ΅ ΡΠ°ΠΊΡ, ΡΡΠΎ Π΅ΠΉ ΡΠ΄Π°ΡΡΡΡ Π²Π΅ΡΠ½ΡΡΡ ΠΏΠ΅ΡΠ²ΠΎΠ½Π°ΡΠ°Π»ΡΠ½ΡΡ ΡΠΎΡΠΌΡ. ΠΠΎΡΡΠΎΠΌΡ ΠΌΠΎΠΆΠ½ΠΎ ΠΊΡΠΏΠΈΡΡ Π½ΠΎΠ²ΠΎΠ΅ ΠΈΠ·Π΄Π΅Π»ΠΈΠ΅, ΠΊΠΎΡΠΎΡΠΎΠ΅ ΡΠ΅Π°Π»ΠΈΠ·ΡΠ΅ΡΡΡ Π² ΡΠΎΠΎΡΠ²Π΅ΡΡΡΠ²ΡΡΡΠΈΡ ΠΌΠ°Π³Π°Π·ΠΈΠ½Π°Ρ . Π‘ΡΠΎΠΈΠΌΠΎΡΡΡ ΡΡΠ°Π½Π³ΠΈ Π½Π΅Π²ΡΡΠΎΠΊΠ° ΠΈ Π² ΠΊΠΎΠ½Π΅ΡΠ½ΠΎΠΌ ΠΈΡΠΎΠ³Π΅ ΠΎΠ±ΠΎΠΉΠ΄Π΅ΡΡΡ Π½Π°ΠΌΠ½ΠΎΠ³ΠΎ Π΄Π΅ΡΠ΅Π²Π»Π΅, ΡΠ΅ΠΌ ΠΏΡΠΈΠΎΠ±ΡΠ΅ΡΠ΅Π½ΠΈΠ΅ ΠΈ ΡΡΡΠ°Π½ΠΎΠ²ΠΊΠ° Π½ΠΎΠ²ΠΎΠ³ΠΎ Π΄ΠΎΠ²ΠΎΠ΄ΡΠΈΠΊΠ°. ΠΠ·Π½ΠΎΡΠ΅Π½Π½ΡΠ΅ ΠΊΡΠ΅ΠΏΠ»Π΅Π½ΠΈΡ ΡΠ°ΠΊΠΆΠ΅ Π·Π°ΠΌΠ΅Π½ΠΈΡΡ Π΄ΠΎΠ²ΠΎΠ»ΡΠ½ΠΎ ΠΏΡΠΎΡΡΠΎ. ΠΡΠΆΠ½ΠΎ ΠΏΡΠΎΡΡΠΎ ΠΏΡΠΈΠΎΠ±ΡΠ΅ΡΡΠΈ ΡΠΎΠΎΡΠ²Π΅ΡΡΡΠ²ΡΡΡΠΈΠ΅ Π²ΠΈΠ½ΡΡ ΠΈ ΡΡΡΠ°Π½ΠΎΠ²ΠΈΡΡ Π½Π° ΠΌΠ΅ΡΡΠΎ ΡΡΠ°ΡΡΡ . ΠΠΎΠ·ΠΌΠΎΠΆΠ½ΠΎ, ΠΏΡΠΈΠ΄Π΅ΡΡΡ ΠΈΡΠΏΠΎΠ»ΡΠ·ΠΎΠ²Π°ΡΡ ΡΠ°ΠΉΠ±Ρ, Π½ΠΎ Π²ΡΠ΅ Π·Π°Π²ΠΈΡΠΈΡ ΠΎΡ ΡΡΠ΅ΠΏΠ΅Π½ΠΈ ΠΈΠ·Π½ΠΎΡΠ΅Π½Π½ΠΎΡΡΠΈ ΠΊΡΠ΅ΠΏΠ»Π΅Π½ΠΈΠΉ.
ΠΡ ΠΏΡΠΎΡΠ΅ΡΠ΅ΠΊ Π½Π΅Π·Π°ΡΠΈΡΠ΅Π½ Π½ΠΈΠΊΡΠΎ
ΠΡΠΎΡΠ°Ρ ΡΠ°ΡΠΏΡΠΎΡΡΡΠ°Π½Π΅Π½Π½Π°Ρ ΠΏΡΠΈΡΠΈΠ½Π° ΠΏΠΎΠ»ΠΎΠΌΠΎΠΊ Π΄ΠΎΠ²ΠΎΠ΄ΡΠΈΠΊΠΎΠ² β ΠΏΡΠΎΡΠ΅ΠΊΠ°Π½ΠΈΠ΅ ΠΌΠ°ΡΠ»Π°, ΠΈΡΠΏΠΎΠ»ΡΠ·ΡΠ΅ΠΌΠΎΠ³ΠΎ Π²Π½ΡΡΡΠΈ ΡΡΡΡΠΎΠΉΡΡΠ²Π°, ΡΠΊΠ²ΠΎΠ·Ρ ΡΠ°Π»ΡΠ½ΠΈΠΊΠΈ. Π§Π°ΡΠ΅ Π²ΡΠ΅Π³ΠΎ Π² ΠΊΠΎΡΠΏΡΡΠ΅ ΡΡΡΡΠΎΠΉΡΡΠ²Π° ΠΏΡΠΈΠΌΠ΅Π½ΡΠ΅ΡΡΡ ΡΠΏΠ΅ΡΠΈΠ°Π»ΡΠ½ΠΎΠ΅ Π²ΠΎΠ΄Π½ΠΎ-Π³ΠΈΠ»ΠΊΠΎΠ»ΡΠ½ΠΎΠ΅ ΠΌΠ°ΡΠ»ΠΎ, ΠΎΠ±Π΅ΡΠΏΠ΅ΡΠΈΠ²Π°ΡΡΠ΅Π΅ ΠΏΠ»Π°Π²Π½ΡΠΉ Ρ ΠΎΠ΄ Π΄Π²ΠΈΠΆΠ΅Π½ΠΈΡ Π΄Π²Π΅ΡΠΈ ΠΏΡΠΈ ΠΎΡΠΊΡΡΡΠΈΠΈ ΠΈ Π·Π°ΠΊΡΡΡΠΈΠΈ. Π’Π°ΠΊΠΆΠ΅ Π²ΠΎΠ·ΠΌΠΎΠΆΠ½ΠΎ ΠΈΡΠΏΠΎΠ»ΡΠ·ΠΎΠ²Π°Π½ΠΈΠ΅ ΡΠΏΠ΅ΡΠΈΠ°Π»ΠΈΠ·ΠΈΡΠΎΠ²Π°Π½Π½ΠΎΠ³ΠΎ ΠΌΠ°ΡΠ»Π°, ΡΠ°Π·ΡΠ°Π±ΠΎΡΠ°Π½Π½ΠΎΠ³ΠΎ ΡΠΏΠ΅ΡΠΈΠ°Π»ΡΠ½ΠΎ Π΄Π»Ρ Π΄ΠΎΠ²ΠΎΠ΄ΡΠΈΠΊΠΎΠ².
ΠΠ°Π½Π½Π°Ρ ΠΏΡΠΎΠ±Π»Π΅ΠΌΠ° Π·Π°ΡΠ°ΡΡΡΡ Π²ΠΎΠ·Π½ΠΈΠΊΠ°Π΅Ρ Π² Ρ ΠΎΠ»ΠΎΠ΄Π½ΠΎΠ΅ Π²ΡΠ΅ΠΌΡ Π³ΠΎΠ΄Π°, ΠΊΠΎΠ³Π΄Π° ΡΠ΅ΠΌΠΏΠ΅ΡΠ°ΡΡΡΠ° Π²ΠΎΠ·Π΄ΡΡ Π° Π·Π½Π°ΡΠΈΡΠ΅Π»ΡΠ½ΠΎ ΠΏΠΎΠ½ΠΈΠΆΠ°Π΅ΡΡΡ. ΠΠΎΡΡΠΎΠΌΡ Π²ΠΎΠΏΡΠΎΡΠΎΠΌ, ΠΊΠ°ΠΊ ΠΎΡΡΠ΅ΠΌΠΎΠ½ΡΠΈΡΠΎΠ²Π°ΡΡ Π΄ΠΎΠ²ΠΎΠ΄ΡΠΈΠΊ Π΄Π²Π΅ΡΠΈ ΠΏΡΠΈ Π²ΡΡΠ΅ΠΊΠ°Π½ΠΈΠΈ ΠΌΠ°ΡΠ»Π° Π·Π°Π΄Π°ΡΡΡΡ ΠΈΠΌΠ΅Π½Π½ΠΎ Π·ΠΈΠΌΠΎΠΉ ΠΈΠ»ΠΈ ΠΏΠΎΠ·Π΄Π½Π΅ΠΉ ΠΎΡΠ΅Π½ΡΡ. ΠΠ½ Π°ΠΊΡΡΠ°Π»Π΅Π½ Π΄Π»Ρ ΡΠ΅Ρ , ΠΊΡΠΎ ΡΠΎΠ»ΡΠΊΠΎ Π½Π΅Π΄Π°Π²Π½ΠΎ ΡΡΡΠ°Π½ΠΎΠ²ΠΈΠ» ΡΡΡΡΠΎΠΉΡΡΠ²ΠΎ Π½Π° Π΄Π²Π΅ΡΡ. ΠΠΏΡΡΠ½ΡΠ΅ ΠΏΠΎΠ»ΡΠ·ΠΎΠ²Π°ΡΠ΅Π»ΠΈ Π·Π½Π°ΡΡ, ΡΡΠΎ Π²ΡΡΠ΅ΠΊΠ°Π½ΠΈΠ΅ ΠΌΠ°ΡΠ»Π° ΠΌΠΎΠΆΠ΅Ρ ΠΈΠΌΠ΅ΡΡ Π½Π΅Π³Π°ΡΠΈΠ²Π½ΡΠ΅ ΠΏΠΎΡΠ»Π΅Π΄ΡΡΠ²ΠΈΡ Π΄Π»Ρ Π²ΡΠ΅Π³ΠΎ ΠΌΠ΅Ρ Π°Π½ΠΈΠ·ΠΌΠ°. ΠΠΎΠ²ΠΎΠ΄ΡΠΈΠΊ ΠΏΠΎΠΏΡΠΎΡΡΡ ΠΏΠ΅ΡΠ΅ΡΡΠ°Π½Π΅Ρ Π²ΡΠΏΠΎΠ»Π½ΡΡΡ ΡΠ²ΠΎΠΈ ΡΡΠ½ΠΊΡΠΈΠΈ, Π° ΠΏΠ΅ΡΠ»ΠΈ ΠΈΠ·-Π·Π° ΠΏΠΎΡΡΠΎΡΠ½Π½ΠΎ Ρ Π»ΠΎΠΏΠ°ΡΡΠΈΡ Π΄Π²Π΅ΡΠ΅ΠΉ Π±ΡΡΡΡΠΎ ΡΠ°ΡΡΠ°ΡΠ°ΡΡΡΡ.
ΠΠ·Π±Π°Π²ΠΈΡΡΡΡ ΠΎΡ ΡΡΠΎΠΉ ΠΏΡΠΎΠ±Π»Π΅ΠΌΡ Π΄ΠΎΠ²ΠΎΠ»ΡΠ½ΠΎ ΠΏΡΠΎΡΡΠΎ β Π΄ΠΎΡΡΠ°ΡΠΎΡΠ½ΠΎ Π»ΠΈΡΡ Π·Π°ΠΌΠ΅Π½ΠΈΡΡ ΠΊΠΎΡΠΏΡΡ Ρ ΠΌΠ°ΡΠ»ΠΎΠΌ. ΠΠ΄Π½Π°ΠΊΠΎ ΡΠ°ΠΌ ΠΊΠΎΡΠΏΡΡ Π½Π°ΠΉΡΠΈ Π½Π΅ ΡΠ°ΠΊ ΡΠΆ ΠΈ ΠΏΡΠΎΡΡΠΎ, ΠΏΠΎΡΡΠΎΠΌΡ Π³ΠΎΡΠ°Π·Π΄ΠΎ Π»Π΅Π³ΡΠ΅ ΠΈ ΡΠ°Π·ΡΠΌΠ½Π΅Π΅ ΡΡΠ°Π·Ρ ΠΏΡΠΈΠΎΠ±ΡΠ΅ΡΡΠΈ Π½ΠΎΠ²ΡΠΉ Π΄ΠΎΠ²ΠΎΠ΄ΡΠΈΠΊ.
ΠΡΠ°Π²ΠΈΠ»ΡΠ½ΡΠΉ ΡΠ΅Π³ΡΠ»ΠΈΡΠΎΠ²ΡΠΈΠΊ
ΠΡΠ΅ ΠΎΠ΄Π½Π° ΡΠ°ΡΠΏΡΠΎΡΡΡΠ°Π½Π΅Π½Π½Π°Ρ ΠΏΠΎΠ»ΠΎΠΌΠΊΠ° ΡΠ²ΡΠ·Π°Π½Π° Ρ ΡΠ°Π±ΠΎΡΠΎΠΉ ΡΠ΅Π³ΡΠ»ΠΈΡΠΎΠ²ΡΠΈΠΊΠ°. Π Π½Π΅ΠΈΡΠΏΡΠ°Π²Π½ΠΎΡΡΠΈ ΠΏΡΠΈΠ²ΠΎΠ΄ΠΈΡ ΡΠ²Π΅Π»ΠΈΡΠ΅Π½ΠΈΠ΅ Π²ΡΠ·ΠΊΠΎΡΡΠΈ ΠΆΠΈΠ΄ΠΊΠΎΡΡΠΈ Π²Π½ΡΡΡΠΈ ΠΊΠΎΡΠΏΡΡΠ°. ΠΠ°Π½Π½Π°Ρ ΠΏΡΠΎΠ±Π»Π΅ΠΌΠ° ΠΌΠΎΠΆΠ΅Ρ Π²ΠΎΠ·Π½ΠΈΠΊΠ½ΡΡΡ Π»ΠΈΡΡ ΠΏΠΎΡΠ»Π΅ ΠΌΠ½ΠΎΠ³ΠΎΠ»Π΅ΡΠ½Π΅Π³ΠΎ ΠΈΡΠΏΠΎΠ»ΡΠ·ΠΎΠ²Π°Π½ΠΈΡ Π΄ΠΎΠ²ΠΎΠ΄ΡΠΈΠΊΠ° (Π½Π΅ ΠΌΠ΅Π½Π΅Π΅ ΠΏΡΡΠΈ Π»Π΅Ρ) ΠΈ ΠΏΡΠΈ ΡΠ΅Π·ΠΊΠΎΠΌ ΡΠ½ΠΈΠΆΠ΅Π½ΠΈΠΈ ΡΠ΅ΠΌΠΏΠ΅ΡΠ°ΡΡΡΡ Π²ΠΎΠ·Π΄ΡΡ Π°. ΠΠ°Π»Π΅Π΅ ΠΏΡΠΈΠ²Π΅Π΄Π΅Π½Π° ΠΏΠΎΠ΄ΡΠΎΠ±Π½Π°Ρ ΠΈΠ½ΡΡΡΡΠΊΡΠΈΡ, ΠΊΠ°ΠΊ ΠΎΡΡΠ΅ΠΌΠΎΠ½ΡΠΈΡΠΎΠ²Π°ΡΡ Π΄ΠΎΠ²ΠΎΠ΄ΡΠΈΠΊ Π΄Π²Π΅ΡΠΈ ΠΏΡΠΈ Π²ΠΎΠ·Π½ΠΈΠΊΠ½ΠΎΠ²Π΅Π½ΠΈΠΈ ΠΏΡΠΎΠ±Π»Π΅ΠΌ Ρ ΡΠ΅Π³ΡΠ»ΠΈΡΠΎΠ²ΡΠΈΠΊΠΎΠΌ. ΠΡΠΎΡ Π²ΠΈΠ΄ ΡΠ΅ΠΌΠΎΠ½ΡΠ° ΠΌΠΎΠΆΠ½ΠΎ ΠΎΡΠ½Π΅ΡΡΠΈ ΠΊ ΠΏΡΠΎΡΠΈΠ»Π°ΠΊΡΠΈΡΠ΅ΡΠΊΠΈΠΌ ΡΠ°Π±ΠΎΡΠ°ΠΌ, ΠΊΠΎΡΠΎΡΡΠ΅ ΡΠ΅ΠΊΠΎΠΌΠ΅Π½Π΄ΡΠ΅ΡΡΡ ΠΎΡΡΡΠ΅ΡΡΠ²Π»ΡΡΡ Π΄Π²Π° ΡΠ°Π·Π° Π² Π³ΠΎΠ΄ β Π²Π΅ΡΠ½ΠΎΠΉ ΠΈ ΠΎΡΠ΅Π½ΡΡ, Π° Π½Π΅ ΠΆΠ΄Π°ΡΡ, ΠΏΠΎΠΊΠ° ΡΡΡΡΠΎΠΉΡΡΠ²ΠΎ ΠΎΠΊΠΎΠ½ΡΠ°ΡΠ΅Π»ΡΠ½ΠΎ ΠΈΠ·Π½ΠΎΡΠΈΡΡΡ.
ΠΠ»Ρ ΡΡΠΎΠ³ΠΎ ΡΠ»Π΅Π΄ΡΠ΅Ρ Π²ΡΠΏΠΎΠ»Π½ΠΈΡΡ ΠΎΠΏΡΠ΅Π΄Π΅Π»Π΅Π½Π½ΡΡ ΠΏΠΎΡΠ»Π΅Π΄ΠΎΠ²Π°ΡΠ΅Π»ΡΠ½ΠΎΡΡΡ Π΄Π΅ΠΉΡΡΠ²ΠΈΠΉ:
- Π ΡΠ»ΡΡΠ°Π΅, ΠΊΠΎΠ³Π΄Π° ΡΠΊΠΎΡΠΎΡΡΡ Π΄ΠΎΡ Π»ΠΎΠΏΠ° Π΄Π²Π΅ΡΠΈ Π·Π½Π°ΡΠΈΡΠ΅Π»ΡΠ½ΠΎ ΡΠ²Π΅Π»ΠΈΡΠΈΠ²Π°Π΅ΡΡΡ ΠΈΠ»ΠΈ ΡΠΌΠ΅Π½ΡΡΠ°Π΅ΡΡΡ, Π½Π΅ΠΎΠ±Ρ ΠΎΠ΄ΠΈΠΌΠΎ ΠΏΡΠΎΡΡΠΎ ΠΎΡΡΠ΅Π³ΡΠ»ΠΈΡΠΎΠ²Π°ΡΡ ΠΎΠ΄ΠΈΠ½ ΠΈΠ· Π²ΠΈΠ½ΡΠΎΠ² Π΄ΠΎΠ²ΠΎΠ΄ΡΠΈΠΊΠ°. ΠΠ° ΡΠΊΠΎΡΠΎΡΡΡ Π΄ΠΎΡ Π»ΠΎΠΏΠ° ΠΎΡΠ²Π΅ΡΠ°Π΅Ρ Π²ΡΠΎΡΠΎΠΉ Π²ΠΈΠ½Ρ (ΠΎΠ±ΡΡΠ½ΠΎ, Π²ΠΈΠ½ΡΡ Π½Π° ΠΊΠΎΡΠΏΡΡΠ΅ Π΄ΠΎΠ²ΠΎΠ΄ΡΠΈΠΊΠ° ΠΈΠΌΠ΅ΡΡ ΡΠΎΠΎΡΠ²Π΅ΡΡΡΠ²ΡΡΡΡΡ Π½ΡΠΌΠ΅ΡΠ°ΡΠΈΡ, Π° Π² ΠΈΠ½ΡΡΡΡΠΊΡΠΈΠΈ ΠΊ ΠΌΠ΅Ρ Π°Π½ΠΈΠ·ΠΌΡ ΠΏΠΎΠ΄ΡΠΎΠ±Π½ΠΎ ΠΎΠΏΠΈΡΠ°Π½ΠΎ, ΠΊΠ°ΠΊΠΎΠΉ Π²ΠΈΠ½Ρ Π·Π° ΡΡΠΎ ΠΎΡΠ²Π΅ΡΠ°Π΅Ρ).
- ΠΡΠ»ΠΈ Π²Ρ Ρ ΠΎΡΠΈΡΠ΅ ΡΠ²Π΅Π»ΠΈΡΠΈΡΡ ΠΈΠ»ΠΈ ΡΠΌΠ΅Π½ΡΡΠΈΡΡ Π΄Π²ΠΈΠΆΠ΅Π½ΠΈΠ΅ Π΄Π²Π΅ΡΠ½ΠΎΠ³ΠΎ ΠΏΠΎΠ»ΠΎΡΠ½Π° Π΄ΠΎ ΠΌΠΎΠΌΠ΅Π½ΡΠ° Π²Ρ ΠΎΠΆΠ΄Π΅Π½ΠΈΡ Π΅Π΅ Π² ΡΠ°Π΄ΠΈΡΡ Π΄ΠΎΡ Π»ΠΎΠΏΠ°, ΠΈΡΠΏΠΎΠ»ΡΠ·ΡΠΉΡΠ΅ Π΄Π»Ρ ΡΡΠΎΠ³ΠΎ ΠΏΠ΅ΡΠ²ΡΠΉ Π²ΠΈΠ½Ρ. ΠΠ³ΠΎ Π½Π΅ΠΎΠ±Ρ ΠΎΠ΄ΠΈΠΌΠΎ ΠΏΡΠΎΠ²ΠΎΡΠ°ΡΠΈΠ²Π°ΡΡ ΠΏΡΠΎΡΠΈΠ² ΠΈΠ»ΠΈ ΠΏΠΎ ΡΠ°ΡΠΎΠ²ΠΎΠΉ ΡΡΡΠ΅Π»ΠΊΠ΅, Π² Π·Π°Π²ΠΈΡΠΈΠΌΠΎΡΡΠΈ ΠΎΡ ΡΠΎΠ³ΠΎ, ΠΊΠ°ΠΊΠΎΠ³ΠΎ ΡΡΡΠ΅ΠΊΡΠ° Π²Ρ Ρ ΠΎΡΠΈΡΠ΅ Π΄ΠΎΠ±ΠΈΡΡΡΡ. ΠΠ»Π°Π²Π½ΠΎΠ΅ ΠΏΡΠ°Π²ΠΈΠ»ΠΎ β Π½ΠΈΠΊΠΎΠ³Π΄Π° Π½Π΅ Π·Π°ΠΊΡΡΡΠΈΠ²Π°ΡΡ Π²ΠΈΠ½Ρ Π΄ΠΎ ΡΠΏΠΎΡΠ°. ΠΠ·Π½Π°ΡΠ°Π»ΡΠ½ΠΎ ΠΎΠ½ ΡΠ°ΡΡΡΠΈΡΠ°Π½ Π²ΡΠ΅Π³ΠΎ Π»ΠΈΡΡ Π½Π° Π΄Π²Π° ΠΎΠ±ΠΎΡΠΎΡΠ°, ΡΠΎ Π΅ΡΡΡ ΠΌΠ°Π»Π΅ΠΉΡΠ΅Π΅ ΠΏΡΠΎΠ²ΠΎΡΠ°ΡΠΈΠ²Π°Π½ΠΈΠ΅ Π΅Π³ΠΎ Π² ΠΎΠ΄Π½Ρ ΠΈΠ· ΡΡΠΎΡΠΎΠ½ ΠΏΠΎΠ·Π²ΠΎΠ»ΠΈΡ ΡΡΡΠ΅ΡΡΠ²Π΅Π½Π½ΠΎ ΠΏΠΎΠ²Π»ΠΈΡΡΡ Π½Π° ΡΠΊΠΎΡΠΎΡΡΡ Π΄Π²ΠΈΠΆΠ΅Π½ΠΈΡ ΠΏΠΎΠ»ΠΎΡΠ½Π°.
- ΠΡΠ»ΠΈ Π²Ρ Ρ ΠΎΡΠΈΡΠ΅ ΡΠ²Π΅Π»ΠΈΡΠΈΡΡ ΡΠΊΠΎΡΠΎΡΡΡ ΠΎΡΠΊΡΡΠ²Π°Π½ΠΈΡ Π΄Π²Π΅ΡΠΈ, ΠΏΡΠΎΠΊΡΡΡΠΈΡΠ΅ ΡΠ΅Π³ΡΠ»ΠΈΡΠΎΠ²ΠΎΡΠ½ΡΡ Π³Π°ΠΉΠΊΡ, ΠΎΡΠ²Π΅ΡΠ°ΡΡΡΡ Π·Π° ΡΠ°Π±ΠΎΡΡ ΠΏΡΡΠΆΠΈΠ½Ρ.
- ΠΡΠ»ΠΈ ΡΡΠΈΡΠ°Π΅ΡΠ΅, ΡΡΠΎ Π΄Π²Π΅ΡΡ ΡΠ»ΠΈΡΠΊΠΎΠΌ Π±ΡΡΡΡΠΎ Π·Π°ΠΊΡΡΠ²Π°Π΅ΡΡΡ, ΠΌΠΎΠΆΠ΅ΡΠ΅ ΡΠ²Π΅Π»ΠΈΡΠΈΡΡ Π²ΡΠ΅ΠΌΡ Π·Π°Π΄Π΅ΡΠΆΠΊΠΈ Π΄Π²ΠΈΠΆΠ΅Π½ΠΈΡ Π΄Π²Π΅ΡΠ½ΠΎΠ³ΠΎ ΠΏΠΎΠ»ΠΎΡΠ½Π° ΠΏΠ΅ΡΠ΅Π΄ Π·Π°Ρ Π»ΠΎΠΏΡΠ²Π°Π½ΠΈΠ΅ΠΌ. ΠΠ°ΡΠΈΠΊΡΠΈΡΡΠΉΡΠ΅ Π΄Π²Π΅ΡΠ½ΠΎΠ΅ ΠΏΠΎΠ»ΠΎΡΠ½ΠΎ ΠΏΠΎΠ΄ ΡΠ³Π»ΠΎΠΌ Π² Π΄Π΅Π²ΡΠ½ΠΎΡΡΠΎ ΠΏΡΡΡ Π³ΡΠ°Π΄ΡΡΠΎΠ² ΠΈ ΠΎΡΡΠ΅Π³ΡΠ»ΠΈΡΡΠΉΡΠ΅ ΡΠΎΠΎΡΠ²Π΅ΡΡΡΠ²ΡΡΡΠΈΠΉ Π²ΠΈΠ½Ρ.
ΠΡΠΎ ΠΎΡΠ½ΠΎΠ²Π½ΡΠ΅ ΠΏΡΠΈΠ½ΡΠΈΠΏΡ, ΠΊΠ°ΠΊ ΠΎΡΡΠ΅ΠΌΠΎΠ½ΡΠΈΡΠΎΠ²Π°ΡΡ Π΄ΠΎΠ²ΠΎΠ΄ΡΠΈΠΊ Π΄Π²Π΅ΡΠΈ, ΠΎΠ΄Π½Π°ΠΊΠΎ Π² Π½Π΅ΠΊΠΎΡΠΎΡΡΡ ΡΠ»ΡΡΠ°ΡΡ ΠΏΡΠΎΡΠΈΠ»Π°ΠΊΡΠΈΡΠ΅ΡΠΊΠΈΠ΅ ΠΌΠ΅ΡΡ Π½Π΅ ΡΠ΅ΠΊΠΎΠΌΠ΅Π½Π΄ΡΠ΅ΡΡΡ ΠΏΡΠΎΠ²ΠΎΠ΄ΠΈΡΡ ΡΠ°ΠΌΠΎΡΡΠΎΡΡΠ΅Π»ΡΠ½ΠΎ. ΠΡΡΡΠ΅ Π²ΡΠ΅-ΡΠ°ΠΊΠΈ ΠΎΠ±ΡΠ°ΡΠΈΡΡΡΡ Π·Π° ΠΏΠΎΠΌΠΎΡΡΡ ΠΊ ΠΏΡΠΎΡΠ΅ΡΡΠΈΠΎΠ½Π°Π»Π°ΠΌ, ΠΊΠΎΡΠΎΡΡΠ΅ Π·Π½Π°ΡΡ Π²ΡΠ΅ ΡΠΎΠ½ΠΊΠΎΡΡΠΈ ΠΈ ΠΎΡΠΎΠ±Π΅Π½Π½ΠΎΡΡΠΈ ΡΠ°Π±ΠΎΡΡ Π΄ΠΎΠ²ΠΎΠ΄ΡΠΈΠΊΠΎΠ².
ΠΡ ΠΏΡΠΎΡΠΈΠ»Π°ΠΊΡΠΈΠΊΠΈ ΠΊ ΡΠ΅ΠΊΡΡΠ΅ΠΌΡ ΡΠ΅ΠΌΠΎΠ½ΡΡ
ΠΡΡΠ΅ Π±ΡΠ»ΠΈ ΠΏΡΠΈΠ²Π΅Π΄Π΅Π½Ρ ΠΏΡΠΎΡΠΈΠ»Π°ΠΊΡΠΈΡΠ΅ΡΠΊΠΈΠ΅ ΠΌΠ΅ΡΠΎΠΏΡΠΈΡΡΠΈΡ, Π° ΡΠ΅ΠΉΡΠ°Ρ ΠΌΡ Π΄Π΅ΡΠ°Π»ΡΠ½ΠΎ ΡΠ°ΡΡΠΊΠ°ΠΆΠ΅ΠΌ ΠΎ ΡΠΎΠΌ, ΠΊΠ°ΠΊ ΠΎΡΡΠ΅ΠΌΠΎΠ½ΡΠΈΡΠΎΠ²Π°ΡΡ Π΄ΠΎΠ²ΠΎΠ΄ΡΠΈΠΊ Π΄Π²Π΅ΡΠΈ, Π΅ΡΠ»ΠΈ Π½Π΅ΠΎΠ±Ρ ΠΎΠ΄ΠΈΠΌ ΡΠ΅ΠΊΡΡΠΈΠΉ ΡΠ΅ΠΌΠΎΠ½Ρ. Π ΠΏΠ΅ΡΠ²ΡΡ ΠΎΡΠ΅ΡΠ΅Π΄Ρ ΠΏΡΠΈΠ³ΠΎΡΠΎΠ²ΡΡΠ΅ Π½Π΅ΠΎΠ±Ρ ΠΎΠ΄ΠΈΠΌΡΠΉ Π½Π°Π±ΠΎΡ ΠΈΠ½ΡΡΡΡΠΌΠ΅Π½ΡΠΎΠ²:
- ΡΡΡΡΠΏΠΎΠ²Π΅ΡΡ;
- ΠΊΠ»ΡΡΠΈ;
- ΠΏΠ»ΠΎΡΠΊΠΎΠ³ΡΠ±ΡΡ.
Π’Π°ΠΊΠΎΠΉ Π½Π΅Ρ ΠΈΡΡΡΠΉ Π½Π°Π±ΠΎΡ Π΅ΡΡΡ Ρ ΠΊΠ°ΠΆΠ΄ΠΎΠ³ΠΎ ΠΌΡΠΆΡΠΈΠ½Ρ, Π° Π±ΠΎΠ»Π΅Π΅ ΡΠ»ΠΎΠΆΠ½ΡΠ΅ ΠΈΠ½ΡΡΡΡΠΌΠ΅Π½ΡΡ Π΄Π»Ρ ΡΠ΅ΠΊΡΡΠ΅Π³ΠΎ ΡΠ΅ΠΌΠΎΠ½ΡΠ° Π½Π΅ Π½ΡΠΆΠ½Ρ.
ΠΠ΅ΡΠ΅Π΄ ΡΠ΅ΠΌ, ΠΊΠ°ΠΊ ΠΎΡΡΠ΅ΠΌΠΎΠ½ΡΠΈΡΠΎΠ²Π°ΡΡ Π΄ΠΎΠ²ΠΎΠ΄ΡΠΈΠΊ Π΄Π²Π΅ΡΠΈ, Π²Π½ΠΈΠΌΠ°ΡΠ΅Π»ΡΠ½ΠΎ ΠΎΡΠΌΠΎΡΡΠΈΡΠ΅ Π΅Π³ΠΎ ΠΊΠΎΡΠΏΡΡ, ΠΏΡΠΎΠ²Π΅ΡΡΡΠ΅ Π½Π°Π΄Π΅ΠΆΠ½ΠΎΡΡΡ ΠΊΡΠ΅ΠΏΠ΅ΠΆΠ½ΡΡ Π²ΠΈΠ½ΡΠΎΠ². ΠΡΠ»ΠΈ ΠΏΠΎΡΠ»Π΅Π΄Π½ΠΈΠ΅ ΠΎΡΠ»Π°Π±Π»ΠΈ, ΠΏΠΎΠ΄ΡΡΠ½ΠΈΡΠ΅ ΠΈΡ . Π ΠΏΡΠΈΠ½ΡΠΈΠΏΠ΅, ΡΠ°ΠΊΠΎΠ΅ ΡΠ»ΡΡΠ°Π΅ΡΡΡ ΠΎΡΠ½ΠΎΡΠΈΡΠ΅Π»ΡΠ½ΠΎ ΡΠ°ΡΡΠΎ, ΠΎΡΠΎΠ±Π΅Π½Π½ΠΎ, Π΅ΡΠ»ΠΈ Π΄Π²Π΅ΡΡΡ Π΅ΠΆΠ΅Π΄Π½Π΅Π²Π½ΠΎ Π°ΠΊΡΠΈΠ²Π½ΠΎ ΠΏΠΎΠ»ΡΠ·ΡΡΡΡΡ.
ΠΠ°Π»Π΅Π΅ Π²Π½ΠΈΠΌΠ°ΡΠ΅Π»ΡΠ½ΠΎ ΠΈΠ·ΡΡΠΈΡΠ΅ Π΄Π²Π΅ΡΠ½ΠΎΠ΅ ΠΏΠΎΠ»ΠΎΡΠ½ΠΎ, ΠΎΡΠΎΠ±Π΅Π½Π½ΠΎ Π² ΠΌΠ΅ΡΡΠ΅ ΠΊΡΠ΅ΠΏΠ»Π΅Π½ΠΈΡ Π΄ΠΎΠ²ΠΎΠ΄ΡΠΈΠΊΠ° ΠΈ ΡΠΎΠΏΡΠΈΠΊΠΎΡΠ½ΠΎΠ²Π΅Π½ΠΈΡ Ρ ΠΊΠΎΡΠΎΠ±ΠΎΠΌ. ΠΠ° ΡΡΠΈΡ ΡΡΠ°ΡΡΠΊΠ°Ρ ΠΏΠΎΠ»ΠΎΡΠ½Π° Π½Π΅ Π΄ΠΎΠ»ΠΆΠ½ΠΎ Π±ΡΡΡ ΠΊΠ°ΠΊΠΈΡ -Π»ΠΈΠ±ΠΎ Π²ΠΌΡΡΠΈΠ½ ΠΈΠ»ΠΈ ΡΡΠ΅ΡΠΈΠ½, ΠΏΠΎΡΠΊΠΎΠ»ΡΠΊΡ ΠΎΠ½ΠΈ ΠΏΡΠΈΠ²ΠΎΠ΄ΡΡ ΠΊ ΠΏΠ΅ΡΠ΅ΠΊΠΎΡΡ Π΄Π²Π΅ΡΠΈ, ΡΡΠΎ Π½Π΅Π³Π°ΡΠΈΠ²Π½ΠΎ ΡΠΊΠ°Π·ΡΠ²Π°Π΅ΡΡΡ Π½Π° ΡΡΠ½ΠΊΡΠΈΠΎΠ½ΠΈΡΠΎΠ²Π°Π½ΠΈΠΈ Π΄ΠΎΠ²ΠΎΠ΄ΡΠΈΠΊΠ°, ΠΊΠΎΡΠΎΡΡΠΉ Π½Π΅ ΡΠΎΠ»ΡΠΊΠΎ ΠΏΠ΅ΡΠ΅ΡΡΠ°Π΅Ρ ΡΡΡΠ΅ΠΊΡΠΈΠ²Π½ΠΎ Π²ΡΠΏΠΎΠ»Π½ΡΡΡ Π²ΠΎΠ·Π»ΠΎΠΆΠ΅Π½Π½ΡΠ΅ Π½Π° Π½Π΅Π³ΠΎ ΡΡΠ½ΠΊΡΠΈΠΈ, Π½ΠΎ ΠΈ Π΄ΠΎΠ²ΠΎΠ»ΡΠ½ΠΎ Π±ΡΡΡΡΠΎ ΠΌΠΎΠΆΠ΅Ρ Π²ΡΠΉΡΠΈ ΠΈΠ· ΡΡΡΠΎΡ.
Π’Π΅ΠΏΠ΅ΡΡ ΠΏΡΠΈΡΡΡΠΏΠ°ΠΉΡΠ΅ ΠΊ ΠΎΡΠΌΠΎΡΡΡ ΡΠ΅Π³ΡΠ»ΠΈΡΠΎΠ²ΡΠΈΠΊΠ° Π΄ΠΎΠ²ΠΎΠ΄ΡΠΈΠΊΠ°. ΠΡ Π΅Π³ΠΎ ΠΈΡΠΏΡΠ°Π²Π½ΠΎΡΡΠΈ Π½Π°ΠΏΡΡΠΌΡΡ Π·Π°Π²ΠΈΡΠΈΡ ΡΠΎ, Π½Π°ΡΠΊΠΎΠ»ΡΠΊΠΎ ΡΡΡΠ΅ΠΊΡΠΈΠ²Π½ΠΎ ΠΎΠ½ Π±ΡΠ΄Π΅Ρ Π·Π°ΠΊΡΡΠ²Π°ΡΡ Π΄Π²Π΅ΡΡ ΠΈ ΠΏΠΎΠΌΠΎΠ³Π°ΡΡ Π² Π΅Π΅ ΠΎΡΠΊΡΡΠ²Π°Π½ΠΈΠΈ. ΠΡΠΎΠ²Π΅ΡΡΡΠ΅, ΡΡΡΡΠ°ΠΈΠ²Π°Π΅Ρ Π»ΠΈ Π²Π°Ρ ΡΠΊΠΎΡΠΎΡΡΡ Π΄Π²ΠΈΠΆΠ΅Π½ΠΈΡ Π΄Π²Π΅ΡΠ½ΠΎΠ³ΠΎ ΠΏΠΎΠ»ΠΎΡΠ½Π°, ΡΠ±Π΅Π΄ΠΈΡΠ΅ΡΡ, Π²ΡΠ΅ Π»ΠΈ ΡΠ΅Π³ΡΠ»ΠΈΡΠΎΠ²ΠΎΡΠ½ΡΠ΅ Π²ΠΈΠ½ΡΡ Π½Π° ΠΌΠ΅ΡΡΠ΅, Π½Π΅ Π·Π°ΡΡΠ½ΡΡΡ Π»ΠΈ ΠΎΠ½ΠΈ Π΄ΠΎ ΡΠΏΠΎΡΠ°. ΠΡΡΡΡΡΡΠ²ΠΈΠ΅ Π΄Π°ΠΆΠ΅ ΠΎΠ΄Π½ΠΎΠ³ΠΎ Π²ΠΈΠ½ΡΠ° ΡΡΠ°Π½Π΅Ρ ΠΏΡΠΈΡΠΈΠ½ΠΎΠΉ ΡΡΠ΅ΡΠΊΠΈ ΠΌΠ°ΡΠ»Π° ΠΈΠ· ΠΊΠΎΡΠΏΡΡΠ° ΠΈΠ·Π΄Π΅Π»ΠΈΡ, Π° ΡΡΠΎ Π½Π΅Π·Π°ΠΌΠ΅Π΄Π»ΠΈΡΠ΅Π»ΡΠ½ΠΎ ΠΏΡΠΈΠ²Π΅Π΄Π΅Ρ ΠΊ ΠΏΠΎΠ»ΠΎΠΌΠΊΠ΅ ΡΡΡΡΠΎΠΉΡΡΠ²Π°, ΡΠΏΡΠΎΠ²ΠΎΡΠΈΡΡΠ΅Ρ ΠΊΠΎΡΡΠΎΠ·ΠΈΡ. ΠΡΠ»ΠΈ Π·Π°ΠΌΠ΅ΡΠ½Ρ Π»ΠΈΡΡ ΠΌΠ°Π»Π΅ΠΉΡΠΈΠ΅ ΡΠ»Π΅Π΄Ρ ΠΊΠΎΡΡΠΎΠ·ΠΈΠΈ, Π΄ΠΎΠ²ΠΎΠ΄ΡΠΈΠΊ Π΅ΡΠ΅ ΠΌΠΎΠΆΠ½ΠΎ ΡΠΏΠ°ΡΡΠΈ. ΠΠ»Ρ ΡΡΠΎΠ³ΠΎ Π½Π΅ΠΎΠ±Ρ ΠΎΠ΄ΠΈΠΌΠΎ ΡΠ½ΡΡΡ Π΅Π³ΠΎ, ΠΏΠΎΠ»Π½ΠΎΡΡΡΡ ΡΠ°Π·ΠΎΠ±ΡΠ°ΡΡ ΠΈ Π·Π°ΡΠΈΡΡΠΈΡΡ ΠΊΠΎΡΡΠΎΠ·ΠΈΠΉΠ½ΡΠ΅ ΠΌΠ΅ΡΡΠ°, Ρ ΠΎΡΠΎΡΠΎ ΡΠΌΠ°Π·Π°ΡΡ ΠΈΡ ΠΌΠ°ΡΠ»ΠΎΠΌ. ΠΠΎΡΠ»Π΅ ΡΠ°ΠΊΠΎΠΉ ΠΏΡΠΎΡΠΈΠ»Π°ΠΊΡΠΈΠΊΠΈ Π΄ΠΎΠ²ΠΎΠ΄ΡΠΈΠΊ ΠΏΡΠΎΡΠ»ΡΠΆΠΈΡ Π²Π°ΠΌ Π΅ΡΠ΅ Π½Π΅ΡΠΊΠΎΠ»ΡΠΊΠΎ Π»Π΅Ρ. ΠΠΎ Π΅ΡΠ»ΠΈ ΠΊΠΎΡΡΠΎΠ·ΠΈΡ ΡΠ»ΠΈΡΠΊΠΎΠΌ ΡΠΈΠ»ΡΠ½ΠΎ ΡΠ°ΡΠΏΡΠΎΡΡΡΠ°Π½ΠΈΠ»Π°ΡΡ ΠΏΠΎ ΠΌΠ΅Ρ Π°Π½ΠΈΠ·ΠΌΡ, Π»ΡΡΡΠ΅ ΡΡΠ°Π·Ρ ΠΊΡΠΏΠΈΡΡ Π½ΠΎΠ²ΠΎΠ΅ ΡΡΡΡΠΎΠΉΡΡΠ²ΠΎ.
ΠΠ΅ΡΠΊΠΎΠ»ΡΠΊΠΎ ΡΠΎΠ²Π΅ΡΠΎΠ², ΠΊΠ°ΠΊ ΠΏΡΠΎΠ΄Π»ΠΈΡΡ ΠΆΠΈΠ·Π½Ρ Π΄ΠΎΠ²ΠΎΠ΄ΡΠΈΠΊΠ° ΠΈ ΠΈΠ·Π±Π΅ΠΆΠ°ΡΡ Π΅Π³ΠΎ ΡΠ΅ΠΌΠΎΠ½ΡΠ°
Π§ΡΠΎΠ±Ρ Π½Π΅ Π·Π°Π΄Π°Π²Π°ΡΡΡΡ Π²ΠΎΠΏΡΠΎΡΠΎΠΌ, ΠΊΠ°ΠΊ ΠΎΡΡΠ΅ΠΌΠΎΠ½ΡΠΈΡΠΎΠ²Π°ΡΡ Π΄ΠΎΠ²ΠΎΠ΄ΡΠΈΠΊ Π΄Π²Π΅ΡΠΈ, Π½Π΅ΠΎΠ±Ρ ΠΎΠ΄ΠΈΠΌΠΎ ΠΏΡΠΈΠ΄Π΅ΡΠΆΠΈΠ²Π°ΡΡΡΡ ΠΎΠΏΡΠ΅Π΄Π΅Π»Π΅Π½Π½ΡΡ ΠΏΡΠ°Π²ΠΈΠ» Π΅Π³ΠΎ ΡΠΊΡΠΏΠ»ΡΠ°ΡΠ°ΡΠΈΠΈ. ΠΠ°ΠΏΡΠΈΠΌΠ΅Ρ, Π΅ΡΠ»ΠΈ Π²Ρ ΠΏΠ»Π°Π½ΠΈΡΡΠ΅ΡΠ΅ ΠΏΠ΅ΡΠΈΠΎΠ΄ΠΈΡΠ΅ΡΠΊΠΈ ΠΎΡΡΠ°Π²Π»ΡΡΡ Π΄Π²Π΅ΡΡ ΠΎΡΠΊΡΡΡΠΎΠΉ, ΡΡΠΎΠ±Ρ ΠΏΡΠΎΠ²Π΅ΡΡΠΈΠ²Π°ΡΡ ΠΏΠΎΠΌΠ΅ΡΠ΅Π½ΠΈΠ΅, ΡΠ»Π΅Π΄ΡΠ΅Ρ ΠΏΡΠΈΠΎΠ±ΡΠ΅ΡΠ°ΡΡ Π΄ΠΎΠ²ΠΎΠ΄ΡΠΈΠΊ Ρ ΡΡΠ½ΠΊΡΠΈΠ΅ΠΉ hold-open, ΠΏΠΎΠ·Π²ΠΎΠ»ΡΡΡΠ΅ΠΉ ΡΠΈΠΊΡΠΈΡΠΎΠ²Π°ΡΡ ΠΏΠΎΠ»ΠΎΡΠ½ΠΎ Π² ΠΎΡΠΊΡΡΡΠΎΠΌ ΠΏΠΎΠ»ΠΎΠΆΠ΅Π½ΠΈΠΈ. ΠΡΠ»ΠΈ ΠΆΠ΅ ΠΏΠΎΠ΄ΠΊΠ»Π°Π΄ΡΠ²Π°ΡΡ ΠΏΠΎΠ΄ Π΄Π²Π΅ΡΡ ΠΊΠ°ΠΌΠ½ΠΈ, ΡΠ²Π°Π±ΡΡ, ΡΡΠ°Π²ΠΈΡΡ ΡΡΡΠ»ΡΡ ΠΈΠ»ΠΈ Π΄ΡΡΠ³ΠΈΠ΅ ΠΏΡΠ΅Π΄ΠΌΠ΅ΡΡ, ΡΡΠΎ Π±ΡΡΡΡΠΎ ΠΏΡΠΈΠ²Π΅Π΄Π΅Ρ ΠΊ ΠΏΠΎΡΡΠ΅ Π΄ΠΎΠ²ΠΎΠ΄ΡΠΈΠΊΠ°, ΠΏΠΎΡΠΊΠΎΠ»ΡΠΊΡ ΠΌΠ΅Ρ Π°Π½ΠΈΠ·ΠΌ Π²ΡΠ΅ Π²ΡΠ΅ΠΌΡ Π±ΡΠ΄Π΅Ρ Π½Π°Ρ ΠΎΠ΄ΠΈΡΡΡΡ ΠΏΠΎΠ΄ Π½Π°Π³ΡΡΠ·ΠΊΠΎΠΉ, ΠΏΡΡΠ°ΡΡΡ Π²ΡΠΏΠΎΠ»Π½ΠΈΡΡ Π²ΠΎΠ·Π»ΠΎΠΆΠ΅Π½Π½ΡΠ΅ Π½Π° Π½Π΅Π³ΠΎ ΠΎΠ±ΡΠ·Π°Π½Π½ΠΎΡΡΠΈ, ΡΠΎ Π΅ΡΡΡ Π·Π°ΠΊΡΡΡΡ Π΄Π²Π΅ΡΠ½ΠΎΠ΅ ΠΏΠΎΠ»ΠΎΡΠ½ΠΎ.
ΠΠ»Π°Π²Π½ΠΎΠ΅, ΡΡΠΎ ΡΠ»Π΅Π΄ΡΠ΅Ρ Π·Π°ΠΏΠΎΠΌΠ½ΠΈΡΡ, ΠΏΠ΅ΡΠ΅Π΄ ΡΠ΅ΠΌ, ΠΊΠ°ΠΊ ΠΎΡΡΠ΅ΠΌΠΎΠ½ΡΠΈΡΠΎΠ²Π°ΡΡ Π΄ΠΎΠ²ΠΎΠ΄ΡΠΈΠΊ Π΄Π²Π΅ΡΠΈ ΡΠ°ΠΌΠΎΡΡΠΎΡΡΠ΅Π»ΡΠ½ΠΎ β ΠΏΠΎΡΠ»Π΅ ΡΠΎΠ³ΠΎ, ΠΊΠ°ΠΊ ΡΠ΅ΡΠΈΠ»ΠΈ ΡΡΡΡΠ°Π½ΠΈΡΡ Π½Π΅ΠΈΡΠΏΡΠ°Π²Π½ΠΎΡΡΠΈ ΡΠ°ΠΌΠΈ, ΠΊΠΎΠΌΠΏΠ°Π½ΠΈΡ, ΡΡΡΠ°Π½Π°Π²Π»ΠΈΠ²Π°Π²ΡΠ°Ρ ΡΡΡΡΠΎΠΉΡΡΠ²ΠΎ ΠΈ ΠΎΡΡΡΠ΅ΡΡΠ²Π»ΡΡΡΠ°Ρ Π΅Π³ΠΎ Π³Π°ΡΠ°Π½ΡΠΈΠΉΠ½ΠΎΠ΅ ΠΎΠ±ΡΠ»ΡΠΆΠΈΠ²Π°Π½ΠΈΠ΅, ΠΌΠΎΠΆΠ΅Ρ ΠΎΡΠΊΠ°Π·Π°ΡΡ Π² ΠΎΡΡΡΠ΅ΡΡΠ²Π»Π΅Π½ΠΈΠΈ ΠΏΠΎΡΠ»Π΅Π΄ΡΡΡΠ΅Π³ΠΎ ΡΠ΅ΡΠ²ΠΈΡΠ°. ΠΠΎΡΡΠΎΠΌΡ ΠΏΠ΅ΡΠ΅Π΄ Π½Π°ΡΠ°Π»ΠΎΠΌ ΡΠ΅ΠΌΠΎΠ½ΡΠ°, ΡΠ±Π΅Π΄ΠΈΡΠ΅ΡΡ, ΡΡΠΎ Π²Π°ΠΌ ΠΏΠΎ ΡΠΈΠ»Π°ΠΌ Π΅Π³ΠΎ Π²ΡΠΏΠΎΠ»Π½ΠΈΡΡ. ΠΠ½Π°ΡΠ΅ ΠΏΠΎΡΠΎΠΌ Π±ΡΠ΄Π΅Ρ ΠΏΠΎΠ·Π΄Π½ΠΎ ΠΎΠ±ΡΠ°ΡΠ°ΡΡΡΡ Π·Π° ΠΏΠΎΠΌΠΎΡΡΡ ΠΊ ΡΠΏΠ΅ΡΠΈΠ°Π»ΠΈΡΡΠ°ΠΌ.
Π’Π°ΠΊΠΆΠ΅ ΡΠΎΠ±Π»ΡΠ΄Π°ΠΉΡΠ΅ ΠΏΡΠ°Π²ΠΈΠ»Π° ΡΠΊΡΠΏΠ»ΡΠ°ΡΠ°ΡΠΈΠΈ Π΄Π²Π΅ΡΠ½ΠΎΠ³ΠΎ ΠΏΠΎΠ»ΠΎΡΠ½Π° ΠΈ ΡΠ°ΠΌΠΎΠ³ΠΎ ΡΡΡΡΠΎΠΉΡΡΠ²Π°. ΠΡΠΎ ΠΏΠΎΠ·Π²ΠΎΠ»ΠΈΡ Π·Π½Π°ΡΠΈΡΠ΅Π»ΡΠ½ΠΎ ΠΏΡΠΎΠ΄Π»ΠΈΡΡ ΡΡΠΎΠΊ Π΅Π³ΠΎ ΡΠ»ΡΠΆΠ±Ρ ΠΈ ΠΈΠ·Π±Π΅ΠΆΠ°ΡΡ ΡΠ»Π΅Π΄ΡΡΡΠΈΡ ΠΏΡΠΎΠ±Π»Π΅ΠΌ:
- ΠΈΠ·Π½ΠΎΡΡ ΡΠ°Π»ΡΠ½ΠΈΠΊΠΎΠ²;
- ΡΡΠ΅ΡΠΊΠΈ ΠΌΠ°ΡΠ»Π°;
- ΠΈΠ·Π½ΠΎΡΡ ΠΏΠΎΡΡΠ½Ρ ΠΈ ΡΡΡΠ°Π³Π°.
ΠΡΠ΅ Π²ΡΡΠ΅ΠΏΠ΅ΡΠ΅ΡΠΈΡΠ»Π΅Π½Π½ΡΠ΅ ΠΏΡΠΎΠ±Π»Π΅ΠΌΡ ΠΏΡΠΈΠ²ΠΎΠ΄ΡΡ ΠΊ Π½Π°ΡΡΡΠ΅Π½ΠΈΡ Π΄Π²ΠΈΠΆΠ΅Π½ΠΈΡ ΠΌΠ°ΡΠ»Π° Π²Π½ΡΡΡΠΈ ΠΊΠΎΡΠΏΡΡΠ° Π΄ΠΎΠ²ΠΎΠ΄ΡΠΈΠΊΠ°. ΠΠ΅ΡΠ΅Π΄ ΡΠ΅ΠΌ, ΠΊΠ°ΠΊ ΠΎΡΡΠ΅ΠΌΠΎΠ½ΡΠΈΡΠΎΠ²Π°ΡΡ Π΄ΠΎΠ²ΠΎΠ΄ΡΠΈΠΊ Π΄Π²Π΅ΡΠΈ, ΡΠ±Π΅Π΄ΠΈΡΠ΅ΡΡ, ΡΡΠΎ ΡΠΌΠΎΠΆΠ΅ΡΠ΅ Π²Π΅ΡΠ½ΡΡΡ Π΅Π³ΠΎ ΡΡΠ½ΠΊΡΠΈΠΎΠ½Π°Π»ΡΠ½ΠΎΡΡΡ ΠΈ ΡΠΏΠΎΡΠΎΠ±Π½ΠΎΡΡΡ ΡΡΡΠ΅ΠΊΡΠΈΠ²Π½ΠΎ ΡΠ°Π±ΠΎΡΠ°ΡΡ. ΠΠΎΠ·ΠΌΠΎΠΆΠ½ΠΎ, Π³ΠΎΡΠ°Π·Π΄ΠΎ ΠΏΡΠΎΡΠ΅ ΠΏΡΠΈΠΎΠ±ΡΠ΅ΡΡΠΈ Π½ΠΎΠ²ΡΠΉ ΠΌΠ΅Ρ Π°Π½ΠΈΠ·ΠΌ, ΡΠ΅ΠΌ ΠΏΡΡΠ°ΡΡΡΡ ΡΠ΅Π°Π½ΠΈΠΌΠΈΡΠΎΠ²Π°ΡΡ ΠΏΠΎΠ»Π½ΠΎΡΡΡΡ ΠΈΠ·ΠΆΠΈΠ²ΡΠΈΠΉ ΡΠ΅Π±Ρ ΠΊΠ°ΠΊ ΠΌΠΎΡΠ°Π»ΡΠ½ΠΎ, ΡΠ°ΠΊ ΠΈ ΡΠΈΠ·ΠΈΡΠ΅ΡΠΊΠΈ Π΄ΠΎΠ²ΠΎΠ΄ΡΠΈΠΊ.
Π Π΅Π³ΡΠ»ΠΈΡΠΎΠ²ΠΊΠ° Π΄ΠΎΠ²ΠΎΠ΄ΡΠΈΠΊΠ° Π΄Π²Π΅ΡΠΈ ΡΠ²ΠΎΠΈΠΌΠΈ ΡΡΠΊΠ°ΠΌΠΈ: ΠΈΠ½ΡΡΡΡΠΊΡΠΈΡ
Π‘Π΅Π³ΠΎΠ΄Π½Ρ Π²ΠΎ ΠΌΠ½ΠΎΠ³ΠΈΡ Π΄ΠΎΠΌΠ°Ρ Π²Ρ ΠΎΠ΄Π½ΡΠ΅ ΠΈ ΠΌΠ΅ΠΆΠΊΠΎΠΌΠ½Π°ΡΠ½ΡΠ΅ Π΄Π²Π΅ΡΠΈ Π΄Π»Ρ ΡΠ΄ΠΎΠ±ΡΡΠ²Π° ΠΏΠΎΠ»ΡΠ·ΠΎΠ²Π°Π½ΠΈΡ ΠΎΡΠ½Π°ΡΠ΅Π½Ρ Π΄ΠΎΠ²ΠΎΠ΄ΡΠΈΠΊΠΎΠΌ, Π½ΠΎ ΡΡΠΎΠ±Ρ ΡΡΠΎ ΡΡΡΡΠΎΠΉΡΡΠ²ΠΎ ΠΏΡΠΎΡΠ»ΡΠΆΠΈΠ»ΠΎ ΠΈΡΠΏΡΠ°Π²Π½ΠΎ Π½Π΅ ΠΎΠ΄ΠΈΠ½ Π³ΠΎΠ΄, Π΅Π³ΠΎ Π½ΡΠΆΠ½ΠΎ ΠΏΠ΅ΡΠΈΠΎΠ΄ΠΈΡΠ΅ΡΠΊΠΈ ΠΎΡΠΌΠ°ΡΡΠΈΠ²Π°ΡΡ ΠΈ ΡΠ΅ΠΌΠΎΠ½ΡΠΈΡΠΎΠ²Π°ΡΡ. Π ΡΡΠΎΠΉ ΡΡΠ°ΡΡΠ΅ ΠΌΡ ΠΏΠΎΠ΄ΡΠΎΠ±Π½ΠΎ ΡΠ°ΡΡΠΌΠΎΡΡΠΈΠΌ, ΠΊΠ°ΠΊ ΠΎΡΡΠ΅Π³ΡΠ»ΠΈΡΠΎΠ²Π°ΡΡ Π΄ΠΎΠ²ΠΎΠ΄ΡΠΈΠΊ Π΄Π²Π΅ΡΠΈ, ΡΠ°Π½ΠΎ ΠΈΠ»ΠΈ ΠΏΠΎΠ·Π΄Π½ΠΎ ΡΡΠΈ Π·Π½Π°Π½ΠΈΡ ΠΎΠ±ΡΠ·Π°ΡΠ΅Π»ΡΠ½ΠΎ Π²Π°ΠΌ ΠΏΡΠΈΠ³ΠΎΠ΄ΡΡΡΡ.
Π‘Π΅Π³ΠΎΠ΄Π½Ρ Π΄ΠΎΠ²ΠΎΠ΄ΡΠΈΠΊΠΈ Π²Π΅ΡΡΠΌΠ° ΠΏΠΎΠΏΡΠ»ΡΡΠ½Ρ ΠΈ ΠΈΡΠΏΠΎΠ»ΡΠ·ΡΡΡΡΡ ΠΏΡΠ°ΠΊΡΠΈΡΠ΅ΡΠΊΠΈ ΠΏΠΎΠ²ΡΠ΅ΠΌΠ΅ΡΡΠ½ΠΎ
ΠΠΈΠ΄Ρ Π΄ΠΎΠ²ΠΎΠ΄ΡΠΈΠΊΠΎΠ²
ΠΠΎΠ²ΠΎΠ΄ΡΠΈΠΊ ΠΏΡΠ΅Π΄ΡΡΠ°Π²Π»ΡΠ΅Ρ ΡΠΎΠ±ΠΎΠΉ ΡΠΏΠ΅ΡΠΈΠ°Π»ΡΠ½ΠΎΠ΅ ΡΡΡΡΠΎΠΉΡΡΠ²ΠΎ, ΠΊΠΎΡΠΎΡΠΎΠ΅ ΠΏΠΎΠΌΠΎΠ³Π°Π΅Ρ ΠΊΠΎΠ½ΡΡΠΎΠ»ΠΈΡΠΎΠ²Π°ΡΡ ΠΏΡΠΎΡΠ΅ΡΡ Π΄Π²ΠΈΠΆΠ΅Π½ΠΈΡ Π΄Π²Π΅ΡΠ½ΠΎΠ³ΠΎ ΠΏΠΎΠ»ΠΎΡΠ½Π°. Π‘ Π΅Π³ΠΎ ΠΏΠΎΠΌΠΎΡΡΡ ΠΌΠΎΠΆΠ½ΠΎ ΡΠ΄Π΅Π»Π°ΡΡ Π·Π°ΠΊΡΡΠ²Π°Π½ΠΈΠ΅ Π±ΠΎΠ»Π΅Π΅ ΠΏΠ»Π°Π²Π½ΡΠΌ ΠΈ Π±Π΅ΡΡΡΠΌΠ½ΡΠΌ ΠΈΠ»ΠΈ ΠΆΠ΅ ΡΠ΅Π·ΠΊΠΈΠΌ, Ρ ΡΠΈΠ»ΡΠ½ΡΠΌ Π΄ΠΎΡ Π»ΠΎΠΏΠΎΠΌ. Π’Π°ΠΊΠΆΠ΅ ΠΎΠ½ ΡΠΏΠΎΡΠΎΠ±Π΅Π½ ΠΏΡΠΈΠ΄Π΅ΡΠΆΠ°ΡΡ Π΅Ρ Π² ΠΎΡΠΊΡΡΡΠΎΠΌ ΠΏΠΎΠ»ΠΎΠΆΠ΅Π½ΠΈΠΈ ΠΏΡΠΈ Π½Π΅ΠΎΠ±Ρ ΠΎΠ΄ΠΈΠΌΠΎΡΡΠΈ.
Π§ΡΠΎΠ±Ρ Π»ΡΡΡΠ΅ ΡΠ°Π·ΠΎΠ±ΡΠ°ΡΡΡΡ Π² ΠΏΡΠΈΠ½ΡΠΈΠΏΠ΅ Π΄Π΅ΠΉΡΡΠ²ΠΈΡ ΠΌΠ΅Ρ Π°Π½ΠΈΠ·ΠΌΠ°, Π½Π΅ΠΎΠ±Ρ ΠΎΠ΄ΠΈΠΌΠΎ ΡΠ°ΡΡΠΌΠΎΡΡΠ΅ΡΡ ΠΎΡΠ½ΠΎΠ²Π½ΡΠ΅ Π΅Π³ΠΎ Π²ΠΈΠ΄Ρ, ΡΠ°ΠΊ Π±ΡΠ΄Π΅Ρ ΠΏΡΠΎΡΠ΅ ΠΏΠΎΠ½ΡΡΡ, ΠΊΠ°ΠΊ Π½Π°ΡΡΡΠΎΠΈΡΡ Π΄ΠΎΠ²ΠΎΠ΄ΡΠΈΠΊ Π΄Π²Π΅ΡΠΈ.
Π ΠΎΡΠ½ΠΎΠ²Π½ΠΎΠΌ ΠΈΡΠΏΠΎΠ»ΡΠ·ΡΡΡΡΡ Π΄Π²Π° ΡΠΈΠΏΠ° ΠΌΠ΅Ρ Π°Π½ΠΈΠ·ΠΌΠΎΠ²:
- ΠΊΡΠ»Π°ΡΠΊΠΎΠ²ΡΠΉ ΡΠ»Π°ΠΉΠ΄ΠΎΠ²ΡΠΉ β ΠΎΠ±Π΅ΡΠΏΠ΅ΡΠΈΠ²Π°Π΅Ρ ΠΏΠ»Π°Π²Π½ΠΎΠ΅ ΡΠΊΠΎΠ»ΡΠΆΠ΅Π½ΠΈΠ΅, ΠΈΡΠΏΠΎΠ»ΡΠ·ΡΠ΅ΡΡΡ Π΄Π»Ρ Π΄Π²Π΅ΡΠ΅ΠΉ Π½Π΅Π±ΠΎΠ»ΡΡΠΎΠ³ΠΎ Π²Π΅ΡΠ°;
- Π·ΡΠ±ΡΠ°ΡΡΠΉ ΡΡΡΠ°ΠΆΠ½ΡΠΉ β Π½Π°ΠΈΠ±ΠΎΠ»Π΅Π΅ ΡΠ°ΡΡΠΎ ΠΈΡΠΏΠΎΠ»ΡΠ·ΡΠ΅ΠΌΡΠΉ ΡΠΈΠΏ ΠΌΠ΅Ρ Π°Π½ΠΈΠ·ΠΌΠ°, ΠΏΠ΅ΡΠ΅Π΄Π²ΠΈΠΆΠ΅Π½ΠΈΠ΅ ΠΏΡΡΠΆΠΈΠ½Ρ ΠΎΡΡΡΠ΅ΡΡΠ²Π»ΡΠ΅ΡΡΡ Ρ ΠΏΠΎΠΌΠΎΡΡΡ ΡΠ΅ΡΡΠ΅ΡΠ΅Π½ΠΎΠΊ, Π΅Π³ΠΎ ΠΌΠΎΠΆΠ½ΠΎ ΠΈΡΠΏΠΎΠ»ΡΠ·ΠΎΠ²Π°ΡΡ Π΄Π°ΠΆΠ΅ Π΄Π»Ρ ΡΡΠΆΠ΅Π»ΡΡ Π΄Π²Π΅ΡΠ΅ΠΉ Ρ ΠΊΠΎΠ΄ΠΎΠ²ΡΠΌ Π·Π°ΠΌΠΊΠΎΠΌ.
Π‘Ρ Π΅ΠΌΠ° ΠΊΠΎΠ½ΡΡΡΡΠΊΡΠΈΠΈ Π΄ΠΎΠ²ΠΎΠ΄ΡΠΈΠΊΠ° Ρ Π·ΡΠ±ΡΠ°ΡΡΠΌ ΡΡΡΠ°ΠΆΠ½ΡΠΌ ΠΌΠ΅Ρ Π°Π½ΠΈΠ·ΠΌΠΎΠΌ
ΠΠΎ ΡΠΏΠΎΡΠΎΠ±Ρ ΡΡΡΠ°Π½ΠΎΠ²ΠΊΠΈ Π΄ΠΎΠ²ΠΎΠ΄ΡΠΈΠΊΠΈ ΠΌΠΎΠΆΠ½ΠΎ ΡΠ°Π·Π΄Π΅Π»ΠΈΡΡ Π½Π° ΡΠ»Π΅Π΄ΡΡΡΠΈΠ΅ ΡΠΈΠΏΡ:
- Π½Π°ΠΊΠ»Π°Π΄Π½ΡΠ΅,
- Π½Π°ΠΏΠΎΠ»ΡΠ½ΡΠ΅,
- ΡΠΊΡΡΡΡΠ΅.
ΠΠ°ΠΊΠ»Π°Π΄Π½ΡΠ΅
ΠΠ°ΠΊΠ»Π°Π΄Π½ΡΠ΅ ΠΊΠΎΠ½ΡΡΡΡΠΊΡΠΈΠΈ ΡΠ²Π»ΡΡΡΡΡ ΡΠ°ΠΌΡΠΌΠΈ ΠΏΡΠΎΡΡΡΠΌΠΈ Π² ΠΎΠ±ΡΠ°ΡΠ΅Π½ΠΈΠΈ, ΠΈΡ ΡΠ°Π±ΠΎΡΡ ΠΌΠΎΠΆΠ½ΠΎ ΠΎΡΠΊΠΎΡΡΠ΅ΠΊΡΠΈΡΠΎΠ²Π°ΡΡ Ρ ΠΏΠΎΠΌΠΎΡΡΡ Π½Π΅ΡΠΊΠΎΠ»ΡΠΊΠΈΡ ΠΊΠ»Π°ΠΏΠ°Π½ΠΎΠ² ΠΈΠ»ΠΈ Π²ΠΈΠ½ΡΠΎΠ², ΡΠ°ΡΠΏΠΎΠ»ΠΎΠΆΠ΅Π½Π½ΡΡ Π½Π° ΠΏΠ°Π½Π΅Π»ΠΈ ΠΊΠΎΡΠΎΠ±Π°. ΠΠΎΠ»ΠΈΡΠ΅ΡΡΠ²ΠΎ Π΄ΠΎΠΏΡΡΡΠΈΠΌΡΡ ΠΎΠ±ΠΎΡΠΎΡΠΎΠ² ΡΠ΅Π³Π»Π°ΠΌΠ΅Π½ΡΠΈΡΡΠ΅ΡΡΡ ΠΏΡΠΎΠΈΠ·Π²ΠΎΠ΄ΠΈΡΠ΅Π»Π΅ΠΌ.
ΠΠ°ΠΊΠ»Π°Π΄Π½Π°Ρ ΠΌΠΎΠ΄Π΅Π»Ρ ΡΠ°ΡΠ΅ Π²ΡΠ΅Π³ΠΎ ΠΈΡΠΏΠΎΠ»ΡΠ·ΡΠ΅ΡΡΡ Π΄Π»Ρ ΠΆΠΈΠ»ΡΡ ΠΏΠΎΠΌΠ΅ΡΠ΅Π½ΠΈΠΉ
ΠΠ°ΠΏΠΎΠ»ΡΠ½ΡΠ΅
ΠΠ°ΠΏΠΎΠ»ΡΠ½ΡΠ΅ ΡΠΎΠΆΠ΅ ΡΠ΅Π³ΡΠ»ΠΈΡΡΡΡΡΡ Π΄ΠΎΠ²ΠΎΠ»ΡΠ½ΠΎ ΠΏΡΠΎΡΡΠΎ, ΠΈΡ ΠΎΡΠ»ΠΈΡΠΈΠ΅ Π² ΡΠΎΠΌ, ΡΡΠΎ ΠΊΡΠ΅ΠΏΡΡΡΡ ΠΎΠ½ΠΈ Π½Π΅ Π² Π²Π΅ΡΡ Π½Π΅ΠΉ ΡΠ°ΡΡΠΈ, ΠΊΠ°ΠΊ ΠΏΡΠ΅Π΄ΡΠ΄ΡΡΠΈΠΉ ΡΠΈΠΏ, Π° ΡΠ½ΠΈΠ·Ρ. Π ΠΆΠΈΠ»ΡΡ Π΄ΠΎΠΌΠ°Ρ ΠΎΠ½ΠΈ ΠΏΡΠΈΠΌΠ΅Π½ΡΡΡΡΡ Π½Π΅ ΡΠ»ΠΈΡΠΊΠΎΠΌ ΡΠ°ΡΡΠΎ, Π² ΠΎΡΠ½ΠΎΠ²Π½ΠΎΠΌ ΡΠ°ΠΊΠΈΠ΅ ΠΌΠΎΠ΄Π΅Π»ΠΈ ΠΏΡΠ΅Π΄Π½Π°Π·Π½Π°ΡΠ΅Π½Ρ Π΄Π»Ρ ΠΎΠ±ΡΡΡΡΠΎΠΉΡΡΠ²Π° Π²Ρ ΠΎΠ΄Π° Π² ΠΎΠ±ΡΠ΅ΡΡΠ²Π΅Π½Π½ΡΡ Π·Π°Π²Π΅Π΄Π΅Π½ΠΈΡΡ ΠΈ ΠΎΡΠΈΡΠ°Ρ .
ΠΠ°ΠΏΠΎΠ»ΡΠ½ΡΠ΅ ΠΌΠΎΠ΄Π΅Π»ΠΈ ΡΠ°ΡΡΠΎ ΠΈΡΠΏΠΎΠ»ΡΠ·ΡΡΡΡΡ Π΄Π»Ρ ΡΡΠ΅ΠΊΠ»ΡΠ½Π½ΡΡ Π΄Π²Π΅ΡΠ΅ΠΉ
Π‘ΠΊΡΡΡΡΠ΅
Π‘ΠΊΡΡΡΡΠ΅ ΠΊΠΎΠ½ΡΡΡΡΠΊΡΠΈΠΈ ΡΠ°ΠΌΠΎΡΡΠΎΡΡΠ΅Π»ΡΠ½ΠΎ Π΄ΠΎΠ²ΠΎΠ»ΡΠ½ΠΎ ΡΠ»ΠΎΠΆΠ½ΠΎ ΠΎΡΡΠ΅Π³ΡΠ»ΠΈΡΠΎΠ²Π°ΡΡ, ΡΠ°ΠΊ ΠΊΠ°ΠΊ ΠΎΠ½ΠΈ ΡΠΏΡΡΡΠ°Π½Ρ Π²Π½ΡΡΡΠΈ Π΄Π²Π΅ΡΠ½ΠΎΠ³ΠΎ ΠΏΠΎΠ»ΠΎΡΠ½Π° ΠΈΠ»ΠΈ Π² ΠΏΠΎΠ»Ρ, ΡΡΠΎ Π·Π°ΡΡΡΠ΄Π½ΡΠ΅Ρ Π΄ΠΎΡΡΡΠΏ ΠΊ Π½ΠΈΠΌ.
ΠΠΎΠ½ΡΡΡΡΠΊΡΠΈΡ ΡΠΊΡΡΡΡΡ ΠΌΠΎΠ΄Π΅Π»Π΅ΠΉ ΠΏΡΠ΅Π΄ΠΏΠΎΠ»Π°Π³Π°Π΅Ρ Π²ΡΡΡΠ°ΠΈΠ²Π°Π½ΠΈΠ΅ Π΄ΠΎΠ²ΠΎΠ΄ΡΠΈΠΊΠ° Π² Π΄Π²Π΅ΡΠ½ΠΎΠ΅ ΠΏΠΎΠ»ΠΎΡΠ½ΠΎ
ΠΠΎΠ³Π΄Π° ΡΡΠ΅Π±ΡΠ΅ΡΡΡ ΡΠ΅Π³ΡΠ»ΠΈΡΠΎΠ²ΠΊΠ°
Π Π΅Π³ΡΠ»ΠΈΡΠΎΠ²ΠΊΠ° Π΄ΠΎΠ²ΠΎΠ΄ΡΠΈΠΊΠ° Π΄Π²Π΅ΡΠΈ β Π΄Π΅Π»ΠΎ Π΄ΠΎΠ²ΠΎΠ»ΡΠ½ΠΎ ΠΏΡΠΎΡΡΠΎΠ΅, ΡΡΠΎ Π»Π΅Π³ΠΊΠΎ ΠΌΠΎΠΆΠ½ΠΎ ΡΠ΄Π΅Π»Π°ΡΡ ΡΠ²ΠΎΠΈΠΌΠΈ ΡΡΠΊΠ°ΠΌΠΈ. ΠΠ°Π²Π°ΠΉΡΠ΅ ΡΠ°ΡΡΠΌΠΎΡΡΠΈΠΌ, Π² ΠΊΠ°ΠΊΠΈΡ ΡΠ»ΡΡΠ°ΡΡ ΠΌΠΎΠΆΠ΅Ρ ΠΏΠΎΠ½Π°Π΄ΠΎΠ±ΠΈΡΡΡΡ ΠΊΠΎΡΡΠ΅ΠΊΡΠΈΡΠΎΠ²ΠΊΠ° ΠΏΠ°ΡΠ°ΠΌΠ΅ΡΡΠΎΠ² ΡΡΠΎΠ³ΠΎ ΡΡΡΡΠΎΠΉΡΡΠ²Π°.
Π ΠΏΠ΅ΡΠ²ΡΡ ΠΎΡΠ΅ΡΠ΅Π΄Ρ ΡΠ»Π΅Π΄ΡΠ΅Ρ ΠΏΠΎΠΌΠ½ΠΈΡΡ, ΡΡΠΎ ΠΏΡΠΎΠ΄ΠΎΠ»ΠΆΠΈΡΠ΅Π»ΡΠ½ΠΎΡΡΡ ΠΈΡΠΏΡΠ°Π²Π½ΠΎΠΉ ΡΠ°Π±ΠΎΡΡ Π»ΡΠ±ΠΎΠ³ΠΎ ΡΡΡΡΠΎΠΉΡΡΠ²Π° Π·Π°Π²ΠΈΡΠΈΡ ΠΎΡ Π΅Π³ΠΎ ΠΊΠ°ΡΠ΅ΡΡΠ²Π΅Π½Π½ΠΎΠ³ΠΎ ΠΎΠ±ΡΠ»ΡΠΆΠΈΠ²Π°Π½ΠΈΡ Π½Π° ΠΏΡΠΎΡΡΠΆΠ΅Π½ΠΈΠΈ Π²ΡΠ΅Π³ΠΎ ΡΡΠΎΠΊΠ° ΡΠΊΡΠΏΠ»ΡΠ°ΡΠ°ΡΠΈΠΈ. ΠΠΎΡΡΠΎΠΌΡ ΠΎΠ΄ΠΈΠ½-Π΄Π²Π° ΡΠ°Π·Π° Π² Π³ΠΎΠ΄ Π½Π΅ΠΎΠ±Ρ ΠΎΠ΄ΠΈΠΌΠΎ ΠΏΡΠΎΠ²ΠΎΠ΄ΠΈΡΡ ΠΎΡΠΌΠΎΡΡ Π΄ΠΎΠ²ΠΎΠ΄ΡΠΈΠΊΠ° ΠΈ ΠΈΡΠΏΡΠ°Π²Π»ΡΡΡ ΠΌΠ΅Π»ΠΊΠΈΠ΅ Π½Π΅ΠΏΠΎΠ»Π°Π΄ΠΊΠΈ. ΠΡΠΎΠ±Π΅Π½Π½ΠΎ ΡΡΠΎ Π°ΠΊΡΡΠ°Π»ΡΠ½ΠΎ ΠΏΡΠΈ ΡΠΌΠ΅Π½Π΅ ΡΠ΅Π·ΠΎΠ½ΠΎΠ².
ΠΡΠΌΠΎΡΡ Π΄ΠΎΠ²ΠΎΠ΄ΡΠΈΠΊΠ° ΡΠ΅ΠΊΠΎΠΌΠ΅Π½Π΄ΡΠ΅ΡΡΡ ΠΏΡΠΎΠ²ΠΎΠ΄ΠΈΡΡ ΠΊΠ°ΠΊ ΠΌΠΈΠ½ΠΈΠΌΡΠΌ 1-2 ΡΠ°Π·Π° Π² Π³ΠΎΠ΄
ΠΠΈΠΌΠΎΠΉ ΠΈ Π»Π΅ΡΠΎΠΌ ΠΊΠ»ΠΈΠΌΠ°ΡΠΈΡΠ΅ΡΠΊΠΈΠ΅ ΡΡΠ»ΠΎΠ²ΠΈΡ ΡΠ°Π·ΠΈΡΠ΅Π»ΡΠ½ΠΎ ΠΎΡΠ»ΠΈΡΠ°ΡΡΡΡ. ΠΠΎΠ»ΡΡΠΈΠ½ΡΡΠ²ΠΎ Π΄ΠΎΠ²ΠΎΠ΄ΡΠΈΠΊΠΎΠ² ΠΈΠΌΠ΅Π΅Ρ ΠΌΠ°ΡΠ»ΡΠ½ΠΎΠ΅ Π½Π°ΠΏΠΎΠ»Π½Π΅Π½ΠΈΠ΅, Π° ΠΊΠ°ΠΊ ΠΈΠ·Π²Π΅ΡΡΠ½ΠΎ, Π»ΡΠ±Π°Ρ ΠΆΠΈΠ΄ΠΊΠΎΡΡΡ ΠΈΠ·ΠΌΠ΅Π½ΡΠ΅Ρ ΡΠ²ΠΎΠ΅ ΡΠΎΡΡΠΎΡΠ½ΠΈΠ΅ Π² Π·Π°Π²ΠΈΡΠΈΠΌΠΎΡΡΠΈ ΠΎΡ ΡΠ΅ΠΌΠΏΠ΅ΡΠ°ΡΡΡΡ Π²Π½Π΅ΡΠ½Π΅ΠΉ ΡΡΠ΅Π΄Ρ. Π’Π°ΠΊ, Π·ΠΈΠΌΠΎΠΉ ΠΌΠ°ΡΠ»ΠΎ ΡΡΠ°Π½ΠΎΠ²ΠΈΡΡΡ Π±ΠΎΠ»Π΅Π΅ Π²ΡΠ·ΠΊΠΈΠΌ ΠΈ Π΄Π²ΠΈΠΆΠ΅Π½ΠΈΠ΅ Π΄Π²Π΅ΡΠΈ Π·Π°ΠΌΠ΅Π΄Π»ΡΠ΅ΡΡΡ, Π»Π΅ΡΠΎΠΌ Π²ΡΠ΅ ΠΏΡΠΎΠΈΡΡ ΠΎΠ΄ΠΈΡ Ρ ΡΠΎΡΠ½ΠΎΡΡΡΡ Π΄ΠΎ Π½Π°ΠΎΠ±ΠΎΡΠΎΡ, ΠΏΠΎΡΡΠΎΠΌΡ ΠΆΠ΅Π»Π°ΡΠ΅Π»ΡΠ½ΠΎ ΠΏΠΎΠ΄ΡΡΠ½ΡΡΡ Π΄ΠΎΠ²ΠΎΠ΄ΡΠΈΠΊ Π΄ΠΎ Π½Π΅ΠΎΠ±Ρ ΠΎΠ΄ΠΈΠΌΠΎΠ³ΠΎ ΡΡΠΎΠ²Π½Ρ.
ΠΡΠΈ ΡΠΌΠ΅Π½Π΅ ΡΠ΅Π·ΠΎΠ½ΠΎΠ² Π³ΠΎΠ΄Π° Π½Π΅ΠΎΠ±Ρ ΠΎΠ΄ΠΈΠΌΠΎ ΠΎΠ±ΡΠ·Π°ΡΠ΅Π»ΡΠ½ΠΎ ΠΏΡΠΎΠ²ΠΎΠ΄ΠΈΡΡ ΡΠ΅Π³ΡΠ»ΠΈΡΠΎΠ²ΠΊΡ Π΄ΠΎΠ²ΠΎΠ΄ΡΠΈΠΊΠ°
ΠΠΎΡΡΠ΅ΠΊΡΠΈΡΠΎΠ²ΠΊΠ° ΡΡΡΡΠΎΠΉΡΡΠ² ΡΠ°ΠΊΠΆΠ΅ Π½Π΅ΠΎΠ±Ρ ΠΎΠ΄ΠΈΠΌΠ°, Π΅ΡΠ»ΠΈ Π²Ρ Π·Π°ΠΌΠ΅ΡΠΈΠ»ΠΈ ΠΊΠ°ΠΊΠΈΠ΅-Π»ΠΈΠ±ΠΎ Π½Π΅ΠΏΠΎΠ»Π°Π΄ΠΊΠΈ ΠΈΠ»ΠΈ Π²Π°Ρ ΠΏΡΠΎΡΡΠΎ Π½Π΅ ΡΡΡΡΠ°ΠΈΠ²Π°ΡΡ Π²ΡΡΡΠ°Π²Π»Π΅Π½Π½ΡΠ΅ Π½Π°ΡΡΡΠΎΠΉΠΊΠΈ Π΅Π³ΠΎ ΡΠ°Π±ΠΎΡΡ. ΠΡΠ»ΠΈ Π΄ΠΎΠ²ΠΎΠ΄ΡΠΈΠΊ Π½Π°ΡΠ°Π» ΡΠΎΡΠΌΠΎΠ·ΠΈΡΡ ΠΈΠ»ΠΈ Π΄Π²Π΅ΡΡ Π·Π°ΠΊΡΡΠ²Π°Π΅ΡΡΡ ΡΠ»ΠΈΡΠΊΠΎΠΌ Π±ΡΡΡΡΠΎ ΠΈ ΡΠ΅Π·ΠΊΠΎ, ΡΡΠ²ΠΊΠ°ΠΌΠΈ, Π΄ΠΎΠ»Π³ΠΎ Π½Π΅ ΠΏΡΠΈΡΡΠ³ΠΈΠ²Π°Π΅ΡΡΡ, Π²ΡΠ΅ ΡΡΠΎ ΠΌΠΎΠΆΠ½ΠΎ ΠΏΠΎΠΏΡΡΠ°ΡΡΡΡ ΠΈΡΠΏΡΠ°Π²ΠΈΡΡ.
ΠΠΎΠ²ΠΎΠ΄ΡΠΈΠΊ ΠΏΠΎΠ΄Π»Π΅ΠΆΠΈΡ ΠΎΠ±ΡΠ·Π°ΡΠ΅Π»ΡΠ½ΠΎΠΉ ΠΊΠΎΡΡΠ΅ΠΊΡΠΈΡΠΎΠ²ΠΊΠ΅ Π² ΡΠ»ΡΡΠ°Π΅ Π²ΠΎΠ·Π½ΠΈΠΊΠ½ΠΎΠ²Π΅Π½ΠΈΡ Π½Π΅ΠΈΡΠΏΡΠ°Π²Π½ΠΎΡΡΠ΅ΠΉ
ΠΠ΅ΠΌΠ½ΠΎΠ³ΠΎ ΡΠ»ΠΎΠΆΠ½Π΅Π΅ ΠΎΠ±ΡΡΠΎΡΡ Π΄Π΅Π»Π° Π² ΡΠ»ΡΡΠ°Π΅, Π΅ΡΠ»ΠΈ Π΄Π²Π΅ΡΠ½ΠΎΠΉ Π΄ΠΎΠ²ΠΎΠ΄ΡΠΈΠΊ Π²ΡΡΠ΅Π» ΠΈΠ· ΡΡΡΠΎΡ. Π’ΠΎΠ³Π΄Π° ΠΏΡΠΎΡΡΠ°Ρ ΡΠ΅Π³ΡΠ»ΠΈΡΠΎΠ²ΠΊΠ° ΠΌΠΎΠΆΠ΅Ρ ΠΎΠΊΠ°Π·Π°ΡΡΡΡ ΠΌΠ°Π»ΠΎΡΡΡΠ΅ΠΊΡΠΈΠ²Π½ΠΎΠΉ ΠΈ ΠΏΠΎΡΡΠ΅Π±ΡΠ΅ΡΡΡ ΠΏΡΠΎΠ²Π΅Π΄Π΅Π½ΠΈΠ΅ Π΄ΠΎΠΏΠΎΠ»Π½ΠΈΡΠ΅Π»ΡΠ½ΡΡ ΡΠ΅ΠΌΠΎΠ½ΡΠ½ΡΡ ΠΌΠ΅ΡΠΎΠΏΡΠΈΡΡΠΈΠΉ.
ΠΡΠΎΠΌΠ΅ ΡΡΠΎΠ³ΠΎ, Π·Π½Π°Π½ΠΈΡ ΠΎ Π²ΠΎΠ·ΠΌΠΎΠΆΠ½ΠΎΡΡΠΈ Π²ΡΡΡΠ°Π²Π»Π΅Π½ΠΈΡ ΡΡΠ½ΠΊΡΠΈΠΉ Π΄ΠΎΠ²ΠΎΠ΄ΡΠΈΠΊΠ° ΠΏΡΠΈΠ³ΠΎΠ΄ΡΡΡΡ ΠΏΡΠΈ ΠΏΠ΅ΡΠ²ΠΈΡΠ½ΠΎΠΉ ΡΡΡΠ°Π½ΠΎΠ²ΠΊΠ΅, ΠΊΠΎΠ³Π΄Π°Β Π΅Π³ΠΎΒ ΡΡΠ΅Π±ΡΠ΅ΡΡΡ ΠΎΡΡΠ΅Π³ΡΠ»ΠΈΡΠΎΠ²Π°ΡΡ Π² ΡΠΎΠΎΡΠ²Π΅ΡΡΡΠ²ΠΈΠΈ Ρ ΡΡΠ»ΠΎΠ²ΠΈΡΠΌΠΈ ΠΈΡΠΏΠΎΠ»ΡΠ·ΠΎΠ²Π°Π½ΠΈΡ. Π Π΅ΠΆΠ΅ ΠΌΠΎΠΆΠ΅Ρ ΠΏΠΎΠ½Π°Π΄ΠΎΠ±ΠΈΡΡΡΡ Π²ΡΠ΅ΠΌΠ΅Π½Π½Π°Ρ ΠΊΠΎΡΡΠ΅ΠΊΡΠΈΡΠΎΠ²ΠΊΠ° ΡΡΠΈΠ»ΠΈΠΉ ΠΈ ΡΡΠ½ΠΊΡΠΈΠΉ ΠΈΠ·Π΄Π΅Π»ΠΈΡ ΡΠΆΠ΅ Π² ΠΏΡΠΎΡΠ΅ΡΡΠ΅ Π΅Π³ΠΎ ΠΈΡΠΏΠΎΠ»ΡΠ·ΠΎΠ²Π°Π½ΠΈΡ.
ΠΡΠ±ΠΎΡ ΡΠΊΠΎΡΠΎΡΡΠΈ Π΄Π²ΠΈΠΆΠ΅Π½ΠΈΡ Π΄Π²Π΅ΡΠΈ
Π€ΡΠ½ΠΊΡΠΈΠΉ Ρ Π΄ΠΎΠ²ΠΎΠ΄ΡΠΈΠΊΠ° ΠΌΠΎΠΆΠ΅Ρ Π±ΡΡΡ Π½Π΅ΡΠΊΠΎΠ»ΡΠΊΠΎ. ΠΡΠ°ΠΊΡΠΈΡΠ΅ΡΠΊΠΈ ΠΊΠ°ΠΆΠ΄ΠΎΠ΅ Π΄Π΅ΠΉΡΡΠ²ΠΈΠ΅ ΠΌΠΎΠΆΠ½ΠΎ ΠΊΠΎΡΡΠ΅ΠΊΡΠΈΡΠΎΠ²Π°ΡΡ ΠΏΡΠΎΡΡΡΠΌ ΡΠΏΠΎΡΠΎΠ±ΠΎΠΌ. ΠΠ΅ΡΠ²ΡΠΉ Π²Π°ΠΆΠ½ΡΠΉ ΠΌΠΎΠΌΠ΅Π½Ρ β ΡΠ΅Π³ΡΠ»ΠΈΡΠΎΠ²ΠΊΠ° ΡΠΊΠΎΡΠΎΡΡΠΈ Π΄ΠΎΠ²ΠΎΠ΄ΡΠΈΠΊΠ° Π²Ρ ΠΎΠ΄Π½ΠΎΠΉ Π΄Π²Π΅ΡΠΈ. ΠΠ½Π°ΡΠ΅ Π³ΠΎΠ²ΠΎΡΡ, ΠΎΡ ΡΡΠΎΠ³ΠΎ Π·Π°Π²ΠΈΡΠΈΡ ΠΊΠ°ΠΊ Π±ΡΡΡΡΠΎ Π±ΡΠ΄Π΅Ρ ΠΎΡΠΊΡΡΠ²Π°ΡΡΡΡ ΠΈ Π·Π°ΠΊΡΡΠ²Π°ΡΡΡΡ Π΄Π²Π΅ΡΡ. Π‘ΡΠ°Π½Π΄Π°ΡΡΠ½ΡΠ΅ Π½Π°ΠΊΠ»Π°Π΄Π½ΡΠ΅ ΠΌΠΎΠ΄Π΅Π»ΠΈ ΠΈΠΌΠ΅ΡΡ Π½Π° ΡΠ²ΠΎΠ΅ΠΌ ΠΊΠΎΡΠΏΡΡΠ΅ Π΄Π²Π° Π²ΠΈΠ½ΡΠ°, ΠΏΠ΅ΡΠ²ΡΠΉ Π²ΠΈΠ½Ρ ΠΊΠ°ΠΊ ΡΠ°Π· ΠΈ ΠΎΡΠ²Π΅ΡΠ°Π΅Ρ Π·Π° ΡΠ΅Π³ΡΠ»ΠΈΡΠΎΠ²ΠΊΡ ΡΠΊΠΎΡΠΎΡΡΠΈ, Π½ΠΎ ΠΏΡΠΎΠ²ΠΎΡΠ°ΡΠΈΠ²Π°ΡΡ Π΅Π³ΠΎ ΠΌΠΎΠΆΠ½ΠΎ ΠΎΠ³ΡΠ°Π½ΠΈΡΠ΅Π½Π½ΠΎΠ΅ ΠΊΠΎΠ»ΠΈΡΠ΅ΡΡΠ²ΠΎ ΡΠ°Π·.
Π‘ΠΊΠΎΡΠΎΡΡΡ Π΄ΠΎΠ²ΠΎΠ΄ΡΠΈΠΊΠ° Π½Π°ΡΡΡΠ°ΠΈΠ²Π°Π΅ΡΡΡ Ρ ΠΏΠΎΠΌΠΎΡΡΡ Π΄Π²ΡΡ ΡΠ΅Π³ΡΠ»ΠΈΡΠΎΠ²ΠΎΡΠ½ΡΡ Π²ΠΈΠ½ΡΠΎΠ²: 1 β ΡΠΊΠΎΡΠΎΡΡΡ Π΄Π²ΠΈΠΆΠ΅Π½ΠΈΡ ΠΏΠΎΠ»ΠΎΡΠ½Π°, 2 β ΡΠΊΠΎΡΠΎΡΡΡ Π΄ΠΎΡ Π»ΠΎΠΏΠ°
ΠΠΎΡΡΠ΅Π΄ΡΡΠ²ΠΎΠΌ ΠΊΠΎΡΡΠ΅ΠΊΡΠΈΡΠΎΠ²ΠΊΠΈ ΡΡΠΎΠ²Π½Ρ Π½Π°ΡΡΠΆΠ΅Π½ΠΈΡ ΠΏΡΡΠΆΠΈΠ½Ρ Π²Ρ ΠΌΠΎΠΆΠ΅ΡΠ΅ ΠΊΠ°ΠΊ ΠΎΡΠ»Π°Π±ΠΈΡΡ, ΡΠ°ΠΊ ΠΈ ΡΠ΄Π΅Π»Π°ΡΡ Π΄ΠΎΠ²ΠΎΠ΄ΡΠΈΠΊ Π΄Π²Π΅ΡΠΈ Π±ΠΎΠ»Π΅Π΅ ΠΆΠ΅ΡΡΠΊΠΈΠΌ. Π Π·Π°Π²ΠΈΡΠΈΠΌΠΎΡΡΠΈ ΠΎΡ Π½Π°ΠΏΡΠ°Π²Π»Π΅Π½ΠΈΡ ΠΏΡΠΎΠΊΡΡΡΠΊΠΈ Π²Ρ ΠΌΠΎΠΆΠ΅ΡΠ΅ Π·Π°ΡΡΠ½ΡΡΡ Π΅Ρ ΠΈΠ»ΠΈ ΠΎΡΠΏΡΡΡΠΈΡΡ, ΡΡΠΎ ΠΎΠ±Π΅ΡΠΏΠ΅ΡΠΈΡ Π±ΠΎΠ»Π΅Π΅ ΡΠ²ΠΎΠ±ΠΎΠ΄Π½ΡΠΉ Ρ ΠΎΠ΄ ΠΏΠΎΠ»ΠΎΡΠ½Π°.
ΠΠ±ΡΠ°ΡΠΈΡΠ΅ Π²Π½ΠΈΠΌΠ°Π½ΠΈΠ΅, ΡΡΠΎ Π΄Π»Ρ ΡΠ΅Π³ΡΠ»ΠΈΡΠΎΠ²ΠΊΠΈ Π΄ΠΎΡΡΠ°ΡΠΎΡΠ½ΠΎ ΠΎΠ΄Π½ΠΎΠ³ΠΎ ΠΏΠΎΠ²ΠΎΡΠΎΡΠ° Π²ΠΈΠ½ΡΠ°, ΠΏΠΎΠ²ΠΎΡΠ°ΡΠΈΠ²Π°ΡΡ Π²ΠΈΠ½Ρ Π΄Π²Π° ΡΠ°Π·Π° Π½Π΅Π»ΡΠ·Ρ, ΠΈΠ½Π°ΡΠ΅ ΡΡΡΡΠΎΠΉΡΡΠ²ΠΎ ΠΌΠΎΠΆΠ΅Ρ ΡΠ°Π·Π³Π΅ΡΠΌΠ΅ΡΠΈΠ·ΠΈΡΠΎΠ²Π°ΡΡΡΡ ΠΈ Π²ΡΡΠ΅ΡΠ΅Ρ ΠΌΠ°ΡΠ»ΠΎ.
Π£ΡΡΠ°Π½ΠΎΠ²ΠΊΠ° Π΄ΠΎΡ Π»ΠΎΠΏΠ°
Π’Π΅ΠΏΠ΅ΡΡ Π΄Π°Π²Π°ΠΉΡΠ΅ ΡΠ°Π·Π±Π΅ΡΠ΅ΠΌ, ΠΊΠ°ΠΊ ΠΎΡΡΠ΅Π³ΡΠ»ΠΈΡΠΎΠ²Π°ΡΡ Π΄ΠΎΠ²ΠΎΠ΄ΡΠΈΠΊ Π΄Π²Π΅ΡΠΈ Π΄Π»Ρ ΡΡΡΠ°Π½ΠΎΠ²ΠΊΠΈ Π΄ΠΎΡ Π»ΠΎΠΏΠ°. ΠΡΠΎΡ ΡΠ΅ΠΆΠΈΠΌ ΠΏΠΎΠ·Π²ΠΎΠ»ΡΠ΅Ρ ΠΏΠ»Π°Π²Π½ΠΎ Π·Π°ΠΊΡΡΠ²Π°ΡΡ Π΄Π²Π΅ΡΠΈ, ΠΎΡΡΠ°Π²Π»ΡΡ Π½Π΅Π±ΠΎΠ»ΡΡΠΎΠΉ Π·Π°Π·ΠΎΡ ΠΏΠ΅ΡΠ΅Π΄ ΠΏΠΎΠ»Π½ΡΠΌ Π·Π°Ρ Π»ΠΎΠΏΡΠ²Π°Π½ΠΈΠ΅ΠΌ. Π’Π°ΠΊΠΆΠ΅ ΠΎΠ½ Π²ΡΠΏΠΎΠ»Π½ΡΠ΅Ρ ΡΡΠ½ΠΊΡΠΈΡ, ΠΎΠ±Π΅ΡΠΏΠ΅ΡΠΈΠ²Π°ΡΡΡΡ Π±ΠΎΠ»Π΅Π΅ ΠΏΠ»ΠΎΡΠ½ΠΎΠ΅ ΠΏΡΠΈΠ»Π΅Π³Π°Π½ΠΈΠ΅ ΠΏΠΎΠ»ΠΎΡΠ½Π° ΠΊ ΡΠ°ΠΌΠ΅.
ΠΠ»Ρ ΡΠΎΠ³ΠΎ ΡΡΠΎΠ±Ρ Π²ΡΡΡΠ°Π²ΠΈΡΡ Π΄ΠΎΡ Π»ΠΎΠΏ, Π½Π΅ΠΎΠ±Ρ ΠΎΠ΄ΠΈΠΌΠΎ ΠΈΠ·ΠΌΠ΅Π½ΠΈΡΡ ΠΏΠΎΠ»ΠΎΠΆΠ΅Π½ΠΈΠ΅ Π²ΡΠΎΡΠΎΠ³ΠΎ Π²ΠΈΠ½ΡΠ°, ΡΠ°ΡΠΏΠΎΠ»ΠΎΠΆΠ΅Π½Π½ΠΎΠ³ΠΎ Π½Π° ΠΊΠΎΡΠΏΡΡΠ΅ Π΄ΠΎΠ²ΠΎΠ΄ΡΠΈΠΊΠ°. ΠΠΎΠ³Π΄Π° Π΄ΠΎ ΠΏΠΎΠ»Π½ΠΎΠ³ΠΎ Π·Π°ΠΊΡΡΠ²Π°Π½ΠΈΡ Π±ΡΠ΄Π΅Ρ ΠΎΡΡΠ°Π²Π°ΡΡΡΡ ΠΏΡΠΈΠΌΠ΅ΡΠ½ΠΎ 10-15 Π³ΡΠ°Π΄ΡΡΠΎΠ², ΡΡΠ°Π±ΠΎΡΠ°Π΅Ρ Π·Π°ΠΌΠ΅Π΄Π»Π΅Π½ΠΈΠ΅, Π° Π·Π°ΡΠ΅ΠΌ ΠΏΠΎΠ»ΠΎΡΠ½ΠΎ ΠΏΡΠΈΡΡΠ½Π΅ΡΡΡ Π΄ΠΎ ΠΊΠΎΠ½ΡΠ°. ΠΠΈΠ½Ρ ΡΠ΅Π³ΡΠ»ΠΈΡΡΠ΅Ρ ΡΠΊΠΎΡΠΎΡΡΡ ΡΡΠΎΠ³ΠΎ Π΄Π²ΠΈΠΆΠ΅Π½ΠΈΡ.
Π‘ΠΊΠΎΡΠΎΡΡΡ Π΄ΠΎΡ Π»ΠΎΠΏΠ° Π½Π°ΡΡΡΠ°ΠΈΠ²Π°Π΅ΡΡΡ Ρ ΠΏΠΎΠΌΠΎΡΡΡ ΡΠ΅Π³ΡΠ»ΠΈΡΠΎΠ²ΠΎΡΠ½ΠΎΠ³ΠΎ Π²ΠΈΠ½ΡΠ° ΠΏΠΎΠ΄ Π½ΠΎΠΌΠ΅ΡΠΎΠΌ 2
ΠΡΠΊΡΡΡΠΎΠ΅ ΠΏΠΎΠ»ΠΎΠΆΠ΅Π½ΠΈΠ΅
Π Π½Π΅ΠΊΠΎΡΠΎΡΡΡ ΡΠ»ΡΡΠ°ΡΡ ΠΌΠΎΠΆΠ΅Ρ Π²ΠΎΠ·Π½ΠΈΠΊΠ½ΡΡΡ Π½Π΅ΠΎΠ±Ρ ΠΎΠ΄ΠΈΠΌΠΎΡΡΡ ΡΠ΄Π΅ΡΠΆΠΈΠ²Π°Π½ΠΈΡ Π΄Π²Π΅ΡΠΈ Π² ΠΎΡΠΊΡΡΡΠΎΠΌ ΠΏΠΎΠ»ΠΎΠΆΠ΅Π½ΠΈΠΈ Π½Π° ΠΏΡΠΎΡΡΠΆΠ΅Π½ΠΈΠΈ Π΄ΠΎΠ²ΠΎΠ»ΡΠ½ΠΎ Π΄Π»ΠΈΡΠ΅Π»ΡΠ½ΠΎΠ³ΠΎ Π²ΡΠ΅ΠΌΠ΅Π½ΠΈ. ΠΠ°Π²Π°ΠΉΡΠ΅ ΡΠ°ΡΡΠΌΠΎΡΡΠΈΠΌ, ΠΊΠ°ΠΊ ΠΎΡΡΠ΅Π³ΡΠ»ΠΈΡΠΎΠ²Π°ΡΡ Π΄ΠΎΠ²ΠΎΠ΄ΡΠΈΠΊ, ΡΡΠΎΠ±Ρ Π΄Π²Π΅ΡΠΈ Π½Π΅ Π·Π°Ρ Π»ΠΎΠΏΡΠ²Π°Π»ΠΈΡΡ, Π° ΠΎΡΡΠ°Π²Π°Π»ΠΈΡΡ ΠΎΡΠΊΡΡΡΡΠΌΠΈ.
ΠΠΎ ΠΌΠ½ΠΎΠ³ΠΈΡ ΠΌΠΎΠ΄Π΅Π»ΡΡ Π΄ΠΎΠ²ΠΎΠ΄ΡΠΈΠΊΠΎΠ² Π΄Π»Ρ ΡΡΠΎΠΉ ΡΠ΅Π»ΠΈ ΠΏΡΠ΅Π΄ΡΡΠΌΠΎΡΡΠ΅Π½Π° ΡΠΏΠ΅ΡΠΈΠ°Π»ΡΠ½Π°Ρ ΡΡΠ½ΠΊΡΠΈΡ Β«hold openΒ». Π§ΡΠΎΠ±Ρ Π½Π°ΡΡΡΠΎΠΈΡΡ Π΅Π³ΠΎ Π½Π° ΡΡΠΎΡ ΡΠ΅ΠΆΠΈΠΌ Π½Π΅ΠΎΠ±Ρ ΠΎΠ΄ΠΈΠΌΠΎ ΠΎΡΠΊΡΡΡΡ Π΄Π²Π΅ΡΡ ΠΏΡΠΈΠΌΠ΅ΡΠ½ΠΎ Π½Π° 90 Π³ΡΠ°Π΄ΡΡΠΎΠ², Π° Π·Π°ΡΠ΅ΠΌ Π·Π°ΡΡΠ½ΡΡΡ ΡΠΏΠ΅ΡΠΈΠ°Π»ΡΠ½ΡΠΉ ΡΠΈΠΊΡΠ°ΡΠΎΡ. ΠΠΎΡΠ»Π΅ ΡΠ°ΠΊΠΈΡ Π½Π΅Ρ ΠΈΡΡΡΡ ΠΌΠ°Π½ΠΈΠΏΡΠ»ΡΡΠΈΠΉ Π²Ρ ΡΠΌΠΎΠΆΠ΅ΡΠ΅ ΠΎΡΡΠ°Π²Π»ΡΡΡ Π΄Π²Π΅ΡΡ ΠΎΡΠΊΡΡΡΠΎΠΉ ΠΏΡΠΈ ΡΠ°ΡΠΏΠ°Ρ ΠΈΠ²Π°Π½ΠΈΠΈ Π΅Ρ Π½Π° Π²ΡΡΡΠ°Π²Π»Π΅Π½Π½ΡΠΉ Π³ΡΠ°Π΄ΡΡ. Π Π΄ΠΎΠ²ΠΎΠ΄ΡΠΈΠΊΠ΅ ΡΡΠ°Π±ΠΎΡΠ°Π΅Ρ ΠΎΡΠΎΠ±ΡΠΉ ΡΠΈΠΊΡΠ°ΡΠΎΡ, ΠΊΠΎΡΠΎΡΡΠΉ ΠΈ Π±ΡΠ΄Π΅Ρ ΡΠ΄Π΅ΡΠΆΠΈΠ²Π°ΡΡ Π΅Ρ Π² ΡΠ°ΠΊΠΎΠΌ ΠΏΠΎΠ»ΠΎΠΆΠ΅Π½ΠΈΠΈ ΡΡΠΎΠ»ΡΠΊΠΎ Π²ΡΠ΅ΠΌΠ΅Π½ΠΈ, ΡΠΊΠΎΠ»ΡΠΊΠΎ ΠΏΠΎΡΡΠ΅Π±ΡΠ΅ΡΡΡ. ΠΠΎΠ³Π΄Π° Π±ΡΠ΄Π΅Ρ Π½Π΅ΠΎΠ±Ρ ΠΎΠ΄ΠΈΠΌΠΎ Π·Π°ΠΊΡΡΡΡ Π΄Π²Π΅ΡΡ, ΠΏΡΠΎΡΡΠΎ ΠΏΠΎΡΡΠ½ΠΈΡΠ΅ Π΅Ρ Π½Π° ΡΠ΅Π±Ρ, ΠΈ ΡΠΈΠΊΡΠ°ΡΠΈΡ ΡΠ½ΠΈΠΌΠ΅ΡΡΡ. ΠΡΠ»ΠΈ ΠΆΠ΅ ΡΠ°ΡΠΏΠ°Ρ Π½ΡΡΡ Π΄Π²Π΅ΡΡ Π½Π΅ ΠΏΠΎΠ»Π½ΠΎΡΡΡΡ, ΠΎΠ½Π° Π±ΡΠ΄Π΅Ρ Π΄Π²ΠΈΠ³Π°ΡΡΡΡ ΡΠ°ΠΊ ΠΆΠ΅, ΠΊΠ°ΠΊ ΠΈ ΠΎΠ±ΡΡΠ½ΠΎ, Π±Π΅Π· Π·Π°Π΄Π΅ΡΠΆΠΊΠΈ.
ΠΠΎΠΏΠΎΠ»Π½ΠΈΡΠ΅Π»ΡΠ½ΡΠ΅ ΡΡΠ½ΠΊΡΠΈΠΈ Π΄ΠΎΠ²ΠΎΠ΄ΡΠΈΠΊΠ° ΡΠ΅Π³ΡΠ»ΠΈΡΡΡΡΡΡ ΡΠΏΠ΅ΡΠΈΠ°Π»ΡΠ½ΠΎ ΠΏΡΠ΅Π΄Π½Π°Π·Π½Π°ΡΠ΅Π½Π½ΡΠΌΠΈ Π΄Π»Ρ Π½ΠΈΡ Π²ΠΈΠ½ΡΠ°ΠΌΠΈ
Π§Π΅Π³ΠΎ Π΄Π΅Π»Π°ΡΡ Π½Π΅Π»ΡΠ·Ρ
ΠΠ»Ρ ΡΠΎΠ³ΠΎ ΡΡΠΎΠ±Ρ ΠΏΡΠ°Π²ΠΈΠ»ΡΠ½ΠΎ ΠΎΡΡΠ΅Π³ΡΠ»ΠΈΡΠΎΠ²Π°ΡΡ Π΄ΠΎΠ²ΠΎΠ΄ΡΠΈΠΊ Π΄Π²Π΅ΡΠΈ Π½Π΅ΠΎΠ±Ρ ΠΎΠ΄ΠΈΠΌΠΎ ΡΠ°ΠΊΠΆΠ΅ Π·Π½Π°ΡΡ ΠΎ Π²ΠΎΠ·ΠΌΠΎΠΆΠ½ΡΡ ΠΎΠ³ΡΠ°Π½ΠΈΡΠ΅Π½ΠΈΡΡ , ΡΡΠΎΠ±Ρ ΠΏΡΠΎΡΡΠ°Ρ ΠΊΠΎΡΡΠ΅ΠΊΡΠΈΡΠΎΠ²ΠΊΠ° ΡΡΠ½ΠΊΡΠΈΠΉ Π½Π΅ ΡΡΠ°Π»Π° Π΄Π»Ρ ΡΡΡΡΠΎΠΉΡΡΠ²Π° ΡΠ°ΡΠ°Π»ΡΠ½ΠΎΠΉ.
- ΠΠΎΠ²ΠΎΡΠΎΡ Π²ΠΈΠ½ΡΠ° ΠΎΡ Π½ΡΠ»Π΅Π²ΠΎΠΉ ΡΠΎΡΠΊΠΈ Π½Π΅ Π΄ΠΎΠ»ΠΆΠ΅Π½ Π±ΡΡΡ Π±ΠΎΠ»ΡΡΠ΅ Π΄Π²ΡΡ ΠΏΠΎΠ²ΠΎΡΠΎΡΠΎΠ², Π² ΠΏΡΠΎΡΠΈΠ²Π½ΠΎΠΌ ΡΠ»ΡΡΠ°Π΅ ΠΌΠΎΠΆΠ΅Ρ ΠΏΡΠΎΠΈΠ·ΠΎΠΉΡΠΈ ΡΡΠ΅ΡΠΊΠ° ΠΌΠ°ΡΠ»Π°, ΡΡΠΎ Π½Π΅Π³Π°ΡΠΈΠ²Π½ΠΎ ΠΎΡΡΠ°Π·ΠΈΡΡΡΡ Π½Π° ΡΠ°Π±ΠΎΡΠ΅ ΡΡΡΡΠΎΠΉΡΡΠ²Π°;
- ΠΠ΅ Π΄ΠΎΠΏΡΡΠΊΠ°ΡΡΡΡ ΠΏΠ΅ΡΠ΅ΠΊΠΎΡΡ Π² ΠΊΠΎΠ½ΡΡΡΡΠΊΡΠΈΠΈ Π΄ΠΎΠ²ΠΎΠ΄ΡΠΈΠΊΠ°, ΠΈΠ½Π°ΡΠ΅ ΠΎΠ½ ΠΌΠΎΠΆΠ΅Ρ Π±ΡΡΡΡΠΎ Π²ΡΠΉΡΠΈ ΠΈΠ· ΡΡΡΠΎΡ;
- ΠΡΠΈ Π·Π°ΠΊΡΡΠ²Π°Π½ΠΈΠΈ Π΄Π²Π΅ΡΠΈ Π½Π΅Π»ΡΠ·Ρ ΠΎΠΊΠ°Π·ΡΠ²Π°ΡΡ ΡΠΈΠ»ΡΠ½ΠΎΠ΅ Π΄Π°Π²Π»Π΅Π½ΠΈΠ΅ Π½Π° Π½Π΅Π΅;
- ΠΠ΅ ΡΠ΅ΠΊΠΎΠΌΠ΅Π½Π΄ΡΠ΅ΡΡΡ ΠΏΠΎΠ΄ΠΏΠΈΡΠ°ΡΡ Π΄Π²Π΅ΡΡ Π² ΠΏΠΎΠ»ΡΠΎΡΠΊΡΡΡΠΎΠΌ ΠΏΠΎΠ»ΠΎΠΆΠ΅Π½ΠΈΠΈ, Π΄Π»Ρ ΡΡΠΎΠ³ΠΎ Π΅ΡΡΡ ΡΠΏΠ΅ΡΠΈΠ°Π»ΡΠ½Π°Ρ ΡΡΠ½ΠΊΡΠΈΡ;
- ΠΠ΅Π»ΡΠ·Ρ Π²Π΅ΡΠ°ΡΡ Π½Π° Π΄Π²Π΅ΡΡ ΡΡΠΆΠ΅Π»ΡΠ΅ ΠΏΡΠ΅Π΄ΠΌΠ΅ΡΡ, ΡΠ°ΠΊ ΠΊΠ°ΠΊ ΡΡΠΎ ΠΌΠΎΠΆΠ΅Ρ ΠΏΠ΅ΡΠ΅ΠΊΠΎΡΠΈΡΡ Π²ΡΡΡΠ°Π²Π»Π΅Π½Π½ΡΡ Π΄ΠΈΠ°Π³ΠΎΠ½Π°Π»Ρ.
ΠΠ»Π°Π³ΠΎΠ΄Π°ΡΡ ΡΡΠΈΠΌ ΡΠ΅ΠΊΠΎΠΌΠ΅Π½Π΄Π°ΡΠΈΡΠΌ ΡΠ΅ΠΏΠ΅ΡΡ Π²Ρ Π·Π½Π°Π΅ΡΠ΅, ΠΊΠ°ΠΊ ΠΎΡΡΠ΅Π³ΡΠ»ΠΈΡΠΎΠ²Π°ΡΡ Π΄Π²Π΅ΡΠ½ΠΎΠΉ Π΄ΠΎΠ²ΠΎΠ΄ΡΠΈΠΊ, ΡΠ²ΠΎΠ΅Π²ΡΠ΅ΠΌΠ΅Π½Π½Π°Ρ ΠΊΠΎΡΡΠ΅ΠΊΡΠΈΡΠΎΠ²ΠΊΠ° ΠΏΠΎΠΌΠΎΠΆΠ΅Ρ ΠΏΡΠΎΠ΄Π»ΠΈΡΡ ΡΡΠΎΠΊ Π΅Π³ΠΎ Π±Π΅ΡΠΏΠ΅ΡΠ΅Π±ΠΎΠΉΠ½ΠΎΠΉ ΡΠ°Π±ΠΎΡΡ ΠΈ ΡΠΎΡ ΡΠ°Π½ΠΈΡΡ ΡΡΠ½ΠΊΡΠΈΠΎΠ½Π°Π»ΡΠ½ΠΎΡΡΡ ΡΡΡΡΠΎΠΉΡΡΠ²Π°.
Π Π΅ΠΊΠΎΠΌΠ΅Π½Π΄ΡΠ΅ΠΌ ΠΏΠΎΡΠΌΠΎΡΡΠ΅ΡΡ Π²ΠΈΠ΄Π΅ΠΎ
ΠΡΠ½ΠΎΠ²Ρ Π΄Π²Π΅ΡΠ½ΠΎΠΉ ΡΡΡΠ½ΠΈΡΡΡΡ, ΡΠ°ΡΡΡ 3
ΠΠΎ ΡΠΈΡ ΠΏΠΎΡ Π²Ρ ΡΠ·Π½Π°Π»ΠΈ ΠΎΠ± ΠΎΡΠ½ΠΎΠ²Π½ΡΡ ΠΏΡΠΈΠ½ΡΠΈΠΏΠ°Ρ ΡΡΡΠ½ΠΈΡΡΡΡ Π΄Π»Ρ Π΄Π²ΡΡ Π΄Π²Π΅ΡΠ΅ΠΉ, ΠΊΠΎΡΠΎΡΡΠ΅ Π½Π΅ΠΎΠ±Ρ ΠΎΠ΄ΠΈΠΌΠΎ ΠΏΡΠΈΠΊΡΡΡΡ, ΡΡΠΎΠ±Ρ Π΄Π²Π΅ΡΡ ΡΡΠ½ΠΊΡΠΈΠΎΠ½ΠΈΡΠΎΠ²Π°Π»Π° Π΄ΠΎΠ»ΠΆΠ½ΡΠΌ ΠΎΠ±ΡΠ°Π·ΠΎΠΌ: ΠΊΠ°ΠΊ ΠΏΠΎΠ²Π΅ΡΠΈΡΡ Π΄Π²Π΅ΡΡ ΠΈ Π·Π°ΠΊΡΠ΅ΠΏΠΈΡΡ Π΄Π²Π΅ΡΡ. Π‘Π»Π΅Π΄ΡΡΡΠΈΠΌ ΡΠ°Π³ΠΎΠΌ Π² ΡΠ΄ΠΎΠ²Π»Π΅ΡΠ²ΠΎΡΠ΅Π½ΠΈΠΈ 4 ΠΎΡΠ½ΠΎΠ²Π½ΡΡ ΠΏΠΎΡΡΠ΅Π±Π½ΠΎΡΡΠ΅ΠΉ Π΄Π²Π΅ΡΠΈ ΡΠ²Π»ΡΠ΅ΡΡΡ ΡΠΏΡΠ°Π²Π»Π΅Π½ΠΈΠ΅ Π΄Π²Π΅ΡΡΡ.
Π£ΠΏΡΠ°Π²Π»Π΅Π½ΠΈΠ΅ Π΄Π²Π΅ΡΡΡ
Π£ΠΏΡΠ°Π²Π»Π΅Π½ΠΈΠ΅ Π΄Π²Π΅ΡΡΡ Π² ΠΎΡΠ½ΠΎΠ²Π½ΠΎΠΌ ΡΠ²ΡΠ·Π°Π½ΠΎ Ρ ΡΠ΅ΠΌ, ΡΡΠΎ ΠΏΡΠΎΠΈΡΡ ΠΎΠ΄ΠΈΡ Ρ Π΄Π²Π΅ΡΡΡ ΠΏΠΎΡΠ»Π΅ ΡΠΎΠ³ΠΎ, ΠΊΠ°ΠΊ ΠΎΠ½Π° Π±ΡΠ»Π° ΠΎΡΠΊΡΡΡΠ°. ΠΠ±ΠΎΡΡΠ΄ΠΎΠ²Π°Π½ΠΈΠ΅, ΠΈΡΠΏΠΎΠ»ΡΠ·ΡΠ΅ΠΌΠΎΠ΅ Π΄Π»Ρ ΡΠΏΡΠ°Π²Π»Π΅Π½ΠΈΡ, ΡΠ°ΠΊΠΆΠ΅ ΠΌΠΎΠΆΠ΅Ρ ΠΏΠΎΠ²Π»ΠΈΡΡΡ Π½Π° Π΄Π²Π΅ΡΡ Π΄ΠΎ ΡΠΎΠ³ΠΎ, ΠΊΠ°ΠΊ ΠΎΠ½Π° ΠΎΡΠΊΡΠΎΠ΅ΡΡΡ.ΠΠ²Π΅ΡΠ½Π°Ρ ΡΡΡΠ½ΠΈΡΡΡΠ°, ΠΊΠΎΡΠΎΡΠ°Ρ ΠΈΡΠΏΠΎΠ»ΡΠ·ΡΠ΅ΡΡΡ Π΄Π»Ρ ΡΠΏΡΠ°Π²Π»Π΅Π½ΠΈΡ Π΄Π²Π΅ΡΡΡ, Π²ΠΊΠ»ΡΡΠ°Π΅Ρ: 1) Π΄ΠΎΠ²ΠΎΠ΄ΡΠΈΠΊΠΈ, 2) Π΄Π²Π΅ΡΠ½ΡΠ΅ ΡΠΏΠΎΡΡ ΠΈ Π΄Π΅ΡΠΆΠ°ΡΠ΅Π»ΠΈ ΠΈ 3) Π΄Π²Π΅ΡΠ½ΡΠ΅ ΠΊΠΎΠΎΡΠ΄ΠΈΠ½Π°ΡΠΎΡΡ.
ΠΠ²Π΅ΡΠ½ΠΎΠΉ Π΄ΠΎΠ²ΠΎΠ΄ΡΠΈΠΊ
ΠΠΈ Π΄Π»Ρ ΠΊΠΎΠ³ΠΎ Π½Π΅ ΡΠ΅ΠΊΡΠ΅Ρ, Π΄Π»Ρ ΡΠ΅Π³ΠΎ Π½ΡΠΆΠ΅Π½ Π΄ΠΎΠ²ΠΎΠ΄ΡΠΈΠΊ. ΠΠΎΠ²ΠΎΠ΄ΡΠΈΠΊ Π·Π°ΠΊΡΠΎΠ΅Ρ Π΄Π²Π΅ΡΡ ΠΏΠΎΡΠ»Π΅ ΡΠΎΠ³ΠΎ, ΠΊΠ°ΠΊ ΡΠ΅Π»ΠΎΠ²Π΅ΠΊ ΠΎΡΠΊΡΡΠ» Π΄Π²Π΅ΡΡ ΠΈ ΠΏΡΠΎΡΠ΅Π» ΡΠ΅ΡΠ΅Π· ΠΏΡΠΎΠ΅ΠΌ. Π§ΡΠΎΠ±Ρ ΠΎΠ±ΡΡΡΠ½ΠΈΡΡ, ΠΊΠ°ΠΊ ΡΠ°Π±ΠΎΡΠ°Π΅Ρ Π΄Π²Π΅ΡΠ½ΠΎΠΉ Π΄ΠΎΠ²ΠΎΠ΄ΡΠΈΠΊ, ΠΊΠ°ΠΊ ΠΌΠΎΠΆΠ½ΠΎ ΠΏΡΠΎΡΠ΅: ΠΊΠΎΠ³Π΄Π° Π΄Π²Π΅ΡΡ ΠΎΡΠΊΡΡΠ²Π°Π΅ΡΡΡ, ΠΏΡΡΠΆΠΈΠ½Π° Π²Π½ΡΡΡΠΈ ΠΊΠΎΡΠΏΡΡΠ° Π΄ΠΎΠ²ΠΎΠ΄ΡΠΈΠΊΠ° Π½Π°Π³ΡΡΠΆΠ°Π΅ΡΡΡ Π½Π°ΠΏΡΡΠΆΠ΅Π½ΠΈΠ΅ΠΌ ΠΎΡ ΡΡΡΠ°Π³Π° Π΄ΠΎΠ²ΠΎΠ΄ΡΠΈΠΊΠ°, ΠΈ ΠΊΠ°ΠΊ ΡΠΎΠ»ΡΠΊΠΎ Π΄Π²Π΅ΡΡ Π±ΠΎΠ»ΡΡΠ΅ Π½Π΅ Π½Π°Ρ ΠΎΠ΄ΠΈΡΡΡ ΠΏΠΎΠ΄ ΠΊΠΎΠ½ΡΡΠΎΠ»Π΅ΠΌ ΡΠ΅Π»ΠΎΠ²Π΅ΠΊΠ°, ΠΏΡΠΎΡ ΠΎΠ΄ΡΡΠ΅Π³ΠΎ ΡΠ΅ΡΠ΅Π· ΠΏΡΠΎΠ΅ΠΌ, ΡΡΠ° ΠΏΡΡΠΆΠΈΠ½Π° ΡΠ°Π·ΠΆΠΈΠΌΠ°Π΅ΡΡΡ, ΠΈ ΡΡΠΊΠ° Π·Π°ΠΊΡΡΠ²Π°Π΅Ρ Π΄Π²Π΅ΡΡ.
ΠΠΎΠ²ΠΎΠ΄ΡΠΈΠΊ Ρ ΠΏΠ°ΡΠ°Π»Π»Π΅Π»ΡΠ½ΡΠΌ ΡΡΡΠ°Π³ΠΎΠΌ
ΠΠΎΠ²ΠΎΠ΄ΡΠΈΠΊ Π²Π°ΠΆΠ΅Π½ Π΄Π»Ρ Π±Π΅Π·ΠΎΠΏΠ°ΡΠ½ΠΎΡΡΠΈ ΠΏΠΎΠΌΠ΅ΡΠ΅Π½ΠΈΡ, ΠΎΠ½ Π³Π°ΡΠ°Π½ΡΠΈΡΡΠ΅Ρ, ΡΡΠΎ Π΄Π²Π΅ΡΡ Π²ΡΠ΅Π³Π΄Π° Π·Π°ΠΊΡΡΠ²Π°Π΅ΡΡΡ ΠΈ ΠΎΡΡΠ°Π΅ΡΡΡ Π·Π°ΠΏΠ΅ΡΡΠΎΠΉ. ΠΠΎΠ²ΠΎΠ΄ΡΠΈΠΊΠΈ ΡΠ°ΠΊΠΆΠ΅ ΠΏΠΎΠΌΠΎΠ³Π°ΡΡ ΠΏΠΎΠ΄Π΄Π΅ΡΠΆΠΈΠ²Π°ΡΡ ΠΎΠΊΡΡΠΆΠ°ΡΡΡΡ ΡΡΠ΅Π΄Ρ Π² ΠΏΠΎΠΌΠ΅ΡΠ΅Π½ΠΈΡΡ , ΡΠΎΡ ΡΠ°Π½ΡΡ Π³Π΅ΡΠΌΠ΅ΡΠΈΡΠ½ΠΎΡΡΡ ΡΠΎΡΠΊΠΈ ΡΠ°Π·Π΄Π΅Π»Π΅Π½ΠΈΡ, ΡΠ΅ΠΌ ΡΠ°ΠΌΡΠΌ ΡΠ½ΠΈΠΆΠ°Ρ ΠΏΠ΅ΡΠ΅Π΄Π°ΡΡ ΡΠ΅ΠΏΠ»Π° ΠΈ ΡΠ½Π΅ΡΠ³ΠΈΠΈ ΠΏΠΎ Π²ΡΠ΅ΠΌΡ Π·Π΄Π°Π½ΠΈΡ ΠΈΠ»ΠΈ ΠΏΡΠΎΡΡΡΠ°Π½ΡΡΠ²Ρ ΠΏΠΎ ΠΌΠ΅ΡΠ΅ Π½Π΅ΠΎΠ±Ρ ΠΎΠ΄ΠΈΠΌΠΎΡΡΠΈ. ΠΠ°ΠΊΠΎΠ½Π΅Ρ, Π΄Π»Ρ ΠΎΠ³Π½Π΅ΡΡΠΎΠΉΠΊΠΈΡ ΠΏΡΠΎΠ΅ΠΌΠΎΠ² Π½Π΅ΠΎΠ±Ρ ΠΎΠ΄ΠΈΠΌΡ Π΄ΠΎΠ²ΠΎΠ΄ΡΠΈΠΊΠΈ, ΡΡΠΎΠ±Ρ ΠΏΡΠ΅Π΄ΠΎΡΠ²ΡΠ°ΡΠΈΡΡ ΡΠ°ΡΠΏΡΠΎΡΡΡΠ°Π½Π΅Π½ΠΈΠ΅ Π΄ΡΠΌΠ° ΠΈ ΠΎΠ³Π½Ρ ΡΠ΅ΡΠ΅Π· ΠΏΡΠΎΠ΅ΠΌ.
ΠΠ²Π΅ΡΠ½ΡΠ΅ ΠΎΠ³ΡΠ°Π½ΠΈΡΠΈΡΠ΅Π»ΠΈ ΠΈ Π΄Π΅ΡΠΆΠ°ΡΠ΅Π»ΠΈ
ΠΠ²Π΅ΡΠ½ΡΠ΅ ΠΎΠ³ΡΠ°Π½ΠΈΡΠΈΡΠ΅Π»ΠΈ ΠΈ Π΄Π²Π΅ΡΠ½ΡΠ΅ Π΄Π΅ΡΠΆΠ°ΡΠ΅Π»ΠΈ ΡΠ°ΠΊΠΆΠ΅ Π½Π΅ ΡΡΠ΅Π±ΡΡΡ ΠΏΠΎΡΡΠ½Π΅Π½ΠΈΠΉ.ΠΠ²Π΅ΡΠ½ΡΠ΅ ΡΠΏΠΎΡΡ Π½Π΅ Π΄Π°ΡΡ Π΄Π²Π΅ΡΠΈ ΡΠ°ΡΠΊΠ°ΡΠΈΠ²Π°ΡΡΡΡ Π·Π° ΠΎΠΏΡΠ΅Π΄Π΅Π»Π΅Π½Π½ΡΡ ΡΠΎΡΠΊΡ, Π° Π΄Π²Π΅ΡΠ½ΡΠ΅ Π΄Π΅ΡΠΆΠ°ΡΠ΅Π»ΠΈ ΠΈΠΌΠ΅ΡΡ Π΄ΠΎΠΏΠΎΠ»Π½ΠΈΡΠ΅Π»ΡΠ½ΡΡ ΡΡΠ½ΠΊΡΠΈΡ ΡΠ΄Π΅ΡΠΆΠ°Π½ΠΈΡ Π΄Π²Π΅ΡΠΈ ΠΎΡΠΊΡΡΡΠΎΠΉ Π² ΠΎΠΏΡΠ΅Π΄Π΅Π»Π΅Π½Π½ΠΎΠΉ ΡΠΎΡΠΊΠ΅.
ΠΠ°ΡΡΠ΅Π½Π½ΡΠΉ ΡΠΏΠΎΡ ΠΈ Π½Π°ΠΏΠΎΠ»ΡΠ½ΡΠΉ ΡΠΏΠΎΡ
ΠΠ²Π΅ΡΠ½ΡΠ΅ ΠΎΠ³ΡΠ°Π½ΠΈΡΠΈΡΠ΅Π»ΠΈ ΠΈ Π΄Π²Π΅ΡΠ½ΡΠ΅ Π΄Π΅ΡΠΆΠ°ΡΠ΅Π»ΠΈ ΠΌΠΎΠΆΠ½ΠΎ ΡΡΡΠ°Π½ΠΎΠ²ΠΈΡΡ Π½Π΅ΡΠΊΠΎΠ»ΡΠΊΠΈΠΌΠΈ ΡΠΏΠΎΡΠΎΠ±Π°ΠΌΠΈ. ΠΡ ΠΌΠΎΠΆΠ½ΠΎ ΡΡΡΠ°Π½ΠΎΠ²ΠΈΡΡ Π½Π° ΠΏΠΎΠ»Ρ, ΠΏΡΠΈΠΊΡΠ΅ΠΏΠΈΡΡ ΠΊ ΡΡΠ΅Π½Π΅ ΠΈΠ»ΠΈ ΠΏΠΎΠ΄Π²Π΅ΡΠΈΡΡ Π½Π°Π΄ Π΄Π²Π΅ΡΡΡ ΠΈ ΠΊΠΎΡΠΎΠ±ΠΊΠΎΠΉ. Π£ΡΠ»ΠΎΠ²ΠΈΡ, ΠΎΠΊΡΡΠΆΠ°ΡΡΠΈΠ΅ ΠΏΡΠΎΠ΅ΠΌ, ΡΠ°ΡΡΠΎ ΠΎΠΏΡΠ΅Π΄Π΅Π»ΡΡΡ ΡΠΈΠΏ Π΄Π²Π΅ΡΠ½ΠΎΠ³ΠΎ ΡΠΏΠΎΡΠ° ΠΈΠ»ΠΈ Π΄Π΅ΡΠΆΠ°ΡΠ΅Π»Ρ, ΠΊΠΎΡΠΎΡΡΠΉ ΡΠ»Π΅Π΄ΡΠ΅Ρ ΠΈΡΠΏΠΎΠ»ΡΠ·ΠΎΠ²Π°ΡΡ.
ΠΡΠ»ΠΈ ΡΠΊΠ°ΡΡ ΠΈΠ»ΠΈ ΠΌΠ΅Π±Π΅Π»Ρ Π½Π°Ρ ΠΎΠ΄ΡΡΡΡ Π·Π° Π΄Π²Π΅ΡΡΡ, ΡΠΎ Π²Π΅ΡΡ Π½ΠΈΠΉ ΡΠΏΠΎΡ ΠΌΠΎΠΆΠ΅Ρ Π±ΡΡΡ Π±ΠΎΠ»Π΅Π΅ ΠΏΠΎΠ΄Ρ ΠΎΠ΄ΡΡΠΈΠΌ, ΡΠ΅ΠΌ Π½Π°ΡΡΠ΅Π½Π½ΡΠΉ ΡΠΏΠΎΡ.Π Π½Π΅ΠΊΠΎΡΠΎΡΡΡ ΠΌΠ΅ΡΡΠ°Ρ Π½Π°ΠΏΠΎΠ»ΡΠ½ΡΠ΅ ΡΠΏΠΎΡΡ ΠΌΠΎΠ³ΡΡ Π±ΡΡΡ ΠΎΠΏΠ°ΡΠ½Ρ Π΄Π»Ρ ΡΠΏΠΎΡΡΠΊΠ°Π½ΠΈΡ, ΠΏΠΎΡΡΠΎΠΌΡ Π½Π°ΡΡΠ΅Π½Π½ΡΠΉ ΡΠΏΠΎΡ ΠΌΠΎΠΆΠ΅Ρ Π±ΡΡΡ Π»ΡΡΡΠΈΠΌ Π²Π°ΡΠΈΠ°Π½ΡΠΎΠΌ.
ΠΠΎΠΎΡΠ΄ΠΈΠ½Π°ΡΠΎΡΡ Π΄Π²Π΅ΡΠ΅ΠΉ
ΠΠΎΠΎΡΠ΄ΠΈΠ½Π°ΡΠΎΡΡ ΠΈΡΠΏΠΎΠ»ΡΠ·ΡΡΡΡΡ ΡΠΎΠ»ΡΠΊΠΎ Π² ΠΏΡΠΎΠ΅ΠΌΠ°Ρ Ρ Π΄Π²ΡΡΡΠ²ΠΎΡΡΠ°ΡΡΠΌΠΈ Π΄Π²Π΅ΡΡΠΌΠΈ. Π§Π°ΡΡΠΎ Π² ΠΏΠ°ΡΠ΅ ΡΠ°ΡΠΏΠ°ΡΠ½ΡΡ Π΄Π²Π΅ΡΠ΅ΠΉ ΡΠ°ΡΡΠΎ ΠΈΡΠΏΠΎΠ»ΡΠ·ΡΠ΅ΡΡΡ ΡΠΎΠ»ΡΠΊΠΎ ΠΎΠ΄Π½ΠΎ ΠΈΠ· Π΄Π²Π΅ΡΠ½ΡΡ ΠΏΠΎΠ»ΠΎΡΠ΅Π½. ΠΡΠΎΡΠΈΡΠ½ΠΎΠ΅ Π΄Π²Π΅ΡΠ½ΠΎΠ΅ ΠΏΠΎΠ»ΠΎΡΠ½ΠΎ, Π½Π°Π·ΡΠ²Π°Π΅ΠΌΠΎΠ΅ Β«Π½Π΅Π°ΠΊΡΠΈΠ²Π½ΠΎΠΉΒ» Π΄Π²Π΅ΡΡΡ, Π±ΡΠ΄Π΅Ρ ΠΎΡΡΠ°Π²Π°ΡΡΡΡ Π·Π°ΠΊΡΡΡΡΠΌ Π±ΠΎΠ»ΡΡΡΡ ΡΠ°ΡΡΡ Π²ΡΠ΅ΠΌΠ΅Π½ΠΈ ΠΈ, Π΅ΡΠ»ΠΈ ΠΎΠ½ΠΎ ΠΎΡΠΊΡΡΡΠΎ, Π΄ΠΎΠ»ΠΆΠ½ΠΎ Π·Π°ΠΊΡΡΠ²Π°ΡΡΡΡ Π΄ΠΎ ΡΠΎΠ³ΠΎ, ΠΊΠ°ΠΊ Π·Π°ΠΊΡΠΎΠ΅ΡΡΡ ΠΎΡΠ½ΠΎΠ²Π½ΠΎΠ΅ Π΄Π²Π΅ΡΠ½ΠΎΠ΅ ΠΏΠΎΠ»ΠΎΡΠ½ΠΎ, ΠΈΠ»ΠΈ Β«Π°ΠΊΡΠΈΠ²Π½Π°ΡΒ» Π΄Π²Π΅ΡΡ. ΠΠΎΠΎΡΠ΄ΠΈΠ½Π°ΡΠΎΡ ΠΎΠ±Π»Π΅Π³ΡΠ°Π΅Ρ Π²ΡΠΏΠΎΠ»Π½Π΅Π½ΠΈΠ΅ ΡΡΠΎΠ³ΠΎ ΡΡΠ΅Π±ΠΎΠ²Π°Π½ΠΈΡ ΠΈ ΡΠ»Π΅Π΄ΠΈΡ Π·Π° ΡΠ΅ΠΌ, ΡΡΠΎΠ±Ρ Π΄Π²Π΅ΡΠΈ Π½Π΅ Π±ΡΠ»ΠΈ ΠΏΠΎΠ²ΡΠ΅ΠΆΠ΄Π΅Π½Ρ ΠΈΠ»ΠΈ ΠΎΡΡΠ°Π²Π»Π΅Π½Ρ Π½Π΅Π·Π°ΡΠΈΠΊΡΠΈΡΠΎΠ²Π°Π½Π½ΡΠΌΠΈ ΠΏΠΎΡΠ»Π΅ ΠΎΡΠΊΡΡΡΠΈΡ.
ΠΠΎΠΎΡΠ΄ΠΈΠ½Π°ΡΠΎΡ Π΄Π²Π΅ΡΠΈ
ΠΡΠΏΠΎΠ»ΡΠ·ΡΡ ΡΡΠΈ ΡΠ»Π΅ΠΌΠ΅Π½ΡΡ ΠΎΠ±ΠΎΡΡΠ΄ΠΎΠ²Π°Π½ΠΈΡ Π½Π° Π΄Π²Π΅ΡΠΈ, Π²Ρ ΡΠΌΠΎΠΆΠ΅ΡΠ΅ ΠΊΠΎΠ½ΡΡΠΎΠ»ΠΈΡΠΎΠ²Π°ΡΡ ΡΠ°Π±ΠΎΡΡ ΠΈ Π±Π΅Π·ΠΎΠΏΠ°ΡΠ½ΠΎΡΡΡ ΠΊΠ°ΠΆΠ΄ΠΎΠ³ΠΎ ΠΏΠΎΠΌΠ΅ΡΠ΅Π½ΠΈΡ Π² Π·Π΄Π°Π½ΠΈΠΈ.
Π ΡΠ»Π΅Π΄ΡΡΡΠ΅ΠΉ ΡΡΠ°ΡΡΠ΅ ΠΌΡ Π·Π°Π²Π΅ΡΡΠΈΠΌ ΡΡΡ ΡΠ΅ΡΠΈΡ ΠΈΠ· 4 ΡΠ°ΡΡΠ΅ΠΉ, ΠΏΠΎΡΠ²ΡΡΠ΅Π½Π½ΡΡ ΠΎΡΠ½ΠΎΠ²Π°ΠΌ ΠΎΠ±ΠΎΡΡΠ΄ΠΎΠ²Π°Π½ΠΈΡ, ΠΎΠ±ΡΡΠΆΠ΄Π΅Π½ΠΈΠ΅ΠΌ ΠΎΠ±ΠΎΡΡΠ΄ΠΎΠ²Π°Π½ΠΈΡ, ΠΊΠΎΡΠΎΡΠΎΠ΅ ΠΈΡΠΏΠΎΠ»ΡΠ·ΡΠ΅ΡΡΡ Π΄Π»Ρ Π·Π°ΡΠΈΡΡ Π΄Π²Π΅ΡΠΈ.
-JN
ΠΠ°ΠΊ ΠΎΡΡΠ΅Π³ΡΠ»ΠΈΡΠΎΠ²Π°ΡΡ ΠΈ ΡΡΡΡΠ°Π½ΠΈΡΡ Π½Π΅ΠΈΡΠΏΡΠ°Π²Π½ΠΎΡΡΠΈ Π²Π°ΡΠ΅Π³ΠΎ ΠΊΠΎΠΌΠΌΠ΅ΡΡΠ΅ΡΠΊΠΎΠ³ΠΎ Π΄Π²Π΅ΡΠ½ΠΎΠ³ΠΎ Π΄ΠΎΠ²ΠΎΠ΄ΡΠΈΠΊΠ°
Π Π΅Π³ΡΠ»ΠΈΡΠΎΠ²ΠΊΠ° Π΄ΠΎΠ²ΠΎΠ΄ΡΠΈΠΊΠ° Π΄Π²Π΅ΡΠΈ — ΡΡΠΎ Π½Π°Π²ΡΠΊ, ΡΡΠ΅Π±ΡΡΡΠΈΠΉ Π·Π½Π°Π½ΠΈΠΉ, ΡΠ΅ΡΠΏΠ΅Π½ΠΈΡ ΠΈ ΡΠΌΠ΅Π½ΠΈΡ Π½Π΅ΡΠΊΠΎΠ»ΡΠΊΠΎ ΡΠ°Π· ΠΏΠΎΠ΄Π½ΠΈΠΌΠ°ΡΡΡΡ ΠΈ ΡΠΏΡΡΠΊΠ°ΡΡΡΡ ΠΏΠΎ Π»Π΅ΡΡΠ½ΠΈΡΠ΅.ΠΠΎ Ρ ΡΡΠΈΠΌΠΈ Π°ΡΡΠΈΠ±ΡΡΠ°ΠΌΠΈ ΠΈ ΠΏΠΎΠ΄Ρ ΠΎΠ΄ΡΡΠΈΠΌ Π³Π°Π΅ΡΠ½ΡΠΌ ΠΊΠ»ΡΡΠΎΠΌ, ΡΠ΅ΡΡΠΈΠ³ΡΠ°Π½Π½ΡΠΌ ΠΊΠ»ΡΡΠΎΠΌ ΠΈΠ»ΠΈ ΠΎΡΠ²Π΅ΡΡΠΊΠΎΠΉ Π²Ρ ΠΌΠΎΠΆΠ΅ΡΠ΅ ΡΠ΄Π΅Π»Π°ΡΡ ΡΡΠΎ ΡΠ°ΠΌΠΎΡΡΠΎΡΡΠ΅Π»ΡΠ½ΠΎ. ΠΡΠ° ΡΡΠ°ΡΡΡ Π² ΠΏΠ΅ΡΠ²ΡΡ ΠΎΡΠ΅ΡΠ΅Π΄Ρ ΠΊΠ°ΡΠ°Π΅ΡΡΡ Π΄ΠΎΠ²ΠΎΠ΄ΡΠΈΠΊΠΎΠ² Π΄Π»Ρ ΠΊΠΎΠΌΠΌΠ΅ΡΡΠ΅ΡΠΊΠΈΡ Π΄Π²Π΅ΡΠ΅ΠΉ , Π½ΠΎ ΠΈΠ΄Π΅ΠΈ, ΠΏΡΠ΅Π΄ΡΡΠ°Π²Π»Π΅Π½Π½ΡΠ΅ Π·Π΄Π΅ΡΡ, ΠΌΠΎΠ³ΡΡ Π±ΡΡΡ ΠΏΡΠΈΠΌΠ΅Π½Π΅Π½Ρ ΠΈ ΠΊ Π΄ΡΡΠ³ΠΈΠΌ ΡΠΈΠΏΠ°ΠΌ Π΄ΠΎΠ²ΠΎΠ΄ΡΠΈΠΊΠΎΠ² Π΄Π²Π΅ΡΠ΅ΠΉ.
ΠΠΎΠ»ΡΡΠΈΠ½ΡΡΠ²ΠΎ ΡΠ΅Π³ΡΠ»ΠΈΡΠΎΠ²ΠΎΠΊ Π΄ΠΎΠ²ΠΎΠ΄ΡΠΈΠΊΠΎΠ² Π΄Π²Π΅ΡΠ΅ΠΉ ΠΏΡΠΎΠΈΠ·Π²ΠΎΠ΄ΡΡΡΡ ΠΏΡΡΠ΅ΠΌ ΠΎΡΠΊΡΡΡΠΈΡ ΠΈ Π·Π°ΠΊΡΡΡΠΈΡ Π³ΠΈΠ΄ΡΠ°Π²Π»ΠΈΡΠ΅ΡΠΊΠΈΡ ΠΊΠ»Π°ΠΏΠ°Π½ΠΎΠ². ΠΠΎΠ³Π΄Π° Π΄Π΅Π»ΠΎ Π΄ΠΎΡ ΠΎΠ΄ΠΈΡ Π΄ΠΎ ΠΏΠΎΠ²ΠΎΡΠΎΡΠ° Π²ΠΈΠ½ΡΠΎΠ², ΠΊΠΎΡΠΎΡΡΠ΅ ΠΏΡΠΈΠ²ΠΎΠ΄ΡΡ Π² Π΄Π΅ΠΉΡΡΠ²ΠΈΠ΅ ΡΡΠΈ ΠΊΠ»Π°ΠΏΠ°Π½Ρ, Π½Π΅Π±ΠΎΠ»ΡΡΠ°Ρ ΡΠ°ΡΡΡ ΠΈΠΌΠ΅Π΅Ρ Π±ΠΎΠ»ΡΡΠΎΠ΅ Π·Π½Π°ΡΠ΅Π½ΠΈΠ΅. ΠΠΎΠ²ΠΎΡΠΎΡ Π²ΡΠ΅Π³ΠΎ Π½Π° ΠΏΡΡΡ Π³ΡΠ°Π΄ΡΡΠΎΠ² ΠΌΠΎΠΆΠ΅Ρ Π·Π½Π°ΡΠΈΡΠ΅Π»ΡΠ½ΠΎ ΡΠ²Π΅Π»ΠΈΡΠΈΡΡ ΠΈΠ»ΠΈ ΡΠΌΠ΅Π½ΡΡΠΈΡΡ ΡΠΊΠΎΡΠΎΡΡΡ Π·Π°ΠΊΡΡΡΠΈΡ.
Π Π΅Π³ΡΠ»ΠΈΡΠΎΠ²ΠΊΠ° Π΄ΠΎΠ²ΠΎΠ΄ΡΠΈΠΊΠ° ΠΊΠΎΠΌΠΌΠ΅ΡΡΠ΅ΡΠΊΠΈΡ Π΄Π²Π΅ΡΠ΅ΠΉ
ΠΡΠ»ΠΈ Π²Ρ ΠΏΠΎΡΠΌΠΎΡΡΠΈΡΠ΅ Π½Π° Π΄ΠΎΠ²ΠΎΠ΄ΡΠΈΠΊ ΠΈ Π½Π΅ ΡΠ²ΠΈΠ΄ΠΈΡΠ΅ ΡΠ΅Π³ΡΠ»ΠΈΡΠΎΠ²ΠΎΡΠ½ΡΡ Π²ΠΈΠ½ΡΠΎΠ², ΡΠΊΠΎΡΠ΅Π΅ Π²ΡΠ΅Π³ΠΎ, Π½Π° Π΄ΠΎΠ²ΠΎΠ΄ΡΠΈΠΊΠ΅ Π΅ΡΡΡ ΠΊΡΡΡΠΊΠ°. ΠΡΡΡΠΊΠ° ΠΎΠ±ΡΡΠ½ΠΎ ΠΏΠ»Π°ΡΡΠΈΠΊΠΎΠ²Π°Ρ, Π½ΠΎ ΠΌΠΎΠΆΠ΅Ρ Π±ΡΡΡ ΠΈ ΠΌΠ΅ΡΠ°Π»Π»ΠΈΡΠ΅ΡΠΊΠΎΠΉ. ΠΡΠ»ΠΈ Π²Ρ Π½Π΅ Π²ΠΈΠ΄ΠΈΡΠ΅ ΠΊΡΠ΅ΠΏΠ»Π΅Π½ΠΈΠΉ, ΡΠ΄Π΅ΡΠΆΠΈΠ²Π°ΡΡΠΈΡ ΠΊΡΡΡΠΊΡ, ΡΡΠΎ ΠΎΠ·Π½Π°ΡΠ°Π΅Ρ, ΡΡΠΎ ΠΊΡΡΡΠΊΠ° ΡΠ΄Π΅ΡΠΆΠΈΠ²Π°Π΅ΡΡΡ Π½Π°ΡΡΠΆΠ΅Π½ΠΈΠ΅ΠΌ. Π‘Π½ΠΈΠΌΠΈΡΠ΅ Π΅Π³ΠΎ, ΠΈ Π΅ΡΠ»ΠΈ Π²Ρ ΡΠ²ΠΈΠ΄ΠΈΡΠ΅ Π·Π°ΡΡΠ΅ΠΆΠΊΠΈ, Π²Ρ ΠΌΠΎΠΆΠ΅ΡΠ΅ ΠΎΡΠ»Π°Π±ΠΈΡΡ, Π½ΠΎ Π½Π΅ ΡΠ½ΠΈΠΌΠ°ΡΡ, Π·Π°ΡΡΠ΅ΠΆΠΊΠΈ ΠΈ ΠΊΡΡΡΠΊΠ° ΡΠΎΡΠΊΠΎΠ»ΡΠ·Π½ΡΡ.
- ΠΡΠ»ΠΈ Π²Ρ ΠΎΠ±Π½Π°ΡΡΠΆΠΈΡΠ΅, ΡΡΠΎ ΠΌΠ°ΡΠ»ΠΎ Π² ΠΊΡΡΡΠΊΠ΅ ΠΈΠ»ΠΈ ΠΌΠ°ΡΠ»ΠΎ Π½Π° ΠΊΠΎΡΠΏΡΡΠ΅ Π΄ΠΎΠ²ΠΎΠ΄ΡΠΈΠΊΠ° ΠΈΠ»ΠΈ Π²ΡΡΠ΅ΠΊΠ°Π΅Ρ ΠΈΠ· Π½Π΅Π³ΠΎ — ΠΎΡΡΠ°Π½ΠΎΠ²ΠΈΡΠ΅ΡΡ ΠΏΡΡΠΌΠΎ ΡΠ΅ΠΉΡΠ°Ρ — Π²Π°ΠΌ Π½ΡΠΆΠ΅Π½ Π½ΠΎΠ²ΡΠΉ Π΄ΠΎΠ²ΠΎΠ΄ΡΠΈΠΊ Π΄Π²Π΅ΡΠΈ
.(ΠΡΠ»ΠΈ, ΠΎΠ΄Π½Π°ΠΊΠΎ, ΡΡΠ΅ΡΠΊΠΈ Π½Π΅Ρ, ΠΏΡΠΎΠ΄ΠΎΠ»ΠΆΠ°ΠΉΡΠ΅.) - Π’Π΅ΠΏΠ΅ΡΡ, ΠΊΠΎΠ³Π΄Π° ΠΊΡΡΡΠΊΠ° ΡΠ½ΡΡΠ°, Π²Ρ Π΄ΠΎΠ»ΠΆΠ½Ρ ΡΠ²ΠΈΠ΄Π΅ΡΡ ΡΠ΅Π³ΡΠ»ΠΈΡΠΎΠ²ΠΎΡΠ½ΡΠ΅ Π²ΠΈΠ½ΡΡ. ΠΠ½ΠΈ Π΄ΠΎΠ»ΠΆΠ½Ρ Π±ΡΡΡ ΠΎΡΠΌΠ΅ΡΠ΅Π½Ρ Π½Π° Π±Π»ΠΈΠΆΠ½Π΅ΠΌ ΠΊΠΎΡΠΏΡΡΠ΅ ΠΎΡΠ½ΠΎΡΠΈΡΠ΅Π»ΡΠ½ΠΎ ΡΠΎΠ³ΠΎ, ΡΡΠΎ ΠΎΠ½ΠΈ ΡΠΎΠ±ΠΎΠΉ ΠΏΡΠ΅Π΄ΡΡΠ°Π²Π»ΡΡΡ, ΠΈΠ»ΠΈ Π²Π½ΡΡΡΠΈ ΠΊΡΡΡΠΊΠΈ Π±ΡΠ΄Π΅Ρ ΡΡ Π΅ΠΌΠ°. ΠΡΠ»ΠΈ Π½Π΅Ρ, Π²ΠΎΠ·ΠΌΠΎΠΆΠ½ΠΎ, Π²Π°ΠΌ ΠΏΡΠΈΠ΄Π΅ΡΡΡ Π½Π΅ΠΌΠ½ΠΎΠ³ΠΎ ΠΏΠΎΡΠΊΡΠΏΠ΅ΡΠΈΠΌΠ΅Π½ΡΠΈΡΠΎΠ²Π°ΡΡ, ΡΡΠΎΠ±Ρ ΡΠ²ΠΈΠ΄Π΅ΡΡ, ΡΡΠΎ Π΅ΡΡΡ ΡΡΠΎ.
- ΠΠΎΠΌΠ½ΠΈΡΠ΅, ΡΡΠΎ ΠΊΠΎΠ³Π΄Π° Π΄Π΅Π»ΠΎ Π΄ΠΎΡ ΠΎΠ΄ΠΈΡ Π΄ΠΎ ΠΏΠΎΠ²ΠΎΡΠΎΡΠ° ΡΠ΅Π³ΡΠ»ΠΈΡΠΎΠ²ΠΎΡΠ½ΡΡ Π²ΠΈΠ½ΡΠΎΠ² Π΄ΠΎΠ²ΠΎΠ΄ΡΠΈΠΊΠ° ΠΊΠΎΠΌΠΌΠ΅ΡΡΠ΅ΡΠΊΠΎΠΉ Π΄Π²Π΅ΡΠΈ, Π½Π΅Π±ΠΎΠ»ΡΡΠ°Ρ ΡΠ°ΡΡΡ ΠΈΠΌΠ΅Π΅Ρ Π±ΠΎΠ»ΡΡΠΎΠ΅ Π·Π½Π°ΡΠ΅Π½ΠΈΠ΅. ΠΠ°ΡΠ½ΠΈΡΠ΅ Ρ Π½Π΅ Π±ΠΎΠ»Π΅Π΅ 1/8 ΠΎΠ±ΠΎΡΠΎΡΠ°. ΠΠΎΠ²Π΅ΡΠ½ΠΈΡΠ΅ ΡΠ΅Π³ΡΠ»ΠΈΡΠΎΠ²ΠΎΡΠ½ΡΠΉ Π²ΠΈΠ½Ρ ΠΏΠΎ ΡΠ°ΡΠΎΠ²ΠΎΠΉ ΡΡΡΠ΅Π»ΠΊΠ΅, ΡΡΠΎΠ±Ρ Π·Π°ΠΌΠ΅Π΄Π»ΠΈΡΡ Π΄ΠΎΠ²ΠΎΠ΄ΡΠΈΠΊ, ΠΏΡΠΎΡΠΈΠ² ΡΠ°ΡΠΎΠ²ΠΎΠΉ ΡΡΡΠ΅Π»ΠΊΠΈ, ΡΡΠΎΠ±Ρ ΡΡΠΊΠΎΡΠΈΡΡ Π΅Π³ΠΎ.
- ΠΡΠΊΡΠΎΠΉΡΠ΅ Π΄Π²Π΅ΡΡ ΠΈ ΠΏΠΎΡΠΌΠΎΡΡΠΈΡΠ΅, ΠΊΠ°ΠΊ ΠΎΠ½Π° Π·Π°ΠΊΡΠΎΠ΅ΡΡΡ. ΠΡΠ»ΠΈ Ρ ΠΏΠ΅ΡΠ²ΠΎΠ³ΠΎ ΡΠ°Π·Π° Π·Π°ΠΊΡΡΠ²Π°Π΅ΡΡΡ ΠΏΡΠ°Π²ΠΈΠ»ΡΠ½ΠΎ, ΠΏΡΠΎΠ²Π΅ΡΡΡΠ΅ Π΅ΡΠ΅ 10 ΡΠ°Π·. ΠΡΠ»ΠΈ ΠΎΠ½ ΠΊΠ°ΠΆΠ΄ΡΠΉ ΡΠ°Π· Π·Π°ΠΊΡΡΠ²Π°Π΅ΡΡΡ ΠΏΡΠ°Π²ΠΈΠ»ΡΠ½ΠΎ, Π²ΡΠ΅ Π³ΠΎΡΠΎΠ²ΠΎ. ΠΡΠ»ΠΈ Π½Π΅Ρ, Π²Π΅ΡΠ½ΠΈΡΠ΅ΡΡ ΠΏΠΎ Π»Π΅ΡΡΠ½ΠΈΡΠ΅ ΠΈ ΡΠ΄Π΅Π»Π°ΠΉΡΠ΅ Π΅ΡΠ΅ ΠΎΠ΄Π½Ρ ΡΠ΅Π³ΡΠ»ΠΈΡΠΎΠ²ΠΊΡ.
- ΠΠΎΠ³Π΄Π° ΠΎΠ½ Π·Π°ΠΊΡΠΎΠ΅ΡΡΡ ΡΠ°ΠΊ, ΠΊΠ°ΠΊ Π²Ρ Ρ ΠΎΡΠΈΡΠ΅, 10 ΡΠ°Π· ΠΏΠΎΠ΄ΡΡΠ΄, ΠΎΠ½, Π²Π΅ΡΠΎΡΡΠ½ΠΎ, ΠΏΡΠΎΠ΄ΠΎΠ»ΠΆΠΈΡ ΡΡΠΎ Π΄Π΅Π»Π°ΡΡ.
- Π ΠΈΠ΄Π΅Π°Π»Π΅ Π΄ΠΎΠ²ΠΎΠ΄ΡΠΈΠΊ Π±Π΅Π· Π·Π°Π΄Π΅ΡΠΆΠΊΠΈ Π·Π°ΠΊΡΡΠ²Π°Π΅Ρ ΠΈ Π·Π°ΡΠ΅Π»ΠΊΠΈΠ²Π°Π΅Ρ Π΄Π²Π΅ΡΡ Π·Π° ΡΠ΅ΠΌΡ-Π²ΠΎΡΠ΅ΠΌΡ ΡΠ΅ΠΊΡΠ½Π΄.
Π£ΡΡΡΠ°Π½Π΅Π½ΠΈΠ΅ Π½Π΅ΠΏΠΎΠ»Π°Π΄ΠΎΠΊ Π΄ΠΎΠ²ΠΎΠ΄ΡΠΈΠΊΠ° ΠΊΠΎΠΌΠΌΠ΅ΡΡΠ΅ΡΠΊΠΈΡ Π΄Π²Π΅ΡΠ΅ΠΉ
- ΠΡΠ»ΠΈ Π΅ΡΡΡ ΠΏΡΠΎΠ±Π»Π΅ΠΌΠ° Ρ ΠΏΠ΅ΡΠ»ΡΠΌΠΈ, Π΄Π΅ΡΠΎΡΠΌΠΈΡΠΎΠ²Π°Π½Π½Π°Ρ Π΄Π²Π΅ΡΡ ΠΈΠ»ΠΈ Π΄Π²Π΅ΡΡ Π΄ΠΎΠ»ΠΆΠ½Π° ΠΏΠΎΠ΄Π½ΠΈΠΌΠ°ΡΡΡΡ Π²Π²Π΅ΡΡ , ΡΡΠΎΠ±Ρ Π·Π°ΠΊΡΡΠ²Π°ΡΡΡΡ, Π΄ΠΎΠ²ΠΎΠ΄ΡΠΈΠΊ Π·Π°ΠΉΠ΄Π΅Ρ ΡΠ°ΠΊ Π΄Π°Π»Π΅ΠΊΠΎ, ΡΡΠΎΠ±Ρ ΡΠ΅ΡΠΈΡΡ ΠΏΡΠΎΠ±Π»Π΅ΠΌΡ.ΠΠ½ΠΎΠ³Π΄Π° Π΄Π²Π΅ΡΡ Π½Π΅ΠΎΠ±Ρ ΠΎΠ΄ΠΈΠΌΠΎ ΠΎΡΡΠ΅ΠΌΠΎΠ½ΡΠΈΡΠΎΠ²Π°ΡΡ, ΠΏΡΠ΅ΠΆΠ΄Π΅ ΡΠ΅ΠΌ ΠΎΠ½Π° Π·Π°ΠΊΡΠΎΠ΅ΡΡΡ ΠΈ Π·Π°ΠΏΠ΅ΡΠ΅ΡΡΡ Π°Π²ΡΠΎΠΌΠ°ΡΠΈΡΠ΅ΡΠΊΠΈ.
- ΠΡΠ»ΠΈ Π΄ΠΎΠ²ΠΎΠ΄ΡΠΈΠΊ ΠΏΠ΅ΡΠ΅ΡΡΠ°Π΅Ρ Π·Π°ΠΊΡΡΠ²Π°ΡΡ Π΄Π²Π΅ΡΡ Π΄ΠΎ ΡΠΎΠ³ΠΎ, ΠΊΠ°ΠΊ ΠΎΠ½Π° Π·Π°ΠΊΡΡΠ»Π°ΡΡ ΠΏΠΎΠ»Π½ΠΎΡΡΡΡ, ΠΈΠ»ΠΈ ΡΠ°ΠΊΡΠΈΡΠ΅ΡΠΊΠΈ ΠΎΡΡΠΊΠ°ΠΊΠΈΠ²Π°Π΅Ρ Π½Π°Π·Π°Π΄, ΠΊΠΎΠ³Π΄Π° Π²Ρ ΠΏΡΡΠ°Π΅ΡΠ΅ΡΡ Π²ΡΡΡΠ½ΡΡ Π·Π°ΠΊΡΡΡΡ Π΄Π²Π΅ΡΡ, ΡΠΎ ΡΡΡΠ°Π³, Π²Π΅ΡΠΎΡΡΠ½ΠΎ, ΡΡΡΠ°Π½ΠΎΠ²Π»Π΅Π½ Π½Π° Π²Π°Π»Ρ Π½Π΅ΠΏΡΠ°Π²ΠΈΠ»ΡΠ½ΠΎ. ΠΠ°Π³ΡΡΠ·ΠΈΡΠ΅ ΠΈΠ½ΡΡΡΡΠΊΡΠΈΠΈ Ρ Π²Π΅Π±-ΡΠ°ΠΉΡΠ° ΠΏΡΠΎΠΈΠ·Π²ΠΎΠ΄ΠΈΡΠ΅Π»Ρ Π΄ΠΎΠ²ΠΎΠ΄ΡΠΈΠΊΠ° ΠΈ ΠΏΠΎΡΠΌΠΎΡΡΠΈΡΠ΅, ΠΏΡΠ°Π²ΠΈΠ»ΡΠ½ΠΎ Π»ΠΈ ΠΎΠ½ ΡΡΡΠ°Π½ΠΎΠ²Π»Π΅Π½.
- ΠΡΠ»ΠΈ ΡΡΡΠ°Π³ ΠΈΠ·Π΄Π°Π΅Ρ ΡΡΠΌ ΠΈ ΠΏΠΎΠ΄ΠΏΡΡΠ³ΠΈΠ²Π°Π΅Ρ Π²Π²Π΅ΡΡ ΠΈ Π²Π½ΠΈΠ·, ΠΊΠΎΠ³Π΄Π° Π΄Π²Π΅ΡΡ Π½Π°Ρ ΠΎΠ΄ΠΈΡΡΡ Π² Π΄Π²ΠΈΠΆΠ΅Π½ΠΈΠΈ, Π·Π°ΡΡΠ½ΠΈΡΠ΅ ΠΊΡΠ΅ΠΏΠ΅ΠΆ, ΠΊΠΎΡΠΎΡΡΠΉ ΡΠ΄Π΅ΡΠΆΠΈΠ²Π°Π΅Ρ ΡΡΡΠ°Π³, ΠΊ Π΄ΠΎΠ²ΠΎΠ΄ΡΠΈΠΊΡ, ΠΊ ΠΆΠ°ΡΠΊΠ΅ ΠΈ ΠΊ ΡΡΡΡΠ°Π²Ρ, ΠΊΠΎΡΠΎΡΡΠΉ ΡΠ΄Π΅ΡΠΆΠΈΠ²Π°Π΅Ρ Π΄Π²Π΅ ΡΠ°ΡΡΠΈ ΡΡΡΠ°Π³Π° Π²ΠΌΠ΅ΡΡΠ΅.
ΠΠΎΠ³Π΄Π° ΠΏΡΠΈΡΠ»ΠΎ Π²ΡΠ΅ΠΌΡ Π·Π°ΠΌΠ΅Π½ΠΈΡΡ Π΄Π²Π΅ΡΠ½ΠΎΠΉ Π΄ΠΎΠ²ΠΎΠ΄ΡΠΈΠΊ Π΄Π»Ρ ΠΊΠΎΠΌΠΌΠ΅ΡΡΠ΅ΡΠΊΠΎΠ³ΠΎ ΠΈΡΠΏΠΎΠ»ΡΠ·ΠΎΠ²Π°Π½ΠΈΡ:
- ΠΡΠ»ΠΈ ΠΌΠ°ΡΠ»ΠΎ ΡΠ΅ΡΠ΅Ρ ΠΈΠ· Π΄ΠΎΠ²ΠΎΠ΄ΡΠΈΠΊΠ° Π΄Π²Π΅ΡΠΈ, Π΅Π³ΠΎ Π½Π΅ΠΎΠ±Ρ ΠΎΠ΄ΠΈΠΌΠΎ Π·Π°ΠΌΠ΅Π½ΠΈΡΡ.
- ΠΡΠ»ΠΈ Π΄Π²Π΅ΡΠ½ΠΎΠΉ Π΄ΠΎΠ²ΠΎΠ΄ΡΠΈΠΊ Ρ Π»ΠΎΠΏΠ°Π΅Ρ Π΄Π²Π΅ΡΡΡ ΠΈ Π½Π΅ ΠΌΠΎΠΆΠ΅Ρ Π±ΡΡΡ ΠΎΡΡΠ΅Π³ΡΠ»ΠΈΡΠΎΠ²Π°Π½, ΡΡΠΎΠ±Ρ ΡΠ΄Π΅Π»Π°ΡΡ ΡΡΠΎ ΠΈΠ½Π°ΡΠ΅, Π»ΠΈΠ±ΠΎ Π²ΡΡΠ΅ΠΊΠ»Π° ΠΆΠΈΠ΄ΠΊΠΎΡΡΡ, Π»ΠΈΠ±ΠΎ ΠΈΠ·Π½ΠΎΡΠ΅Π½Ρ ΡΠΏΠ»ΠΎΡΠ½Π΅Π½ΠΈΡ ΠΊΠ»Π°ΠΏΠ°Π½Π°. Π Π»ΡΠ±ΠΎΠΌ ΡΠ»ΡΡΠ°Π΅ Π»ΡΡΡΠ΅ Π²ΡΠ΅Π³ΠΎ Π·Π°ΠΌΠ΅Π½ΠΈΡΡ Π΅Π³ΠΎ.
- ΠΡΠ»ΠΈ Π² Π΄ΠΎΠ²ΠΎΠ΄ΡΠΈΠΊΠ΅ Π½Π΅Ρ Π½Π°ΡΡΠΆΠ΅Π½ΠΈΡ ΠΏΡΡΠΆΠΈΠ½Ρ, Π° ΡΠ΅Π³ΡΠ»ΠΈΡΠΎΠ²ΠΊΠ° Π½Π°ΡΡΠΆΠ΅Π½ΠΈΡ ΠΏΡΡΠΆΠΈΠ½Ρ Π½Π΅ ΡΠ°Π±ΠΎΡΠ°Π΅Ρ, Π·Π½Π°ΡΠΈΡ, ΠΏΡΡΠΆΠΈΠ½Π° ΡΠ»ΠΎΠΌΠ°Π½Π°, Π΄ΠΎΠ²ΠΎΠ΄ΡΠΈΠΊ
Π½Π΅ΠΎΠ±Ρ ΠΎΠ΄ΠΈΠΌΠΎ Π·Π°ΠΌΠ΅Π½ΠΈΡΡ. - ΠΡΠ»ΠΈ Ρ Π²Π°Ρ Π²ΠΎΠ·Π½ΠΈΠΊΠ»ΠΈ ΠΊΠ°ΠΊΠΈΠ΅-Π»ΠΈΠ±ΠΎ ΠΈΠ· ΡΡΠΈΡ
ΠΏΡΠΎΠ±Π»Π΅ΠΌ Ρ ΠΊΠΎΠΌΠΌΠ΅ΡΡΠ΅ΡΠΊΠΈΠΌ Π΄ΠΎΠ²ΠΎΠ΄ΡΠΈΠΊΠΎΠΌ ΠΈ Π²Ρ Ρ
ΠΎΡΠΈΡΠ΅ ΡΠ²ΠΈΠ΄Π΅ΡΡ Π²Π°ΡΠΈΠ°Π½ΡΡ Π·Π°ΠΌΠ΅Π½Ρ, ΠΏΠΎΠ·Π²ΠΎΠ½ΠΈΡΠ΅ Π½Π°ΠΌ ΠΏΠΎ ΡΠ΅Π»Π΅ΡΠΎΠ½Ρ
ΠΈΠ»ΠΈ ΠΏΠΎΡΠ΅ΡΠΈΡΠ΅ Π½Π°Ρ Π² ΠΠ½ΡΠ΅ΡΠ½Π΅ΡΠ΅, ΠΈ ΠΌΡ Π±ΡΠ΄Π΅ΠΌ ΡΠ°Π΄Ρ ΠΎΠ±ΡΡΠ΄ΠΈΡΡ Π²Π°ΡΠΈ Π²Π°ΡΠΈΠ°Π½ΡΡ!
ΠΠ±ΡΡΡΠ½Π΅Π½ΠΈΠ΅ ΠΆΠΈΠ·Π½ΠΈ High Ticket Closer
ΠΠ»Ρ Π²ΡΠ΅Ρ , ΠΊΡΠΎ Ρ ΠΎΡΠ΅Ρ ΡΡΠ°ΡΡ High Ticket Closer, ΡΡΠΎ ΠΎΡ Π²Π°ΡΡΠ²Π°Π΅Ρ ΠΎΠ±ΡΡΠ΅Π½ΠΈΠ΅, Π½Π΅ΠΎΠ±Ρ ΠΎΠ΄ΠΈΠΌΡΠ΅ Π½Π°Π²ΡΠΊΠΈ, ΠΎΠ±ΡΠ°Π· ΠΆΠΈΠ·Π½ΠΈ, ΠΏΡΠΎΠ±Π»Π΅ΠΌΡ ΠΈ ΠΏΡΠΎΡΠ΅ΡΡΠΈΠΎΠ½Π°Π»ΡΠ½ΡΠ΅ Π²ΠΎΠ·ΠΌΠΎΠΆΠ½ΠΎΡΡΠΈ Π΄Π»Ρ Π΄ΠΎΡΡΠΈΠΆΠ΅Π½ΠΈΡ ΡΡΠΏΠ΅Ρ Π° Π² ΡΡΠΎΠΉ ΠΎΠ±Π»Π°ΡΡΠΈ.
Π‘ΠΎΠ΄Π΅ΡΠΆΠ°Π½ΠΈΠ΅
- Π§ΡΠΎ Π±Π»ΠΈΠΆΠ΅ ΠΊ High Ticket?
- ΠΠ°ΠΊ ΡΡΠ°ΡΡ ΡΠ΅ΡΡΠΈΡΠΈΡΠΈΡΠΎΠ²Π°Π½Π½ΡΠΌ ΡΠΏΠ΅ΡΠΈΠ°Π»ΠΈΡΡΠΎΠΌ ΠΏΠΎ Π²ΡΡΠΎΠΊΠΎΠΌΡ ΡΡΠΎΠ²Π½Ρ ΠΏΡΠΎΠ΄Π°ΠΆ
- ΠΠ°ΠΊΠΈΠ΅ ΠΏΠ΅ΡΠ΅Π΄Π°Π²Π°Π΅ΠΌΡΠ΅ Π½Π°Π²ΡΠΊΠΈ Π½Π΅ΠΎΠ±Ρ ΠΎΠ΄ΠΈΠΌΡ, ΡΡΠΎΠ±Ρ ΡΡΠ°ΡΡ Π±Π»ΠΈΠΆΠ΅ ΠΊ ΡΠΏΠ΅ΡΠΈΠ°Π»ΠΈΡΡΡ ΠΏΠΎ Π²ΡΡΠΎΠΊΠΎΠΌΡ ΡΡΠΎΠ²Π½Ρ?
- ΠΠ°ΠΊΠΈΠΌ ΠΎΠ±ΡΠ°Π·ΠΎΠΌ Π΄ΠΎΠ²ΠΎΠ΄ΡΠΈΠΊΠΈ Ρ Π²ΡΡΠΎΠΊΠΈΠΌΠΈ Π±ΠΈΠ»Π΅ΡΠ°ΠΌΠΈ Π½Π°Ρ ΠΎΠ΄ΡΡ ΡΠ°Π±ΠΎΡΡ
- ΠΠ°ΠΊ ΠΌΠΎΠΆΠ½ΠΎ Π½Π°Π½ΡΡΡ Π΄ΠΎΠ²ΠΎΠ΄ΡΠΈΠΊΠΎΠ² Ρ Π²ΡΡΠΎΠΊΠΈΠΌΠΈ ΡΡΠ°Π²ΠΊΠ°ΠΌΠΈ?
- ΠΡΠ΄ΡΡΠ΅Π΅ Π·Π°ΠΊΡΡΡΠΈΡ Ρ Π²ΡΡΠΎΠΊΠΈΠΌΠΈ Π±ΠΈΠ»Π΅ΡΠ°ΠΌΠΈ
Π£ΡΡΡΠΎΠΉΡΡΠ²ΠΎ Π·Π°ΠΊΡΡΡΠΈΡ Ρ Π²ΡΡΠΎΠΊΠΈΠΌΠΈ Π±ΠΈΠ»Π΅ΡΠ°ΠΌΠΈ ΠΎΠ±Π»Π΅Π³ΡΠ°Π΅Ρ ΡΠΎΠ²Π΅ΡΡΠ΅Π½ΠΈΠ΅ ΡΠ΄Π΅Π»ΠΎΠΊ ΠΏΠΎ ΠΏΡΠ΅ΠΌΠΈΠ°Π»ΡΠ½ΠΎΠΌΡ ΠΏΡΠΎΠ΄ΡΠΊΡΡ ΠΈΠ»ΠΈ ΡΡΠ»ΡΠ³Π΅ ΠΏΠΎ ΡΠ΅Π»Π΅ΡΠΎΠ½Ρ.ΠΠΎ Π±Π»ΠΈΠ·ΠΊΠΈΠ΅ Π»ΡΠ΄ΠΈ Π½Π΅ Π²Π΅Π΄ΡΡ ΡΠ΅Π±Ρ, Π½Π΅ ΠΎΠ΄Π΅Π²Π°ΡΡΡΡ ΠΈ Π½Π΅ ΡΠ°Π·Π³ΠΎΠ²Π°ΡΠΈΠ²Π°ΡΡ, ΠΊΠ°ΠΊ ΡΡΠ°Π΄ΠΈΡΠΈΠΎΠ½Π½ΡΠ΅ ΠΏΡΠΎΠ΄Π°Π²ΡΡ. ΠΠ½ΠΈ Π½Π΅ ΡΠΎΠΎΡΠ²Π΅ΡΡΡΠ²ΡΡΡ ΠΎΠ±ΡΠ΅ΠΏΡΠΈΠ½ΡΡΠΎΠΌΡ ΠΏΡΠ΅Π΄ΡΡΠ°Π²Π»Π΅Π½ΠΈΡ ΠΎΠ± Π°Π³ΡΠ΅ΡΡΠΈΠ²Π½ΠΎΠΌ, Π½Π°ΠΏΠΎΡΠΈΡΡΠΎΠΌ ΠΏΡΠΎΠ΄Π°Π²ΡΠ΅, ΠΊΠΎΡΠΎΡΡΠΉ ΠΏΡΠΈΡΠ²ΠΎΡΡΠ΅ΡΡΡ, Π±ΡΠ΄ΡΠΎ Π·Π°ΠΈΠ½ΡΠ΅ΡΠ΅ΡΠΎΠ²Π°Π½ Π² Π²Π°Ρ, ΠΏΡΠΎΡΡΠΎ ΡΡΠΎΠ±Ρ ΠΏΡΠΎΠ΄Π°ΡΡ.
ΠΠ½ΠΈ Π½Π΅ Π³ΠΎΠ½ΡΡΡΡ Π·Π° ΠΏΠΎΡΠ΅Π½ΡΠΈΠ°Π»ΡΠ½ΡΠΌΠΈ ΠΊΠ»ΠΈΠ΅Π½ΡΠ°ΠΌΠΈ ΠΈΠ»ΠΈ Ρ ΠΎΠ»ΠΎΠ΄Π½ΡΠΌΠΈ ΠΊΠ»ΠΈΠ΅Π½ΡΠ°ΠΌΠΈ, ΡΡΠΎΠ±Ρ ΠΏΠΎΠΏΡΡΠ°ΡΡΡΡ ΠΏΡΠΎΠ΄Π°ΡΡ Π»ΡΠ΄ΡΠΌ ΡΠΎ, ΡΡΠΎ ΠΎΠ½ΠΈ Π½Π΅ Ρ ΠΎΡΡΡ ΠΏΠΎΠΊΡΠΏΠ°ΡΡ. ΠΠ½ΠΈ ΡΠ°ΠΊΠΆΠ΅ Π½Π΅ ΡΠΎΠ²Π΅ΡΡΠ°ΡΡ ΡΠ°ΡΠΏΡΠΎΠ΄Π°ΠΆΠΈ ΠΎΡ Π΄Π²Π΅ΡΠΈ ΠΊ Π΄Π²Π΅ΡΠΈ ΠΈΠ»ΠΈ Π΅Π·Π΄ΡΡ ΠΈΠ· ΠΎΡΠΈΡΠ° Π² ΠΎΡΠΈΡ, ΠΈΠ· Π³ΠΎΡΠΎΠ΄Π° Π² Π³ΠΎΡΠΎΠ΄ Π½Π° ΡΠ²ΠΎΠ΅ΠΉ ΠΌΠ°ΡΠΈΠ½Π΅, ΡΡΠΎΠ±Ρ ΡΠ΄Π΅Π»Π°ΡΡ ΡΠΎΡΠ³ΠΎΠ²ΡΠ΅ ΠΏΡΠ΅Π·Π΅Π½ΡΠ°ΡΠΈΠΈ.
A High Ticket Closer β’ — ΡΡΠΎ ΠΏΡΠΎΡΠ΅ΡΡΠΈΠΎΠ½Π°Π» ΠΏΠΎ ΠΏΡΠΎΠ΄Π°ΠΆΠ°ΠΌ, ΠΊΠΎΡΠΎΡΡΠΉ ΠΏΡΠ΅Π΄Π»Π°Π³Π°Π΅Ρ ΡΠ΅ΡΠ΅Π½ΠΈΡ ΠΏΡΠΎΠ±Π»Π΅ΠΌ.Click To Tweet
ΠΠΎΠ΄ΠΎΠ±Π½ΠΎ ΡΠΎΠΌΡ, ΠΊΠ°ΠΊ Π²ΡΠ°Ρ Π²ΡΠΏΠΈΡΡΠ²Π°Π΅Ρ ΡΠ΅ΡΠ΅ΠΏΡ, ΡΠΎΠ»ΡΠΊΠΎ Π΅ΡΠ»ΠΈ ΠΎΠ½ Π½ΡΠΆΠ΅Π½ ΠΏΠ°ΡΠΈΠ΅Π½ΡΡ, Π±ΠΎΠ»Π΅Π΅ Π±Π»ΠΈΠ·ΠΊΠΈΠΉ Π½Π΅ ΠΏΡΠΎΠ΄Π°ΡΡ ΠΏΠΎΡΠ΅Π½ΡΠΈΠ°Π»ΡΠ½ΠΎΠΌΡ ΠΊΠ»ΠΈΠ΅Π½ΡΡ ΠΏΡΠ΅Π΄Π»ΠΎΠΆΠ΅Π½ΠΈΠ΅, Π΅ΡΠ»ΠΈ ΠΎΠ½ Π½Π΅ ΠΏΠΎΠ΄Ρ ΠΎΠ΄ΠΈΡ.
Π§ΡΠΎ Π΄Π΅Π»Π°Π΅Ρ Closer High Ticket Closer?
A High Ticket Closer ΠΏΡΠΈΠ½ΠΈΠΌΠ°Π΅Ρ Π²Ρ ΠΎΠ΄ΡΡΠΈΠ΅ Π·Π²ΠΎΠ½ΠΊΠΈ Π½Π° ΠΏΡΠΎΠ΄ΡΠΊΡΡ ΠΈΠ»ΠΈ ΡΡΠ»ΡΠ³ΠΈ Ρ Π²ΡΡΠΎΠΊΠΎΠΉ ΡΠ΅Π½ΠΎΠΉ Π² Π»ΡΠ±ΠΎΠΉ ΠΎΡΡΠ°ΡΠ»ΠΈ ΠΈ ΡΠΊΡΠ΅ΠΏΠ»ΡΠ΅Ρ ΡΠ΄Π΅Π»ΠΊΡ. Π¦Π΅Π½Π° Π½Π° Π±ΠΈΠ»Π΅ΡΡ Ρ Π²ΡΡΠΎΠΊΠΎΠΉ ΡΠΊΠΈΠ΄ΠΊΠΎΠΉ ΡΠΎΡΡΠ°Π²Π»ΡΠ΅Ρ ΠΎΡ 3000 Π΄ΠΎ 1000000 Π΄ΠΎΠ»Π»Π°ΡΠΎΠ² ΠΈ Π±ΠΎΠ»Π΅Π΅. Π Π΄ΠΎΡΠΎΠ³ΠΎΡΡΠΎΡΡΠΈΠΌ ΠΏΡΠ΅Π΄Π»ΠΎΠΆΠ΅Π½ΠΈΡΠΌ, ΡΡΠ΅Π±ΡΡΡΠΈΠΌ Π±ΠΎΠ»Π΅Π΅ Π²ΡΡΠΎΠΊΠΎΠΉ ΡΠ΅Π½Ρ, ΠΎΡΠ½ΠΎΡΡΡΡΡ ΠΊΠΎΡΡΠΈΠ½Π³ΠΎΠ²ΡΠ΅ ΠΏΡΠΎΠ³ΡΠ°ΠΌΠΌΡ, ΠΊΡΡΡΡ, ΠΌΠ°ΡΠΊΠ΅ΡΠΈΠ½Π³ΠΎΠ²ΡΠ΅ ΠΊΠ°ΠΌΠΏΠ°Π½ΠΈΠΈ, ΠΏΠ°ΠΊΠ΅ΡΡ Π²Π΅Π±-Π΄ΠΈΠ·Π°ΠΉΠ½Π° ΠΈΠ»ΠΈ ΡΠΎΠ³Π»Π°ΡΠ΅Π½ΠΈΡ ΠΎ Π΄Π΅Π»ΠΎΠ²ΠΎΠΌ ΡΠΎΡΡΡΠ΄Π½ΠΈΡΠ΅ΡΡΠ²Π΅.
ΠΠΎΠ²ΠΎΠ΄ΡΠΈΠΊ Ρ Π²ΡΡΠΎΠΊΠΈΠΌ Π±ΠΈΠ»Π΅ΡΠΎΠΌ ΠΈΠΌΠ΅Π΅Ρ Π±ΠΎΠ»ΡΡΡΡ Π°Π²ΡΠΎΠ½ΠΎΠΌΠΈΡ Π² ΡΠ²ΠΎΠ΅ΠΉ ΡΠ°Π±ΠΎΡΠ΅ΠΉ ΡΠΈΡΡΠ°ΡΠΈΠΈ. Π ΠΊΠ°ΡΠ΅ΡΡΠ²Π΅ Π΄ΠΎΠ²ΠΎΠ΄ΡΠΈΠΊΠ° Π²Ρ ΠΌΠΎΠΆΠ΅ΡΠ΅ Π²ΡΠ±ΡΠ°ΡΡ, Π½Π° ΠΊΠΎΠ³ΠΎ Π·Π°ΠΊΡΡΠ²Π°ΡΡ ΡΠ΄Π΅Π»ΠΊΠΈ ΠΈ Π² ΠΊΠ°ΠΊΠΈΠ΅ ΡΠ°ΡΡ Π²Ρ Ρ ΠΎΡΠΈΡΠ΅ ΡΠ°Π±ΠΎΡΠ°ΡΡ. ΠΡ ΠΌΠΎΠΆΠ΅ΡΠ΅ Π·Π°Π²Π΅ΡΡΠΈΡΡ ΡΠ°Π±ΠΎΡΡ Π½Π° ΠΏΠΎΠ»Π½ΡΡ ΡΡΠ°Π²ΠΊΡ ΠΈΠ»ΠΈ ΡΠΎΠ»ΡΠΊΠΎ Π½Π° Π½Π΅ΡΠΊΠΎΠ»ΡΠΊΠΎ ΡΠ°ΡΠΎΠ² Π² Π½Π΅Π΄Π΅Π»Ρ, ΠΏΡΠΎΠ΄ΠΎΠ»ΠΆΠ°Ρ ΡΠ°Π±ΠΎΡΠ°ΡΡ Π½Π° ΠΏΠΎΡΡΠΎΡΠ½Π½ΠΎΠΉ ΡΠ°Π±ΠΎΡΠ΅, ΠΊΠΎΡΠΎΡΠ°Ρ ΠΌΠΎΠΆΠ΅Ρ ΠΈΠΌΠ΅ΡΡ ΠΈΠ»ΠΈ Π½Π΅ ΠΈΠΌΠ΅ΡΡ ΠΎΡΠ½ΠΎΡΠ΅Π½ΠΈΡ ΠΊ ΠΏΡΠΎΠ΄Π°ΠΆΠ°ΠΌ.
ΠΡΠ° ΠΏΡΠΎΡΠ΅ΡΡΠΈΡ ΠΏΡΠΈΠ²Π»Π΅ΠΊΠ°Π΅Ρ Π»ΡΠ΄Π΅ΠΉ, ΠΊΠΎΡΠΎΡΡΠ΅ Ρ ΠΎΡΡΡ Π±ΠΎΠ»ΡΡΠ΅ΠΉ Π³ΠΈΠ±ΠΊΠΎΡΡΠΈ Π² ΡΠ²ΠΎΠ΅ΠΉ ΠΊΠ°ΡΡΠ΅ΡΠ΅ Π² ΠΎΡΠ½ΠΎΡΠ΅Π½ΠΈΠΈ ΡΠΎΠ³ΠΎ, Π³Π΄Π΅ ΠΎΠ½ΠΈ ΡΠ°Π±ΠΎΡΠ°ΡΡ, ΠΊΠ°ΠΊ ΡΠ°ΡΡΠΎ ΠΈ Π½Π° ΠΊΠΎΠ³ΠΎ ΠΎΠ½ΠΈ ΡΠ°Π±ΠΎΡΠ°ΡΡ. ΠΠΎ ΠΌΠ΅ΡΠ΅ ΡΠΎΠ³ΠΎ, ΠΊΠ°ΠΊ ΡΠ΅Π½Π΄Π΅Π½ΡΠΈΡ ΡΠΌΠ΅ΡΠ°Π΅ΡΡΡ ΠΎΡ ΡΠ°Π±ΠΎΡΡ Π½Π° Π½Π°ΡΠ°Π»ΡΠ½ΠΈΠΊΠ° ΠΊ ΡΠ°Π±ΠΎΡΠ΅ Π½Π° ΠΏΠΎΡΡΠΎΡΠ½Π½ΡΡ ΡΠ°Π±ΠΎΡΠΈΡ ΠΌΠ΅ΡΡΠ°Ρ , Π½Π°Π±ΠΈΡΠ°ΡΡ ΠΏΠΎΠΏΡΠ»ΡΡΠ½ΠΎΡΡΡ ΡΠ°ΠΊΠΈΠ΅ ΠΏΡΠΎΡΠ΅ΡΡΠΈΠΈ, ΠΊΠ°ΠΊ Π·Π°ΠΊΡΡΡΠΈΠ΅.
ΠΠ°ΠΊΠ»ΡΡΠΈΡΠ΅Π»ΡΠ½ΡΠΉ ΠΏΡΠΈΠ·ΡΠ² ΠΊ ΠΌΠΈΠ½ΠΈΠΌΠ°Π»ΠΈΠ·ΠΌΡ ΠΈ ΠΌΠΈΠ½ΠΈΠΌΠ°Π»ΠΈΡΡΡΠΊΠΎΠΉ ΠΆΠΈΠ·Π½ΠΈ. ΠΡ ΡΠ°Π±ΠΎΡΠ°Π΅ΡΠ΅ Π½Π΅ ΠΏΠΎ Π½Π°ΠΉΠΌΡ, ΠΈ Π²Π°ΠΌ Π½Π΅ Π½ΡΠΆΠ½ΠΎ Π²ΠΊΠ»Π°Π΄ΡΠ²Π°ΡΡ Π΄Π΅Π½ΡΠ³ΠΈ ΠΈ Π²ΡΠ΅ΠΌΡ, Π½Π΅ΠΎΠ±Ρ ΠΎΠ΄ΠΈΠΌΡΠ΅ Π΄Π»Ρ Π±ΠΎΠ»ΡΡΠΈΠ½ΡΡΠ²Π° Π½Π°ΡΠΈΠ½Π°ΡΡΠΈΡ ΠΏΡΠ΅Π΄ΠΏΡΠΈΡΡΠΈΠΉ. ΠΠΎΠ»Π΅Π΅ Π±Π»ΠΈΠ·ΠΊΠΈΠΉ ΠΎΠ±ΡΠ°Π· ΠΆΠΈΠ·Π½ΠΈ — ΡΡΠΎ ΠΏΡΠΎΡΡΠ°Ρ Π±ΠΈΠ·Π½Π΅Ρ-ΠΌΠΎΠ΄Π΅Π»Ρ.
A High Ticket Closer ΡΠ°Π±ΠΎΡΠ°Π΅Ρ ΠΈΠ· Π΄ΠΎΠΌΠ°, ΠΊΠΎΡΠΎΡΡΠΉ ΠΌΠΎΠΆΠ΅Ρ Π±ΡΡΡ Π² Π»ΡΠ±ΠΎΠΌ Π³ΠΎΡΠΎΠ΄Π΅, Π² Π»ΡΠ±ΠΎΠΉ ΡΡΡΠ°Π½Π΅ ΠΌΠΈΡΠ°, ΡΠΎ ΡΡΠ°Π±ΠΈΠ»ΡΠ½ΡΠΌ ΠΈΠ½ΡΠ΅ΡΠ½Π΅ΡΠΎΠΌ ΠΈ ΡΠ΅Π»Π΅ΡΠΎΠ½Π½ΠΎΠΉ ΡΠ²ΡΠ·ΡΡ. ΠΡ ΠΌΠΎΠΆΠ΅ΡΠ΅ ΠΆΠΈΡΡ Π² Π‘Π¨Π ΠΈ ΠΏΡΠ΅Π΄Π»ΠΎΠΆΠΈΡΡ ΠΏΠΎΡΠ΅Π½ΡΠΈΠ°Π»ΡΠ½ΠΎΠΌΡ ΠΊΠ»ΠΈΠ΅Π½ΡΡ, ΠΆΠΈΠ²ΡΡΠ΅ΠΌΡ Π² Π―ΠΏΠΎΠ½ΠΈΠΈ, ΠΏΡΠΎΠΉΡΠΈ ΠΎΠ½Π»Π°ΠΉΠ½-ΠΊΡΡΡ, ΠΏΡΠΈΠ½Π°Π΄Π»Π΅ΠΆΠ°ΡΠΈΠΉ Π±ΠΈΠ·Π½Π΅ΡΡ Π² ΠΠ²ΡΠΎΠΏΠ΅.
ΠΠΎΠΊΠ° Π²Ρ Π³ΠΎΠ²ΠΎΡΠΈΡΠ΅ Π½Π° ΡΠΎΠΌ ΠΆΠ΅ ΡΠ·ΡΠΊΠ΅, ΡΡΠΎ ΠΈ ΠΏΠΎΡΠ΅Π½ΡΠΈΠ°Π»ΡΠ½ΡΠΉ ΠΊΠ»ΠΈΠ΅Π½Ρ, Π²Ρ ΠΌΠΎΠΆΠ΅ΡΠ΅ Π·Π°ΠΊΡΡΡΡ ΠΏΠΎΡΠ΅Π½ΡΠΈΠ°Π»ΡΠ½ΡΡ ΠΊΠ»ΠΈΠ΅Π½ΡΠΎΠ², ΠΆΠΈΠ²ΡΡΠΈΡ Π² Π»ΡΠ±ΠΎΠΉ ΡΠΎΡΠΊΠ΅ ΠΌΠΈΡΠ°.Π ΠΈΠ·-Π·Π° Π²ΡΡΠΎΠΊΠΈΡ ΡΠ΅Π½ ΡΡΠ°Π½Π·Π°ΠΊΡΠΈΠΉ Π΄ΠΎΠ²ΠΎΠ΄ΡΠΈΠΊΡ Π½ΡΠΆΠ½ΠΎ ΡΠ°Π±ΠΎΡΠ°ΡΡ ΡΠΎΠ»ΡΠΊΠΎ Ρ Π½Π΅Π±ΠΎΠ»ΡΡΠΈΠΌ ΠΊΠΎΠ»ΠΈΡΠ΅ΡΡΠ²ΠΎΠΌ ΠΊΠ»ΠΈΠ΅Π½ΡΠΎΠ² (ΠΈΠ»ΠΈ Π΄Π°ΠΆΠ΅ Π·Π°ΠΊΡΡΠ²Π°ΡΡ ΡΠΎΠ»ΡΠΊΠΎ Π΄Π»Ρ ΠΎΠ΄Π½ΠΎΠ³ΠΎ ΠΊΠ»ΠΈΠ΅Π½ΡΠ°), ΡΡΠΎΠ±Ρ ΠΏΠΎΠ»ΡΡΠ°ΡΡ Ρ ΠΎΡΠΎΡΠΈΠΉ Π΄ΠΎΡ ΠΎΠ΄.
Π§ΡΠΎ Π΄Π΅Π»Π°ΡΡ, Π΅ΡΠ»ΠΈ Π²Ρ Π½Π΅Π½Π°Π²ΠΈΠ΄ΠΈΡΠ΅ ΠΏΡΠΎΠ΄Π°ΠΆΠΈ ΠΈ ΠΏΡΠΎΠ΄Π°ΠΆΠΈ?
ΠΠ°ΠΊΡΡΡΠΈΠ΅ — ΡΡΠΎ Π½Π΅ ΠΏΡΠΎΠ΄Π°ΠΆΠ°. ΠΠΎΠ²ΠΎΠ΄ΡΠΈΠΊΠ°ΠΌ, Π½Π΅ ΠΈΠΌΠ΅ΡΡΠΈΠΌ ΠΎΠΏΡΡΠ° ΠΏΡΠΎΠ΄Π°ΠΆ, Π»Π΅Π³ΡΠ΅ Π½Π°ΡΡΠΈΡΡΡΡ Π±ΡΡΡ Π±Π»ΠΈΠΆΠ΅, ΠΏΠΎΡΠΎΠΌΡ ΡΡΠΎ ΠΈΠΌ Π½Π΅ Π½ΡΠΆΠ½ΠΎ Β«ΡΠ°Π·ΡΡΠΈΠ²Π°ΡΡΒ» Π²ΡΠ΅ ΡΡΠ°Π΄ΠΈΡΠΈΠΎΠ½Π½ΡΠ΅ ΠΌΠ΅ΡΠΎΠ΄Ρ ΠΏΡΠΎΠ΄Π°ΠΆ.
ΠΠ±ΡΡΠ½ΡΠ΅ ΠΌΠ΅ΡΠΎΠ΄Ρ ΠΏΡΠΎΠ΄Π°ΠΆ ΡΡΠ°Ρ Π²Π°Ρ, ΡΡΠΎ ΠΊΠΎΠ½Π΅ΡΠ½ΠΎΠΉ ΡΠ΅Π»ΡΡ ΡΠ²Π»ΡΠ΅ΡΡΡ ΠΏΠΎΠ»ΡΡΠ΅Π½ΠΈΠ΅ ΠΏΡΠΎΠ΄Π°ΠΆΠΈ, Π½ΠΎ Π±ΠΎΠ»Π΅Π΅ Π±Π»ΠΈΠ·ΠΊΠΈΠ΅ ΠΊ Π½Π΅ΠΉ Π½Π΅ ΠΏΡΠΈΠ²ΡΠ·Π°Π½Ρ.ΠΠΎ ΠΌΠ΅ΡΠ΅ ΠΏΡΠΈΠ±Π»ΠΈΠΆΠ΅Π½ΠΈΡ Π²Ρ Π±ΠΎΠ»ΡΡΠ΅ ΡΠΎΡΡΠ΅Π΄ΠΎΡΠ°ΡΠΈΠ²Π°Π΅ΡΠ΅ΡΡ Π½Π° ΠΏΠΎΡΡΠ΅Π±Π½ΠΎΡΡΡΡ ΠΏΠΎΡΠ΅Π½ΡΠΈΠ°Π»ΡΠ½ΠΎΠ³ΠΎ ΠΊΠ»ΠΈΠ΅Π½ΡΠ° ΠΈ ΡΠ±Π΅Π΄ΠΈΡΠ΅ΡΡ, ΡΡΠΎ ΠΎΠ½ ΠΏΠΎΠ΄Ρ ΠΎΠ΄ΠΈΡ Π΄Π»Ρ Π²Π°ΡΠ΅Π³ΠΎ ΠΏΡΠΎΠ΄ΡΠΊΡΠ° ΠΈΠ»ΠΈ ΡΡΠ»ΡΠ³ΠΈ.
Π Π½Π΅ΠΊΠΎΡΠΎΡΡΡ ΡΠΈΡΡΠ°ΡΠΈΡΡ Π΄ΠΎΠ²ΠΎΠ΄ΡΠΈΠΊΠΈ, ΠΊΠΎΡΠΎΡΡΠ΅ ΠΏΡΠΎΠ΄Π°ΡΡ ΠΏΡΠΎΠ³ΡΠ°ΠΌΠΌΡ ΠΈΠ»ΠΈ ΠΊΡΡΡΡ ΠΊΠΎΡΡΠΈΠ½Π³Π°, Π½Π°Π·ΡΠ²Π°ΡΡΡΡ Β«ΠΊΠΎΡΡΠ°ΠΌΠΈ ΠΏΠΎ ΡΠ΅Π³ΠΈΡΡΡΠ°ΡΠΈΠΈΒ», ΠΏΠΎΡΠΎΠΌΡ ΡΡΠΎ Π²Ρ Π±ΠΎΠ»ΡΡΠ΅ ΠΏΠΎΡ ΠΎΠΆΠΈ Π½Π° ΡΡΠ΅Π½Π΅ΡΠΎΠ², ΡΠ΅ΠΌ Π½Π° ΠΏΡΠΎΠ΄Π°Π²ΡΠΎΠ². ΠΡ Π·Π°Π΄Π°Π΅ΡΠ΅ Π²ΠΎΠΏΡΠΎΡΡ, ΡΡΠΎΠ±Ρ Π½Π°ΠΉΡΠΈ Π±ΠΎΠ»Π΅Π²ΡΠ΅ ΡΠΎΡΠΊΠΈ, ΡΠ΅Π»ΠΈ ΠΈ ΠΌΠ΅ΡΡΡ ΠΏΠΎΡΠ΅Π½ΡΠΈΠ°Π»ΡΠ½ΠΎΠ³ΠΎ ΠΊΠ»ΠΈΠ΅Π½ΡΠ° ΠΈ ΠΏΠΎΠΊΠ°Π·Π°ΡΡ ΠΈΠΌ, ΠΊΠ°ΠΊ ΡΡΠ° ΠΏΡΠΎΠ³ΡΠ°ΠΌΠΌΠ° ΠΈΠ»ΠΈ ΠΊΡΡΡ ΠΏΡΠΈΠ²Π΅Π΄Π΅Ρ Π΅Π³ΠΎ ΠΊ ΡΡΠΎΠΉ ΡΠ΅Π»ΠΈ.
ΠΠΎΠΌΠΏΠ°Π½ΠΈΡ High Ticket Closer Ρ ΡΠ½ΡΡΠ·ΠΈΠ°Π·ΠΌΠΎΠΌ ΠΏΠΎΠΌΠΎΠ³Π°Π΅Ρ Π»ΡΠ΄ΡΠΌ.
Π§Π΅ΠΌ ΠΎΠ½ΠΈ ΠΎΡΠ»ΠΈΡΠ°ΡΡΡΡ ΠΎΡ Π΄ΡΡΠ³ΠΈΡ ΠΏΡΠΎΠ΄Π°Π²ΡΠΎΠ²
ΠΠΎΠ³Π΄Π° Π»ΡΠ΄ΠΈ ΡΠ»ΡΡΠ°Ρ ΡΠ»ΠΎΠ²ΠΎ Β«ΠΏΡΠΎΠ΄Π°Π²Π΅ΡΒ», ΠΎΠ½ΠΈ ΠΎΠ±ΡΡΠ½ΠΎ Π½Π°ΠΏΠΎΠΌΠΈΠ½Π°ΡΡ ΠΎ ΡΡΠ΅Π·ΠΌΠ΅ΡΠ½ΡΡ ΠΏΠΎΡΠ»Π΅Π΄ΡΡΡΠΈΡ Π·Π²ΠΎΠ½ΠΊΠ°Ρ ΠΎΡ ΠΏΡΠΎΠ΄Π°Π²ΡΠΎΠ², ΠΊΠΎΡΠΎΡΡΠ΅ ΠΏΡΠΎΠ²Π΅ΡΡΡΡ, ΠΏΠ΅ΡΠ΅Π΄ΡΠΌΠ°Π»ΠΈ Π»ΠΈ Π²Ρ. ΠΠ»ΠΈ ΠΎΠ½ΠΈ Π΄ΡΠΌΠ°ΡΡ ΠΎ Ρ ΠΈΡΡΡΡ Π»ΡΠ΄ΡΡ , ΠΊΠΎΡΠΎΡΡΠ΅ ΠΈΡΠΏΠΎΠ»ΡΠ·ΡΡΡ Π·Π°ΠΊΡΠ»ΠΈΡΠ½ΡΡ ΡΠ°ΠΊΡΠΈΠΊΡ ΠΏΡΠΎΠ΄Π°ΠΆ, ΡΡΠΎΠ±Ρ Π΄ΠΎΠ±ΠΈΡΡΡΡ ΠΏΡΠΎΠ΄Π°ΠΆΠΈ.
Π ΠΎΠ½ΠΈ Π±ΠΎΡΡΡΡ, ΡΡΠΎ ΠΈΡ Π·Π°ΡΡΠ°Π²ΡΡ ΡΠΎΠ²Π΅ΡΡΠΈΡΡ ΠΏΠΎΠΊΡΠΏΠΊΡ, ΠΎ ΠΊΠΎΡΠΎΡΠΎΠΉ ΠΎΠ½ΠΈ ΠΏΠΎΡΠΎΠΌ ΠΏΠΎΠΆΠ°Π»Π΅ΡΡ.
High Ticket Closers β’ — ΡΡΠΎ ΠΏΡΠΎΡΠ΅ΡΡΠΈΠΎΠ½Π°Π»Ρ Π² ΠΎΠ±Π»Π°ΡΡΠΈ ΠΏΡΠΎΠ΄Π°ΠΆ, ΠΊΠΎΡΠΎΡΡΠ΅ Π½Π΅ ΠΎΡΡΠ°ΡΠ½Π½ΠΎ Π½ΡΠΆΠ΄Π°ΡΡΡΡ Π² ΠΏΡΠΎΠ΄Π°ΠΆΠ΅. ΠΡ ΡΠΏΠΎΠΊΠΎΠΉΠ½ΡΠ΅, Π½Π΅ΠΉΡΡΠ°Π»ΡΠ½ΡΠ΅ ΡΠ΅ΡΠ°ΡΠ΅Π»ΠΈ ΠΏΡΠΎΠ±Π»Π΅ΠΌ, ΡΠ΅Π»Ρ ΠΊΠΎΡΠΎΡΡΡ — ΠΏΠΎΠΌΠΎΡΡ Π»ΡΠ΄ΡΠΌ ΡΠ»ΡΡΡΠΈΡΡ ΡΠ²ΠΎΡ ΠΆΠΈΠ·Π½Ρ.ΠΠΎΠ³Π΄Π° Π²Ρ ΡΠ°Π·Π³ΠΎΠ²Π°ΡΠΈΠ²Π°Π΅ΡΠ΅ Ρ ΠΏΠΎΡΠ΅Π½ΡΠΈΠ°Π»ΡΠ½ΡΠΌ ΠΊΠ»ΠΈΠ΅Π½ΡΠΎΠΌ, Π²Π°ΡΠ° ΡΠ΅Π»Ρ — Π²ΡΡΡΠ½ΠΈΡΡ, ΠΏΠΎΠ΄Ρ ΠΎΠ΄ΠΈΡ Π»ΠΈ ΠΈΠΌ ΠΏΡΠΎΠ΄ΡΠΊΡ.
ΠΡΠ΅ ΠΎΠ΄Π½ΠΎ ΠΎΡΠ»ΠΈΡΠΈΠ΅ ΡΠΎΡΡΠΎΠΈΡ Π² ΡΠΎΠΌ, ΡΡΠΎ Π΄ΠΎΠ²ΠΎΠ΄ΡΠΈΠΊΠΈ Π½Π΅ Π³ΠΎΠ½ΡΡΡΡ Π·Π° ΠΏΠ΅ΡΡΠΏΠ΅ΠΊΡΠΈΠ²Π°ΠΌΠΈ. ΠΠΎΡΠ΅Π½ΡΠΈΠ°Π»ΡΠ½ΡΠΉ ΠΊΠ»ΠΈΠ΅Π½Ρ Π·Π°ΠΊΠ°Π·Π°Π» Π·Π²ΠΎΠ½ΠΎΠΊ Ρ Π±Π»ΠΈΠΆΠ΅, ΠΏΠΎΡΠΎΠΌΡ ΡΡΠΎ ΠΎΠ½ΠΈ ΡΠ·Π½Π°Π»ΠΈ ΠΎ ΠΏΡΠ΅ΠΌΠΈΠ°Π»ΡΠ½ΠΎΠΌ ΠΏΡΠ΅Π΄Π»ΠΎΠΆΠ΅Π½ΠΈΠΈ ΠΈΠ· Π²Π΅Π±ΠΈΠ½Π°ΡΠ° ΠΈΠ»ΠΈ Π²Π΅Π±-ΡΠ°ΠΉΡΠ°. ΠΠΎ ΠΏΠΎΡΠ»Π΅ ΠΏΡΠΎΡΠΌΠΎΡΡΠ° Π²Π΅Π±ΠΈΠ½Π°ΡΠ° Π»ΡΠ΄ΠΈ ΡΠ΅Π΄ΠΊΠΎ ΠΏΠΎΠΊΡΠΏΠ°ΡΡ Π±ΠΎΠ»ΡΡΠΈΠ΅ Π±ΠΈΠ»Π΅ΡΡ.
ΠΡΠΎ ΠΌΠΎΠΌΠ΅Π½Ρ, ΠΊΠΎΠ³Π΄Π° Π½Π° ΠΊΠ°ΡΡΠΈΠ½ΠΊΠ΅ ΠΏΠΎΡΠ²Π»ΡΠ΅ΡΡΡ Π±ΠΎΠ»Π΅Π΅ Π±Π»ΠΈΠ·ΠΊΠΈΠΉ ΠΎΠ±ΡΠ΅ΠΊΡ. Π£ ΠΏΠΎΡΠ΅Π½ΡΠΈΠ°Π»ΡΠ½ΠΎΠ³ΠΎ ΠΊΠ»ΠΈΠ΅Π½ΡΠ° Π΅ΡΡΡ ΠΏΡΠΎΠ±Π»Π΅ΠΌΠ°, ΠΎΠ½ ΡΡΠΈΡΠ°Π΅Ρ, ΡΡΠΎ ΠΏΡΠ΅Π΄Π»ΠΎΠΆΠ΅Π½ΠΈΠ΅ ΡΠ²Π»ΡΠ΅ΡΡΡ ΠΎΡΠ²Π΅ΡΠΎΠΌ Π½Π° ΠΏΡΠΎΠ±Π»Π΅ΠΌΡ, ΠΈ Π·Π°ΠΊΠ°Π·Π°Π» Π·Π²ΠΎΠ½ΠΎΠΊ Ρ Π΄ΠΎΠ²ΠΎΠ΄ΡΠΈΠΊΠΎΠΌ.Π ΡΠΎΠΌΡ Π²ΡΠ΅ΠΌΠ΅Π½ΠΈ, ΠΊΠΎΠ³Π΄Π° ΠΎΠ½ΠΈ ΡΠ°Π·Π³ΠΎΠ²Π°ΡΠΈΠ²Π°ΡΡ Ρ Π²Π°ΠΌΠΈ ΠΏΠΎ ΡΠ΅Π»Π΅ΡΠΎΠ½Ρ, ΠΎΠ½ΠΈ ΡΠΆΠ΅ Π·Π°ΠΈΠ½ΡΠ΅ΡΠ΅ΡΠΎΠ²Π°Π½Ρ Π² ΠΏΡΠ΅Π΄Π»ΠΎΠΆΠ΅Π½ΠΈΠΈ.
Π§Π΅ΠΌ Π±Π»ΠΈΠΆΠ΅ Π·Π°Π΄Π°ΡΠ° — Π²ΡΡΠ»ΡΡΠ°ΡΡ ΠΏΠΎΡΠ΅Π½ΡΠΈΠ°Π»ΡΠ½ΠΎΠ³ΠΎ ΠΊΠ»ΠΈΠ΅Π½ΡΠ°, ΡΡΠΎΠ±Ρ ΠΎΠ±Π»Π΅Π³ΡΠΈΡΡ ΡΠ΅ΡΠ΅Π½ΠΈΠ΅. ΠΠ½ΠΈ ΠΎΠ±ΡΡΠ΅Π½Ρ ΡΠΏΡΠ°Π²Π»ΡΡΡΡΡ Ρ ΡΠ°ΠΌΡΠΌΠΈ ΡΠ»ΠΎΠΆΠ½ΡΠΌΠΈ ΡΠ°ΡΡΡΠΌΠΈ Π·Π°ΠΊΠ»ΡΡΠΈΡΠ΅Π»ΡΠ½ΠΎΠ³ΠΎ Π·Π²ΠΎΠ½ΠΊΠ°.
Π§Π΅ΠΌ Π±Π»ΠΈΠΆΠ΅ ΡΠΎΡ ΠΎΡΠ³Π°Π½, ΠΊΠΎΡΠΎΡΡΠΉ Π·Π°Π΄Π°Π΅Ρ Π²ΠΎΠΏΡΠΎΡΡ, ΡΡΠΎΠ±Ρ Π΄Π°ΡΡ ΠΏΠΎΡΠ΅Π½ΡΠΈΠ°Π»ΡΠ½ΠΎΠΌΡ ΠΊΠ»ΠΈΠ΅Π½ΡΡ Π½Π΅ΠΎΠ±Ρ ΠΎΠ΄ΠΈΠΌΡΡ ΡΡΠ½ΠΎΡΡΡ.
ΠΡΠ»ΠΈ ΠΏΠΎΡΠ΅Π½ΡΠΈΠ°Π»ΡΠ½ΡΠΉ ΠΊΠ»ΠΈΠ΅Π½Ρ ΠΈΡΠ΅Ρ ΠΊΠΎΠ½ΡΡΠ»ΡΡΠ°Π½ΡΠ° ΠΏΠΎ Π·Π΄ΠΎΡΠΎΠ²ΡΡ, Π½ΠΎ Π½Π΅ ΡΠ²Π΅ΡΠ΅Π½, ΡΠΌΠΎΠΆΠ΅Ρ Π»ΠΈ ΠΎΠ½ ΠΏΡΠΈΠ½ΡΡΡ ΡΡΠ°ΡΡΠΈΠ΅ Π² ΠΏΡΠΎΠ³ΡΠ°ΠΌΠΌΠ΅, Π²Ρ Π·Π°Π΄Π°Π΅ΡΠ΅ Π²ΠΎΠΏΡΠΎΡΡ, ΡΡΠΎΠ±Ρ Π²ΡΡΡΠ½ΠΈΡΡ, ΡΡΠΎ ΠΌΠΎΠΆΠ΅Ρ ΡΠ΄Π΅ΡΠΆΠΈΠ²Π°ΡΡ ΠΏΠΎΡΠ΅Π½ΡΠΈΠ°Π»ΡΠ½ΠΎΠ³ΠΎ ΠΊΠ»ΠΈΠ΅Π½ΡΠ° ΠΎΡ ΠΆΠ΅Π»Π°Π½ΠΈΡ ΠΏΡΠΈΠ½ΡΡΡ ΡΡΠ°ΡΡΠΈΠ΅.
ΠΡ ΡΠ°ΠΊΠΆΠ΅ ΠΎΠ±ΡΠ°Π±Π°ΡΡΠ²Π°Π΅ΡΠ΅ Π»ΡΠ±ΡΠ΅ Π²ΠΎΠ·ΡΠ°ΠΆΠ΅Π½ΠΈΡ ΠΏΠΎΡΠ΅Π½ΡΠΈΠ°Π»ΡΠ½ΠΎΠ³ΠΎ ΠΊΠ»ΠΈΠ΅Π½ΡΠ°, ΡΡΡΡΠ°Π½ΡΡ Π»ΡΠ±ΡΠ΅ ΡΠΎΠΌΠ½Π΅Π½ΠΈΡ Π΄ΠΎ ΡΠ΅Ρ ΠΏΠΎΡ, ΠΏΠΎΠΊΠ° ΠΈ Π²Ρ, ΠΈ ΠΏΠΎΡΠ΅Π½ΡΠΈΠ°Π»ΡΠ½ΡΠΉ ΠΊΠ»ΠΈΠ΅Π½Ρ Π½Π΅ Π±ΡΠ΄Π΅ΡΠ΅ ΡΠ²Π΅ΡΠ΅Π½Ρ, ΡΡΠΎ ΠΏΡΠ΅Π΄Π»ΠΎΠΆΠ΅Π½ΠΈΠ΅ — ΡΡΠΎ ΡΠ΅ΡΠ΅Π½ΠΈΠ΅, ΠΊΠΎΡΠΎΡΠΎΠ΅ ΠΈΡΠ΅Ρ ΠΏΠΎΡΠ΅Π½ΡΠΈΠ°Π»ΡΠ½ΡΠΉ ΠΊΠ»ΠΈΠ΅Π½Ρ. ΠΠΎΠ³Π΄Π° ΠΏΠΎΡΠ΅Π½ΡΠΈΠ°Π»ΡΠ½ΡΠΉ ΠΊΠ»ΠΈΠ΅Π½Ρ ΡΠ΅ΡΠ°Π΅Ρ ΠΈΠ½Π²Π΅ΡΡΠΈΡΠΎΠ²Π°ΡΡ Π² ΠΏΡΠ΅Π΄Π»ΠΎΠΆΠ΅Π½ΠΈΠ΅, ΠΎΠ½ Π±Π»Π°Π³ΠΎΠ΄Π°ΡΠΈΡ ΡΠ΅Ρ , ΠΊΡΠΎ ΠΏΡΠΈΠ±Π»ΠΈΠΆΠ°Π΅Ρ Π΅Π³ΠΎ ΠΊ ΡΠ²ΠΎΠ΅ΠΌΡ ΡΠ΅ΡΠ΅Π½ΠΈΡ.
36% ΠΏΡΠΎΠ΄Π°Π²ΡΠΎΠ² Π³ΠΎΠ²ΠΎΡΡΡ, ΡΡΠΎ Π·Π°ΠΊΡΡΡΠΈΠ΅ — ΡΠ°ΠΌΠ°Ρ ΡΠ»ΠΎΠΆΠ½Π°Ρ ΡΠ°ΡΡΡ ΠΏΡΠΎΡΠ΅ΡΡΠ° ΠΏΡΠΎΠ΄Π°ΠΆ. Click To Tweet
ΠΠ° ΠΊΠΎΠ³ΠΎ ΠΎΠ½ΠΈ ΡΠ°Π±ΠΎΡΠ°ΡΡ
High Ticket Closers β’ Π·Π°ΠΊΠ»ΡΡΠ°ΡΡ ΡΠ΄Π΅Π»ΠΊΠΈ Π΄Π»Ρ Π΄Π²ΡΡ Π²ΠΎΠ·ΠΌΠΎΠΆΠ½ΡΡ ΡΡΠ΅Π½Π°ΡΠΈΠ΅Π²: Π±ΠΈΠ·Π½Π΅Ρ Π΄Π»Ρ ΠΏΠΎΡΡΠ΅Π±ΠΈΡΠ΅Π»Ρ (B2C) ΠΈ Π±ΠΈΠ·Π½Π΅Ρ Π΄Π»Ρ Π±ΠΈΠ·Π½Π΅ΡΠ° (B2B).ΠΠΌ ΠΏΠ»Π°ΡΡΡ ΠΊΠΎΠΌΠΈΡΡΠΈΡ Π·Π° ΠΊΠ°ΠΆΠ΄ΡΡ Π·Π°ΠΊΠ»ΡΡΠ΅Π½Π½ΡΡ ΡΠ΄Π΅Π»ΠΊΡ.
B2C — ΡΡΠΎ Π½Π°ΠΈΠ±ΠΎΠ»Π΅Π΅ ΡΠ°ΡΠΏΡΠΎΡΡΡΠ°Π½Π΅Π½Π½ΡΠΉ Π²ΡΠ±ΠΎΡ Π΄Π»Ρ Π΄ΠΎΠ²ΠΎΠ΄ΡΠΈΠΊΠΎΠ² Ρ Π½Π΅Π±ΠΎΠ»ΡΡΠΈΠΌ ΠΎΠΏΡΡΠΎΠΌ ΡΠ°Π±ΠΎΡΡ ΠΈΠ»ΠΈ Π±Π΅Π· Π½Π΅Π³ΠΎ. ΠΠΌ Π»Π΅Π³ΡΠ΅ ΠΏΠΎΠ½ΡΡΡ ΡΠΈΡΡΠ°ΡΠΈΡ ΠΏΠΎΡΠ΅Π½ΡΠΈΠ°Π»ΡΠ½ΠΎΠ³ΠΎ ΠΊΠ»ΠΈΠ΅Π½ΡΠ°, ΠΏΠΎΡΠΎΠΌΡ ΡΡΠΎ Π±ΠΎΠ»Π΅Π΅ Π±Π»ΠΈΠ·ΠΊΠΈΠΉ ΡΠ΅Π»ΠΎΠ²Π΅ΠΊ ΡΠΆΠ΅ ΠΊΡΠΏΠΈΠ» ΠΊΡΡΡ ΠΈΠ»ΠΈ ΠΏΡΠΎΠ³ΡΠ°ΠΌΠΌΡ ΡΠ°Π½ΡΡΠ΅. ΠΠΎΠ²ΠΎΠ΄ΡΠΈΠΊΠΈ ΡΠ°Π±ΠΎΡΠ°ΡΡ Ρ Π²Π»ΠΈΡΡΠ΅Π»ΡΠ½ΡΠΌ Π»ΠΈΡΠΎΠΌ, ΡΡΠΎΠ±Ρ Π·Π°ΠΊΡΡΡΡ ΠΏΠΎΡΠ΅Π½ΡΠΈΠ°Π»ΡΠ½ΡΡ ΠΊΠ»ΠΈΠ΅Π½ΡΠΎΠ² ΠΏΠΎ ΠΏΡΠΎΠ³ΡΠ°ΠΌΠΌΠ°ΠΌ ΠΎΠ±ΡΡΠ΅Π½ΠΈΡ, ΠΊΡΡΡΠ°ΠΌ ΠΈ Π΄ΡΡΠ³ΠΈΠΌ ΡΠ΅Π½Π½ΡΠΌ ΠΏΡΠ΅Π΄Π»ΠΎΠΆΠ΅Π½ΠΈΡΠΌ.
ΠΠΎΡΠ΅Π½ΡΠΈΠ°Π»ΡΠ½ΡΠ΅ ΠΊΠ»ΠΈΠ΅Π½ΡΡ ΠΌΠΎΠ³Π»ΠΈ ΡΠ»ΡΡΠ°ΡΡ ΠΎ Π²Π»ΠΈΡΡΠ΅Π»ΡΠ½ΠΎΠΌ ΡΠ΅Π»ΠΎΠ²Π΅ΠΊΠ΅, ΠΏΡΠΎΡΠΌΠ°ΡΡΠΈΠ²Π°Ρ ΠΈΡ Π²ΠΈΠ΄Π΅ΠΎ Π½Π° YouTube ΠΈΠ»ΠΈ ΠΏΠΎΡΠ΅ΡΠ°Ρ ΠΎΠ΄ΠΈΠ½ ΠΈΠ»ΠΈ Π΄Π²Π° ΡΠ΅ΠΌΠΈΠ½Π°ΡΠ°.ΠΠ½ΠΈ ΠΌΠΎΠ³ΡΡ ΠΏΠΎΠ΄ΠΏΠΈΡΠ°ΡΡΡΡ Π½Π° Π²Π»ΠΈΡΡΠ΅Π»ΡΠ½ΠΎΠ³ΠΎ ΡΠ΅Π»ΠΎΠ²Π΅ΠΊΠ° Π² ΡΠΎΡΠΈΠ°Π»ΡΠ½ΡΡ ΡΠ΅ΡΡΡ ΠΈΠ»ΠΈ ΠΏΠΎΠ΄ΠΏΠΈΡΠ°ΡΡΡΡ Π½Π° Π½Π΅Π³ΠΎ ΠΈ ΡΡΠ»ΡΡΠ°ΡΡ ΠΎ Π΅Π³ΠΎ ΠΏΡΠΎΠ³ΡΠ°ΠΌΠΌΠ΅ ΠΈΠ· ΡΠ΅ΠΊΠ»Π°ΠΌΡ.
ΠΠΈΠ΄Π΅ΡΠΎΠΌ ΠΌΠ½Π΅Π½ΠΈΠΉ ΠΌΠΎΠΆΠ΅Ρ Π±ΡΡΡ Π»ΡΠ±Π°Ρ ΠΎΡΡΠ°ΡΠ»Ρ: Π±ΠΈΠ·Π½Π΅Ρ, Π·Π΄ΠΎΡΠΎΠ²ΡΠ΅, ΡΠΈΡΠ½Π΅Ρ, ΠΎΠ±ΡΠ°Π·ΠΎΠ²Π°Π½ΠΈΠ΅ ΠΈΠ»ΠΈ ΡΠ΅Ρ Π½ΠΎΠ»ΠΎΠ³ΠΈΠΈ, ΠΈ ΡΡΠΎ Π»ΠΈΡΡ Π½Π΅ΠΊΠΎΡΠΎΡΡΠ΅ ΠΈΠ· Π½ΠΈΡ . ΠΡΠ»ΠΈ Ρ Π²Π»ΠΈΡΡΠ΅Π»ΡΠ½ΠΎΠ³ΠΎ Π»ΠΈΡΠ° Π΅ΡΡΡ ΠΏΠΎΡΡΠΎΡΠ½Π½ΡΠΉ ΠΏΠΎΡΠΎΠΊ ΠΏΠΎΡΠ΅Π½ΡΠΈΠ°Π»ΡΠ½ΡΡ ΠΊΠ»ΠΈΠ΅Π½ΡΠΎΠ² — Π»ΡΠ΄ΠΈ ΡΠ΅Π³ΡΠ»ΡΡΠ½ΠΎ Π·Π°ΠΏΠΈΡΡΠ²Π°ΡΡΡΡ Π½Π° ΠΏΡΠΈΠ΅ΠΌ, ΡΡΠΎΠ±Ρ ΡΠ·Π½Π°ΡΡ Π±ΠΎΠ»ΡΡΠ΅ ΠΎ ΠΏΡΠ΅Π΄Π»ΠΎΠΆΠ΅Π½ΠΈΠΈ, — Π° ΠΏΡΠ΅Π΄Π»ΠΎΠΆΠ΅Π½ΠΈΠ΅ ΡΠ²Π»ΡΠ΅ΡΡΡ ΠΏΡΠΎΠ΄ΡΠΊΡΠΎΠΌ Ρ ΠΏΡΠ΅ΠΌΠΈΠ°Π»ΡΠ½ΠΎΠΉ ΡΠ΅Π½ΠΎΠΉ — ΡΠΎ Π²Π»ΠΈΡΡΠ΅Π»ΡΠ½ΡΠΉ ΡΠ΅Π»ΠΎΠ²Π΅ΠΊ ΠΌΠΎΠΆΠ΅Ρ ΠΈΡΠΏΠΎΠ»ΡΠ·ΠΎΠ²Π°ΡΡ ΠΎΠΏΡΡ Π±ΠΎΠ»Π΅Π΅ Π±Π»ΠΈΠ·ΠΊΠΎΠ³ΠΎ, ΡΡΠΎΠ±Ρ ΠΏΡΠ΅ΠΎΠ±ΡΠ°Π·ΠΎΠ²Π°ΡΡ ΡΡΠΈ Π»ΠΈΠ΄Ρ Π² ΠΊΠ»ΠΈΠ΅Π½ΡΠΎΠ².
Π ΡΠΎΠΌΡ Π²ΡΠ΅ΠΌΠ΅Π½ΠΈ, ΠΊΠΎΠ³Π΄Π° Π±ΠΎΠ»Π΅Π΅ Π±Π»ΠΈΠ·ΠΊΠΈΠΉ ΡΠ΅Π»ΠΎΠ²Π΅ΠΊ ΡΠ°Π·Π³ΠΎΠ²Π°ΡΠΈΠ²Π°Π΅Ρ Ρ ΠΏΠΎΡΠ΅Π½ΡΠΈΠ°Π»ΡΠ½ΡΠΌ ΠΊΠ»ΠΈΠ΅Π½ΡΠΎΠΌ ΠΏΠΎ ΡΠ΅Π»Π΅ΡΠΎΠ½Ρ, ΠΎΠ½ ΡΡΠ°Π½ΠΎΠ²ΠΈΡΡΡ Π³ΠΎΡΡΡΠΈΠΌ Π»ΠΈΠ΄Π΅ΡΠΎΠΌ, Π² Π½Π΅ΠΊΠΎΡΠΎΡΠΎΠΉ ΡΡΠ΅ΠΏΠ΅Π½ΠΈ Π·Π½Π°ΠΊΠΎΠΌΡΠΌ Ρ Π±ΡΠ΅Π½Π΄ΠΎΠΌ Π²Π»ΠΈΡΡΠ΅Π»ΡΠ½ΠΎΠ³ΠΎ Π»ΠΈΡΠ° ΠΈ Π΅Π³ΠΎ Π΄Π΅ΠΉΡΡΠ²ΠΈΡΠΌΠΈ.
ΠΠΈΠ·Π½Π΅Ρ-ΡΡΠ΅ΡΠ° ΡΡΠ΅Π±ΡΡΡ ΡΠ°Π·Π½ΠΎΠ³ΠΎ ΡΡΠΎΠ²Π½Ρ Π·Π½Π°Π½ΠΈΠΉ. ΠΠΎΠ²ΠΎΠ΄ΡΠΈΠΊ Π±Π΅Π· ΠΎΠΏΡΡΠ° ΡΠ°Π±ΠΎΡΡ Π² Π±ΠΈΠ·Π½Π΅ΡΠ΅ ΠΌΠΎΠΆΠ΅Ρ Π·Π°ΠΊΡΡΡΡ Π΄Π»Ρ Π±ΠΈΠ·Π½Π΅Ρ-Π°ΠΊΠΊΠ°ΡΠ½ΡΠΎΠ², Π΅ΡΠ»ΠΈ ΠΎΠ½ΠΈ Π²ΡΡΡΠ°Ρ Π΄Π΅Π»ΠΎΠ²ΠΎΠΉ ΠΆΠ°ΡΠ³ΠΎΠ½, ΡΠ°ΠΊΠΎΠΉ ΠΊΠ°ΠΊ ΠΏΠ΅ΡΠ²ΡΠΉ ΠΊΠ²Π°ΡΡΠ°Π», Π°Π΄Π°ΠΏΡΠ°ΡΠΈΡ, SaaS ΠΈ ΡΠ΅Π·ΡΠ»ΡΡΠ°ΡΡ. Π ΠΏΡΠΎΡΠΈΠ²Π½ΠΎΠΌ ΡΠ»ΡΡΠ°Π΅ ΠΈΠΌ Π±ΡΠ΄Π΅Ρ ΡΠ»ΠΎΠΆΠ½ΠΎ ΠΎΠ±ΡΠ°ΡΡΡΡ Ρ ΠΏΠΎΡΠ΅Π½ΡΠΈΠ°Π»ΡΠ½ΡΠΌ ΠΊΠ»ΠΈΠ΅Π½ΡΠΎΠΌ.
ΠΠ°ΠΊΡΡΡΠΈΠ΅ B2B ΡΠ°ΠΊΠΆΠ΅ ΡΡΠ΅Π±ΡΠ΅Ρ Π±ΠΎΠ»ΡΡΠ΅Π³ΠΎ ΡΡΠ°ΡΡΠΈΡ, ΡΠ΅ΠΌ, Π½Π°ΠΏΡΠΈΠΌΠ΅Ρ, Π·Π°ΠΊΡΡΡΠΈΠ΅ ΠΎΠ΄Π½ΠΎΠ³ΠΎ ΡΠ΅Π»ΠΎΠ²Π΅ΠΊΠ° (ΠΈ Π΅Π³ΠΎ ΡΡΠΏΡΡΠ³ΠΈ) ΠΏΠΎ ΠΏΡΠΎΠ³ΡΠ°ΠΌΠΌΠ΅ ΠΊΠΎΡΡΠΈΠ½Π³Π° Π²Π·Π°ΠΈΠΌΠΎΠΎΡΠ½ΠΎΡΠ΅Π½ΠΈΠΉ. ΠΠΎΡΠ΅Π½ΡΠΈΠ°Π»ΡΠ½ΡΠΉ ΠΊΠ»ΠΈΠ΅Π½Ρ, Ρ ΠΊΠΎΡΠΎΡΡΠΌ ΠΎΠ½ΠΈ ΡΠ°Π·Π³ΠΎΠ²Π°ΡΠΈΠ²Π°ΡΡ ΠΏΠΎ ΡΠ΅Π»Π΅ΡΠΎΠ½Ρ, ΠΌΠΎΠΆΠ΅Ρ ΠΏΡΠΈΠ½ΠΈΠΌΠ°ΡΡ ΠΈΠ»ΠΈ Π½Π΅ ΠΏΡΠΈΠ½ΠΈΠΌΠ°ΡΡ ΡΠ΅ΡΠ΅Π½ΠΈΡ Π΄Π»Ρ ΠΊΠΎΠΌΠΏΠ°Π½ΠΈΠΈ.
ΠΠ΅Π»ΠΎΠ²Π°Ρ ΡΠ΄Π΅Π»ΠΊΠ° ΠΌΠΎΠΆΠ΅Ρ ΠΏΠΎΡΡΠ΅Π±ΠΎΠ²Π°ΡΡ ΠΌΠΈΠ»Π»ΠΈΠΎΠ½Ρ Π΄ΠΎΠ»Π»Π°ΡΠΎΠ² ΠΈ ΠΏΠΎΠ²Π»ΠΈΡΡΡ Π½Π° Π±ΡΠ΄ΡΡΠ΅Π΅ Π½Π°ΠΏΡΠ°Π²Π»Π΅Π½ΠΈΠ΅ ΠΊΠΎΠΌΠΏΠ°Π½ΠΈΠΈ, ΠΏΠΎΡΡΠΎΠΌΡ ΠΏΠΎΡΡΠ΅Π±ΡΠ΅ΡΡΡ Π±ΠΎΠ»Π΅Π΅ ΠΎΠ΄Π½ΠΎΠ³ΠΎ ΡΠ΅Π»Π΅ΡΠΎΠ½Π½ΠΎΠ³ΠΎ Π·Π²ΠΎΠ½ΠΊΠ°.
ΠΠ°ΡΠ΅ΠΌ ΠΏΡΠΎΠ΄Π°Π²Π°ΡΡ ΡΠΎΡΡΠΎΡΡΠ΅Π»ΡΠ½ΡΠΌ ΠΊΠ»ΠΈΠ΅Π½ΡΠ°ΠΌ
ΠΡΡΡ ΡΠ΅ΡΡΡΠ΅ ΡΠ°Π·Π½ΡΡ ΡΠΈΠΏΠ° ΠΊΠ»ΠΈΠ΅Π½ΡΠΎΠ², Ρ ΠΊΠΎΡΠΎΡΡΠΌΠΈ ΡΡΠ°Π»ΠΊΠΈΠ²Π°ΡΡΡΡ Π²Π»ΠΈΡΡΠ΅Π»ΡΠ½ΡΠ΅ Π»ΠΈΡΠ° ΠΈ Π²Π»Π°Π΄Π΅Π»ΡΡΡ Π±ΠΈΠ·Π½Π΅ΡΠ°, Π½ΠΎ Π΄Π²Π° ΡΠΈΠΏΠ° Π±ΡΠ΄ΡΡ ΠΈΠ½Π²Π΅ΡΡΠΈΡΠΎΠ²Π°ΡΡ Π² ΠΏΡΠ΅ΠΌΠΈΠ°Π»ΡΠ½ΡΠ΅ ΠΏΡΠ΅Π΄Π»ΠΎΠΆΠ΅Π½ΠΈΡ.
ΠΡΠΊΡΡΠ΅Π½Π½ΡΠ΅ ΠΊΠ»ΠΈΠ΅Π½ΡΡ ΡΡΠ°ΡΠ΅Π»ΡΠ½ΠΎ ΠΈΠ·ΡΡΠ°ΡΡ ΡΠΎ, ΡΡΠΎ ΠΎΠ½ΠΈ ΠΏΠΎΠΊΡΠΏΠ°ΡΡ, ΠΏΠ΅ΡΠ΅Π΄ ΡΠ΅ΠΌ, ΠΊΠ°ΠΊ ΡΠ΄Π΅Π»Π°ΡΡ ΡΡΠΎ. Π£ Π½ΠΈΡ Π΅ΡΡΡ Π΄Π΅Π½ΡΠ³ΠΈ ΠΈ ΠΎΠ½ΠΈ ΠΎΠ±ΡΠ°Π·ΠΎΠ²Π°Π½Ρ, ΠΏΠΎΡΡΠΎΠΌΡ ΠΎΠ½ΠΈ ΡΠ΅Π½ΡΡ ΡΠΎΠ²Π΅ΡΡ Π±Π»ΠΈΠ·ΠΊΠΈΡ .ΠΠΎΠ»Π΅Π΅ Π²ΡΡΠΎΠΊΠΈΠΉ Π±ΠΈΠ»Π΅Ρ ΠΌΠΎΠΆΠ΅Ρ ΡΠΊΠ°Π·Π°ΡΡ Π½Π° Π½Π΅ΠΊΠΎΡΠΎΡΡΠ΅ ΡΠΎΠΎΠ±ΡΠ°ΠΆΠ΅Π½ΠΈΡ, ΠΊΠΎΡΠΎΡΡΠ΅ ΠΊΠ»ΠΈΠ΅Π½Ρ ΡΠΏΡΡΡΠΈΠ» Π² ΡΠ²ΠΎΠ΅ΠΌ ΠΈΡΡΠ»Π΅Π΄ΠΎΠ²Π°Π½ΠΈΠΈ.
Π‘ΠΎΡΡΠΎΡΡΠ΅Π»ΡΠ½ΡΡ ΠΊΠ»ΠΈΠ΅Π½ΡΠΎΠ² Π½Π΅ Π²ΠΎΠ»Π½ΡΡΡ ΡΠ°ΡΡ ΠΎΠ΄Ρ. ΠΠ½ΠΈ ΠΏΠΎΠΊΡΠΏΠ°ΡΡ Π² Π·Π°Π²ΠΈΡΠΈΠΌΠΎΡΡΠΈ ΠΎΡ ΡΠΎΠ³ΠΎ, ΠΊΠ°ΠΊ ΠΎΠ½ΠΈ ΡΠ΅Π±Ρ ΡΡΠ²ΡΡΠ²ΡΡΡ. ΠΠΌ Π½ΡΠΆΠ½Ρ ΡΠΊΡΠΊΠ»ΡΠ·ΠΈΠ²Π½ΡΠ΅ ΠΈ ΡΠΎΡΠΊΠΎΡΠ½ΡΠ΅ ΡΠΊΡΠΊΠ»ΡΠ·ΠΈΠ²Π½ΡΠ΅ Π²ΠΏΠ΅ΡΠ°ΡΠ»Π΅Π½ΠΈΡ ΠΎΡ ΠΏΠΎΠΊΡΠΏΠΊΠΈ. ΠΠΎΠ»Π΅Π΅ Π±Π»ΠΈΠ·ΠΊΠΈΠΉ ΠΏΠΎΠ΄ΡΠ΅ΡΠΊΠ½Π΅Ρ ΡΠΊΡΠΊΠ»ΡΠ·ΠΈΠ²Π½ΠΎΡΡΡ ΠΈ ΡΠ΄ΠΎΠ±ΡΡΠ²ΠΎ ΠΏΡΠΈ ΠΎΠ±ΡΠ΅Π½ΠΈΠΈ Ρ ΡΠΎΡΡΠΎΡΡΠ΅Π»ΡΠ½ΡΠΌΠΈ ΠΊΠ»ΠΈΠ΅Π½ΡΠ°ΠΌΠΈ.
ΠΡΠΈ Π΄Π²Π° ΡΠΈΠΏΠ° ΠΊΠ»ΠΈΠ΅Π½ΡΠΎΠ² — ΡΡΠΎ ΡΠ΅ ΡΠΈΠΏΡ ΠΊΠ»ΠΈΠ΅Π½ΡΠΎΠ², ΠΊΠΎΡΠΎΡΡΠΌ Π²Ρ Π² ΠΈΠ΄Π΅Π°Π»Π΅ Ρ ΠΎΡΠΈΡΠ΅ ΠΏΡΠΎΠ΄Π°Π²Π°ΡΡ.
ΠΠ°ΡΠ΅ΠΌ ΠΏΡΠΎΠ΄Π°Π²Π°ΡΡ ΠΏΠΎ Π±ΠΎΠ»Π΅Π΅ Π²ΡΡΠΎΠΊΠΎΠΉ ΡΠ΅Π½Π΅
ΠΠ΅ΠΌΠ½ΠΎΠ³ΠΈΠ΅ Π»ΡΠ΄ΠΈ Π³ΠΎΡΠΎΠ²Ρ Π²ΠΊΠ»Π°Π΄ΡΠ²Π°ΡΡ ΡΡΡΡΡΠΈ Π΄ΠΎΠ»Π»Π°ΡΠΎΠ² Π² ΠΏΡΠΎΠ³ΡΠ°ΠΌΠΌΡ Π·Π½Π°ΠΊΠΎΠΌΡΡΠ² ΠΈΠ»ΠΈ Π΄Π΅Π»ΠΎΠ²ΡΡ ΠΏΡΠΎΠ³ΡΠ°ΠΌΠΌΡ ΠΏΠΎΡΠ»Π΅ ΠΏΡΠΎΡΠΌΠΎΡΡΠ° Π²Π΅Π±ΠΈΠ½Π°ΡΠ° ΠΈΠ»ΠΈ ΡΡΠ΅Π½ΠΈΡ ΠΎΠΏΠΈΡΠ°Π½ΠΈΡ Π½Π° Π²Π΅Π±-ΡΠ°ΠΉΡΠ΅.ΠΠ»Ρ ΠΏΠΎΠ΄ΠΎΠ±Π½ΡΡ ΠΏΡΠΎΠ΄ΡΠΊΡΠΎΠ² Ρ Π²ΡΡΠΎΠΊΠΎΠΉ ΡΠ΅Π½ΠΎΠΉ ΡΡΠ΅Π±ΡΠ΅ΡΡΡ Π±ΠΎΠ»Π΅Π΅ Π²ΡΡΠΎΠΊΠΈΠΉ Π±ΠΈΠ»Π΅Ρ, ΡΡΠΎΠ±Ρ ΠΏΠΎΠ³ΠΎΠ²ΠΎΡΠΈΡΡ Ρ ΠΏΠΎΡΠ΅Π½ΡΠΈΠ°Π»ΡΠ½ΡΠΌ ΠΊΠ»ΠΈΠ΅Π½ΡΠΎΠΌ.
ΠΠ΄Π½ΠΎ ΠΈΠ· Π½Π°ΠΈΠ±ΠΎΠ»Π΅Π΅ ΡΠ°ΡΡΡΡ Π²ΠΎΠ·ΡΠ°ΠΆΠ΅Π½ΠΈΠΉ ΠΏΠΎΡΠ΅Π½ΡΠΈΠ°Π»ΡΠ½ΡΡ ΠΊΠ»ΠΈΠ΅Π½ΡΠΎΠ² ΡΠ²ΡΠ·Π°Π½ΠΎ Ρ ΡΠ΅Π½ΠΎΠΉ.
ΠΡΠΎΠ΄ΡΠΊΡ ΠΌΠΎΠΆΠ΅Ρ Π±ΡΡΡ ΡΠ΅ΡΠ΅Π½ΠΈΠ΅ΠΌ ΠΏΡΠΎΠ±Π»Π΅ΠΌΡ ΠΏΠΎΡΠ΅Π½ΡΠΈΠ°Π»ΡΠ½ΠΎΠ³ΠΎ ΠΊΠ»ΠΈΠ΅Π½ΡΠ°, Π½ΠΎ ΠΎΠ½ ΡΠ°ΠΊΠΆΠ΅ ΠΌΠΎΠΆΠ΅Ρ Π²ΡΡ ΠΎΠ΄ΠΈΡΡ Π·Π° ΡΠ°ΠΌΠΊΠΈ Π±ΡΠ΄ΠΆΠ΅ΡΠ° ΠΏΠΎΡΠ΅Π½ΡΠΈΠ°Π»ΡΠ½ΠΎΠ³ΠΎ ΠΊΠ»ΠΈΠ΅Π½ΡΠ°. ΠΠΎ Π΄ΠΎ ΡΠ΅Ρ ΠΏΠΎΡ, ΠΏΠΎΠΊΠ° ΠΏΡΠΎΠ΄ΡΠΊΡ ΠΏΠΎΠ΄Ρ ΠΎΠ΄ΠΈΡ ΠΏΠΎΡΠ΅Π½ΡΠΈΠ°Π»ΡΠ½ΠΎΠΌΡ ΠΊΠ»ΠΈΠ΅Π½ΡΡ, Π±ΠΎΠ»Π΅Π΅ Π±Π»ΠΈΠ·ΠΊΠΈΠΉ ΠΏΠΎΡΠ΅ΠΊΠΎΠΌΠ΅Π½Π΄ΡΠ΅Ρ ΡΠΏΠΎΡΠΎΠ±Ρ ΠΏΠΎΠΌΠΎΡΡ ΠΏΠΎΡΠ΅Π½ΡΠΈΠ°Π»ΡΠ½ΠΎΠΌΡ ΠΊΠ»ΠΈΠ΅Π½ΡΡ, Π½Π°ΠΏΡΠΈΠΌΠ΅Ρ, ΠΏΠ»Π°Π½Ρ ΠΏΠ»Π°ΡΠ΅ΠΆΠ΅ΠΉ.
Π§Π΅ΠΌ Π±Π»ΠΈΠΆΠ΅ ΠΏΠΎΠ½ΠΈΠΌΠ°ΡΡ, ΡΠ΅ΠΌ Π΄ΠΎΡΠΎΠΆΠ΅ Π²ΡΡΠΎΠΊΠΈΠ΅ ΡΠ΅Π½Ρ Π½Π΅ Π²ΡΠ΅Π΄ΠΈΡ.ΠΡΠΏΠΎΠΌΠ½ΠΈΡΠ΅ ΠΏΠΎΡΠ»Π΅Π΄Π½ΠΈΠΉ Π±Π΅ΡΠΏΠ»Π°ΡΠ½ΡΠΉ ΡΠ΅ΠΌΠΈΠ½Π°Ρ, ΠΊΠΎΡΠΎΡΡΠΉ Π²Ρ ΠΏΠΎΡΠ΅ΡΠΈΠ»ΠΈ. ΠΡ ΠΌΠΎΠ³Π»ΠΈ Π΄Π΅Π»Π°ΡΡ ΠΊΠ°ΠΊΠΈΠ΅-ΡΠΎ Π·Π°ΠΌΠ΅ΡΠΊΠΈ, Π½ΠΎ, Π²Π΅ΡΠΎΡΡΠ½ΠΎ, Π½Π΅ ΠΈΡΠΏΠΎΠ»ΡΠ·ΠΎΠ²Π°Π»ΠΈ ΡΠΎ, ΡΡΠΎ ΡΠ·Π½Π°Π»ΠΈ.
ΠΠΎ Π΅ΡΠ»ΠΈ Π²Ρ ΠΏΠΎΡΡΠ°ΡΠΈΡΠ΅ ΡΡΡΡΡΠΈ Π΄ΠΎΠ»Π»Π°ΡΠΎΠ² Π½Π° ΠΊΡΡΡ Π»ΠΈΡΠ½ΠΎΠ³ΠΎ ΡΠ°Π·Π²ΠΈΡΠΈΡ, Π²Ρ ΠΎΠ±ΡΠ·Π°ΡΠ΅Π»ΡΠ½ΠΎ ΡΠ·Π½Π°Π΅ΡΠ΅ ΡΡΠΎ-ΡΠΎ ΠΈ ΡΠ΅Π°Π»ΠΈΠ·ΡΠ΅ΡΠ΅ ΡΡΠΎ. Π ΠΏΡΠΎΡΠΈΠ²Π½ΠΎΠΌ ΡΠ»ΡΡΠ°Π΅ Π²Ρ Π·ΡΡ ΠΏΠΎΡΡΠ°ΡΠΈΡΠ΅ Π²ΡΠ΅ΠΌΡ ΠΈ Π΄Π΅Π½ΡΠ³ΠΈ.
ΠΠΎ ΡΡΠΎΠΉ ΠΏΡΠΈΡΠΈΠ½Π΅ Π±ΠΎΠ»Π΅Π΅ Π²ΡΡΠΎΠΊΠΈΠ΅ ΡΠ΅Π½Ρ Π΄Π°ΡΡ Π»ΡΡΡΠΈΠ΅ ΡΠ΅Π·ΡΠ»ΡΡΠ°ΡΡ. Π£ ΠΏΠΎΡΠ΅Π½ΡΠΈΠ°Π»ΡΠ½ΠΎΠ³ΠΎ ΠΊΠ»ΠΈΠ΅Π½ΡΠ° Π΅ΡΡΡ ΡΠ°Π½ΡΡ Π½Π° ΡΡΠ°ΡΡΠΈΠ΅ Π² ΠΈΠ³ΡΠ΅, ΠΈ ΠΎΠ½ Π²ΠΈΠ΄ΠΈΡ Π±ΠΎΠ»ΡΡΡΡ ΡΠ΅Π½Π½ΠΎΡΡΡ Π² ΠΏΡΠ΅Π΄Π»ΠΎΠΆΠ΅Π½ΠΈΠΈ. ΠΠΎΡΠ΅Π½ΡΠΈΠ°Π»ΡΠ½ΡΠΉ ΠΊΠ»ΠΈΠ΅Π½Ρ, ΠΊΠΎΡΠΎΡΡΠΉ Π²ΠΊΠ»Π°Π΄ΡΠ²Π°Π΅Ρ ΡΡΡΡΡΠΈ Π΄ΠΎΠ»Π»Π°ΡΠΎΠ² Π² ΡΠΈΡΠ½Π΅Ρ-ΠΏΡΠΎΠ³ΡΠ°ΠΌΠΌΡ Ρ ΡΡΠ΅Π½Π΅ΡΠΎΠΌ, Ρ Π±ΠΎΠ»ΡΡΠ΅ΠΉ Π²Π΅ΡΠΎΡΡΠ½ΠΎΡΡΡΡ Π±ΡΠ΄Π΅Ρ ΠΏΡΠΈΠ΄Π΅ΡΠΆΠΈΠ²Π°ΡΡΡΡ Π·Π΄ΠΎΡΠΎΠ²ΠΎΠ³ΠΎ ΠΏΠΈΡΠ°Π½ΠΈΡ ΠΈ ΡΠ΅Π³ΡΠ»ΡΡΠ½ΠΎ Π·Π°Π½ΠΈΠΌΠ°ΡΡΡΡ ΡΠΏΠΎΡΡΠΎΠΌ.
ΠΠΎΠ»Π΅Π΅ Π²ΡΡΠΎΠΊΠΈΠ΅ ΡΠ΅Π½Ρ ΠΏΡΠΈΠ½ΠΎΡΡΡ ΠΏΠΎΠ»ΡΠ·Ρ ΠΊΠ»ΠΈΠ΅Π½ΡΡ, Π±ΠΈΠ·Π½Π΅ΡΡ ΠΈΠ»ΠΈ Π²Π»ΠΈΡΡΠ΅Π»ΡΠ½ΠΎΠΌΡ Π»ΠΈΡΡ ΠΈ ΡΠ΅ΠΌ, ΠΊΡΠΎ Π±Π»ΠΈΠΆΠ΅ ΠΊ Π½Π΅ΠΌΡ. Π§Π΅ΠΌ Π±Π»ΠΈΠΆΠ΅, ΡΠ΅ΠΌ Π±ΡΡΡΡΠ΅Π΅ ΠΌΠΎΠΆΠ½ΠΎ Π΄ΠΎΡΡΠΈΡΡ ΡΠ΅Π»Π΅ΠΉ ΠΏΠΎ Π΄ΠΎΡ ΠΎΠ΄Ρ. ΠΠ½ΠΈ ΠΌΠΎΠ³ΡΡ ΠΏΠΎΠ»ΡΡΠΈΡΡ ΡΠ΅ΡΡΠΈΠ·Π½Π°ΡΠ½ΡΠΉ Π΄ΠΎΡ ΠΎΠ΄, ΠΈΠΌΠ΅Ρ ΡΠΎΠ»ΡΠΊΠΎ ΠΎΠ΄Π½ΠΎΠ³ΠΎ Π²Π»ΠΈΡΡΠ΅Π»ΡΠ½ΠΎΠ³ΠΎ Π»ΠΈΡΠ° ΠΈ ΠΎΠ΄ΠΈΠ½ ΠΏΡΠΎΠ΄ΡΠΊΡ Ρ ΠΏΡΠ΅ΠΌΠΈΠ°Π»ΡΠ½ΠΎΠΉ ΡΠ΅Π½ΠΎΠΉ.
ΠΠΎΡ ΠΏΡΠΈΠΌΠ΅Ρ ΡΠΎΠ³ΠΎ, ΡΡΠΎ ΡΠ΄Π΅Π»Π°Π» Π±Ρ High Ticket Closer Ρ 10% ΠΊΠΎΠΌΠΈΡΡΠΈΠ΅ΠΉ Π² ΠΌΠ΅ΡΡΡ:
- 40 Π·Π°ΠΊΡΡΡΠΈΠΉ x 2500 Π΄ΠΎΠ»Π»Π°ΡΠΎΠ² Π‘Π¨Π = 10000 Π΄ΠΎΠ»Π»Π°ΡΠΎΠ² ΠΊΠΎΠΌΠΈΡΡΠΈΠΈ (ΠΎΠΊΠΎΠ»ΠΎ 2 Π·Π°ΠΊΡΡΡΠΈΠΉ Π² Π΄Π΅Π½Ρ)
Π‘Π°ΠΌΡΠΉ Π±ΡΡΡΡΡΠΉ ΡΠΏΠΎΡΠΎΠ± ΡΠ΅ΡΡΠΈΠ·Π½Π°ΡΠ½ΡΠΉ Π΄ΠΎΡ ΠΎΠ΄
ΠΡΡΡ ΠΌΠ½ΠΎΠ³ΠΎ Π΄ΠΎΠ»ΠΆΠ½ΠΎΡΡΠ΅ΠΉ Π² ΡΡΠ΅ΡΠ΅ ΠΏΡΠΎΠ΄Π°ΠΆ, ΠΊΠΎΡΠΎΡΡΠ΅ ΡΠ°ΠΊΠΆΠ΅ ΠΏΡΠ΅Π΄ΠΏΠΎΠ»Π°Π³Π°ΡΡ ΡΠ΅ΡΡΠΈΠ·Π½Π°ΡΠ½ΡΡ Π·Π°ΡΠ°Π±ΠΎΡΠ½ΡΡ ΠΏΠ»Π°ΡΡ, Π½Π°ΠΏΡΠΈΠΌΠ΅Ρ, ΡΠ΅Π³ΠΈΠΎΠ½Π°Π»ΡΠ½ΡΠΉ ΠΌΠ΅Π½Π΅Π΄ΠΆΠ΅Ρ ΠΏΠΎ ΠΏΡΠΎΠ΄Π°ΠΆΠ°ΠΌ, ΠΈΠ½ΠΆΠ΅Π½Π΅Ρ ΠΏΠΎ ΠΏΡΠΎΠ΄Π°ΠΆΠ°ΠΌ, Π²ΠΈΡΠ΅-ΠΏΡΠ΅Π·ΠΈΠ΄Π΅Π½Ρ ΠΏΠΎ ΠΏΡΠΎΠ΄Π°ΠΆΠ°ΠΌ ΠΈΠ»ΠΈ ΡΠΎΡΠ³ΠΎΠ²ΡΠΉ ΠΏΡΠ΅Π΄ΡΡΠ°Π²ΠΈΡΠ΅Π»Ρ.ΠΠΎ Π²Ρ Π±ΡΠ΄Π΅ΡΠ΅ ΠΈΠΌΠ΅ΡΡ Π΄Π΅Π»ΠΎ Ρ Π½Π°ΠΉΠΌΠΎΠΌ ΠΈ ΡΠ²ΠΎΠ»ΡΠ½Π΅Π½ΠΈΠ΅ΠΌ ΡΠΎΡΡΡΠ΄Π½ΠΈΠΊΠΎΠ², ΠΏΠΎΠ΅Π·Π΄ΠΊΠ°ΠΌΠΈ, Π΄Π΅ΠΌΠΎΠ½ΡΡΡΠ°ΡΠΈΠ΅ΠΉ ΠΏΡΠΎΠ΄ΡΠΊΡΠΎΠ² ΠΈ ΡΠ°Π·ΡΠ°Π±ΠΎΡΠΊΠΎΠΉ ΡΡΡΠ°ΡΠ΅Π³ΠΈΠΉ Π΄Π»Ρ ΡΠΎΡΡΠ° ΠΊΠΎΠΌΠΏΠ°Π½ΠΈΠΈ.
ΠΠΎΠ²ΠΎΠ΄ΡΠΈΠΊ, ΡΠ°Π±ΠΎΡΠ°ΡΡΠΈΠΉ ΠΏΠΎΠ»Π½ΡΠΉ ΡΠ°Π±ΠΎΡΠΈΠΉ Π΄Π΅Π½Ρ, ΠΌΠΎΠΆΠ΅Ρ ΠΏΡΠΈΠ½Π΅ΡΡΠΈ Π²ΡΡΠΎΠΊΠΈΠΉ Π΄ΠΎΡ ΠΎΠ΄, Π½Π΅ ΡΡΠ°ΡΡ Π²ΡΠ΅ΠΌΡ Π½Π° Π΄ΠΎΡΠΎΠ³Ρ ΠΈΠ»ΠΈ ΠΎΠ±ΡΠ΅Π½ΠΈΠ΅ Ρ ΡΠΎΡΡΡΠ΄Π½ΠΈΠΊΠ°ΠΌΠΈ. ΠΠ°ΠΊΡΡΡΠΈΠ΅ — ΠΎΠ΄ΠΈΠ½ ΠΈΠ· ΡΠ°ΠΌΡΡ Π±ΡΡΡΡΡΡ ΡΠΏΠΎΡΠΎΠ±ΠΎΠ² Π΄ΠΎΡΡΠΈΡΡ ΡΠ΅Π»ΠΈ Ρ Π²ΡΡΠΎΠΊΠΈΠΌ Π΄ΠΎΡ ΠΎΠ΄ΠΎΠΌ, Π½Π΅ Π½Π΅ΡΡ Π±ΠΎΠ»ΡΡΠΈΡ Π·Π°ΡΡΠ°Ρ Π½Π° ΠΎΡΠΊΡΡΡΠΈΠ΅ Π±ΠΈΠ·Π½Π΅ΡΠ° ΠΈΠ»ΠΈ ΡΡΠ°ΡΡ Π³ΠΎΠ΄Ρ Π½Π° ΠΏΠΎΠ»ΡΡΠ΅Π½ΠΈΠ΅ ΡΡΠ΅ΠΏΠ΅Π½ΠΈ.
ΠΠ΅ΡΠ΅ΠΉΡΠΈ ΠΊ Π³Π»Π°Π²Π΅ 3
ΠΡΠΎΠ³ΡΠ°ΠΌΠΌΠ° ΡΠ΅ΡΡΠΈΡΠΈΠΊΠ°ΡΠΈΠΈ High Ticket Closer β’ Π½Π°ΡΡΡΠΈΠ»Π° ΡΠΏΠΎΡΠΎΠ± ΠΎΠ±ΡΡΠ΅Π½ΠΈΡ Π»ΡΠ΄Π΅ΠΉ Π·Π°ΠΊΡΡΡΠΈΡ ΠΏΡΠ΅Π΄Π»ΠΎΠΆΠ΅Π½ΠΈΠΉ Ρ Π²ΡΡΠΎΠΊΠΈΠΌΠΈ ΡΡΠ΅Π±ΠΎΠ²Π°Π½ΠΈΡΠΌΠΈ.ΠΠ³ΠΎ ΡΠ΅Π»Ρ — Π½Π°ΡΡΠΈΡΡ Π»ΡΠ΄Π΅ΠΉ Ρ ΠΎΠΏΡΡΠΎΠΌ ΠΏΡΠΎΠ΄Π°ΠΆ ΠΈΠ»ΠΈ Π±Π΅Π· ΠΎΠΏΡΡΠ° Π²ΡΡΠΎΠΊΠΎΠ΄ΠΎΡ ΠΎΠ΄Π½ΡΠΌ Π½Π°Π²ΡΠΊΠ°ΠΌ. ΠΠ±ΡΡΠ½ΠΎ Π»ΡΠ΄ΠΈ Π±Π΅ΡΡΡ ΡΡΡ ΠΏΡΠΎΠ³ΡΠ°ΠΌΠΌΡ, ΡΡΠΎΠ±Ρ ΠΈΠ·ΡΡΠΈΡΡ Π½ΠΎΠ²ΡΠΉ Π½Π°Π²ΡΠΊ, ΡΡΠΎΠ±Ρ ΠΎΠ½ΠΈ ΠΌΠΎΠ³Π»ΠΈ ΠΏΠ΅ΡΠ΅ΠΉΡΠΈ ΠΊ Π½ΠΎΠ²ΠΎΠΉ ΠΊΠ°ΡΡΠ΅ΡΠ΅ ΠΈΠ»ΠΈ ΠΏΠΎΠ»ΡΡΠΈΡΡ Π΄ΠΎΠΏΠΎΠ»Π½ΠΈΡΠ΅Π»ΡΠ½ΡΠΉ Π΄ΠΎΡ ΠΎΠ΄.
ΠΡΠ½ΠΎΠ²Π½ΠΎΠ΅ ΡΠ°Π·Π»ΠΈΡΠΈΠ΅ ΠΌΠ΅ΠΆΠ΄Ρ ΡΡΠΎΠΉ ΠΏΡΠΎΠ³ΡΠ°ΠΌΠΌΠΎΠΉ ΠΈ Π²ΠΎΠ·Π²ΡΠ°ΡΠ΅Π½ΠΈΠ΅ΠΌ Π² ΡΠΊΠΎΠ»Ρ Π΄Π»Ρ ΠΏΠΎΠ»ΡΡΠ΅Π½ΠΈΡ ΡΡΠ΅ΠΏΠ΅Π½ΠΈ — ΡΡΠΎ Π²ΡΠ΅ΠΌΠ΅Π½Π½ΡΠ΅ Π·Π°ΡΡΠ°ΡΡ ΠΈ Π·Π°ΡΡΠ°ΡΡ. ΠΠ° Π½Π΅ΡΠΊΠΎΠ»ΡΠΊΠΎ Π½Π΅Π΄Π΅Π»Ρ Π²Ρ ΡΠΌΠΎΠΆΠ΅ΡΠ΅ ΠΎΡΠ²ΠΎΠΈΡΡ Π½ΠΎΠ²ΡΠΉ Π½Π°Π²ΡΠΊ. Π§Π΅ΠΌ Π±ΠΎΠ»ΡΡΠ΅ Π²Ρ ΠΏΡΠ°ΠΊΡΠΈΠΊΡΠ΅ΡΠ΅ΡΡ ΠΈ ΠΎΠ²Π»Π°Π΄Π΅Π²Π°Π΅ΡΠ΅ Π·Π°ΠΊΡΡΡΠΈΠ΅ΠΌ, ΡΠ΅ΠΌ Π²ΡΡΠ΅ Π²Π°Ρ Π΄ΠΎΡ ΠΎΠ΄ ΠΈ Π±Π΅Π·Π³ΡΠ°Π½ΠΈΡΠ½ΡΠ΅ Π²ΠΎΠ·ΠΌΠΎΠΆΠ½ΠΎΡΡΠΈ.
ΠΡΠΎΠ³ΡΠ°ΠΌΠΌΠ° ΠΏΡΠΈΠ²Π»Π΅ΠΊΠ»Π° ΡΠΈΡΠΎΠΊΠΈΠΉ ΠΊΡΡΠ³ ΡΡΡΠ΄Π΅Π½ΡΠΎΠ² ΡΠΎ Π²ΡΠ΅Π³ΠΎ ΠΌΠΈΡΠ°:
- ΠΠΈΠ·ΠΊΠΎΠΎΠΏΠ»Π°ΡΠΈΠ²Π°Π΅ΠΌΡΠ΅ ΡΠ°Π±ΠΎΡΠ½ΠΈΠΊΠΈ, ΠΆΠ΅Π»Π°ΡΡΠΈΠ΅ ΡΠΌΠ΅Π½ΠΈΡΡ ΠΊΠ°ΡΡΠ΅ΡΡ, Π½Π΅ Π²ΠΎΠ·Π²ΡΠ°ΡΠ°ΡΡΡ Π² ΡΠΊΠΎΠ»Ρ
- ΠΠ΅ΡΠ΅ΡΡΠΎΠΌΠ»Π΅Π½Π½ΡΠ΅, Π°ΠΌΠ±ΠΈΡΠΈΠΎΠ·Π½ΡΠ΅ ΠΊΠ°ΡΡΠ΅ΡΠΈΡΡΡ, ΠΈΡΡΡΠΈΠ΅ Π²ΡΡ ΠΎΠ΄Π° ΠΈΠ· Π±ΡΡΡΡΠΎ ΠΌΠ΅Π½ΡΡΡΠ΅Π³ΠΎΡΡ ΠΊΠΎΡΠΏΠΎΡΠ°ΡΠΈΠ²Π½ΠΎΠ³ΠΎ ΠΌΠΈΡΠ°
- Π Π°Π±ΠΎΡΠ°ΡΡΠΈΠ΅ ΡΠΎΠ΄ΠΈΡΠ΅Π»ΠΈ, ΠΊΠΎΡΠΎΡΡΠ΅ Ρ ΠΎΡΡΡ ΡΠ°Π±ΠΎΡΠ°ΡΡ ΠΈΠ· Π΄ΠΎΠΌΠ°, ΡΡΠΎΠ±Ρ ΠΎΠ½ΠΈ ΠΌΠΎΠ³Π»ΠΈ ΠΏΡΠΎΠ²ΠΎΠ΄ΠΈΡΡ Π±ΠΎΠ»ΡΡΠ΅ Π²ΡΠ΅ΠΌΠ΅Π½ΠΈ ΡΠΎ ΡΠ²ΠΎΠΈΠΌΠΈ Π΄Π΅ΡΡΠΌΠΈ
- ΠΡΠΏΡΡΠΊΠ½ΠΈΠΊΠΈ ΡΡΠ΅Π΄Π½Π΅ΠΉ ΡΠΊΠΎΠ»Ρ, ΠΊΠΎΡΠΎΡΡΠ΅ Ρ ΠΎΡΡΡ ΠΈΠΌΠ΅ΡΡ Π²ΡΡΠΎΠΊΠΈΠΉ Π΄ΠΎΡ ΠΎΠ΄, Π½Π΅ ΠΏΠΎΡΠ΅ΡΠ°Ρ ΠΊΠΎΠ»Π»Π΅Π΄ΠΆ
- ΠΠ»Π°Π΄Π΅Π»ΡΡΡ Π±ΠΈΠ·Π½Π΅ΡΠ°, ΠΊΠΎΡΠΎΡΡΠ΅ Ρ ΠΎΡΡΡ Π·Π°ΠΊΠ»ΡΡΠ°ΡΡ ΡΠ΄Π΅Π»ΠΊΠΈ Π΄Π»Ρ ΡΠ²ΠΎΠΈΡ ΡΠΎΠ±ΡΡΠ²Π΅Π½Π½ΡΡ ΠΏΡΠ΅Π΄Π»ΠΎΠΆΠ΅Π½ΠΈΠΉ
- ΠΡΠ΄ΠΈ, ΠΊΠΎΡΠΎΡΡΠ΅ Ρ ΠΎΡΡΡ ΡΠ²ΠΎΠ±ΠΎΠ΄Ρ ΠΎΡ Π½Π°ΡΠ°Π»ΡΠ½ΠΈΠΊ, Π½Π΅ ΠΎΡΠΊΡΡΠ²Π°Ρ ΡΠ²ΠΎΠΉ Π±ΠΈΠ·Π½Π΅Ρ
- ΠΡΠ΄ΠΈ, Π·Π°Π½ΡΡΡΠ΅ ΠΏΠΎΠ»Π½ΡΠΉ ΠΈΠ»ΠΈ Π½Π΅ΠΏΠΎΠ»Π½ΡΠΉ ΡΠ°Π±ΠΎΡΠΈΠΉ Π΄Π΅Π½Ρ, ΠΊΠΎΡΠΎΡΡΠ΅ ΠΈΡΡΡ ΠΏΠΎΠ΄ΡΠ°Π±ΠΎΡΠΊΡ
Π’ΡΡΡΡΠΈ Π²ΡΠΏΡΡΠΊΠ½ΠΈΠΊΠΎΠ² ΠΏΡΠΎΠ³ΡΠ°ΠΌΠΌ ΠΈΠ· Π±ΠΎΠ»Π΅Π΅ ΡΠ΅ΠΌ 150 ΡΡΡΠ°Π½ ΠΏΠΎΠ΄Π΅Π»ΠΈΠ»ΠΈΡΡ ΡΠ²ΠΎΠΈΠΌΠΈ ΠΎΡΠ·ΡΠ²Π°ΠΌΠΈ ΠΎ ΡΠ²ΠΎΠ΅ΠΌ ΠΎΠΏΡΡΠ΅ ΡΠ°Π±ΠΎΡΡ Ρ ΠΏΡΠΎΠ³ΡΠ°ΠΌΠΌΠΎΠΉ.
Π§Π΅ΠΌ ΠΎΡΠ»ΠΈΡΠ°Π΅ΡΡΡ ΡΡΠ΅Π½ΠΈΡΠΎΠ²ΠΊΠ° High Ticket Closer ΠΎΡ Π΄ΡΡΠ³ΠΈΡ ΡΡΠ΅Π½ΠΈΡΠΎΠ²ΠΎΠΊ?
ΠΠΎΠ»ΡΡΠΈΠ² Π΄ΠΈΠΏΠ»ΠΎΠΌ Π² ΠΎΠ±Π»Π°ΡΡΠΈ Π±ΠΈΠ·Π½Π΅ΡΠ°, Π²Ρ ΠΏΠΎΠ»ΡΡΠΈΡΠ΅ ΡΠ΅ΡΡΠΈΠ·Π½Π°ΡΠ½ΡΡ Π·Π°ΡΠΏΠ»Π°ΡΡ ΠΏΠΎ ΠΏΡΠΎΡΠ΅ΡΡΠΈΠΈ, ΡΠ²ΡΠ·Π°Π½Π½ΠΎΠΉ Ρ Π±ΠΈΠ·Π½Π΅ΡΠΎΠΌ, Π½Π°ΠΏΡΠΈΠΌΠ΅Ρ, Π³Π»Π°Π²Π½ΡΠΉ ΠΈΡΠΏΠΎΠ»Π½ΠΈΡΠ΅Π»ΡΠ½ΡΠΉ Π΄ΠΈΡΠ΅ΠΊΡΠΎΡ, ΠΌΠ΅Π½Π΅Π΄ΠΆΠ΅Ρ ΠΏΠΎ ΠΌΠ°ΡΠΊΠ΅ΡΠΈΠ½Π³Ρ ΠΈ ΠΏΡΠΎΠ΄Π°ΠΆΠ°ΠΌ, ΡΠΈΠ½Π°Π½ΡΠΎΠ²ΡΠΉ Π°Π½Π°Π»ΠΈΡΠΈΠΊ ΠΈΠ»ΠΈ Π±ΡΡ Π³Π°Π»ΡΠ΅Ρ. ΠΠΎ ΠΏΡΠΈΠΌΠΈΡΠ΅ Π²ΠΎ Π²Π½ΠΈΠΌΠ°Π½ΠΈΠ΅ Π²ΡΠ΅ΠΌΠ΅Π½Π½ΡΠ΅ ΠΈ ΡΠΈΠ½Π°Π½ΡΠΎΠ²ΡΠ΅ Π·Π°ΡΡΠ°ΡΡ Π½Π° ΠΏΠΎΠ»ΡΡΠ΅Π½ΠΈΠ΅ ΠΊΠ²Π°Π»ΠΈΡΠΈΠΊΠ°ΡΠΈΠΈ: 3520 Π΄ΠΎΠ»Π»Π°ΡΠΎΠ² Π½Π° Π΄Π²ΡΡ Π»Π΅ΡΠ½ΡΡ ΠΏΡΠΎΠ³ΡΠ°ΠΌΠΌΡ ΠΈ 24 930 Π΄ΠΎΠ»Π»Π°ΡΠΎΠ² Π½Π° ΡΠ΅ΡΡΡΠ΅Ρ Π»Π΅ΡΠ½ΡΡ ΠΏΡΠΎΠ³ΡΠ°ΠΌΠΌΡ.
Π’Π°ΠΊΠΆΠ΅ ΠΌΠΎΠΆΠ½ΠΎ ΠΏΠΎΠ΄Π³ΠΎΡΠΎΠ²ΠΈΡΡΡΡ ΠΊ ΠΊΠ°ΡΡΠ΅ΡΠ΅, ΡΠ²ΡΠ·Π°Π½Π½ΠΎΠΉ Ρ ΠΏΡΠΎΠ΄Π°ΠΆΠ°ΠΌΠΈ, Π·Π° Π½Π΅ΡΠΊΠΎΠ»ΡΠΊΠΎ ΠΌΠ΅ΡΡΡΠ΅Π².ΠΠ΄Π½ΠΈΠΌ ΠΈΠ· ΠΏΡΠΈΠΌΠ΅ΡΠΎΠ² ΡΠ²Π»ΡΠ΅ΡΡΡ ΠΏΡΠΎΠ΄Π°ΠΆΠ° ΡΡΡΠ°Ρ ΠΎΠ²Π°Π½ΠΈΡ ΠΆΠΈΠ·Π½ΠΈ. ΠΡΡΡΠΈΠ΅ Π°Π³Π΅Π½ΡΡ ΠΌΠΎΠ³ΡΡ Π·Π°ΡΠ°Π±Π°ΡΡΠ²Π°ΡΡ ΡΠ΅ΡΡΠΈΠ·Π½Π°ΡΠ½ΡΡ Π·Π°ΡΠΏΠ»Π°ΡΡ Π² ΠΏΠ΅ΡΠ²ΡΠΉ Π³ΠΎΠ΄ ΡΠ°Π±ΠΎΡΡ, Π²Π»ΠΎΠΆΠΈΠ² Π²ΡΠ΅Π³ΠΎ Π½Π΅ΡΠΊΠΎΠ»ΡΠΊΠΎ ΡΡΡΡΡ Π΄ΠΎΠ»Π»Π°ΡΠΎΠ² Π² ΠΊΡΡΡΡ, ΡΠ΅ΡΡΡ ΠΈ Π»ΠΈΡΠ΅Π½Π·ΠΈΡΠΎΠ²Π°Π½ΠΈΠ΅.
ΠΠ΄Π½Π°ΠΊΠΎ ΠΈΠΌ Π½ΡΠΆΠ½ΠΎ Π±ΡΠ΄Π΅Ρ Π»ΠΈΠ±ΠΎ Π΄ΠΎΠ±ΠΈΡΠ°ΡΡΡΡ Π΄ΠΎ ΠΎΡΠΈΡΠ°, ΡΡΠΎΠ±Ρ Π²ΡΡΡΠ΅ΡΠΈΡΡΡΡ Ρ ΠΊΠ»ΠΈΠ΅Π½ΡΠ°ΠΌΠΈ, Π»ΠΈΠ±ΠΎ Π΅Ρ Π°ΡΡ Π΄ΠΎΠΌΠΎΠΉ ΠΊ ΠΊΠ»ΠΈΠ΅Π½ΡΡ. Π ΠΈΡ ΠΎΠ±ΡΠ·Π°Π½Π½ΠΎΡΡΠΈ ΡΠ°ΠΊΠΆΠ΅ Π²Ρ ΠΎΠ΄ΠΈΡ Π½Π°Π»Π°ΠΆΠΈΠ²Π°Π½ΠΈΠ΅ ΠΎΡΠ½ΠΎΡΠ΅Π½ΠΈΠΉ Ρ ΠΊΠ»ΠΈΠ΅Π½ΡΠ°ΠΌΠΈ ΠΏΠΎ ΡΠ΅Π»Π΅ΡΠΎΠ½Ρ ΠΈΠ»ΠΈ Π»ΠΈΡΠ½ΠΎ, ΡΡΠΎΠ±Ρ ΠΎΠ½ΠΈ ΠΌΠΎΠ³Π»ΠΈ ΡΠΎΠ²Π΅ΡΡΠ°ΡΡ ΠΏΡΠΎΠ΄Π°ΠΆΡ ΠΈΠ»ΠΈ ΠΏΠΎΠ΄Π΄Π΅ΡΠΆΠΈΠ²Π°ΡΡ ΠΏΠΎΡΡΠΎΡΠ½Π½ΡΠΉ Π±ΠΈΠ·Π½Π΅Ρ Ρ ΠΊΠ»ΠΈΠ΅Π½ΡΠΎΠΌ.
ΠΠΈΠ·Π½Ρ Ρ Π²ΡΡΠΎΠΊΠΈΠΌ Π±ΠΈΠ»Π΅ΡΠΎΠΌ. ΠΠ°ΠΆΠΌΠΈΡΠ΅, ΡΡΠΎΠ±Ρ Π½Π°ΠΏΠΈΡΠ°ΡΡ ΡΠ²ΠΈΡ.
ΠΠ±ΡΡΠ½ΡΠ΅ ΠΌΠ΅ΡΠΎΠ΄Ρ ΠΏΡΠΎΠ΄Π°ΠΆ, ΡΠ°ΠΊΠΈΠ΅ ΠΊΠ°ΠΊ ΡΠ΅Π»Π΅ΠΌΠ°ΡΠΊΠ΅ΡΠΈΠ½Π³ ΠΈ «ΠΎΡ Π΄Π²Π΅ΡΠΈ Π΄ΠΎ Π΄Π²Π΅ΡΠΈ», Π±ΠΎΠ»ΡΡΠ΅ Π½Π΅ Π±ΡΠ΄ΡΡ ΡΠΏΠΎΡΠΎΠ±ΠΎΠΌ Π²Π΅Π΄Π΅Π½ΠΈΡ Π±ΠΈΠ·Π½Π΅ΡΠ° Ρ ΠΏΠΎΡΡΠ΅Π±ΠΈΡΠ΅Π»ΡΠΌΠΈ.
ΠΠ±ΡΡΠ΅Π½ΠΈΠ΅ High Ticket Closer β’
ΠΠ½ΠΎΠ³ΠΈΠ΅ ΠΊΠΎΠΌΠΏΠ°Π½ΠΈΠΈ High Ticket Closer β’ Ρ ΠΎΡΡΡ ΠΈΠ·ΠΌΠ΅Π½ΠΈΡΡ ΡΠ²ΠΎΠ΅ ΡΠΈΠ½Π°Π½ΡΠΎΠ²ΠΎΠ΅ Π±ΡΠ΄ΡΡΠ΅Π΅. ΠΠ½ΠΈ Ρ ΠΎΡΡΡ ΡΠ²ΠΎΠ±ΠΎΠ΄Ρ ΡΡΡΠ°Π½Π°Π²Π»ΠΈΠ²Π°ΡΡ ΡΠ²ΠΎΠΈ ΡΠΎΠ±ΡΡΠ²Π΅Π½Π½ΡΠ΅ ΡΠ°ΡΡ ΡΠ°Π±ΠΎΡΡ, ΡΠ°Π±ΠΎΡΠ°ΡΡ ΠΈΠ· Π΄ΠΎΠΌΠ°, Π±ΡΡΡ ΡΠΎΠ±ΡΡΠ²Π΅Π½Π½ΡΠΌΠΈ Π½Π°ΡΠ°Π»ΡΠ½ΠΈΠΊΠ°ΠΌΠΈ ΠΈ ΠΏΠΎΠ»ΡΡΠ°ΡΡ Π²ΡΡΠΎΠΊΠΈΠΉ Π΄ΠΎΡ ΠΎΠ΄. ΠΡΡΠΎΠΊΠΎΠ³ΠΎ Π΄ΠΎΡ ΠΎΠ΄Π° — 10 000 Π΄ΠΎΠ»Π»Π°ΡΠΎΠ² ΠΈ Π±ΠΎΠ»Π΅Π΅ Π² ΠΌΠ΅ΡΡΡ — Π΄ΠΎΡΡΠ°ΡΠΎΡΠ½ΠΎ, ΡΡΠΎΠ±Ρ ΡΠΈΠ½Π°Π½ΡΠΎΠ²ΠΎ ΠΏΠΎΠ²Π»ΠΈΡΡΡ Π½Π° Π²Π°Ρ ΠΎΠ±ΡΠ°Π· ΠΆΠΈΠ·Π½ΠΈ.
ΠΠ±ΡΡΠ΅Π½ΠΈΠ΅ ΠΌΡΡΠ»Π΅Π½ΠΈΡ
ΠΡΡΡ Π±ΠΎΠ»ΡΡΠ°Ρ ΡΠ°Π·Π½ΠΈΡΠ° ΠΌΠ΅ΠΆΠ΄Ρ ΠΌΠ΅ΡΡΠΎΠΉ ΠΎ Π²ΡΡΠΎΠΊΠΎΠΌ Π΄ΠΎΡ ΠΎΠ΄Π΅ ΠΈ ΡΠ°ΠΊΡΠΈΡΠ΅ΡΠΊΠΈΠΌ ΠΏΠΎΠ»ΡΡΠ΅Π½ΠΈΠ΅ΠΌ ΡΠ°ΠΊΠΎΠ³ΠΎ Π΄ΠΎΡ ΠΎΠ΄Π°, ΠΎΡΠΎΠ±Π΅Π½Π½ΠΎ Π΅ΡΠ»ΠΈ Π²Ρ Π½ΠΈΠΊΠΎΠ³Π΄Π° ΡΠ°Π½ΡΡΠ΅ Π½Π΅ Π·Π°ΡΠ°Π±Π°ΡΡΠ²Π°Π»ΠΈ ΡΠ΅ΡΡΠΈΠ·Π½Π°ΡΠ½ΡΠ΅ ΡΡΠΌΠΌΡ.
Π‘ΡΡΠ΅ΡΡΠ²ΡΠ΅Ρ ΡΠ°ΠΊΠΆΠ΅ ΠΏΡΠΈΡ ΠΎΠ»ΠΎΠ³ΠΈΡΠ΅ΡΠΊΠΈΠΉ ΡΠ΄Π²ΠΈΠ³, ΠΊΠΎΡΠΎΡΡΠΉ Π΄ΠΎΠ»ΠΆΠ΅Π½ ΠΏΡΠΎΠΈΠ·ΠΎΠΉΡΠΈ, Π΅ΡΠ»ΠΈ Π²Ρ ΠΏΡΠΈΠ²ΡΠΊΠ»ΠΈ ΠΏΠΎΠ»ΡΡΠ°ΡΡ ΡΠ΅Π³ΡΠ»ΡΡΠ½ΡΡ Π·Π°ΡΠΏΠ»Π°ΡΡ Π·Π° ΠΊΠ°ΠΆΠ΄ΡΠΉ ΡΠ°Ρ ΡΠ°Π±ΠΎΡΡ. ΠΠ»Π°ΡΠ° Π·Π° ΡΡΡΡΠΎΠΉΡΡΠ²ΠΎ High Ticket Closers Π²Π·ΠΈΠΌΠ°Π΅ΡΡΡ Π½Π° ΠΎΡΠ½ΠΎΠ²Π΅ ΠΊΠΎΠΌΠΈΡΡΠΈΠΈ, ΠΏΠΎΡΡΠΎΠΌΡ ΠΎΡΡΡΡΡΡΠ²ΠΈΠ΅ ΠΏΡΠΎΠ΄Π°ΠΆΠΈ ΠΎΠ·Π½Π°ΡΠ°Π΅Ρ ΠΎΡΡΡΡΡΡΠ²ΠΈΠ΅ ΠΎΠΏΠ»Π°ΡΡ. Π‘ Π΄ΡΡΠ³ΠΎΠΉ ΡΡΠΎΡΠΎΠ½Ρ, Π·Π°ΠΊΡΡΡΠΈΠ΅ Π΄Π»Ρ ΠΏΡΠΎΠ΄ΡΠΊΡΠΎΠ² Ρ Π²ΡΡΠΎΠΊΠΎΠΉ ΡΡΠΎΠΈΠΌΠΎΡΡΡΡ ΡΠ°ΠΊΠΆΠ΅ ΠΎΠ·Π½Π°ΡΠ°Π΅Ρ Π±ΠΎΠ»ΡΡΡΡ ΠΊΠΎΠΌΠΈΡΡΠΈΡ Π²ΡΠ΅Π³ΠΎ Π·Π° Π½Π΅ΡΠΊΠΎΠ»ΡΠΊΠΎ ΡΠ°ΡΠΎΠ² ΡΠ°Π±ΠΎΡΡ.
ΠΠΎΠ»ΡΡΠ°Ρ ΡΠ°ΡΡΡ ΠΎΠ±ΡΡΠ΅Π½ΠΈΡ ΡΠΎΠΌΡ, ΡΡΠΎΠ±Ρ ΡΡΠ°ΡΡ ΡΡΠΏΠ΅ΡΠ½ΡΠΌ Π² ΡΠ±Π»ΠΈΠΆΠ΅Π½ΠΈΠΈ, ΡΠΎΡΡΠ΅Π΄ΠΎΡΠΎΡΠ΅Π½Π° ΡΠΎΠ»ΡΠΊΠΎ Π½Π° ΡΠΎΡΠΌΠΈΡΠΎΠ²Π°Π½ΠΈΠΈ ΡΡΠΎΠ³ΠΎ Π±ΠΎΠ»Π΅Π΅ Π±Π»ΠΈΠ·ΠΊΠΎΠ³ΠΎ ΠΌΡΡΠ»Π΅Π½ΠΈΡ.
- ΠΠΎΠ½ΠΈΠΌΠ°Ρ, ΡΡΠΎ ΠΏΠΎ ΠΌΠ΅ΡΠ΅ ΠΏΡΠΈΠ±Π»ΠΈΠΆΠ΅Π½ΠΈΡ Π²Π°ΡΠ° ΡΠ΅Π»Ρ — ΠΏΠΎΠΌΠΎΡΡ ΠΏΠΎΡΠ΅Π½ΡΠΈΠ°Π»ΡΠ½ΠΎΠΌΡ ΠΊΠ»ΠΈΠ΅Π½ΡΡ, ΠΈΠ·ΠΌΠ΅Π½ΠΈΠ² Π΅Π³ΠΎ ΠΆΠΈΠ·Π½Ρ.ΠΡΠ»ΠΈ Π²Ρ Π½Π΅ Π²Π΅ΡΠΈΡΠ΅ Π² ΠΏΡΠΎΠ΄ΡΠΊΡ, ΠΊΠΎΡΠΎΡΡΠΉ ΠΏΡΠΎΠ΄Π°Π΅ΡΠ΅, Π²Π°ΠΌ Π±ΡΠ΄Π΅Ρ ΡΠ»ΠΎΠΆΠ½ΠΎ ΠΏΡΠΎΠ΄Π°Π²Π°ΡΡ.
- Π‘ΡΠΈΡΠ°Ρ, ΡΡΠΎ Π΄Π΅Π½ΡΠ³ΠΈ — ΡΡΠΎ Π½ΠΈ Ρ ΠΎΡΠΎΡΠΎ, Π½ΠΈ ΠΏΠ»ΠΎΡ ΠΎ. ΠΡ Π½Π΅ ΠΌΠΎΠΆΠ΅ΡΠ΅ ΡΡΠ°ΡΡ Π±ΠΎΠ³Π°ΡΡΠΌ, Π΅ΡΠ»ΠΈ Π½Π΅ Π»ΡΠ±ΠΈΡΠ΅ Π±ΠΎΠ³Π°ΡΡΡ ΠΈΠ»ΠΈ Π½Π΅ Π²Π΅ΡΠΈΡΠ΅, ΡΡΠΎ Π·Π°ΡΠ»ΡΠΆΠΈΠ²Π°Π΅ΡΠ΅ ΡΠ»ΡΡΡΠ΅Π½ΠΈΡ ΡΠ²ΠΎΠ΅ΠΉ ΠΆΠΈΠ·Π½ΠΈ ΠΈΠ»ΠΈ ΠΆΠΈΠ·Π½ΠΈ ΡΠ΅Ρ , ΠΊΠΎΠ³ΠΎ Π²Ρ Π»ΡΠ±ΠΈΡΠ΅, ΠΈΠΌΠ΅Ρ Π΄Π΅Π½ΡΠ³ΠΈ.
- ΠΠ΅ ΡΠ΄Π°Π²Π°ΡΡΡΡ, Π΄Π°ΠΆΠ΅ Π΅ΡΠ»ΠΈ Π΄ΡΡΠ·ΡΡ ΠΈ ΡΠ΅ΠΌΡΡ Π½Π΅ ΠΏΠΎΠ΄Π΄Π΅ΡΠΆΠΈΠ²Π°ΡΡ Π²Π°Ρ Π²ΡΠ±ΠΎΡ ΠΊΠ°ΡΡΠ΅ΡΡ.
- ΠΠ΅ΠΊΠΎΡΠΎΡΡΠ΅ Π΄Π½ΠΈ Π±ΡΠ΄ΡΡ ΡΡΠΆΠ΅Π»ΡΠΌΠΈ. Π£ Π²Π°Ρ ΠΌΠΎΠΆΠ΅Ρ Π±ΡΡΡ Π½Π΅ΡΠΊΠΎΠ»ΡΠΊΠΎ Π·Π°ΠΊΡΡΡΠΈΠΉ ΠΏΠΎΠ΄ΡΡΠ΄, Π° Π·Π°ΡΠ΅ΠΌ Π²Ρ Π½Π΅ ΠΌΠΎΠΆΠ΅ΡΠ΅ Π·Π°ΠΊΡΡΡΡΡΡ Π² ΡΠ΅ΡΠ΅Π½ΠΈΠ΅ ΠΌΠ½ΠΎΠ³ΠΈΡ Π΄Π½Π΅ΠΉ.ΠΠ°Ρ Π΄ΠΎΡ ΠΎΠ΄ Π±ΡΠ΄Π΅Ρ ΠΊΠ°ΡΠ°ΡΡΡΡ Π½Π° Π°ΠΌΠ΅ΡΠΈΠΊΠ°Π½ΡΠΊΠΈΡ Π³ΠΎΡΠΊΠ°Ρ , ΠΊΠΎΠ³Π΄Π° Π²Ρ Π·Π°ΡΠ°Π±Π°ΡΡΠ²Π°Π΅ΡΠ΅ ΠΊΠΎΠΌΠΈΡΡΠΈΠΎΠ½Π½ΡΠ΅, ΠΈΠ»ΠΈ Π½ΠΈΡΠ΅Π³ΠΎ Π½Π΅ Π·Π°ΡΠ°Π±Π°ΡΡΠ²Π°Π΅ΡΠ΅, ΡΡΠ°Π½ΠΎΠ²ΡΡΡ Π±ΠΎΠ»Π΅Π΅ ΡΡΠ°Π±ΠΈΠ»ΡΠ½ΡΠΌ ΠΏΠΎ ΠΌΠ΅ΡΠ΅ ΡΠΎΠ³ΠΎ, ΠΊΠ°ΠΊ Π²Ρ ΡΠ»ΡΡΡΠ°Π΅ΡΠ΅ ΡΠ²ΠΎΠΈ Π½Π°Π²ΡΠΊΠΈ.
ΠΠ°ΠΊ High Ticket Closer β’ Π²Ρ Π½Π΅ ΠΌΠΎΠΆΠ΅ΡΠ΅ ΠΏΠΎΠ·Π²ΠΎΠ»ΠΈΡΡ ΡΠ΅Π±Π΅ ΠΏΡΠΈΠΎΠ±ΡΠ΅ΡΡΠΈ ΠΊΠΎΠΌΠΏΠ»Π΅ΠΊΡ ΠΏΡΠ΅Π²ΠΎΡΡ ΠΎΠ΄ΡΡΠ²Π°, Π΄ΡΠΌΠ°Ρ, ΡΡΠΎ Π²Π°ΡΠΈ Π½Π°Π²ΡΠΊΠΈ Π΄Π΅Π»Π°ΡΡ Π²Π°Ρ Π»ΡΡΡΠ΅, ΡΠ΅ΠΌ ΡΡΠ΅Π΄Π½ΠΈΠΉ ΠΏΡΠΎΠ΄Π°Π²Π΅Ρ. ΠΡ Π½Π΅ ΠΌΠΎΠΆΠ΅ΡΠ΅ ΠΏΠΎΠ·Π²ΠΎΠ»ΠΈΡΡ, ΡΡΠΎΠ±Ρ Π²Π°ΡΠ° ΠΏΠΎΡΠ»Π΅Π΄Π½ΡΡ Π½Π°Π³ΡΠ°Π΄Π° ΠΊΠ°ΠΊ Π±ΠΎΠ»Π΅Π΅ Π±Π»ΠΈΠ·ΠΊΠ°Ρ, ΠΏΡΠΈΠ΄Π°Π»Π° Π²Π°ΠΌ ΡΡΠ²ΡΡΠ²ΠΎ Π½Π΅ΠΏΠΎΠ±Π΅Π΄ΠΈΠΌΠΎΡΡΠΈ. Π ΡΠ΅ΡΠ΅Π½ΠΈΠ΅ Π²Π°ΡΠ΅ΠΉ ΠΊΠ°ΡΡΠ΅ΡΡ Ρ Π²Π°Ρ Π³Π°ΡΠ°Π½ΡΠΈΡΠΎΠ²Π°Π½Π½ΠΎ Π±ΡΠ΄ΡΡ Ρ ΠΎΡΠΎΡΠΈΠ΅ ΠΈ ΠΏΠ»ΠΎΡ ΠΈΠ΅ Π΄Π½ΠΈ.
Π€ΠΎΡΠΌΠΈΡΠΎΠ²Π°Π½ΠΈΠ΅ ΡΠ°ΠΊΠΎΠ³ΠΎ ΡΠΈΠ»ΡΠ½ΠΎΠ³ΠΎ ΠΌΡΡΠ»Π΅Π½ΠΈΡ — ΠΎΡΠ½ΠΎΠ²Π° Π±ΠΎΠ»Π΅Π΅ Π±Π»ΠΈΠ·ΠΊΠΎΠ³ΠΎ ΠΎΠ±ΡΡΠ΅Π½ΠΈΡ, ΠΏΡΠ΅ΠΆΠ΄Π΅ ΡΠ΅ΠΌ ΠΎΠ½ΠΈ Π½Π°ΡΡΠ°Ρ Π²Π°Ρ Π΄ΡΡΠ³ΠΈΠΌ Π½Π°Π²ΡΠΊΠ°ΠΌ.
ΠΠ°Π²ΡΠΊΠΈ Π·Π°Π²Π΅ΡΡΠ΅Π½ΠΈΡ
Π£ΠΌΠ΅Π½ΠΈΠ΅ ΠΏΠΎΠ΄Π΄Π΅ΡΠΆΠΈΠ²Π°ΡΡ ΠΊΠΎΠ½ΡΡΠΎΠ»Ρ Π½Π°Π΄ Π±Π΅ΡΠ΅Π΄ΠΎΠΉ, Π° ΡΠ°ΠΊΠΆΠ΅ ΠΎΠΊΠ°Π·ΡΠ²Π°ΡΡ Π²Π»ΠΈΡΠ½ΠΈΠ΅ Π½Π° ΠΏΠΎΡΠ΅Π½ΡΠΈΠ°Π»ΡΠ½ΠΎΠ³ΠΎ ΠΊΠ»ΠΈΠ΅Π½ΡΠ° ΠΈ ΡΠ±Π΅ΠΆΠ΄Π°ΡΡ Π΅Π³ΠΎ — ΠΎΠ΄Π½ΠΈ ΠΈΠ· ΡΠ°ΠΌΡΡ ΠΌΠΎΡΠ½ΡΡ Π½Π°Π²ΡΠΊΠΎΠ², ΠΊΠΎΡΠΎΡΡΠ΅ Π²Ρ ΡΡΠ²ΠΎΠΈΡΠ΅ ΠΏΠΎ ΠΌΠ΅ΡΠ΅ ΠΏΡΠΈΠ±Π»ΠΈΠΆΠ΅Π½ΠΈΡ.
ΠΠ°ΠΊ High Ticket Closer β’ Π²Ρ ΡΡΠ°Π½ΠΎΠ²ΠΈΡΠ΅ΡΡ ΠΏΡΠΎΡΠ΅ΡΡΠΈΠΎΠ½Π°Π»ΠΎΠΌ, ΠΊΠ°ΠΊ Π²ΡΠ°Ρ.
ΠΡΠ΄ΠΈ ΠΏΡΠΈΡ ΠΎΠ΄ΡΡ ΠΊ Π²Π°ΠΌ, ΡΡΠΎΠ±Ρ Π½Π°ΠΉΡΠΈ ΡΠ΅ΡΠ΅Π½ΠΈΠ΅ ΠΈΡ ΠΏΡΠΎΠ±Π»Π΅ΠΌΡ, ΠΏΠΎΡΠΎΠΌΡ ΡΡΠΎ Π²Ρ ΡΠ²Π»ΡΠ΅ΡΠ΅ΡΡ ΡΠΊΡΠΏΠ΅ΡΡΠΎΠΌ.
ΠΡ ΡΠ·Π½Π°Π΅ΡΠ΅, ΠΊΠ°ΠΊ ΡΠΎΠ½ Π²Π°ΡΠ΅Π³ΠΎ Π³ΠΎΠ»ΠΎΡΠ° Π²Π»ΠΈΡΠ΅Ρ Π½Π° ΠΈΡΡ ΠΎΠ΄ ΡΠ°Π·Π³ΠΎΠ²ΠΎΡΠ°. ΠΠΎΡΠΊΠΎΠ»ΡΠΊΡ Π²Ρ Π±ΡΠ΄Π΅ΡΠ΅ Π·Π°ΠΊΡΡΠ²Π°ΡΡ ΡΠ°Π·Π³ΠΎΠ²ΠΎΡ ΠΏΠΎ ΡΠ΅Π»Π΅ΡΠΎΠ½Ρ, Π²Π°Ρ Π³ΠΎΠ»ΠΎΡ ΠΈΠ³ΡΠ°Π΅Ρ ΠΊΠ»ΡΡΠ΅Π²ΡΡ ΡΠΎΠ»Ρ.
ΠΠ±ΡΠ΅Π½ΠΈΠ΅ — ΡΡΠΎ 55% ΡΠ·ΡΠΊΠ° ΡΠ΅Π»Π°, 38% ΡΠΎΠ½Π°Π»ΡΠ½ΠΎΡΡΠΈ ΠΈ 7% ΡΠ»ΠΎΠ². Click To Tweet
ΠΠΎ Π²ΡΠ΅ΠΌΡ ΡΠ΅Π»Π΅ΡΠΎΠ½Π½ΠΎΠ³ΠΎ Π·Π²ΠΎΠ½ΠΊΠ° ΡΡΠΈ 38% Π΅ΡΠ΅ Π±ΠΎΠ»Π΅Π΅ Π²Π°ΠΆΠ½Ρ Π΄Π»Ρ ΡΡΡΠ°Π½ΠΎΠ²Π»Π΅Π½ΠΈΡ Π²Π·Π°ΠΈΠΌΠΎΠΏΠΎΠ½ΠΈΠΌΠ°Π½ΠΈΡ Ρ Π²Π°ΡΠΈΠΌ ΠΏΠΎΡΠ΅Π½ΡΠΈΠ°Π»ΡΠ½ΡΠΌ ΠΊΠ»ΠΈΠ΅Π½ΡΠΎΠΌ, ΡΡΠΎΠ±Ρ ΠΎΠ½ ΠΎΡΠΊΡΡΠ»ΡΡ Π²Π°ΠΌ. ΠΡΠ»ΠΈ Π²Π°Ρ ΠΏΠΎΡΠ΅Π½ΡΠΈΠ°Π»ΡΠ½ΡΠΉ ΠΊΠ»ΠΈΠ΅Π½Ρ Π½Π΅ ΠΌΠΎΠΆΠ΅Ρ Π²Π°ΠΌ Π΄ΠΎΠ²Π΅ΡΡΡΡ, Π²Ρ Π½Π΅ ΡΠΌΠΎΠΆΠ΅ΡΠ΅ Π΅Π³ΠΎ Π·Π°ΠΊΡΡΡΡ. ΠΠ°ΡΡΠΈΡΡΡΡ Π·Π°Π΄Π°Π²Π°ΡΡ ΠΏΡΠ°Π²ΠΈΠ»ΡΠ½ΡΠ΅ Π²ΠΎΠΏΡΠΎΡΡ — ΡΡΠΎ ΠΎΠ΄ΠΈΠ½ ΠΈΠ· ΡΠΏΠΎΡΠΎΠ±ΠΎΠ² ΡΠ΄Π΅Π»Π°ΡΡ ΠΈΡ ΠΎΡΠΊΡΡΡΡΠΌΠΈ Π΄Π»Ρ Π²Π°Ρ.
Π£ΠΌΠ΅Π½ΠΈΠ΅ Π²Π»ΠΈΡΡΡ ΠΈ ΡΠ±Π΅ΠΆΠ΄Π°ΡΡ ΡΠ²ΠΎΠΈΡ ΠΏΠΎΡΠ΅Π½ΡΠΈΠ°Π»ΡΠ½ΡΡ ΠΊΠ»ΠΈΠ΅Π½ΡΠΎΠ² ΡΠ°ΠΊΠΆΠ΅ ΡΠ²Π»ΡΠ΅ΡΡΡ ΠΊΠ»ΡΡΠ΅Π²ΡΠΌ Π½Π°Π²ΡΠΊΠΎΠΌ ΠΏΡΠΎΠ΄Π°ΠΆ. ΠΡ Π½Π΅ Π±ΡΠ΄Π΅ΡΠ΅ Π΄Π΅Π»Π°ΡΡ Π½ΠΈΡΠ΅Π³ΠΎ Π½Π΅ΡΡΠΈΡΠ½ΠΎΠ³ΠΎ, Π½Π°ΠΏΡΠΈΠΌΠ΅Ρ, ΡΠ±Π΅ΠΆΠ΄Π°ΡΡ ΠΈΡ ΠΊΡΠΏΠΈΡΡ ΠΏΡΠ΅Π΄Π»ΠΎΠΆΠ΅Π½ΠΈΠ΅, ΠΊΠΎΠ³Π΄Π° ΠΎΠ½ΠΈ Π²Π°ΠΌ Π½Π΅ ΠΏΠΎΠ΄Ρ ΠΎΠ΄ΡΡ.ΠΠ°ΠΆΠ΅ Π΅ΡΠ»ΠΈ Π²Ρ ΡΠ±Π΅Π΄ΠΈΡΠ΅ ΠΈΡ ΠΊΡΠΏΠΈΡΡ Π½Π΅ΠΏΠΎΠ΄Ρ ΠΎΠ΄ΡΡΠ΅Π΅ ΠΏΡΠ΅Π΄Π»ΠΎΠΆΠ΅Π½ΠΈΠ΅, ΠΎΠ½ΠΈ ΠΌΠΎΠ³ΡΡ ΠΎΡΠΌΠ΅Π½ΠΈΡΡ Π² Π±ΡΠ΄ΡΡΠ΅ΠΌ.
ΠΡΠΌΠ΅Π½Π° ΠΈΠ»ΠΈ Π²ΠΎΠ·Π²ΡΠ°Ρ ΠΏΠΎΠ²Π»ΠΈΡΠ΅Ρ Π½Π° ΠΊΠΎΡΡΡΠΈΡΠΈΠ΅Π½Ρ Π·Π°ΠΊΡΡΡΠΈΡ ΠΈ ΠΊΠΎΠΌΠΈΡΡΠΈΡ. Π‘Π°ΠΌΠΎΠ΅ Π³Π»Π°Π²Π½ΠΎΠ΅, Π΅ΡΠ»ΠΈ Π²Ρ ΠΏΡΠΈΠ±Π΅Π³Π½Π΅ΡΠ΅ ΠΊ ΡΠΊΠΎΠ»ΡΠ·ΠΊΠΎΠΉ ΡΠ°ΠΊΡΠΈΠΊΠ΅ ΠΏΡΠΎΠ΄Π°ΠΆ, ΡΡΠΎ Π½Π°Π½Π΅ΡΠ΅Ρ ΡΡΠ΅ΡΠ± Π²Π°ΡΠ΅ΠΉ ΡΠ΅ΠΏΡΡΠ°ΡΠΈΠΈ ΠΊΠ°ΠΊ ΠΏΡΠΎΡΠ΅ΡΡΠΈΠΎΠ½Π°Π»ΡΠ½ΠΎΠ³ΠΎ ΠΏΡΠΎΠ΄Π°Π²ΡΠ°.
Π§Π°ΡΠ΅ Π²ΡΠ΅Π³ΠΎ Π²Π°ΡΠ° ΡΠΈΠ»Π° ΡΠ±Π΅ΠΆΠ΄Π΅Π½ΠΈΡ ΠΈΡΠΏΠΎΠ»ΡΠ·ΡΠ΅ΡΡΡ, ΠΊΠΎΠ³Π΄Π° Π²Π°Ρ ΠΏΠΎΡΠ΅Π½ΡΠΈΠ°Π»ΡΠ½ΡΠΉ ΠΊΠ»ΠΈΠ΅Π½Ρ ΡΠΈΠ»ΡΠ½ΠΎ Π½Π΅ΡΠ²Π΅ΡΠ΅Π½ Π² ΡΠ΅Π±Π΅. ΠΠΎΡΠ΅Π½ΡΠΈΠ°Π»ΡΠ½ΡΠΉ ΠΊΠ»ΠΈΠ΅Π½Ρ ΠΌΠΎΠΆΠ΅Ρ ΠΈΠ΄Π΅Π°Π»ΡΠ½ΠΎ ΠΏΠΎΠ΄Ρ ΠΎΠ΄ΠΈΡΡ Π΄Π»Ρ ΠΏΡΠΎΠ³ΡΠ°ΠΌΠΌΡ, ΠΊΠΎΡΠΎΡΡΡ Π²Ρ Π·Π°ΠΊΡΡΠ²Π°Π΅ΡΠ΅, Π½ΠΎ ΠΎΠ½ Π±ΠΎΠΈΡΡΡ, ΡΡΠΎ ΠΏΡΠΎΠ²Π°Π»ΠΈΡ Π΅ΡΠ΅ ΠΎΠ΄Π½Ρ ΡΠΈΡΠ½Π΅Ρ-ΠΏΡΠΎΠ³ΡΠ°ΠΌΠΌΡ.ΠΠΌ Π½ΡΠΆΠ½ΠΎ Π±ΡΠ΄Π΅Ρ, ΡΡΠΎΠ±Ρ Π²Ρ ΡΠ±Π΅Π΄ΠΈΠ»ΠΈ ΠΈΡ , ΡΡΠΎ Π½Π° ΡΡΠΎΡ ΡΠ°Π· ΡΠ΅Π·ΡΠ»ΡΡΠ°Ρ Π±ΡΠ΄Π΅Ρ Π΄ΡΡΠ³ΠΈΠΌ.
Π§Π΅ΠΌ Π±Π»ΠΈΠΆΠ΅, ΡΠ΅ΠΌ Π²Ρ ΠΏΠΎΠ΄ΡΠΎΠ»ΠΊΠ½Π΅ΡΠ΅ ΠΈΡ ΠΊ ΡΠΈΠ½ΠΈΡΡ, ΠΈ ΠΊΠΎΠ³Π΄Π° ΠΎΠ½ΠΈ ΠΏΠΎΠ΄ΠΏΠΈΡΡΡΡΡ Π½Π° ΠΏΡΠΎΠ³ΡΠ°ΠΌΠΌΡ, ΠΎΠ½ΠΈ Π±ΡΠ΄ΡΡ Π²Π°ΠΌ Π±Π»Π°Π³ΠΎΠ΄Π°ΡΠ½Ρ.
ΠΠΎΡΠΌΠΎΡΡΠΈΡΠ΅ ΡΡΠΎ Π²ΠΈΠ΄Π΅ΠΎ ΠΎ ΡΠΈΠ»Π΅ ΡΠ±Π΅ΠΆΠ΄Π΅Π½ΠΈΡ.
ΠΠ°Π²ΡΠΊΠΈ ΠΏΡΠΎΠ΄Π°ΠΆ, ΠΊΠΎΡΠΎΡΡΠ΅ Π²Ρ ΠΏΡΠΈΠΎΠ±ΡΠ΅ΡΠ°Π΅ΡΠ΅ ΠΊΠ°ΠΊ High Ticket Closer β’, ΠΏΡΠΈΠΌΠ΅Π½ΠΈΠΌΡ Π½Π΅ ΡΠΎΠ»ΡΠΊΠΎ ΠΊ ΠΏΡΠΎΠ΄Π°ΠΆΠ°ΠΌ. ΠΡΠΏΡΡΠΊΠ½ΠΈΠΊΠΈ Π·Π°ΠΌΠ΅ΡΠΈΠ»ΠΈ ΠΈΠ·ΠΌΠ΅Π½Π΅Π½ΠΈΡ Π²ΠΎ Π²ΡΠ΅Ρ Π°ΡΠΏΠ΅ΠΊΡΠ°Ρ ΡΠ²ΠΎΠ΅ΠΉ ΠΆΠΈΠ·Π½ΠΈ.ΠΠΎΠ³Π΄Π° Π²Ρ Π³ΠΎΠ²ΠΎΡΠΈΡΠ΅ ΠΏΠΎ ΡΠ΅Π»Π΅ΡΠΎΠ½Ρ, Π²Ρ Π·Π°ΠΊΡΡΠ²Π°Π΅ΡΠ΅ΡΡ Π½Π΅ ΠΏΡΠΎΡΡΠΎ ΡΠ°ΠΊ.
Π’Ρ Π²ΡΠ΅Π³Π΄Π° Π·Π°ΠΊΡΡΠ²Π°Π΅ΡΡΡΡ. ΠΡ Π·Π°ΠΌΠ΅ΡΠΈΡΠ΅ ΡΠ»ΡΡΡΠ΅Π½ΠΈΡ Π² Π²Π°ΡΠΈΡ Π»ΠΈΡΠ½ΡΡ ΠΎΡΠ½ΠΎΡΠ΅Π½ΠΈΡΡ ΠΈ Π² ΡΠΎΠΌ, ΠΊΠ°ΠΊ Π²Ρ ΠΎΠ±ΡΠ°Π΅ΡΠ΅ΡΡ Ρ Π΄ΡΡΠ·ΡΡΠΌΠΈ ΠΈ ΡΠ΅ΠΌΡΠ΅ΠΉ. ΠΡΠΏΡΡΠΊΠ½ΠΈΠΊΠΈ ΡΠΊΠ°Π·Π°Π»ΠΈ, ΡΡΠΎ ΠΎΠ½ΠΈ ΡΡΠ°Π»ΠΈ Π»ΡΡΡΠ΅ ΡΠ»ΡΡΠ°ΡΡ, ΡΠΌΠ΅Π½ΡΡΠ°Ρ ΡΡΠ΅Π½ΠΈΡ Π² ΠΎΡΠ½ΠΎΡΠ΅Π½ΠΈΡΡ .
ΠΠΎΠ³Π΄Π° Π²Ρ Π²ΡΡ ΠΎΠ΄ΠΈΡΠ΅ Π½Π° ΡΠ»ΠΈΡΡ, Π²Ρ ΡΡΠ²ΡΡΠ²ΡΠ΅ΡΠ΅ Π½ΠΎΠ²ΡΡ ΡΠ²Π΅ΡΠ΅Π½Π½ΠΎΡΡΡ, ΠΊΠΎΠ³Π΄Π° ΡΠ°Π·Π³ΠΎΠ²Π°ΡΠΈΠ²Π°Π΅ΡΠ΅ Ρ Π»ΡΠ΄ΡΠΌΠΈ Π² ΡΠ΅ΡΡΠΎΡΠ°Π½Π°Ρ , ΠΌΠ°Π³Π°Π·ΠΈΠ½Π°Ρ ΠΈ ΠΏΡΠΈ Π΄ΡΡΠ³ΠΈΡ ΠΏΠΎΠ²ΡΠ΅Π΄Π½Π΅Π²Π½ΡΡ ΠΎΠ±ΡΠ΅Π½ΠΈΡΡ . ΠΡ ΠΌΠΎΠΆΠ΅ΡΠ΅ ΠΈΡΠΏΠΎΠ»ΡΠ·ΠΎΠ²Π°ΡΡ ΡΠ²ΠΎΠΈ Π½Π°Π²ΡΠΊΠΈ ΡΠ±Π΅ΠΆΠ΄Π΅Π½ΠΈΡ, ΡΡΠΎΠ±Ρ ΡΠ»ΡΡΡΠΈΡΡ ΡΠ²ΠΎΠΉ Π½ΠΎΠΌΠ΅Ρ Π² ΠΎΡΠ΅Π»Π΅ ΠΈΠ»ΠΈ ΠΏΠΎΠ»ΡΡΠΈΡΡ Π±ΠΎΠ»Π΅Π΅ Π²ΡΠ³ΠΎΠ΄Π½ΡΡ ΡΠ΄Π΅Π»ΠΊΡ ΠΏΠΎ ΡΠ΅Π»Π΅Π²ΠΈΠ·ΠΎΡΡ.
ΠΠ°ΠΊΡΡΡΠΈΠ΅ Π±ΠΈΠ·Π½Π΅ΡΠ° — ΡΡΠΎ Π½Π΅ ΠΏΡΠΎΡΡΠΎ ΠΏΡΠΎΡΠ΅ΡΡΠΈΡ. ΠΡΠΎ ΡΡΠΈΠ»Ρ ΠΆΠΈΠ·Π½ΠΈ.
ΠΠ°ΠΊ ΠΏΡΠΎΠ²Π΅ΡΠΈΡΡ, ΡΠ΅ΡΡΠΈΡΠΈΡΠΈΡΠΎΠ²Π°Π½ Π»ΠΈ High Ticket Closer β’ ΠΈΠ»ΠΈ ΠΏΠΎΠ΄Π΄Π΅Π»ΡΠ½ΡΠΉ
ΠΠΎ ΠΎΠΊΠΎΠ½ΡΠ°Π½ΠΈΠΈ ΠΎΠ±ΡΡΠ΅Π½ΠΈΡ High Ticket Closer β’ ΠΏΠΎΠ»ΡΡΠ°ΡΡ ΠΏΠΎΠ΄ΠΏΠΈΡΠ°Π½Π½ΡΠΉ ΡΠ΅ΡΡΠΈΡΠΈΠΊΠ°Ρ ΡΠΎ ΡΠ²ΠΎΠΈΠΌ ΠΈΠΌΠ΅Π½Π΅ΠΌ ΠΈ Π΄Π°ΡΠΎΠΉ Π·Π°Π²Π΅ΡΡΠ΅Π½ΠΈΡ ΠΏΡΠΎΠ³ΡΠ°ΠΌΠΌΡ.
ΠΠ½ΠΎΠ³ΠΈΠ΅ Π΄ΠΎΠ±Π°Π²Π»ΡΡΡ Π½Π°Π·Π²Π°Π½ΠΈΠ΅ ΠΈ Π»ΠΎΠ³ΠΎΡΠΈΠΏ High Ticket Closer β’ (HTC) Π² ΠΎΠ±Π»Π°ΡΡΡ Π±Π°Π½Π½Π΅ΡΠ° ΡΠ²ΠΎΠΈΡ ΠΏΡΠΎΡΠΈΠ»Π΅ΠΉ LinkedIn ΠΈ Facebook ΠΈ ΠΈΡΠΏΠΎΠ»ΡΠ·ΡΡΡ High Ticket Closer Π² ΠΊΠ°ΡΠ΅ΡΡΠ²Π΅ Π½Π°Π·Π²Π°Π½ΠΈΡ. ΠΠ΅ΠΊΠΎΡΠΎΡΡΠ΅ ΠΏΡΠΎΠ΄Π°Π²ΡΡ Π΄ΠΎΠ±Π°Π²ΠΈΠ»ΠΈ Π±Π°Π½Π½Π΅Ρ ΠΈ Π»ΠΎΠ³ΠΎΡΠΈΠΏ HTC Π² ΡΠ²ΠΎΠΉ ΠΏΡΠΎΡΠΈΠ»Ρ, Ρ ΠΎΡΡ ΠΎΠ½ΠΈ Π½Π΅ ΠΏΡΠΎΡΠ»ΠΈ ΠΎΠ±ΡΡΠ΅Π½ΠΈΠ΅ ΠΈ Π½Π΅ ΠΏΡΠΎΡΠ»ΠΈ ΡΠ΅ΡΡΠΈΡΠΈΠΊΠ°ΡΠΈΡ.
ΠΡΠΏΡΡΠΊΠ½ΠΈΠΊ ΠΏΡΠΎΠ³ΡΠ°ΠΌΠΌΡ ΠΎΠ±Π»Π°Π΄Π°Π΅Ρ Π²ΡΡΠΎΠΊΠΈΠΌ ΠΏΡΠΎΡΠ΅ΡΡΠΈΠΎΠ½Π°Π»ΠΈΠ·ΠΌΠΎΠΌ, Π½Π΅ Π·Π°Π½ΠΈΠΌΠ°Π΅ΡΡΡ ΠΏΡΠΎΠ΄Π°ΠΆΠ΅ΠΉ ΠΈ Ρ ΠΎΡΠΎΡΠΎ ΠΏΡΠ΅Π΄ΡΡΠ°Π²Π»ΡΠ΅Ρ Π±ΡΠ΅Π½Π΄.
High Ticket Closers β’ Π½Π΅ ΠΏΡΠ΅ΡΠ»Π΅Π΄ΡΡΡ Π²Π»ΠΈΡΡΠ΅Π»ΡΠ½ΡΡ Π»ΠΈΡ ΠΈΠ»ΠΈ ΠΏΠΎΡΠ΅Π½ΡΠΈΠ°Π»ΡΠ½ΡΡ ΠΊΠ»ΠΈΠ΅Π½ΡΠΎΠ². ΠΠ½ΠΈ Π½Π΅ ΠΏΡΠ΅Π΄Π»Π°Π³Π°ΡΡ ΡΠ²ΠΎΠΈ ΡΡΠ»ΡΠ³ΠΈ Π² ΠΊΠ°ΡΠ΅ΡΡΠ²Π΅ Π΄ΠΎΠ²ΠΎΠ΄ΡΠΈΠΊΠ°, Π΅ΡΠ»ΠΈ Π΄ΡΡΠ³Π°Ρ ΡΡΠΎΡΠΎΠ½Π° Π½Π΅ ΡΠΏΡΠΎΡΠΈΡ, ΡΡΠΎ ΠΎΠ½ΠΈ Π΄Π΅Π»Π°ΡΡ, ΠΈΠ»ΠΈ Π½Π΅ Π²ΡΡΠ°Π·ΠΈΡ ΠΏΠΎΡΡΠ΅Π±Π½ΠΎΡΡΡ Π² Π΄ΠΎΠ²ΠΎΠ΄ΡΠΈΠΊΠ΅.
ΠΠΎΠ·ΠΆΠ΅ Π² ΡΡΠΎΠΌ Π³ΠΎΠ΄Ρ ΠΏΠ»Π°ΡΡΠΎΡΠΌΠ° Closers.com ΡΡΠ°Π½Π΅Ρ ΠΏΠ»Π°ΡΡΠΎΡΠΌΠΎΠΉ Π΄Π»Ρ ΠΏΡΠ΅Π΄Π²Π°ΡΠΈΡΠ΅Π»ΡΠ½ΠΎ ΠΊΠ²Π°Π»ΠΈΡΠΈΡΠΈΡΠΎΠ²Π°Π½Π½ΡΡ ΠΈ ΠΏΡΠΎΠ²Π΅ΡΠ΅Π½Π½ΡΡ Π΄ΠΎΠ²ΠΎΠ΄ΡΠΈΠΊΠΎΠ². High Ticket Closers β’, ΠΏΡΠΈΡΡΡΡΡΠ²ΡΡΡΠΈΠ΅ Π½Π° ΠΏΠ»Π°ΡΡΠΎΡΠΌΠ΅, Π³Π°ΡΠ°Π½ΡΠΈΡΠΎΠ²Π°Π½Π½ΠΎ ΡΠ²Π»ΡΡΡΡΡ ΡΠ΅ΡΡΠΈΡΠΈΡΠΈΡΠΎΠ²Π°Π½Π½ΡΠΌΠΈ ΡΠΏΠ΅ΡΠΈΠ°Π»ΠΈΡΡΠ°ΠΌΠΈ ΠΏΠΎ ΠΏΡΠΎΠ΄Π°ΠΆΠ°ΠΌ, ΠΏΡΠΎΡΠ΅Π΄ΡΠΈΠΌΠΈ Π±ΠΎΠ»Π΅Π΅ ΡΡΠ°ΡΠ΅Π»ΡΠ½ΡΡ ΠΏΠΎΠ΄Π³ΠΎΡΠΎΠ²ΠΊΡ.
ΠΠ΅ΡΠ΅ΠΉΡΠΈ ΠΊ Π³Π»Π°Π²Π΅ 4
Π£ΡΠΏΠ΅ΡΠ½ΡΠΉ High Ticket Closer β’ ΠΈΠΌΠ΅Π΅Ρ Π±ΠΎΠ»ΡΡΠ΅, ΡΠ΅ΠΌ ΠΏΡΠΎΡΡΠΎ Π²ΠΎΠ·ΠΌΠΎΠΆΠ½ΠΎΡΡΡ Π·Π°ΠΊΡΡΡΡ ΡΠ΄Π΅Π»ΠΊΡ. ΠΠΎΠ²ΠΎΠ΄ΡΠΈΠΊ ΠΎΠ±Π»Π°Π΄Π°Π΅Ρ ΠΎΠΏΡΠ΅Π΄Π΅Π»Π΅Π½Π½ΡΠΌ ΡΡΠΎΠ²Π½Π΅ΠΌ Π²Π»Π°Π΄Π΅Π½ΠΈΡ ΡΡΠ΄ΠΎΠΌ ΠΏΠ΅ΡΠ΅Π΄Π°Π²Π°Π΅ΠΌΡΡ ΠΎΡΠ½ΠΎΠ²Π½ΡΡ Π½Π°Π²ΡΠΊΠΎΠ², ΠΊΠΎΡΠΎΡΡΠ΅ Π½Π΅ΠΎΠ±Ρ ΠΎΠ΄ΠΈΠΌΡ Π΄Π»Ρ ΠΊΠ°ΡΠ΅ΡΡΠ²Π΅Π½Π½ΠΎΠ³ΠΎ Π²ΡΠΏΠΎΠ»Π½Π΅Π½ΠΈΡ ΡΠ²ΠΎΠ΅ΠΉ ΡΠ°Π±ΠΎΡΡ ΠΈ Π°Π΄Π°ΠΏΡΠ°ΡΠΈΠΈ ΠΊ ΠΈΠ·ΠΌΠ΅Π½Π΅Π½ΠΈΡΠΌ Π² ΡΠ²ΠΎΠ΅ΠΉ ΠΎΡΡΠ°ΡΠ»ΠΈ.
Π§ΡΠΎ ΡΠ°ΠΊΠΎΠ΅ ΠΏΠ΅ΡΠ΅Π΄Π°Π²Π°Π΅ΠΌΡΠ΅ Π½Π°Π²ΡΠΊΠΈ? ΠΡΠΎ Π½Π°Π²ΡΠΊΠΈ, ΠΊΠΎΡΠΎΡΡΠ΅ Π»ΡΠ΄ΠΈ ΠΌΠΎΠ³ΡΡ ΠΏΠ΅ΡΠ΅Π½Π΅ΡΡΠΈ ΠΈΠ· ΠΎΠ΄Π½ΠΎΠΉ ΠΊΠ°ΡΡΠ΅ΡΡ Π² Π΄ΡΡΠ³ΡΡ. ΠΠ°ΠΏΡΠΈΠΌΠ΅Ρ, ΡΡ Π΅ΠΌΡ ΠΈ ΡΠ΅ΡΡΠ΅ΠΆΠΈ, ΠΊΠΎΡΠΎΡΡΠ΅ ΡΠΈΡΠ°ΡΡ ΠΈΠ½ΠΆΠ΅Π½Π΅ΡΡ, ΠΏΠΎ ΡΠΎΠ΄Π΅ΡΠΆΠ°Π½ΠΈΡ ΠΈ Π²Π½Π΅ΡΠ½Π΅ΠΌΡ Π²ΠΈΠ΄Ρ ΠΎΡΠ»ΠΈΡΠ°ΡΡΡΡ ΠΎΡ ΡΡ Π΅ΠΌ, ΠΈΡΠΏΠΎΠ»ΡΠ·ΡΠ΅ΠΌΡΡ Ρ ΡΠ΄ΠΎΠΆΠ½ΠΈΠΊΠΎΠΌ ΠΏΠΎ ΡΡΠ΅ΠΊΠ»Ρ.
ΠΠ΄Π½Π°ΠΊΠΎ, Π΅ΡΠ»ΠΈ Π²Π°Ρ ΡΡΠΎΠ²Π΅Π½Ρ Π½Π°Π²ΡΠΊΠΎΠ² ΡΡΠ΅Π½ΠΈΡ ΡΠ»ΠΎΠΆΠ½ΡΡ Π΄ΠΈΠ°Π³ΡΠ°ΠΌΠΌ ΠΈ ΡΠ΅ΡΡΠ΅ΠΆΠ΅ΠΉ Π²ΡΡΠΎΠΊ, ΡΠΎ Π²Π°ΡΠ° ΡΠΏΠΎΡΠΎΠ±Π½ΠΎΡΡΡ ΡΠΈΡΠ°ΡΡ Π½Π΅Π·Π½Π°ΠΊΠΎΠΌΡΠ΅ Π΄ΠΈΠ°Π³ΡΠ°ΠΌΠΌΡ ΠΈΠ· Π΄ΡΡΠ³ΠΎΠΉ ΠΎΡΡΠ°ΡΠ»ΠΈ ΡΠ°ΠΊΠΆΠ΅ Π±ΡΠ΄Π΅Ρ Π½Π° Π²ΡΡΠΎΠΊΠΎΠΌ ΡΡΠΎΠ²Π½Π΅. ΠΡΠ΄ΠΈ Ρ Π²ΡΡΠΎΠΊΠΈΠΌ ΡΡΠΎΠ²Π½Π΅ΠΌ Π²Π»Π°Π΄Π΅Π½ΠΈΡ ΠΏΠ΅ΡΠ΅Π΄Π°Π²Π°Π΅ΠΌΡΠΌΠΈ ΠΎΡΠ½ΠΎΠ²Π½ΡΠΌΠΈ Π½Π°Π²ΡΠΊΠ°ΠΌΠΈ ΡΠΌΠΎΠ³ΡΡ Π°Π΄Π°ΠΏΡΠΈΡΠΎΠ²Π°ΡΡΡΡ ΠΊ Π½ΠΎΠ²ΡΠΌ Π·Π°Π½ΡΡΠΈΡΠΌ Π½Π°ΠΌΠ½ΠΎΠ³ΠΎ Π±ΡΡΡΡΠ΅Π΅, ΡΠ΅ΠΌ Π»ΡΠ΄ΠΈ Ρ Π½ΠΈΠ·ΠΊΠΈΠΌΠΈ Π½Π°Π²ΡΠΊΠ°ΠΌΠΈ.
ΠΠ°Π²ΡΠΊΠΈ ΡΡΠ΅Π½ΠΈΡ
ΠΠ°ΠΊΠΈΠ΅ Π΄ΠΎΠΊΡΠΌΠ΅Π½ΡΡ ΡΠΈΡΠ°ΡΡ Π΄ΠΎΠ²ΠΎΠ΄ΡΠΈΠΊΠΈ ΠΈ ΠΊΠ°ΠΊ ΡΠ°ΡΡΠΎ ΠΎΠ½ΠΈ ΡΠΈΡΠ°ΡΡ ΡΡΠΎΡ ΡΠΈΠΏ?
ΠΠΎΠ³Π΄Π° High Ticket Closer β’ Π½Π°ΡΠΈΠ½Π°Π΅Ρ ΡΠ°Π±ΠΎΡΠ°ΡΡ Ρ Π½ΠΎΠ²ΡΠΌ Π²Π»ΠΈΡΡΠ΅Π»ΡΠ½ΡΠΌ Π»ΠΈΡΠΎΠΌ ΠΈΠ»ΠΈ Π±ΠΈΠ·Π½Π΅Ρ-Π°ΠΊΠΊΠ°ΡΠ½ΡΠΎΠΌ, ΠΎΠ½ΠΈ ΠΏΠΎΠ΄ΠΏΠΈΡΡΡ ΡΠΎΠ³Π»Π°ΡΠ΅Π½ΠΈΠ΅.ΠΡΠΎΡ ΡΡΠΈΠ΄ΠΈΡΠ΅ΡΠΊΠΈΠΉ Π΄ΠΎΠΊΡΠΌΠ΅Π½Ρ, NDA (ΡΠΎΠ³Π»Π°ΡΠ΅Π½ΠΈΠ΅ ΠΎ Π½Π΅ΡΠ°Π·Π³Π»Π°ΡΠ΅Π½ΠΈΠΈ), ΡΠΎΠ΄Π΅ΡΠΆΠΈΡ ΠΏΠΎΠ΄ΡΠΎΠ±Π½ΡΡ ΠΈΠ½ΡΠΎΡΠΌΠ°ΡΠΈΡ ΠΎ ΡΠ°Π±ΠΎΡΠΈΡ ΠΎΡΠ½ΠΎΡΠ΅Π½ΠΈΡΡ . Π’Π°ΠΌ Π±ΡΠ΄Π΅Ρ ΠΏΠΎΠ΄ΡΠΎΠ±Π½Π°Ρ ΠΈΠ½ΡΠΎΡΠΌΠ°ΡΠΈΡ ΠΎ ΡΠΎΠΌ, Π½Π° ΠΊΠΎΠ³ΠΎ ΠΎΠ½ΠΈ ΡΠ°Π±ΠΎΡΠ°ΡΡ, ΠΎΠ± ΡΡΠ»ΠΎΠ²ΠΈΡΡ ΡΠ°Π±ΠΎΡΡ Ρ Π²Π»ΠΈΡΡΠ΅Π»ΡΠ½ΡΠΌ Π»ΠΈΡΠΎΠΌ ΠΈ ΠΎ ΡΠΎΠΌ, ΠΊΠ°ΠΊ ΠΈΠΌ Π±ΡΠ΄ΡΡ ΠΏΠ»Π°ΡΠΈΡΡ.
ΠΠΆΠ΅Π΄Π½Π΅Π²Π½ΠΎΠ΅ ΡΡΠ΅Π½ΠΈΠ΅ Π΄ΠΎΠ²ΠΎΠ΄ΡΠΈΠΊΠΎΠ² Π½Π° ΡΠ°Π±ΠΎΡΠ΅ Π΄ΠΎΠ²ΠΎΠ»ΡΠ½ΠΎ ΡΡΡΠΈΠ½Π½ΠΎ.
ΠΠΎΠ²ΠΎΠ΄ΡΠΈΠΊΠΈ ΡΠΈΡΠ°ΡΡ ΠΊΠΎΠΌΠΏΡΡΡΠ΅ΡΠΈΠ·ΠΈΡΠΎΠ²Π°Π½Π½ΡΠ΅ ΡΠ°ΡΠΏΠΈΡΠ°Π½ΠΈΡ Π±ΡΠΎΠ½ΠΈΡΠΎΠ²Π°Π½ΠΈΡ Π΄Π»Ρ ΠΏΠΎΠ»ΡΡΠ΅Π½ΠΈΡ ΠΈΠ½ΡΠΎΡΠΌΠ°ΡΠΈΠΈ ΠΎ Π²ΡΠ΅ΠΌΠ΅Π½ΠΈ Π²ΡΡΡΠ΅ΡΠΈ. ΠΠ½ΠΈ Π²ΡΠ΄Π΅Π»ΡΡΡ Π±Π»ΠΎΠΊΠΈ Π²ΡΠ΅ΠΌΠ΅Π½ΠΈ, ΠΊΠΎΠ³Π΄Π° ΠΎΠ½ΠΈ ΠΌΠΎΠ³ΡΡ ΠΏΡΠΈΠ½ΠΈΠΌΠ°ΡΡ Π·Π²ΠΎΠ½ΠΊΠΈ, Π° Π·Π°ΡΠ΅ΠΌ ΠΏΡΠΎΠ²Π΅ΡΡΡΡ, ΠΊΠ°ΠΊΠΈΠ΅ Π²ΡΠ΅ΠΌΠ΅Π½Π½ΡΠ΅ ΠΈΠ½ΡΠ΅ΡΠ²Π°Π»Ρ Π·Π°Π½ΡΡΡ ΠΏΠΎΡΠ΅Π½ΡΠΈΠ°Π»ΡΠ½ΡΠΌΠΈ ΠΊΠ»ΠΈΠ΅Π½ΡΠ°ΠΌΠΈ.
ΠΠΎΠ²ΠΎΠ΄ΡΠΈΠΊΠΈ, Π²Ρ ΠΎΠ΄ΡΡΠΈΠ΅ Π² ΡΠΎΡΡΠ°Π² Π±ΡΠΈΠ³Π°Π΄Ρ, ΠΌΠΎΠ³ΡΡ ΠΊΠΎΠΎΡΠ΄ΠΈΠ½ΠΈΡΠΎΠ²Π°ΡΡ ΡΠ²ΠΎΠΈ ΡΠ°ΡΠΏΠΈΡΠ°Π½ΠΈΡ ΡΠ°ΠΊΠΈΠΌ ΠΎΠ±ΡΠ°Π·ΠΎΠΌ, ΡΡΠΎΠ±Ρ ΠΎΡ Π²Π°ΡΠΈΡΡ Π²ΡΠ΅ Π²ΡΠ΅ΠΌΠ΅Π½Π½ΡΠ΅ ΠΎΡΡΠ΅Π·ΠΊΠΈ Π² ΡΠ΅ΡΠ΅Π½ΠΈΠ΅ 24-ΡΠ°ΡΠΎΠ²ΠΎΠ³ΠΎ ΠΏΠ΅ΡΠΈΠΎΠ΄Π°.
ΠΠ±ΡΡΠ½ΠΎΠΉ ΡΠ°ΡΡΡΡ ΡΡΡΠΈΠ½Ρ Π΄ΠΎΠ²ΠΎΠ΄ΡΠΈΠΊΠ° ΡΠ²Π»ΡΠ΅ΡΡΡ ΡΡΠ΅Π½ΠΈΠ΅ ΡΠ΅ΠΊΡΡΠΎΠ² ΠΎΡΠ²Π΅ΡΠΎΠ² ΠΈ ΡΠ»Π΅ΠΊΡΡΠΎΠ½Π½ΡΡ ΠΏΠΈΡΠ΅ΠΌ ΠΎΡ ΠΏΠΎΡΠ΅Π½ΡΠΈΠ°Π»ΡΠ½ΠΎΠ³ΠΎ ΠΊΠ»ΠΈΠ΅Π½ΡΠ°. ΠΡΠΈ ΡΠΎΠΎΠ±ΡΠ΅Π½ΠΈΡ ΠΎΠ±ΡΡΠ½ΠΎ ΠΎΡΠ½ΠΎΡΡΡΡΡ ΠΊ Π½Π°ΠΏΠΎΠΌΠΈΠ½Π°Π½ΠΈΡΠΌ ΠΎ ΠΏΡΠ΅Π΄ΡΡΠΎΡΡΠ΅ΠΉ Π²ΡΡΡΠ΅ΡΠ΅ ΠΈΠ»ΠΈ ΠΎ ΠΏΠΎΡΠ»Π΅Π΄ΡΡΡΠΈΡ Π΄Π΅ΠΉΡΡΠ²ΠΈΡΡ ΠΏΠΎΡΠ»Π΅ Π²ΡΡΡΠ΅ΡΠΈ.
ΠΠ΅ΠΊΠΎΡΠΎΡΡΠ΅, Π½ΠΎ Π½Π΅ Π²ΡΠ΅, Π΄ΠΎΠ²ΠΎΠ΄ΡΠΈΠΊΠΈ Π΄ΠΎΠ»ΠΆΠ½Ρ ΡΠΈΡΠ°ΡΡ ΠΈ ΡΠ»Π΅Π΄ΠΎΠ²Π°ΡΡ ΡΡΠ΅Π½Π°ΡΠΈΡ Π²ΠΎ Π²ΡΠ΅ΠΌΡ Π²Ρ ΠΎΠ΄ΡΡΠ΅Π³ΠΎ ΡΠΎΡΠ³ΠΎΠ²ΠΎΠ³ΠΎ Π·Π²ΠΎΠ½ΠΊΠ°. ΠΡΠΏΠΎΠ»ΡΠ·ΠΎΠ²Π°Π½ΠΈΠ΅ ΡΡΠ΅Π½Π°ΡΠΈΡ Π·Π°Π²ΠΈΡΠΈΡ ΠΎΡ ΠΏΠΎΠ»ΠΈΡΠΈΠΊΠΈ ΡΠ΅Π»ΠΎΠ²Π΅ΠΊΠ° ΠΈΠ»ΠΈ ΠΊΠΎΠΌΠΏΠ°Π½ΠΈΠΈ, Π½Π° ΠΊΠΎΡΠΎΡΡΡ ΡΠ°Π±ΠΎΡΠ°Π΅Ρ Π±Π»ΠΈΠΆΠ΅.
ΠΠ°ΠΊΠΎΠΉ ΡΡΠΎΠ²Π΅Π½Ρ Π½Π°Π²ΡΠΊΠΎΠ² ΡΡΠ΅Π½ΠΈΡ Π²Π°ΠΌ Π½ΡΠΆΠ΅Π½ ΠΊΠ°ΠΊ Π΄ΠΎΠ²ΠΎΠ΄ΡΠΈΠΊ?
Π£ΡΠΎΠ²Π΅Π½Ρ Π½Π°Π²ΡΠΊΠΎΠ² ΡΡΠ΅Π½ΠΈΡ, Π½Π΅ΠΎΠ±Ρ ΠΎΠ΄ΠΈΠΌΡΠΉ Π΄Π»Ρ Π±Π»ΠΈΠ·ΠΊΠΈΡ , Π΄ΠΎΠ²ΠΎΠ»ΡΠ½ΠΎ ΡΡΠ΅Π΄Π½ΠΈΠΉ ΠΏΠΎ ΡΡΠ°Π²Π½Π΅Π½ΠΈΡ Ρ Π½Π°Π²ΡΠΊΠ°ΠΌΠΈ ΡΡΠ΅Π½ΠΈΡ, Π½Π΅ΠΎΠ±Ρ ΠΎΠ΄ΠΈΠΌΡΠΌΠΈ Π΄Π»Ρ Π±ΠΎΠ»ΡΡΠΈΠ½ΡΡΠ²Π° ΠΏΡΠΎΡΠ΅ΡΡΠΈΠΉ. ΠΠΌ Π½ΡΠΆΠ½ΠΎ Π±ΡΠ΄Π΅Ρ ΡΠ΄Π΅Π»Π°ΡΡ Π½Π΅ΠΊΠΎΡΠΎΡΡΠ΅ Π²ΡΠ²ΠΎΠ΄Ρ, ΡΡΠΎΠ±Ρ Π½Π°ΠΉΡΠΈ ΠΈΠ½ΡΠΎΡΠΌΠ°ΡΠΈΡ ΠΈΠ· ΡΠ²ΠΎΠ΅Π³ΠΎ ΡΡΡΠ΄ΠΎΠ²ΠΎΠ³ΠΎ ΠΊΠΎΠ½ΡΡΠ°ΠΊΡΠ° ΠΈΠ»ΠΈ ΡΠ΄Π΅Π»Π°ΡΡ Π²ΡΠ²ΠΎΠ΄ ΠΎΠ± ΠΈΡΡΠΈΠ½Π½ΡΡ Π½Π°ΠΌΠ΅ΡΠ΅Π½ΠΈΡΡ ΠΏΠΎΡΠ΅Π½ΡΠΈΠ°Π»ΡΠ½ΠΎΠ³ΠΎ ΠΊΠ»ΠΈΠ΅Π½ΡΠ° Π² ΡΠ»Π΅ΠΊΡΡΠΎΠ½Π½ΠΎΠΌ ΠΏΠΈΡΡΠΌΠ΅.
ΠΠΎΠ»Π΅Π΅ ΠΎΠΏΡΡΠ½ΡΠ΅ Π΄ΠΎΠ²ΠΎΠ΄ΡΠΈΠΊΠΈ ΡΡΠΈΡΠ°ΡΡ ΠΎΡΠ²Π΅ΡΡ ΠΏΠΎ ΡΠ»Π΅ΠΊΡΡΠΎΠ½Π½ΠΎΠΉ ΠΏΠΎΡΡΠ΅ ΠΎΠ±ΡΡΠ½ΡΠΌΠΈ, ΠΏΠΎΡΠΎΠΌΡ ΡΡΠΎ ΠΎΠ½ΠΈ ΠΏΡΠΎΡΠΈΡΠ°Π»ΠΈ Π½Π°ΠΈΠ±ΠΎΠ»Π΅Π΅ ΡΠΈΠΏΠΈΡΠ½ΡΠ΅ ΠΎΡΠ²Π΅ΡΡ ΠΏΠΎ ΡΠ»Π΅ΠΊΡΡΠΎΠ½Π½ΠΎΠΉ ΠΏΠΎΡΡΠ΅.
ΠΠ°Π²ΡΠΊΠΈ ΠΏΠΈΡΡΠΌΠ°
Π§ΡΠΎ ΠΏΠΈΡΡΡ High Ticket Closers β’ ΠΈ ΠΊΠ°ΠΊ ΡΠ°ΡΡΠΎ?
Π₯ΠΎΡΠΎΡΠΈΠ΅ Π½Π°Π²ΡΠΊΠΈ ΠΊΠΎΠΏΠΈΡΠ°ΠΉΡΠΈΠ½Π³Π° — Π±ΠΎΠ½ΡΡ, Π½ΠΎ Π½Π΅ ΠΎΠ±ΡΠ·Π°ΡΠ΅Π»ΡΠ½ΡΠΉ Π΄Π»Ρ Π΄ΠΎΠ²ΠΎΠ΄ΡΠΈΠΊΠΎΠ².ΠΠΎΠ»ΡΡΠ°Ρ ΡΠ°ΡΡΡ Π½Π°ΠΏΠΈΡΠ°Π½Π½ΡΡ ΠΈΠΌΠΈ ΠΏΠΈΡΠ΅ΠΌ ΡΠΎΠΎΡΠ²Π΅ΡΡΡΠ²ΡΠ΅Ρ ΡΡΠ°Π½Π΄Π°ΡΡΠΈΠ·ΠΈΡΠΎΠ²Π°Π½Π½ΠΎΠΌΡ ΡΠΎΡΠΌΠ°ΡΡ, ΠΏΠΎΡΡΠΎΠΌΡ ΠΎΠ½ΠΈ ΠΌΠΎΠ³ΡΡ ΠΊΠΎΠΏΠΈΡΠΎΠ²Π°ΡΡ ΠΈΠ· ΠΏΡΠ΅Π΄ΡΠ΄ΡΡΠΈΡ ΠΏΠΈΡΠ΅ΠΌ, ΠΊΠΎΡΠΎΡΡΠ΅ ΠΎΠ½ΠΈ Π½Π°ΠΏΠΈΡΠ°Π»ΠΈ.
ΠΠ»Π΅ΠΊΡΡΠΎΠ½Π½ΡΠ΅ ΠΏΠΈΡΡΠΌΠ° ΠΎΡΠΏΡΠ°Π²Π»ΡΡΡΡΡ Π΄ΠΎ ΠΈ ΠΏΠΎΡΠ»Π΅ ΡΠ΅Π»Π΅ΡΠΎΠ½Π½ΠΎΠ³ΠΎ Π·Π²ΠΎΠ½ΠΊΠ° ΠΈ ΠΈΡΠΏΠΎΠ»ΡΠ·ΡΡΡΡΡ Π΄Π»Ρ ΠΏΠΎΡΡΡΠΎΠ΅Π½ΠΈΡ ΠΎΡΠ½ΠΎΡΠ΅Π½ΠΈΠΉ Ρ ΠΏΠΎΡΠ΅Π½ΡΠΈΠ°Π»ΡΠ½ΡΠΌ ΠΊΠ»ΠΈΠ΅Π½ΡΠΎΠΌ Π΄ΠΎ ΠΈ ΠΏΠΎΡΠ»Π΅ ΠΏΠ΅ΡΠ²ΠΎΠΉ Π²ΡΡΡΠ΅ΡΠΈ. ΠΡΠ»ΠΈ ΠΏΠΎΡΠ΅Π½ΡΠΈΠ°Π»ΡΠ½ΡΠΉ ΠΊΠ»ΠΈΠ΅Π½Ρ Π½Π΅ ΡΠ²ΠΈΠ»ΡΡ, Π±ΠΎΠ»Π΅Π΅ Π±Π»ΠΈΠ·ΠΊΠΈΠΉ ΠΌΠΎΠΆΠ΅Ρ ΠΎΡΠΏΡΠ°Π²ΠΈΡΡ ΡΠ»Π΅ΠΊΡΡΠΎΠ½Π½ΠΎΠ΅ ΠΏΠΈΡΡΠΌΠΎ, ΠΎΡΠΈΠ΅Π½ΡΠΈΡΠΎΠ²Π°Π½Π½ΠΎΠ΅ Π½Π° ΡΠ΅Π½Π½ΠΎΡΡΡ, ΡΡΠΎΠ±Ρ ΠΏΠΎΠΊΠ°Π·Π°ΡΡ ΠΈΠΌ ΡΠ΅Π½Π½ΠΎΡΡΡ ΠΏΡΠ΅Π΄Π»ΠΎΠΆΠ΅Π½ΠΈΡ, Π² ΠΊΠΎΡΠΎΡΠΎΠΌ Π±ΡΠ» Π·Π°ΠΈΠ½ΡΠ΅ΡΠ΅ΡΠΎΠ²Π°Π½ ΠΏΠΎΡΠ΅Π½ΡΠΈΠ°Π»ΡΠ½ΡΠΉ ΠΊΠ»ΠΈΠ΅Π½Ρ.
ΠΡΠΈ ΡΠ»Π΅ΠΊΡΡΠΎΠ½Π½ΡΠ΅ ΠΏΠΈΡΡΠΌΠ° ΡΠ²Π»ΡΡΡΡΡ ΠΎΠ±ΡΡΠ½ΡΠΌΠΈ, ΠΏΠΎΡΡΠΎΠΌΡ Π΄ΠΎΠ²ΠΎΠ΄ΡΠΈΠΊΠΈ Π΄ΠΎΠ±Π°Π²Π»ΡΡΡ ΠΈΠ½ΡΠΎΡΠΌΠ°ΡΠΈΡ Π² ΡΡΠ°Π½Π΄Π°ΡΡΠΈΠ·ΠΈΡΠΎΠ²Π°Π½Π½ΠΎΠ΅ ΡΠ»Π΅ΠΊΡΡΠΎΠ½Π½ΠΎΠ΅ ΠΏΠΈΡΡΠΌΠΎ, ΡΡΠΎΠ±Ρ ΠΏΠ΅ΡΡΠΎΠ½Π°Π»ΠΈΠ·ΠΈΡΠΎΠ²Π°ΡΡ Π΅Π³ΠΎ Π΄Π»Ρ ΠΊΠ°ΠΆΠ΄ΠΎΠ³ΠΎ. ΠΏΠ΅ΡΡΠΏΠ΅ΠΊΡΠΈΠ²Π°.ΠΠ΅ΡΡΠΎΠ½Π°Π»ΠΈΠ·Π°ΡΠΈΡ ΠΏΠΎΠΌΠΎΠ³Π°Π΅Ρ ΡΡΡΠ°Π½ΠΎΠ²ΠΈΡΡ Π²Π·Π°ΠΈΠΌΠΎΠΏΠΎΠ½ΠΈΠΌΠ°Π½ΠΈΠ΅ Ρ ΠΏΠΎΡΠ΅Π½ΡΠΈΠ°Π»ΡΠ½ΡΠΌ ΠΊΠ»ΠΈΠ΅Π½ΡΠΎΠΌ. ΠΡΠΎ Π²Π·Π°ΠΈΠΌΠΎΠΏΠΎΠ½ΠΈΠΌΠ°Π½ΠΈΠ΅ ΠΎΡΠΎΠ±Π΅Π½Π½ΠΎ ΠΏΠΎΠ»Π΅Π·Π½ΠΎ, Π΅ΡΠ»ΠΈ Π±ΠΎΠ»Π΅Π΅ Π±Π»ΠΈΠ·ΠΊΠΈΠΉ ΠΎΠΏΠ°Π·Π΄ΡΠ²Π°Π΅Ρ Π½Π° Π·Π²ΠΎΠ½ΠΎΠΊ, ΠΏΠΎΡΠΎΠΌΡ ΡΡΠΎ ΠΏΠΎΡΠ΅Π½ΡΠΈΠ°Π»ΡΠ½ΡΠΉ ΠΊΠ»ΠΈΠ΅Π½Ρ ΠΎΠ±ΡΡΠ½ΠΎ Π±ΠΎΠ»Π΅Π΅ ΡΠ½ΠΈΡΡ ΠΎΠ΄ΠΈΡΠ΅Π»Π΅Π½. Π£Π΄Π°ΡΠ½ΡΠΉ ΡΠΎΡΠΌΠ°Ρ ΡΠ»Π΅ΠΊΡΡΠΎΠ½Π½ΠΎΠΉ ΠΏΠΎΡΡΡ ΠΌΠΎΠΆΠ½ΠΎ ΠΈΡΠΏΠΎΠ»ΡΠ·ΠΎΠ²Π°ΡΡ ΠΌΠ½ΠΎΠ³ΠΎ ΡΠ°Π·.
ΠΠΎΠ²ΠΎΠ΄ΡΠΈΠΊΠΈ ΠΌΠΎΠ³ΡΡ ΡΠ°ΠΊΠΆΠ΅ ΠΎΡΠΏΡΠ°Π²Π»ΡΡΡ ΠΊΠΎΡΠΎΡΠΊΠΈΠ΅ ΡΠ΅ΠΊΡΡΠΎΠ²ΡΠ΅ ΡΠΎΠΎΠ±ΡΠ΅Π½ΠΈΡ ΠΏΠΎΡΠ΅Π½ΡΠΈΠ°Π»ΡΠ½ΡΠΌ ΠΊΠ»ΠΈΠ΅Π½ΡΠ°ΠΌ, ΡΡΠΎΠ±Ρ Π½Π°ΠΏΠΎΠΌΠΈΠ½Π°ΡΡ ΠΈΠΌ ΠΎ Π²ΡΡΡΠ΅ΡΠ°Ρ . ΠΡΠΈ ΡΠΎΠΎΠ±ΡΠ΅Π½ΠΈΡ ΡΠ»Π΅Π΄ΡΡΡ ΡΡΡΠ°Π½ΠΎΠ²Π»Π΅Π½Π½ΠΎΠΌΡ ΡΠΎΡΠΌΠ°ΡΡ, ΠΊΠΎΡΠΎΡΡΠΉ ΠΌΠΎΠΆΠ½ΠΎ ΡΠΊΠΎΠΏΠΈΡΠΎΠ²Π°ΡΡ. Π Π½Π΅ΠΊΠΎΡΠΎΡΡΡ ΡΠ»ΡΡΠ°ΡΡ ΡΡΠΈ ΡΠ΅ΠΊΡΡΡ Π½Π°ΠΏΠΎΠΌΠΈΠ½Π°Π½ΠΈΠΉ Π°Π²ΡΠΎΠΌΠ°ΡΠΈΠ·ΠΈΡΡΡΡΡΡ. ΠΠ΅ΠΊΠΎΡΠΎΡΡΠ΅ ΠΏΠΎΡΠ»Π΅Π΄ΠΎΠ²Π°ΡΠ΅Π»ΡΠ½ΠΎΡΡΠΈ ΡΠ»Π΅ΠΊΡΡΠΎΠ½Π½ΡΡ ΠΏΠΈΡΠ΅ΠΌ ΡΠ°ΠΊΠΆΠ΅ ΠΌΠΎΠΆΠ½ΠΎ Π°Π²ΡΠΎΠΌΠ°ΡΠΈΠ·ΠΈΡΠΎΠ²Π°ΡΡ.
ΠΠΎ Π²ΡΠ΅ΠΌΡ Π²ΡΡΡΠ΅ΡΠΈ Ρ ΠΏΠΎΡΠ΅Π½ΡΠΈΠ°Π»ΡΠ½ΡΠΌ ΠΊΠ»ΠΈΠ΅Π½ΡΠΎΠΌ Π² Ρ ΠΎΠ΄Π΅ Π²Ρ ΠΎΠ΄ΡΡΠ΅ΠΉ ΠΏΡΠΎΠ΄Π°ΠΆΠΈ Π½Π°ΠΈΠ±ΠΎΠ»Π΅Π΅ Π±Π»ΠΈΠ·ΠΊΠΈΠΉ Π±ΡΠ΄Π΅Ρ Π΄Π΅Π»Π°ΡΡ ΡΡΠΊΠΎΠΏΠΈΡΠ½ΡΠ΅ Π·Π°ΠΌΠ΅ΡΠΊΠΈ ΠΎ ΡΠΎΠΌ, ΡΡΠΎ Π³ΠΎΠ²ΠΎΡΠΈΡ ΠΏΠΎΡΠ΅Π½ΡΠΈΠ°Π»ΡΠ½ΡΠΉ ΠΊΠ»ΠΈΠ΅Π½Ρ.ΠΠ½ΠΈ Π±ΡΠ΄ΡΡ ΠΎΡΠΌΠ΅ΡΠ°ΡΡ Π² ΡΠ²ΠΎΠΈΡ Π·Π°ΠΌΠ΅ΡΠΊΠ°Ρ ΠΊΠ»ΡΡΠ΅Π²ΡΠ΅ ΠΈΠ΄Π΅ΠΈ ΠΈΠ»ΠΈ Π²ΠΎΠΏΡΠΎΡΡ, ΠΊΠΎΡΠΎΡΡΠ΅ Ρ Π½ΠΈΡ Π΅ΡΡΡ. ΠΠΎΠ·ΠΆΠ΅, ΠΊΠΎΠ³Π΄Π° ΠΏΠΎΡΠ΅Π½ΡΠΈΠ°Π»ΡΠ½ΡΠΉ ΠΊΠ»ΠΈΠ΅Π½Ρ Π·Π°ΠΊΠΎΠ½ΡΠΈΡ Π³ΠΎΠ²ΠΎΡΠΈΡΡ, Π±ΠΎΠ»Π΅Π΅ Π±Π»ΠΈΠ·ΠΊΠΈΠΉ Π±ΡΠ΄Π΅Ρ ΠΎΡΠ½ΠΎΡΠΈΡΡΡΡ ΠΊ ΠΎΡΠΌΠ΅ΡΠ΅Π½Π½ΡΠΌ Π²ΠΎΠΏΡΠΎΡΠ°ΠΌ ΠΈΠ»ΠΈ ΠΊΠ»ΡΡΠ΅Π²ΡΠΌ ΠΈΠ΄Π΅ΡΠΌ, ΡΡΠΎΠ±Ρ ΠΏΠΎΠΌΠΎΡΡ ΠΈΠΌ ΠΏΠΎΠ½ΡΡΡ ΠΏΠΎΡΠ΅Π½ΡΠΈΠ°Π»ΡΠ½ΠΎΠ³ΠΎ ΠΊΠ»ΠΈΠ΅Π½ΡΠ° ΠΈ ΠΏΠΎΠΌΠΎΡΡ ΠΈΠΌ Π·Π°ΠΊΡΡΡΡ ΠΏΠ΅ΡΡΠΏΠ΅ΠΊΡΠΈΠ²Ρ Π² ΠΏΡΠ΅Π΄Π»ΠΎΠΆΠ΅Π½ΠΈΠΈ.
Π Π½Π΅ΠΊΠΎΡΠΎΡΡΡ ΡΠ»ΡΡΠ°ΡΡ Π΄ΠΎΠ²ΠΎΠ΄ΡΠΈΠΊΠΈ ΠΈΡΠΏΠΎΠ»ΡΠ·ΡΡΡ ΡΠ²ΠΎΠΉ ΠΊΠΎΠΌΠΏΡΡΡΠ΅Ρ, ΡΡΠΎΠ±Ρ Π·Π°ΠΏΠΎΠ»Π½ΠΈΡΡ ΡΠΎΡΠΌΡ Π·Π°ΡΠ²ΠΊΠΈ ΠΈΠ»ΠΈ Π·Π°ΠΏΠΎΠ»Π½ΠΈΡΡ ΡΡΡΠ°Π½ΠΈΡΡ ΠΏΡΠΎΠ²Π΅ΡΠΊΠΈ ΠΏΠΎΠΊΡΠΏΠΊΠΈ, ΠΏΠΎΠΊΠ° ΠΎΠ½ΠΈ ΡΠ°Π·Π³ΠΎΠ²Π°ΡΠΈΠ²Π°ΡΡ ΠΏΠΎ ΡΠ΅Π»Π΅ΡΠΎΠ½Ρ Ρ ΠΏΠΎΡΠ΅Π½ΡΠΈΠ°Π»ΡΠ½ΡΠΌ ΠΊΠ»ΠΈΠ΅Π½ΡΠΎΠΌ. ΠΠ½ΠΈ Π±ΡΠ΄ΡΡ Π·Π°Π΄Π°Π²Π°ΡΡ ΠΏΠΎΡΠ΅Π½ΡΠΈΠ°Π»ΡΠ½ΡΠΌ ΠΊΠ»ΠΈΠ΅Π½ΡΠ°ΠΌ Π²ΠΎΠΏΡΠΎΡΡ, ΠΏΠΎΠΊΠ° ΠΎΠ½ΠΈ Π²Π²ΠΎΠ΄ΡΡ ΠΈΠ½ΡΠΎΡΠΌΠ°ΡΠΈΡ Π² ΡΠΎΡΠΌΡ.
ΠΠ°ΠΊΠΎΠΉ ΡΡΠΎΠ²Π΅Π½Ρ Π½Π°Π²ΡΠΊΠΎΠ² ΠΏΠΈΡΡΠΌΠ° Π²Π°ΠΌ Π½ΡΠΆΠ΅Π½ ΠΊΠ°ΠΊ Π΄ΠΎΠ²ΠΎΠ΄ΡΠΈΠΊ?
ΠΠΎΠ²ΠΎΠ΄ΡΠΈΠΊΠΈ Π½Π΅ ΡΡΠ΅Π±ΡΡΡ Π²ΡΡΠΎΠΊΠΎΠ³ΠΎ ΡΡΠΎΠ²Π½Ρ ΠΏΠΈΡΡΠΌΠ°. ΠΡ ΠΏΠΈΡΡΠΌΠ΅Π½Π½ΡΠ΅ Π·Π°Π΄Π°Π½ΠΈΡ ΡΡΡΠΈΠ½Π½Ρ, ΠΈΠΌΠ΅ΡΡ Π½Π΅Π±ΠΎΠ»ΡΡΠΎΠΉ ΠΎΠ±ΡΠ΅ΠΌ (Π½Π΅ Π±ΠΎΠ»Π΅Π΅ ΡΡΡΠ°Π½ΠΈΡΡ) ΠΈ ΠΌΠΎΠ³ΡΡ Π±ΡΡΡ ΡΠΊΠΎΠΏΠΈΡΠΎΠ²Π°Π½Ρ ΠΈΠ· ΡΡΠ°Π½Π΄Π°ΡΡΠ½ΡΡ ΠΏΡΠΈΠΌΠ΅ΡΠΎΠ².
ΠΠ°Π²ΡΠΊΠΈ ΡΡΠ΅ΡΠ° (ΠΌΠ°ΡΠ΅ΠΌΠ°ΡΠΈΠΊΠ°)
ΠΠ°ΠΊΠΈΠ΅ ΠΌΠ°ΡΠ΅ΠΌΠ°ΡΠΈΡΠ΅ΡΠΊΠΈΠ΅ Π½Π°Π²ΡΠΊΠΈ Π½ΡΠΆΠ½Ρ High Ticket Closers β’ ΠΈ ΠΊΠ°ΠΊ ΡΠ°ΡΡΠΎ ΠΎΠ½ΠΈ Π·Π°Π½ΠΈΠΌΠ°ΡΡΡΡ ΠΌΠ°ΡΠ΅ΠΌΠ°ΡΠΈΠΊΠΎΠΉ?
ΠΠΎΠ²ΠΎΠ΄ΡΠΈΠΊΠΈ Π²ΡΠΏΠΎΠ»Π½ΡΡΡ Π΄Π²Π° Π²ΠΈΠ΄Π° ΠΌΠ°ΡΠ΅ΠΌΠ°ΡΠΈΡΠ΅ΡΠΊΠΈΡ ΠΏΡΠΈΠ»ΠΎΠΆΠ΅Π½ΠΈΠΉ Π²ΠΎ Π²ΡΠ΅ΠΌΡ ΡΠ°Π±ΠΎΡΡ: ΠΌΠ°ΡΠ΅ΠΌΠ°ΡΠΈΡΠ΅ΡΠΊΠΈΠ΅ Π²ΡΡΠΈΡΠ»Π΅Π½ΠΈΡ ΠΈ ΠΏΠ»Π°Π½ΠΈΡΠΎΠ²Π°Π½ΠΈΠ΅. Π§Π°ΡΡΠΎΡΠ° ΡΡΠΈΡ ΡΠ°ΡΡΠ΅ΡΠΎΠ² Π·Π°Π²ΠΈΡΠΈΡ ΠΎΡ ΡΠΎΠ³ΠΎ, ΠΊΠ°ΠΊ ΡΠ°ΡΡΠΎ ΠΎΠ½ΠΈ ΠΊΠΎΡΡΠ΅ΠΊΡΠΈΡΡΡΡ ΡΠ²ΠΎΠ΅ ΡΠ°ΡΠΏΠΈΡΠ°Π½ΠΈΠ΅ ΠΈ ΡΠ΅Π»ΠΈ ΠΏΠΎ Π΄ΠΎΡ ΠΎΠ΄Ρ, ΠΈ ΠΊΠ°ΠΊ ΡΠ°ΡΡΠΎ ΠΈΠΌ Π·Π²ΠΎΠ½ΡΡ ΠΏΠΎΡΠ΅Π½ΡΠΈΠ°Π»ΡΠ½ΡΠ΅ ΠΊΠ»ΠΈΠ΅Π½ΡΡ.
Scheduling Math
ΠΠΎΠ²ΠΎΠ΄ΡΠΈΠΊΠΈ ΡΠΎΡΡΠ°Π²Π»ΡΡΡ ΡΠ²ΠΎΠΉ Π³ΡΠ°ΡΠΈΠΊ ΡΠ°Π±ΠΎΡΡ, ΠΈΡΠΏΠΎΠ»ΡΠ·ΡΡ ΡΡΠΈ ΡΠ°ΡΡΠΈ ΠΈΠ½ΡΠΎΡΠΌΠ°ΡΠΈΠΈ: ΠΏΡΠΎΠ΄ΠΎΠ»ΠΆΠΈΡΠ΅Π»ΡΠ½ΠΎΡΡΡ Π²ΡΡΡΠ΅ΡΠΈ Ρ ΠΏΠΎΡΠ΅Π½ΡΠΈΠ°Π»ΡΠ½ΡΠΌ ΠΊΠ»ΠΈΠ΅Π½ΡΠΎΠΌ, ΠΊΠΎΠ»ΠΈΡΠ΅ΡΡΠ²ΠΎ Π²ΡΠ΅ΠΌΠ΅Π½ΠΈ, ΠΊΠΎΡΠΎΡΠΎΠ΅ Π½ΡΠΆΠ½ΠΎ ΠΎΡΡΠ°Π²ΠΈΡΡ ΠΌΠ΅ΠΆΠ΄Ρ Π·Π²ΠΎΠ½ΠΊΠ°ΠΌΠΈ, ΠΈ ΠΏΡΠΎΠ΄ΠΎΠ»ΠΆΠΈΡΠ΅Π»ΡΠ½ΠΎΡΡΡ ΡΠ°Π±ΠΎΡΠ΅Π³ΠΎ Π΄Π½Ρ. ΠΠ½ΠΈ ΡΠ°ΠΊΠΆΠ΅ ΠΎΠΆΠΈΠ΄Π°ΡΡ ΠΎΡΠΌΠ΅Π½Ρ ΡΠΎΡ ΠΈ ΠΎΡΠΌΠ΅Π½Ρ Π² ΠΏΠΎΡΠ»Π΅Π΄Π½ΠΈΠΉ ΠΌΠΎΠΌΠ΅Π½Ρ.
ΠΠ°ΠΏΡΠΈΠΌΠ΅Ρ, Ρ Π΄ΠΎΠ²ΠΎΠ΄ΡΠΈΠΊΠ° ΠΏΠΎΠ»Π½ΡΠΉ ΡΠ°Π±ΠΎΡΠΈΠΉ Π΄Π΅Π½Ρ ΠΌΠΎΠΆΠ΅Ρ Π±ΡΡΡ Π²ΠΎΡΡΠΌΠΈΡΠ°ΡΠΎΠ²ΠΎΠΉ ΡΠ°Π±ΠΎΡΠΈΠΉ Π΄Π΅Π½Ρ. ΠΠ°ΠΆΠ΄ΡΠΉ Π·Π²ΠΎΠ½ΠΎΠΊ ΠΏΠΎΡΠ΅Π½ΡΠΈΠ°Π»ΡΠ½ΠΎΠΌΡ ΠΊΠ»ΠΈΠ΅Π½ΡΡ Π·Π°Π½ΠΈΠΌΠ°Π΅Ρ ΠΎΡ 30 Π΄ΠΎ 60 ΠΌΠΈΠ½ΡΡ (Π² Π·Π°Π²ΠΈΡΠΈΠΌΠΎΡΡΠΈ ΠΎΡ ΡΠΈΡΡΠ°ΡΠΈΠΈ Π·Π°ΠΊΡΡΡΠΈΡ). ΠΠ½ΠΈ ΡΠ°ΠΊΠΆΠ΅ Π±ΡΠ΄ΡΡ Π²ΠΊΠ»ΡΡΠ°ΡΡ 15-ΠΌΠΈΠ½ΡΡΠ½ΡΠΉ Β«Π±ΡΡΠ΅ΡΒ» ΠΌΠ΅ΠΆΠ΄Ρ Π·Π²ΠΎΠ½ΠΊΠ°ΠΌΠΈ.ΠΡΠ»ΠΈ Π·Π²ΠΎΠ½ΠΎΠΊ Π·Π°ΠΊΠ°Π½ΡΠΈΠ²Π°Π΅ΡΡΡ ΡΠ°Π½ΡΡΠ΅, ΠΎΠ½ΠΈ Π΄Π΅Π»Π°ΡΡ ΠΏΠ΅ΡΠ΅ΡΡΠ². ΠΡΠ»ΠΈ Π·Π²ΠΎΠ½ΠΎΠΊ Π΄Π»ΠΈΡΡΡ Π΄ΠΎΠ»ΡΡΠ΅, ΡΠ΅ΠΌ ΠΎΠΆΠΈΠ΄Π°Π»ΠΎΡΡ, ΠΎΠ½ΠΈ Π½Π΅ ΠΎΠΏΠΎΠ·Π΄Π°ΡΡ Π½Π° ΡΠ»Π΅Π΄ΡΡΡΠΈΠΉ Π·Π²ΠΎΠ½ΠΎΠΊ.
ΠΠΎΠ»ΠΈΡΠ΅ΡΡΠ²ΠΎ Π½Π°Π·Π½Π°ΡΠ΅Π½Π½ΡΡ Π½Π° ΠΊΠ°ΠΆΠ΄ΡΠΉ Π΄Π΅Π½Ρ Π²ΡΡΡΠ΅Ρ Π·Π°Π²ΠΈΡΠΈΡ ΠΎΡ ΠΏΡΠΎΠ΄ΠΎΠ»ΠΆΠΈΡΠ΅Π»ΡΠ½ΠΎΡΡΠΈ ΡΠ°Π·Π³ΠΎΠ²ΠΎΡΠ° ΠΈ Π²ΡΠ΅ΠΌΠ΅Π½ΠΈ Π±ΡΡΠ΅ΡΠΈΠ·Π°ΡΠΈΠΈ. ΠΡΠ»ΠΈ Π΄ΠΎΠ²ΠΎΠ΄ΡΠΈΠΊ ΡΠ°Π±ΠΎΡΠ°Π΅Ρ Π½Π΅ΠΏΠΎΠ»Π½ΡΠΉ ΡΠ°Π±ΠΎΡΠΈΠΉ Π΄Π΅Π½Ρ, ΠΏΠΎΡΠΎΠΌΡ ΡΡΠΎ Ρ Π½Π΅Π³ΠΎ Π΅ΡΡΡ Π΄ΡΡΠ³Π°Ρ ΡΠ°Π±ΠΎΡΠ° Π½Π° ΠΏΠΎΠ»Π½ΡΡ ΡΡΠ°Π²ΠΊΡ, ΡΠΎΠ³Π΄Π° ΠΎΠ½ΠΈ ΠΏΠ»Π°Π½ΠΈΡΡΡΡ Π²ΡΠ΅ΠΌΡ Π΄ΠΎΡΡΡΠΏΠ½ΠΎΡΡΠΈ Π΄Π»Ρ Π²ΡΡΡΠ΅Ρ ΠΈ Π±ΡΡΠ΅ΡΡ Π²ΠΎΠΊΡΡΠ³ ΡΠ²ΠΎΠ΅ΠΉ ΡΠ°Π±ΠΎΡΡ Π½Π° ΠΏΠΎΠ»Π½ΡΡ ΡΡΠ°Π²ΠΊΡ.
Money Math
High Ticket Closers β’ Π½Π΅ΠΎΠ±Ρ ΠΎΠ΄ΠΈΠΌΠΎ ΠΏΡΠΎΠΈΠ·Π²ΠΎΠ΄ΠΈΡΡ ΡΠ°ΡΡΠ΅ΡΡ Π½Π° ΠΌΠ΅ΡΡΠ΅ Π²ΠΎ Π²ΡΠ΅ΠΌΡ ΡΠ°Π·Π³ΠΎΠ²ΠΎΡΠ° Ρ ΠΏΠΎΡΠ΅Π½ΡΠΈΠ°Π»ΡΠ½ΡΠΌ ΠΊΠ»ΠΈΠ΅Π½ΡΠΎΠΌ.ΠΠ°ΠΏΡΠΈΠΌΠ΅Ρ, ΠΎΠ½ΠΈ Π²ΡΠΏΠΎΠ»Π½ΡΡ ΠΎΠ΄Π½ΠΎ- ΠΈΠ»ΠΈ Π΄Π²ΡΡ ΡΡΠ°ΠΏΠ½ΡΠ΅ Π²ΡΡΠΈΡΠ»Π΅Π½ΠΈΡ, Π²ΠΊΠ»ΡΡΠ°ΡΡΠΈΠ΅ ΠΎΠ΄Π½Ρ ΠΈΠ»ΠΈ Π΄Π²Π΅ ΠΎΠΏΠ΅ΡΠ°ΡΠΈΠΈ (+, -, x, Γ·), ΡΡΠΎΠ±Ρ ΠΎΠ±ΡΡΡΠ½ΠΈΡΡ ΠΏΠΎΡΠ΅Π½ΡΠΈΠ°Π»ΡΠ½ΠΎΠΌΡ ΠΊΠ»ΠΈΠ΅Π½ΡΡ, ΡΡΠΎ ΠΈΠΌ Π½ΡΠΆΠ½ΠΎ ΡΠ΄Π΅Π»Π°ΡΡ Π΄Π»Ρ Π΄ΠΎΡΡΠΈΠΆΠ΅Π½ΠΈΡ ΡΠ²ΠΎΠ΅ΠΉ ΡΠ΅Π»ΠΈ.
ΠΠΎΠ»Π΅Π΅ ΠΊΠΎΠ½ΠΊΡΠ΅ΡΠ½ΠΎ, ΠΎΠ½ΠΈ ΠΌΠΎΠ³ΡΡ Π·Π°ΠΊΡΡΡΡ ΠΏΠ΅ΡΡΠΏΠ΅ΠΊΡΠΈΠ²Ρ Π½Π° ΠΏΡΠΎΠ³ΡΠ°ΠΌΠΌΡ, ΡΠ²ΡΠ·Π°Π½Π½ΡΡ Ρ ΠΊΠ°ΡΡΠ΅ΡΠΎΠΉ, ΠΊΠΎΡΠΎΡΠ°Ρ ΠΈΠ·ΠΌΠ΅Π½ΠΈΡ ΡΡΠΎΠ²Π΅Π½Ρ Π΄ΠΎΡ ΠΎΠ΄Π° ΠΏΠΎΡΠ΅Π½ΡΠΈΠ°Π»ΡΠ½ΠΎΠ³ΠΎ ΠΊΠ»ΠΈΠ΅Π½ΡΠ°. ΠΠΎΡΠ΅Π½ΡΠΈΠ°Π»ΡΠ½ΡΠΉ ΠΊΠ»ΠΈΠ΅Π½Ρ ΠΌΠΎΠΆΠ΅Ρ ΡΠΊΠ°Π·Π°ΡΡ, ΡΡΠΎ ΠΎΠ½ΠΈ Π·Π°ΡΠ°Π±Π°ΡΡΠ²Π°ΡΡ 2500 Π΄ΠΎΠ»Π»Π°ΡΠΎΠ² Π² ΠΌΠ΅ΡΡΡ, Π° ΠΈΡ ΡΠ΅Π»Ρ ΠΏΠΎΡΠ»Π΅ Π·Π°Π²Π΅ΡΡΠ΅Π½ΠΈΡ ΠΏΡΠΎΠ³ΡΠ°ΠΌΠΌΡ — 120 ΡΡΡΡΡ Π΄ΠΎΠ»Π»Π°ΡΠΎΠ² Π² Π³ΠΎΠ΄. ΠΠΎΠ»Π΅Π΅ Π±Π»ΠΈΠ·ΠΊΠΈΠΉ ΠΏΡΠΎΠ²Π΅Π΄Π΅Ρ ΠΈΡ ΡΠ΅ΡΠ΅Π· ΠΏΡΠΎΡΠ΅ΡΡ, ΠΏΠΎΠ΄ΡΡΠΈΡΠ°Π², ΡΡΠΎ ΡΠ΅ΠΊΡΡΠΈΠΉ Π³ΠΎΠ΄ΠΎΠ²ΠΎΠΉ Π΄ΠΎΡ ΠΎΠ΄ ΡΠΎΡΡΠ°Π²Π»ΡΠ΅Ρ 30 ΡΡΡΡΡ Π΄ΠΎΠ»Π»Π°ΡΠΎΠ², ΡΠ°ΠΊ ΡΡΠΎ Π΄Π»Ρ ΠΏΠΎΠ»ΡΡΠ΅Π½ΠΈΡ 120 ΡΡΡΡΡ Π΄ΠΎΠ»Π»Π°ΡΠΎΠ² ΡΡΠΎ ΡΠ°Π·Π½ΠΈΡΠ° Π² 90 ΡΡΡΡΡ Π΄ΠΎΠ»Π»Π°ΡΠΎΠ².
Π£ΡΡΡΠΎΠΉΡΡΠ²ΠΎ Π±Π»ΠΈΠΆΠ΅ ΠΌΠΎΠΆΠ΅Ρ ΡΠ°ΠΊΠΆΠ΅ ΡΠ°ΡΡΡΠΈΡΠ°ΡΡ, ΡΠΊΠΎΠ»ΡΠΊΠΎ ΠΏΠΎΡΠ΅Π½ΡΠΈΠ°Π»ΡΠ½ΡΠΉ ΠΊΠ»ΠΈΠ΅Π½Ρ Π±ΡΠ΄Π΅Ρ ΠΏΠ»Π°ΡΠΈΡΡ Π·Π° ΠΏΡΠΎΠ³ΡΠ°ΠΌΠΌΡ ΠΏΠΎΡΠ»Π΅ Π²Π½Π΅ΡΠ΅Π½ΠΈΡ ΠΏΠ΅ΡΠ²ΠΎΠ½Π°ΡΠ°Π»ΡΠ½ΠΎΠ³ΠΎ Π²Π·Π½ΠΎΡΠ° Π΄ΠΎ ΠΏΡΠΎΡΠ΅ΡΡΠ° ΡΠ΅Π³ΠΈΡΡΡΠ°ΡΠΈΠΈ, Π° Π·Π°ΡΠ΅ΠΌ ΠΏΡΠΎΡΠΌΠΎΡΡΠ΅ΡΡ Π²Π°ΡΠΈΠ°Π½ΡΡ ΠΎΠΏΠ»Π°ΡΡ ΠΏΠΎΡΠ΅Π½ΡΠΈΠ°Π»ΡΠ½ΠΎΠ³ΠΎ ΠΊΠ»ΠΈΠ΅Π½ΡΠ°.
ΠΠΎΠ²ΠΎΠ΄ΡΠΈΠΊΠΈ ΡΠ°ΠΊΠΆΠ΅ ΠΏΡΠΎΠΈΠ·Π²ΠΎΠ΄ΡΡ ΠΌΠ½ΠΎΠ³ΠΎΡΡΠ°ΠΏΠ½ΡΠ΅ ΡΠ°ΡΡΠ΅ΡΡ ΠΎΡΠ½ΠΎΡΠΈΡΠ΅Π»ΡΠ½ΠΎ ΡΠΎΠ±ΡΡΠ²Π΅Π½Π½ΠΎΠ³ΠΎ Π΄ΠΎΡ ΠΎΠ΄Π°. ΠΠ°ΠΏΡΠΈΠΌΠ΅Ρ, ΠΎΠ½ΠΈ ΠΌΠΎΠ³ΡΡ Π΄Π²Π°ΠΆΠ΄Ρ ΠΏΡΠΎΠ²Π΅ΡΠΈΡΡ ΡΠ°ΡΡΠ΅ΡΡ ΡΠ²ΠΎΠΈΡ ΠΊΠΎΠΌΠΈΡΡΠΈΠΎΠ½Π½ΡΡ Π² ΡΠ»Π΅ΠΊΡΡΠΎΠ½Π½ΠΎΠΉ ΡΠ°Π±Π»ΠΈΡΠ΅ ΠΏΠΎΡΠ»Π΅ ΡΠΎΠ³ΠΎ, ΠΊΠ°ΠΊ ΠΈΠΌ Π·Π°ΠΏΠ»Π°ΡΡΡ.
ΠΡΠ΅ ΠΎΠ΄Π½Π° Π·Π°Π΄Π°ΡΠ°, ΠΊΠΎΡΠΎΡΡΡ Π΄ΠΎΠ²ΠΎΠ΄ΡΠΈΠΊΠΈ ΠΈΠ½ΠΎΠ³Π΄Π° Π²ΡΠΏΠΎΠ»Π½ΡΡΡ, — ΡΡΠΎ ΠΌΠ½ΠΎΠ³ΠΎΡΡΠ°ΠΏΠ½ΡΠ΅ Π²ΡΡΠΈΡΠ»Π΅Π½ΠΈΡ ΡΠ²ΠΎΠΈΡ ΠΏΠ»Π°Π½ΠΎΠ²ΡΡ Π΄ΠΎΡ ΠΎΠ΄ΠΎΠ². ΠΠ°ΠΏΡΠΈΠΌΠ΅Ρ,
- ΠΏΠ°ΠΊΠ΅ΡΡ, ΠΊΠΎΡΠΎΡΡΠ΅ ΠΎΠ½ΠΈ ΠΏΡΠΎΠ΄Π°ΡΡ, ΡΠΎΡΡΠ°Π²Π»ΡΡΡ 5000 Π΄ΠΎΠ»Π»Π°ΡΠΎΠ² Π‘Π¨Π
- ΠΎΠ½ΠΈ ΠΏΠΎΠ»ΡΡΠ°ΡΡ ΠΊΠΎΠΌΠΈΡΡΠΈΡ 10% Ρ ΠΊΠ°ΠΆΠ΄ΠΎΠΉ ΠΏΡΠΎΠ΄Π°ΠΆΠΈ
- ΠΈΡ ΠΊΠΎΡΡΡΠΈΡΠΈΠ΅Π½Ρ Π·Π°ΠΊΡΡΡΠΈΡ ΡΠΎΡΡΠ°Π²Π»ΡΠ΅Ρ 20%
Π§Π΅ΠΌ Π±Π»ΠΈΠΆΠ΅ ΡΡΠΈ ΡΠΈΡΠ»Π° ΡΠ°ΡΡΡΠΈΡΡΠ²Π°ΡΡΡΡ, ΡΠΊΠΎΠ»ΡΠΊΠΎ Π·Π²ΠΎΠ½ΠΊΠΎΠ² Π² Π½Π΅Π΄Π΅Π»Ρ ΠΎΠ½ΠΈ Π΄ΠΎΠ»ΠΆΠ½Ρ Π±ΡΠΎΠ½ΠΈΡΠΎΠ²Π°ΡΡ, ΡΡΠΎΠ±Ρ Π΄ΠΎΡΡΠΈΡΡ ΡΠ²ΠΎΠ΅ΠΉ ΡΠ΅Π»ΠΈ. ΠΠΆΠ΅ΠΌΠ΅ΡΡΡΠ½ΡΠΉ Π΄ΠΎΡ ΠΎΠ΄.
ΠΠΎΠ»Π΅Π΅ Π±Π»ΠΈΠ·ΠΊΠΈΠΉ ΠΌΠΎΠΆΠ΅Ρ ΠΏΠΎΡΡΠ΅Π±ΠΎΠ²Π°ΡΡΡΡ Π΄Π»Ρ ΡΠ°ΡΡΠ΅ΡΠ° ΠΏΠΎΠ΄ΠΎΡ ΠΎΠ΄Π½ΠΎΠ³ΠΎ Π½Π°Π»ΠΎΠ³Π°, ΠΏΠΎΡΠΎΠΌΡ ΡΡΠΎ Π½Π°Π»ΠΎΠ³ΠΈ Π½Π΅ Π²ΡΡΠΈΡΠ°ΡΡΡΡ ΠΈΠ· ΠΈΡ ΠΊΠΎΠΌΠΈΡΡΠΈΠΎΠ½Π½ΡΡ .
ΠΠ°ΠΊΠΎΠΉ ΡΡΠΎΠ²Π΅Π½Ρ ΠΌΠ°ΡΠ΅ΠΌΠ°ΡΠΈΡΠ΅ΡΠΊΠΈΡ Π½Π°Π²ΡΠΊΠΎΠ² Π²Π°ΠΌ Π½ΡΠΆΠ΅Π½ ΠΊΠ°ΠΊ Π΄ΠΎΠ²ΠΎΠ΄ΡΠΈΠΊ?
ΠΠΎΠ²ΠΎΠ΄ΡΠΈΠΊΠΈ Π²ΡΠΏΠΎΠ»Π½ΡΡΡ ΠΌΠ½ΠΎΠ³ΠΎΡΡΠ°ΠΏΠ½ΡΠ΅ Π²ΡΡΠΈΡΠ»Π΅Π½ΠΈΡ Π΄Π»Ρ Π΄Π΅Π½Π΅ΠΆΠ½ΠΎΠΉ ΠΌΠ°ΡΠ΅ΠΌΠ°ΡΠΈΠΊΠΈ ΠΈ ΠΏΠ»Π°Π½ΠΈΡΠΎΠ²Π°Π½ΠΈΡ ΠΌΠ°ΡΠ΅ΠΌΠ°ΡΠΈΡΠ΅ΡΠΊΠΈΡ Π·Π°Π΄Π°Ρ. ΠΠ°ΠΏΡΠΈΠΌΠ΅Ρ, ΠΎΠΏΡΠ΅Π΄Π΅Π»Π΅Π½ΠΈΠ΅ ΠΊΠΎΠ»ΠΈΡΠ΅ΡΡΠ²Π° ΡΠ°Π±ΠΎΡΠΈΡ ΡΠ°ΡΠΎΠ² Π΄Π»Ρ ΡΠ°Π±ΠΎΡΠ΅Π³ΠΎ Π³ΡΠ°ΡΠΈΠΊΠ°, ΡΠ°ΡΡΠ΅Ρ Π·Π°ΠΏΠ»Π°Π½ΠΈΡΠΎΠ²Π°Π½Π½ΡΡ ΡΠ΅Π»Π΅ΠΉ Π΄ΠΎΡ ΠΎΠ΄Π° ΠΈ ΡΠ°ΡΡΠ΅Ρ ΡΠ°Π·Π½ΠΈΡΡ Π² ΡΠ΅Π½Π°Ρ Π² ΠΏΠ»Π°Π½Π°Ρ ΠΏΠ»Π°ΡΠ΅ΠΆΠ΅ΠΉ Π΄Π»Ρ Π²Π°ΡΠΈΠ°Π½ΡΠ° A ΠΈ Π²Π°ΡΠΈΠ°Π½ΡΠ° B ΠΈΠ»ΠΈ ΠΏΠ»Π°ΡΠ΅ΠΆΠ΅ΠΉ ΠΏΠΎΡΠ»Π΅ ΠΏΠ΅ΡΠ²ΠΎΠ½Π°ΡΠ°Π»ΡΠ½ΠΎΠ³ΠΎ Π²Π·Π½ΠΎΡΠ°.
ΠΠΎΡΠ»Π΅ ΠΈΠ·ΡΡΠ΅Π½ΠΈΡ ΡΠΎΡΠΌΡΠ» ΠΈ ΡΠΎΠ³ΠΎ, ΠΊΠ°ΠΊ ΠΏΡΠΈΠΌΠ΅Π½ΡΡΡ ΠΈΡ Π² ΡΡΠΈΡ ΡΠΈΡΡΠ°ΡΠΈΡΡ , Π΄ΠΎΠ²ΠΎΠ΄ΡΠΈΠΊΠΈ ΠΎΠ±Π½Π°ΡΡΠΆΠ°Ρ, ΡΡΠΎ ΠΈΡ ΠΌΠ°ΡΠ΅ΠΌΠ°ΡΠΈΡΠ΅ΡΠΊΠΈΠ΅ Π·Π°Π΄Π°ΡΠΈ Π΄ΠΎΠ²ΠΎΠ»ΡΠ½ΠΎ ΡΡΡΠΈΠ½Π½Ρ.
ΠΠ°Π²ΡΠΊΠΈ ΡΡΡΠ½ΠΎΠ³ΠΎ ΠΎΠ±ΡΠ΅Π½ΠΈΡ
Π‘Π°ΠΌΡΠΌ Π²Π°ΠΆΠ½ΡΠΌ ΠΏΠ΅ΡΠ΅Π΄Π°Π²Π°Π΅ΠΌΡΠΌ, Π²Π°ΠΆΠ½ΡΠΌ Π½Π°Π²ΡΠΊΠΎΠΌ, Π² ΠΊΠΎΡΠΎΡΠΎΠΌ Π½ΡΠΆΠ΄Π°Π΅ΡΡΡ Π±ΠΎΠ»Π΅Π΅ Π±Π»ΠΈΠ·ΠΊΠΈΠΉ ΡΠ΅Π»ΠΎΠ²Π΅ΠΊ, ΡΠ²Π»ΡΠ΅ΡΡΡ ΡΡΡΠ½ΠΎΠ΅ ΠΎΠ±ΡΠ΅Π½ΠΈΠ΅. ΠΠ΅Π·Π°Π²ΠΈΡΠΈΠΌΠΎ ΠΎΡ ΡΠΎΠ³ΠΎ, Π²ΡΡΡΠ΅ΡΠ°ΡΡΡΡ Π»ΠΈ Π±Π»ΠΈΠ·ΠΊΠΈΠ΅ Ρ ΠΏΠΎΡΠ΅Π½ΡΠΈΠ°Π»ΡΠ½ΡΠΌΠΈ ΠΊΠ»ΠΈΠ΅Π½ΡΠ°ΠΌΠΈ Π»ΠΈΡΠ½ΠΎ ΠΈΠ»ΠΈ ΠΏΠΎ ΡΠ΅Π»Π΅ΡΠΎΠ½Ρ, ΠΈΡ ΡΠ°Π·Π³ΠΎΠ²ΠΎΡΠ½ΡΠ΅ Π½Π°Π²ΡΠΊΠΈ — ΡΡΠΎ ΡΠΎ, ΡΡΠΎ Π·Π°Π²Π΅ΡΡΠΈΡ ΡΠ΄Π΅Π»ΠΊΡ ΠΈ ΡΠΎΠ²Π΅ΡΡΠΈΡ ΠΏΡΠΎΠ΄Π°ΠΆΡ. ΠΡΠ»ΠΈ ΠΎΠ½ΠΈ Π½Π΅ ΠΌΠΎΠ³ΡΡ Π·Π°ΠΊΡΡΡΡ, ΠΊΠΎΠΌΠΈΡΡΠΈΠΈ Π½Π΅ Π±ΡΠ΄Π΅Ρ, Π° Π±Π΅Π· Π΄ΠΎΡ ΠΎΠ΄Π° ΠΎΠ½ΠΈ Π½Π΅ ΡΠΌΠΎΠ³ΡΡ ΠΎΠΏΠ»Π°ΡΠΈΠ²Π°ΡΡ ΡΡΠ΅ΡΠ°.
ΠΠ°ΠΊΠΈΠ΅ Π½Π°Π²ΡΠΊΠΈ ΡΡΡΠ½ΠΎΠ³ΠΎ ΠΎΠ±ΡΠ΅Π½ΠΈΡ Π½Π΅ΠΎΠ±Ρ ΠΎΠ΄ΠΈΠΌΡ High Ticket Closers β’?
ΠΠΎΠ²ΠΎΠ΄ΡΠΈΠΊΠΈ ΡΠΎΠΎΠ±ΡΠ°ΡΡ ΠΏΠΎΡΠ΅Π½ΡΠΈΠ°Π»ΡΠ½ΡΠΌ ΠΊΠ»ΠΈΠ΅Π½ΡΠ°ΠΌ ΠΎΠ± ΡΡΠ»ΡΠ³Π°Ρ ΠΈΠ»ΠΈ ΠΏΡΠΎΠ΄ΡΠΊΡΠ°Ρ , ΠΊΠΎΡΠΎΡΡΠ΅ ΠΎΠ½ΠΈ ΠΏΡΠΎΠ΄Π°ΡΡ.ΠΠ½ΠΈ ΡΠ°ΠΊΠΆΠ΅ ΠΌΠΎΠ³ΡΡ ΠΎΠ±ΡΠ°ΡΡΡΡ ΡΠΎ ΡΠ²ΠΎΠΈΠΌ Π²Π»ΠΈΡΡΠ΅Π»ΡΠ½ΡΠΌ Π»ΠΈΡΠΎΠΌ ΠΈ / ΠΈΠ»ΠΈ ΠΊΠΎΠΌΠ°Π½Π΄ΠΎΠΉ.
Π¦Π΅Π»Ρ Π΄Π»Ρ ΡΠ²ΡΠ·ΠΈ
High Ticket Closers β’ ΠΎΡΠ²Π΅ΡΠ°Π΅Ρ Π½Π° Π·Π°ΠΏΠ»Π°Π½ΠΈΡΠΎΠ²Π°Π½Π½ΡΠ΅ Π²Ρ ΠΎΠ΄ΡΡΠΈΠ΅ Π·Π²ΠΎΠ½ΠΊΠΈ ΠΎΡ ΠΏΠΎΡΠ΅Π½ΡΠΈΠ°Π»ΡΠ½ΡΡ ΠΊΠ»ΠΈΠ΅Π½ΡΠΎΠ², ΡΡΠΎΠ±Ρ ΠΏΡΠ΅Π΄ΠΎΡΡΠ°Π²ΠΈΡΡ ΠΈΠ½ΡΠΎΡΠΌΠ°ΡΠΈΡ ΠΎ ΠΏΡΠΎΠ΄ΡΠΊΡΠ΅ ΠΈΠ»ΠΈ ΡΡΠ»ΡΠ³Π΅, ΠΎΠ±ΡΡΡΠ½ΠΈΡΡ, ΡΡΠΎ ΠΏΠΎΡΠ΅Π½ΡΠΈΠ°Π»ΡΠ½ΠΎΠΌΡ ΠΊΠ»ΠΈΠ΅Π½ΡΡ ΠΌΠΎΠΆΠ΅Ρ ΠΏΠΎΡΡΠ΅Π±ΠΎΠ²Π°ΡΡΡΡ ΡΠ΄Π΅Π»Π°ΡΡ ΠΏΠΎΡΠ»Π΅ ΠΏΠΎΠ΄ΠΏΠΈΡΠΊΠΈ Π½Π° ΠΏΡΠ΅Π΄Π»ΠΎΠΆΠ΅Π½ΠΈΠ΅, ΠΈ ΡΠ±Π΅Π΄ΠΈΡΡ ΠΏΠΎΡΠ΅Π½ΡΠΈΠ°Π»ΡΠ½ΠΎΠ³ΠΎ ΠΊΠ»ΠΈΠ΅Π½ΡΠ° ΠΊΡΠΏΠΈΡΡ ΠΏΡΠ΅Π΄Π»ΠΎΠΆΠ΅Π½ΠΈΠ΅, Π΅ΡΠ»ΠΈ ΡΡΠΎ Ρ ΠΎΡΠΎΡΠΎ ΠΏΠΎΠ΄Ρ ΠΎΠ΄ΠΈΡ.
The Close ΠΈΡΠ΅Ρ ΠΈΠ½ΡΠΎΡΠΌΠ°ΡΠΈΡ ΠΎ ΠΏΠΎΡΠ΅Π½ΡΠΈΠ°Π»ΡΠ½ΠΎΠΌ ΠΊΠ»ΠΈΠ΅Π½ΡΠ΅, Π·Π°Π΄Π°Π²Π°Ρ Π²ΠΎΠΏΡΠΎΡΡ, ΡΡΠΎΠ±Ρ ΠΏΠΎΡΠ΅Π½ΡΠΈΠ°Π»ΡΠ½ΡΠΉ ΠΊΠ»ΠΈΠ΅Π½Ρ Π³ΠΎΠ²ΠΎΡΠΈΠ» Π±ΠΎΠ»ΡΡΡΡ ΡΠ°ΡΡΡ ΡΠ°Π·Π³ΠΎΠ²ΠΎΡΠ° Π½Π° ΠΏΡΠΎΡΡΠΆΠ΅Π½ΠΈΠΈ Π²ΡΠ΅Π³ΠΎ ΡΠ°Π·Π³ΠΎΠ²ΠΎΡΠ°.ΠΠ½ΠΈ ΠΏΠΎΡΡΠ΅Π±ΠΎΠ²Π°Π»ΠΈ ΡΠ±Π΅Π΄ΠΈΡΡΡΡ, ΡΡΠΎ ΠΏΠΎΡΠ΅Π½ΡΠΈΠ°Π»ΡΠ½ΡΠΉ ΠΊΠ»ΠΈΠ΅Π½Ρ ΠΏΡΠΈΠ½ΠΈΠΌΠ°Π΅Ρ ΠΏΡΠ°Π²ΠΈΠ»ΡΠ½ΠΎΠ΅ ΡΠ΅ΡΠ΅Π½ΠΈΠ΅, ΠΈΠ½Π²Π΅ΡΡΠΈΡΡΡ Π² ΠΏΡΠ΅Π΄Π»ΠΎΠΆΠ΅Π½ΠΈΠ΅, ΠΈΠ»ΠΈ ΠΈΠΌ, Π²ΠΎΠ·ΠΌΠΎΠΆΠ½ΠΎ, ΠΏΡΠΈΠ΄Π΅ΡΡΡ Π²Π΅ΡΡΠΈ ΠΏΠ΅ΡΠ΅Π³ΠΎΠ²ΠΎΡΡ (Β«ΡΡΠΎ, Π΅ΡΠ»ΠΈβ¦Β»), ΠΊΠΎΠ³Π΄Π° ΠΏΠΎΡΠ΅Π½ΡΠΈΠ°Π»ΡΠ½ΡΠΉ ΠΊΠ»ΠΈΠ΅Π½Ρ ΠΈΠ·ΠΎ Π²ΡΠ΅Ρ ΡΠΈΠ» ΠΏΡΡΠ°Π΅ΡΡΡ Π΄ΠΎΠ±ΠΈΡΡΡΡ ΡΡΠΏΠ΅Ρ Π° ΠΏΠΎΡΠ»Π΅ ΡΠ²ΠΎΠ΅Π³ΠΎ Π²Π»ΠΎΠΆΠ΅Π½ΠΈΡ.
ΠΠΎΠ²ΠΎΠ΄ΡΠΈΠΊΠΈ ΡΠ°ΠΊΠΆΠ΅ ΠΌΠΎΠ³ΡΡ Π΄Π°Π²Π°ΡΡ ΠΈΠ½ΡΡΡΡΠΊΡΠΈΠΈ ΠΏΠΎΡΠ΅Π½ΡΠΈΠ°Π»ΡΠ½ΠΎΠΌΡ ΠΊΠ»ΠΈΠ΅Π½ΡΡ, Π½Π°ΠΏΡΠΈΠΌΠ΅Ρ, Π·Π°ΠΏΡΠ°ΡΠΈΠ²Π°ΡΡ ΠΈΠ½ΡΠΎΡΠΌΠ°ΡΠΈΡ ΠΎ ΠΏΠ»Π°ΡΠ΅ΠΆΠ΅. ΠΠΏΡΡΠ½ΡΠ΅ Π±Π»ΠΈΠ·ΠΊΠΈΠ΅ Π°Π½Π°Π»ΠΈΠ·ΠΈΡΡΡΡ ΠΏΠΎΡΠ΅Π½ΡΠΈΠ°Π»ΡΠ½ΠΎΠ³ΠΎ ΠΊΠ»ΠΈΠ΅Π½ΡΠ° ΠΈ ΠΌΠ΅Π½ΡΡΡ ΡΠΎ, ΠΊΠ°ΠΊ ΠΎΠ½ΠΈ ΡΠ°Π·Π³ΠΎΠ²Π°ΡΠΈΠ²Π°ΡΡ Ρ Π½ΠΈΠΌ, Π² Π·Π°Π²ΠΈΡΠΈΠΌΠΎΡΡΠΈ ΠΎΡ ΡΠΈΠΏΠ° Π»ΠΈΡΠ½ΠΎΡΡΠΈ ΠΏΠΎΡΠ΅Π½ΡΠΈΠ°Π»ΡΠ½ΠΎΠ³ΠΎ ΠΊΠ»ΠΈΠ΅Π½ΡΠ°.
ΠΠΎΠ»Π΅Π΅ Π±Π»ΠΈΠ·ΠΊΠΈΠ΅ ΠΌΠΎΠ³ΡΡ ΡΠ°ΠΊΠΆΠ΅ ΠΎΠ±ΡΠ°ΡΡΡΡ ΡΠΎ ΡΠ²ΠΎΠΈΠΌ Π²Π»ΠΈΡΡΠ΅Π»ΡΠ½ΡΠΌ Π»ΠΈΡΠΎΠΌ ΠΏΠΎ ΡΠ΅Π»Π΅ΡΠΎΠ½Ρ ΠΏΠΎ ΠΏΠΎΠ²ΠΎΠ΄Ρ ΠΎΠ±Π½ΠΎΠ²Π»Π΅Π½ΠΈΠΉ.
ΠΠ΅ΡΠΎΠ΄, ΠΏΡΠΎΠ΄ΠΎΠ»ΠΆΠΈΡΠ΅Π»ΡΠ½ΠΎΡΡΡ ΠΈ ΡΡΠΎΠ²Π΅Π½Ρ ΡΠΈΡΠΊΠ° ΠΎΠ±ΡΠ΅Π½ΠΈΡ
High Ticket Closers β’ ΠΎΠ±ΡΠ°ΡΡΡΡ Ρ ΠΏΠΎΡΠ΅Π½ΡΠΈΠ°Π»ΡΠ½ΡΠΌΠΈ ΠΊΠ»ΠΈΠ΅Π½ΡΠ°ΠΌΠΈ ΠΏΠΎ ΡΠ΅Π»Π΅ΡΠΎΠ½Ρ, ΠΎΠ±ΡΡΠ½ΠΎ ΠΎΠ΄ΠΈΠ½ Π½Π° ΠΎΠ΄ΠΈΠ½. ΠΠ½ΠΎΠ³Π΄Π° ΠΈΠΌ ΠΌΠΎΠΆΠ΅Ρ ΠΏΠΎΡΡΠ΅Π±ΠΎΠ²Π°ΡΡΡΡ ΠΏΠΎΠ³ΠΎΠ²ΠΎΡΠΈΡΡ Ρ Π»ΠΈΡΠΎΠΌ, ΠΏΡΠΈΠ½ΠΈΠΌΠ°ΡΡΠΈΠΌ ΡΠ΅ΡΠ΅Π½ΠΈΡ, Π΅ΡΠ»ΠΈ, Π½Π°ΠΏΡΠΈΠΌΠ΅Ρ, ΠΏΠΎΡΠ΅Π½ΡΠΈΠ°Π»ΡΠ½ΡΠΉ ΠΊΠ»ΠΈΠ΅Π½Ρ ΠΎΡΠΊΠ°Π·ΡΠ²Π°Π΅ΡΡΡ ΠΏΡΠΈΠ½ΡΡΡ ΠΎΠΊΠΎΠ½ΡΠ°ΡΠ΅Π»ΡΠ½ΠΎΠ΅ ΡΠ΅ΡΠ΅Π½ΠΈΠ΅ Π±Π΅Π· ΠΎΠ΄ΠΎΠ±ΡΠ΅Π½ΠΈΡ ΡΠ²ΠΎΠ΅Π³ΠΎ ΡΡΠΏΡΡΠ³Π°.
ΠΠΎΠ²ΠΎΠ΄ΡΠΈΠΊΠΈ ΠΈΠ½Π²Π΅ΡΡΠΈΡΡΡΡ Π² ΠΊΠ°ΡΠ΅ΡΡΠ²Π΅Π½Π½ΡΠΉ ΡΠ΅Π»Π΅ΡΠΎΠ½, Π³Π°ΡΠ½ΠΈΡΡΡΡ ΠΈ ΡΠ²ΡΠ·Ρ Π΄Π»Ρ Π·Π²ΠΎΠ½ΠΊΠΎΠ² Ρ ΠΏΠΎΡΠ΅Π½ΡΠΈΠ°Π»ΡΠ½ΡΠΌΠΈ ΠΊΠ»ΠΈΠ΅Π½ΡΠ°ΠΌΠΈ. ΠΠ»ΠΎΡ ΠΎΠ΅ ΡΠΎΠ΅Π΄ΠΈΠ½Π΅Π½ΠΈΠ΅ ΠΈΠ»ΠΈ ΠΎΡΠΊΠ»ΡΡΠ΅Π½Π½ΡΠΉ Π·Π²ΠΎΠ½ΠΎΠΊ ΠΌΠΎΠ³ΡΡ ΡΠ΅ΡΡΠ΅Π·Π½ΠΎ ΠΏΠΎΠ²Π»ΠΈΡΡΡ Π½Π° ΡΠΏΠΎΡΠΎΠ±Π½ΠΎΡΡΡ ΠΏΡΠΎΠ΄Π°Π²ΡΠ° ΡΠΎΠ²Π΅ΡΡΠΈΡΡ ΠΏΡΠΎΠ΄Π°ΠΆΡ.
ΠΡΠΎΠ΄ΠΎΠ»ΠΆΠΈΡΠ΅Π»ΡΠ½ΠΎΡΡΡ ΡΠ°Π·Π³ΠΎΠ²ΠΎΡΠ° ΡΠΎΡΡΠ°Π²Π»ΡΠ΅Ρ ΠΎΡ 30 Π΄ΠΎ 60 ΠΌΠΈΠ½ΡΡ, Π½ΠΎ ΠΎΠ±ΡΡΠ½ΠΎ ΠΎΡ 30 Π΄ΠΎ 40 ΠΌΠΈΠ½ΡΡ. ΠΠΎΠΆΠ΅Ρ Π±ΡΡΡ ΡΠΎΠ»ΡΠΊΠΎ ΠΎΠ΄ΠΈΠ½ ΡΠ΅Π»Π΅ΡΠΎΠ½Π½ΡΠΉ Π·Π²ΠΎΠ½ΠΎΠΊ ΠΈΠ»ΠΈ Π΄Π²Π° Π·Π²ΠΎΠ½ΠΊΠ° (Π²ΠΊΠ»ΡΡΠ°Ρ ΠΏΠΎΠ²ΡΠΎΡΠ½ΡΠΉ Π·Π²ΠΎΠ½ΠΎΠΊ) Π² Π·Π°Π²ΠΈΡΠΈΠΌΠΎΡΡΠΈ ΠΎΡ ΡΠΎΠ³ΠΎ, ΠΊΠ°ΠΊ Π²Π»ΠΈΡΡΠ΅Π»ΡΠ½ΡΠΉ ΡΠ΅Π»ΠΎΠ²Π΅ΠΊ ΠΎΡΠ³Π°Π½ΠΈΠ·ΠΎΠ²Π°Π» Π±ΠΈΠ·Π½Π΅Ρ.
Π£ΡΠΎΠ²Π΅Π½Ρ ΡΠΈΡΠΊΠ° ΠΏΡΠΈ Π½Π΅ΡΠ΄Π°ΡΠ½ΠΎΠΌ ΠΎΠ±ΡΠ΅Π½ΠΈΠΈ Π·Π°ΠΊΠ»ΡΡΠ°Π΅ΡΡΡ Π² ΡΠΎΠΌ, ΡΡΠΎ Π±Π»ΠΈΠΆΠ΅ ΠΌΠΎΠΆΠ½ΠΎ ΠΏΠΎΡΠ΅ΡΡΡΡ ΠΏΡΠΎΠ΄Π°ΠΆΡ, ΠΈΠ»ΠΈ Π² ΡΠΊΡΡΡΠ΅ΠΌΠ°Π»ΡΠ½ΡΡ ΡΠΈΡΡΠ°ΡΠΈΡΡ Π½Π΅ΡΠ΄Π°Π²ΡΠΈΠΉΡΡ Π·Π²ΠΎΠ½ΠΎΠΊ ΠΌΠΎΠΆΠ΅Ρ ΠΏΡΠΈΠ²Π΅ΡΡΠΈ ΠΊ ΡΠ΅ΡΠ΄ΠΈΡΠΎΠΌΡ ΠΏΠΎΡΠ΅Π½ΡΠΈΠ°Π»ΡΠ½ΠΎΠΌΡ ΠΊΠ»ΠΈΠ΅Π½ΡΡ.
ΠΠ°ΠΊΠΎΠΉ ΡΡΠΎΠ²Π΅Π½Ρ Π½Π°Π²ΡΠΊΠΎΠ² ΡΡΡΠ½ΠΎΠ³ΠΎ ΠΎΠ±ΡΠ΅Π½ΠΈΡ Π²Π°ΠΌ Π½ΡΠΆΠ΅Π½ ΠΊΠ°ΠΊ Π΄ΠΎΠ²ΠΎΠ΄ΡΠΈΠΊ?
High Ticket Closers β’ Π΄ΠΎΠ»ΠΆΠ½Ρ ΡΠ²ΠΎΠ±ΠΎΠ΄Π½ΠΎ Π³ΠΎΠ²ΠΎΡΠΈΡΡ Π½Π° ΡΠ·ΡΠΊΠ΅, Π½Π° ΠΊΠΎΡΠΎΡΠΎΠΌ ΠΎΠ½ΠΈ Π·Π°ΠΊΡΡΠ²Π°ΡΡΡΡ, Π½ΠΎ ΠΎΠ½ΠΈ ΡΠ°ΠΊΠΆΠ΅ ΠΌΠΎΠ³ΡΡ Π·Π°ΠΊΡΡΠ²Π°ΡΡ Π½Π° ΡΠ²ΠΎΠ΅ΠΌ Π²ΡΠΎΡΠΎΠΌ ΡΠ·ΡΠΊΠ΅.Π£Π²Π΅ΡΠ΅Π½Π½ΠΎΡΡΡ ΠΈ ΠΏΡΠ°Π²ΠΈΠ»ΡΠ½ΠΎΠ΅ ΠΈΡΠΏΠΎΠ»ΡΠ·ΠΎΠ²Π°Π½ΠΈΠ΅ ΡΠΎΠ½Π° Π²Π°ΠΆΠ½Π΅Π΅ Π³ΡΠ°ΠΌΠΌΠ°ΡΠΈΡΠ΅ΡΠΊΠΎΠΉ ΡΠΎΡΠ½ΠΎΡΡΠΈ. ΠΡΠΏΠΎΠ»ΡΠ·ΠΎΠ²Π°Π½ΠΈΠ΅ ΡΠ°Π·Π³ΠΎΠ²ΠΎΡΠ½ΠΎΠ³ΠΎ ΡΠ·ΡΠΊΠ° ΠΈΠ»ΠΈ Π±ΠΎΠ»Π΅Π΅ ΡΠΎΡΠΌΠ°Π»ΡΠ½ΠΎΠ³ΠΎ ΠΈ ΡΠ΅Ρ Π½ΠΈΡΠ΅ΡΠΊΠΎΠ³ΠΎ ΡΠ·ΡΠΊΠ° Π·Π°Π²ΠΈΡΠΈΡ ΠΎΡ ΡΠΈΡΡΠ°ΡΠΈΠΈ Π·Π°ΠΊΡΡΡΠΈΡ (Π½Π°ΠΏΡΠΈΠΌΠ΅Ρ, Π·Π°ΠΊΡΡΡΠΈΠ΅ ΠΊΠ»ΠΈΠ΅Π½ΡΠ° Π΄Π»Ρ ΠΏΡΠΎΠ³ΡΠ°ΠΌΠΌΡ Π·Π½Π°ΠΊΠΎΠΌΡΡΠ² ΠΏΠΎ ΡΡΠ°Π²Π½Π΅Π½ΠΈΡ Ρ Π·Π°ΠΊΡΡΡΠΈΠ΅ΠΌ ΠΊΠ»ΠΈΠ΅Π½ΡΠ° B2B).
Π‘Π»ΠΎΠΆΠ½ΠΎΡΡΡ ΠΎΠ±ΡΠ΅Π½ΠΈΡ Π·Π°Π²ΠΈΡΠΈΡ ΠΎΡ ΠΎΠΏΡΡΠ° Π·Π°ΠΊΠ°Π·ΡΠΈΠΊΠ° ΠΈ ΠΎΡΡΠ°ΡΠ»ΠΈ. ΠΠΎΠ»Π΅Π΅ Π±Π»ΠΈΠ·ΠΊΠΎΠΌΡ ΡΠ΅Π»ΠΎΠ²Π΅ΠΊΡ, ΠΊΠΎΡΠΎΡΡΠΉ ΡΠ²Π»ΡΠ΅ΡΡΡ Π½ΠΎΠ²ΠΈΡΠΊΠΎΠΌ Π² ΠΎΡΡΠ°ΡΠ»ΠΈ ΠΈ Π½ΠΎΠ²ΡΠΌ Π΄Π»Ρ Π²Π»ΠΈΡΡΠ΅Π»ΡΠ½ΠΎΠ³ΠΎ Π»ΠΈΡΠ°, Π½Π΅ΠΎΠ±Ρ ΠΎΠ΄ΠΈΠΌΠΎ ΠΈΠ·ΡΡΠΈΡΡ ΠΎΡΡΠ°ΡΠ»Π΅Π²ΡΡ ΡΠ΅ΡΠΌΠΈΠ½ΠΎΠ»ΠΎΠ³ΠΈΡ, Π° ΡΠ°ΠΊΠΆΠ΅ ΡΠΈΠΏΠΈΡΠ½ΡΠ΅ Π²ΠΎΠΏΡΠΎΡΡ ΠΈ ΠΏΡΠΎΠ±Π»Π΅ΠΌΡ ΡΠΈΠΏΠΈΡΠ½ΠΎΠΉ ΠΊΠ»ΠΈΠ΅Π½ΡΡΠΊΠΎΠΉ Π±Π°Π·Ρ Π²Π»ΠΈΡΡΠ΅Π»ΡΠ½ΠΎΠ³ΠΎ Π»ΠΈΡΠ°.
ΠΠΎΠ»Π΅Π΅ Π±Π»ΠΈΠ·ΠΊΠΈΠΉ ΡΠ΅Π»ΠΎΠ²Π΅ΠΊ, ΠΈΠΌΠ΅ΡΡΠΈΠΉ ΠΎΠΏΡΡ ΡΠ°Π±ΠΎΡΡ Π² ΠΎΡΡΠ°ΡΠ»ΠΈ (Π½Π°ΠΏΡΠΈΠΌΠ΅Ρ, B2B, Π±ΠΈΠ·Π½Π΅Ρ, ΡΠΈΡΠ½Π΅Ρ, ΡΠ΅Ρ Π½ΠΎΠ»ΠΎΠ³ΠΈΠΈ), Π±ΡΠ΄Π΅Ρ Ρ ΠΎΡΠΎΡΠΎ Π·Π½Π°ΠΊΠΎΠΌ Ρ ΠΊΠ»ΡΡΠ΅Π²ΠΎΠΉ Π»Π΅ΠΊΡΠΈΠΊΠΎΠΉ. ΠΡΠΎΠΌΠ΅ ΡΠΎΠ³ΠΎ, Π±ΠΎΠ»Π΅Π΅ Π±Π»ΠΈΠ·ΠΊΠΈΠΉ ΡΠ΅Π»ΠΎΠ²Π΅ΠΊ, ΠΎΡΠ²Π΅ΡΠΈΠ²ΡΠΈΠΉ Π½Π° ΠΌΠ½ΠΎΠ³ΠΈΠ΅ Π·Π²ΠΎΠ½ΠΊΠΈ ΠΏΠΎ ΠΏΠΎΠ²ΠΎΠ΄Ρ ΠΏΡΠ΅Π΄Π»ΠΎΠΆΠ΅Π½ΠΈΡ Π²Π»ΠΈΡΡΠ΅Π»ΡΠ½ΠΎΠ³ΠΎ Π»ΠΈΡΠ°, Π±ΡΠ΄Π΅Ρ Π·Π½Π°ΠΊΠΎΠΌ Ρ ΡΡΠ΄ΠΎΠΌ ΡΡΠ΅Π½Π°ΡΠΈΠ΅Π², ΠΊΠΎΡΠΎΡΡΠ΅ ΠΌΠΎΠ³ΡΡ Π²ΠΎΠ·Π½ΠΈΠΊΠ½ΡΡΡ Π²ΠΎ Π²ΡΠ΅ΠΌΡ ΡΠ°Π·Π³ΠΎΠ²ΠΎΡΠ°, ΠΈ Π±ΡΠ΄Π΅Ρ Ρ ΠΎΡΠΎΡΠΎ ΠΏΠΎΠ΄Π³ΠΎΡΠΎΠ²Π»Π΅Π½ ΠΊ ΡΠ°Π±ΠΎΡΠ΅ Ρ Π»ΡΠ±ΡΠΌΠΈ Π²ΠΎΠΏΡΠΎΡΠ°ΠΌΠΈ ΠΈΠ»ΠΈ Π²ΠΎΠ·ΡΠ°ΠΆΠ΅Π½ΠΈΡΠΌΠΈ.
ΠΠΎΡΠΌΠΎΡΡΠΈΡΠ΅ ΡΡΠΎ Π²ΠΈΠ΄Π΅ΠΎ ΠΎ ΡΠΎΠΌ, ΠΊΠ°ΠΊ ΠΎΠ±ΡΠ°Π±ΠΎΡΠ°ΡΡ ΡΠ°ΠΊΡΠΈΡΠ΅ΡΠΊΠΈΠΉ ΡΠΎΡΠ³ΠΎΠ²ΡΠΉ Π·Π²ΠΎΠ½ΠΎΠΊ, ΠΈΡΠΏΠΎΠ»ΡΠ·ΡΡ Π½Π°Π²ΡΠΊΠΈ Π·Π°ΠΊΡΡΡΠΈΡ.
ΠΠ°Π²ΡΠΊΠΈ ΠΌΡΡΠ»Π΅Π½ΠΈΡ
ΠΠ°ΠΊΠΈΠ΅ Π½Π°Π²ΡΠΊΠΈ ΡΠ΅ΡΠ΅Π½ΠΈΡ ΠΏΡΠΎΠ±Π»Π΅ΠΌ Π½Π΅ΠΎΠ±Ρ ΠΎΠ΄ΠΈΠΌΡ High Ticket Closers β’?
ΠΠΎΠ²ΠΎΠ΄ΡΠΈΠΊΠΈ Ρ Π±ΠΎΠ»ΡΡΠΈΠΌ ΠΎΠΏΡΡΠΎΠΌ Π±ΡΠ΄ΡΡ ΠΈΠΌΠ΅ΡΡ Π±ΠΎΠ»Π΅Π΅ ΡΡΡΠΈΠ½Π½ΡΠΉ ΠΏΠΎΠ΄Ρ ΠΎΠ΄ ΠΊ ΡΠ΅ΡΠ΅Π½ΠΈΡ ΠΏΡΠΎΠ±Π»Π΅ΠΌ, ΡΠ΅ΠΌ Π΄ΠΎΠ²ΠΎΠ΄ΡΠΈΠΊΠΈ, ΠΊΠΎΡΠΎΡΡΠ΅ Π½ΠΎΠ²ΠΈΡΠΊΠΈ Π² Π±ΠΈΠ·Π½Π΅ΡΠ΅.ΠΠ°ΠΏΡΠΈΠΌΠ΅Ρ, ΠΎΠ±ΡΠ°Π±ΠΎΡΠΊΠ° Π½Π΅ΡΠ²ΠΊΠΈ Π½Π° Π²ΡΡΡΠ΅ΡΡ, ΠΏΠ΅ΡΠ΅Π½ΠΎΡ Π²ΡΡΡΠ΅ΡΠΈ, ΠΊΠΎΠ³Π΄Π° Ρ Π±Π»ΠΈΠΆΠ°ΠΉΡΠ΅Π³ΠΎ Π΅ΡΡΡ ΡΡΠ΅Π·Π²ΡΡΠ°ΠΉΠ½Π°Ρ ΡΠΈΡΡΠ°ΡΠΈΡ Π² ΡΠ΅ΠΌΡΠ΅, ΠΈΠ»ΠΈ ΠΏΠΎΡΠ΅ΡΡ ΠΏΠΎΠ΄ΠΊΠ»ΡΡΠ΅Π½ΠΈΡ ΠΊ ΠΠ½ΡΠ΅ΡΠ½Π΅ΡΡ ΠΏΡΠΈ Π·Π°ΠΏΠΎΠ»Π½Π΅Π½ΠΈΠΈ ΡΡΡΠ°Π½ΠΈΡΡ ΠΎΡΠΎΡΠΌΠ»Π΅Π½ΠΈΡ Π·Π°ΠΊΠ°Π·Π° ΠΏΠΎΡΠ΅Π½ΡΠΈΠ°Π»ΡΠ½ΡΠΌ ΠΊΠ»ΠΈΠ΅Π½ΡΠΎΠΌ.
ΠΠ΄Π½ΠΎΠΉ ΠΈΠ· Π½Π°ΠΈΠ±ΠΎΠ»Π΅Π΅ ΡΠ°ΡΠΏΡΠΎΡΡΡΠ°Π½Π΅Π½Π½ΡΡ ΠΏΡΠΎΠ±Π»Π΅ΠΌ, ΠΊΠΎΡΠΎΡΡΠ΅ Π½Π΅ΠΎΠ±Ρ ΠΎΠ΄ΠΈΠΌΠΎ ΡΠ΅ΡΠΈΡΡ Π΄ΠΎΠ²ΠΎΠ΄ΡΠΈΠΊΠ°ΠΌ, ΡΠ²Π»ΡΡΡΡΡ Π²ΠΎΠΏΡΠΎΡΡ ΠΎΠΏΠ»Π°ΡΡ, ΡΠ°ΠΊΠΈΠ΅ ΠΊΠ°ΠΊ ΠΏΠΎΠΌΠΎΡΡ ΠΏΠΎΡΠ΅Π½ΡΠΈΠ°Π»ΡΠ½ΠΎΠΌΡ ΠΊΠ»ΠΈΠ΅Π½ΡΡ Π² ΠΏΠΎΠΈΡΠΊΠ΅ ΡΠ΅ΡΡΡΡΠΎΠ² Π΄Π»Ρ ΠΎΠΏΠ»Π°ΡΡ ΠΈΠ»ΠΈ ΡΠΏΠΎΡΠΎΠ± ΠΎΠΏΠ»Π°ΡΡ, Π΅ΡΠ»ΠΈ ΠΏΠΎΡΠ΅Π½ΡΠΈΠ°Π»ΡΠ½ΡΠΉ ΠΊΠ»ΠΈΠ΅Π½Ρ ΠΆΠΈΠ²Π΅Ρ Π² ΡΡΡΠ°Π½Π΅, ΠΎΡΠ»ΠΈΡΠ½ΠΎΠΉ ΠΎΡ ΡΡΡΠ°Π½Ρ, Π² ΠΊΠΎΡΠΎΡΠΎΠΉ Π½Π°Ρ ΠΎΠ΄ΠΈΡΡΡ Π²Π»ΠΈΡΡΠ΅Π»ΡΠ½ΡΠΉ ΡΠ΅Π»ΠΎΠ²Π΅ΠΊ.
ΠΠ°ΠΊΠΈΠ΅ Π½Π°Π²ΡΠΊΠΈ ΠΏΡΠΈΠ½ΡΡΠΈΡ ΡΠ΅ΡΠ΅Π½ΠΈΠΉ ΠΈΡΠΏΠΎΠ»ΡΠ·ΡΡΡ High Ticket Closers β’?
ΠΠΎΠ²ΠΎΠ΄ΡΠΈΠΊΠΈ ΠΏΡΠΈΠ½ΠΈΠΌΠ°ΡΡ ΡΡΠ΄ ΡΠ΅ΡΠ΅Π½ΠΈΠΉ, ΠΊΠΎΡΠΎΡΡΠ΅ ΠΈΠΌΠ΅ΡΡ Π½Π΅Π·Π½Π°ΡΠΈΡΠ΅Π»ΡΠ½ΡΠ΅ ΠΏΠΎΡΠ»Π΅Π΄ΡΡΠ²ΠΈΡ ΠΈΠ»ΠΈ Π½Π΅ ΠΈΠΌΠ΅ΡΡ Π½ΠΈΠΊΠ°ΠΊΠΈΡ ΠΏΠΎΡΠ»Π΅Π΄ΡΡΠ²ΠΈΠΉ Π΄Π»Ρ ΡΠ΅ΡΠ΅Π½ΠΈΠΉ Π·Π½Π°ΡΠΈΡΠ΅Π»ΡΠ½ΡΡ ΠΏΠΎΡΠ»Π΅Π΄ΡΡΠ²ΠΈΠΉ.ΠΠ°ΠΏΡΠΈΠΌΠ΅Ρ, Π³Π»ΠΎΡΠΎΠΊ Π²ΠΎΠ΄Ρ ΠΏΠ΅ΡΠ΅Π΄ ΡΠ»Π΅Π΄ΡΡΡΠΈΠΌ ΡΠ΅Π»Π΅ΡΠΎΠ½Π½ΡΠΌ Π·Π²ΠΎΠ½ΠΊΠΎΠΌ ΠΈΠΌΠ΅Π΅Ρ Π½Π΅Π·Π½Π°ΡΠΈΡΠ΅Π»ΡΠ½ΡΠ΅ ΠΏΠΎΡΠ»Π΅Π΄ΡΡΠ²ΠΈΡ. ΠΡΠ»ΠΈ Ρ Π½ΠΈΡ ΠΏΠ΅ΡΠ΅ΡΠΎΡ Π»ΠΎ Π²ΠΎ ΡΡΡ, ΠΎΠ½ΠΈ ΠΌΠΎΠ³ΡΡ ΠΏΠΈΡΡ Π²ΠΎ Π²ΡΠ΅ΠΌΡ ΡΠ°Π·Π³ΠΎΠ²ΠΎΡΠ°.
Π‘ Π΄ΡΡΠ³ΠΎΠΉ ΡΡΠΎΡΠΎΠ½Ρ, ΠΎΡΠΊΠ°Π· ΠΎΡ ΠΊΠ²Π°Π»ΠΈΡΠΈΠΊΠ°ΡΠΈΠΈ ΠΏΠΎΡΠ΅Π½ΡΠΈΠ°Π»ΡΠ½ΠΎΠ³ΠΎ ΠΊΠ»ΠΈΠ΅Π½ΡΠ°, Ρ ΠΊΠΎΡΠΎΡΠΎΠ³ΠΎ Π½Π΅Ρ Π΄Π΅Π½Π΅Π³, ΠΈΠΌΠ΅Π΅Ρ ΡΠ΅ΡΡΠ΅Π·Π½ΡΠ΅ ΠΏΠΎΡΠ»Π΅Π΄ΡΡΠ²ΠΈΡ. ΠΠΎΡΠ΅Π½ΡΠΈΠ°Π»ΡΠ½ΡΠΉ ΠΊΠ»ΠΈΠ΅Π½Ρ ΠΌΠΎΠΆΠ΅Ρ ΠΏΠΎΠ΄ΠΏΠΈΡΠ°ΡΡΡΡ Π½Π° ΠΏΡΠΎΠ³ΡΠ°ΠΌΠΌΡ, Π° Π·Π°ΡΠ΅ΠΌ Π½Π΅ ΠΏΡΠΎΠΈΠ·Π²Π΅ΡΡΠΈ ΠΏΠ»Π°ΡΠ΅ΠΆΠΈ, ΡΡΠΎ ΠΏΠΎΠ²Π»ΠΈΡΠ΅Ρ Π½Π° ΠΊΠΎΠΌΠΈΡΡΠΈΡ Π·Π°ΠΊΠ°Π·ΡΠΈΠΊΠ°, Π° ΡΠ°ΠΊΠΆΠ΅ Π½Π° Π·Π°ΠΊΡΡΡΠΈΠ΅ ΠΏΠΎΡΠ»ΡΠΆΠ½ΠΎΠ³ΠΎ ΡΠΏΠΈΡΠΊΠ°.
ΠΠ°ΠΊΠΈΠ΅ Π½Π°Π²ΡΠΊΠΈ ΠΊΡΠΈΡΠΈΡΠ΅ΡΠΊΠΎΠ³ΠΎ ΠΌΡΡΠ»Π΅Π½ΠΈΡ Π½ΡΠΆΠ½Ρ Π΄ΠΎΠ²ΠΎΠ΄ΡΠΈΠΊΠ°ΠΌ?
ΠΠΎΠ²ΠΎΠ΄ΡΠΈΠΊΠΈ Π΄ΠΎΠ»ΠΆΠ½Ρ ΠΎΡΠ΅Π½ΠΈΠ²Π°ΡΡ ΡΠΈΡΡΠ°ΡΠΈΠΈ, Π° Π·Π°ΡΠ΅ΠΌ ΠΏΡΠ΅Π΄Π»Π°Π³Π°ΡΡ ΡΠ΅ΡΠ΅Π½ΠΈΠ΅, ΠΈΡΠΏΠΎΠ»ΡΠ·ΡΡ ΡΠ²ΠΎΠΈ Π½Π°Π²ΡΠΊΠΈ ΠΊΡΠΈΡΠΈΡΠ΅ΡΠΊΠΎΠ³ΠΎ ΠΌΡΡΠ»Π΅Π½ΠΈΡ.ΠΠ°ΠΏΡΠΈΠΌΠ΅Ρ, ΠΏΠΎΡΠ΅Π½ΡΠΈΠ°Π»ΡΠ½ΡΠΉ ΠΊΠ»ΠΈΠ΅Π½Ρ Ρ ΠΎΡΠΎΡΠΎ ΠΏΠΎΠ΄Ρ ΠΎΠ΄ΠΈΡ Π΄Π»Ρ ΠΏΡΠΎΠ³ΡΠ°ΠΌΠΌΡ, Π½ΠΎ ΠΎΠ½ ΡΠΈΠ½Π°Π½ΡΠΎΠ²ΠΎ Π½Π΅ ΠΌΠΎΠΆΠ΅Ρ ΠΈΠ½Π²Π΅ΡΡΠΈΡΠΎΠ²Π°ΡΡ Π² ΠΏΠ»Π°Π½ Ρ ΠΏΠΎΠΌΠΎΡΡΡ ΠΎΠ΄Π½ΠΎΠ³ΠΎ ΠΏΠ»Π°ΡΠ΅ΠΆΠ°. ΠΠΎΠ»Π΅Π΅ Π΄Π΅ΡΠ°Π»ΡΠ½ΠΎ ΠΎΡΠ΅Π½ΠΈΠ²Π°Π΅Ρ ΡΠΈΠ½Π°Π½ΡΠΎΠ²ΠΎΠ΅ ΠΏΠΎΠ»ΠΎΠΆΠ΅Π½ΠΈΠ΅ ΠΏΠΎΡΠ΅Π½ΡΠΈΠ°Π»ΡΠ½ΠΎΠ³ΠΎ ΠΊΠ»ΠΈΠ΅Π½ΡΠ°, ΡΡΠΎΠ±Ρ ΠΏΡΠ΅Π΄Π»ΠΎΠΆΠΈΡΡ Π°Π»ΡΡΠ΅ΡΠ½Π°ΡΠΈΠ²Π½ΡΠ΅ ΠΏΠ»Π°Π½Ρ ΠΏΠ»Π°ΡΠ΅ΠΆΠ΅ΠΉ ΠΈΠ»ΠΈ Π²Π°ΡΠΈΠ°Π½ΡΡ ΡΠΈΠ½Π°Π½ΡΠΈΡΠΎΠ²Π°Π½ΠΈΡ.
ΠΠΎΡΠ΅Π½ΡΠΈΠ°Π»ΡΠ½ΡΠΉ ΠΊΠ»ΠΈΠ΅Π½Ρ ΠΌΠΎΠΆΠ΅Ρ ΡΠ°ΠΊΠΆΠ΅ Π·Π°ΡΠ²ΠΈΡΡ, ΡΡΠΎ Π΅ΠΌΡ Π½ΡΠΆΠ½ΠΎ Π±ΠΎΠ»ΡΡΠ΅ Π²ΡΠ΅ΠΌΠ΅Π½ΠΈ Π΄Π»Ρ ΠΏΡΠΈΠ½ΡΡΠΈΡ ΡΠ΅ΡΠ΅Π½ΠΈΡ, Π»ΠΈΠ±ΠΎ ΠΏΠΎΡΠΎΠΌΡ, ΡΡΠΎ Ρ Π½Π΅Π³ΠΎ ΡΠ΅ΠΉΡΠ°Ρ Π½Π΅Ρ Π΄Π΅Π½Π΅Π³, Π»ΠΈΠ±ΠΎ Π΅ΠΌΡ Π½ΡΠΆΠ½Π° Π³Π°ΡΠ°Π½ΡΠΈΡ. ΠΠΎΠ»Π΅Π΅ Π±Π»ΠΈΠ·ΠΊΠΎΠ΅ Π΄ΠΎΠ»ΠΆΠ½ΠΎ ΠΎΡΠ΅Π½ΠΈΡΡ ΡΠ΅Π°Π»ΡΠ½ΡΡ ΠΏΡΠΈΡΠΈΠ½Ρ Π²ΠΎΠ·ΡΠ°ΠΆΠ΅Π½ΠΈΡ Π½Π° ΠΎΡΠ½ΠΎΠ²Π΅ ΡΠΎΠ³ΠΎ, ΡΡΠΎ Π±ΠΎΠ»Π΅Π΅ Π±Π»ΠΈΠ·ΠΊΠΎΠ΅ Π·Π½Π°ΠΊΠΎΠΌΡΡΠ²ΠΎ Ρ ΠΏΠΎΡΠ΅Π½ΡΠΈΠ°Π»ΡΠ½ΡΠΌ ΠΊΠ»ΠΈΠ΅Π½ΡΠΎΠΌ, ΠΈ ΡΠ΅ΡΠΈΡΡ, ΡΠ²Π»ΡΠ΅ΡΡΡ Π»ΠΈ Π²ΠΎΠ·ΡΠ°ΠΆΠ΅Π½ΠΈΠ΅ ΠΈΡΡΠΈΠ½Π½ΡΠΌ Π²ΠΎΠ·ΡΠ°ΠΆΠ΅Π½ΠΈΠ΅ΠΌ ΠΈΠ»ΠΈ ΡΠΊΡΡΠ²Π°Π΅Ρ Π΄ΡΡΠ³ΠΎΠ΅.
ΠΠ°ΠΊ High Ticket Closers β’ ΠΏΠ»Π°Π½ΠΈΡΡΡΡ ΠΈ ΠΎΡΠ³Π°Π½ΠΈΠ·ΡΡΡ ΡΠ°Π±ΠΎΡΠΈΠ΅ Π·Π°Π΄Π°ΡΠΈ?
ΠΠΎΠ²ΠΎΠ΄ΡΠΈΠΊΠΈ ΠΈΠΌΠ΅ΡΡ Π²ΡΡΠΎΠΊΠΈΠΉ ΡΡΠΎΠ²Π΅Π½Ρ Π°Π²ΡΠΎΠ½ΠΎΠΌΠΈΠΈ Π² ΠΎΡΠ½ΠΎΡΠ΅Π½ΠΈΠΈ ΡΠ²ΠΎΠΈΡ Π³ΡΠ°ΡΠΈΠΊΠΎΠ². ΠΠΎΡΠ»Π΅ ΠΏΡΠΈΠ½ΡΡΠΈΡ ΡΠ΅ΡΠ΅Π½ΠΈΡ ΠΎΠ± ΠΈΡ Π³ΠΎΡΠΎΠ²Π½ΠΎΡΡΠΈ ΠΏΡΠΈΠ½ΠΈΠΌΠ°ΡΡ Π·Π²ΠΎΠ½ΠΊΠΈ, ΡΠ°Π±ΠΎΡΠ° Π΄ΠΎΠ²ΠΎΠ΄ΡΠΈΠΊΠ° ΡΡΠ°Π½ΠΎΠ²ΠΈΡΡΡ Π΄ΠΎΠ²ΠΎΠ»ΡΠ½ΠΎ ΡΡΡΠΈΠ½Π½ΠΎΠΉ. ΠΠ½ΠΈ ΠΈΡΠΏΠΎΠ»ΡΠ·ΡΡΡ ΠΏΠ΅ΡΠ΅ΡΡΠ²Ρ ΠΌΠ΅ΠΆΠ΄Ρ Π·Π²ΠΎΠ½ΠΊΠ°ΠΌΠΈ, ΡΡΠΎΠ±Ρ ΠΎΡΠ΄ΠΎΡ Π½ΡΡΡ, ΠΏΠΎΡΡΠ΅Π½ΠΈΡΠΎΠ²Π°ΡΡΡΡ ΠΈΠ»ΠΈ ΠΏΠΎΠ΄Π³ΠΎΡΠΎΠ²ΠΈΡΡΡΡ ΠΊ ΡΠ»Π΅Π΄ΡΡΡΠ΅ΠΌΡ Π·Π²ΠΎΠ½ΠΊΡ. ΠΠ½ΠΈ Π²ΡΠ΄Π΅Π»ΡΡΡ Π±Π»ΠΎΠΊ Π²ΡΠ΅ΠΌΠ΅Π½ΠΈ ΠΊΠ°ΠΆΠ΄ΡΠΉ Π΄Π΅Π½Ρ, ΡΡΠΎΠ±Ρ ΡΠ²ΡΠ·Π°ΡΡΡΡ Ρ ΠΏΠΎΡΠ΅Π½ΡΠΈΠ°Π»ΡΠ½ΡΠΌΠΈ ΠΊΠ»ΠΈΠ΅Π½ΡΠ°ΠΌΠΈ ΡΠ΅ΡΠ΅Π· ΡΠ΅ΠΊΡΡΠΎΠ²ΡΠ΅ ΡΠΎΠΎΠ±ΡΠ΅Π½ΠΈΡ ΠΈΠ»ΠΈ ΡΠ»Π΅ΠΊΡΡΠΎΠ½Π½ΡΡ ΠΏΠΎΡΡΡ, ΡΡΠΎΠ±Ρ Π½Π°ΠΏΠΎΠΌΠ½ΠΈΡΡ ΠΈΠΌ ΠΎ Π²ΡΡΡΠ΅ΡΠ°Ρ , Π° ΡΠ°ΠΊΠΆΠ΅ Π·Π°ΠΏΠΎΠ»Π½ΠΈΡΡ Π΄ΠΎΠΊΡΠΌΠ΅Π½ΡΡ ΠΎ ΠΏΠΎΡΠ΅Π½ΡΠΈΠ°Π»ΡΠ½ΡΡ ΠΊΠ»ΠΈΠ΅Π½ΡΠ°Ρ .
ΠΠΎΠ²ΠΎΠ΄ΡΠΈΠΊΠΈ ΡΠ°Π±ΠΎΡΠ°ΡΡ Π² ΠΎΠ΄ΠΈΠ½ΠΎΡΠΊΡ, ΠΏΠΎΡΡΠΎΠΌΡ ΠΎΠ½ΠΈ ΠΎΠ±ΡΠ·Π°Π½Ρ ΠΎΡΠ³Π°Π½ΠΈΠ·ΠΎΠ²Π°ΡΡ ΡΠ²ΠΎΡ ΡΠ°Π±ΠΎΡΡ.ΠΡΠ»ΠΈ ΠΎΠ½ΠΈ ΡΠ²Π»ΡΡΡΡΡ ΡΠ°ΡΡΡΡ Π·Π°ΠΊΡΡΠ²Π°ΡΡΠ΅ΠΉ ΠΊΠΎΠΌΠ°Π½Π΄Ρ, ΠΈΠΌ ΠΌΠΎΠΆΠ΅Ρ ΠΏΠΎΡΡΠ΅Π±ΠΎΠ²Π°ΡΡΡΡ ΡΠΎΠ³Π»Π°ΡΠΎΠ²Π°ΡΡ Π³ΡΠ°ΡΠΈΠΊΠΈ ΡΠ°Π±ΠΎΡΡ, ΡΡΠΎΠ±Ρ ΠΎΡ Π²Π°ΡΠΈΡΡ Π²ΡΠ΅ ΠΎΡΡΠ΅Π·ΠΊΠΈ Π²ΡΠ΅ΠΌΠ΅Π½ΠΈ.
ΠΠ½ΠΎΠ³ΠΈΠ΅ Π²Π»ΠΈΡΡΠ΅Π»ΡΠ½ΡΠ΅ Π»ΠΈΡΠ° ΠΈ B2B Ρ ΠΎΡΡΡ Π²Π΅ΡΡΠΈ Π±ΠΈΠ·Π½Π΅Ρ, Π΄ΠΎΡΡΡΠΏΠ½ΡΠΉ Π²ΠΎ Π²ΡΠ΅ΠΌ ΠΌΠΈΡΠ΅, ΡΡΠΎΠ±Ρ ΠΏΠΎΡΠ΅Π½ΡΠΈΠ°Π»ΡΠ½ΡΠ΅ ΠΊΠ»ΠΈΠ΅Π½ΡΡ ΠΈΠ· Π»ΡΠ±ΠΎΠ³ΠΎ ΡΠ°ΡΠΎΠ²ΠΎΠ³ΠΎ ΠΏΠΎΡΡΠ° ΠΌΠΎΠ³Π»ΠΈ Π±ΡΠΎΠ½ΠΈΡΠΎΠ²Π°ΡΡ Π²ΡΠ΅ΠΌΡ Ρ Π΄ΠΎΠ²ΠΎΠ΄ΡΠΈΠΊΠΎΠΌ Π² ΡΠ΄ΠΎΠ±Π½ΠΎΠ΅ Π΄Π»Ρ Π½ΠΈΡ Π²ΡΠ΅ΠΌΡ. Π§Π΅ΠΌ Π³Π»ΠΎΠ±Π°Π»ΡΠ½Π΅Π΅ Π±ΠΈΠ·Π½Π΅Ρ, ΡΠ΅ΠΌ Π±ΠΎΠ»Π΅Π΅ Π²Π΅ΡΠΎΡΡΠ½ΠΎ, ΡΡΠΎ ΠΎΠ½ΠΈ Ρ ΠΎΡΡΡ, ΡΡΠΎΠ±Ρ ΠΈΡ ΠΊΠΎΠΌΠ°Π½Π΄Π° ΠΏΠΎ Π·Π°ΠΊΡΡΡΠΈΡ ΡΠ°Π±ΠΎΡΠ°Π»Π° ΠΊΡΡΠ³Π»ΠΎΡΡΡΠΎΡΠ½ΠΎ.
ΠΠ°ΠΊΠ°Ρ ΠΏΠΎΠ»ΡΠ·Π° ΠΎΡ ΠΏΠ°ΠΌΡΡΠΈ Π΄ΠΎΠ²ΠΎΠ΄ΡΠΈΠΊΠ°ΠΌ?
ΠΠΎΠ²ΠΎΠ΄ΡΠΈΠΊΠΈ Π²ΡΠΏΠΎΠΌΠΈΠ½Π°ΡΡ Π΄Π΅ΡΠ°Π»ΠΈ ΠΏΡΠΎΠ΄ΡΠΊΡΠ° ΠΈΠ»ΠΈ ΡΡΠ»ΡΠ³ΠΈ, ΠΊΠΎΡΠΎΡΡΠ΅ ΠΎΠ½ΠΈ ΠΏΡΠΎΠ΄Π°ΡΡ, ΡΡΠΎΠ±Ρ ΠΎΡΠ²Π΅ΡΠΈΡΡ Π½Π° Π²ΠΎΠΏΡΠΎΡΡ ΠΏΠΎΡΠ΅Π½ΡΠΈΠ°Π»ΡΠ½ΠΎΠ³ΠΎ ΠΊΠ»ΠΈΠ΅Π½ΡΠ°.ΠΠ°ΠΏΡΠΈΠΌΠ΅Ρ, ΠΈΠΌ ΠΌΠΎΠΆΠ΅Ρ ΠΏΠΎΡΡΠ΅Π±ΠΎΠ²Π°ΡΡΡΡ ΠΎΡΠ²Π΅ΡΠΈΡΡ Π½Π° Π²ΠΎΠΏΡΠΎΡ ΠΎ Π³Π°ΡΠ°Π½ΡΠΈΠΈ Π½Π° ΠΏΡΠΎΠ΄ΡΠΊΡ ΠΈΠ»ΠΈ ΠΎ ΡΠΎΡΠ½ΡΡ ΡΠ°ΡΠ°Ρ ΠΈ Π½Π΅Π΄Π΅Π»ΡΡ , Π² ΠΊΠΎΡΠΎΡΡΡ ΠΏΡΠ΅Π΄Π»Π°Π³Π°Π΅ΡΡΡ ΠΏΡΠΎΠ³ΡΠ°ΠΌΠΌΠ°.
ΠΠ½ΠΈ Π΄Π΅Π»Π°ΡΡ Π·Π°ΠΌΠ΅ΡΠΊΠΈ ΠΎ ΠΏΠΎΡΠ΅Π½ΡΠΈΠ°Π»ΡΠ½ΠΎΠΌ ΠΊΠ»ΠΈΠ΅Π½ΡΠ΅ Π²ΠΎ Π²ΡΠ΅ΠΌΡ ΡΠ°Π·Π³ΠΎΠ²ΠΎΡΠ°, ΠΏΠΎΡΡΠΎΠΌΡ ΠΈΠΌ Π½Π΅ Π½ΡΠΆΠ½ΠΎ Π·Π°ΠΏΠΎΠΌΠΈΠ½Π°ΡΡ Π²ΡΠ΅ Π΄Π΅ΡΠ°Π»ΠΈ, Π½ΠΎ ΠΎΠ½ΠΈ Π΄ΠΎΠ»ΠΆΠ½Ρ ΠΏΠΎΠΌΠ½ΠΈΡΡ, Π³Π΄Π΅ Π½Π°Ρ ΠΎΠ΄ΠΈΡΡΡ ΠΈΠ½ΡΠΎΡΠΌΠ°ΡΠΈΡ Π½Π° ΡΡΡΠ°Π½ΠΈΡΠ΅, ΡΡΠΎΠ±Ρ Π±ΡΡΡΡΠΎ ΠΏΠΎΠ»ΡΡΠΈΡΡ ΠΊ Π½Π΅ΠΉ Π΄ΠΎΡΡΡΠΏ Π²ΠΎ Π²ΡΠ΅ΠΌΡ ΡΠ°Π·Π³ΠΎΠ²ΠΎΡΠ° Ρ ΠΏΠΎΡΠ΅Π½ΡΠΈΠ°Π»ΡΠ½ΡΠΌ ΠΊΠ»ΠΈΠ΅Π½ΡΠΎΠΌ.
ΠΡΠΆΠ½Π° Π»ΠΈ High Ticket Closers β’ Π΄Π»Ρ ΠΏΠΎΠΈΡΠΊΠ° ΠΈΠ½ΡΠΎΡΠΌΠ°ΡΠΈΠΈ?
ΠΠ΅ΡΠ΅Π΄ ΡΠ΅ΠΌ, ΠΊΠ°ΠΊ ΠΏΠΎΠ·Π²ΠΎΠ½ΠΈΡΡ, Π±ΠΎΠ»Π΅Π΅ Π±Π»ΠΈΠ·ΠΊΠΈΠΉ ΠΈΠ·ΡΡΠΈΡ ΠΈΡ ΠΏΠ΅ΡΡΠΏΠ΅ΠΊΡΠΈΠ²Ρ.ΠΠ½ΠΈ ΠΏΡΠΎΡΠΈΡΠ°ΡΡ ΠΈΠ½ΡΠΎΡΠΌΠ°ΡΠΈΡ, ΠΊΠΎΡΠΎΡΡΡ ΠΏΠΎΡΠ΅Π½ΡΠΈΠ°Π»ΡΠ½ΡΠΉ ΠΊΠ»ΠΈΠ΅Π½Ρ ΠΌΠΎΠ³ Π²Π²Π΅ΡΡΠΈ Π² ΡΠΎΡΠΌΡ Π·Π°ΡΠ²ΠΊΠΈ, ΠΈΠ»ΠΈ ΠΎΠ½ΠΈ ΠΌΠΎΠ³ΡΡ Π½Π°ΠΉΡΠΈ ΠΈΠ½ΡΠΎΡΠΌΠ°ΡΠΈΡ ΠΎ ΠΏΠΎΡΠ΅Π½ΡΠΈΠ°Π»ΡΠ½ΠΎΠΌ ΠΊΠ»ΠΈΠ΅Π½ΡΠ΅ Π² ΡΠΎΡΠΈΠ°Π»ΡΠ½ΡΡ ΡΠ΅ΡΡΡ .
ΠΡΠΎ ΠΏΡΠ΅Π΄Π²Π°ΡΠΈΡΠ΅Π»ΡΠ½ΠΎΠ΅ ΠΈΡΡΠ»Π΅Π΄ΠΎΠ²Π°Π½ΠΈΠ΅ ΠΏΠΎΠΌΠΎΠΆΠ΅Ρ Π»ΡΡΡΠ΅ ΠΏΠΎΠ½ΡΡΡ ΠΏΠΎΡΠ΅Π½ΡΠΈΠ°Π»ΡΠ½ΠΎΠ³ΠΎ ΠΊΠ»ΠΈΠ΅Π½ΡΠ° ΠΈ ΠΌΠΎΠΆΠ΅Ρ Π±ΡΡΡ ΠΈΡΠΏΠΎΠ»ΡΠ·ΠΎΠ²Π°Π½ΠΎ Π΄Π»Ρ Π·Π°ΠΊΡΡΡΠΈΡ ΠΏΠΎΡΠ΅Π½ΡΠΈΠ°Π»ΡΠ½ΠΎΠ³ΠΎ ΠΊΠ»ΠΈΠ΅Π½ΡΠ° ΠΏΠΎ ΠΎΡΠ΅ΡΡΠ΅.
ΠΠ°Π²ΡΠΊΠΈ ΡΠ°Π±ΠΎΡΡ Ρ Π΄ΡΡΠ³ΠΈΠΌΠΈ (ΠΊΠΎΠ»Π»Π΅ΠΊΡΠΈΠ²Π½Π°Ρ ΡΠ°Π±ΠΎΡΠ°)
ΠΡΡΠΎΠΊΠ°Ρ ΡΠΊΠΎΡΠΎΡΡΡ Π·Π°ΠΊΡΡΡΠΈΡ Π·Π°ΡΠ²ΠΎΠΊ — ΡΡΠΎ ΡΠ΄Π°Π»Π΅Π½Π½Π°Ρ ΡΠ°Π±ΠΎΡΠ°. ΠΠ±ΡΡΠ½ΠΎ Π΄ΠΎΠ²ΠΎΠ΄ΡΠΈΠΊ ΠΈΠΌΠ΅Π΅Ρ ΡΠΎΠ±ΡΡΠ²Π΅Π½Π½ΠΎΠ΅ ΡΠ»ΡΠΆΠ΅Π±Π½ΠΎΠ΅ ΠΏΠΎΠΌΠ΅ΡΠ΅Π½ΠΈΠ΅ Π΄ΠΎΠΌΠ°. ΠΠ½ΠΈ ΡΠΎΠ³Π»Π°ΡΠΎΠ²ΡΠ²Π°ΡΡ ΡΠ°Π±ΠΎΡΠΈΠ΅ Π³ΡΠ°ΡΠΈΠΊΠΈ ΡΠΎ ΡΠ²ΠΎΠΈΠΌΠΈ ΡΠΎΠ²Π°ΡΠΈΡΠ°ΠΌΠΈ ΠΏΠΎ ΠΊΠΎΠΌΠ°Π½Π΄Π΅ ΠΈ ΠΌΠΎΠ³ΡΡ ΠΏΠΎΡΠ΅ΡΠ°ΡΡ Π³ΡΡΠΏΠΏΠΎΠ²ΡΠ΅ ΡΡΠ΅Π½ΠΈΠ½Π³ΠΈ Ρ ΠΏΠΎΠΌΠΎΡΡΡ ΠΏΡΠΎΠ³ΡΠ°ΠΌΠΌΠ½ΠΎΠ³ΠΎ ΠΎΠ±Π΅ΡΠΏΠ΅ΡΠ΅Π½ΠΈΡ Π΄Π»Ρ Π²ΠΈΠ΄Π΅ΠΎ- ΠΈΠ»ΠΈ Π°ΡΠ΄ΠΈΠΎΠΊΠΎΠ½ΡΠ΅ΡΠ΅Π½ΡΡΠ²ΡΠ·ΠΈ.
ΠΠΎΡΠΊΠΎΠ»ΡΠΊΡ ΡΠ°Π±ΠΎΡΠ° Π²ΡΠΏΠΎΠ»Π½ΡΠ΅ΡΡΡ Π² ΠΎΠ΄ΠΈΠ½ΠΎΡΠΊΡ, ΠΈΠ½ΠΎΠ³Π΄Π° High Ticket Closers β’ ΠΌΠΎΠ³ΡΡ ΠΎΠ±ΡΠ°ΡΠΈΡΡΡΡ ΠΊ ΡΠ²ΠΎΠ΅ΠΉ ΡΠΈΡΡΠ΅ΠΌΠ΅ ΠΏΠΎΠ΄Π΄Π΅ΡΠΆΠΊΠΈ (Π΄ΡΡΠ³ΠΈΠΌ Π±Π»ΠΈΠ·ΠΊΠΈΠΌ, ΡΠ»Π΅Π½Π°ΠΌ ΡΠ΅ΠΌΡΠΈ) Π·Π° ΡΠΈΠ»ΠΎΠΉ, Π½Π°ΠΏΡΠΈΠΌΠ΅Ρ, ΡΠΌΠΎΡΠΈΠΎΠ½Π°Π»ΡΠ½ΠΎΠΉ ΠΏΠΎΠ΄Π΄Π΅ΡΠΆΠΊΠΎΠΉ ΠΏΠΎΡΠ»Π΅ ΡΠΎΠ³ΠΎ, ΠΊΠ°ΠΊ ΠΎΠ½ΠΈ Π½Π΅ ΡΠΌΠΎΠ³Π»ΠΈ Π·Π°ΠΊΡΡΡΡ Π²ΡΠ΅ ΡΠ²ΠΎΠΈ Π²ΡΡΡΠ΅ΡΠΈ Π² ΡΠ΅ΡΠ΅Π½ΠΈΠ΅ ΠΎΠ΄Π½ΠΎΠ³ΠΎ Π΄Π½Ρ.
Π Π·Π°Π²ΠΈΡΠΈΠΌΠΎΡΡΠΈ ΠΎΡ ΠΊΠ»ΠΈΠ΅Π½ΡΡΡΡ, ΠΊΠΎΡΠΎΡΡΡ ΠΎΠ±ΡΠ»ΡΠΆΠΈΠ²Π°Π΅Ρ Π²Π»ΠΈΡΡΠ΅Π»ΡΠ½ΡΠΉ ΡΠ΅Π»ΠΎΠ²Π΅ΠΊ, Π³ΡΡΠΏΠΏΠ° Π·Π°ΠΊΡΡΡΠΈΡ ΠΌΠΎΠΆΠ΅Ρ ΡΠ°ΡΠΏΠΎΠ»Π°Π³Π°ΡΡΡΡ Π² ΠΎΠ΄Π½ΠΎΠΉ ΡΡΡΠ°Π½Π΅ ΠΈΠ»ΠΈ ΠΏΠΎ Π²ΡΠ΅ΠΌΡ ΠΌΠΈΡΡ.
ΠΠ°Π²ΡΠΊΠΈ ΠΊΠΎΠΌΠΏΡΡΡΠ΅ΡΠΎΠ² ΠΈ ΡΠ΅Ρ Π½ΠΎΠ»ΠΎΠ³ΠΈΠΉ
High Ticket Closers β’ ΠΈΡΠΏΠΎΠ»ΡΠ·ΡΡΡ ΡΡΠ΄ ΠΏΡΠΎΠ³ΡΠ°ΠΌΠΌ Π΄Π»Ρ ΡΠ²ΡΠ·ΠΈ ΠΈ ΠΎΡΡΠ»Π΅ΠΆΠΈΠ²Π°Π½ΠΈΡ ΠΈΠ½ΡΠΎΡΠΌΠ°ΡΠΈΠΈ.ΠΠ½ΠΈ ΠΈΡΠΏΠΎΠ»ΡΠ·ΡΡΡ ΠΏΡΠΎΠ³ΡΠ°ΠΌΠΌΠ½ΠΎΠ΅ ΠΎΠ±Π΅ΡΠΏΠ΅ΡΠ΅Π½ΠΈΠ΅ CRM, ΡΠ°ΠΊΠΎΠ΅ ΠΊΠ°ΠΊ Close.io ΠΈ ScheduleOnce, Π΄Π»Ρ ΠΏΠ»Π°Π½ΠΈΡΠΎΠ²Π°Π½ΠΈΡ Π·Π²ΠΎΠ½ΠΊΠΎΠ² Ρ ΠΏΠΎΡΠ΅Π½ΡΠΈΠ°Π»ΡΠ½ΡΠΌΠΈ ΠΊΠ»ΠΈΠ΅Π½ΡΠ°ΠΌΠΈ.
Π§ΡΠΎΠ±Ρ Π·Π²ΠΎΠ½ΠΎΠΊ ΠΏΡΠΎΡ ΠΎΠ΄ΠΈΠ» ΠΌΠ°ΠΊΡΠΈΠΌΠ°Π»ΡΠ½ΠΎ Π³Π»Π°Π΄ΠΊΠΎ ΠΈ ΠΏΡΠΎΡΠ΅ΡΡΠΈΠΎΠ½Π°Π»ΡΠ½ΠΎ, ΠΎΠ½ΠΈ Π²ΠΊΠ»Π°Π΄ΡΠ²Π°ΡΡ Π΄Π΅Π½ΡΠ³ΠΈ Π² ΡΠ΅Π»Π΅ΡΠΎΠ½ ΠΈ Π½Π°ΡΡΠ½ΠΈΠΊΠΈ Ρ ΠΊΠ°ΡΠ΅ΡΡΠ²Π΅Π½Π½ΡΠΌ Π·Π²ΡΠΊΠΎΠΌ. ΠΠΎΠ²ΠΎΠ΄ΡΠΈΠΊΠΈ ΡΠ°ΠΊΠΆΠ΅ ΠΈΡΠΏΠΎΠ»ΡΠ·ΡΡΡ ΡΠ²ΠΎΠΈ ΡΠ΅Π»Π΅ΡΠΎΠ½Ρ Π΄Π»Ρ ΠΎΡΠΏΡΠ°Π²ΠΊΠΈ ΠΈ ΠΏΠΎΠ»ΡΡΠ΅Π½ΠΈΡ ΡΠ΅ΠΊΡΡΠΎΠ²ΡΡ ΡΠΎΠΎΠ±ΡΠ΅Π½ΠΈΠΉ ΠΎΡ ΠΏΠΎΡΠ΅Π½ΡΠΈΠ°Π»ΡΠ½ΡΡ ΠΊΠ»ΠΈΠ΅Π½ΡΠΎΠ² ΠΈ ΠΈΡ Π²Π»ΠΈΡΡΠ΅Π»ΡΠ½ΡΡ Π»ΠΈΡ. Π£ Π½ΠΈΡ ΡΠ°ΠΊΠΆΠ΅ Π΅ΡΡΡ ΠΏΡΠΎΠ³ΡΠ°ΠΌΠΌΠ½ΠΎΠ΅ ΠΎΠ±Π΅ΡΠΏΠ΅ΡΠ΅Π½ΠΈΠ΅ Π΄Π»Ρ Π·Π°ΠΏΠΈΡΠΈ Π·Π²ΠΎΠ½ΠΊΠΎΠ², ΡΡΠΎΠ±Ρ ΠΎΠ½ΠΈ ΠΌΠΎΠ³Π»ΠΈ ΠΏΠΎΠ·ΠΆΠ΅ Π²ΠΎΡΠΏΡΠΎΠΈΠ·Π²Π΅ΡΡΠΈ Π·Π²ΠΎΠ½ΠΊΠΈ.
ΠΠΎΠ²ΠΎΠ΄ΡΠΈΠΊΠΈ ΠΈΡΠΏΠΎΠ»ΡΠ·ΡΡΡ ΠΏΡΠΎΠ³ΡΠ°ΠΌΠΌΠ½ΠΎΠ΅ ΠΎΠ±Π΅ΡΠΏΠ΅ΡΠ΅Π½ΠΈΠ΅ Π΄Π»Ρ Π²ΠΈΠ΄Π΅ΠΎΠΊΠΎΠ½ΡΠ΅ΡΠ΅Π½ΡΠΈΠΉ, ΡΠ°ΠΊΠΎΠ΅ ΠΊΠ°ΠΊ Skype, Π΄Π»Ρ ΡΠ°Π·Π³ΠΎΠ²ΠΎΡΠΎΠ² Ρ Π²Π»ΠΈΡΡΠ΅Π»ΡΠ½ΡΠΌ Π»ΠΈΡΠΎΠΌ, ΠΈ ΠΎΠ½ΠΈ ΠΌΠΎΠ³ΡΡ ΠΈΡΠΏΠΎΠ»ΡΠ·ΠΎΠ²Π°ΡΡ Π΅Π³ΠΎ Π΄Π»Ρ ΡΠ°Π·Π³ΠΎΠ²ΠΎΡΠΎΠ² Ρ ΠΏΠΎΡΠ΅Π½ΡΠΈΠ°Π»ΡΠ½ΡΠΌΠΈ ΠΊΠ»ΠΈΠ΅Π½ΡΠ°ΠΌΠΈ.ΠΠ°Π΄Π΅ΠΆΠ½ΡΠ΅ ΠΈΠ½ΡΠ΅ΡΠ½Π΅Ρ-ΡΡΠ»ΡΠ³ΠΈ ΠΈΠΌΠ΅ΡΡ ΡΠ΅ΡΠ°ΡΡΠ΅Π΅ Π·Π½Π°ΡΠ΅Π½ΠΈΠ΅, ΠΊΠΎΠ³Π΄Π° Π΄ΠΎΠ²ΠΎΠ΄ΡΠΈΠΊΠ°ΠΌ Π½Π΅ΠΎΠ±Ρ ΠΎΠ΄ΠΈΠΌΠΎ ΠΏΠΎΠ»ΡΡΠΈΡΡ Π΄ΠΎΡΡΡΠΏ ΠΊ ΡΠΎΡΠΌΠ°ΠΌ Π·Π°ΡΠ²ΠΎΠΊ ΠΈ ΡΡΡΠ°Π½ΠΈΡΠ°ΠΌ ΠΎΡΠΎΡΠΌΠ»Π΅Π½ΠΈΡ Π·Π°ΠΊΠ°Π·Π°, ΠΊΠΎΡΠΎΡΡΠ΅ ΠΎΠ½ΠΈ Π·Π°ΠΏΠΎΠ»Π½ΡΡΡ Π²ΠΌΠ΅ΡΡΠ΅ Ρ ΠΏΠΎΡΠ΅Π½ΡΠΈΠ°Π»ΡΠ½ΡΠΌ ΠΊΠ»ΠΈΠ΅Π½ΡΠΎΠΌ Π²ΠΎ Π²ΡΠ΅ΠΌΡ Π·Π²ΠΎΠ½ΠΊΠ°.
Π Π·Π°Π²ΠΈΡΠΈΠΌΠΎΡΡΠΈ ΠΎΡ ΡΠΈΡΡΠ°ΡΠΈΠΈ Π·Π°ΠΊΡΡΡΠΈΡ ΠΈ Π²Π»ΠΈΡΡΠ΅Π»ΡΠ½ΠΎΠ³ΠΎ Π»ΠΈΡΠ°, ΡΠ΅ΠΊΡΡΠΎΠ²ΡΠ΅ ΠΈ ΡΠ»Π΅ΠΊΡΡΠΎΠ½Π½ΡΠ΅ ΡΠΎΠΎΠ±ΡΠ΅Π½ΠΈΡ ΠΏΠΎΡΠ΅Π½ΡΠΈΠ°Π»ΡΠ½ΡΠΌ ΠΊΠ»ΠΈΠ΅Π½ΡΠ°ΠΌ ΠΌΠΎΠ³ΡΡ Π±ΡΡΡ Π°Π²ΡΠΎΠΌΠ°ΡΠΈΠ·ΠΈΡΠΎΠ²Π°Π½Ρ. Π Π΄ΡΡΠ³ΠΈΡ ΡΠ»ΡΡΠ°ΡΡ Π΄ΠΎΠ²ΠΎΠ΄ΡΠΈΠΊΠΈ ΠΎΡΠΏΡΠ°Π²Π»ΡΡΡ ΡΠ²ΠΎΠΈΠΌ ΠΏΠΎΡΠ΅Π½ΡΠΈΠ°Π»ΡΠ½ΡΠΌ ΠΊΠ»ΠΈΠ΅Π½ΡΠ°ΠΌ ΠΏΠ΅ΡΡΠΎΠ½Π°Π»ΠΈΠ·ΠΈΡΠΎΠ²Π°Π½Π½ΡΠ΅ ΡΠ»Π΅ΠΊΡΡΠΎΠ½Π½ΡΠ΅ ΠΏΠΈΡΡΠΌΠ°.
ΠΠ΅ΡΠΌΠΎΡΡΡ Π½Π° ΡΠΎ, ΡΡΠΎ ΡΡΡΠ΅ΡΡΠ²ΡΠ΅Ρ ΡΠΈΡΡΠ΅ΠΌΠ° ΠΎΡΡΠ»Π΅ΠΆΠΈΠ²Π°Π½ΠΈΡ ΠΏΡΠΎΠ΄Π°ΠΆ, Π½Π΅ΠΊΠΎΡΠΎΡΡΠ΅ Π΄ΠΎΠ²ΠΎΠ΄ΡΠΈΠΊΠΈ Π²Π΅Π΄ΡΡ ΡΠ²ΠΎΡ ΡΠΎΠ±ΡΡΠ²Π΅Π½Π½ΡΡ ΡΠ»Π΅ΠΊΡΡΠΎΠ½Π½ΡΡ ΡΠ°Π±Π»ΠΈΡΡ Π΄Π»Ρ ΠΎΡΡΠ»Π΅ΠΆΠΈΠ²Π°Π½ΠΈΡ ΡΠ²ΠΎΠΈΡ ΠΊΠΎΠΌΠΈΡΡΠΈΠΎΠ½Π½ΡΡ , ΡΡΠΎΠ±Ρ ΠΎΠ½ΠΈ ΠΌΠΎΠ³Π»ΠΈ Π΄Π²Π°ΠΆΠ΄Ρ ΠΏΡΠΎΠ²Π΅ΡΡΡΡ ΡΡΠΌΠΌΡ, ΠΊΠΎΠ³Π΄Π° ΠΈΠΌ ΠΏΠ»Π°ΡΡΡ.Π§ΡΠΎΠ±Ρ ΡΠ²Π΅Π΄ΠΎΠΌΠΈΡΡ ΡΠ²ΠΎΠ΅Π³ΠΎ Π²Π»ΠΈΡΡΠ΅Π»ΡΠ½ΠΎΠ³ΠΎ Π»ΠΈΡΠ° ΠΎ Π·Π°ΠΊΡΡΡΠΈΠΈ, Π΄ΠΎΠ²ΠΎΠ΄ΡΠΈΠΊ ΠΌΠΎΠΆΠ΅Ρ ΠΎΡΠΏΡΠ°Π²Π»ΡΡΡ Π΅ΠΆΠ΅ΠΌΠ΅ΡΡΡΠ½ΡΠΉ ΡΡΠ΅Ρ. ΠΠ½ΠΈ ΠΌΠΎΠ³ΡΡ ΡΠ΄Π΅Π»Π°ΡΡ ΡΠ½ΠΈΠΌΠΎΠΊ ΡΠΊΡΠ°Π½Π° ΡΡΡΠ°Π½ΠΈΡΡ ΠΎΡΠΎΡΠΌΠ»Π΅Π½ΠΈΡ Π·Π°ΠΊΠ°Π·Π° ΠΈ ΠΎΡΡΠ»Π΅ΠΆΠΈΠ²Π°ΡΡ ΠΏΡΠΎΠ΄Π°ΠΆΡ Π² ΡΠ°Π±Π»ΠΈΡΠ΅ Google.
ΠΠ΅ΠΏΡΠ΅ΡΡΠ²Π½ΠΎΠ΅ ΠΎΠ±ΡΡΠ΅Π½ΠΈΠ΅
ΠΠ°ΠΊ ΠΈ Π² Π±ΠΎΠ»ΡΡΠΈΠ½ΡΡΠ²Π΅ Π΄ΡΡΠ³ΠΈΡ ΠΏΡΠΎΡΠ΅ΡΡΠΈΠΉ, High Ticket Closers β’ Π½Π΅ΠΎΠ±Ρ ΠΎΠ΄ΠΈΠΌΠΎ ΠΏΠΎΡΡΠΎΡΠ½Π½ΠΎ ΠΏΡΠ°ΠΊΡΠΈΠΊΠΎΠ²Π°ΡΡ ΡΠ²ΠΎΠΈ Π½Π°Π²ΡΠΊΠΈ ΠΈ ΠΈΠ΄ΡΠΈ Π² Π½ΠΎΠ³Ρ Ρ ΠΏΠΎΡΠ»Π΅Π΄Π½ΠΈΠΌΠΈ ΡΠ΅Π½Π΄Π΅Π½ΡΠΈΡΠΌΠΈ ΠΈ ΠΏΠ΅ΡΠ΅Π΄ΠΎΠ²ΡΠΌΠΈ ΠΏΡΠ°ΠΊΡΠΈΠΊΠ°ΠΌΠΈ Π² ΡΠ²ΠΎΠ΅ΠΉ ΠΎΡΡΠ°ΡΠ»ΠΈ. ΠΠ»Ρ ΡΡΠΎΠ³ΠΎ ΠΎΠ½ΠΈ ΡΡΠ°Π²ΡΡ ΠΏΠ΅ΡΠ΅Π΄ ΡΠΎΠ±ΠΎΠΉ ΡΠΎΠ±ΡΡΠ²Π΅Π½Π½ΡΠ΅ ΡΠ΅Π»ΠΈ ΠΎΠ±ΡΡΠ΅Π½ΠΈΡ.
ΠΠΎΠ²ΠΎΠ΄ΡΠΈΠΊΠΈ ΡΠ΅Π³ΡΠ»ΡΡΠ½ΠΎ ΡΠ»Π΅Π΄ΡΡ Π·Π° ΠΎΠ±ΡΡΠ΅Π½ΠΈΠ΅ΠΌ High Ticket Closer. ΠΠ½ΠΈ ΠΏΡΠΎΠ΄ΠΎΠ»ΠΆΠ°ΡΡ ΡΠ°Π·ΡΠ³ΡΡΠ²Π°ΡΡ Π·Π°Π²Π΅ΡΡΠ°ΡΡΠΈΠ΅ ΡΠΈΡΡΠ°ΡΠΈΠΈ Ρ Π΄ΡΡΠ³ΠΈΠΌΠΈ Π±Π»ΠΈΠ·ΠΊΠΈΠΌΠΈ, Π° Π·Π°ΡΠ΅ΠΌ ΠΊΡΠΈΡΠΈΠΊΠΎΠ²Π°ΡΡ ΠΈΡ ΠΏΡΠΈΠ·ΡΠ²Ρ.ΠΠ½ΠΈ ΡΠ°ΠΊΠΆΠ΅ Π±ΡΠ΄ΡΡ ΠΏΠΎΠ²ΡΠΎΡΡΡΡ ΡΠ²ΠΎΠΈ ΡΠΎΠ±ΡΡΠ²Π΅Π½Π½ΡΠ΅ Π·Π²ΠΎΠ½ΠΊΠΈ Ρ ΠΏΠΎΡΠ΅Π½ΡΠΈΠ°Π»ΡΠ½ΡΠΌΠΈ ΠΊΠ»ΠΈΠ΅Π½ΡΠ°ΠΌΠΈ, ΡΡΠΎΠ±Ρ ΠΏΡΠΎΠ°Π½Π°Π»ΠΈΠ·ΠΈΡΠΎΠ²Π°ΡΡ, ΠΊΠ°ΠΊ ΠΎΠ½ΠΈ ΠΌΠΎΠ³ΡΡ ΡΠ»ΡΡΡΠΈΡΡ ΡΠ²ΠΎΠΈ Π½Π°Π²ΡΠΊΠΈ.
ΠΠ΅ΠΊΠΎΡΠΎΡΡΠ΅ Π΄ΠΎΠ²ΠΎΠ΄ΡΠΈΠΊΠΈ ΠΏΡΠΈΡΠΎΠ΅Π΄ΠΈΠ½ΡΡΡΡΡ ΠΊ Π³ΡΡΠΏΠΏΠ°ΠΌ ΠΏΠΎΠ΄ΠΎΡΡΠ΅ΡΠ½ΠΎΡΡΠΈ ΠΈΠ»ΠΈ Π²Π»Π°ΡΡΠΈ Π² ΡΠΎΡΠΈΠ°Π»ΡΠ½ΡΡ ΡΠ΅ΡΡΡ , Π³Π΄Π΅ ΠΎΠ½ΠΈ Π΄Π΅Π»ΡΡΡΡ ΠΏΠ΅ΡΠ΅Π΄ΠΎΠ²ΡΠΌ ΠΎΠΏΡΡΠΎΠΌ Π΄ΡΡΠ³ Ρ Π΄ΡΡΠ³ΠΎΠΌ ΠΈ ΡΡΠ°Π½ΠΎΠ²ΡΡΡΡ Π³ΡΡΠΏΠΏΠΎΠΉ ΠΏΠΎΠ΄Π΄Π΅ΡΠΆΠΊΠΈ. ΠΠ΅ΠΊΠΎΡΠΎΡΡΠ΅ ΡΡΠ°ΡΡΠ½ΠΈΠΊΠΈ ΠΌΠΎΠ³ΡΡ Π΄Π°ΠΆΠ΅ Π²Π·ΡΡΡ Π½Π° ΡΠ΅Π±Ρ ΡΡΠΊΠΎΠ²ΠΎΠ΄ΡΡΠΈΠ΅ ΡΠΎΠ»ΠΈ Π² Π³ΡΡΠΏΠΏΠ΅ ΠΈ Π²Π·ΡΡΡ Π½Π° ΡΠ΅Π±Ρ ΠΎΠ±ΡΡΠ΅Π½ΠΈΠ΅ Π² Π³ΡΡΠΏΠΏΠ΅.
Π ΡΠ²ΠΎΠ±ΠΎΠ΄Π½ΠΎΠ΅ Π²ΡΠ΅ΠΌΡ Π±Π»ΠΈΠ·ΠΊΠΈΠ΅ ΡΠΌΠΎΡΡΡΡ Π²Π΅Π±ΠΈΠ½Π°ΡΡ ΠΈ Π²ΠΈΠ΄Π΅ΠΎ ΠΈΠ»ΠΈ ΡΠΈΡΠ°ΡΡ ΠΊΠ½ΠΈΠ³ΠΈ ΠΈ ΡΡΠ°ΡΡΠΈ, ΡΡΠΎΠ±Ρ ΠΎΡΡΠΎΡΠΈΡΡ ΡΠ²ΠΎΠΈ Π½Π°Π²ΡΠΊΠΈ ΠΈΠ»ΠΈ Π±ΡΡΡ Π² ΠΊΡΡΡΠ΅ ΡΠΎΠ±ΡΡΠΈΠΉ Π² ΠΎΡΡΠ°ΡΠ»ΠΈ.
Π€ΠΈΠ·ΠΈΡΠ΅ΡΠΊΠΈΠ΅ Π°ΡΠΏΠ΅ΠΊΡΡ Π·Π°ΠΊΡΡΡΠΈΡ
ΠΡΡΠΎΠΊΠΈΠΉ ΡΡΠΎΠ²Π΅Π½Ρ Π·Π°ΠΊΡΡΡΠΈΡ Π·Π°ΡΠ²ΠΎΠΊ — ΡΡΠΎ ΠΏΡΠ΅ΠΈΠΌΡΡΠ΅ΡΡΠ²Π΅Π½Π½ΠΎ ΡΠΈΠ΄ΡΡΠΈΠΉ ΡΠΈΠΏ ΠΏΡΠΎΡΠ΅ΡΡΠΈΠΈ, ΠΏΠΎΡΡΠΎΠΌΡ Π΅Π³ΠΎ ΠΎΠΆΠΈΠ²Π»Π΅Π½ΠΈΠ΅ Π·Π°Π²ΠΈΡΠΈΡ ΠΎΡ ΠΊΠΎΠ½ΠΊΡΠ΅ΡΠ½ΠΎΠ³ΠΎ ΡΠ΅Π»ΠΎΠ²Π΅ΠΊΠ°.
ΠΠΎΠ²ΠΎΠ΄ΡΠΈΠΊΠΈ ΡΠΎΠ·Π΄Π°ΡΡ Ρ ΡΠ΅Π±Ρ Π΄ΠΎΠΌΠ° ΠΎΡΠΈΡΠ½ΠΎΠ΅ ΠΏΡΠΎΡΡΡΠ°Π½ΡΡΠ²ΠΎ, ΠΏΠΎ ΠΊΡΠ°ΠΉΠ½Π΅ΠΉ ΠΌΠ΅ΡΠ΅, Ρ ΠΌΠ΅ΡΡΠΎΠΌ Π½Π° ΡΡΠΎΠ»Π΅, ΡΡΠΎΠ±Ρ ΠΎΡΠ²Π΅ΡΠ°ΡΡ Π½Π° Π·Π²ΠΎΠ½ΠΊΠΈ, ΠΈ ΡΠ΄ΠΎΠ±Π½ΡΠΌ ΡΡΡΠ»ΠΎΠΌ. ΠΠ΅ΠΊΠΎΡΠΎΡΡΠ΅ Π΄ΠΎΠ²ΠΎΠ΄ΡΠΈΠΊΠΈ ΠΌΠΎΠ³ΡΡ ΡΠ°Π±ΠΎΡΠ°ΡΡ 8 ΡΠ°ΡΠΎΠ² Π² Π΄Π΅Π½Ρ, ΠΏΠΎΡΡΠΎΠΌΡ ΠΈΡ ΡΠ°Π±ΠΎΡΠ΅Π΅ ΠΌΠ΅ΡΡΠΎ Π΄ΠΎΠ»ΠΆΠ½ΠΎ Π±ΡΡΡ ΠΊΠΎΠΌΡΠΎΡΡΠ½ΡΠΌ Π² ΡΠ΅ΡΠ΅Π½ΠΈΠ΅ ΡΠ΅Π»ΠΎΠ³ΠΎ Π΄Π½Ρ Π·Π°ΠΊΡΡΡΠΈΡ.
ΠΠΎΠ²ΠΎΠ΄ΡΠΈΠΊΠΈ ΡΠ΅Π΄ΠΊΠΎ ΡΠΈΠ΄ΡΡ Π·Π° ΡΠ²ΠΎΠΈΠΌ ΡΡΠΎΠ»ΠΎΠΌ Π²Π΅ΡΡ Π΄Π΅Π½Ρ ΠΈΠ»ΠΈ Π΄Π°ΠΆΠ΅ Π²Π΅ΡΡ Π·Π²ΠΎΠ½ΠΎΠΊ.ΠΠ½ΠΈ ΠΌΠΎΠ³ΡΡ ΡΠΈΠ΄Π΅ΡΡ Π² ΡΠ΅ΡΠ΅Π½ΠΈΠ΅ ΡΠ°ΡΡΠΈ ΡΠ°Π·Π³ΠΎΠ²ΠΎΡΠ°, Π° Π²ΠΎ Π²ΡΠ΅ΠΌΡ Π΄ΡΡΠ³ΠΈΡ ΡΠ΅Π³ΠΌΠ΅Π½ΡΠΎΠ² ΠΎΠ½ΠΈ ΠΌΠΎΠ³ΡΡ ΡΠ°Π·Π³ΠΎΠ²Π°ΡΠΈΠ²Π°ΡΡ ΠΈ Ρ ΠΎΠ΄ΠΈΡΡ ΠΏΠΎ ΠΊΠΎΠΌΠ½Π°ΡΠ΅. ΠΠ΅ΠΊΠΎΡΠΎΡΡΠ΅ Π΄ΠΎΠ²ΠΎΠ΄ΡΠΈΠΊΠΈ ΠΌΠΎΠ³ΡΡ ΡΠ°Π±ΠΎΡΠ°ΡΡ Π½Π° ΡΡΠΎΠΉΠΊΠ΅.
Π ΠΏΡΠΎΠΌΠ΅ΠΆΡΡΠΊΠ°Ρ ΠΌΠ΅ΠΆΠ΄Ρ Π·Π²ΠΎΠ½ΠΊΠ°ΠΌΠΈ Π΄ΠΎΠ²ΠΎΠ΄ΡΠΈΠΊΠΈ ΠΌΠΎΠ³ΡΡ ΠΏΠΎΠ΅ΡΡΡ ΠΈΠ»ΠΈ Π±ΡΡΡΡΠΎ ΠΏΠΎΡΡΠ΅Π½ΠΈΡΠΎΠ²Π°ΡΡΡΡ. ΠΠ»Ρ Π·Π°Π²Π΅ΡΡΠ΅Π½ΠΈΡ Π·Π²ΠΎΠ½ΠΊΠΎΠ² Π²Π°ΠΆΠ΅Π½ Π±ΠΎΠ»Π΅Π΅ Π²ΡΡΠΎΠΊΠΈΠΉ ΡΡΠΎΠ²Π΅Π½Ρ ΡΠ½Π΅ΡΠ³ΠΈΠΈ.
Π Π½Π΅ΡΠΈΠΏΠΈΡΠ½ΡΡ ΡΠ»ΡΡΠ°ΡΡ Π΄ΠΎΠ²ΠΎΠ΄ΡΠΈΠΊΠΈ, ΠΊΠΎΡΠΎΡΡΠ΅ ΠΏΡΡΠ΅ΡΠ΅ΡΡΠ²ΡΡΡ ΠΈΠ»ΠΈ Π½Π°Ρ ΠΎΠ΄ΡΡΡΡ Π² Π΄ΠΎΡΠΎΠ³Π΅, ΠΌΠΎΠ³ΡΡ Π²Π·ΡΡΡ Ρ ΡΠΎΠ±ΠΎΠΉ ΡΠ²ΠΎΠ΅ ΠΎΠ±ΠΎΡΡΠ΄ΠΎΠ²Π°Π½ΠΈΠ΅ ΠΈ ΠΎΡΠ²Π΅ΡΠ°ΡΡ Π½Π° Π·Π²ΠΎΠ½ΠΊΠΈ ΠΏΠΎΡΠ΅Π½ΡΠΈΠ°Π»ΡΠ½ΡΡ ΠΊΠ»ΠΈΠ΅Π½ΡΠΎΠ² Π² ΠΈΡ Π³ΠΎΡΡΠΈΠ½ΠΈΡΠ½ΠΎΠΌ Π½ΠΎΠΌΠ΅ΡΠ΅.
ΠΠ»Π°Π³ΠΎΠ΄Π°ΡΡ ΡΠ»Π΅Π΄ΡΡΡΠΈΡ High Ticket Closers β’, ΠΊΠΎΡΠΎΡΡΠ΅ Π±ΡΠ»ΠΈ ΠΎΠΏΡΠΎΡΠ΅Π½Ρ Π΄Π»Ρ ΡΠ°Π·Π΄Π΅Π»Π° Π½Π°Π²ΡΠΊΠΎΠ² Π² ΡΡΠΎΠΉ ΡΡΠ°ΡΡΠ΅: ΠΠΆΠ°Π· ΠΡΡΡΠ΅Π½Ρ, ΠΠΆΠΎΡΠ» ΠΠΎ, Π‘ΡΠ½Π΄ΠΈ ΠΠ°ΠΌ, ΠΠΆΠ΅ΡΠ°Π»ΡΠ΄ ΠΠΌΠ°Π½Π΄Ρ, Π¨Π°Ρ Π°Π½Π° ΠΠ»ΠΈ, Π£ΠΈΠ»ΡΡΠΌ ΠΠ΄Ρ Π°ΠΌΡ ΠΈ Π₯ΠΎΡΠΏ Π£Π°ΠΉΡ.
ΠΠ΅ΡΠ΅ΠΉΡΠΈ ΠΊ Π³Π»Π°Π²Π΅ 5
ΠΠΎΠ²ΠΎΠ΄ΡΠΈΠΊΠΈ ΠΎΠ±Π»Π°Π΄Π°ΡΡ Π²ΡΡΠΎΠΊΠΎΠΉ ΡΡΠ΅ΠΏΠ΅Π½ΡΡ Π°Π²ΡΠΎΠ½ΠΎΠΌΠ½ΠΎΡΡΠΈ ΠΈ ΠΎΡΠ²Π΅ΡΡΡΠ²Π΅Π½Π½ΠΎΡΡΠΈ ΠΏΡΠΈ ΠΏΠΎΠΈΡΠΊΠ΅ ΡΠ°Π±ΠΎΡΡ.ΠΠ½ΠΈ ΠΌΠΎΠ³ΡΡ Π²ΡΠ±ΡΠ°ΡΡ, ΡΠΊΠΎΠ»ΡΠΊΠΎ ΡΠ°ΡΠΎΠ² Π² Π½Π΅Π΄Π΅Π»Ρ ΠΈΠ»ΠΈ ΠΌΠ΅ΡΡΡ ΠΎΠ½ΠΈ Ρ ΠΎΡΡΡ Π·Π°ΠΊΡΡΡΡ, Π² ΠΊΠ°ΠΊΠΎΠΉ ΠΎΡΡΠ°ΡΠ»ΠΈ ΡΠ°Π±ΠΎΡΠ°ΡΡ ΠΈ Π΄Π»Ρ ΠΊΠΎΠ³ΠΎ ΠΎΠ½ΠΈ Ρ ΠΎΡΡΡ Π·Π°ΠΊΡΡΡΡ.
Π Π°Π±ΠΎΡΠ°ΡΡ Π΄ΠΎΠ²ΠΎΠ΄ΡΠΈΠΊΠΎΠΌ ΠΌΠΎΠΆΠ½ΠΎ ΠΏΠΎΠ»Π½ΠΎΡΡΡΡ ΠΈΠ· Π΄ΠΎΠΌΠ°, Π½Π°ΡΠΈΠ½Π°Ρ Ρ ΠΏΠΎΠΈΡΠΊΠ°, ΡΡΠΎΠ±Ρ Π½Π°ΠΉΡΠΈ Π²Π»ΠΈΡΡΠ΅Π»ΡΠ½ΠΎΠ³ΠΎ Π»ΠΈΡΠ° ΠΈΠ»ΠΈ ΠΊΠΎΠΌΠΏΠ°Π½ΠΈΡ, Π΄Π»Ρ ΠΊΠΎΡΠΎΡΠΎΠΉ Π½ΡΠΆΠ½ΠΎ Π·Π°ΠΊΡΡΡΡ, Π΄ΠΎ Π·Π°ΠΊΡΡΡΠΈΡ ΠΏΠΎΡΠ΅Π½ΡΠΈΠ°Π»ΡΠ½ΡΡ ΠΊΠ»ΠΈΠ΅Π½ΡΠΎΠ² ΠΏΠΎ ΡΠ΅Π»Π΅ΡΠΎΠ½Ρ, Π΄ΠΎ ΠΏΠΎΠ»ΡΡΠ΅Π½ΠΈΡ ΠΎΠΏΠ»Π°ΡΡ.
High Ticket Closers β’ ΠΌΠΎΠ³ΡΡ ΠΏΡΠΈΡΠΎΠ΅Π΄ΠΈΠ½ΡΡΡΡΡ ΠΊ Π³ΡΡΠΏΠΏΠ°ΠΌ Facebook ΠΈ ΡΡΡΠ°Π½Π°Π²Π»ΠΈΠ²Π°ΡΡ ΡΠ²ΡΠ·ΠΈ Π½Π° LinkedIn ΠΈ Facebook Ρ Π²Π»ΠΈΡΡΠ΅Π»ΡΠ½ΡΠΌΠΈ Π»ΠΈΡΠ°ΠΌΠΈ Π² ΠΎΡΡΠ°ΡΠ»ΠΈ, Π² ΠΊΠΎΡΠΎΡΠΎΠΉ ΠΎΠ½ΠΈ Π·Π°ΠΈΠ½ΡΠ΅ΡΠ΅ΡΠΎΠ²Π°Π½Ρ. ΠΠ°ΠΏΡΠΈΠΌΠ΅Ρ, Π΅ΡΠ»ΠΈ Ρ Π±Π»ΠΈΠ·ΠΊΠΎΠ³ΠΎ ΡΠ΅Π»ΠΎΠ²Π΅ΠΊΠ° Π΅ΡΡΡ ΠΎΠΏΡΡ ΡΠ°Π±ΠΎΡΡ Π² ΠΎΠ±Π»Π°ΡΡΠΈ Π·Π΄ΠΎΡΠΎΠ²ΡΡ ΠΈ ΡΠΈΡΠ½Π΅ΡΠ°, ΠΎΠ½ΠΈ ΠΌΠΎΠ³ΡΡ ΡΠ²ΡΠ·Π°ΡΡΡΡ Ρ ΡΡΠ΅Π½Π΅ΡΠ°ΠΌΠΈ ΠΏΠΎ Π·Π΄ΠΎΡΠΎΠ²ΡΡ ΠΈ ΡΠΈΡΠ½Π΅ΡΡ Π½Π° LinkedIn.
ΠΡ ΡΡΠ°Ρ ΡΡΡΠΎΠΈΡΡ ΠΎΡΠ½ΠΎΡΠ΅Π½ΠΈΡ ΠΏΡΠΎΡΠ΅ΡΡΠΈΠΎΠ½Π°Π»ΡΠ½ΠΎ, ΠΏΠΎΠ²ΡΡΠ°Ρ ΡΠ΅Π½Π½ΠΎΡΡΡ ΡΠ²ΠΎΠΈΡ ΡΠ²ΡΠ·Π΅ΠΉ, Π° Π½Π΅ ΡΠΏΠ°ΠΌΠΈΡΡ ΠΈΡ ΠΏΡΠΎΡΡΠ±Π°ΠΌΠΈ ΠΈΠ»ΠΈ Π²ΠΎΠΏΡΠΎΡΠ°ΠΌΠΈ ΠΎ ΡΠΎΠΌ, Ρ ΠΎΡΡΡ Π»ΠΈ ΠΎΠ½ΠΈ Π½Π°Π½ΡΡΡ Π΄ΠΎΠ²ΠΎΠ΄ΡΠΈΠΊΠ° Π΄Π»Ρ ΡΠ²ΠΎΠ΅Π³ΠΎ Π±ΠΈΠ·Π½Π΅ΡΠ°. ΠΠ΅ΠΊΠΎΡΠΎΡΠΎΠ΅ Π²ΡΠ΅ΠΌΡ ΠΌΠΎΠΆΠ½ΠΎ ΠΏΠΎΡΡΠ°ΡΠΈΡΡ Π½Π° ΡΠΎ, ΡΡΠΎΠ±Ρ ΡΠ°ΡΡΠΊΠ°Π·Π°ΡΡ Π²Π»ΠΈΡΡΠ΅Π»ΡΠ½ΠΎΠΌΡ ΡΠ΅Π»ΠΎΠ²Π΅ΠΊΡ ΠΎ ΡΠΎΠΌ, ΡΡΠΎ Π΄Π΅Π»Π°Π΅Ρ Π±Π»ΠΈΠΆΠ΅.
ΠΠΌ ΡΠ°ΠΊΠΆΠ΅ Π½Π΅ΠΎΠ±Ρ ΠΎΠ΄ΠΈΠΌΠΎ ΠΊΠ²Π°Π»ΠΈΡΠΈΡΠΈΡΠΎΠ²Π°ΡΡ Π²Π»ΠΈΡΡΠ΅Π»ΡΠ½ΠΎΠ³ΠΎ Π»ΠΈΡΠ°. ΠΠΎΡΠ»Π΅ ΡΠΎΠ³ΠΎ, ΠΊΠ°ΠΊ Π±ΠΎΠ»Π΅Π΅ Π±Π»ΠΈΠ·ΠΊΠΈΠΉ ΡΠ΅Π»ΠΎΠ²Π΅ΠΊ ΡΡΡΠ°Π½ΠΎΠ²ΠΈΠ» ΠΎΡΠ½ΠΎΡΠ΅Π½ΠΈΡ Ρ Π²Π»ΠΈΡΡΠ΅Π»ΡΠ½ΡΠΌ Π»ΠΈΡΠΎΠΌ ΠΏΠΎΡΡΠ΅Π΄ΡΡΠ²ΠΎΠΌ ΠΎΠ½Π»Π°ΠΉΠ½-ΡΠ°Π·Π³ΠΎΠ²ΠΎΡΠ°, ΠΈΠΌ Π½ΡΠΆΠ½ΠΎ Π±ΡΠ΄Π΅Ρ Π·Π°Π΄Π°ΡΡ Π²ΠΎΠΏΡΠΎΡΡ, ΡΡΠΎΠ±Ρ Π½Π°ΠΉΡΠΈ ΡΠ»Π΅Π΄ΡΡΡΡΡ ΠΈΠ½ΡΠΎΡΠΌΠ°ΡΠΈΡ:
- ΠΡΡΡ Π»ΠΈ Ρ Π»ΠΈΠ΄Π΅ΡΠ° ΠΌΠ½Π΅Π½ΠΈΠΉ ΠΏΠΎΡΡΠΎΡΠ½Π½ΡΠΉ ΠΏΠΎΡΠΎΠΊ ΠΏΠΎΡΠ΅Π½ΡΠΈΠ°Π»ΡΠ½ΡΡ ΠΊΠ»ΠΈΠ΅Π½ΡΠΎΠ²? ΠΡΠ»ΠΈ Ρ Π²Π»ΠΈΡΡΠ΅Π»ΡΠ½ΠΎΠ³ΠΎ ΡΠ΅Π»ΠΎΠ²Π΅ΠΊΠ° Π΅ΡΡΡ ΠΏΡΠΎΡΠ½Π°Ρ ΠΌΠ°ΡΠΊΠ΅ΡΠΈΠ½Π³ΠΎΠ²Π°Ρ Π²ΠΎΡΠΎΠ½ΠΊΠ°, Π±ΠΎΠ»ΡΡΠΎΠ΅ ΠΊΠΎΠ»ΠΈΡΠ΅ΡΡΠ²ΠΎ ΠΏΠΎΠ΄ΠΏΠΈΡΡΠΈΠΊΠΎΠ² Π² ΡΠΎΡΠΈΠ°Π»ΡΠ½ΡΡ ΡΠ΅ΡΡΡ ΠΈ ΠΌΠ½ΠΎΠΆΠ΅ΡΡΠ²ΠΎ ΠΎΡΠ·ΡΠ²ΠΎΠ², ΡΠΎ, ΡΠΊΠΎΡΠ΅Π΅ Π²ΡΠ΅Π³ΠΎ, ΠΎΡΠ²Π΅Ρ — Β«Π΄Π°Β».
- ΠΡΡΡ Π»ΠΈ Ρ Π²Π»ΠΈΡΡΠ΅Π»ΡΠ½ΠΎΠ³ΠΎ Π»ΠΈΡΠ° ΠΎΠ΄Π½ΠΎ ΠΈΠ»ΠΈ Π½Π΅ΡΠΊΠΎΠ»ΡΠΊΠΎ ΠΏΡΠ΅Π΄Π»ΠΎΠΆΠ΅Π½ΠΈΠΉ Ρ Π²ΡΡΠΎΠΊΠΈΠΌΠΈ Π±ΠΈΠ»Π΅ΡΠ°ΠΌΠΈ? ΠΡΠ»ΠΈ ΠΌΠ°ΠΊΡΠΈΠΌΠ°Π»ΡΠ½Π°Ρ ΡΠ΅Π½Π° ΡΠΎΡΡΠ°Π²Π»ΡΠ΅Ρ 500 Π΄ΠΎΠ»Π»Π°ΡΠΎΠ², Π²Π°ΡΠ° ΠΊΠΎΠΌΠΈΡΡΠΈΡ ΡΠΎΡΡΠ°Π²ΠΈΡ 50 Π΄ΠΎΠ»Π»Π°ΡΠΎΠ², ΡΡΠΎ ΠΌΠΎΠΆΠ΅Ρ Π½Π΅ ΡΡΠΎΠΈΡΡ Π²Π°ΡΠ΅Π³ΠΎ Π²ΡΠ΅ΠΌΠ΅Π½ΠΈ.
- ΠΠ°ΠΈΠ½ΡΠ΅ΡΠ΅ΡΠΎΠ²Π°Π½ Π»ΠΈ Π²Π»ΠΈΡΡΠ΅Π»ΡΠ½ΡΠΉ ΡΠ΅Π»ΠΎΠ²Π΅ΠΊ Π² Π½Π°ΠΉΠΌΠ΅ Π±ΠΎΠ»Π΅Π΅ Π±Π»ΠΈΠ·ΠΊΠΎΠ³ΠΎ ΡΠ΅Π»ΠΎΠ²Π΅ΠΊΠ°? ΠΡΠ»ΠΈ ΠΎΡΠ²Π΅Ρ Β«ΠΠ΅ΡΒ», ΡΠΎ Π±Π»ΠΈΠΆΠ΅ ΠΏΠΎΠ΄Ρ ΠΎΠ΄ΠΈΡ.
ΠΠΎΠ³Π΄Π° Π±ΠΎΠ»Π΅Π΅ Π±Π»ΠΈΠ·ΠΊΠΎΠ΅ ΠΈ Π²Π»ΠΈΡΡΠ΅Π»ΡΠ½ΠΎΠ΅ Π»ΠΈΡΠΎ Π·Π°ΠΈΠ½ΡΠ΅ΡΠ΅ΡΠΎΠ²Π°Π½Ρ Π² ΡΠΎΠ²ΠΌΠ΅ΡΡΠ½ΠΎΠΉ ΡΠ°Π±ΠΎΡΠ΅, ΠΎΠ½ΠΈ ΠΏΠΎΠ΄ΠΏΠΈΡΡΠ²Π°ΡΡ ΠΊΠΎΠ½ΡΡΠ°ΠΊΡ Ρ ΡΠ°ΠΊΠΈΠΌΠΈ Π΄Π΅ΡΠ°Π»ΡΠΌΠΈ, ΠΊΠ°ΠΊ ΡΡΡΡΠΊΡΡΡΠ° ΠΊΠΎΠΌΠΈΡΡΠΈΠΈ.
ΠΡΡΠ³Π°Ρ Π²ΠΎΠ·ΠΌΠΎΠΆΠ½ΠΎΡΡΡ — Π±Π»ΠΈΠΆΠ΅ ΠΏΠΎΠ·Π½Π°ΠΊΠΎΠΌΠΈΡΡΡΡ Ρ Π²Π»ΠΈΡΡΠ΅Π»ΡΠ½ΡΠΌ Π»ΠΈΡΠΎΠΌ Π½Π° ΠΌΠ΅ΡΠΎΠΏΡΠΈΡΡΠΈΠΈ.ΠΠ°ΠΏΡΠΈΠΌΠ΅Ρ, Π±Π»ΠΈΠΆΠ΅ ΠΏΠΎΡΠ΅ΡΠ°Π΅Ρ ΠΊΠΎΠ½ΡΠ΅ΡΠ΅Π½ΡΠΈΡ ΠΏΠΎ ΡΠ°Π·Π²ΠΈΡΠΈΡ ΠΊΠ°ΡΡΠ΅ΡΡ, Π° Π²ΠΎ Π²ΡΠ΅ΠΌΡ ΡΠ΅ΡΠ΅Π²ΠΎΠ³ΠΎ ΠΌΠ΅ΡΠΎΠΏΡΠΈΡΡΠΈΡ Π·Π½Π°ΠΊΠΎΠΌΠΈΡΡΡ Ρ Π±ΠΈΠ·Π½Π΅Ρ-ΡΡΠ΅Π½Π΅ΡΠΎΠΌ.
ΠΠ½ΠΈ ΠΎΠ±ΠΌΠ΅Π½ΠΈΠ²Π°ΡΡΡΡ ΠΊΠΎΠ½ΡΠ°ΠΊΡΠ½ΠΎΠΉ ΠΈΠ½ΡΠΎΡΠΌΠ°ΡΠΈΠ΅ΠΉ ΠΈ ΠΏΠΎΠ΄Π΄Π΅ΡΠΆΠΈΠ²Π°ΡΡ ΡΠ²ΡΠ·Ρ, ΠΏΠΎΠ΄Π΄Π΅ΡΠΆΠΈΠ²Π°Ρ ΠΎΡΠ½ΠΎΡΠ΅Π½ΠΈΡ Ρ ΠΏΠΎΠΌΠΎΡΡΡ ΠΏΠΎΡΠ»Π΅Π΄ΡΡΡΠΈΡ ΡΠΎΠΎΠ±ΡΠ΅Π½ΠΈΠΉ Π² ΡΠΎΡΠΈΠ°Π»ΡΠ½ΡΡ ΡΠ΅ΡΡΡ . ΠΠ»ΠΈ, Π΅ΡΠ»ΠΈ Π²Π»ΠΈΡΡΠ΅Π»ΡΠ½ΡΠΉ ΡΠ΅Π»ΠΎΠ²Π΅ΠΊ ΡΠΏΠΎΠΌΠΈΠ½Π°Π΅Ρ ΠΎ Π½Π΅ΠΎΠ±Ρ ΠΎΠ΄ΠΈΠΌΠΎΡΡΠΈ ΡΠ±Π»ΠΈΠ·ΠΈΡΡΡΡ Π²ΠΎ Π²ΡΠ΅ΠΌΡ ΠΌΠ΅ΡΠΎΠΏΡΠΈΡΡΠΈΡ, ΠΎΠ½ ΠΏΠΎΠ·Π²ΠΎΠ½ΠΈΡ ΠΈ ΡΠ°ΡΡΠΊΠ°ΠΆΠ΅Ρ, ΠΊΠ°ΠΊ ΡΠ°Π±ΠΎΡΠ°ΡΡ Π²ΠΌΠ΅ΡΡΠ΅.
Π 2019 Π³ΠΎΠ΄Ρ Π±ΡΠ΄Π΅Ρ Π·Π°ΠΏΡΡΠ΅Π½Π° Π½ΠΎΠ²Π°Ρ ΠΏΠ»Π°ΡΡΠΎΡΠΌΠ° ΠΏΠΎΠ΄ Π½Π°Π·Π²Π°Π½ΠΈΠ΅ΠΌ Closers.com, ΠΊΠΎΡΠΎΡΠ°Ρ Π½Π°ΡΡΡΠΈΡ ΡΠΎ, ΠΊΠ°ΠΊ Π²Π»ΠΈΡΡΠ΅Π»ΡΠ½ΡΠ΅ Π»ΠΈΡΠ° ΠΈ Π΄ΠΎΠ²ΠΎΠ΄ΡΠΈΠΊΠΈ Π½Π°Ρ ΠΎΠ΄ΡΡ Π΄ΡΡΠ³ Π΄ΡΡΠ³Π°.ΠΡΠΎ Π±ΡΠ΄Π΅Ρ ΡΠ°ΡΡΠΌΠΎΡΡΠ΅Π½ΠΎ Π² Π³Π»Π°Π²Π΅ 5.
ΠΠ΅ΡΠ΅ΠΉΡΠΈ ΠΊ Π³Π»Π°Π²Π΅ 6
ΠΠ°ΠΊ Π²Ρ Π½Π°Π½ΠΈΠΌΠ°Π΅ΡΠ΅ ΡΠ°Π»Π°Π½ΡΠ»ΠΈΠ²ΡΡ ΠΏΡΠΎΠ΄Π°Π²ΡΠΎΠ², ΠΊΠΎΡΠΎΡΡΠ΅ Π±ΡΠ΄ΡΡ Π·Π°ΠΊΠ»ΡΡΠ°ΡΡ ΡΠ΄Π΅Π»ΠΊΠΈ ΠΈ ΠΏΡΠ΅Π²ΡΡΠ°ΡΡ ΡΠ΅Π»ΠΈ Π²Π°ΡΠ΅ΠΉ ΠΊΠΎΠΌΠΏΠ°Π½ΠΈΠΈ ΠΏΠΎ ΠΏΡΠΎΠ΄Π°ΠΆΠ°ΠΌ?
ΠΠ΅ΡΠ²ΡΠΉ ΡΠΏΠΎΡΠΎΠ±, ΡΡΠ°Π΄ΠΈΡΠΈΠΎΠ½Π½ΡΠΉ ΡΠΏΠΎΡΠΎΠ±, ΠΌΠΎΠΆΠ΅Ρ Π·Π°Π½ΡΡΡ Π½Π΅Π΄Π΅Π»ΠΈ Π½Π° Π²Π΅ΡΡ ΠΏΡΠΎΡΠ΅ΡΡ, ΠΎΡ ΡΠ°Π·ΠΌΠ΅ΡΠ΅Π½ΠΈΡ ΠΎΠ±ΡΡΠ²Π»Π΅Π½ΠΈΡ, ΠΏΡΠΎΠ²Π΅ΡΠΊΠΈ Π·Π°ΡΠ²ΠΎΠΊ Π΄ΠΎ Π±ΡΠΎΠ½ΠΈΡΠΎΠ²Π°Π½ΠΈΡ ΠΈ ΠΏΡΠΎΠ²Π΅Π΄Π΅Π½ΠΈΡ ΡΠΎΠ±Π΅ΡΠ΅Π΄ΠΎΠ²Π°Π½ΠΈΠΉ. ΠΠΎΡΠ»Π΅ ΡΠΎΠ³ΠΎ, ΠΊΠ°ΠΊ Π²Ρ Π²ΡΠ±ΡΠ°Π»ΠΈ ΠΊΠ°Π½Π΄ΠΈΠ΄Π°ΡΠ° ΠΈΠ· ΡΠΏΠΈΡΠΊΠ° ΡΠΎΠ±Π΅ΡΠ΅Π΄ΠΎΠ²Π°Π½ΠΈΠΉ, Π²Π°ΠΌ Π²ΡΠ΅ ΡΠ°Π²Π½ΠΎ Π½ΡΠΆΠ½ΠΎ Π±ΡΠ΄Π΅Ρ ΠΏΡΠΎΠ²Π΅ΡΠΈΡΡ ΡΠ΅ΠΊΠΎΠΌΠ΅Π½Π΄Π°ΡΠΈΠΈ.
ΠΡΠΎΡΠ΅ΡΡ ΠΌΠΎΠΆΠ΅Ρ Π·Π°Π½ΡΡΡ ΠΎΡ 4 Π΄ΠΎ 6 Π½Π΅Π΄Π΅Π»Ρ, ΠΈΡΡΠΎΡΠ°Ρ ΡΠ΅ΡΡΡΡΡ Π²Π°ΡΠ΅Π³ΠΎ ΠΎΡΠ΄Π΅Π»Π° ΠΊΠ°Π΄ΡΠΎΠ².ΠΠ΄Π°ΠΏΡΠ°ΡΠΈΡ Π½ΠΎΠ²ΠΎΠ³ΠΎ ΡΠΎΡΡΡΠ΄Π½ΠΈΠΊΠ° ΡΠ°ΠΊΠΆΠ΅ ΡΡΠ΅Π±ΡΠ΅Ρ Π²ΡΠ΅ΠΌΠ΅Π½ΠΈ, ΠΏΠΎΡΠΊΠΎΠ»ΡΠΊΡ Π²Π°ΡΠΈ ΡΠΎΡΡΡΠ΄Π½ΠΈΠΊΠΈ ΡΡΠ°ΡΡΡ Π²ΡΠ΅ΠΌΡ Π½Π° ΠΎΠ±ΡΡΠ΅Π½ΠΈΠ΅ ΠΊΠ°Π½Π΄ΠΈΠ΄Π°ΡΠ° ΠΈ ΠΏΡΠΎΠ²Π΅ΡΠΊΡ ΡΠΎΠ³ΠΎ, Π΄Π΅ΠΉΡΡΠ²ΠΈΡΠ΅Π»ΡΠ½ΠΎ Π»ΠΈ Π½ΠΎΠ²ΡΠΉ ΡΠΎΡΡΡΠ΄Π½ΠΈΠΊ ΠΎΠ±Π»Π°Π΄Π°Π΅Ρ ΡΠ΅ΠΌΠΈ Π½Π°Π²ΡΠΊΠ°ΠΌΠΈ ΠΏΡΠΎΠ΄Π°ΠΆ, ΠΊΠΎΡΠΎΡΡΠ΅ ΠΎΠ½ΠΈ Π·Π°ΡΠ²ΠΈΠ»ΠΈ Π²ΠΎ Π²ΡΠ΅ΠΌΡ ΡΠΎΠ±Π΅ΡΠ΅Π΄ΠΎΠ²Π°Π½ΠΈΡ.
ΠΡΠ΅ ΠΎΠ΄Π½ΠΈΠΌ Π½Π΅Π΄ΠΎΡΡΠ°ΡΠΊΠΎΠΌ ΠΏΡΠΎΡΠ΅ΡΡΠ° ΠΏΡΠΈΠ΅ΠΌΠ° Π½Π° ΡΠ°Π±ΠΎΡΡ ΡΠ²Π»ΡΠ΅ΡΡΡ ΡΠΎ, ΡΡΠΎ Π²Ρ Π±ΡΠ΄Π΅ΡΠ΅ ΠΎΠ³ΡΠ°Π½ΠΈΡΠ΅Π½Ρ Π²Π°ΡΠΈΠΌ ΡΠ΅Π³ΠΈΠΎΠ½ΠΎΠΌ Π΄Π»Ρ ΠΊΠ°Π½Π΄ΠΈΠ΄Π°ΡΠΎΠ², Π΅ΡΠ»ΠΈ Π²Ρ Ρ ΠΎΡΠΈΡΠ΅ Π½Π°Π½ΡΡΡ ΠΈΡ Π»ΠΈΡΠ½ΠΎ. ΠΠ½ΡΠ΅ΡΠ½Π΅Ρ-ΡΠ΅ΠΊΠ»Π°ΠΌΠ° ΡΠ°ΠΊΠΆΠ΅ ΠΈΠΌΠ΅Π΅Ρ Π³Π΅ΠΎΠ³ΡΠ°ΡΠΈΡΠ΅ΡΠΊΠΈΠ΅ ΠΎΠ³ΡΠ°Π½ΠΈΡΠ΅Π½ΠΈΡ. ΠΡΡΠΎΠΊΠΎΠΊΠ²Π°Π»ΠΈΡΠΈΡΠΈΡΠΎΠ²Π°Π½Π½ΡΠΉ ΡΠΏΠ΅ΡΠΈΠ°Π»ΠΈΡΡ ΠΈΠ· ΠΠ²ΡΠΎΠΏΡ ΠΌΠΎΠΆΠ΅Ρ ΠΏΡΠΎΠΏΡΡΡΠΈΡΡ ΡΠ΅ΠΊΠ»Π°ΠΌΡ, ΠΎΡΠΈΠ΅Π½ΡΠΈΡΠΎΠ²Π°Π½Π½ΡΡ Π½Π° Π‘Π¨Π.
ΠΡΡΠ³ΠΎΠΉ ΡΠΏΠΎΡΠΎΠ± — Π½Π°ΠΉΡΠΈ Π΄ΠΎΠ²ΠΎΠ΄ΡΠΈΠΊΠΎΠ² Π½Π° ΡΠ΅ΡΠ΅Π²ΡΡ ΠΌΠ΅ΡΠΎΠΏΡΠΈΡΡΠΈΡΡ ΠΈ Π² ΡΠΎΡΠΈΠ°Π»ΡΠ½ΡΡ ΡΠ΅ΡΡΡ , ΡΠ°ΠΊΠΈΡ ΠΊΠ°ΠΊ Facebook.ΠΡΠΎΡ ΠΌΠ΅ΡΠΎΠ΄ ΠΎΠ±ΡΡΠΆΠ΄Π°Π»ΡΡ Π² Π³Π»Π°Π²Π΅ 4. ΠΠ±ΡΠ°ΡΠ½ΠΎΠΉ ΡΡΠΎΡΠΎΠ½ΠΎΠΉ ΠΏΠΎΠΈΡΠΊΠ° Π΄ΠΎΠ²ΠΎΠ΄ΡΠΈΠΊΠΎΠ² Π½Π° ΠΌΠ΅ΡΠΎΠΏΡΠΈΡΡΠΈΡΡ ΠΈ Π² ΡΠΎΡΠΈΠ°Π»ΡΠ½ΡΡ ΡΠ΅ΡΡΡ ΡΠ²Π»ΡΠ΅ΡΡΡ ΠΎΡΠ»ΠΈΡΠΈΠ΅ ΠΊΠ²Π°Π»ΠΈΡΠΈΡΠΈΡΠΎΠ²Π°Π½Π½ΡΡ Π΄ΠΎΠ²ΠΎΠ΄ΡΠΈΠΊΠΎΠ² ΠΎΡ ΡΠ°ΠΌΠΎΠΏΡΠΎΠ²ΠΎΠ·Π³Π»Π°ΡΠ΅Π½Π½ΡΡ Π΄ΠΎΠ²ΠΎΠ΄ΡΠΈΠΊΠΎΠ².
Π ΠΊΠΎΠ½ΡΡ 2019 Π³ΠΎΠ΄Π° Π±ΡΠ΄Π΅Ρ Π΄ΠΎΡΡΡΠΏΠ½Π° ΠΏΠ»Π°ΡΡΠΎΡΠΌΠ° Closers.com. ΠΠΎ Π½Π°Π·Π½Π°ΡΠ΅Π½ΠΈΡ ΠΎΠ½ Π±ΡΠ΄Π΅Ρ Π°Π½Π°Π»ΠΎΠ³ΠΈΡΠ΅Π½ ΠΏΠ»Π°ΡΡΠΎΡΠΌΠ°ΠΌ, ΡΠ°ΠΊΠΈΠΌ ΠΊΠ°ΠΊ Fiverr ΠΈ Upwork, Π½ΠΎ Π² ΡΡΠΎΠΌ ΡΠ»ΡΡΠ°Π΅ ΠΏΠΎΠ΄Π±ΠΈΡΠ°Π΅Ρ ΠΊΠ²Π°Π»ΠΈΡΠΈΡΠΈΡΠΎΠ²Π°Π½Π½ΡΠ΅ Π΄ΠΎΠ²ΠΎΠ΄ΡΠΈΠΊΠΈ Ρ ΠΏΡΠ΅Π΄ΠΏΡΠΈΡΡΠΈΡΠΌΠΈ, ΠΈΡΡΡΠΈΠΌΠΈ Π΄ΠΎΠ²ΠΎΠ΄ΡΠΈΠΊΠΈ. ΠΠΎΠ²ΠΎΠ΄ΡΠΈΠΊΠΈ ΡΠΆΠ΅ Π±ΡΠ΄ΡΡ ΠΏΡΠ΅Π΄Π²Π°ΡΠΈΡΠ΅Π»ΡΠ½ΠΎ ΠΏΡΠΎΠ²Π΅ΡΠ΅Π½Ρ Π½Π° Π½Π°Π²ΡΠΊΠΈ ΠΈ ΠΊΠ²Π°Π»ΠΈΡΠΈΠΊΠ°ΡΠΈΡ, ΡΡΠΎ ΡΡΠΊΠΎΠ½ΠΎΠΌΠΈΡ Π²ΡΠ΅ΠΌΡ ΠΏΡΠΈ ΠΏΡΠΈΠ΅ΠΌΠ΅ Π½Π° ΡΠ°Π±ΠΎΡΡ.
ΠΡΠ΅Π΄ΠΏΡΠΈΡΡΠΈΡ Π±ΡΠ΄ΡΡ ΠΈΠΌΠ΅ΡΡ Π΄ΠΎΡΡΡΠΏ ΠΊ Π±ΠΎΠ»ΡΡΠ΅ΠΌΡ ΠΊΠΎΠ»ΠΈΡΠ΅ΡΡΠ²Ρ Π΄ΠΎΠ²ΠΎΠ΄ΡΠΈΠΊΠΎΠ² Π±Π΅Π· ΠΎΠ³ΡΠ°Π½ΠΈΡΠ΅Π½ΠΈΠΉ ΠΏΠΎ Π³Π΅ΠΎΠ³ΡΠ°ΡΠΈΡΠ΅ΡΠΊΠΎΠΌΡ ΡΠ΅Π³ΠΈΠΎΠ½Ρ. ΠΠΎΠΌΠΏΠ°Π½ΠΈΡ, ΠΊΠΎΡΠΎΡΠ°Ρ ΠΏΡΠ΅Π΄Π»Π°Π³Π°Π΅Ρ ΠΊΡΡΡΡ Π½Π° ΠΌΠ΅ΠΆΠ΄ΡΠ½Π°ΡΠΎΠ΄Π½ΠΎΠΌ ΡΡΠΎΠ²Π½Π΅, ΠΌΠΎΠΆΠ΅Ρ ΠΈΠΌΠ΅ΡΡ Π³Π»ΠΎΠ±Π°Π»ΡΠ½ΡΡ ΠΊΠΎΠΌΠ°Π½Π΄Ρ Π΄ΠΎΠ²ΠΎΠ΄ΡΠΈΠΊΠΎΠ², ΠΊΠΎΡΠΎΡΠ°Ρ ΠΊΡΡΠ³Π»ΠΎΡΡΡΠΎΡΠ½ΠΎ ΠΎΠ±ΡΠ»ΡΠΆΠΈΠ²Π°Π΅Ρ Π³ΡΠ°ΡΠΈΠΊ Π±ΡΠΎΠ½ΠΈΡΠΎΠ²Π°Π½ΠΈΡ.
ΠΠ»Π°ΡΡΠΎΡΠΌΠ° ΡΠ°ΠΊΠΆΠ΅ ΠΏΡΠΎΠ²Π΅Π΄Π΅Ρ ΠΏΡΠ΅Π΄Π²Π°ΡΠΈΡΠ΅Π»ΡΠ½ΡΡ ΠΊΠ²Π°Π»ΠΈΡΠΈΠΊΠ°ΡΠΈΡ Π²Π»ΠΈΡΡΠ΅Π»ΡΠ½ΡΡ Π»ΠΈΡ ΠΈ ΠΏΡΠ΅Π΄ΠΏΡΠΈΡΡΠΈΠΉ, ΡΡΠΎΠ±Ρ ΡΠ±Π΅Π΄ΠΈΡΡΡΡ, ΡΡΠΎ Ρ Π½ΠΈΡ Π΄ΠΎΡΡΠ°ΡΠΎΡΠ½ΠΎ ΡΠ°Π±ΠΎΡΡ Π΄Π»Ρ Π΄ΠΎΠ²ΠΎΠ΄ΡΠΈΠΊΠΎΠ², Π° ΡΠ°ΠΊΠΆΠ΅ Π²ΠΎΠ·ΠΌΠΎΠΆΠ½ΠΎΡΡΡ ΠΏΠ»Π°ΡΠΈΡΡ ΠΊΠΎΠΌΠΈΡΡΠΈΠΎΠ½Π½ΡΠ΅.
Π’ΡΠ°Π΄ΠΈΡΠΈΠΎΠ½Π½ΡΠ΅ ΡΠΏΠΎΡΠΎΠ±Ρ Π·Π°ΡΠ°Π±ΠΎΡΠΊΠ° ΠΌΠ΅Π½ΡΡΡΡΡ, ΠΏΠΎΡΠΊΠΎΠ»ΡΠΊΡ ΡΠ°Π±ΠΎΡΠ½ΠΈΠΊΠΈ Π±Π΅ΡΡΡ Π½Π° ΡΠ΅Π±Ρ ΠΊΠ°ΠΊ ΠΏΠΎΠ»Π½ΡΡ, ΡΠ°ΠΊ ΠΈ ΡΠ°ΡΡΠΈΡΠ½ΡΡ ΡΠ°Π±ΠΎΡΡ, ΡΡΠΎΠ±Ρ Π΄ΠΎΡΡΠΈΡΡ ΡΠ²ΠΎΠΈΡ ΡΠ΅Π»Π΅ΠΉ Π΄ΠΎΡ ΠΎΠ΄Π° ΠΈ ΠΏΠΎΠ·Π²ΠΎΠ»ΠΈΡΡ ΡΠ΅Π±Π΅ ΡΠ²ΠΎΠΉ ΠΎΠ±ΡΠ°Π· ΠΆΠΈΠ·Π½ΠΈ.ΠΠΎΡΠ»Π΅ ΡΠΈΠ½Π°Π½ΡΠΎΠ²ΠΎΠ³ΠΎ ΠΊΡΠΈΠ·ΠΈΡΠ° 2008β2009 Π³ΠΎΠ΄ΠΎΠ² ΠΊΠΎΠ½ΡΠ΅ΠΏΡΠΈΡ ΠΏΠΎΠ»ΡΡΠ΅Π½ΠΈΡ Π΄ΠΎΡ ΠΎΠ΄Π° Π½Π°ΡΠ°Π»Π° ΡΠ°Π·Π²ΠΈΠ²Π°ΡΡΡΡ, ΠΈ ΠΊΠΎΠ½ΡΠ΅ΠΏΡΠΈΡ Β«Π³ΠΈΠ³-ΡΠΊΠΎΠ½ΠΎΠΌΠΈΠΊΠΈΒ» Π²ΠΎΡΠ»Π° Π² ΠΏΠΎΠ²ΡΠ΅Π΄Π½Π΅Π²Π½ΡΠΉ ΠΆΠ°ΡΠ³ΠΎΠ½.
Π ΠΎΡΡ Π³ΠΈΠ³-ΡΠΊΠΎΠ½ΠΎΠΌΠΈΠΊΠΈ
ΠΠΎΠΌΠΏΠ°Π½ΠΈΠΈ Π½Π°ΡΠ°Π»ΠΈ ΠΎΡΡ ΠΎΠ΄ΠΈΡΡ ΠΎΡ ΡΡΠ°Π΄ΠΈΡΠΈΠΎΠ½Π½ΠΎΠΉ ΠΊΠΎΡΠΏΠΎΡΠ°ΡΠΈΠ²Π½ΠΎΠΉ ΡΡΡΡΠΊΡΡΡΡ Ρ 9 Π΄ΠΎ 5, ΠΏΡΠΈ ΠΊΠΎΡΠΎΡΠΎΠΉ Π³ΡΡΠΏΠΏΠ° Π»ΡΠ΄Π΅ΠΉ ΡΠ°Π±ΠΎΡΠ°Π΅Ρ Π½Π° Π½Π°ΡΠ°Π»ΡΠ½ΠΈΠΊΠ° Π² ΠΎΠ±ΠΌΠ΅Π½ Π½Π° Π·Π°ΡΠΏΠ»Π°ΡΡ ΠΈ Π»ΡΠ³ΠΎΡΡ. ΠΠΌΠ΅ΡΡΠΎ ΡΡΠΎΠ³ΠΎ ΠΊΠΎΠΌΠΏΠ°Π½ΠΈΠΈ ΠΏΠ΅ΡΠ΅ΠΊΠ»Π°Π΄ΡΠ²Π°ΡΡ ΡΠΈΡΠΊ Π½Π° Π»ΡΠ΄Π΅ΠΉ.
ΠΡΠ΄ΠΈ ΡΡΠ°Π½ΠΎΠ²ΡΡΡΡ Π±ΠΎΠ»Π΅Π΅ ΠΎΡΠ²Π΅ΡΡΡΠ²Π΅Π½Π½ΡΠΌΠΈ Π·Π° ΡΠ²ΠΎΠ΅ ΡΠΈΠ½Π°Π½ΡΠΎΠ²ΠΎΠ΅ Π±ΡΠ΄ΡΡΠ΅Π΅, ΠΏΡΠΎΠΊΠ»Π°Π΄ΡΠ²Π°Ρ ΠΏΡΡΡ Π΄Π»Ρ Π³ΠΈΠ³-ΡΠΊΠΎΠ½ΠΎΠΌΠΈΠΊΠΈ.
Π ΡΡΠΎΠΉ ΡΠΊΠΎΠ½ΠΎΠΌΠΈΠΊΠ΅ Π»ΡΠ΄ΠΈ ΡΠ°Π±ΠΎΡΠ°ΡΡ Π² ΠΏΡΠΈΠ»ΠΎΠΆΠ΅Π½ΠΈΠΈ, ΡΠ°ΠΊΠΎΠΌ ΠΊΠ°ΠΊ Uber ΠΈΠ»ΠΈ Fiverr, ΡΠ°ΠΌΠΈ Π²ΡΠ±ΠΈΡΠ°ΡΡ ΡΠ°ΡΡ ΡΠ°Π±ΠΎΡΡ ΠΈ ΡΠ΅Π΄ΠΊΠΎ Π»ΠΈΡΠ½ΠΎ ΠΎΠ±ΡΠ°ΡΡΡΡ ΡΠΎ ΡΠ²ΠΎΠΈΠΌΠΈ ΡΠ°Π±ΠΎΡΠΎΠ΄Π°ΡΠ΅Π»ΡΠΌΠΈ ΠΈΠ»ΠΈ ΡΠΎΠ²Π°ΡΠΈΡΠ°ΠΌΠΈ ΠΏΠΎ ΠΊΠΎΠΌΠ°Π½Π΄Π΅. Π Π½Π΅ΠΊΠΎΡΠΎΡΡΡ ΡΠ»ΡΡΠ°ΡΡ ΠΎΠ½ΠΈ ΠΌΠΎΠ³ΡΡ Π½ΠΈΠΊΠΎΠ³Π΄Π° Π½Π΅ Π²ΡΡΡΠ΅ΡΠΈΡΡΡΡ ΡΠΎ ΡΠ²ΠΎΠΈΠΌΠΈ ΠΏΠΎΠΊΡΠΏΠ°ΡΠ΅Π»ΡΠΌΠΈ ΠΈΠ»ΠΈ ΠΊΠ»ΠΈΠ΅Π½ΡΠ°ΠΌΠΈ.
ΠΠ΅ ΠΆΠ΅Π»Π°Ρ Π±ΠΎΠ»ΡΡΠ΅ ΠΏΠΎΠ»Π°Π³Π°ΡΡΡΡ Π½Π° ΠΎΠ΄Π½ΠΎΠ³ΠΎ ΡΠ°Π±ΠΎΡΠΎΠ΄Π°ΡΠ΅Π»Ρ Π΄Π»Ρ ΠΏΠΎΠ»ΡΡΠ΅Π½ΠΈΡ Π½Π°Π΄Π΅ΠΆΠ½ΠΎΠ³ΠΎ ΠΈΡΡΠΎΡΠ½ΠΈΠΊΠ° Π΄ΠΎΡ ΠΎΠ΄Π°, ΡΠ°Π±ΠΎΡΠΈΠ΅ Π½Π°ΡΠ°Π»ΠΈ ΡΠΎΠ±ΠΈΡΠ°ΡΡ Π΄ΠΎΡ ΠΎΠ΄, ΡΠ°Π±ΠΎΡΠ°Ρ ΠΏΠΎ Π½Π΅ΡΠΊΠΎΠ»ΡΠΊΡ ΡΠ°Π±ΠΎΡΠΈΡ ΠΌΠ΅ΡΡ. ΠΠ΅ΠΊΠΎΡΠΎΡΡΠ΅ ΠΈΠ· Π½ΠΈΡ ΡΡΠ°Π»ΠΈ Π΄ΡΠ°ΠΉΠ²Π΅ΡΠ°ΠΌΠΈ ΡΠ΅ΡΠ²ΠΈΡΠΎΠ² Π²ΡΠ·ΠΎΠ²Π° ΡΠ°ΠΊΡΠΈ, ΡΠ°ΠΊΠΈΡ ΠΊΠ°ΠΊ Uber, Π΄ΡΡΠ³ΠΈΠ΅ ΡΡΠ°Π»ΠΈ Π²ΠΎΠ΄ΠΈΡΠ΅Π»ΡΠΌΠΈ Π΄ΠΎΡΡΠ°Π²ΠΊΠΈ Π΅Π΄Ρ Π΄Π»Ρ ΡΠ°ΠΊΠΈΡ ΠΊΠΎΠΌΠΏΠ°Π½ΠΈΠΉ, ΠΊΠ°ΠΊ Skip The Dishes, ΠΈΠ»ΠΈ Π²ΠΈΡΡΡΠ°Π»ΡΠ½ΡΡ ΠΏΠΎΠΌΠΎΡΠ½ΠΈΠΊΠΎΠ².
ΠΠ΅Π½Π΅ΡΠ°Π»ΡΠ½ΡΠΉ Π΄ΠΈΡΠ΅ΠΊΡΠΎΡ Intuit ΠΡΡΠ΄ Π‘ΠΌΠΈΡ ΡΠΊΠ°Π·Π°Π»: Β«ΠΠΎ ΠΎΡΠ΅Π½ΠΊΠ°ΠΌ, Π³ΠΈΠ³-ΡΠΊΠΎΠ½ΠΎΠΌΠΈΠΊΠ° [Π² Π‘Π¨Π]β¦ ΡΠ΅ΠΉΡΠ°Ρ ΡΠΎΡΡΠ°Π²Π»ΡΠ΅Ρ ΠΎΠΊΠΎΠ»ΠΎ 34% ΡΠ°Π±ΠΎΡΠ΅ΠΉ ΡΠΈΠ»Ρ ΠΈ, ΠΊΠ°ΠΊ ΠΎΠΆΠΈΠ΄Π°Π΅ΡΡΡ, ΠΊ 2020 Π³ΠΎΠ΄Ρ ΡΠΎΡΡΠ°Π²ΠΈΡ 43%Β».
ΠΠΈΠ·Π½Π΅Ρ-ΠΌΠΎΠ΄Π΅Π»Ρ High Ticket Closer β’
ΠΠΎΠΉΠ΄ΠΈΡΠ΅ Π² High Ticket Closer β’, ΠΏΡΠΎΡΠ΅ΡΡΠΈΠΎΠ½Π°Π»ΡΠ½ΠΎΠ³ΠΎ ΠΏΡΠΎΠ΄Π°Π²ΡΠ°, ΠΊΠΎΡΠΎΡΡΠΉ ΠΌΠΎΠΆΠ΅Ρ Π·Π°ΠΊΠ»ΡΡΠ°ΡΡ ΡΠ΄Π΅Π»ΠΊΠΈ ΠΈΠ· Π»ΡΠ±ΠΎΠΉ ΡΠΎΡΠΊΠΈ ΠΌΠΈΡΠ°. ΠΠΎΠ»Π΅Π΅ Π±Π»ΠΈΠ·ΠΊΠ°Ρ ΠΌΠΎΠ΄Π΅Π»Ρ ΡΠ²Π»ΡΠ΅ΡΡΡ Π°Π²ΡΠΎΠ½ΠΎΠΌΠ½ΠΎΠΉ, ΡΡΠΎ Π΄Π°Π΅Ρ Π±ΠΎΠ»Π΅Π΅ Π±Π»ΠΈΠ·ΠΊΠΎΠΉ Π²ΠΎΠ·ΠΌΠΎΠΆΠ½ΠΎΡΡΡ Π²ΡΠ±ΠΈΡΠ°ΡΡ ΡΠ°ΡΡ ΡΠ°Π±ΠΎΡΡ, ΠΎΡΡΠ°Π±ΠΎΡΠ°Π½Π½ΡΠ΅ ΡΠ°ΡΡ, ΠΌΠ΅ΡΡΠΎ ΡΠ°Π±ΠΎΡΡ ΠΈ Ρ ΠΊΠ΅ΠΌ ΠΎΠ½ΠΈ ΡΠ°Π±ΠΎΡΠ°ΡΡ.
ΠΡΠΎΡΠ΅ΡΡΠΈΡ High Ticket Closer ΠΈΠ΄Π΅Π°Π»ΡΠ½ΠΎ ΠΏΠΎΠ΄Ρ ΠΎΠ΄ΠΈΡ Π΄Π»Ρ Π³ΠΈΠ³-ΡΠΊΠΎΠ½ΠΎΠΌΠΈΠΊΠΈ.ΠΠ°ΠΆΠ΄ΡΠΉ Π΄ΠΎΠ²ΠΎΠ΄ΡΠΈΠΊ ΠΏΠΎΡ ΠΎΠΆ Π½Π° Π²Π»Π°Π΄Π΅Π»ΡΡΠ° ΠΌΠ°Π»ΠΎΠ³ΠΎ Π±ΠΈΠ·Π½Π΅ΡΠ°, ΠΊΠΎΡΠΎΡΠΎΠΌΡ Π½Π΅ Π½ΡΠΆΠ½ΠΎ Π²ΠΊΠ»Π°Π΄ΡΠ²Π°ΡΡ ΡΡΠ΅Π΄ΡΡΠ²Π° Π² ΠΌΠ°ΡΠΊΠ΅ΡΠΈΠ½Π³, ΠΏΠΎΠΈΡΠΊ ΠΊΠ»ΠΈΠ΅Π½ΡΠΎΠ², ΡΠ°Π·ΡΠ°Π±ΠΎΡΠΊΡ ΠΏΡΠΎΠ΄ΡΠΊΡΠΎΠ², Π±ΠΈΠ·Π½Π΅Ρ-ΡΡΡΠ°ΡΠ΅Π³ΠΈΡ ΠΈΠ»ΠΈ Π²ΠΈΡΡΠΈΠ½Ρ ΠΌΠ°Π³Π°Π·ΠΈΠ½Π°.
ΠΠ»ΠΈΡΡΠ΅Π»ΡΠ½ΡΠΉ ΡΠ΅Π»ΠΎΠ²Π΅ΠΊ ΠΈΠ»ΠΈ Π±ΠΈΠ·Π½Π΅Ρ Π±Π΅ΡΠ΅Ρ Π½Π° ΡΠ΅Π±Ρ Π²ΡΠ΅ ΡΡΠΈ ΠΌΠ°ΡΠΊΠ΅ΡΠΈΠ½Π³ΠΎΠ²ΡΠ΅ ΠΈ Π΄Π΅Π»ΠΎΠ²ΡΠ΅ ΠΎΠ±ΡΠ·Π°Π½Π½ΠΎΡΡΠΈ. ΠΠ½ΠΈ Π³Π΅Π½Π΅ΡΠΈΡΡΡΡ ΠΏΠΎΡΠ΅Π½ΡΠΈΠ°Π»ΡΠ½ΡΡ ΠΊΠ»ΠΈΠ΅Π½ΡΠΎΠ² ΠΈ ΡΠΎΠ·Π΄Π°ΡΡ ΠΏΡΠ΅Π΄Π»ΠΎΠΆΠ΅Π½ΠΈΠ΅ Π΄Π»Ρ ΠΏΠΎΡΠ΅Π½ΡΠΈΠ°Π»ΡΠ½ΡΡ ΠΊΠ»ΠΈΠ΅Π½ΡΠΎΠ².
ΠΡΠΎ Π±Π»ΠΈΠΆΠ΅ ΠΊ ΡΠΎΠΌΡ ΠΌΠΎΠΌΠ΅Π½ΡΡ, ΠΊΠΎΠ³Π΄Π° Π±ΠΈΠ·Π½Π΅ΡΡ Π½ΡΠΆΠ΅Π½ ΠΊΠ²Π°Π»ΠΈΡΠΈΡΠΈΡΠΎΠ²Π°Π½Π½ΡΠΉ ΠΏΡΠΎΠ΄Π°Π²Π΅Ρ, ΡΡΠΎΠ±Ρ Π·Π°ΠΊΡΡΡΡ ΡΠ²ΠΎΡ ΠΏΠ΅ΡΡΠΏΠ΅ΠΊΡΠΈΠ²Ρ ΠΈ ΡΠΎΠ²Π΅ΡΡΠΈΡΡ ΠΏΡΠΎΠ΄Π°ΠΆΡ.
ΠΠ΅ΡΡΠΏΠ΅ΠΊΡΠΈΠ²Ρ ΠΏΡΠΎΡΠ΅ΡΡΠΈΠΈ ΠΏΡΠΎΠ΄Π°Π²ΡΠ° ΠΏΠΎΠ»ΠΎΠΆΠΈΡΠ΅Π»ΡΠ½ΡΠ΅, ΠΏΠΎΡΠΊΠΎΠ»ΡΠΊΡ ΠΈΡΠΊΡΡΡΡΠ²Π΅Π½Π½ΡΠΉ ΠΈΠ½ΡΠ΅Π»Π»Π΅ΠΊΡ (ΠΠ) ΠΏΡΠΎΠ΄ΠΎΠ»ΠΆΠ°Π΅Ρ ΡΠ°Π·Π²ΠΈΠ²Π°ΡΡ ΡΠ΅Ρ Π½ΠΎΠ»ΠΎΠ³ΠΈΠΈ ΠΈ ΡΠ°Π·ΡΡΡΠ°ΡΡ ΠΎΡΡΠ°ΡΠ»ΠΈ ΠΈ ΠΌΠ΅ΡΠΎΠ΄Ρ Π²Π΅Π΄Π΅Π½ΠΈΡ Π±ΠΈΠ·Π½Π΅ΡΠ°.ΠΠΎ Π΄Π°Π½Π½ΡΠΌ ΠΡΠ΅ΠΌΠΈΡΠ½ΠΎΠ³ΠΎ ΡΠΊΠΎΠ½ΠΎΠΌΠΈΡΠ΅ΡΠΊΠΎΠ³ΠΎ ΡΠΎΡΡΠΌΠ°,
ΠΠΎ ΠΌΠ΅ΡΠ΅ ΡΠΎΠ³ΠΎ, ΠΊΠ°ΠΊ ΡΠ΅Ρ Π½ΠΎΠ»ΠΎΠ³ΠΈΡΠ΅ΡΠΊΠΈΠ΅ Π΄ΠΎΡΡΠΈΠΆΠ΅Π½ΠΈΡ ΠΏΡΠΎΠ΄ΠΎΠ»ΠΆΠ°ΡΡ ΡΠ°Π·ΡΡΡΠ°ΡΡ ΠΎΡΡΠ°ΡΠ»ΠΈ, Π±ΡΠ΄Π΅Ρ ΡΠ°ΡΡΠΈ ΠΏΠΎΡΡΠ΅Π±Π½ΠΎΡΡΡ Π² ΡΠΏΠ΅ΡΠΈΠ°Π»ΠΈΠ·ΠΈΡΠΎΠ²Π°Π½Π½ΡΡ ΠΏΡΠΎΠ΄Π°Π²ΡΠ°Ρ , ΠΊΠΎΡΠΎΡΡΠ΅ ΠΌΠΎΠ³ΡΡ ΠΎΠ±ΡΡΡΠ½ΠΈΡΡ ΠΏΡΠ΅Π΄Π»ΠΎΠΆΠ΅Π½ΠΈΡ ΠΊΠΎΠΌΠΏΠ°Π½ΠΈΠΈ ΡΠΈΡΠΎΠΊΠΎΠΌΡ ΠΊΡΡΠ³Ρ ΠΊΠ»ΠΈΠ΅Π½ΡΠΎΠ², Π²ΠΊΠ»ΡΡΠ°Ρ ΠΏΡΠ΅Π΄ΠΏΡΠΈΡΡΠΈΡ, ΠΏΡΠ°Π²ΠΈΡΠ΅Π»ΡΡΡΠ²Π°, ΠΏΠΎΡΡΠ΅Π±ΠΈΡΠ΅Π»Π΅ΠΉ ΠΈ Ρ. Π. Click To Tweet
Π Π³Π»ΠΎΠ±Π°Π»ΡΠ½ΠΎΠΉ ΡΠΊΠΎΠ½ΠΎΠΌΠΈΠΊΠ΅ Π±ΡΠ΄ΡΡΠΈΠ΅ Π΄ΠΎΠ²ΠΎΠ΄ΡΠΈΠΊΠΈ Π±ΡΠ΄ΡΡ Π±ΠΎΠ»ΡΡΠ΅, ΡΠ΅ΠΌ ΠΏΡΠΎΠ΄Π°Π²ΡΡ ΠΈ ΡΠΊΡΠΏΠ΅ΡΡΡ. ΠΠ½ΠΈ Π±ΡΠ΄ΡΡ ΡΡΠ΅Π½Π΅ΡΠ°ΠΌΠΈ ΠΈ ΠΊΠΎΠ½ΡΡΠ»ΡΡΠ°Π½ΡΠ°ΠΌΠΈ, ΠΏΠ΅ΡΠ²ΡΠΌΠΈ Π»ΡΠ΄ΡΠΌΠΈ, ΠΈΠΌΠ΅ΡΡΠΈΠΌΠΈ ΠΎΡΠ½ΠΎΡΠ΅Π½ΠΈΠ΅ ΠΊ Π±ΠΈΠ·Π½Π΅ΡΡ. ΠΡ ΡΠΎΠ»Ρ ΡΠΎΡΡΠΎΠΈΡ Π² ΡΠΎΠΌ, ΡΡΠΎΠ±Ρ ΠΏΠΎΠ΄Π³ΠΎΡΠΎΠ²ΠΈΡΡ ΠΏΠΎΡΠ΅Π½ΡΠΈΠ°Π»ΡΠ½ΡΡ ΠΊΠ»ΠΈΠ΅Π½ΡΠΎΠ² ΠΊ ΠΏΡΠ΅Π΄Π»ΠΎΠΆΠ΅Π½ΠΈΡ ΠΈ ΡΠ°ΡΡΠΊΠ°Π·Π°ΡΡ ΠΈΠΌ ΠΎ Π±ΠΈΠ·Π½Π΅ΡΠ΅.
ΠΡΠ½ΠΎΡΠ΅Π½ΠΈΠ΅ Β«ΠΏΡΠΎΠ΄Π°Π²Π΅ΡΒ» ΠΊ Β«ΡΠΊΠ»ΠΈΠ·ΠΊΠΎΠΌΡ, Π½Π°ΠΏΠΎΡΠΈΡΡΠΎΠΌΡ ΠΈ ΠΎΡΠΈΠ΅Π½ΡΠΈΡΠΎΠ²Π°Π½Π½ΠΎΠΌΡ Π½Π° ΠΏΡΠΎΠ΄Π°ΠΆΠΈΒ» ΠΈΠ·ΠΌΠ΅Π½ΠΈΡΡΡ. ΠΠΎΠ²ΠΎΠ΄ΡΠΈΠΊΠΈ Π±ΡΠ΄ΡΡ ΡΠ°ΡΡΠΌΠ°ΡΡΠΈΠ²Π°ΡΡΡΡ ΠΊΠ°ΠΊ ΠΏΡΠΎΡΠ΅ΡΡΠΈΠΎΠ½Π°Π»ΡΠ½ΡΠ΅ ΡΠ΅ΡΠ°ΡΠ΅Π»ΠΈ ΠΏΡΠΎΠ±Π»Π΅ΠΌ ΡΠΎ ΡΡΡΠ°ΡΡΡΡ ΠΏΠΎΠΌΠΎΠ³Π°ΡΡ Π»ΡΠ΄ΡΠΌ.
ΠΠ½ΠΈ ΡΠ°ΠΊΠΆΠ΅ Π±ΡΠ΄ΡΡ Π½Π΅Π·Π°Π²ΠΈΡΠΈΠΌΡΠΌΠΈ Π²Π»Π°Π΄Π΅Π»ΡΡΠ°ΠΌΠΈ Π±ΠΈΠ·Π½Π΅ΡΠ° Ρ ΠΊΠΎΠ½ΡΡΠΎΠ»Π΅ΠΌ Π½Π°Π΄ ΡΠ΅ΠΌ, ΠΊΠΎΠ³Π΄Π°, Π³Π΄Π΅ ΠΈ ΠΊΠ°ΠΊ ΡΠ°ΡΡΠΎ ΠΎΠ½ΠΈ ΡΠ°Π±ΠΎΡΠ°ΡΡ. ΠΠΎΠ²ΠΎΠ΄ΡΠΈΠΊΠΈ ΡΠ°ΠΊΠΆΠ΅ Π±ΡΠ΄ΡΡ ΠΈΠ³ΡΠ°ΡΡ Π½Π°ΠΈΠ±ΠΎΠ»Π΅Π΅ Π²Π°ΠΆΠ½ΡΡ ΡΠΎΠ»Ρ Π² ΠΏΡΠΎΡΠ΅ΡΡΠ΅ ΠΏΡΠΎΠ΄Π°ΠΆ, ΠΏΡΠ΅Π²ΡΠ°ΡΠ°Ρ ΠΏΠΎΡΠ΅Π½ΡΠΈΠ°Π»ΡΠ½ΠΎΠ³ΠΎ ΠΏΠΎΠΊΡΠΏΠ°ΡΠ΅Π»Ρ Π² ΠΏΠΎΠΊΡΠΏΠ°ΡΠ΅Π»Ρ.
ΠΠΈΠ·Π½Π΅Ρ ΠΈΠ»ΠΈ Π²Π»ΠΈΡΡΠ΅Π»ΡΠ½ΡΠΉ ΡΠ΅Π»ΠΎΠ²Π΅ΠΊ Π±ΡΠ΄Π΅Ρ ΡΠ΅ΠΌ, ΠΊΡΠΎ Π±ΡΠ΄Π΅Ρ ΠΈΠ½Π²Π΅ΡΡΠΈΡΠΎΠ²Π°ΡΡ Π² ΡΠ°Π·ΡΠ°Π±ΠΎΡΠΊΡ ΠΏΡΠ΅Π΄Π»ΠΎΠΆΠ΅Π½ΠΈΡ, ΠΈΠ½Π²Π΅ΡΡΠΈΡΠΎΠ²Π°Π½ΠΈΠ΅ Π² ΠΌΠ°ΡΠΊΠ΅ΡΠΈΠ½Π³ ΠΈ ΡΠΎΠ·Π΄Π°Π½ΠΈΠ΅ ΠΏΠΎΡΠ΅Π½ΡΠΈΠ°Π»ΡΠ½ΡΡ ΠΊΠ»ΠΈΠ΅Π½ΡΠΎΠ², Π½ΠΎ ΠΎΠ½ Π±Π»ΠΈΠΆΠ΅ ΠΊ Π·Π°ΠΊΠ»ΡΡΠΈΡΠ΅Π»ΡΠ½ΠΎΠΌΡ ΡΡΠ°ΠΏΡ ΠΈ Π·Π°ΠΊΡΡΠ²Π°Π΅Ρ ΡΠ΄Π΅Π»ΠΊΡ.ΠΠ½ΠΈ ΡΠΎΠ·ΠΈΠ΄Π°ΡΠ΅Π»ΠΈ Π΄ΠΎΠΆΠ΄Ρ.
Π‘Π²ΠΎΠ΄ΠΊΠ°
High Ticket Closer β’ — ΡΡΠΎ ΠΏΡΠΎΡΠ΅ΡΡΠΈΠΎΠ½Π°Π» ΠΏΠΎ ΠΏΡΠΎΠ΄Π°ΠΆΠ°ΠΌ, ΠΊΠΎΡΠΎΡΡΠΉ ΠΏΡΠ΅Π΄Π»Π°Π³Π°Π΅Ρ ΡΠ΅ΡΠ΅Π½ΠΈΡ ΠΏΡΠΎΠ±Π»Π΅ΠΌ ΠΏΠΎΡΠ΅Π½ΡΠΈΠ°Π»ΡΠ½ΠΎΠ³ΠΎ ΠΊΠ»ΠΈΠ΅Π½ΡΠ°. ΠΠ½ΠΈ Π·Π°ΠΊΡΡΠ²Π°ΡΡ Π²Ρ ΠΎΠ΄ΡΡΠΈΠ΅ Π·Π²ΠΎΠ½ΠΊΠΈ ΠΏΠΎ ΡΠ΅Π»Π΅ΡΠΎΠ½Ρ Ρ Π²ΡΡΠΎΠΊΠΈΠΌΠΈ ΠΏΡΠ΅Π΄Π»ΠΎΠΆΠ΅Π½ΠΈΡΠΌΠΈ ΠΈ Π»ΡΠ±ΡΡ ΠΏΠΎΠΌΠΎΠ³Π°ΡΡ Π΄ΡΡΠ³ΠΈΠΌ Π»ΡΠ΄ΡΠΌ.
Π§ΡΠΎΠ±Ρ ΡΡΠ°ΡΡ ΡΡΠ°ΡΡΠ½ΠΈΠΊΠΎΠΌ High Ticket Closer β’ , Π²Ρ Π΄ΠΎΠ»ΠΆΠ½Ρ ΠΏΡΠΎΠΉΡΠΈ ΡΠ΅ΠΌΠΈΠ½Π΅Π΄Π΅Π»ΡΠ½ΡΠΉ ΠΎΠ½Π»Π°ΠΉΠ½-ΠΊΡΡΡ, ΠΊΠΎΡΠΎΡΡΠΉ Π½Π°ΡΡΠΈΡ Π²Π°Ρ ΠΌΡΡΠ»Π΅Π½ΠΈΡ ΠΈ Π½Π°Π²ΡΠΊΠ°ΠΌ ΠΏΡΠΎΠ΄Π°ΠΆ, Π½Π΅ΠΎΠ±Ρ ΠΎΠ΄ΠΈΠΌΡΠΌ Π΄Π»Ρ Π·Π°ΠΊΡΡΡΠΈΡ ΠΏΡΠ΅ΠΌΠΈΠ°Π»ΡΠ½ΡΡ ΠΏΡΠ΅Π΄Π»ΠΎΠΆΠ΅Π½ΠΈΠΉ.
Π Π΄ΠΎΠΏΠΎΠ»Π½Π΅Π½ΠΈΠ΅ ΠΊ ΠΎΠ±ΡΡΠ΅Π½ΠΈΡ ΠΏΡΠΎΠ΄Π°ΠΆΠ°ΠΌ ΠΈ ΠΌΡΡΠ»Π΅Π½ΠΈΡ Π²Π°ΠΌ ΠΏΠΎΡΡΠ΅Π±ΡΡΡΡΡ ΠΏΠ΅ΡΠ΅Π΄Π°Π²Π°Π΅ΠΌΡΠ΅ Π²Π°ΠΆΠ½ΡΠ΅ Π½Π°Π²ΡΠΊΠΈ ΡΡΠ΅Π½ΠΈΡ, ΠΏΠΈΡΡΠΌΠ°, ΠΌΠ°ΡΠ΅ΠΌΠ°ΡΠΈΠΊΠΈ, ΡΠ΅Ρ Π½ΠΈΡΠ΅ΡΠΊΠΈΡ ΠΈ Π΄ΡΡΠ³ΠΈΡ Π½Π°Π²ΡΠΊΠΎΠ² ΠΌΠ΅ΠΆΠ»ΠΈΡΠ½ΠΎΡΡΠ½ΠΎΠ³ΠΎ ΠΎΠ±ΡΠ΅Π½ΠΈΡ. Π£ΡΡΠ½ΠΎΠ΅ ΠΎΠ±ΡΠ΅Π½ΠΈΠ΅ Π½Π°ΠΈΠ±ΠΎΠ»Π΅Π΅ Π²Π°ΠΆΠ½ΠΎ Π΄Π»Ρ ΡΠ±Π»ΠΈΠΆΠ΅Π½ΠΈΡ.
ΠΠ°ΠΊ ΠΏΡΠΎΡΠ΅ΡΡΠΈΠΎΠ½Π°Π»ΡΠ½ΡΠΉ ΠΏΡΠΎΠ΄Π°Π²Π΅Ρ, Π²Ρ ΠΈΠΌΠ΅Π΅ΡΠ΅ Π±ΠΎΠ»ΡΡΡΡ Π°Π²ΡΠΎΠ½ΠΎΠΌΠΈΡ Π² ΡΠ²ΠΎΠ΅ΠΉ ΡΠ°Π±ΠΎΡΠ΅ΠΉ ΡΠΈΡΡΠ°ΡΠΈΠΈ. ΠΡ ΠΌΠΎΠΆΠ΅ΡΠ΅ Π²ΡΠ±ΡΠ°ΡΡ ΡΠ²ΠΎΠ΅ ΡΠ°Π±ΠΎΡΠ΅Π΅ Π²ΡΠ΅ΠΌΡ, Π° ΡΠ°ΠΊΠΆΠ΅ ΡΠ΅Ρ , Π΄Π»Ρ ΠΊΠΎΠ³ΠΎ Π²Ρ Ρ ΠΎΡΠΈΡΠ΅ Π·Π°ΠΊΡΡΡΡ. ΠΡ ΠΌΠΎΠΆΠ΅ΡΠ΅ ΡΠ°ΠΌΠΈ ΡΠ²ΡΠ·Π°ΡΡΡΡ Ρ Π²Π»ΠΈΡΡΠ΅Π»ΡΠ½ΡΠΌΠΈ Π»ΠΈΡΠ°ΠΌΠΈ ΠΈΠ»ΠΈ ΠΎΡΠ²Π΅ΡΠΈΡΡ Π½Π° ΡΠ΅ΠΊΠ»Π°ΠΌΡ Π΄Π»Ρ ΠΏΡΠΎΠ΄Π°Π²ΡΠΎΠ². ΠΠΎΠ·ΠΆΠ΅ Π² ΡΡΠΎΠΌ Π³ΠΎΠ΄Ρ ΠΊΠ²Π°Π»ΠΈΡΠΈΡΠΈΡΠΎΠ²Π°Π½Π½ΡΠ΅ Π΄ΠΎΠ²ΠΎΠ΄ΡΠΈΠΊΠΈ ΡΠΌΠΎΠ³ΡΡ ΠΈΡΠΊΠ°ΡΡ ΠΊΠ²Π°Π»ΠΈΡΠΈΡΠΈΡΠΎΠ²Π°Π½Π½ΡΡ Π²Π»ΠΈΡΡΠ΅Π»ΡΠ½ΡΡ Π»ΠΈΡ ΠΈ ΠΏΡΠ΅Π΄ΠΏΡΠΈΡΡΠΈΠΉ Π½Π° ΠΏΠ»Π°ΡΡΠΎΡΠΌΠ΅ Closers.com.
ΠΡΠ΄ΡΡΠ΅Π΅ High Ticket Closing β’ ΡΠ²Π΅ΡΠ»ΠΎΠ΅, ΠΏΠΎΡΠΊΠΎΠ»ΡΠΊΡ Π³ΠΈΠ³-ΡΠΊΠΎΠ½ΠΎΠΌΠΈΠΊΠ° ΡΡΠ°Π½ΠΎΠ²ΠΈΡΡΡ ΡΠΏΠΎΡΠΎΠ±ΠΎΠΌ, ΠΊΠΎΡΠΎΡΡΠΌ Π»ΡΠ΄ΠΈ Π·Π°ΡΠ°Π±Π°ΡΡΠ²Π°ΡΡ Π½Π° ΠΆΠΈΠ·Π½Ρ. ΠΠΎΠ²ΠΎΠ΄ΡΠΈΠΊΠΈ ΠΌΠΎΠ³ΡΡ ΡΠ°Π±ΠΎΡΠ°ΡΡ ΠΏΠΎΠ»Π½ΡΠΉ ΠΈΠ»ΠΈ Π½Π΅ΠΏΠΎΠ»Π½ΡΠΉ ΡΠ°Π±ΠΎΡΠΈΠΉ Π΄Π΅Π½Ρ, ΠΈΠΌΠ΅Ρ ΡΠ²ΠΎΠ±ΠΎΠ΄Ρ Π±ΡΡΡ ΡΠ°ΠΌΠΈΠΌ ΡΠΎΠ±ΠΎΠΉ ΠΈ Π²Π·ΡΡΡ ΡΠ²ΠΎΠ΅ ΡΠΈΠ½Π°Π½ΡΠΎΠ²ΠΎΠ΅ Π±ΡΠ΄ΡΡΠ΅Π΅ Π² ΡΠ²ΠΎΠΈ ΡΡΠΊΠΈ.
ΠΡΡΠΎΠΊΠΈΠ΅ ΠΏΡΠΎΠ΄Π°ΠΆΠΈ ΠΈ Π·Π°ΠΊΡΡΡΠΈΠ΅ ΠΏΡΠΎΠ΄Π°ΠΆ — ΡΡΠΎ ΠΌΠΎΠ΄Π΅Π»ΠΈ ΠΏΡΠΎΠ΄Π°ΠΆ, ΠΊΠΎΡΠΎΡΡΠ΅ ΠΌΠΎΠΆΠ½ΠΎ ΠΏΡΠΈΠΌΠ΅Π½ΡΡΡ Π² Π»ΡΠ±ΠΎΠΉ ΠΎΡΡΠ°ΡΠ»ΠΈ, Π±ΡΠ΄Ρ ΡΠΎ ΠΊΠΎΠ½ΡΡΠ»ΡΡΠ°Π½Ρ, ΠΌΠ΅Π½Π΅Π΄ΠΆΠ΅Ρ ΠΏΠΎ ΠΏΡΠΎΠ΄Π°ΠΆΠ°ΠΌ ΠΈΠ»ΠΈ ΠΏΠΎΡΡΠ΅Π΄Π½ΠΈΠΊ Π² ΡΡΡΠ°ΡΠ΅Π³ΠΈΡΠ΅ΡΠΊΠΎΠΌ ΠΏΠ°ΡΡΠ½Π΅ΡΡΡΠ²Π΅. ΠΠ½ΠΈΠΌΠ°ΡΠ΅Π»ΡΠ½ΠΎ ΠΏΠΎΡΠΌΠΎΡΡΠΈΡΠ΅ ΡΡΠΎΡ , ΡΡΠΎΠ±Ρ ΡΠ·Π½Π°ΡΡ, ΠΊΠ°ΠΊ ΡΠ°Π·Π²ΠΈΡΡ ΡΡΠΎΡ Π½Π°Π±ΠΎΡ Π½Π°Π²ΡΠΊΠΎΠ² ΠΈ Π²Π½Π΅Π΄ΡΠΈΡΡ Π΅Π³ΠΎ Π² ΡΡΡΠ΅ΡΡΠ²ΡΡΡΡΡ Π±ΠΈΠ·Π½Π΅Ρ-ΠΌΠΎΠ΄Π΅Π»Ρ.
ΠΠ°ΠΊ ΠΎΡΡΠ΅Π³ΡΠ»ΠΈΡΠΎΠ²Π°ΡΡ ΠΏΠ½Π΅Π²ΠΌΠ°ΡΠΈΡΠ΅ΡΠΊΠΈΠΉ Π΄Π²Π΅ΡΠ½ΠΎΠΉ Π΄ΠΎΠ²ΠΎΠ΄ΡΠΈΠΊ Π½Π° ΡΡΠΎΡΠΌΠΎΠ²ΠΎΠΉ Π΄Π²Π΅ΡΠΈ
(SerPhoto, DepositPhotos)
ΠΠ΅Π΄Π°Π²Π½ΠΎ ΠΌΡ ΡΡΡΠ°Π½ΠΎΠ²ΠΈΠ»ΠΈ ΡΡΠΎΡΠΌΠΎΠ²ΡΡ Π΄Π²Π΅ΡΡ ΠΈ Π½Π΅ ΠΌΠΎΠΆΠ΅ΠΌ Π΅Π΅ Π·Π°ΠΊΡΡΡΡ. ΠΠΎΠ³Π΄Π° ΠΌΡ ΠΎΡΠΊΡΡΠ²Π°Π΅ΠΌ Π΄Π²Π΅ΡΡ ΠΈ ΠΎΡΠΏΡΡΠΊΠ°Π΅ΠΌ, ΠΎΠ½Π° Π·Π°ΠΊΡΡΠ²Π°Π΅ΡΡΡ, Π½ΠΎ Π½Π΅ Π·Π°ΠΊΡΡΠ²Π°Π΅ΡΡΡ ΠΏΠΎΠ»Π½ΠΎΡΡΡΡ?
-Wanda
Hi Wanda,
ΠΡΡΡ Π΄Π²Π° ΡΠΏΠΎΡΠΎΠ±Π° ΡΠΏΡΠ°Π²Π»Π΅Π½ΠΈΡ ΠΏΠ½Π΅Π²ΠΌΠ°ΡΠΈΡΠ΅ΡΠΊΠΈΠΌ Π΄ΠΎΠ²ΠΎΠ΄ΡΠΈΠΊΠΎΠΌ:
- Π Π΅Π³ΡΠ»ΠΈΡΠΎΠ²ΠΊΠ° ΠΊΡΠΎΠ½ΡΡΠ΅ΠΉΠ½Π°, ΠΊΠΎΡΠΎΡΡΠΉ ΠΊΡΠ΅ΠΏΠΈΡ Π΄ΠΎΠ²ΠΎΠ΄ΡΠΈΠΊ ΠΊ Π΄Π²Π΅ΡΠΈ.
- ΠΡΠ°ΡΠ΅Π½ΠΈΠ΅ Π²ΠΈΠ½ΡΠ° Π½Π° ΠΊΠΎΠ½ΡΠ΅ Π΄ΠΎΠ²ΠΎΠ΄ΡΠΈΠΊΠ°, ΡΠ΅Π³ΡΠ»ΠΈΡΡΡΡΠ΅Π³ΠΎ ΡΠΊΠΎΡΠΎΡΡΡ Π²ΡΠΏΡΡΠΊΠ° Π²ΠΎΠ·Π΄ΡΡ Π° ΠΈΠ· ΡΠΈΠ»ΠΈΠ½Π΄ΡΠ°.
ΠΡΠ»ΠΈ Π΄Π²Π΅ΡΡ Π½Π΅ Π·Π°ΠΊΡΡΠ²Π°Π΅ΡΡΡ ΠΏΠΎΠ»Π½ΠΎΡΡΡΡ, ΠΎΡΡΠ΅Π³ΡΠ»ΠΈΡΡΠΉΡΠ΅ ΡΠΊΠΎΠ±Ρ:
- ΠΡΠΊΡΠΎΠΉΡΠ΅ Π΄Π²Π΅ΡΡ ΠΈ ΡΠ΄Π²ΠΈΠ½ΡΡΠ΅ ΡΡΠΎΠΏΠΎΡ, ΡΡΠΎΠ±Ρ ΡΠ΄Π΅ΡΠΆΠΈΠ²Π°ΡΡ ΡΠΈΠ»ΠΈΠ½Π΄Ρ Π² ΠΎΡΠΊΡΡΡΠΎΠΌ ΠΏΠΎΠ»ΠΎΠΆΠ΅Π½ΠΈΠΈ.
- ΠΡΠ»Π°Π±ΡΡΠ΅ Π²ΠΈΠ½ΡΡ, ΠΊΠΎΡΠΎΡΡΠΌΠΈ ΠΊΡΠΎΠ½ΡΡΠ΅ΠΉΠ½ ΠΊΡΠ΅ΠΏΠΈΡΡΡ ΠΊ Π΄Π²Π΅ΡΠΈ, ΠΈ ΠΏΠ΅ΡΠ΅ΠΌΠ΅ΡΡΠΈΡΠ΅ ΠΊΡΠΎΠ½ΡΡΠ΅ΠΉΠ½ Π΄Π°Π»ΡΡΠ΅ (ΠΊ ΡΡΡΠΊΠ΅ Π΄Π²Π΅ΡΠΈ).
- ΠΠ»ΠΈ ΡΠ½ΠΈΠΌΠΈΡΠ΅ ΡΡΠΈΡΡ, ΠΊΠΎΡΠΎΡΡΠΌ ΡΠΈΠ»ΠΈΠ½Π΄Ρ ΠΊΡΠ΅ΠΏΠΈΡΡΡ ΠΊ ΠΊΡΠΎΠ½ΡΡΠ΅ΠΉΠ½Ρ, ΠΈ ΠΏΠ΅ΡΠ΅ΠΌΠ΅ΡΡΠΈΡΠ΅ Π΅Π³ΠΎ Π² ΠΎΡΠ²Π΅ΡΡΡΠΈΠ΅ ΠΏΠΎΠ΄Π°Π»ΡΡΠ΅.
ΠΡΠ»ΠΈ Π΄Π²Π΅ΡΡ Π·Π°Ρ Π»ΠΎΠΏΡΠ²Π°Π΅ΡΡΡ ΠΈΠ»ΠΈ Π·Π°ΠΊΡΡΠ²Π°Π΅ΡΡΡ ΡΠ»ΠΈΡΠΊΠΎΠΌ ΠΌΠ΅Π΄Π»Π΅Π½Π½ΠΎ, ΠΎΡΡΠ΅Π³ΡΠ»ΠΈΡΡΠΉΡΠ΅ ΠΏΠ½Π΅Π²ΠΌΠ°ΡΠΈΡΠ΅ΡΠΊΠΈΠΉ ΡΠΈΠ»ΠΈΠ½Π΄Ρ:
- Π§ΡΠΎΠ±Ρ Π·Π°ΠΌΠ΅Π΄Π»ΠΈΡΡ Π·Π°ΠΊΡΡΡΠΈΠ΅, ΠΏΠΎΠ²Π΅ΡΠ½ΠΈΡΠ΅ Π²ΠΈΠ½Ρ Π½Π° ΠΊΠΎΠ½ΡΠ΅ ΠΏΠ½Π΅Π²ΠΌΠ°ΡΠΈΡΠ΅ΡΠΊΠΎΠ³ΠΎ ΡΠΈΠ»ΠΈΠ½Π΄ΡΠ° ΠΏΠΎ ΡΠ°ΡΠΎΠ²ΠΎΠΉ ΡΡΡΠ΅Π»ΠΊΠ΅.
- Π§ΡΠΎΠ±Ρ ΡΡΠΊΠΎΡΠΈΡΡ Π·Π°ΠΊΡΡΠ²Π°Π½ΠΈΠ΅, ΠΏΠΎΠ²Π΅ΡΠ½ΠΈΡΠ΅ Π²ΠΈΠ½Ρ ΠΏΡΠΎΡΠΈΠ² ΡΠ°ΡΠΎΠ²ΠΎΠΉ ΡΡΡΠ΅Π»ΠΊΠΈ.
ΠΡΠ»ΠΈ ΡΠ΅Π³ΡΠ»ΠΈΡΠΎΠ²ΠΊΠ° Π½Π΅ ΠΏΠΎΠΌΠΎΠ³Π°Π΅Ρ, Π²ΠΎΠ·ΠΌΠΎΠΆΠ½ΠΎ, Π½Π΅ΠΎΠ±Ρ ΠΎΠ΄ΠΈΠΌΠΎ Π·Π°ΠΌΠ΅Π½ΠΈΡΡ Π΄ΠΎΠ²ΠΎΠ΄ΡΠΈΠΊ. ΠΠΎΠ·ΡΠΌΠΈΡΠ΅ ΡΠ²ΠΎΠΉ ΡΡΠ°ΡΡΠΉ Π΄ΠΎΠ²ΠΎΠ΄ΡΠΈΠΊ Ρ ΡΠΎΠ±ΠΎΠΉ Π² ΡΠ΅Π½ΡΡ ΠΏΠΎ ΡΠ΅ΠΌΠΎΠ½ΡΡ Π΄ΠΎΠΌΠ°, ΡΡΠΎΠ±Ρ Π±ΡΡΡ ΡΠ²Π΅ΡΠ΅Π½Π½ΡΠΌ, ΡΡΠΎ Π½ΠΎΠ²ΡΠΉ Π΄ΠΎΠ²ΠΎΠ΄ΡΠΈΠΊ ΠΏΠΎΠ΄ΠΎΠΉΠ΄Π΅Ρ ΠΊ ΠΎΠ±ΠΎΡΡΠ΄ΠΎΠ²Π°Π½ΠΈΡ Π²Π°ΡΠ΅ΠΉ Π΄Π²Π΅ΡΠΈ. ΠΠ΅ΠΊΠΎΡΠΎΡΡΠ΅ ΠΏΠ½Π΅Π²ΠΌΠ°ΡΠΈΡΠ΅ΡΠΊΠΈΠ΅ Π΄Π²Π΅ΡΠ½ΡΠ΅ Π΄ΠΎΠ²ΠΎΠ΄ΡΠΈΠΊΠΈ ΡΠ°Π±ΠΎΡΠ°ΡΡ Π»ΡΡΡΠ΅ Π΄ΡΡΠ³ΠΈΡ , ΠΏΠΎΡΡΠΎΠΌΡ ΠΊΡΠΏΠΈΡΠ΅ ΠΊΠ°ΡΠ΅ΡΡΠ²Π΅Π½Π½ΡΠΉ.
Π£Π΄Π°ΡΠΈ Ρ Π²Π°ΡΠΈΠΌ ΠΏΡΠΎΠ΅ΠΊΡΠΎΠΌ,
ΠΠΎΠΏΠΎΠ»Π½ΠΈΡΠ΅Π»ΡΠ½Π°Ρ ΠΈΠ½ΡΠΎΡΠΌΠ°ΡΠΈΡ
ΠΡΠ΅Π΄ΡΠ΄ΡΡΠ°Ρ ΡΡΠ°ΡΡΡΠΠ²ΠΎΡΠ½ΠΎΠΉ ΡΠ°Π΄: Π²ΡΡΠ°ΡΠΈΠ²Π°Π½ΠΈΠ΅ ΠΎΠ²ΠΎΡΠ΅ΠΉ Π² ΠΏΡΠΎΡ Π»Π°Π΄Π½ΡΠΉ ΡΠ΅Π·ΠΎΠ½Π‘Π»Π΅Π΄ΡΡΡΠ°Ρ ΡΡΠ°ΡΡΡΠΠ΅Π»Π΅Π½Π΅Π½ΠΈΠ΅ Π»ΡΠΆΠ°ΠΉΠΊΠΈ ΠΊ Π²Π΅ΡΠ½Π΅ 2009 ΠΠΎΠ±Π΅Π΄ΠΈΡΠ΅Π»Ρ ΡΠΎΠ·ΡΠ³ΡΡΡΠ° ΠΏΠΎΠ΄Π°ΡΠΊΠΎΠ²
ΠΠΏΠΈΡΠ°ΡΡΡ Π½Π° ΡΠ²ΠΎΡ 40-Π»Π΅ΡΠ½ΡΡ ΠΊΠ°ΡΡΠ΅ΡΡ Π² ΠΎΠ±Π»Π°ΡΡΠΈ ΠΌΠΎΠ΄Π΅ΡΠ½ΠΈΠ·Π°ΡΠΈΠΈ, ΠΡΠ½Π½ΠΈ Π±ΡΠ» ΡΠΊΡΠΏΠ΅ΡΡΠΎΠΌ ΠΏΠΎ Π±Π»Π°Π³ΠΎΡΡΡΡΠΎΠΉΡΡΠ²Ρ Π΄ΠΎΠΌΠ° Π½Π° ΠΊΠ°Π½Π°Π»Π°Ρ CBS The Early Show ΠΈ The Weather Channel Π±ΠΎΠ»Π΅Π΅ ΡΠ΅ΠΌ Π΄Π΅ΡΡΡΠΈΠ»Π΅ΡΠΈΠ΅.ΠΠ³ΠΎ ΠΎΠ±ΡΠΈΡΠ½ΡΠΉ ΠΏΡΠ°ΠΊΡΠΈΡΠ΅ΡΠΊΠΈΠΉ ΠΎΠΏΡΡ ΠΈ ΠΏΠΎΠ½ΠΈΠΌΠ°Π½ΠΈΠ΅ ΠΎΡΡΠ°ΡΠ»ΠΈ Π΄Π΅Π»Π°ΡΡ Π΅Π³ΠΎ Π½Π΅Π·Π°ΠΌΠ΅Π½ΠΈΠΌΡΠΌ ΠΏΠΎΠΌΠΎΡΠ½ΠΈΠΊΠΎΠΌ ΠΏΠΎ Π²ΡΠ΅ΠΌ Π²ΠΎΠΏΡΠΎΡΠ°ΠΌ, ΡΠ²ΡΠ·Π°Π½Π½ΡΠΌ Ρ Π΄ΠΎΠΌΠΎΠΌ — ΠΎΡ ΡΠΎΠ²Π΅ΡΠΎΠ² ΠΏΠΎ ΠΏΡΠΎΡΡΠΎΠΌΡ ΡΠ΅ΠΌΠΎΠ½ΡΡ Π΄ΠΎ ΠΏΠΎΠ»Π½ΠΎΠΉ ΡΠ΅ΠΊΠΎΠ½ΡΡΡΡΠΊΡΠΈΠΈ ΠΈ ΠΏΠΎΠΌΠΎΡΠΈ Π΄ΠΎΠΌΠΎΠ²Π»Π°Π΄Π΅Π»ΡΡΠ°ΠΌ Π² ΠΏΠΎΠ΄Π³ΠΎΡΠΎΠ²ΠΊΠ΅ ΠΈΡ Π΄ΠΎΠΌΠΎΠ² ΠΊ ΡΠΊΡΡΡΠ΅ΠΌΠ°Π»ΡΠ½ΡΠΌ ΠΏΠΎΠ³ΠΎΠ΄Π½ΡΠΌ ΡΡΠ»ΠΎΠ²ΠΈΡΠΌ ΠΈ ΡΠ΅Π·ΠΎΠ½Π°ΠΌ.
Touch ‘n Hold | Π‘Π°ΠΌΡΠΉ ΡΠ΄ΠΎΠ±Π½ΡΠΉ Π΄ΠΎΠ²ΠΎΠ΄ΡΠΈΠΊ Π² ΠΌΠΈΡΠ΅
«ΠΡΠ΅ ΡΡΠΈ ΡΡΡΠ°Π½ΠΎΠ²ΠΈΠ»ΠΈ ΡΠ΅Π³ΠΎΠ΄Π½Ρ. ΠΠ°ΠΆΠ΅ ΠΈΡΠΏΠΎΠ»ΡΠ·ΠΎΠ²Π°Π½ΠΈΠ΅ ΠΎΠ΄Π½ΠΎΠ³ΠΎ ΡΠΎΠ»ΡΠΊΠΎ Π²Π΅ΡΡ Π° Π±ΡΠ»ΠΎ ΡΠ»ΠΈΡΠΊΠΎΠΌ ΠΊΡΡΡΠΎ ΠΈ Π³Π»Π°Π΄ΠΊΠΎ! ΠΡΠΏΠΎΠ»ΡΠ·ΠΎΠ²Π°Π½ΠΈΠ΅ ΠΎΠ±ΠΎΠΈΡ ΠΏΠΎΡ ΠΎΠΆΠ΅ Π½Π° ΠΌΠ°ΡΠ»ΠΎ.Β«
[ΠΠ΄ Π£., Π₯ΠΎΡΡΠΎΠ½, ΠΠΆΠΎΡΠ΄ΠΆΠΈΡ]
Β«ΠΠ½Π΅ ΡΡΠΎ Π½ΡΠ°Π²ΠΈΡΡΡ — ΡΡΠΎ ΡΠ°Π½ΡΠ°ΡΡΠΈΠΊΠ°! Π£ ΠΌΠ΅Π½Ρ Π±ΡΠ»ΠΈ ΠΏΡΠΎΠ±Π»Π΅ΠΌΡ ΡΠΎ ΡΠΏΠΈΠ½ΠΎΠΉ Π² ΠΏΡΠΎΡΠ»ΠΎΠΌ, ΠΈ ΠΌΠ½Π΅ Π½ΡΠ°Π²ΠΈΡΡΡ, ΡΡΠΎ ΡΠ΅ΠΏΠ΅ΡΡ Ρ ΠΌΠΎΠ³Ρ ΠΏΡΠΎΡΡΠΎ ΠΈΡΠΏΠΎΠ»ΡΠ·ΠΎΠ²Π°ΡΡ Π½ΠΎΠ³Ρ, ΡΡΠΎΠ±Ρ Π΄Π΅ΡΠΆΠ°ΡΡ Π΄Π²Π΅ΡΡ ΠΎΡΠΊΡΡΡΠΎΠΉ (Ρ ΠΌΠ΅Π½Ρ Π²Π°Ρ ΠΏΡΠΎΠ΄ΡΠΊΡ Π²Π½ΠΈΠ·Ρ). Π― Π½Π΅Π½Π°Π²ΠΈΠ΄Π΅Π» ΡΠ³ΠΈΠ±Π°ΡΡΡΡ Π²Π½ΠΈΠ·, ΡΡΠΎΠ±Ρ Π²ΠΎΠ·ΠΈΡΡΡΡ ΡΠΎ ΡΡΠ°ΡΡΠΌ Π΄ΠΎΠ²ΠΎΠ΄ΡΠΈΠΊΠΎΠΌ «.
[Π‘Π°ΡΠ° Π₯, ΠΡΠ°Π½Π΄-Π Π°ΠΏΠΈΠ΄Ρ, ΠΠΈΡΠΈΠ³Π°Π½]
«Π― ΡΡΠΈΡΠ°Ρ, ΡΡΠΎ Π²Π°Ρ ΠΏΡΠΎΠ΄ΡΠΊΡ Π²Π΅Π»ΠΈΠΊΠΎΠ»Π΅ΠΏΠ΅Π½ ΠΈ ΠΏΡΠ΅ΠΊΡΠ°ΡΠ½ΠΎ ΡΠ°Π±ΠΎΡΠ°Π΅Ρ.Π‘ΡΠ°ΡΡΠΉ ΡΠΈΠΏ Π½ΠΈΠΊΠΎΠ³Π΄Π° Π½Π΅ Π΄Π΅ΡΠΆΠ°Π» 100%, Π½ΠΎ ΡΡΠΎ ΠΎΡΠ΅Π½Ρ ΠΏΡΠΎΡΡΠΎ Β».
[DE, Derby, CT]
Β«Π― Π·Π°ΡΠ°Π±Π°ΡΡΠ²Π°Ρ Π½Π° ΠΆΠΈΠ·Π½Ρ ΠΈΠ³ΡΠΎΠΉ Π½Π° Π²ΠΈΠΎΠ»ΠΎΠ½ΡΠ΅Π»ΠΈ, ΠΈ Π±Π»Π°Π³ΠΎΠ΄Π°ΡΡ Π²Π°ΡΠ΅ΠΌΡ ΠΈΠ·Π΄Π΅Π»ΠΈΡ Π²Ρ ΠΎΠ΄ ΠΈ Π²ΡΡ ΠΎΠ΄ ΠΈΠ· Π΄ΠΎΠΌΠ° Π΄Π»Ρ ΠΌΠ΅Π½Ρ ΠΈ ΠΌΠΎΠ΅Π³ΠΎ ΠΈΠ½ΡΡΡΡΠΌΠ΅Π½ΡΠ° Π½Π°ΠΌΠ½ΠΎΠ³ΠΎ ΠΏΡΠΎΡΠ΅. Π Π°Π½ΡΡΠ΅ ΠΌΠ½Π΅ ΠΏΡΠΈΡ ΠΎΠ΄ΠΈΠ»ΠΎΡΡ ΠΊΠ»Π°ΡΡΡ Π΅Π³ΠΎ ΠΏΠ΅ΡΠ΅Π΄ Π²Ρ ΠΎΠ΄ΠΎΠΌ ΠΈ Π²ΡΡ ΠΎΠ΄ΠΎΠΌ. Π’Π΅ΠΏΠ΅ΡΡ ΡΡΠΎ ΡΠΆΠ΅ Π½Π΅ ΡΠ°ΠΊΒ».
[Leah H, Lexington, KY]
«ΠΡΠΎ Π±ΡΠ»ΠΎ ΡΠ°ΠΊ Π»Π΅Π³ΠΊΠΎ ΡΡΡΠ°Π½ΠΎΠ²ΠΈΡΡ.ΠΠ° ΡΡΠΎ Ρ ΠΌΠ΅Π½Ρ ΡΡΠ»ΠΎ ΠΌΠΈΠ½ΡΡ ΠΏΡΡΡ. Π’Π΅ΠΏΠ΅ΡΡ Ρ Π±ΠΎΠ»ΡΡΠ΅ Π½Π΅ Π±Π΅ΡΠΏΠΎΠΊΠΎΡΡΡ ΠΎ ΠΏΠ°Π»ΡΡΠ°Ρ ΠΌΠΎΠΈΡ Π΄Π΅ΡΠ΅ΠΉ Ρ Π΄Π²Π΅ΡΡΡ. Π― ΠΎΡΠ΅Π½Ρ Π΄ΠΎΠ²ΠΎΠ»Π΅Π½ Π²Π°ΡΠΈΠΌ ΡΠΎΠ²Π°ΡΠΎΠΌ Β».
[ΠΠ°ΡΠΈΡ Π‘., ΠΠ΅ΡΡ-Π₯Π΅ΠΉΠ²Π΅Π½, ΠΠΎΠ½Π½Π΅ΠΊΡΠΈΠΊΡΡ]
Β«ΠΡΠΎ Π½Π°ΡΡΠΎΠ»ΡΠΊΠΎ ΠΏΡΠΎΠ΄Π²ΠΈΠ½ΡΡΠΎ, ΠΈ ΡΡΠΎ ΡΠ°ΠΊΠΎΠΉ ΡΠΊΠ°ΡΠΎΠΊ Π² ΡΠ΅Ρ Π½ΠΎΠ»ΠΎΠ³ΠΈΠΈ, ΡΡΠΎ Ρ Π½Π΅ ΠΌΠΎΠ³Ρ ΠΏΡΠ΅Π΄ΡΡΠ°Π²ΠΈΡΡ ΡΠ΅Π±Π΅ ΠΏΠΎΠ΄Ρ ΠΎΠ΄ΡΡΠ΅Π³ΠΎ ΡΠ»ΡΡΡΠ΅Π½ΠΈΡΒ»
[ΠΠ»Π°Π½ Π€, Π€ΡΡΡΠΈΠ»Π΄, ΠΠΎΠ½Π½Π΅ΠΊΡΠΈΠΊΡΡ]
Β«Π‘ Π½ΠΈΠΌ ΠΎΡΠ΅Π½Ρ Π»Π΅Π³ΠΊΠΎ ΡΠ°Π±ΠΎΡΠ°ΡΡ — ΠΎΡΠ»ΠΈΡΠ½ΠΎ ΠΏΠΎΠ΄Ρ ΠΎΠ΄ΠΈΡ Π΄Π»Ρ ΡΠ΅Ρ , Ρ ΠΊΠΎΠ³ΠΎ ΠΌΠΎΠ³ΡΡ Π±ΡΡΡ ΠΏΡΠΎΠ±Π»Π΅ΠΌΡ Ρ ΡΠ°Π±ΠΎΡΠΎΠΉ ΡΡΠΊΠ°ΠΌΠΈ (Π°ΡΡΡΠΈΡ).Β«
[Ana C, Gales Ferry, CT]
Β«ΠΠ΅Π΄Π°Π²Π½ΠΎ Ρ ΡΡΡΠ°Π½ΠΎΠ²ΠΈΠ» Π΄Π»Ρ Π²Π°Ρ Π΄Π²Π° ΠΊΠΎΠΌΠΏΠ»Π΅ΠΊΡΠ° Π΄Π²Π΅ΡΠ½ΡΡ Π·Π°ΠΌΠΊΠΎΠ². ΠΠ½ΠΈ ΠΏΠ΅ΡΠ²ΠΎΠΊΠ»Π°ΡΡΠ½ΡΠ΅Β».
[ΠΠΆΠ΅ΠΊ, Π‘ΠΏΠ°ΡΠΊΡ, ΠΠ΅Π²Π°Π΄Π°]
Β«ΠΠ½Π΅ Π½ΡΠ°Π²ΠΈΡΡΡ! ΠΡΠΌΠ°Ρ, Π²Π°ΠΌ ΡΡΠΎΠΈΡ ΠΏΠΎΠΉΡΠΈ ΠΈ Π½Π° ΠΏΡΠΎΠΈΠ·Π²ΠΎΠ΄ΠΈΡΠ΅Π»Π΅ΠΉ Π΄Π²Π΅ΡΠ΅ΠΉ, ΡΡΠΎΠ±Ρ Π²ΠΊΠ»ΡΡΠΈΡΡ ΠΈΡ Π² ΡΠ²ΠΎΡ ΡΠΏΠ°ΠΊΠΎΠ²ΠΊΡΒ»
[ΠΠΆΠΈΠΌ Π€., ΠΠ»ΠΈΡΡΠΎΠ½-ΠΠ°ΡΠΊ, ΠΡΡ-ΠΠΎΡΠΊ]
«ΠΠΎ-Π²ΠΈΠ΄ΠΈΠΌΠΎΠΌΡ, Π±ΠΎΠ»Π΅Π΅ Π²ΡΡΠΎΠΊΠΎΠ³ΠΎ ΠΊΠ°ΡΠ΅ΡΡΠ²Π°, ΡΠ΅ΠΌ Π°Π½Π°Π»ΠΎΠ³ΠΈΡΠ½ΡΠ΅ ΡΠΎΠ²Π°ΡΡ, ΠΏΡΠΎΠ΄Π°Π²Π°Π΅ΠΌΡΠ΅ Π² Π½Π°ΡΡΠΎΡΡΠ΅Π΅ Π²ΡΠ΅ΠΌΡ.Β«
[Π’, ΠΡΠΎΡΠΎΠ½, ΠΡΡ-ΠΠΎΡΠΊ]
Β«Π’ΠΎΠ²Π°ΡΠΎΠΌ ΠΎΡΠ΅Π½Ρ Π΄ΠΎΠ²ΠΎΠ»Π΅Π½ — Π±ΡΠ΄Ρ ΡΠ°Π΄ΠΎΠ²Π°ΡΡ Π΄ΠΎΠ»Π³ΠΎΒ».
[ΠΠΎΠ»ΠΎΡΠ΅Ρ Π., ΠΡΡ-Π₯Π΅ΠΉΠ²Π΅Π½, ΠΠΎΠ½Π½Π΅ΠΊΡΠΈΠΊΡΡ]
Β«Π‘ΠΎΠ²Π΅ΡΡΠ΅Π½Π½ΠΎ ΠΊΠ°ΠΊ Π΅ΡΡΡΒ»
[ΠΠΈΠ½ΡΠ΅Π½Ρ Π., Π£. Π₯Π΅ΠΉΠ²Π΅Π½, ΠΠΎΠ½Π½Π΅ΠΊΡΠΈΠΊΡΡ]
«ΠΎΡΠ»ΠΈΡΠ½Π°Ρ ΠΈΠ΄Π΅Ρ»
[Π Π°ΠΉΠΌΠΎΠ½Π΄ Π., Π£. Π₯Π΅ΠΉΠ²Π΅Π½, ΠΠΎΠ½Π½Π΅ΠΊΡΠΈΠΊΡΡ]
ΠΠΎΠΉ Π½ΠΎΠ²ΡΠΉ Touch ‘n Hold Smooth — Dual Kit — Heavy Duty Door Closer System ΡΠ°Π±ΠΎΡΠ°Π΅Ρ ΡΠ°Π½ΡΠ°ΡΡΠΈΡΠ΅ΡΠΊΠΈ.ΠΠΎΠΈ ΡΡΠ°ΡΡΠ΅, Π΄ΠΎΠ»ΠΆΠ½ΠΎ Π±ΡΡΡ, ΠΈΠ·Π½ΠΎΡΠ΅Π½Ρ, Π΄Π²Π΅ΡΡ Π·Π°Ρ Π»ΠΎΠΏΠ½Π΅ΡΡΡ. ΠΡΠΈ Π½ΠΎΠ²ΡΠ΅ ΠΊΠ»Π°ΡΡΠ½ΡΠ΅. ΠΠΎΠ»ΡΡΠΎΠ΅ ΡΠΏΠ°ΡΠΈΠ±ΠΎ
[ΠΠΆΠ΅ΡΡ ΠΠΆ., Π‘ΡΡΠΌΡΠΎΡΠ΄, ΠΠΎΠ½Π½Π΅ΠΊΡΠΈΠΊΡΡ]
% PDF-1.6
%
36 0 ΠΎΠ±ΡΠ΅ΠΊΡ
>
ΡΠ½Π΄ΠΎΠ±Π΄ΠΆ
xref
36 87
0000000016 00000 Π½.
0000002863 00000 Π½.
0000002964 00000 Π½.
0000003089 00000 Π½.
0000003297 00000 Π½.
0000003720 00000 Π½.
0000003860 00000 Π½.
0000004006 00000 ΠΏ.
0000004188 00000 ΠΏ.
0000004372 00000 ΠΏ.
0000004560 00000 Π½.
0000004694 00000 Π½.
0000004855 00000 Π½.
0000004904 00000 Π½.
0000005220 00000 Π½.
0000005541 00000 Π½.
0000005853 00000 ΠΏ.
0000006542 00000 Π½.
0000006705 00000 Π½.
0000006952 00000 ΠΏ.
0000007424 00000 Π½.
0000007591 00000 Π½.
0000007864 00000 Π½.
0000008427 00000 Π½.
0000008732 00000 Π½.
0000009585 00000 Π½.
0000009751 00000 ΠΏ.
0000009905 00000 Π½.
0000010292 00000 ΠΏ.
0000011106 00000 ΠΏ.
0000011277 00000 ΠΏ.
0000012127 00000 ΠΏ.
0000012305 00000 ΠΏ.
0000012461 00000 ΠΏ.
0000012689 00000 ΠΏ.
0000013127 00000 ΠΏ.
0000013794 00000 ΠΏ.
0000014678 00000 ΠΏ.
0000015487 00000 ΠΏ.
0000015587 00000 ΠΏ.
0000016430 00000 ΠΏ.
0000016492 00000 ΠΏ.
0000017261 00000 ΠΏ.
0000023387 00000 ΠΏ.
0000024712 00000 ΠΏ.
0000025253 00000 ΠΏ.
0000033674 00000 ΠΏ.
0000033792 00000 ΠΏ.
0000033986 00000 ΠΏ.
0000034155 00000 ΠΏ.
0000049673 00000 ΠΏ.
0000049768 00000 ΠΏ.
0000062161 00000 ΠΏ.
0000062300 00000 ΠΏ.
0000062500 00000 ΠΏ.
0000063028 00000 ΠΏ.
0000063446 00000 ΠΏ.
0000063646 00000 ΠΏ.
0000063790 00000 ΠΏ.
0000064134 00000 ΠΏ.
0000064320 00000 Π½.
0000079962 00000 Π½.
0000089935 00000 Π½.
0000109582 00000 ΠΏ.
0000122262 00000 Π½.
0000123348 00000 Π½.
0000124420 00000 Π½.
0000136398 00000 Π½.
0000155257 00000 Π½.
0000155441 00000 Π½.
0000155547 00000 Π½.
0000155741 00000 Π½.
0000156060 00000 Π½.
0000158823 00000 Π½.
0000159026 00000 Π½.
0000159213 00000 Π½.
0000160884 00000 Π½.
0000162726 00000 Π½.
0000183768 00000 Π½.
0000197988 00000 Π½.
0000210145 00000 Π½.
0000221747 00000 Π½.
0000221898 00000 Π½.
0000222058 00000 Π½.
0000222289 00000 Π½.
0000222755 00000 Π½.
0000002036 00000 Π½.
ΡΡΠ΅ΠΉΠ»Π΅Ρ
] >>
startxref
0
%% EOF
122 0 ΠΎΠ±ΡΠ΅ΠΊΡ
> ΠΏΠΎΡΠΎΠΊ
xb«f`d`g`Kdb @
ΠΡΠΈΠ½ΡΠΈΠΏ ΡΠ°Π±ΠΎΡΡ Π°Π²ΡΠΎΠΌΠ°ΡΠΈΡΠ΅ΡΠΊΠΎΠ³ΠΎ Π΄Π²Π΅ΡΠ½ΠΎΠ³ΠΎ Π΄ΠΎΠ²ΠΎΠ΄ΡΠΈΠΊΠ° Π£ΡΡΠ°Π½ΠΎΠ²ΠΊΠ° Π°Π²ΡΠΎΠΌΠ°ΡΠΈΡΠ΅ΡΠΊΠΎΠ³ΠΎ Π΄Π²Π΅ΡΠ½ΠΎΠ³ΠΎ Π΄ΠΎΠ²ΠΎΠ΄ΡΠΈΠΊΠ° — Π¨ΡΠ½ΡΡΠΆΡΠ½ΡΡΠΊΠΈΠΉ Π·Π°Π²ΠΎΠ΄ ΠΌΠ΅ΡΠ°Π»Π»ΠΈΡΠ΅ΡΠΊΠΈΡ ΠΈΠ·Π΄Π΅Π»ΠΈΠΉ
ΠΠ²ΡΠΎΠΌΠ°ΡΠΈΡΠ΅ΡΠΊΠΈΠΉ Π΄Π²Π΅ΡΠ½ΠΎΠΉ Π΄ΠΎΠ²ΠΎΠ΄ΡΠΈΠΊ, ΠΊΠΎΡΠΎΡΡΠΉ ΠΎΡΠ»ΠΈΡΠ°Π΅ΡΡΡ ΠΎΡ ΠΎΠ±ΡΡΠ½ΠΎΠ³ΠΎ Π΄Π²Π΅ΡΠ½ΠΎΠ³ΠΎ Π΄ΠΎΠ²ΠΎΠ΄ΡΠΈΠΊΠ°, ΠΎΠ±Π΅ΡΠΏΠ΅ΡΠΈΠ²Π°Π΅Ρ Π°ΠΌΠΎΡΡΠΈΠ·Π°ΡΠΈΡ Π·Π° ΡΡΠ΅Ρ Π΄ΡΠΎΡΡΠ΅Π»ΠΈΡΠΎΠ²Π°Π½ΠΈΡ ΠΆΠΈΠ΄ΠΊΠΎΡΡΡ Π² Π°Π²ΡΠΎΠΌΠ°ΡΠΈΡΠ΅ΡΠΊΠΎΠΌ Π΄ΠΎΠ²ΠΎΠ΄ΡΠΈΠΊΠ΅.ΠΡΠ°ΠΊ, Π²Ρ ΠΊΠΎΠ³Π΄Π°-Π½ΠΈΠ±ΡΠ΄Ρ ΠΏΠΎΠ½ΠΈΠΌΠ°Π»ΠΈ ΠΏΡΠΈΠ½ΡΠΈΠΏ ΡΠ°Π±ΠΎΡΡ Π°Π²ΡΠΎΠΌΠ°ΡΠΈΡΠ΅ΡΠΊΠΈΡ Π΄ΠΎΠ²ΠΎΠ΄ΡΠΈΠΊΠΎΠ² Π΄Π²Π΅ΡΠ΅ΠΉ ΠΈ ΡΡΡΠ°Π½ΠΎΠ²ΠΊΡ Π°Π²ΡΠΎΠΌΠ°ΡΠΈΡΠ΅ΡΠΊΠΈΡ Π΄ΠΎΠ²ΠΎΠ΄ΡΠΈΠΊΠΎΠ² Π΄Π²Π΅ΡΠ΅ΠΉ? ΠΠ°Π»Π΅Π΅ ΠΌΡ ΠΏΡΠ΅Π΄ΡΡΠ°Π²ΠΈΠΌ Π°Π²ΡΠΎΠΌΠ°ΡΠΈΡΠ΅ΡΠΊΠΈΠ΅ Π΄Π²Π΅ΡΠ½ΡΠ΅ Π΄ΠΎΠ²ΠΎΠ΄ΡΠΈΠΊΠΈ.
ΠΠ²ΡΠΎΠΌΠ°ΡΠΈΡΠ΅ΡΠΊΠΈΠΉ Π΄Π²Π΅ΡΠ½ΠΎΠΉ Π΄ΠΎΠ²ΠΎΠ΄ΡΠΈΠΊ
ΠΠ²Π΅Π΄Π΅Π½ΠΈΠ΅ Π°Π²ΡΠΎΠΌΠ°ΡΠΈΡΠ΅ΡΠΊΠΎΠ³ΠΎ Π΄Π²Π΅ΡΠ½ΠΎΠ³ΠΎ Π΄ΠΎΠ²ΠΎΠ΄ΡΠΈΠΊΠ°
Π‘ΡΡΡ ΠΊΠΎΠ½ΡΠ΅ΠΏΡΠΈΠΈ Π΄ΠΈΠ·Π°ΠΉΠ½Π° ΡΠΎΠ²ΡΠ΅ΠΌΠ΅Π½Π½ΡΡ Π³ΠΈΠ΄ΡΠ°Π²Π»ΠΈΡΠ΅ΡΠΊΠΈΡ Π³ΠΈΠ΄ΡΠ°Π²Π»ΠΈΡΠ΅ΡΠΊΠΈΡ Π΄Π²Π΅ΡΠ½ΡΡ Π΄ΠΎΠ²ΠΎΠ΄ΡΠΈΠΊΠΎΠ² ΡΠΎΡΡΠΎΠΈΡ Π² ΡΠΎΠΌ, ΡΡΠΎΠ±Ρ ΡΠ΅Π°Π»ΠΈΠ·ΠΎΠ²Π°ΡΡ ΠΊΠΎΠ½ΡΡΠΎΠ»Ρ ΠΏΡΠΎΡΠ΅ΡΡΠ° Π·Π°ΠΊΡΡΠ²Π°Π½ΠΈΡ, ΡΡΠΎΠ±Ρ ΠΌΠΎΠΆΠ½ΠΎ Π±ΡΠ»ΠΎ ΡΠ΅Π³ΡΠ»ΠΈΡΠΎΠ²Π°ΡΡ ΡΠ°Π·Π»ΠΈΡΠ½ΡΠ΅ ΡΡΠ½ΠΊΡΠΈΠΎΠ½Π°Π»ΡΠ½ΡΠ΅ ΠΈΠ½Π΄ΠΈΠΊΠ°ΡΠΎΡΡ ΠΏΡΠΎΡΠ΅ΡΡΠ° Π·Π°ΠΊΡΡΠ²Π°Π½ΠΈΡ Π² ΡΠΎΠΎΡΠ²Π΅ΡΡΡΠ²ΠΈΠΈ Ρ ΠΏΠΎΡΡΠ΅Π±Π½ΠΎΡΡΡΠΌΠΈ Π»ΡΠ΄Π΅ΠΉ.ΠΠ²Π΅ΡΠ½ΠΎΠΉ Π΄ΠΎΠ²ΠΎΠ΄ΡΠΈΠΊ ΠΏΡΠ΅Π΄Π½Π°Π·Π½Π°ΡΠ΅Π½ Π½Π΅ ΡΠΎΠ»ΡΠΊΠΎ Π΄Π»Ρ Π°Π²ΡΠΎΠΌΠ°ΡΠΈΡΠ΅ΡΠΊΠΎΠ³ΠΎ Π·Π°ΠΊΡΡΡΠΈΡ Π΄Π²Π΅ΡΠΈ, Π½ΠΎ ΠΈ Π΄Π»Ρ Π·Π°ΡΠΈΡΡ Π΄Π²Π΅ΡΠ½ΠΎΠΉ ΠΊΠΎΡΠΎΠ±ΠΊΠΈ ΠΈ ΠΊΠΎΡΠΏΡΡΠ° Π΄Π²Π΅ΡΠΈ (ΠΏΠ»Π°Π²Π½ΠΎΠ΅ Π·Π°ΠΊΡΡΡΠΈΠ΅). Π§ΡΠΎ Π΅ΡΠ΅ Π±ΠΎΠ»Π΅Π΅ Π²Π°ΠΆΠ½ΠΎ, Π΄Π²Π΅ΡΠ½ΠΎΠΉ Π΄ΠΎΠ²ΠΎΠ΄ΡΠΈΠΊ ΡΡΠ°Π» Π½Π΅ΠΎΡΡΠ΅ΠΌΠ»Π΅ΠΌΠΎΠΉ ΡΠ°ΡΡΡΡ ΡΠΎΠ²ΡΠ΅ΠΌΠ΅Π½Π½ΠΎΠΉ ΡΠ°Π·Π²Π΅Π΄ΠΊΠΈ ΠΈ ΡΠΏΡΠ°Π²Π»Π΅Π½ΠΈΡ Π·Π΄Π°Π½ΠΈΠ΅ΠΌ. ΠΠ²Π΅ΡΠ½ΡΠ΅ Π΄ΠΎΠ²ΠΎΠ΄ΡΠΈΠΊΠΈ Π² ΠΎΡΠ½ΠΎΠ²Π½ΠΎΠΌ ΠΈΡΠΏΠΎΠ»ΡΠ·ΡΡΡΡΡ Π² ΠΊΠΎΠΌΠΌΠ΅ΡΡΠ΅ΡΠΊΠΈΡ ΠΈ ΠΎΠ±ΡΠ΅ΡΡΠ²Π΅Π½Π½ΡΡ Π·Π΄Π°Π½ΠΈΡΡ , Π½ΠΎ ΠΎΠ½ΠΈ ΡΠ°ΠΊΠΆΠ΅ ΠΈΡΠΏΠΎΠ»ΡΠ·ΡΡΡΡΡ Π΄ΠΎΠΌΠ°. Π£ Π½ΠΈΡ ΠΌΠ½ΠΎΠ³ΠΎ ΠΏΡΠΈΠΌΠ΅Π½Π΅Π½ΠΈΠΉ, Π½Π°ΠΈΠ±ΠΎΠ»Π΅Π΅ Π²Π°ΠΆΠ½ΡΠΌ ΠΈΠ· ΠΊΠΎΡΠΎΡΡΡ ΡΠ²Π»ΡΠ΅ΡΡΡ Π·Π°ΠΊΡΡΡΠΈΠ΅ ΡΠ°ΠΌΠΎΠΉ Π΄Π²Π΅ΡΠΈ Π΄Π»Ρ ΠΎΠ³ΡΠ°Π½ΠΈΡΠ΅Π½ΠΈΡ ΡΠ°ΡΠΏΡΠΎΡΡΡΠ°Π½Π΅Π½ΠΈΡ ΠΎΠ³Π½Ρ ΠΈ Π²Π΅Π½ΡΠΈΠ»ΡΡΠΈΠΈ Π² Π·Π΄Π°Π½ΠΈΠΈ.
ΠΠ²ΡΠΎΠΌΠ°ΡΠΈΡΠ΅ΡΠΊΠΈΠΉ Π΄ΠΎΠ²ΠΎΠ΄ΡΠΈΠΊ Π΄Π²Π΅ΡΠΈ
ΠΡΠΈΠ½ΡΠΈΠΏ ΡΠ°Π±ΠΎΡΡ Π°Π²ΡΠΎΠΌΠ°ΡΠΈΡΠ΅ΡΠΊΠΎΠ³ΠΎ Π΄ΠΎΠ²ΠΎΠ΄ΡΠΈΠΊΠ°
ΠΠΎΠ³Π΄Π° Π΄Π²Π΅ΡΡ ΠΎΡΠΊΡΡΠ²Π°Π΅ΡΡΡ, ΠΊΠΎΡΠΏΡΡ Π΄Π²Π΅ΡΠΈ ΠΏΡΠΈΠ²ΠΎΠ΄ΠΈΡ Π² Π΄Π²ΠΈΠΆΠ΅Π½ΠΈΠ΅ Π·Π²Π΅Π½ΠΎ, ΠΈ ΡΠ΅ΡΡΠ΅ΡΠ½Ρ ΡΡΠ°Π½ΡΠΌΠΈΡΡΠΈΠΈ Π²ΡΠ°ΡΠ°Π΅ΡΡΡ, Π° ΠΏΠ»ΡΠ½ΠΆΠ΅Ρ ΠΏΡΠΈΠ²ΠΎΠ΄Π½ΠΎΠΉ ΡΠ΅ΠΉΠΊΠΈ ΠΏΠ΅ΡΠ΅ΠΌΠ΅ΡΠ°Π΅ΡΡΡ Π²ΠΏΡΠ°Π²ΠΎ. ΠΡΡΠΆΠΈΠ½Π° ΡΠΆΠΈΠΌΠ°Π΅ΡΡΡ Π²ΠΎ Π²ΡΠ΅ΠΌΡ ΡΠ΄Π²ΠΈΠ³Π° ΠΏΠ»ΡΠ½ΠΆΠ΅ΡΠ° Π²ΠΏΡΠ°Π²ΠΎ, ΠΈ Π³ΠΈΠ΄ΡΠ°Π²Π»ΠΈΡΠ΅ΡΠΊΠΎΠ΅ ΠΌΠ°ΡΠ»ΠΎ Π² ΠΏΡΠ°Π²ΠΎΠΉ ΠΊΠ°ΠΌΠ΅ΡΠ΅ ΡΠ°ΠΊΠΆΠ΅ Π½Π°Ρ ΠΎΠ΄ΠΈΡΡΡ ΠΏΠΎΠ΄ Π΄Π°Π²Π»Π΅Π½ΠΈΠ΅ΠΌ. Π¨Π°ΡΠΈΠΊ ΠΎΠ΄Π½ΠΎΡΡΠΎΡΠΎΠ½Π½Π΅Π³ΠΎ ΠΊΠ»Π°ΠΏΠ°Π½Π° Π½Π° Π»Π΅Π²ΠΎΠΉ ΡΡΠΎΡΠΎΠ½Π΅ ΠΏΠ»ΡΠ½ΠΆΠ΅ΡΠ° ΠΎΡΠΊΡΡΠ²Π°Π΅ΡΡΡ ΠΏΠΎΠ΄ Π΄Π΅ΠΉΡΡΠ²ΠΈΠ΅ΠΌ Π΄Π°Π²Π»Π΅Π½ΠΈΡ ΠΌΠ°ΡΠ»Π°, ΠΈ Π³ΠΈΠ΄ΡΠ°Π²Π»ΠΈΡΠ΅ΡΠΊΠΎΠ΅ ΠΌΠ°ΡΠ»ΠΎ ΠΈΠ· ΠΏΡΠ°Π²ΠΎΠΉ ΠΊΠ°ΠΌΠ΅ΡΡ ΠΏΠ΅ΡΠ΅ΡΠ΅ΠΊΠ°Π΅Ρ ΡΠ΅ΡΠ΅Π· ΠΎΠ΄Π½ΠΎΡΡΠΎΡΠΎΠ½Π½ΠΈΠΉ ΠΊΠ»Π°ΠΏΠ°Π½ Π² Π»Π΅Π²ΡΡ ΠΊΠ°ΠΌΠ΅ΡΡ.ΠΠΎΠ³Π΄Π° ΠΏΡΠΎΡΠ΅ΡΡ ΠΎΡΠΊΡΡΠ²Π°Π½ΠΈΡ Π΄Π²Π΅ΡΠΈ Π·Π°Π²Π΅ΡΡΠ΅Π½, ΠΏΠΎΡΠΊΠΎΠ»ΡΠΊΡ ΠΏΡΡΠΆΠΈΠ½Π° ΡΠΆΠΈΠΌΠ°Π΅ΡΡΡ Π²ΠΎ Π²ΡΠ΅ΠΌΡ ΠΏΡΠΎΡΠ΅ΡΡΠ° ΠΎΡΠΊΡΡΠ²Π°Π½ΠΈΡ, Π½Π°ΠΊΠΎΠΏΠ»Π΅Π½Π½Π°Ρ ΡΠΏΡΡΠ³Π°Ρ ΠΏΠΎΡΠ΅Π½ΡΠΈΠ°Π»ΡΠ½Π°Ρ ΡΠ½Π΅ΡΠ³ΠΈΡ Π²ΡΡΠ²ΠΎΠ±ΠΎΠΆΠ΄Π°Π΅ΡΡΡ, ΡΠΎΠ»ΠΊΠ°Ρ ΠΏΠ»ΡΠ½ΠΆΠ΅Ρ Π²Π»Π΅Π²ΠΎ ΠΈ ΠΏΡΠΈΠ²ΠΎΠ΄Ρ Π²ΠΎ Π²ΡΠ°ΡΠ΅Π½ΠΈΠ΅ ΡΠ΅ΡΡΠ΅ΡΠ½Ρ ΡΡΠ°Π½ΡΠΌΠΈΡΡΠΈΠΈ ΠΈ Π·Π²Π΅Π½ΠΎ Π΄ΠΎΠ²ΠΎΠ΄ΡΠΈΠΊΠ° Π΄Π²Π΅ΡΠΈ, ΡΠ°ΠΊ ΡΡΠΎ Π΄Π²Π΅ΡΡ Π·Π°ΠΊΡΡΡΠ°.
Π£ΡΡΠ°Π½ΠΎΠ²ΠΊΠ° Π°Π²ΡΠΎΠΌΠ°ΡΠΈΡΠ΅ΡΠΊΠΎΠ³ΠΎ Π΄Π²Π΅ΡΠ½ΠΎΠ³ΠΎ Π΄ΠΎΠ²ΠΎΠ΄ΡΠΈΠΊΠ°
1. ΠΠ±ΡΡΠ½ΠΎ Π°Π²ΡΠΎΠΌΠ°ΡΠΈΡΠ΅ΡΠΊΠΈΠ΅ Π΄Π²Π΅ΡΠ½ΡΠ΅ Π΄ΠΎΠ²ΠΎΠ΄ΡΠΈΠΊΠΈ ΠΈΡΠΏΠΎΠ»ΡΠ·ΡΡΡΡΡ ΡΠΎ ΡΡΠΎΡΠΎΠ½Ρ Π΄Π²Π΅ΡΠ½ΠΎΠ³ΠΎ Π΄ΠΎΠ²ΠΎΠ΄ΡΠΈΠΊΠ°, ΠΊΠΎΡΠΎΡΠ°Ρ ΡΡΡΠ°Π½ΠΎΠ²Π»Π΅Π½Π° ββΡΠΎ ΡΡΠΎΡΠΎΠ½Ρ ΠΏΠ΅ΡΠ΅Π»Ρ, ΠΈ Π΄Π²Π΅ΡΡ ΠΎΡΠΊΡΡΡΠ°.ΠΡΠΈ ΡΠ°ΠΊΠΎΠΉ ΡΡΡΠ°Π½ΠΎΠ²ΠΊΠ΅ ΡΡΡΠ°Π³ΠΈ Π΄Π²Π΅ΡΠ½ΠΎΠ³ΠΎ Π΄ΠΎΠ²ΠΎΠ΄ΡΠΈΠΊΠ° Π²ΡΡΡΡΠΏΠ°ΡΡ Π½Π°ΡΡΠΆΡ ΠΏΡΠΈΠΌΠ΅ΡΠ½ΠΎ Π½Π° 90 Β° ΠΏΠΎ ΠΎΡΠ½ΠΎΡΠ΅Π½ΠΈΡ ΠΊ Π΄Π²Π΅ΡΠ½ΠΎΠΉ ΠΊΠΎΡΠΎΠ±ΠΊΠ΅.
2. ΠΠ²ΡΠΎΠΌΠ°ΡΠΈΡΠ΅ΡΠΊΠΈΠΉ Π΄ΠΎΠ²ΠΎΠ΄ΡΠΈΠΊ Π΄Π²Π΅ΡΠΈ ΠΌΠΎΠ½ΡΠΈΡΡΠ΅ΡΡΡ Ρ ΠΏΡΠΎΡΠΈΠ²ΠΎΠΏΠΎΠ»ΠΎΠΆΠ½ΠΎΠΉ ΡΡΠΎΡΠΎΠ½Ρ ΠΏΠ΅ΡΠ»ΠΈ ΠΎΡ ΠΏΠ΅ΡΠ»ΠΈ. ΠΠ±ΡΡΠ½ΠΎ Π΄ΠΎΠΏΠΎΠ»Π½ΠΈΡΠ΅Π»ΡΠ½ΡΠΉ ΠΊΡΠΎΠ½ΡΡΠ΅ΠΉΠ½, ΠΏΠΎΡΡΠ°Π²Π»ΡΠ΅ΠΌΡΠΉ Ρ Π΄ΠΎΠ²ΠΎΠ΄ΡΠΈΠΊΠΎΠΌ, ΡΡΡΠ°Π½Π°Π²Π»ΠΈΠ²Π°Π΅ΡΡΡ Π½Π° ΡΡΡΠ°Π³ ΠΏΠ°ΡΠ°Π»Π»Π΅Π»ΡΠ½ΠΎ Π΄Π²Π΅ΡΠ½ΠΎΠΉ ΠΊΠΎΡΠΎΠ±ΠΊΠ΅. ΠΡΠΎΡ ΡΠΈΠΏ ΠΈΡΠΏΠΎΠ»ΡΠ·ΠΎΠ²Π°Π½ΠΈΡ ΠΎΠ±ΡΡΠ½ΠΎ ΠΈΡΠΏΠΎΠ»ΡΠ·ΡΠ΅ΡΡΡ Π½Π° Π²Ρ ΠΎΠ΄Π½ΡΡ Π΄Π²Π΅ΡΡΡ , ΠΊΠΎΡΠΎΡΡΠ΅ Π½Π΅ Ρ ΠΎΡΡΡ ΡΡΡΠ°Π½Π°Π²Π»ΠΈΠ²Π°ΡΡ Π΄Π²Π΅ΡΠ½ΡΠ΅ Π΄ΠΎΠ²ΠΎΠ΄ΡΠΈΠΊΠΈ ΡΠ½Π°ΡΡΠΆΠΈ Π·Π΄Π°Π½ΠΈΡ.
3. ΠΠΎΡΠΏΡΡ Π°Π²ΡΠΎΠΌΠ°ΡΠΈΡΠ΅ΡΠΊΠΎΠ³ΠΎ Π΄ΠΎΠ²ΠΎΠ΄ΡΠΈΠΊΠ°, Π² ΡΠ²ΠΎΡ ΠΎΡΠ΅ΡΠ΅Π΄Ρ, ΠΊΡΠ΅ΠΏΠΈΡΡΡ ΠΊ Π΄Π²Π΅ΡΠ½ΠΎΠΉ ΠΊΠΎΡΠΎΠ±ΠΊΠ΅ Π²ΠΌΠ΅ΡΡΠΎ Π΄Π²Π΅ΡΠΈ, Π° Π΄ΠΎΠ²ΠΎΠ΄ΡΠΈΠΊ Π½Π°Ρ ΠΎΠ΄ΠΈΡΡΡ Π½Π° ΠΏΡΠΎΡΠΈΠ²ΠΎΠΏΠΎΠ»ΠΎΠΆΠ½ΠΎΠΉ ΡΡΠΎΡΠΎΠ½Π΅ Π΄Π²Π΅ΡΠ½ΠΎΠΉ ΠΏΠ΅ΡΠ»ΠΈ.ΠΡΠΎ ΠΈΡΠΏΠΎΠ»ΡΠ·ΠΎΠ²Π°Π½ΠΈΠ΅ ΡΠ°ΠΊΠΆΠ΅ ΠΌΠΎΠΆΠ½ΠΎ ΠΈΡΠΏΠΎΠ»ΡΠ·ΠΎΠ²Π°ΡΡ Π΄Π»Ρ Π½Π°ΡΡΠΆΠ½ΡΡ Π΄Π²Π΅ΡΠ΅ΠΉ, ΠΊΠΎΡΠΎΡΡΠ΅ ΠΎΡΠΊΡΡΠ²Π°ΡΡΡΡ Π½Π°ΡΡΠΆΡ, ΠΎΡΠΎΠ±Π΅Π½Π½ΠΎ Ρ ΡΠ·ΠΊΠΈΠΌ Π²Π΅ΡΡ Π½ΠΈΠΌ ΠΊΡΠ°Π΅ΠΌ ΠΈ Π½Π΅Π΄ΠΎΡΡΠ°ΡΠΎΡΠ½ΡΠΌ ΠΏΡΠΎΡΡΡΠ°Π½ΡΡΠ²ΠΎΠΌ Π΄Π»Ρ ΡΠ°Π·ΠΌΠ΅ΡΠ΅Π½ΠΈΡ ΡΡΠΈΡ Π΄Π²Π΅ΡΠ΅ΠΉ Π² ΠΊΠΎΡΠΏΡΡΠ΅ Π΄Π²Π΅ΡΠ½ΠΎΠ³ΠΎ Π΄ΠΎΠ²ΠΎΠ΄ΡΠΈΠΊΠ°.
4, Π²Π΅ΡΡΠΈΠΊΠ°Π»ΡΠ½ΡΠΉ Π΄Π²Π΅ΡΠ½ΠΎΠΉ Π΄ΠΎΠ²ΠΎΠ΄ΡΠΈΠΊ (Π²ΡΡΡΠΎΠ΅Π½Π½ΡΠΉ Π²Π΅ΡΡΠΈΠΊΠ°Π»ΡΠ½ΡΠΉ Π΄Π²Π΅ΡΠ½ΠΎΠΉ Π΄ΠΎΠ²ΠΎΠ΄ΡΠΈΠΊ) ΡΡΡΠ°Π½Π°Π²Π»ΠΈΠ²Π°Π΅ΡΡΡ Π½Π΅Π²ΠΈΠ΄ΠΈΠΌΡΠΌ Π²Π½ΡΡΡΠΈ ΡΡΠΎΡΠΎΠ½Ρ Π²Π°Π»Π° Π΄Π²Π΅ΡΠ½ΠΎΠ³ΠΎ Π²Π΅Π½ΡΠΈΠ»ΡΡΠΎΡΠ°, Π²ΠΈΠ½ΡΡ ΠΈ ΠΊΠΎΠΌΠΏΠΎΠ½Π΅Π½ΡΡ Π½Π΅ Π²ΠΈΠ΄Π½Ρ ΡΠ½Π°ΡΡΠΆΠΈ, ΠΌΠΎΠΆΠ΅Ρ Π±ΡΡΡ ΠΈΠ½ΡΠ΅Π³ΡΠΈΡΠΎΠ²Π°Π½ Ρ Π΄Π²Π΅ΡΡΡ, ΠΌΠΎΠΆΠ΅Ρ Π±ΡΡΡ ΠΎΡΠΊΡΡΡ ΠΈ Π·Π°ΠΊΡΡΡΡΠ΅ Π² ΠΎΠ΄Π½ΠΎΠΌ Π½Π°ΠΏΡΠ°Π²Π»Π΅Π½ΠΈΠΈ, ΠΏΡΠΎΡΡΠ°Ρ ΠΊΠΎΠ½ΡΡΡΡΠΊΡΠΈΡ.
ΠΠΎΠ²ΠΎΠ΄ΡΠΈΠΊ Π² ΡΡΠΎΠΌ ΡΠ»ΡΡΠ°Π΅ ΠΊΡΠ΅ΠΏΠΈΡΡΡ ΠΏΡΠΈ ΠΏΠΎΠΌΠΎΡΠΈ ΠΊΡΠΎΠ½ΡΡΠ΅ΠΉΠ½Π°, ΠΊΠΎΡΠΎΡΡΠΉ ΡΠ°ΠΊΠΆΠ΅ ΠΈΠ΄Π΅Ρ Π² ΠΊΠΎΠΌΠΏΠ»Π΅ΠΊΡΠ΅ ΠΏΠΎΡΡΠ°Π²ΠΊΠΈ. Π£ΡΡΠ°Π½Π°Π²Π»ΠΈΠ²Π°Ρ Π΄ΠΎΠ²ΠΎΠ΄ΡΠΈΠΊ, ΡΠ»Π΅Π΄ΠΈΡΠ΅, ΡΡΠΎΠ±Ρ ΡΠ΅Π³ΡΠ»ΠΈΡΠΎΠ²ΠΎΡΠ½ΡΠ΅ Π²ΠΈΠ½ΡΡ Π²ΡΠ°ΡΠ°Π»ΠΈΡΡ ΠΎΡ ΠΏΠ΅ΡΠ΅Π»Ρ Π² ΠΏΡΠΎΡΠΈΠ²ΠΎΠΏΠΎΠ»ΠΎΠΆΠ½ΡΡ ΡΡΠΎΡΠΎΠ½Ρ. ΠΠ°ΠΆΠ½ΠΎ Π½ΠΈΡΠ΅Π³ΠΎ Π½Π΅ Π½Π°ΠΏΡΡΠ°ΡΡ Π² ΠΏΡΠΎΡΠ΅ΡΡΠ΅ ΠΌΠΎΠ½ΡΠ°ΠΆΠ°, ΠΈΠ½Π°ΡΠ΅ Π½Π΅ΠΏΡΠ°Π²ΠΈΠ»ΡΠ½Π°Ρ ΡΡΡΠ°Π½ΠΎΠ²ΠΊΠ° ΠΏΡΠΈΠ²Π΅Π΄Π΅Ρ ΠΊ ΡΠΎΠΌΡ, ΡΡΠΎ Π½Π΅ ΠΏΠΎΠ»ΡΡΠΈΡΡΡΡ ΠΏΡΠΎΠ²Π΅ΡΡΠΈ ΠΎΠΏΡΠΈΠΌΠ°Π»ΡΠ½ΡΡ ΡΠ΅Π³ΡΠ»ΠΈΡΠΎΠ²ΠΊΡ Π΄ΠΎΠ²ΠΎΠ΄ΡΠΈΠΊΠ° Π΄Π²Π΅ΡΠΈ.
ΠΡΠ»ΠΈ ΠΏΠΎΡΠ²ΠΈΠ»Π°ΡΡ ΡΠ΅ΡΡ, ΡΠΎ ΡΡΠΎ Π³ΠΎΠ²ΠΎΡΠΈΡ ΠΎ ΡΠ°Π·Π³Π΅ΡΠΌΠ΅ΡΠΈΠ·Π°ΡΠΈΠΈ ΠΊΠΎΡΠΏΡΡΠ° ΠΈ ΠΏΠΎΡΠ²Π»Π΅Π½ΠΈΠΈ ΠΏΠΎΠ²ΡΠ΅ΠΆΠ΄Π΅Π½ΠΈΠΉ, ΠΈΠ· ΠΊΠΎΡΠΎΡΡΡ
ΠΈ Π²ΡΡΠ΅ΠΊΠ°Π΅Ρ Π½Π°ΡΡΠΆΡ ΠΌΠ°ΡΠ»ΠΎ. Π ΡΠ΅Π·ΡΠ»ΡΡΠ°ΡΠ΅ ΡΡΠΎΠ³ΠΎ ΠΌΠ΅Ρ
Π°Π½ΠΈΠ·ΠΌ ΠΏΠ΅ΡΠ΅ΡΡΠ°Π΅Ρ ΠΏΠ»Π°Π²Π½ΠΎ Π΄ΠΎΠ²ΠΎΠ΄ΠΈΡΡ Π΄Π²Π΅ΡΡ, Π³ΡΠΎΠΌΠΊΠΎ Ρ
Π»ΠΎΠΏΠ°Π΅Ρ ΠΈ ΠΏΡΠ΅Π²ΡΠ°ΡΠ°Π΅ΡΡΡ Π² ΠΎΠ±ΡΠΊΠ½ΠΎΠ²Π΅Π½Π½ΡΡ ΠΏΡΡΠΆΠΈΠ½Ρ. ΠΡΠ»ΠΈ Π²Ρ ΡΠΌΠΎΠ³Π»ΠΈ ΡΠ²ΠΎΠ΅Π²ΡΠ΅ΠΌΠ΅Π½Π½ΠΎ ΠΎΡΡΡΠΊΠ°ΡΡ ΠΏΠΎΠ²ΡΠ΅ΠΆΠ΄Π΅Π½Π½ΡΠ΅ ΡΡΠ°ΡΡΠΊΠΈ, Π½ΡΠΆΠ½ΠΎ ΠΈΡ
Π·Π°Π³Π΅ΡΠΌΠ΅ΡΠΈΠ·ΠΈΡΠΎΠ²Π°ΡΡ, ΡΡΠΎ ΡΠΏΠΎΡΠΎΠ±ΡΡΠ²ΡΠ΅Ρ ΠΏΡΠΎΠ΄Π»Π΅Π½ΠΈΡ ΡΠ»ΡΠΆΠ΅Π±Π½ΠΎΠ³ΠΎ ΡΡΠΎΠΊΠ° Π°ΠΏΠΏΠ°ΡΠ°ΡΠ°. ΠΠ΄Π½Π°ΠΊΠΎ Π΅ΡΠ»ΠΈ ΠΏΠΎΠ²ΡΠ΅ΠΆΠ΄Π΅Π½Π½ΠΎΠ΅ ΠΌΠ΅ΡΡΠΎ ΡΠ»ΠΈΡΠΊΠΎΠΌ Π²Π΅Π»ΠΈΠΊΠΎ, ΡΠΎ Π½Π΅ ΠΏΠΎΠ»ΡΡΠΈΡΡΡ Π²ΡΠΏΠΎΠ»Π½ΠΈΡΡ ΡΠ΅ΠΌΠΎΠ½Ρ Π΄ΠΎΠ²ΠΎΠ΄ΡΠΈΠΊΠ° Π΄Π²Π΅ΡΠΈ ΡΠ²ΠΎΠΈΠΌΠΈ ΡΡΠΊΠ°ΠΌΠΈ ΠΈ ΠΏΡΠΈΠ΄Π΅ΡΡΡ ΠΏΠΎΠΊΡΠΏΠ°ΡΡ Π½ΠΎΠ²ΡΠΉ Π΄ΠΎΠ²ΠΎΠ΄ΡΠΈΠΊ.
ΠΠΎΡΠΏΡΡ Π΄ΠΎΠ²ΠΎΠ΄ΡΠΈΠΊΠ° ΠΌΠΎΠ½ΡΠΈΡΡΠΉΡΠ΅ Π½Π° Π΄Π²Π΅ΡΡ, ΡΡΠ³Ρ β Π½Π° Π΄Π²Π΅ΡΠ½ΡΡ ΠΊΠΎΡΠΎΠ±ΠΊΡ. Π‘ΠΎΠ΅Π΄ΠΈΠ½ΠΈΡΠ΅ ΠΊΠΎΡΠΏΡΡ Ρ ΡΡΠ³ΠΎΠΉ ΠΏΠΎΡΡΠ΅Π΄ΡΡΠ²ΠΎΠΌ ΠΈΠ΄ΡΡΠ΅Π³ΠΎ Π² ΠΊΠΎΠΌΠΏΠ»Π΅ΠΊΡΠ΅ ΡΡΡΠ°Π³Π°. ΠΠΎΠΌΠ½ΠΈΡΠ΅, ΡΡΠΎ ΠΎΡ Π²ΠΈΠ΄Π° ΡΠΎΠ΅Π΄ΠΈΠ½Π΅Π½ΠΈΡ Π·Π°Π²ΠΈΡΠΈΡ ΡΡΠΈΠ»ΠΈΠ΅. ΠΡΠ»ΠΈ ΡΡΠ³Π° ΡΠ°ΡΠΏΠΎΠ»ΠΎΠΆΠ΅Π½Π° ΠΏΠ΅ΡΠΏΠ΅Π½Π΄ΠΈΠΊΡΠ»ΡΡΠ½ΠΎ ΠΊ ΠΊΠΎΡΠΏΡΡΡ, Π·Π°ΠΊΡΡΠ²Π°Π½ΠΈΠ΅ Π΄Π²Π΅ΡΠ΅ΠΉ Π±ΡΠ΄Π΅Ρ ΠΌΠ΅Π΄Π»Π΅Π½Π½ΠΎΠ΅ ΠΈ ΠΏΠ»Π°Π²Π½ΠΎΠ΅. ΠΡΠ»ΠΈ ΠΏΠ΅ΡΠΏΠ΅Π½Π΄ΠΈΠΊΡΠ»ΡΡΠ½ΠΎ ΠΊ ΠΊΠΎΡΠΏΡΡΡ Π½Π°Ρ
ΠΎΠ΄ΠΈΡΡΡ ΡΡΡΠ°Π³, Π° ΡΡΠ³Π° ΠΏΠΎΠ΄ ΡΠ³Π»ΠΎΠΌ β Π΄Π²Π΅ΡΡ Π±ΡΠ΄Π΅Ρ Π·Π°ΠΊΡΡΠ²Π°ΡΡΡΡ Ρ Π±ΠΎΠ»ΡΡΠΈΠΌ ΡΡΠΈΠ»ΠΈΠ΅ΠΌ. ΠΡΠΎΡ Π²Π°ΡΠΈΠ°Π½Ρ ΡΡΠ΅Π±ΡΠ΅ΡΡΡ Π² ΡΠ»ΡΡΠ°ΡΡ
, ΠΊΠΎΠ³Π΄Π° Π΄Π²Π΅ΡΡ Π·Π°ΠΊΡΡΠ²Π°Π΅ΡΡΡ ΡΠ΅ΡΠ΅Π· Π·Π°ΡΠ΅Π»ΠΊΡ.